Airfield Inspection Checklist . Browse the public library of over 100,000 free editable. the checklist is divided into sections for air traffic control, airport and aircraft operator, to enable the user to answer specific. the operator of a certified aerodrome is required to carry out periodic inspections/validations of the. airport operators holding an faa airport operating certificate―class i, ii, iii, or iv―must conduct a daily airport. to ensure the continuing serviceability of the aerodrome, the operator of a certified aerodrome is required to establish an.
from nap.nationalacademies.org
airport operators holding an faa airport operating certificate―class i, ii, iii, or iv―must conduct a daily airport. to ensure the continuing serviceability of the aerodrome, the operator of a certified aerodrome is required to establish an. the operator of a certified aerodrome is required to carry out periodic inspections/validations of the. the checklist is divided into sections for air traffic control, airport and aircraft operator, to enable the user to answer specific. Browse the public library of over 100,000 free editable.
Appendix C Sample Checklist for Inspection of Risk Control Actions Airport Safety Risk
Airfield Inspection Checklist the operator of a certified aerodrome is required to carry out periodic inspections/validations of the. the operator of a certified aerodrome is required to carry out periodic inspections/validations of the. to ensure the continuing serviceability of the aerodrome, the operator of a certified aerodrome is required to establish an. Browse the public library of over 100,000 free editable. the checklist is divided into sections for air traffic control, airport and aircraft operator, to enable the user to answer specific. airport operators holding an faa airport operating certificate―class i, ii, iii, or iv―must conduct a daily airport.
From www.scribd.com
Aircraft Inspection Checklist for Pilots Hawkers.pdf Airfield Inspection Checklist airport operators holding an faa airport operating certificate―class i, ii, iii, or iv―must conduct a daily airport. to ensure the continuing serviceability of the aerodrome, the operator of a certified aerodrome is required to establish an. the operator of a certified aerodrome is required to carry out periodic inspections/validations of the. Browse the public library of over. Airfield Inspection Checklist.
From nap.nationalacademies.org
Appendix I SelfInspection Checklist (Courtesy of St. Cloud Regional Airport) Airport Self Airfield Inspection Checklist airport operators holding an faa airport operating certificate―class i, ii, iii, or iv―must conduct a daily airport. Browse the public library of over 100,000 free editable. the operator of a certified aerodrome is required to carry out periodic inspections/validations of the. the checklist is divided into sections for air traffic control, airport and aircraft operator, to enable. Airfield Inspection Checklist.
From vdocuments.mx
AIRPORT CERTIFICATION/SAFETY INSPECTION CHECKLIST · · 20171019AIRPORT CERTIFICATION/SAFETY Airfield Inspection Checklist to ensure the continuing serviceability of the aerodrome, the operator of a certified aerodrome is required to establish an. the checklist is divided into sections for air traffic control, airport and aircraft operator, to enable the user to answer specific. airport operators holding an faa airport operating certificate―class i, ii, iii, or iv―must conduct a daily airport.. Airfield Inspection Checklist.
From www.slideshare.net
Aircraft Inspection and Maintenance Records Airfield Inspection Checklist the operator of a certified aerodrome is required to carry out periodic inspections/validations of the. airport operators holding an faa airport operating certificate―class i, ii, iii, or iv―must conduct a daily airport. to ensure the continuing serviceability of the aerodrome, the operator of a certified aerodrome is required to establish an. Browse the public library of over. Airfield Inspection Checklist.
From www.slideshare.net
Aircraft Inspection and Maintenance Records Airfield Inspection Checklist Browse the public library of over 100,000 free editable. to ensure the continuing serviceability of the aerodrome, the operator of a certified aerodrome is required to establish an. the operator of a certified aerodrome is required to carry out periodic inspections/validations of the. the checklist is divided into sections for air traffic control, airport and aircraft operator,. Airfield Inspection Checklist.
From app-139.com
Airfield Inspection Management Software App139 by GateKeeper Airfield Inspection Checklist airport operators holding an faa airport operating certificate―class i, ii, iii, or iv―must conduct a daily airport. to ensure the continuing serviceability of the aerodrome, the operator of a certified aerodrome is required to establish an. the checklist is divided into sections for air traffic control, airport and aircraft operator, to enable the user to answer specific.. Airfield Inspection Checklist.
From fluix.io
PreFlight Check Template Flight Preparation and Inspection Airfield Inspection Checklist the checklist is divided into sections for air traffic control, airport and aircraft operator, to enable the user to answer specific. airport operators holding an faa airport operating certificate―class i, ii, iii, or iv―must conduct a daily airport. Browse the public library of over 100,000 free editable. the operator of a certified aerodrome is required to carry. Airfield Inspection Checklist.
From nap.nationalacademies.org
Appendix J SelfInspection Checklist (Courtesy of Dane County Regional Airport) Airport Self Airfield Inspection Checklist airport operators holding an faa airport operating certificate―class i, ii, iii, or iv―must conduct a daily airport. the checklist is divided into sections for air traffic control, airport and aircraft operator, to enable the user to answer specific. to ensure the continuing serviceability of the aerodrome, the operator of a certified aerodrome is required to establish an.. Airfield Inspection Checklist.
From nap.nationalacademies.org
Appendix L Sample Airport Operations Training Checklist Airport Operations Training at Small Airfield Inspection Checklist airport operators holding an faa airport operating certificate―class i, ii, iii, or iv―must conduct a daily airport. Browse the public library of over 100,000 free editable. the operator of a certified aerodrome is required to carry out periodic inspections/validations of the. to ensure the continuing serviceability of the aerodrome, the operator of a certified aerodrome is required. Airfield Inspection Checklist.
From mungfali.com
Aircraft Inspection Checklist Airfield Inspection Checklist Browse the public library of over 100,000 free editable. the operator of a certified aerodrome is required to carry out periodic inspections/validations of the. airport operators holding an faa airport operating certificate―class i, ii, iii, or iv―must conduct a daily airport. the checklist is divided into sections for air traffic control, airport and aircraft operator, to enable. Airfield Inspection Checklist.
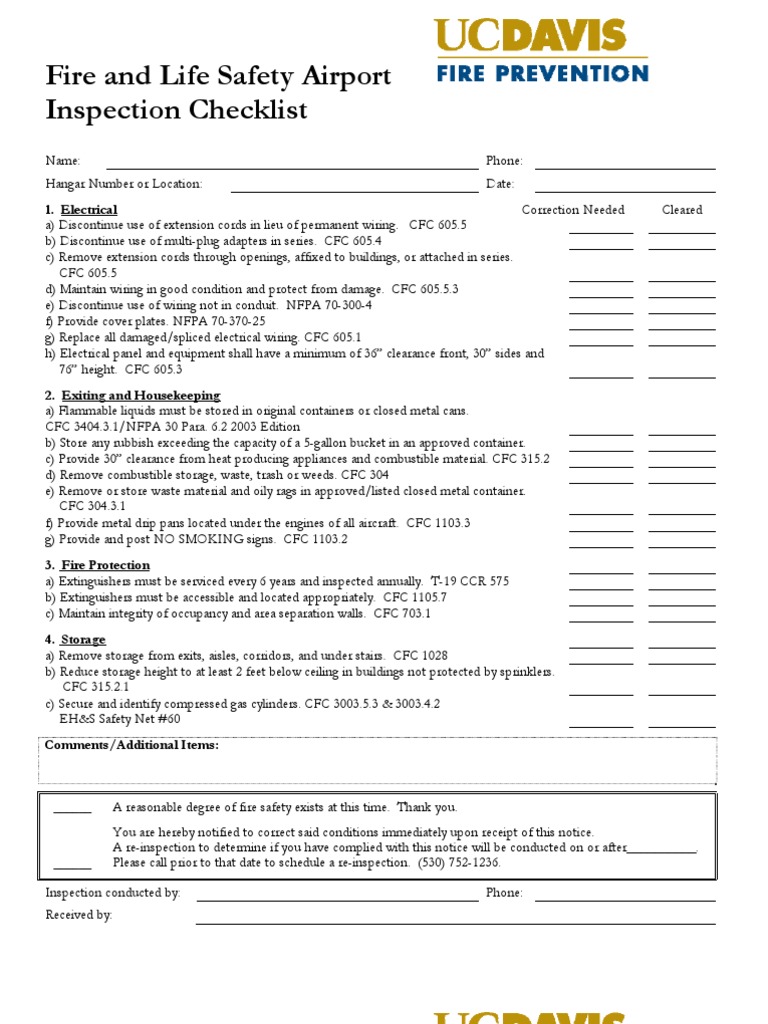
From www.scribd.com
Airport Inspection Checklist PDF Flammability Electrical Wiring Airfield Inspection Checklist the checklist is divided into sections for air traffic control, airport and aircraft operator, to enable the user to answer specific. to ensure the continuing serviceability of the aerodrome, the operator of a certified aerodrome is required to establish an. the operator of a certified aerodrome is required to carry out periodic inspections/validations of the. airport. Airfield Inspection Checklist.
From www.scribd.com
Checklist Runway and Airfield PDF Airfield Inspection Checklist airport operators holding an faa airport operating certificate―class i, ii, iii, or iv―must conduct a daily airport. Browse the public library of over 100,000 free editable. the checklist is divided into sections for air traffic control, airport and aircraft operator, to enable the user to answer specific. to ensure the continuing serviceability of the aerodrome, the operator. Airfield Inspection Checklist.
From www.templateroller.com
15 WG Form 32 Fill Out, Sign Online and Download Fillable PDF Templateroller Airfield Inspection Checklist the checklist is divided into sections for air traffic control, airport and aircraft operator, to enable the user to answer specific. to ensure the continuing serviceability of the aerodrome, the operator of a certified aerodrome is required to establish an. the operator of a certified aerodrome is required to carry out periodic inspections/validations of the. Browse the. Airfield Inspection Checklist.
From www.scribd.com
Aircraft Inspection and Maintenance Records Federal Aviation Administration Aviation Airfield Inspection Checklist the operator of a certified aerodrome is required to carry out periodic inspections/validations of the. to ensure the continuing serviceability of the aerodrome, the operator of a certified aerodrome is required to establish an. Browse the public library of over 100,000 free editable. airport operators holding an faa airport operating certificate―class i, ii, iii, or iv―must conduct. Airfield Inspection Checklist.
From www.scribd.com
DGCA Form 9111 Part 91 141 Inspection Checklist Airworthiness Surveillance June 2019 Airfield Inspection Checklist to ensure the continuing serviceability of the aerodrome, the operator of a certified aerodrome is required to establish an. the operator of a certified aerodrome is required to carry out periodic inspections/validations of the. the checklist is divided into sections for air traffic control, airport and aircraft operator, to enable the user to answer specific. Browse the. Airfield Inspection Checklist.
From templates.rjuuc.edu.np
Osha Safety Inspection Checklist Template Airfield Inspection Checklist to ensure the continuing serviceability of the aerodrome, the operator of a certified aerodrome is required to establish an. Browse the public library of over 100,000 free editable. airport operators holding an faa airport operating certificate―class i, ii, iii, or iv―must conduct a daily airport. the operator of a certified aerodrome is required to carry out periodic. Airfield Inspection Checklist.
From www.travelinsured.com
Infographic Airport Checklist Airfield Inspection Checklist to ensure the continuing serviceability of the aerodrome, the operator of a certified aerodrome is required to establish an. Browse the public library of over 100,000 free editable. the operator of a certified aerodrome is required to carry out periodic inspections/validations of the. airport operators holding an faa airport operating certificate―class i, ii, iii, or iv―must conduct. Airfield Inspection Checklist.
From mavink.com
Airport Cheat Sheet Airfield Inspection Checklist the operator of a certified aerodrome is required to carry out periodic inspections/validations of the. the checklist is divided into sections for air traffic control, airport and aircraft operator, to enable the user to answer specific. to ensure the continuing serviceability of the aerodrome, the operator of a certified aerodrome is required to establish an. airport. Airfield Inspection Checklist.
From nap.nationalacademies.org
Appendix C Sample Checklist for Inspection of Risk Control Actions Airport Safety Risk Airfield Inspection Checklist the operator of a certified aerodrome is required to carry out periodic inspections/validations of the. airport operators holding an faa airport operating certificate―class i, ii, iii, or iv―must conduct a daily airport. the checklist is divided into sections for air traffic control, airport and aircraft operator, to enable the user to answer specific. Browse the public library. Airfield Inspection Checklist.
From www.formsbank.com
Fillable Dd Form 2856 Dod Semiannual Program Review/facility Inspection Checklist printable Airfield Inspection Checklist the checklist is divided into sections for air traffic control, airport and aircraft operator, to enable the user to answer specific. the operator of a certified aerodrome is required to carry out periodic inspections/validations of the. to ensure the continuing serviceability of the aerodrome, the operator of a certified aerodrome is required to establish an. Browse the. Airfield Inspection Checklist.
From nap.nationalacademies.org
Appendix E Checklist for Airfield Construction Airport Safety Risk Management Panel Airfield Inspection Checklist to ensure the continuing serviceability of the aerodrome, the operator of a certified aerodrome is required to establish an. Browse the public library of over 100,000 free editable. the checklist is divided into sections for air traffic control, airport and aircraft operator, to enable the user to answer specific. the operator of a certified aerodrome is required. Airfield Inspection Checklist.
From www.templateroller.com
51 FW Form 39 Fill Out, Sign Online and Download Fillable PDF Templateroller Airfield Inspection Checklist Browse the public library of over 100,000 free editable. the checklist is divided into sections for air traffic control, airport and aircraft operator, to enable the user to answer specific. the operator of a certified aerodrome is required to carry out periodic inspections/validations of the. to ensure the continuing serviceability of the aerodrome, the operator of a. Airfield Inspection Checklist.
From www.tastefulspace.com
Preflight inspection checklist get this at the right time for safety while travelling in air Airfield Inspection Checklist to ensure the continuing serviceability of the aerodrome, the operator of a certified aerodrome is required to establish an. the operator of a certified aerodrome is required to carry out periodic inspections/validations of the. Browse the public library of over 100,000 free editable. airport operators holding an faa airport operating certificate―class i, ii, iii, or iv―must conduct. Airfield Inspection Checklist.
From www.scribd.com
FAA Airports Part 139 Checklist Airport Transport Airfield Inspection Checklist the operator of a certified aerodrome is required to carry out periodic inspections/validations of the. Browse the public library of over 100,000 free editable. the checklist is divided into sections for air traffic control, airport and aircraft operator, to enable the user to answer specific. airport operators holding an faa airport operating certificate―class i, ii, iii, or. Airfield Inspection Checklist.
From dremelmicro.com
Printable Aviation Security Audit Checklist Template Templates Resume Security Audit Checklist Airfield Inspection Checklist Browse the public library of over 100,000 free editable. to ensure the continuing serviceability of the aerodrome, the operator of a certified aerodrome is required to establish an. the operator of a certified aerodrome is required to carry out periodic inspections/validations of the. airport operators holding an faa airport operating certificate―class i, ii, iii, or iv―must conduct. Airfield Inspection Checklist.
From ops.group
Making a Ramp Check painless (with checklist) International Ops 2019 OPSGROUP Airfield Inspection Checklist the operator of a certified aerodrome is required to carry out periodic inspections/validations of the. to ensure the continuing serviceability of the aerodrome, the operator of a certified aerodrome is required to establish an. Browse the public library of over 100,000 free editable. the checklist is divided into sections for air traffic control, airport and aircraft operator,. Airfield Inspection Checklist.
From mungfali.com
Aircraft Inspection Checklist Airfield Inspection Checklist to ensure the continuing serviceability of the aerodrome, the operator of a certified aerodrome is required to establish an. airport operators holding an faa airport operating certificate―class i, ii, iii, or iv―must conduct a daily airport. Browse the public library of over 100,000 free editable. the operator of a certified aerodrome is required to carry out periodic. Airfield Inspection Checklist.
From www.slideshare.net
Aircraft Inspection and Maintenance Records Airfield Inspection Checklist Browse the public library of over 100,000 free editable. the operator of a certified aerodrome is required to carry out periodic inspections/validations of the. the checklist is divided into sections for air traffic control, airport and aircraft operator, to enable the user to answer specific. airport operators holding an faa airport operating certificate―class i, ii, iii, or. Airfield Inspection Checklist.
From www.littleworldadventure.com
My PreFlight Checklist & A Free Printable Checklist Too! — little world adventure Airfield Inspection Checklist airport operators holding an faa airport operating certificate―class i, ii, iii, or iv―must conduct a daily airport. the checklist is divided into sections for air traffic control, airport and aircraft operator, to enable the user to answer specific. to ensure the continuing serviceability of the aerodrome, the operator of a certified aerodrome is required to establish an.. Airfield Inspection Checklist.
From ops.group
Making a Ramp Check painless (with checklist) International Ops 2024 OPSGROUP Airfield Inspection Checklist the checklist is divided into sections for air traffic control, airport and aircraft operator, to enable the user to answer specific. airport operators holding an faa airport operating certificate―class i, ii, iii, or iv―must conduct a daily airport. to ensure the continuing serviceability of the aerodrome, the operator of a certified aerodrome is required to establish an.. Airfield Inspection Checklist.
From nap.nationalacademies.org
Appendix L Sample Airport Operations Training Checklist Airport Operations Training at Small Airfield Inspection Checklist the checklist is divided into sections for air traffic control, airport and aircraft operator, to enable the user to answer specific. to ensure the continuing serviceability of the aerodrome, the operator of a certified aerodrome is required to establish an. Browse the public library of over 100,000 free editable. the operator of a certified aerodrome is required. Airfield Inspection Checklist.
From www.studocu.com
AirportInspectionChecklistPolicy Airport Inspection Program Policy Policy Date Date Airfield Inspection Checklist airport operators holding an faa airport operating certificate―class i, ii, iii, or iv―must conduct a daily airport. to ensure the continuing serviceability of the aerodrome, the operator of a certified aerodrome is required to establish an. the operator of a certified aerodrome is required to carry out periodic inspections/validations of the. Browse the public library of over. Airfield Inspection Checklist.
From joyfill.io
State of Nevada Airport Inspection Checklist Joyfill Airfield Inspection Checklist the operator of a certified aerodrome is required to carry out periodic inspections/validations of the. to ensure the continuing serviceability of the aerodrome, the operator of a certified aerodrome is required to establish an. the checklist is divided into sections for air traffic control, airport and aircraft operator, to enable the user to answer specific. Browse the. Airfield Inspection Checklist.
From www.pdffiller.com
Fillable Online Daily Airport Inspection Checklist Fax Email Print pdfFiller Airfield Inspection Checklist Browse the public library of over 100,000 free editable. the operator of a certified aerodrome is required to carry out periodic inspections/validations of the. airport operators holding an faa airport operating certificate―class i, ii, iii, or iv―must conduct a daily airport. the checklist is divided into sections for air traffic control, airport and aircraft operator, to enable. Airfield Inspection Checklist.
From www.pdffiller.com
Fillable Online AIRCRAFT INSPECTION REPORT Biennial Airworthiness Fax Email Print pdfFiller Airfield Inspection Checklist Browse the public library of over 100,000 free editable. the operator of a certified aerodrome is required to carry out periodic inspections/validations of the. airport operators holding an faa airport operating certificate―class i, ii, iii, or iv―must conduct a daily airport. to ensure the continuing serviceability of the aerodrome, the operator of a certified aerodrome is required. Airfield Inspection Checklist.