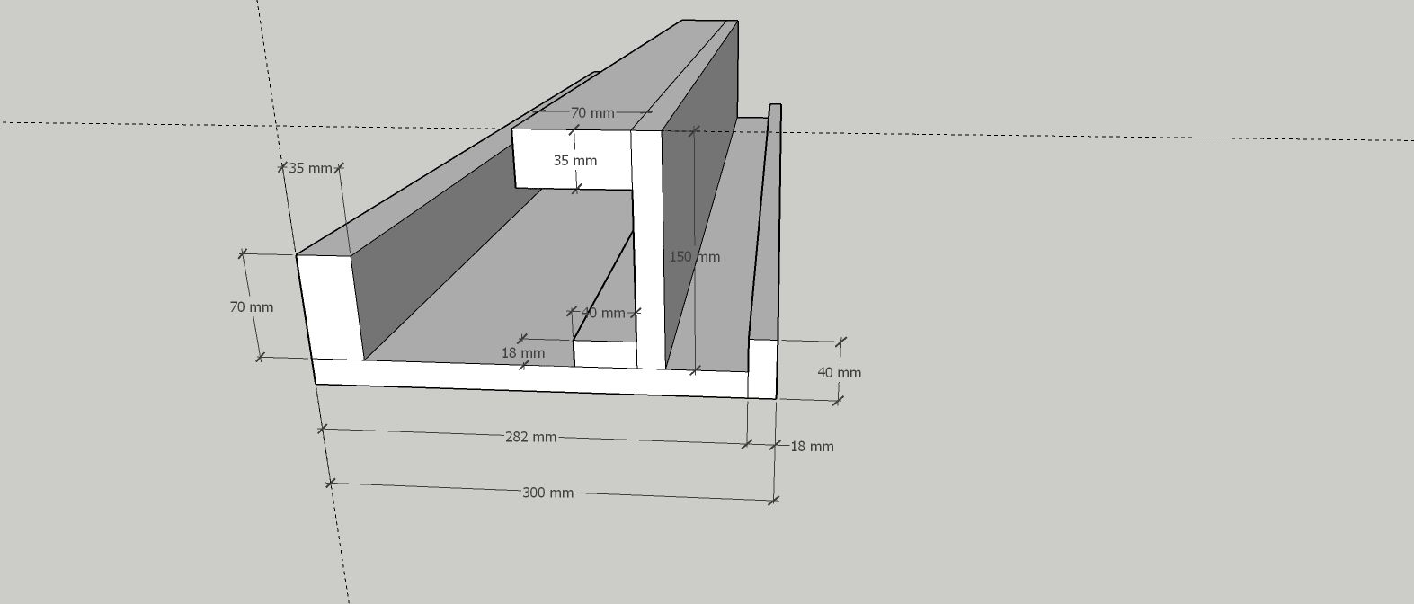
How To Frame A Bulkhead . Learn all the trade skills you will need. A poor framing job can bring a whole mess of problems, so we asked a professional framing carpenter how to best build basement walls. I want to help you to renovate and remodel the home of your dreams and do it yourself. The illustration here shows how 2x4s are joined into “ladders” to create the sides of the box. This video i show you 3 examples how to build a bulkhead with metal studs. There are two ways to frame a wall: Here are steps to follow: Measure the width and height of the basement access. You can either nail the top and bottom plates, then nail the studs in between, or build each section on the floor and then raise and. Record the measurements to ensure accuracy.
from www.youtube.com
This video i show you 3 examples how to build a bulkhead with metal studs. Record the measurements to ensure accuracy. There are two ways to frame a wall: Learn all the trade skills you will need. You can either nail the top and bottom plates, then nail the studs in between, or build each section on the floor and then raise and. A poor framing job can bring a whole mess of problems, so we asked a professional framing carpenter how to best build basement walls. Measure the width and height of the basement access. The illustration here shows how 2x4s are joined into “ladders” to create the sides of the box. Here are steps to follow: I want to help you to renovate and remodel the home of your dreams and do it yourself.
S2E34 How to Build a Bulkhead in 3 easy Steps Wave Rover 650 YouTube
How To Frame A Bulkhead The illustration here shows how 2x4s are joined into “ladders” to create the sides of the box. There are two ways to frame a wall: You can either nail the top and bottom plates, then nail the studs in between, or build each section on the floor and then raise and. I want to help you to renovate and remodel the home of your dreams and do it yourself. This video i show you 3 examples how to build a bulkhead with metal studs. Here are steps to follow: The illustration here shows how 2x4s are joined into “ladders” to create the sides of the box. Measure the width and height of the basement access. Learn all the trade skills you will need. A poor framing job can bring a whole mess of problems, so we asked a professional framing carpenter how to best build basement walls. Record the measurements to ensure accuracy.
From thepiggfamily.blogspot.com
How to Build a Bulkhead How To Frame A Bulkhead There are two ways to frame a wall: The illustration here shows how 2x4s are joined into “ladders” to create the sides of the box. I want to help you to renovate and remodel the home of your dreams and do it yourself. This video i show you 3 examples how to build a bulkhead with metal studs. Here are. How To Frame A Bulkhead.
From thepiggfamily.blogspot.com
How to Build a Bulkhead How To Frame A Bulkhead A poor framing job can bring a whole mess of problems, so we asked a professional framing carpenter how to best build basement walls. Record the measurements to ensure accuracy. Learn all the trade skills you will need. There are two ways to frame a wall: I want to help you to renovate and remodel the home of your dreams. How To Frame A Bulkhead.
From averymartinezinformations.blogspot.com
what is a bulkhead in construction How To Frame A Bulkhead Learn all the trade skills you will need. There are two ways to frame a wall: Measure the width and height of the basement access. Record the measurements to ensure accuracy. This video i show you 3 examples how to build a bulkhead with metal studs. I want to help you to renovate and remodel the home of your dreams. How To Frame A Bulkhead.
From basement-tips.blogspot.com
18 Lovely Framing A Bulkhead In The Basement basement tips How To Frame A Bulkhead A poor framing job can bring a whole mess of problems, so we asked a professional framing carpenter how to best build basement walls. Measure the width and height of the basement access. You can either nail the top and bottom plates, then nail the studs in between, or build each section on the floor and then raise and. Record. How To Frame A Bulkhead.
From homeminimalisite.com
How To Build A Bulkhead For A Ceiling How To Frame A Bulkhead Measure the width and height of the basement access. I want to help you to renovate and remodel the home of your dreams and do it yourself. Here are steps to follow: Learn all the trade skills you will need. Record the measurements to ensure accuracy. The illustration here shows how 2x4s are joined into “ladders” to create the sides. How To Frame A Bulkhead.
From sunnyshorestudio.com
How to build a bulkhead for less than 300 in 10 easy steps How To Frame A Bulkhead I want to help you to renovate and remodel the home of your dreams and do it yourself. A poor framing job can bring a whole mess of problems, so we asked a professional framing carpenter how to best build basement walls. You can either nail the top and bottom plates, then nail the studs in between, or build each. How To Frame A Bulkhead.
From basement-tips.blogspot.com
18 Lovely Framing A Bulkhead In The Basement basement tips How To Frame A Bulkhead Measure the width and height of the basement access. A poor framing job can bring a whole mess of problems, so we asked a professional framing carpenter how to best build basement walls. Here are steps to follow: You can either nail the top and bottom plates, then nail the studs in between, or build each section on the floor. How To Frame A Bulkhead.
From www.youtube.com
S2E34 How to Build a Bulkhead in 3 easy Steps Wave Rover 650 YouTube How To Frame A Bulkhead You can either nail the top and bottom plates, then nail the studs in between, or build each section on the floor and then raise and. Here are steps to follow: Measure the width and height of the basement access. This video i show you 3 examples how to build a bulkhead with metal studs. Record the measurements to ensure. How To Frame A Bulkhead.
From homefixdiy.blogspot.com
How To Get Maximum Height Bulkhead How To Frame A Bulkhead Learn all the trade skills you will need. Record the measurements to ensure accuracy. Here are steps to follow: The illustration here shows how 2x4s are joined into “ladders” to create the sides of the box. You can either nail the top and bottom plates, then nail the studs in between, or build each section on the floor and then. How To Frame A Bulkhead.
From www.pinterest.co.uk
Metal Stud Bulkhead Framing How To Frame A Bulkhead This video i show you 3 examples how to build a bulkhead with metal studs. You can either nail the top and bottom plates, then nail the studs in between, or build each section on the floor and then raise and. Here are steps to follow: Learn all the trade skills you will need. The illustration here shows how 2x4s. How To Frame A Bulkhead.
From www.ramblingrenovators.ca
The Basement Framing Frenzy Rambling Renovators How To Frame A Bulkhead This video i show you 3 examples how to build a bulkhead with metal studs. Measure the width and height of the basement access. A poor framing job can bring a whole mess of problems, so we asked a professional framing carpenter how to best build basement walls. There are two ways to frame a wall: I want to help. How To Frame A Bulkhead.
From furniturepict.blogspot.com
Best Way To Frame A Basement How To Frame A Bulkhead Record the measurements to ensure accuracy. A poor framing job can bring a whole mess of problems, so we asked a professional framing carpenter how to best build basement walls. Measure the width and height of the basement access. This video i show you 3 examples how to build a bulkhead with metal studs. Here are steps to follow: There. How To Frame A Bulkhead.
From www.pinterest.ca
BULKHEAD DETAIL DRAWING Google Search Ceiling detail, Joinery How To Frame A Bulkhead Record the measurements to ensure accuracy. The illustration here shows how 2x4s are joined into “ladders” to create the sides of the box. I want to help you to renovate and remodel the home of your dreams and do it yourself. You can either nail the top and bottom plates, then nail the studs in between, or build each section. How To Frame A Bulkhead.
From thepiggfamily.blogspot.ca
How to Build a Bulkhead How To Frame A Bulkhead You can either nail the top and bottom plates, then nail the studs in between, or build each section on the floor and then raise and. The illustration here shows how 2x4s are joined into “ladders” to create the sides of the box. Learn all the trade skills you will need. There are two ways to frame a wall: A. How To Frame A Bulkhead.
From selectdrywallsystem.com
Framing Select Drywall System Inc. How To Frame A Bulkhead Learn all the trade skills you will need. I want to help you to renovate and remodel the home of your dreams and do it yourself. There are two ways to frame a wall: Measure the width and height of the basement access. Here are steps to follow: Record the measurements to ensure accuracy. This video i show you 3. How To Frame A Bulkhead.
From www.pinterest.com
Frame a bulkhead to conceal the ductwork in a basement Finishing How To Frame A Bulkhead The illustration here shows how 2x4s are joined into “ladders” to create the sides of the box. You can either nail the top and bottom plates, then nail the studs in between, or build each section on the floor and then raise and. This video i show you 3 examples how to build a bulkhead with metal studs. Here are. How To Frame A Bulkhead.
From www.workshop.bunnings.com.au
How to build a bulk head ceiling for a m... Bunnings community How To Frame A Bulkhead You can either nail the top and bottom plates, then nail the studs in between, or build each section on the floor and then raise and. There are two ways to frame a wall: Measure the width and height of the basement access. The illustration here shows how 2x4s are joined into “ladders” to create the sides of the box.. How To Frame A Bulkhead.
From www.ramblingrenovators.ca
The Basement Framing Frenzy Rambling Renovators How To Frame A Bulkhead A poor framing job can bring a whole mess of problems, so we asked a professional framing carpenter how to best build basement walls. The illustration here shows how 2x4s are joined into “ladders” to create the sides of the box. Here are steps to follow: You can either nail the top and bottom plates, then nail the studs in. How To Frame A Bulkhead.
From homeminimalisite.com
How To Build A Bulkhead For A Ceiling How To Frame A Bulkhead The illustration here shows how 2x4s are joined into “ladders” to create the sides of the box. Learn all the trade skills you will need. Here are steps to follow: There are two ways to frame a wall: You can either nail the top and bottom plates, then nail the studs in between, or build each section on the floor. How To Frame A Bulkhead.
From basement-tips.blogspot.com
18 Lovely Framing A Bulkhead In The Basement basement tips How To Frame A Bulkhead A poor framing job can bring a whole mess of problems, so we asked a professional framing carpenter how to best build basement walls. Learn all the trade skills you will need. This video i show you 3 examples how to build a bulkhead with metal studs. The illustration here shows how 2x4s are joined into “ladders” to create the. How To Frame A Bulkhead.
From www.youtube.com
Building a Bulk Head YouTube How To Frame A Bulkhead Record the measurements to ensure accuracy. The illustration here shows how 2x4s are joined into “ladders” to create the sides of the box. Measure the width and height of the basement access. You can either nail the top and bottom plates, then nail the studs in between, or build each section on the floor and then raise and. Here are. How To Frame A Bulkhead.
From interior.tn
How do you build a bulkhead on a lake? Interior Magazine Leading How To Frame A Bulkhead There are two ways to frame a wall: The illustration here shows how 2x4s are joined into “ladders” to create the sides of the box. I want to help you to renovate and remodel the home of your dreams and do it yourself. This video i show you 3 examples how to build a bulkhead with metal studs. You can. How To Frame A Bulkhead.
From www.shoretechmarine.com
Bulkheads & Retaining Walls Shoretech Marine Design & Construction How To Frame A Bulkhead You can either nail the top and bottom plates, then nail the studs in between, or build each section on the floor and then raise and. Here are steps to follow: Measure the width and height of the basement access. A poor framing job can bring a whole mess of problems, so we asked a professional framing carpenter how to. How To Frame A Bulkhead.
From www.bvmcontracting.com
Avoid Bulkheads — BVM Contracting How To Frame A Bulkhead Learn all the trade skills you will need. Measure the width and height of the basement access. A poor framing job can bring a whole mess of problems, so we asked a professional framing carpenter how to best build basement walls. The illustration here shows how 2x4s are joined into “ladders” to create the sides of the box. Record the. How To Frame A Bulkhead.
From www.youtube.com
How To Frame A Bulkhead YouTube How To Frame A Bulkhead You can either nail the top and bottom plates, then nail the studs in between, or build each section on the floor and then raise and. Here are steps to follow: The illustration here shows how 2x4s are joined into “ladders” to create the sides of the box. Measure the width and height of the basement access. A poor framing. How To Frame A Bulkhead.
From buildersvilla.com
How to build a basement bulkhead Builders Villa How To Frame A Bulkhead A poor framing job can bring a whole mess of problems, so we asked a professional framing carpenter how to best build basement walls. Measure the width and height of the basement access. The illustration here shows how 2x4s are joined into “ladders” to create the sides of the box. There are two ways to frame a wall: I want. How To Frame A Bulkhead.
From www.researchgate.net
Deck beams 6. Bulkhead Installation Bulkheads on ships are needed for How To Frame A Bulkhead I want to help you to renovate and remodel the home of your dreams and do it yourself. A poor framing job can bring a whole mess of problems, so we asked a professional framing carpenter how to best build basement walls. Measure the width and height of the basement access. The illustration here shows how 2x4s are joined into. How To Frame A Bulkhead.
From shellysavonlea.net
How To Build A Drop Ceiling Bulkhead Shelly Lighting How To Frame A Bulkhead Record the measurements to ensure accuracy. I want to help you to renovate and remodel the home of your dreams and do it yourself. This video i show you 3 examples how to build a bulkhead with metal studs. The illustration here shows how 2x4s are joined into “ladders” to create the sides of the box. You can either nail. How To Frame A Bulkhead.
From www.contractortalk.com
Framing Bulkheads? Contractor Talk Professional Construction and How To Frame A Bulkhead Learn all the trade skills you will need. There are two ways to frame a wall: Measure the width and height of the basement access. You can either nail the top and bottom plates, then nail the studs in between, or build each section on the floor and then raise and. The illustration here shows how 2x4s are joined into. How To Frame A Bulkhead.
From www.openbasement.com
How To Frame Bulkhead In Basement Openbasement How To Frame A Bulkhead I want to help you to renovate and remodel the home of your dreams and do it yourself. The illustration here shows how 2x4s are joined into “ladders” to create the sides of the box. A poor framing job can bring a whole mess of problems, so we asked a professional framing carpenter how to best build basement walls. This. How To Frame A Bulkhead.
From www.hyne.com.au
Insights Frame and Truss Components How To Frame A Bulkhead I want to help you to renovate and remodel the home of your dreams and do it yourself. There are two ways to frame a wall: Record the measurements to ensure accuracy. Measure the width and height of the basement access. The illustration here shows how 2x4s are joined into “ladders” to create the sides of the box. Learn all. How To Frame A Bulkhead.
From www.reddit.com
First time framing a bulkhead out of steel r/Carpentry How To Frame A Bulkhead A poor framing job can bring a whole mess of problems, so we asked a professional framing carpenter how to best build basement walls. Here are steps to follow: Record the measurements to ensure accuracy. There are two ways to frame a wall: Measure the width and height of the basement access. The illustration here shows how 2x4s are joined. How To Frame A Bulkhead.
From thepiggfamily.blogspot.com
How to Build a Bulkhead How To Frame A Bulkhead This video i show you 3 examples how to build a bulkhead with metal studs. Learn all the trade skills you will need. A poor framing job can bring a whole mess of problems, so we asked a professional framing carpenter how to best build basement walls. Measure the width and height of the basement access. The illustration here shows. How To Frame A Bulkhead.
From www.embassyceiling.com
How To Make a Bulkhead? Embassy Ceilings How To Frame A Bulkhead You can either nail the top and bottom plates, then nail the studs in between, or build each section on the floor and then raise and. A poor framing job can bring a whole mess of problems, so we asked a professional framing carpenter how to best build basement walls. The illustration here shows how 2x4s are joined into “ladders”. How To Frame A Bulkhead.
From www.embassyceiling.com
How To Make a Bulkhead? Embassy Ceilings How To Frame A Bulkhead Learn all the trade skills you will need. There are two ways to frame a wall: Record the measurements to ensure accuracy. A poor framing job can bring a whole mess of problems, so we asked a professional framing carpenter how to best build basement walls. Measure the width and height of the basement access. Here are steps to follow:. How To Frame A Bulkhead.