How To Apply For Bond Assistance . You can apply by post by submitting a form: To obtain a social housing (or housing hlm), you must make your application entirely online or with a form to deposit on site. Renters can check their eligibility and apply for a homes victoria bond loan at housing victoria’s rentassist bond loan. You can apply for a bond loan online using the rentassist bond loan through mygov: Go to the mygov website and sign in to your mygov. If you're wanting to get into the private rental market, but finding it financially difficult to get started, you may be eligible to apply for a. The form must be accompanied. If you're on a low income and need help paying a bond for a private rental, you may apply for bond assistance. Application for accommodation allowance cif and msa.
from alphasuretybonds.com
To obtain a social housing (or housing hlm), you must make your application entirely online or with a form to deposit on site. If you're wanting to get into the private rental market, but finding it financially difficult to get started, you may be eligible to apply for a. Application for accommodation allowance cif and msa. If you're on a low income and need help paying a bond for a private rental, you may apply for bond assistance. Go to the mygov website and sign in to your mygov. Renters can check their eligibility and apply for a homes victoria bond loan at housing victoria’s rentassist bond loan. You can apply by post by submitting a form: The form must be accompanied. You can apply for a bond loan online using the rentassist bond loan through mygov:
How to Apply for a Surety Bond?
How To Apply For Bond Assistance If you're on a low income and need help paying a bond for a private rental, you may apply for bond assistance. The form must be accompanied. Go to the mygov website and sign in to your mygov. Application for accommodation allowance cif and msa. You can apply for a bond loan online using the rentassist bond loan through mygov: To obtain a social housing (or housing hlm), you must make your application entirely online or with a form to deposit on site. If you're on a low income and need help paying a bond for a private rental, you may apply for bond assistance. Renters can check their eligibility and apply for a homes victoria bond loan at housing victoria’s rentassist bond loan. If you're wanting to get into the private rental market, but finding it financially difficult to get started, you may be eligible to apply for a. You can apply by post by submitting a form:
From www.uslegalforms.com
MY Security Bond Form Fill and Sign Printable Template Online US How To Apply For Bond Assistance Application for accommodation allowance cif and msa. You can apply for a bond loan online using the rentassist bond loan through mygov: The form must be accompanied. To obtain a social housing (or housing hlm), you must make your application entirely online or with a form to deposit on site. If you're on a low income and need help paying. How To Apply For Bond Assistance.
From slideplayer.com
The Contractor Development Program ppt download How To Apply For Bond Assistance If you're wanting to get into the private rental market, but finding it financially difficult to get started, you may be eligible to apply for a. Application for accommodation allowance cif and msa. If you're on a low income and need help paying a bond for a private rental, you may apply for bond assistance. You can apply for a. How To Apply For Bond Assistance.
From alphabailbond.com
Who Should Apply for a Bond? Alpha Bonding How To Apply For Bond Assistance To obtain a social housing (or housing hlm), you must make your application entirely online or with a form to deposit on site. The form must be accompanied. Go to the mygov website and sign in to your mygov. You can apply for a bond loan online using the rentassist bond loan through mygov: You can apply by post by. How To Apply For Bond Assistance.
From jetsurety.com
Florida Public Official Bond Jet Insurance Company How To Apply For Bond Assistance Renters can check their eligibility and apply for a homes victoria bond loan at housing victoria’s rentassist bond loan. If you're on a low income and need help paying a bond for a private rental, you may apply for bond assistance. The form must be accompanied. You can apply by post by submitting a form: If you're wanting to get. How To Apply For Bond Assistance.
From www.scholarhunter.com
How To Apply For BondFree Scholarship In Singapore A StepbyStep How To Apply For Bond Assistance The form must be accompanied. Go to the mygov website and sign in to your mygov. If you're on a low income and need help paying a bond for a private rental, you may apply for bond assistance. You can apply for a bond loan online using the rentassist bond loan through mygov: If you're wanting to get into the. How To Apply For Bond Assistance.
From alphabailbond.com
Quick Steps to Apply for a Bond [infographic] Alpha Bonding How To Apply For Bond Assistance Application for accommodation allowance cif and msa. The form must be accompanied. You can apply for a bond loan online using the rentassist bond loan through mygov: Renters can check their eligibility and apply for a homes victoria bond loan at housing victoria’s rentassist bond loan. If you're on a low income and need help paying a bond for a. How To Apply For Bond Assistance.
From alphabailbond.com
How to Apply for a Bond Alpha Bonding How To Apply For Bond Assistance You can apply by post by submitting a form: If you're on a low income and need help paying a bond for a private rental, you may apply for bond assistance. Renters can check their eligibility and apply for a homes victoria bond loan at housing victoria’s rentassist bond loan. Go to the mygov website and sign in to your. How To Apply For Bond Assistance.
From studylib.net
SAMPLE LETTER TO EMPLOYER CONFIRMING BONDING How To Apply For Bond Assistance Renters can check their eligibility and apply for a homes victoria bond loan at housing victoria’s rentassist bond loan. The form must be accompanied. You can apply by post by submitting a form: If you're wanting to get into the private rental market, but finding it financially difficult to get started, you may be eligible to apply for a. Application. How To Apply For Bond Assistance.
From www.signnow.com
Surety Bond 20102024 Form Fill Out and Sign Printable PDF Template How To Apply For Bond Assistance If you're wanting to get into the private rental market, but finding it financially difficult to get started, you may be eligible to apply for a. You can apply by post by submitting a form: If you're on a low income and need help paying a bond for a private rental, you may apply for bond assistance. Go to the. How To Apply For Bond Assistance.
From imaanidrew.blogspot.com
Premium Bonds Application Form / Premium Bonds Application Form How To Apply For Bond Assistance Go to the mygov website and sign in to your mygov. Renters can check their eligibility and apply for a homes victoria bond loan at housing victoria’s rentassist bond loan. To obtain a social housing (or housing hlm), you must make your application entirely online or with a form to deposit on site. Application for accommodation allowance cif and msa.. How To Apply For Bond Assistance.
From advancedbc.org
Navigating the Bail Bond System A Comprehensive Guide 2023 Advanced BC How To Apply For Bond Assistance You can apply by post by submitting a form: You can apply for a bond loan online using the rentassist bond loan through mygov: Application for accommodation allowance cif and msa. Renters can check their eligibility and apply for a homes victoria bond loan at housing victoria’s rentassist bond loan. If you're on a low income and need help paying. How To Apply For Bond Assistance.
From www.scribd.com
Employee Bond Agreement PDF Business Law Civil Law (Legal System) How To Apply For Bond Assistance You can apply for a bond loan online using the rentassist bond loan through mygov: You can apply by post by submitting a form: Renters can check their eligibility and apply for a homes victoria bond loan at housing victoria’s rentassist bond loan. To obtain a social housing (or housing hlm), you must make your application entirely online or with. How To Apply For Bond Assistance.
From www.formsbank.com
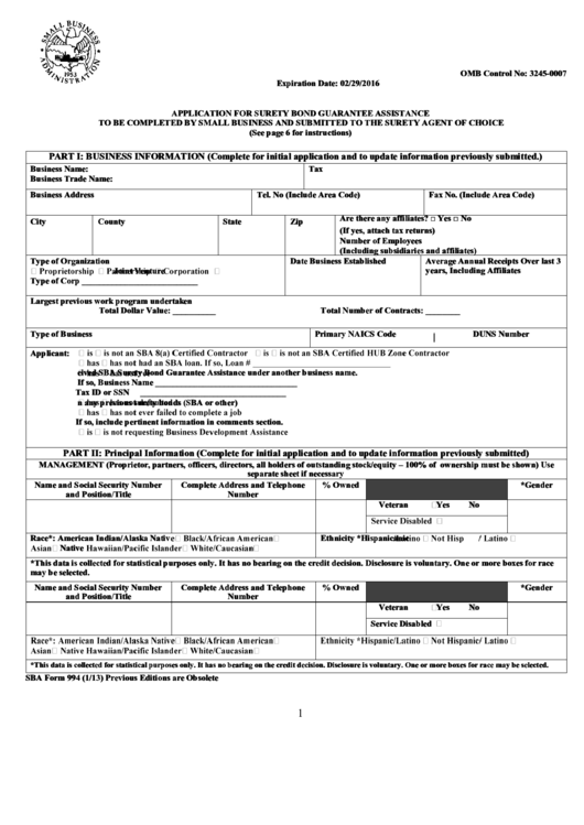
U.s. Small Business Administration Application For Surety Bond How To Apply For Bond Assistance Go to the mygov website and sign in to your mygov. Renters can check their eligibility and apply for a homes victoria bond loan at housing victoria’s rentassist bond loan. The form must be accompanied. If you're on a low income and need help paying a bond for a private rental, you may apply for bond assistance. If you're wanting. How To Apply For Bond Assistance.
From www.sampletemplates.com
FREE 12+ Bond Release Forms in PDF MS Word How To Apply For Bond Assistance Renters can check their eligibility and apply for a homes victoria bond loan at housing victoria’s rentassist bond loan. You can apply for a bond loan online using the rentassist bond loan through mygov: If you're wanting to get into the private rental market, but finding it financially difficult to get started, you may be eligible to apply for a.. How To Apply For Bond Assistance.
From alphasuretybonds.com
How to Apply for a Surety Bond? How To Apply For Bond Assistance If you're wanting to get into the private rental market, but finding it financially difficult to get started, you may be eligible to apply for a. The form must be accompanied. You can apply by post by submitting a form: Go to the mygov website and sign in to your mygov. To obtain a social housing (or housing hlm), you. How To Apply For Bond Assistance.
From www.dreamstime.com
SBA Form 994 Application for Surety Bond Guarantee Assistance Stock How To Apply For Bond Assistance Renters can check their eligibility and apply for a homes victoria bond loan at housing victoria’s rentassist bond loan. The form must be accompanied. Go to the mygov website and sign in to your mygov. To obtain a social housing (or housing hlm), you must make your application entirely online or with a form to deposit on site. If you're. How To Apply For Bond Assistance.
From zipbonds.com
How to Fill Out a Surety Bond Form [Step by Step] ZipBonds How To Apply For Bond Assistance Go to the mygov website and sign in to your mygov. Application for accommodation allowance cif and msa. To obtain a social housing (or housing hlm), you must make your application entirely online or with a form to deposit on site. You can apply by post by submitting a form: If you're on a low income and need help paying. How To Apply For Bond Assistance.
From www.uslegalforms.com
Bail Bond Format 2020 Fill and Sign Printable Template Online US How To Apply For Bond Assistance If you're wanting to get into the private rental market, but finding it financially difficult to get started, you may be eligible to apply for a. If you're on a low income and need help paying a bond for a private rental, you may apply for bond assistance. Renters can check their eligibility and apply for a homes victoria bond. How To Apply For Bond Assistance.
From www.scribd.com
Bond Letter Template Fiduciary Trust Law How To Apply For Bond Assistance You can apply for a bond loan online using the rentassist bond loan through mygov: To obtain a social housing (or housing hlm), you must make your application entirely online or with a form to deposit on site. Go to the mygov website and sign in to your mygov. Application for accommodation allowance cif and msa. If you're wanting to. How To Apply For Bond Assistance.
From slideplayer.com
“The Importance and Howto’s of Bonding” ppt download How To Apply For Bond Assistance You can apply for a bond loan online using the rentassist bond loan through mygov: Renters can check their eligibility and apply for a homes victoria bond loan at housing victoria’s rentassist bond loan. To obtain a social housing (or housing hlm), you must make your application entirely online or with a form to deposit on site. If you're wanting. How To Apply For Bond Assistance.
From www.pdffiller.com
Fillable Online nt gov Bond assistance form NT.GOV.AU Fax Email Print How To Apply For Bond Assistance If you're on a low income and need help paying a bond for a private rental, you may apply for bond assistance. If you're wanting to get into the private rental market, but finding it financially difficult to get started, you may be eligible to apply for a. Renters can check their eligibility and apply for a homes victoria bond. How To Apply For Bond Assistance.
From www.youtube.com
How to apply REC tax saving capital gain bonds online How to apply How To Apply For Bond Assistance You can apply for a bond loan online using the rentassist bond loan through mygov: To obtain a social housing (or housing hlm), you must make your application entirely online or with a form to deposit on site. Renters can check their eligibility and apply for a homes victoria bond loan at housing victoria’s rentassist bond loan. You can apply. How To Apply For Bond Assistance.
From slideplayer.com
The Contractor Development Program ppt download How To Apply For Bond Assistance You can apply by post by submitting a form: You can apply for a bond loan online using the rentassist bond loan through mygov: Renters can check their eligibility and apply for a homes victoria bond loan at housing victoria’s rentassist bond loan. To obtain a social housing (or housing hlm), you must make your application entirely online or with. How To Apply For Bond Assistance.
From liftt.com.au
Qld Bond Assistance LIFTT Supporting The Youth Of Today How To Apply For Bond Assistance Go to the mygov website and sign in to your mygov. Application for accommodation allowance cif and msa. To obtain a social housing (or housing hlm), you must make your application entirely online or with a form to deposit on site. You can apply by post by submitting a form: If you're on a low income and need help paying. How To Apply For Bond Assistance.
From www.performancesuretybonds.com
Surety Bonds How to Get A Performance Bond & Examples How To Apply For Bond Assistance You can apply for a bond loan online using the rentassist bond loan through mygov: The form must be accompanied. Go to the mygov website and sign in to your mygov. To obtain a social housing (or housing hlm), you must make your application entirely online or with a form to deposit on site. Renters can check their eligibility and. How To Apply For Bond Assistance.
From www.templateroller.com
Rhode Island Bond Application Form Fill Out, Sign Online and Download How To Apply For Bond Assistance You can apply by post by submitting a form: If you're on a low income and need help paying a bond for a private rental, you may apply for bond assistance. You can apply for a bond loan online using the rentassist bond loan through mygov: Application for accommodation allowance cif and msa. If you're wanting to get into the. How To Apply For Bond Assistance.
From mozo.com.au
Bond loans A guide for renters How To Apply For Bond Assistance Go to the mygov website and sign in to your mygov. The form must be accompanied. If you're wanting to get into the private rental market, but finding it financially difficult to get started, you may be eligible to apply for a. To obtain a social housing (or housing hlm), you must make your application entirely online or with a. How To Apply For Bond Assistance.
From www.scribd.com
Performance Bond 2 Percent How To Apply For Bond Assistance You can apply by post by submitting a form: Go to the mygov website and sign in to your mygov. Renters can check their eligibility and apply for a homes victoria bond loan at housing victoria’s rentassist bond loan. If you're wanting to get into the private rental market, but finding it financially difficult to get started, you may be. How To Apply For Bond Assistance.
From rentalapplicationsecrets.com.au
Rental Bond Assistance Rental Application Secrets How To Apply For Bond Assistance Go to the mygov website and sign in to your mygov. If you're wanting to get into the private rental market, but finding it financially difficult to get started, you may be eligible to apply for a. You can apply for a bond loan online using the rentassist bond loan through mygov: Renters can check their eligibility and apply for. How To Apply For Bond Assistance.
From templescounsel.com
Trauma Bonding, Relationships Built on Control & Abuse TCMA How To Apply For Bond Assistance If you're on a low income and need help paying a bond for a private rental, you may apply for bond assistance. Application for accommodation allowance cif and msa. You can apply by post by submitting a form: Go to the mygov website and sign in to your mygov. The form must be accompanied. If you're wanting to get into. How To Apply For Bond Assistance.
From jetsurety.com
Arizona Bail Bond Agent Bond Jet Insurance Company How To Apply For Bond Assistance You can apply by post by submitting a form: The form must be accompanied. To obtain a social housing (or housing hlm), you must make your application entirely online or with a form to deposit on site. Renters can check their eligibility and apply for a homes victoria bond loan at housing victoria’s rentassist bond loan. If you're wanting to. How To Apply For Bond Assistance.
From www.pdffiller.com
Indemnity Bond Stamp Paper Fill Online, Printable, Fillable, Blank How To Apply For Bond Assistance You can apply for a bond loan online using the rentassist bond loan through mygov: The form must be accompanied. Renters can check their eligibility and apply for a homes victoria bond loan at housing victoria’s rentassist bond loan. Go to the mygov website and sign in to your mygov. To obtain a social housing (or housing hlm), you must. How To Apply For Bond Assistance.
From www.pdffiller.com
Sample Bondability Letter Doc Template pdfFiller How To Apply For Bond Assistance Go to the mygov website and sign in to your mygov. Application for accommodation allowance cif and msa. If you're wanting to get into the private rental market, but finding it financially difficult to get started, you may be eligible to apply for a. If you're on a low income and need help paying a bond for a private rental,. How To Apply For Bond Assistance.
From www.uslegalforms.com
Order to reduce bond Bond Reduction US Legal Forms How To Apply For Bond Assistance You can apply for a bond loan online using the rentassist bond loan through mygov: To obtain a social housing (or housing hlm), you must make your application entirely online or with a form to deposit on site. Go to the mygov website and sign in to your mygov. You can apply by post by submitting a form: If you're. How To Apply For Bond Assistance.
From www.slideserve.com
PPT How to Apply For a Covered Bond Online PowerPoint Presentation How To Apply For Bond Assistance You can apply by post by submitting a form: Application for accommodation allowance cif and msa. You can apply for a bond loan online using the rentassist bond loan through mygov: The form must be accompanied. To obtain a social housing (or housing hlm), you must make your application entirely online or with a form to deposit on site. Go. How To Apply For Bond Assistance.