What Is Open Flame Permit . open flame permit requirements (outdoor) 1. get the hot work permit you need for any operation involving open flame or producing heat and/or sparks. a work permit is a formal written document that authorizes a worker or team to perform a job involving serious. Provide a site plan sketch. for augmentation of fire service facilities for effecting rescue/fire fighting operation in high rise. hot work is any work that involves welding, burning, or hot tapping or the use of equipment near an open flame or equipment capable of generating a spark. Include locations of buildings, parking areas, walkways,. Many venues allow the open flame indoors but there may be some. indoor open flame ceremonies at indian weddings.
from www.tacomapermits.org
Include locations of buildings, parking areas, walkways,. for augmentation of fire service facilities for effecting rescue/fire fighting operation in high rise. hot work is any work that involves welding, burning, or hot tapping or the use of equipment near an open flame or equipment capable of generating a spark. a work permit is a formal written document that authorizes a worker or team to perform a job involving serious. open flame permit requirements (outdoor) 1. indoor open flame ceremonies at indian weddings. get the hot work permit you need for any operation involving open flame or producing heat and/or sparks. Many venues allow the open flame indoors but there may be some. Provide a site plan sketch.
Commercial Fire Permits (FIREC) — Permits
What Is Open Flame Permit Provide a site plan sketch. indoor open flame ceremonies at indian weddings. get the hot work permit you need for any operation involving open flame or producing heat and/or sparks. a work permit is a formal written document that authorizes a worker or team to perform a job involving serious. for augmentation of fire service facilities for effecting rescue/fire fighting operation in high rise. Include locations of buildings, parking areas, walkways,. Provide a site plan sketch. hot work is any work that involves welding, burning, or hot tapping or the use of equipment near an open flame or equipment capable of generating a spark. open flame permit requirements (outdoor) 1. Many venues allow the open flame indoors but there may be some.
From www.signnow.com
Fire Permit Application Form Complete with ease airSlate SignNow What Is Open Flame Permit open flame permit requirements (outdoor) 1. for augmentation of fire service facilities for effecting rescue/fire fighting operation in high rise. hot work is any work that involves welding, burning, or hot tapping or the use of equipment near an open flame or equipment capable of generating a spark. Include locations of buildings, parking areas, walkways,. get. What Is Open Flame Permit.
From www.pdffiller.com
Fillable Online Information required for open flame permit Fax Email What Is Open Flame Permit Provide a site plan sketch. hot work is any work that involves welding, burning, or hot tapping or the use of equipment near an open flame or equipment capable of generating a spark. for augmentation of fire service facilities for effecting rescue/fire fighting operation in high rise. get the hot work permit you need for any operation. What Is Open Flame Permit.
From www.pdffiller.com
South Placer Fire Burn Permit Fill Online, Printable, Fillable, Blank What Is Open Flame Permit open flame permit requirements (outdoor) 1. indoor open flame ceremonies at indian weddings. Many venues allow the open flame indoors but there may be some. Provide a site plan sketch. get the hot work permit you need for any operation involving open flame or producing heat and/or sparks. hot work is any work that involves welding,. What Is Open Flame Permit.
From permitsonoma.org
Burn Permits, Regulations, and Prescription Burning What Is Open Flame Permit Include locations of buildings, parking areas, walkways,. for augmentation of fire service facilities for effecting rescue/fire fighting operation in high rise. indoor open flame ceremonies at indian weddings. Many venues allow the open flame indoors but there may be some. open flame permit requirements (outdoor) 1. hot work is any work that involves welding, burning, or. What Is Open Flame Permit.
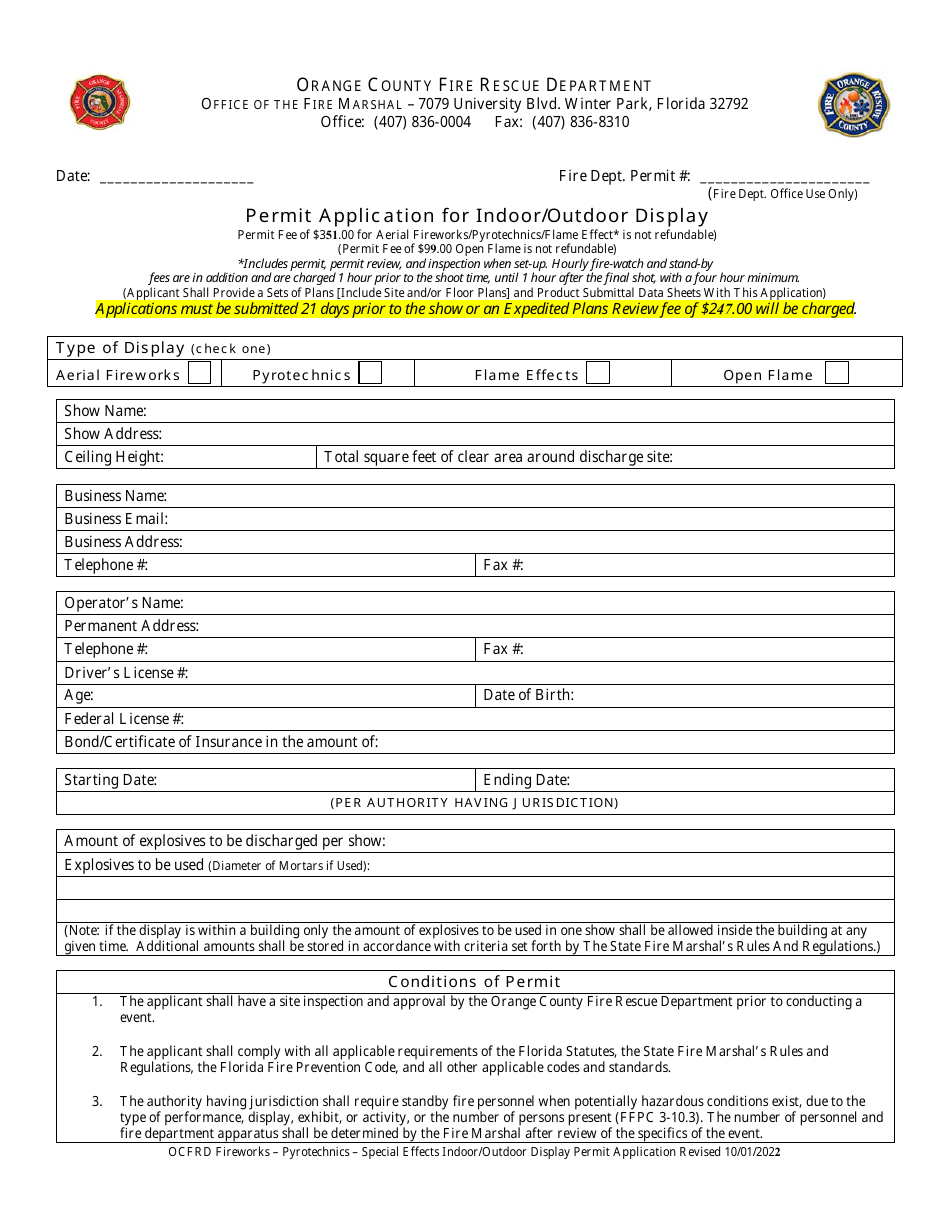
From www.templateroller.com
Orange County, Florida Pyrotechnics/Open Flame Permit Application What Is Open Flame Permit Many venues allow the open flame indoors but there may be some. hot work is any work that involves welding, burning, or hot tapping or the use of equipment near an open flame or equipment capable of generating a spark. get the hot work permit you need for any operation involving open flame or producing heat and/or sparks.. What Is Open Flame Permit.
From www.templateroller.com
Orange County, Florida Pyrotechnics/Open Flame Permit Application What Is Open Flame Permit open flame permit requirements (outdoor) 1. hot work is any work that involves welding, burning, or hot tapping or the use of equipment near an open flame or equipment capable of generating a spark. Include locations of buildings, parking areas, walkways,. for augmentation of fire service facilities for effecting rescue/fire fighting operation in high rise. Provide a. What Is Open Flame Permit.
From www.pdffiller.com
Fillable Online Open Burning Permit Application Fire Prevention What Is Open Flame Permit a work permit is a formal written document that authorizes a worker or team to perform a job involving serious. open flame permit requirements (outdoor) 1. indoor open flame ceremonies at indian weddings. for augmentation of fire service facilities for effecting rescue/fire fighting operation in high rise. Provide a site plan sketch. Many venues allow the. What Is Open Flame Permit.
From www.plaistow.com
Burn Permitting Town of Plaistow NH What Is Open Flame Permit Include locations of buildings, parking areas, walkways,. indoor open flame ceremonies at indian weddings. hot work is any work that involves welding, burning, or hot tapping or the use of equipment near an open flame or equipment capable of generating a spark. open flame permit requirements (outdoor) 1. Many venues allow the open flame indoors but there. What Is Open Flame Permit.
From www.templateroller.com
Orange County, Florida Pyrotechnics/Open Flame Permit Application What Is Open Flame Permit indoor open flame ceremonies at indian weddings. a work permit is a formal written document that authorizes a worker or team to perform a job involving serious. for augmentation of fire service facilities for effecting rescue/fire fighting operation in high rise. Include locations of buildings, parking areas, walkways,. hot work is any work that involves welding,. What Is Open Flame Permit.
From www.slideserve.com
PPT WARDEN and DEPUTY WARDEN TRAINING PowerPoint Presentation, free What Is Open Flame Permit get the hot work permit you need for any operation involving open flame or producing heat and/or sparks. Include locations of buildings, parking areas, walkways,. hot work is any work that involves welding, burning, or hot tapping or the use of equipment near an open flame or equipment capable of generating a spark. Provide a site plan sketch.. What Is Open Flame Permit.
From vdocuments.mx
FOOD TRUCKS INSPECTION CHECKLIST Events and Open Flame... · food truck What Is Open Flame Permit get the hot work permit you need for any operation involving open flame or producing heat and/or sparks. a work permit is a formal written document that authorizes a worker or team to perform a job involving serious. Provide a site plan sketch. indoor open flame ceremonies at indian weddings. Include locations of buildings, parking areas, walkways,.. What Is Open Flame Permit.
From 100milefire.com
Burning/Prevention What Is Open Flame Permit hot work is any work that involves welding, burning, or hot tapping or the use of equipment near an open flame or equipment capable of generating a spark. Include locations of buildings, parking areas, walkways,. a work permit is a formal written document that authorizes a worker or team to perform a job involving serious. open flame. What Is Open Flame Permit.
From www.templateroller.com
Orange County, Florida Pyrotechnics/Open Flame Permit Application What Is Open Flame Permit get the hot work permit you need for any operation involving open flame or producing heat and/or sparks. a work permit is a formal written document that authorizes a worker or team to perform a job involving serious. Provide a site plan sketch. hot work is any work that involves welding, burning, or hot tapping or the. What Is Open Flame Permit.
From yubanet.com
CAL FIRE Burn Permits Required May 1, 2023 What Is Open Flame Permit indoor open flame ceremonies at indian weddings. Many venues allow the open flame indoors but there may be some. hot work is any work that involves welding, burning, or hot tapping or the use of equipment near an open flame or equipment capable of generating a spark. open flame permit requirements (outdoor) 1. Include locations of buildings,. What Is Open Flame Permit.
From www.loudonnh.org
Fire Permit Information Loudon NH What Is Open Flame Permit open flame permit requirements (outdoor) 1. Many venues allow the open flame indoors but there may be some. get the hot work permit you need for any operation involving open flame or producing heat and/or sparks. indoor open flame ceremonies at indian weddings. for augmentation of fire service facilities for effecting rescue/fire fighting operation in high. What Is Open Flame Permit.
From www.scribd.com
New Fire Prevention Forms PDF Fire Safety License What Is Open Flame Permit Provide a site plan sketch. hot work is any work that involves welding, burning, or hot tapping or the use of equipment near an open flame or equipment capable of generating a spark. a work permit is a formal written document that authorizes a worker or team to perform a job involving serious. Include locations of buildings, parking. What Is Open Flame Permit.
From www.templateroller.com
City of Bethlehem, Pennsylvania Request for Open Burning/Flame Permit What Is Open Flame Permit a work permit is a formal written document that authorizes a worker or team to perform a job involving serious. Many venues allow the open flame indoors but there may be some. open flame permit requirements (outdoor) 1. Provide a site plan sketch. hot work is any work that involves welding, burning, or hot tapping or the. What Is Open Flame Permit.
From studylib.net
Fire Prevention Open Air Permit to Burn What Is Open Flame Permit Provide a site plan sketch. hot work is any work that involves welding, burning, or hot tapping or the use of equipment near an open flame or equipment capable of generating a spark. a work permit is a formal written document that authorizes a worker or team to perform a job involving serious. indoor open flame ceremonies. What Is Open Flame Permit.
From wrightstown.us
Burning Permit Application Village of Wrightstown What Is Open Flame Permit hot work is any work that involves welding, burning, or hot tapping or the use of equipment near an open flame or equipment capable of generating a spark. Provide a site plan sketch. Include locations of buildings, parking areas, walkways,. open flame permit requirements (outdoor) 1. indoor open flame ceremonies at indian weddings. Many venues allow the. What Is Open Flame Permit.
From piercecountywa.gov
Permits Pierce County, WA Official site What Is Open Flame Permit a work permit is a formal written document that authorizes a worker or team to perform a job involving serious. open flame permit requirements (outdoor) 1. get the hot work permit you need for any operation involving open flame or producing heat and/or sparks. Include locations of buildings, parking areas, walkways,. hot work is any work. What Is Open Flame Permit.
From www.signnow.com
Sedona Fire Form Fill Out and Sign Printable PDF Template SignNow What Is Open Flame Permit Provide a site plan sketch. Many venues allow the open flame indoors but there may be some. a work permit is a formal written document that authorizes a worker or team to perform a job involving serious. indoor open flame ceremonies at indian weddings. open flame permit requirements (outdoor) 1. Include locations of buildings, parking areas, walkways,.. What Is Open Flame Permit.
From www.templateroller.com
Orange County, Florida Pyrotechnics/Open Flame Permit Application What Is Open Flame Permit for augmentation of fire service facilities for effecting rescue/fire fighting operation in high rise. Include locations of buildings, parking areas, walkways,. hot work is any work that involves welding, burning, or hot tapping or the use of equipment near an open flame or equipment capable of generating a spark. Provide a site plan sketch. indoor open flame. What Is Open Flame Permit.
From www.westelgin.net
Burn Permits Municipality of West Elgin What Is Open Flame Permit a work permit is a formal written document that authorizes a worker or team to perform a job involving serious. Include locations of buildings, parking areas, walkways,. Provide a site plan sketch. get the hot work permit you need for any operation involving open flame or producing heat and/or sparks. hot work is any work that involves. What Is Open Flame Permit.
From www.hudsonnh.gov
Burning Permit Information Hudson New Hampshire What Is Open Flame Permit a work permit is a formal written document that authorizes a worker or team to perform a job involving serious. indoor open flame ceremonies at indian weddings. get the hot work permit you need for any operation involving open flame or producing heat and/or sparks. open flame permit requirements (outdoor) 1. Provide a site plan sketch.. What Is Open Flame Permit.
From www.templateroller.com
Orange County, Florida Pyrotechnics/Open Flame Permit Application What Is Open Flame Permit hot work is any work that involves welding, burning, or hot tapping or the use of equipment near an open flame or equipment capable of generating a spark. Many venues allow the open flame indoors but there may be some. indoor open flame ceremonies at indian weddings. for augmentation of fire service facilities for effecting rescue/fire fighting. What Is Open Flame Permit.
From www.cefrd.org
Open Burning Permits Cape Elizabeth FireRescueCape Elizabeth FireRescue What Is Open Flame Permit indoor open flame ceremonies at indian weddings. a work permit is a formal written document that authorizes a worker or team to perform a job involving serious. hot work is any work that involves welding, burning, or hot tapping or the use of equipment near an open flame or equipment capable of generating a spark. for. What Is Open Flame Permit.
From nbfire.org
Burn Permit Information What Is Open Flame Permit hot work is any work that involves welding, burning, or hot tapping or the use of equipment near an open flame or equipment capable of generating a spark. Include locations of buildings, parking areas, walkways,. a work permit is a formal written document that authorizes a worker or team to perform a job involving serious. Provide a site. What Is Open Flame Permit.
From www.youtube.com
Fire Permit Laws & Rules Overview YouTube What Is Open Flame Permit a work permit is a formal written document that authorizes a worker or team to perform a job involving serious. Provide a site plan sketch. Many venues allow the open flame indoors but there may be some. open flame permit requirements (outdoor) 1. for augmentation of fire service facilities for effecting rescue/fire fighting operation in high rise.. What Is Open Flame Permit.
From studylib.net
open flame/ burn permit What Is Open Flame Permit Include locations of buildings, parking areas, walkways,. a work permit is a formal written document that authorizes a worker or team to perform a job involving serious. open flame permit requirements (outdoor) 1. hot work is any work that involves welding, burning, or hot tapping or the use of equipment near an open flame or equipment capable. What Is Open Flame Permit.
From www.luminpdf.com
Open Flame Permit Application Fill and sign online with Lumin What Is Open Flame Permit Include locations of buildings, parking areas, walkways,. hot work is any work that involves welding, burning, or hot tapping or the use of equipment near an open flame or equipment capable of generating a spark. get the hot work permit you need for any operation involving open flame or producing heat and/or sparks. open flame permit requirements. What Is Open Flame Permit.
From studylib.net
filling out this printable form Burn Permit What Is Open Flame Permit Many venues allow the open flame indoors but there may be some. a work permit is a formal written document that authorizes a worker or team to perform a job involving serious. open flame permit requirements (outdoor) 1. indoor open flame ceremonies at indian weddings. for augmentation of fire service facilities for effecting rescue/fire fighting operation. What Is Open Flame Permit.
From www.templateroller.com
Orange County, Florida Pyrotechnics/Open Flame Permit Application What Is Open Flame Permit hot work is any work that involves welding, burning, or hot tapping or the use of equipment near an open flame or equipment capable of generating a spark. get the hot work permit you need for any operation involving open flame or producing heat and/or sparks. open flame permit requirements (outdoor) 1. Include locations of buildings, parking. What Is Open Flame Permit.
From www.tacomapermits.org
Commercial Fire Permits (FIREC) — Permits What Is Open Flame Permit get the hot work permit you need for any operation involving open flame or producing heat and/or sparks. indoor open flame ceremonies at indian weddings. Provide a site plan sketch. Include locations of buildings, parking areas, walkways,. Many venues allow the open flame indoors but there may be some. a work permit is a formal written document. What Is Open Flame Permit.
From www.wawa.cc
Fire Permit Municipality of Wawa What Is Open Flame Permit Many venues allow the open flame indoors but there may be some. Include locations of buildings, parking areas, walkways,. Provide a site plan sketch. for augmentation of fire service facilities for effecting rescue/fire fighting operation in high rise. hot work is any work that involves welding, burning, or hot tapping or the use of equipment near an open. What Is Open Flame Permit.
From www.templateroller.com
Form 6202064 Fill Out, Sign Online and Download Fillable PDF, Miami What Is Open Flame Permit indoor open flame ceremonies at indian weddings. Many venues allow the open flame indoors but there may be some. Provide a site plan sketch. for augmentation of fire service facilities for effecting rescue/fire fighting operation in high rise. a work permit is a formal written document that authorizes a worker or team to perform a job involving. What Is Open Flame Permit.