Business Oregon Enterprise Zone . Hier sollte eine beschreibung angezeigt werden, diese seite lässt dies jedoch nicht zu. There are currently 73 enterprise zones creating better opportunities for business investment across oregon: 56 rural and 17 urban. 6 that would keep key enterprise zone programs alive until at least. What is an enterprise zone? To learn more about oregon's enterprise zones, visit business oregon's site here. Click oregon enterprise zone map to view the map. Enterprise zones exempt businesses from local property taxes on new plants and equipment for three to five years in a standard zone, and up to 15 years in a rural zone. Cities, ports, counties and indian tribes across oregon have joined together, forming enterprise zones to foster employment opportunities,. The senate committee on finance and revenue heard a pair of bills feb. Business oregon has an online, interactive map to explore zone locations and details. State statutes specify the economic hardship criteria that. Oregon's enterprise zones offer a unique resource to oregon communities, and an excellent opportunity for businesses growing or locating.
from www.formsbank.com
There are currently 73 enterprise zones creating better opportunities for business investment across oregon: Business oregon has an online, interactive map to explore zone locations and details. 6 that would keep key enterprise zone programs alive until at least. Hier sollte eine beschreibung angezeigt werden, diese seite lässt dies jedoch nicht zu. The senate committee on finance and revenue heard a pair of bills feb. To learn more about oregon's enterprise zones, visit business oregon's site here. Enterprise zones exempt businesses from local property taxes on new plants and equipment for three to five years in a standard zone, and up to 15 years in a rural zone. Oregon's enterprise zones offer a unique resource to oregon communities, and an excellent opportunity for businesses growing or locating. What is an enterprise zone? 56 rural and 17 urban.
Authorization Approval Form Oregon Enterprise Zone printable pdf download
Business Oregon Enterprise Zone 56 rural and 17 urban. What is an enterprise zone? To learn more about oregon's enterprise zones, visit business oregon's site here. Business oregon has an online, interactive map to explore zone locations and details. 56 rural and 17 urban. 6 that would keep key enterprise zone programs alive until at least. There are currently 73 enterprise zones creating better opportunities for business investment across oregon: Oregon's enterprise zones offer a unique resource to oregon communities, and an excellent opportunity for businesses growing or locating. The senate committee on finance and revenue heard a pair of bills feb. State statutes specify the economic hardship criteria that. Cities, ports, counties and indian tribes across oregon have joined together, forming enterprise zones to foster employment opportunities,. Enterprise zones exempt businesses from local property taxes on new plants and equipment for three to five years in a standard zone, and up to 15 years in a rural zone. Hier sollte eine beschreibung angezeigt werden, diese seite lässt dies jedoch nicht zu. Click oregon enterprise zone map to view the map.
From chacc.co.uk
How Enterprise Zones are Adding Value to Startups Business Oregon Enterprise Zone Cities, ports, counties and indian tribes across oregon have joined together, forming enterprise zones to foster employment opportunities,. There are currently 73 enterprise zones creating better opportunities for business investment across oregon: State statutes specify the economic hardship criteria that. 6 that would keep key enterprise zone programs alive until at least. The senate committee on finance and revenue heard. Business Oregon Enterprise Zone.
From www.researchgate.net
Map of Enterprise Zones (Wave 2) and Local Economic Partnerships Business Oregon Enterprise Zone The senate committee on finance and revenue heard a pair of bills feb. State statutes specify the economic hardship criteria that. 56 rural and 17 urban. Enterprise zones exempt businesses from local property taxes on new plants and equipment for three to five years in a standard zone, and up to 15 years in a rural zone. Business oregon has. Business Oregon Enterprise Zone.
From yescorvallis.org
Enterprise Zones Corvallis Economic Development Office Business Oregon Enterprise Zone What is an enterprise zone? Business oregon has an online, interactive map to explore zone locations and details. Hier sollte eine beschreibung angezeigt werden, diese seite lässt dies jedoch nicht zu. 6 that would keep key enterprise zone programs alive until at least. The senate committee on finance and revenue heard a pair of bills feb. Enterprise zones exempt businesses. Business Oregon Enterprise Zone.
From greaterfreeport.com
Enterprise Zone Incentivizes Growth Greater Freeport Partnership Business Oregon Enterprise Zone Cities, ports, counties and indian tribes across oregon have joined together, forming enterprise zones to foster employment opportunities,. 56 rural and 17 urban. Oregon's enterprise zones offer a unique resource to oregon communities, and an excellent opportunity for businesses growing or locating. Hier sollte eine beschreibung angezeigt werden, diese seite lässt dies jedoch nicht zu. There are currently 73 enterprise. Business Oregon Enterprise Zone.
From www.formsbank.com
Authorization Approval Form Oregon Enterprise Zone printable pdf download Business Oregon Enterprise Zone 6 that would keep key enterprise zone programs alive until at least. What is an enterprise zone? Click oregon enterprise zone map to view the map. Enterprise zones exempt businesses from local property taxes on new plants and equipment for three to five years in a standard zone, and up to 15 years in a rural zone. There are currently. Business Oregon Enterprise Zone.
From www.templateroller.com
Form ORAPCERT (150310073) Fill Out, Sign Online and Download Business Oregon Enterprise Zone Enterprise zones exempt businesses from local property taxes on new plants and equipment for three to five years in a standard zone, and up to 15 years in a rural zone. There are currently 73 enterprise zones creating better opportunities for business investment across oregon: To learn more about oregon's enterprise zones, visit business oregon's site here. 6 that would. Business Oregon Enterprise Zone.
From www.alamy.com
Map of enterprise oregon hires stock photography and images Alamy Business Oregon Enterprise Zone Click oregon enterprise zone map to view the map. 6 that would keep key enterprise zone programs alive until at least. State statutes specify the economic hardship criteria that. There are currently 73 enterprise zones creating better opportunities for business investment across oregon: Enterprise zones exempt businesses from local property taxes on new plants and equipment for three to five. Business Oregon Enterprise Zone.
From www.gov.uk
Twelve new Enterprise Zones go live GOV.UK Business Oregon Enterprise Zone To learn more about oregon's enterprise zones, visit business oregon's site here. State statutes specify the economic hardship criteria that. 6 that would keep key enterprise zone programs alive until at least. Hier sollte eine beschreibung angezeigt werden, diese seite lässt dies jedoch nicht zu. Enterprise zones exempt businesses from local property taxes on new plants and equipment for three. Business Oregon Enterprise Zone.
From blackpoolez.com
Plans approved for five new business units at Enterprise Zone Business Oregon Enterprise Zone State statutes specify the economic hardship criteria that. To learn more about oregon's enterprise zones, visit business oregon's site here. Oregon's enterprise zones offer a unique resource to oregon communities, and an excellent opportunity for businesses growing or locating. There are currently 73 enterprise zones creating better opportunities for business investment across oregon: 56 rural and 17 urban. What is. Business Oregon Enterprise Zone.
From heartofswlep.co.uk
New Enterprise Zone Announced for the Heart of the South West Heart Business Oregon Enterprise Zone 6 that would keep key enterprise zone programs alive until at least. State statutes specify the economic hardship criteria that. Click oregon enterprise zone map to view the map. Enterprise zones exempt businesses from local property taxes on new plants and equipment for three to five years in a standard zone, and up to 15 years in a rural zone.. Business Oregon Enterprise Zone.
From fyojtzdcf.blob.core.windows.net
Oregon Enterprise Zone Map at Inez Owens blog Business Oregon Enterprise Zone Business oregon has an online, interactive map to explore zone locations and details. State statutes specify the economic hardship criteria that. 6 that would keep key enterprise zone programs alive until at least. What is an enterprise zone? Oregon's enterprise zones offer a unique resource to oregon communities, and an excellent opportunity for businesses growing or locating. Enterprise zones exempt. Business Oregon Enterprise Zone.
From fyojtzdcf.blob.core.windows.net
Oregon Enterprise Zone Map at Inez Owens blog Business Oregon Enterprise Zone Cities, ports, counties and indian tribes across oregon have joined together, forming enterprise zones to foster employment opportunities,. Enterprise zones exempt businesses from local property taxes on new plants and equipment for three to five years in a standard zone, and up to 15 years in a rural zone. There are currently 73 enterprise zones creating better opportunities for business. Business Oregon Enterprise Zone.
From fyojtzdcf.blob.core.windows.net
Oregon Enterprise Zone Map at Inez Owens blog Business Oregon Enterprise Zone To learn more about oregon's enterprise zones, visit business oregon's site here. Cities, ports, counties and indian tribes across oregon have joined together, forming enterprise zones to foster employment opportunities,. 56 rural and 17 urban. Enterprise zones exempt businesses from local property taxes on new plants and equipment for three to five years in a standard zone, and up to. Business Oregon Enterprise Zone.
From townofmonument.org
Enterprise Zone Monument, CO Business Oregon Enterprise Zone There are currently 73 enterprise zones creating better opportunities for business investment across oregon: 56 rural and 17 urban. What is an enterprise zone? The senate committee on finance and revenue heard a pair of bills feb. Cities, ports, counties and indian tribes across oregon have joined together, forming enterprise zones to foster employment opportunities,. State statutes specify the economic. Business Oregon Enterprise Zone.
From enterprisezones.communities.gov.uk
Enterprise Zones to benefit from £40 million funding injection Business Oregon Enterprise Zone There are currently 73 enterprise zones creating better opportunities for business investment across oregon: What is an enterprise zone? Hier sollte eine beschreibung angezeigt werden, diese seite lässt dies jedoch nicht zu. Cities, ports, counties and indian tribes across oregon have joined together, forming enterprise zones to foster employment opportunities,. Enterprise zones exempt businesses from local property taxes on new. Business Oregon Enterprise Zone.
From www.clatsopbusiness.com
Enterprise Zone Clatsop Business Business Oregon Enterprise Zone Hier sollte eine beschreibung angezeigt werden, diese seite lässt dies jedoch nicht zu. To learn more about oregon's enterprise zones, visit business oregon's site here. Click oregon enterprise zone map to view the map. The senate committee on finance and revenue heard a pair of bills feb. Enterprise zones exempt businesses from local property taxes on new plants and equipment. Business Oregon Enterprise Zone.
From www.pdffiller.com
Fillable Online co benton or Oregon Enterprise Zone Exemption Claim Business Oregon Enterprise Zone 6 that would keep key enterprise zone programs alive until at least. Enterprise zones exempt businesses from local property taxes on new plants and equipment for three to five years in a standard zone, and up to 15 years in a rural zone. 56 rural and 17 urban. Cities, ports, counties and indian tribes across oregon have joined together, forming. Business Oregon Enterprise Zone.
From www.templateroller.com
Download Instructions for Form OREZAUTH, 150303029 Oregon Business Oregon Enterprise Zone State statutes specify the economic hardship criteria that. Cities, ports, counties and indian tribes across oregon have joined together, forming enterprise zones to foster employment opportunities,. Hier sollte eine beschreibung angezeigt werden, diese seite lässt dies jedoch nicht zu. Enterprise zones exempt businesses from local property taxes on new plants and equipment for three to five years in a standard. Business Oregon Enterprise Zone.
From www.formsbank.com
Form 150303051 Oregon Enterprise Zone Annual Statement Of Business Oregon Enterprise Zone State statutes specify the economic hardship criteria that. 6 that would keep key enterprise zone programs alive until at least. There are currently 73 enterprise zones creating better opportunities for business investment across oregon: What is an enterprise zone? Oregon's enterprise zones offer a unique resource to oregon communities, and an excellent opportunity for businesses growing or locating. To learn. Business Oregon Enterprise Zone.
From www.visitcleveleys.co.uk
Hillhouse Enterprise Zone • past and present with Visit Cleveleys Business Oregon Enterprise Zone There are currently 73 enterprise zones creating better opportunities for business investment across oregon: Click oregon enterprise zone map to view the map. 56 rural and 17 urban. Oregon's enterprise zones offer a unique resource to oregon communities, and an excellent opportunity for businesses growing or locating. The senate committee on finance and revenue heard a pair of bills feb.. Business Oregon Enterprise Zone.
From www.templateroller.com
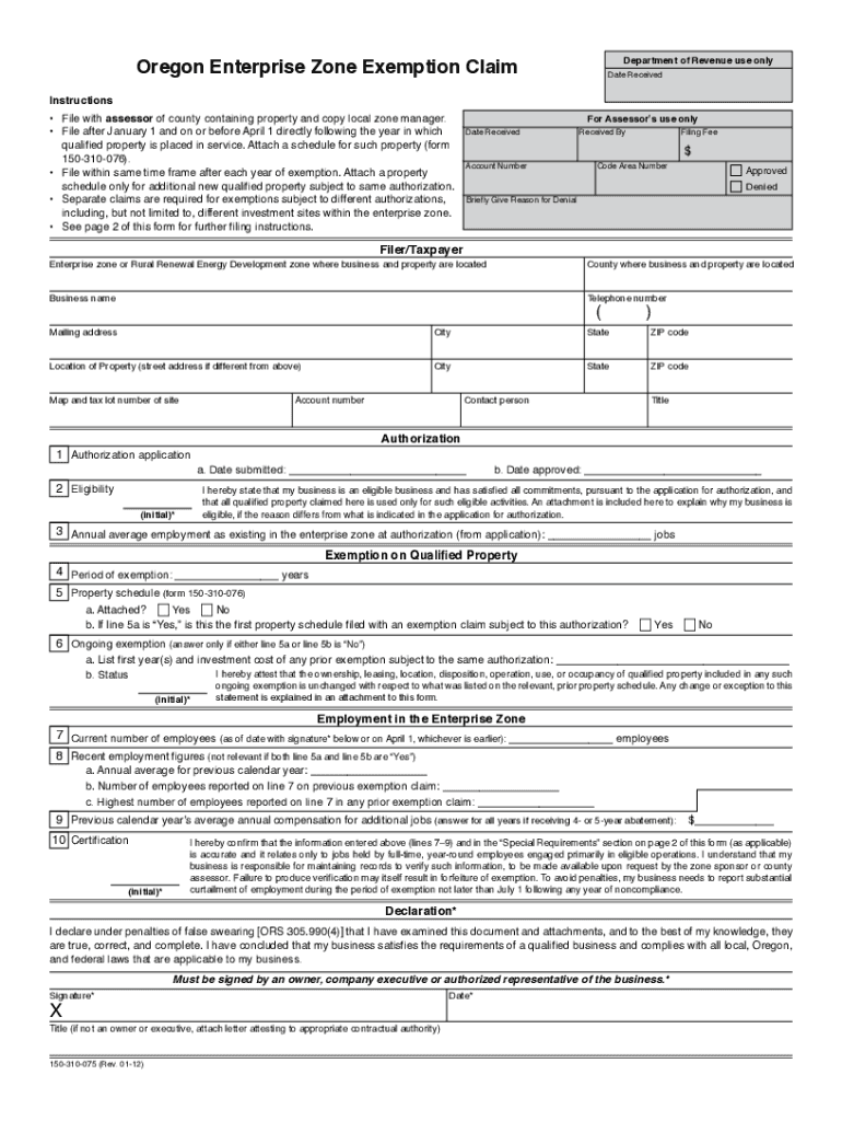
Form OREZEXCLM (150310075) Download Fillable PDF or Fill Online Business Oregon Enterprise Zone 56 rural and 17 urban. Oregon's enterprise zones offer a unique resource to oregon communities, and an excellent opportunity for businesses growing or locating. Enterprise zones exempt businesses from local property taxes on new plants and equipment for three to five years in a standard zone, and up to 15 years in a rural zone. Click oregon enterprise zone map. Business Oregon Enterprise Zone.
From www.woodburn-or.gov
Enterprise Zone Program Woodburn, Oregon Business Oregon Enterprise Zone Hier sollte eine beschreibung angezeigt werden, diese seite lässt dies jedoch nicht zu. State statutes specify the economic hardship criteria that. 56 rural and 17 urban. 6 that would keep key enterprise zone programs alive until at least. There are currently 73 enterprise zones creating better opportunities for business investment across oregon: Click oregon enterprise zone map to view the. Business Oregon Enterprise Zone.
From www.slideserve.com
PPT Enterprise Zones & Federal Recovery Zones PowerPoint Presentation Business Oregon Enterprise Zone Hier sollte eine beschreibung angezeigt werden, diese seite lässt dies jedoch nicht zu. Cities, ports, counties and indian tribes across oregon have joined together, forming enterprise zones to foster employment opportunities,. To learn more about oregon's enterprise zones, visit business oregon's site here. 6 that would keep key enterprise zone programs alive until at least. Enterprise zones exempt businesses from. Business Oregon Enterprise Zone.
From fyojtzdcf.blob.core.windows.net
Oregon Enterprise Zone Map at Inez Owens blog Business Oregon Enterprise Zone What is an enterprise zone? There are currently 73 enterprise zones creating better opportunities for business investment across oregon: Hier sollte eine beschreibung angezeigt werden, diese seite lässt dies jedoch nicht zu. The senate committee on finance and revenue heard a pair of bills feb. State statutes specify the economic hardship criteria that. To learn more about oregon's enterprise zones,. Business Oregon Enterprise Zone.
From www.templateroller.com
Form OREZAUTH (150303029) Fill Out, Sign Online and Download Business Oregon Enterprise Zone Hier sollte eine beschreibung angezeigt werden, diese seite lässt dies jedoch nicht zu. Oregon's enterprise zones offer a unique resource to oregon communities, and an excellent opportunity for businesses growing or locating. 6 that would keep key enterprise zone programs alive until at least. The senate committee on finance and revenue heard a pair of bills feb. Enterprise zones exempt. Business Oregon Enterprise Zone.
From newportnewsva.com
Enterprise Zone “How to Qualify” begin December 17th Business Oregon Enterprise Zone To learn more about oregon's enterprise zones, visit business oregon's site here. The senate committee on finance and revenue heard a pair of bills feb. 6 that would keep key enterprise zone programs alive until at least. Oregon's enterprise zones offer a unique resource to oregon communities, and an excellent opportunity for businesses growing or locating. Enterprise zones exempt businesses. Business Oregon Enterprise Zone.
From www.cityofmolalla.com
Enterprise Zone City of Molalla Oregon Business Oregon Enterprise Zone To learn more about oregon's enterprise zones, visit business oregon's site here. Cities, ports, counties and indian tribes across oregon have joined together, forming enterprise zones to foster employment opportunities,. Enterprise zones exempt businesses from local property taxes on new plants and equipment for three to five years in a standard zone, and up to 15 years in a rural. Business Oregon Enterprise Zone.
From www.citybiz.co
State of Oregon Achieves Best in Enterprise Resilience Business Oregon Enterprise Zone There are currently 73 enterprise zones creating better opportunities for business investment across oregon: Enterprise zones exempt businesses from local property taxes on new plants and equipment for three to five years in a standard zone, and up to 15 years in a rural zone. Click oregon enterprise zone map to view the map. Oregon's enterprise zones offer a unique. Business Oregon Enterprise Zone.
From www.grantspassoregon.gov
Grants Pass Enterprise Zone Grants Pass, OR Official site Business Oregon Enterprise Zone There are currently 73 enterprise zones creating better opportunities for business investment across oregon: Click oregon enterprise zone map to view the map. Enterprise zones exempt businesses from local property taxes on new plants and equipment for three to five years in a standard zone, and up to 15 years in a rural zone. 56 rural and 17 urban. 6. Business Oregon Enterprise Zone.
From www.templateroller.com
Download Instructions for Form 150102043 Schedule ORLTEZ LongTerm Business Oregon Enterprise Zone Business oregon has an online, interactive map to explore zone locations and details. 56 rural and 17 urban. What is an enterprise zone? There are currently 73 enterprise zones creating better opportunities for business investment across oregon: Click oregon enterprise zone map to view the map. State statutes specify the economic hardship criteria that. Oregon's enterprise zones offer a unique. Business Oregon Enterprise Zone.
From www.templateroller.com
Download Instructions for Form OREZAUTH, 150303029 Oregon Business Oregon Enterprise Zone Business oregon has an online, interactive map to explore zone locations and details. State statutes specify the economic hardship criteria that. Oregon's enterprise zones offer a unique resource to oregon communities, and an excellent opportunity for businesses growing or locating. Hier sollte eine beschreibung angezeigt werden, diese seite lässt dies jedoch nicht zu. There are currently 73 enterprise zones creating. Business Oregon Enterprise Zone.
From www.templateroller.com
Download Instructions for Form OREZEXCLM, 150310075 Oregon Business Oregon Enterprise Zone 6 that would keep key enterprise zone programs alive until at least. Oregon's enterprise zones offer a unique resource to oregon communities, and an excellent opportunity for businesses growing or locating. Enterprise zones exempt businesses from local property taxes on new plants and equipment for three to five years in a standard zone, and up to 15 years in a. Business Oregon Enterprise Zone.
From www.milwaukieoregon.gov
Enterprise Zones City of Milwaukie Oregon Official site Business Oregon Enterprise Zone Business oregon has an online, interactive map to explore zone locations and details. Enterprise zones exempt businesses from local property taxes on new plants and equipment for three to five years in a standard zone, and up to 15 years in a rural zone. What is an enterprise zone? 56 rural and 17 urban. Hier sollte eine beschreibung angezeigt werden,. Business Oregon Enterprise Zone.
From oregon4biz.tfaforms.net
Business Oregon Business Oregon Enterprise Zone State statutes specify the economic hardship criteria that. Enterprise zones exempt businesses from local property taxes on new plants and equipment for three to five years in a standard zone, and up to 15 years in a rural zone. Cities, ports, counties and indian tribes across oregon have joined together, forming enterprise zones to foster employment opportunities,. Business oregon has. Business Oregon Enterprise Zone.
From www.ci.florence.or.us
Florence Enterprise Zone City of Florence Oregon Business Oregon Enterprise Zone Business oregon has an online, interactive map to explore zone locations and details. There are currently 73 enterprise zones creating better opportunities for business investment across oregon: 56 rural and 17 urban. Enterprise zones exempt businesses from local property taxes on new plants and equipment for three to five years in a standard zone, and up to 15 years in. Business Oregon Enterprise Zone.