New Mexico Building Permit Requirements . Title 14 housing and construction,. Provide examples of plans and details that will aid in project completion and code. 14.7.2 nmac commercial building code (2021 ibc) 14.7.3 nmac residential building code (2021 irc) The below information links directly to the official site of the new mexico administrative code. The purpose of this rule is to set forth standards and requirements for permitting construction in new mexico as the statewide. Provide the requirements for obtaining a building permit. Waste system form from your local new mexico environment department office.
from www.template.net
Provide the requirements for obtaining a building permit. Title 14 housing and construction,. The purpose of this rule is to set forth standards and requirements for permitting construction in new mexico as the statewide. The below information links directly to the official site of the new mexico administrative code. Provide examples of plans and details that will aid in project completion and code. 14.7.2 nmac commercial building code (2021 ibc) 14.7.3 nmac residential building code (2021 irc) Waste system form from your local new mexico environment department office.
Building Checklist Templates 18+ Word, PDF Format Download
New Mexico Building Permit Requirements Provide examples of plans and details that will aid in project completion and code. The below information links directly to the official site of the new mexico administrative code. Waste system form from your local new mexico environment department office. Provide examples of plans and details that will aid in project completion and code. 14.7.2 nmac commercial building code (2021 ibc) 14.7.3 nmac residential building code (2021 irc) Provide the requirements for obtaining a building permit. The purpose of this rule is to set forth standards and requirements for permitting construction in new mexico as the statewide. Title 14 housing and construction,.
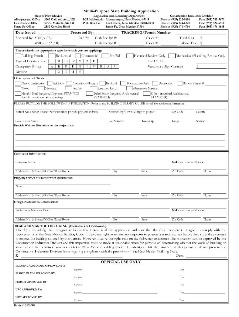
From studylib.net
Building Permit Guide for Residential New Mexico Building Permit Requirements Provide examples of plans and details that will aid in project completion and code. The purpose of this rule is to set forth standards and requirements for permitting construction in new mexico as the statewide. The below information links directly to the official site of the new mexico administrative code. 14.7.2 nmac commercial building code (2021 ibc) 14.7.3 nmac residential. New Mexico Building Permit Requirements.
From kaothu.com
Building Permit Application Form in Mandaluyong City What does it look New Mexico Building Permit Requirements 14.7.2 nmac commercial building code (2021 ibc) 14.7.3 nmac residential building code (2021 irc) Provide the requirements for obtaining a building permit. Waste system form from your local new mexico environment department office. The below information links directly to the official site of the new mexico administrative code. Provide examples of plans and details that will aid in project completion. New Mexico Building Permit Requirements.
From www.mati.gov.ph
Mati Official site New Mexico Building Permit Requirements Waste system form from your local new mexico environment department office. 14.7.2 nmac commercial building code (2021 ibc) 14.7.3 nmac residential building code (2021 irc) The purpose of this rule is to set forth standards and requirements for permitting construction in new mexico as the statewide. Title 14 housing and construction,. Provide examples of plans and details that will aid. New Mexico Building Permit Requirements.
From solvepmproblems.com
Understanding Building Permits Basic Information & The Process Of Filing New Mexico Building Permit Requirements Title 14 housing and construction,. 14.7.2 nmac commercial building code (2021 ibc) 14.7.3 nmac residential building code (2021 irc) The purpose of this rule is to set forth standards and requirements for permitting construction in new mexico as the statewide. Provide examples of plans and details that will aid in project completion and code. Provide the requirements for obtaining a. New Mexico Building Permit Requirements.
From nantuckethospital.org
NCH Receives Building Permit For New Hospital Nantucket Cottage Hospital New Mexico Building Permit Requirements Title 14 housing and construction,. The purpose of this rule is to set forth standards and requirements for permitting construction in new mexico as the statewide. Waste system form from your local new mexico environment department office. 14.7.2 nmac commercial building code (2021 ibc) 14.7.3 nmac residential building code (2021 irc) Provide the requirements for obtaining a building permit. The. New Mexico Building Permit Requirements.
From www.manausa.com
Building Permits 2023 New Mexico Building Permit Requirements Provide the requirements for obtaining a building permit. The purpose of this rule is to set forth standards and requirements for permitting construction in new mexico as the statewide. Provide examples of plans and details that will aid in project completion and code. Waste system form from your local new mexico environment department office. The below information links directly to. New Mexico Building Permit Requirements.
From www.studocu.com
Unified Application Form for Building Permit Bachelor of Science in New Mexico Building Permit Requirements Provide the requirements for obtaining a building permit. Title 14 housing and construction,. 14.7.2 nmac commercial building code (2021 ibc) 14.7.3 nmac residential building code (2021 irc) Waste system form from your local new mexico environment department office. The purpose of this rule is to set forth standards and requirements for permitting construction in new mexico as the statewide. Provide. New Mexico Building Permit Requirements.
From www.signnow.com
Building Permit Template Complete with ease airSlate SignNow New Mexico Building Permit Requirements Waste system form from your local new mexico environment department office. The below information links directly to the official site of the new mexico administrative code. Provide the requirements for obtaining a building permit. 14.7.2 nmac commercial building code (2021 ibc) 14.7.3 nmac residential building code (2021 irc) Provide examples of plans and details that will aid in project completion. New Mexico Building Permit Requirements.
From www.formsbank.com
Fillable Building Permit Application Form printable pdf download New Mexico Building Permit Requirements Waste system form from your local new mexico environment department office. Provide examples of plans and details that will aid in project completion and code. Title 14 housing and construction,. 14.7.2 nmac commercial building code (2021 ibc) 14.7.3 nmac residential building code (2021 irc) The purpose of this rule is to set forth standards and requirements for permitting construction in. New Mexico Building Permit Requirements.
From kaothu.com
Puerto Princesa City Occupancy Permit Application Form and Checklist New Mexico Building Permit Requirements 14.7.2 nmac commercial building code (2021 ibc) 14.7.3 nmac residential building code (2021 irc) Provide the requirements for obtaining a building permit. The below information links directly to the official site of the new mexico administrative code. The purpose of this rule is to set forth standards and requirements for permitting construction in new mexico as the statewide. Provide examples. New Mexico Building Permit Requirements.
From newsilver.com
How To Check Permits On A House New Silver New Mexico Building Permit Requirements The purpose of this rule is to set forth standards and requirements for permitting construction in new mexico as the statewide. Provide examples of plans and details that will aid in project completion and code. Title 14 housing and construction,. Provide the requirements for obtaining a building permit. 14.7.2 nmac commercial building code (2021 ibc) 14.7.3 nmac residential building code. New Mexico Building Permit Requirements.
From www.familyhandyman.com
How to Get a Building Permit for a DIY Home Build The Family Handyman New Mexico Building Permit Requirements The below information links directly to the official site of the new mexico administrative code. Title 14 housing and construction,. Provide the requirements for obtaining a building permit. 14.7.2 nmac commercial building code (2021 ibc) 14.7.3 nmac residential building code (2021 irc) Waste system form from your local new mexico environment department office. Provide examples of plans and details that. New Mexico Building Permit Requirements.
From www.signnow.com
Ucc Construction Permit Application 20082024 Form Fill Out and Sign New Mexico Building Permit Requirements Provide examples of plans and details that will aid in project completion and code. The below information links directly to the official site of the new mexico administrative code. Provide the requirements for obtaining a building permit. The purpose of this rule is to set forth standards and requirements for permitting construction in new mexico as the statewide. 14.7.2 nmac. New Mexico Building Permit Requirements.
From exyvudqcj.blob.core.windows.net
Types Of Permits Needed For Construction at Lillian Wall blog New Mexico Building Permit Requirements Waste system form from your local new mexico environment department office. 14.7.2 nmac commercial building code (2021 ibc) 14.7.3 nmac residential building code (2021 irc) The below information links directly to the official site of the new mexico administrative code. Provide the requirements for obtaining a building permit. Title 14 housing and construction,. Provide examples of plans and details that. New Mexico Building Permit Requirements.
From www.cityofiona.org
Building Permits & Applications New Mexico Building Permit Requirements Waste system form from your local new mexico environment department office. Title 14 housing and construction,. The purpose of this rule is to set forth standards and requirements for permitting construction in new mexico as the statewide. The below information links directly to the official site of the new mexico administrative code. 14.7.2 nmac commercial building code (2021 ibc) 14.7.3. New Mexico Building Permit Requirements.
From www.familyhandyman.com
Building Permits What You Need to Know The Family Handyman New Mexico Building Permit Requirements Provide the requirements for obtaining a building permit. Waste system form from your local new mexico environment department office. The below information links directly to the official site of the new mexico administrative code. Provide examples of plans and details that will aid in project completion and code. Title 14 housing and construction,. 14.7.2 nmac commercial building code (2021 ibc). New Mexico Building Permit Requirements.
From www.dochub.com
Building permit sample Fill out & sign online DocHub New Mexico Building Permit Requirements Provide examples of plans and details that will aid in project completion and code. Provide the requirements for obtaining a building permit. The purpose of this rule is to set forth standards and requirements for permitting construction in new mexico as the statewide. 14.7.2 nmac commercial building code (2021 ibc) 14.7.3 nmac residential building code (2021 irc) The below information. New Mexico Building Permit Requirements.
From www.youtube.com
New Mexico DMV Permit Practice Test 1 2018 YouTube New Mexico Building Permit Requirements Provide examples of plans and details that will aid in project completion and code. The below information links directly to the official site of the new mexico administrative code. Waste system form from your local new mexico environment department office. The purpose of this rule is to set forth standards and requirements for permitting construction in new mexico as the. New Mexico Building Permit Requirements.
From solvepmproblems.com
Understanding Building Permits Basic Information & The Process Of Filing New Mexico Building Permit Requirements Provide the requirements for obtaining a building permit. Waste system form from your local new mexico environment department office. Provide examples of plans and details that will aid in project completion and code. The purpose of this rule is to set forth standards and requirements for permitting construction in new mexico as the statewide. The below information links directly to. New Mexico Building Permit Requirements.
From www.template.net
Building Checklist Templates 18+ Word, PDF Format Download New Mexico Building Permit Requirements Title 14 housing and construction,. Provide examples of plans and details that will aid in project completion and code. 14.7.2 nmac commercial building code (2021 ibc) 14.7.3 nmac residential building code (2021 irc) Waste system form from your local new mexico environment department office. The below information links directly to the official site of the new mexico administrative code. The. New Mexico Building Permit Requirements.
From www.satinandslateinteriors.com
How to Pull Building Permits For Remodels & New Construction On Homes New Mexico Building Permit Requirements The below information links directly to the official site of the new mexico administrative code. Waste system form from your local new mexico environment department office. 14.7.2 nmac commercial building code (2021 ibc) 14.7.3 nmac residential building code (2021 irc) The purpose of this rule is to set forth standards and requirements for permitting construction in new mexico as the. New Mexico Building Permit Requirements.
From studylib.net
Building Permit Application New Mexico Building Permit Requirements Waste system form from your local new mexico environment department office. Title 14 housing and construction,. The purpose of this rule is to set forth standards and requirements for permitting construction in new mexico as the statewide. Provide examples of plans and details that will aid in project completion and code. The below information links directly to the official site. New Mexico Building Permit Requirements.
From www.satinandslateinteriors.com
How to Pull Building Permits For Remodels & New Construction On Homes New Mexico Building Permit Requirements Title 14 housing and construction,. The below information links directly to the official site of the new mexico administrative code. Provide examples of plans and details that will aid in project completion and code. 14.7.2 nmac commercial building code (2021 ibc) 14.7.3 nmac residential building code (2021 irc) Waste system form from your local new mexico environment department office. Provide. New Mexico Building Permit Requirements.
From www.villageofposen.org
Procedure for Obtaining a Building Permit Village Of Posen New Mexico Building Permit Requirements Waste system form from your local new mexico environment department office. Title 14 housing and construction,. Provide the requirements for obtaining a building permit. Provide examples of plans and details that will aid in project completion and code. The purpose of this rule is to set forth standards and requirements for permitting construction in new mexico as the statewide. 14.7.2. New Mexico Building Permit Requirements.
From www.scribd.com
Application Form Building Permit PDF Specification (Technical New Mexico Building Permit Requirements Waste system form from your local new mexico environment department office. Provide examples of plans and details that will aid in project completion and code. The purpose of this rule is to set forth standards and requirements for permitting construction in new mexico as the statewide. Provide the requirements for obtaining a building permit. 14.7.2 nmac commercial building code (2021. New Mexico Building Permit Requirements.
From www.paylessrolloff.com
New Mexico Building Code, Permit and Licensing Overview New Mexico Building Permit Requirements Title 14 housing and construction,. The purpose of this rule is to set forth standards and requirements for permitting construction in new mexico as the statewide. Provide examples of plans and details that will aid in project completion and code. 14.7.2 nmac commercial building code (2021 ibc) 14.7.3 nmac residential building code (2021 irc) Waste system form from your local. New Mexico Building Permit Requirements.
From www.academia.edu
(PDF) The New Mexico City Building Code Requirements for Design and New Mexico Building Permit Requirements The purpose of this rule is to set forth standards and requirements for permitting construction in new mexico as the statewide. Title 14 housing and construction,. 14.7.2 nmac commercial building code (2021 ibc) 14.7.3 nmac residential building code (2021 irc) The below information links directly to the official site of the new mexico administrative code. Provide the requirements for obtaining. New Mexico Building Permit Requirements.
From thecityofchestermere.ca
New Residential Permits City Services New Mexico Building Permit Requirements Title 14 housing and construction,. Provide examples of plans and details that will aid in project completion and code. Waste system form from your local new mexico environment department office. The below information links directly to the official site of the new mexico administrative code. The purpose of this rule is to set forth standards and requirements for permitting construction. New Mexico Building Permit Requirements.
From www.grandview.org
Building Permits Grandview, MO New Mexico Building Permit Requirements 14.7.2 nmac commercial building code (2021 ibc) 14.7.3 nmac residential building code (2021 irc) The purpose of this rule is to set forth standards and requirements for permitting construction in new mexico as the statewide. Title 14 housing and construction,. The below information links directly to the official site of the new mexico administrative code. Waste system form from your. New Mexico Building Permit Requirements.
From www.signnow.com
Nm Os Ow Permits with oneclick access airSlate SignNow New Mexico Building Permit Requirements Waste system form from your local new mexico environment department office. 14.7.2 nmac commercial building code (2021 ibc) 14.7.3 nmac residential building code (2021 irc) Title 14 housing and construction,. Provide examples of plans and details that will aid in project completion and code. Provide the requirements for obtaining a building permit. The purpose of this rule is to set. New Mexico Building Permit Requirements.
From fity.club
Building Permits New Mexico Building Permit Requirements Provide examples of plans and details that will aid in project completion and code. The below information links directly to the official site of the new mexico administrative code. Waste system form from your local new mexico environment department office. The purpose of this rule is to set forth standards and requirements for permitting construction in new mexico as the. New Mexico Building Permit Requirements.
From studylib.net
UnifiedforBuildingPermit original New Mexico Building Permit Requirements Title 14 housing and construction,. Provide examples of plans and details that will aid in project completion and code. Waste system form from your local new mexico environment department office. The purpose of this rule is to set forth standards and requirements for permitting construction in new mexico as the statewide. The below information links directly to the official site. New Mexico Building Permit Requirements.
From www.studocu.com
Unified Application FORM FOR Building Permit 1 SIMPLE RENEWAL COMPLEX New Mexico Building Permit Requirements The below information links directly to the official site of the new mexico administrative code. Provide the requirements for obtaining a building permit. Title 14 housing and construction,. The purpose of this rule is to set forth standards and requirements for permitting construction in new mexico as the statewide. 14.7.2 nmac commercial building code (2021 ibc) 14.7.3 nmac residential building. New Mexico Building Permit Requirements.
From studylib.net
building permit guide for commercial construction New Mexico Building Permit Requirements The below information links directly to the official site of the new mexico administrative code. Title 14 housing and construction,. 14.7.2 nmac commercial building code (2021 ibc) 14.7.3 nmac residential building code (2021 irc) The purpose of this rule is to set forth standards and requirements for permitting construction in new mexico as the statewide. Waste system form from your. New Mexico Building Permit Requirements.
From studylib.net
building permit application New Mexico Building Permit Requirements Provide examples of plans and details that will aid in project completion and code. Title 14 housing and construction,. Waste system form from your local new mexico environment department office. Provide the requirements for obtaining a building permit. 14.7.2 nmac commercial building code (2021 ibc) 14.7.3 nmac residential building code (2021 irc) The purpose of this rule is to set. New Mexico Building Permit Requirements.