Wall Size In House Plan . Dimensioning on a floor plan usually requires two or three continuous dimension lines to locate exterior walls, wall jogs, interior walls, windows, doors, and other elements. The walls are the strongest visual elements in a floor plan. If you're a real estate agent or appraiser and your floor plan drawing is simply to measure the approximate size of the building and show the general interior layout, you don't need to be. Walls are represented by parallel lines and may be solid or filled with a. The thickness of the walls in a cad house plan would typically depend on the scale and level of detail required for the drawing. However, a commonly used standard for. These plans will help you visualize the entire interior layout. Basic house wall thickness varies with indoor walls typically measuring around 4.5 inches and external walls around 6. Most interior walls are typically 4.5 inches thick, while exterior walls can range from 6 to 12 inches, depending on insulation and. Dimensions may be drawn between the walls to specify room sizes and wall lengths.
from www.supertinyhomes.com
Basic house wall thickness varies with indoor walls typically measuring around 4.5 inches and external walls around 6. The thickness of the walls in a cad house plan would typically depend on the scale and level of detail required for the drawing. Walls are represented by parallel lines and may be solid or filled with a. The walls are the strongest visual elements in a floor plan. Most interior walls are typically 4.5 inches thick, while exterior walls can range from 6 to 12 inches, depending on insulation and. However, a commonly used standard for. These plans will help you visualize the entire interior layout. If you're a real estate agent or appraiser and your floor plan drawing is simply to measure the approximate size of the building and show the general interior layout, you don't need to be. Dimensioning on a floor plan usually requires two or three continuous dimension lines to locate exterior walls, wall jogs, interior walls, windows, doors, and other elements. Dimensions may be drawn between the walls to specify room sizes and wall lengths.
How Thick Are The Walls In A Typical Tiny House? Super Tiny Homes
Wall Size In House Plan Dimensions may be drawn between the walls to specify room sizes and wall lengths. Most interior walls are typically 4.5 inches thick, while exterior walls can range from 6 to 12 inches, depending on insulation and. The walls are the strongest visual elements in a floor plan. However, a commonly used standard for. These plans will help you visualize the entire interior layout. Dimensioning on a floor plan usually requires two or three continuous dimension lines to locate exterior walls, wall jogs, interior walls, windows, doors, and other elements. Basic house wall thickness varies with indoor walls typically measuring around 4.5 inches and external walls around 6. The thickness of the walls in a cad house plan would typically depend on the scale and level of detail required for the drawing. If you're a real estate agent or appraiser and your floor plan drawing is simply to measure the approximate size of the building and show the general interior layout, you don't need to be. Dimensions may be drawn between the walls to specify room sizes and wall lengths. Walls are represented by parallel lines and may be solid or filled with a.
From www.bhg.com
Essential Wall Types and Measurements to Know Before Renovating Wall Size In House Plan Dimensioning on a floor plan usually requires two or three continuous dimension lines to locate exterior walls, wall jogs, interior walls, windows, doors, and other elements. Most interior walls are typically 4.5 inches thick, while exterior walls can range from 6 to 12 inches, depending on insulation and. The thickness of the walls in a cad house plan would typically. Wall Size In House Plan.
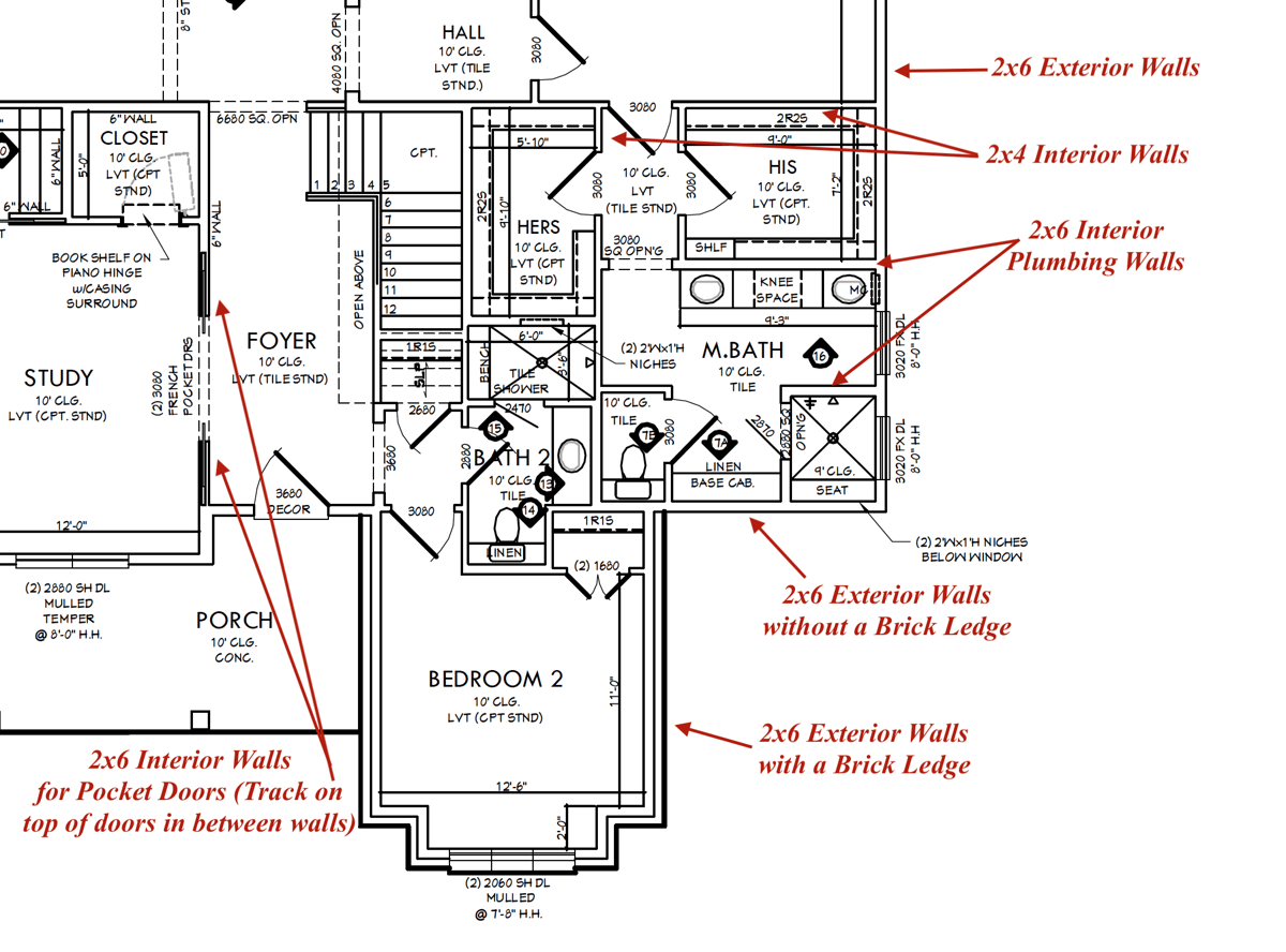
From www.homedesignersoftware.com
Setting Exact Wall Dimension Lengths Wall Size In House Plan The thickness of the walls in a cad house plan would typically depend on the scale and level of detail required for the drawing. The walls are the strongest visual elements in a floor plan. These plans will help you visualize the entire interior layout. Dimensions may be drawn between the walls to specify room sizes and wall lengths. Dimensioning. Wall Size In House Plan.
From cwc.ca
Understanding the Builder Notes The Canadian Wood Council CWC Wall Size In House Plan If you're a real estate agent or appraiser and your floor plan drawing is simply to measure the approximate size of the building and show the general interior layout, you don't need to be. The thickness of the walls in a cad house plan would typically depend on the scale and level of detail required for the drawing. Walls are. Wall Size In House Plan.
From envisioncad.com
Revit Tip Entire Wall Dimensioning EnvisionCAD Wall Size In House Plan The walls are the strongest visual elements in a floor plan. Most interior walls are typically 4.5 inches thick, while exterior walls can range from 6 to 12 inches, depending on insulation and. Dimensioning on a floor plan usually requires two or three continuous dimension lines to locate exterior walls, wall jogs, interior walls, windows, doors, and other elements. The. Wall Size In House Plan.
From www.dimensions.com
Wood Walls Framing, Partition Dimensions & Drawings Wall Size In House Plan Most interior walls are typically 4.5 inches thick, while exterior walls can range from 6 to 12 inches, depending on insulation and. The thickness of the walls in a cad house plan would typically depend on the scale and level of detail required for the drawing. If you're a real estate agent or appraiser and your floor plan drawing is. Wall Size In House Plan.
From www.houseplans.com
How to Read a Floor Plan with Dimensions Houseplans Blog Wall Size In House Plan Walls are represented by parallel lines and may be solid or filled with a. Most interior walls are typically 4.5 inches thick, while exterior walls can range from 6 to 12 inches, depending on insulation and. The walls are the strongest visual elements in a floor plan. Basic house wall thickness varies with indoor walls typically measuring around 4.5 inches. Wall Size In House Plan.
From www.icadtec.com
CAD Drafting and Blueprint Services Wall Size In House Plan The walls are the strongest visual elements in a floor plan. Dimensions may be drawn between the walls to specify room sizes and wall lengths. Basic house wall thickness varies with indoor walls typically measuring around 4.5 inches and external walls around 6. These plans will help you visualize the entire interior layout. If you're a real estate agent or. Wall Size In House Plan.
From www.thespruce.com
Guide to Drywall Thickness, Length, and Width Wall Size In House Plan The thickness of the walls in a cad house plan would typically depend on the scale and level of detail required for the drawing. However, a commonly used standard for. The walls are the strongest visual elements in a floor plan. These plans will help you visualize the entire interior layout. Walls are represented by parallel lines and may be. Wall Size In House Plan.
From www.mynicehome.gov.sg
HDB MNH How to Read Your HDB Floor Plan in 10 Seconds Wall Size In House Plan The thickness of the walls in a cad house plan would typically depend on the scale and level of detail required for the drawing. However, a commonly used standard for. Basic house wall thickness varies with indoor walls typically measuring around 4.5 inches and external walls around 6. These plans will help you visualize the entire interior layout. If you're. Wall Size In House Plan.
From shellysavonlea.net
Average House Ceiling Height Uk Shelly Lighting Wall Size In House Plan Basic house wall thickness varies with indoor walls typically measuring around 4.5 inches and external walls around 6. Walls are represented by parallel lines and may be solid or filled with a. Most interior walls are typically 4.5 inches thick, while exterior walls can range from 6 to 12 inches, depending on insulation and. The walls are the strongest visual. Wall Size In House Plan.
From cadbull.com
Autocad drawing of wall section and front elevation of a multifloor Wall Size In House Plan Walls are represented by parallel lines and may be solid or filled with a. The walls are the strongest visual elements in a floor plan. If you're a real estate agent or appraiser and your floor plan drawing is simply to measure the approximate size of the building and show the general interior layout, you don't need to be. These. Wall Size In House Plan.
From www.jlconline.com
Basic Wall Framing JLC Online Framing, Walls, Walls and Ceilings Wall Size In House Plan These plans will help you visualize the entire interior layout. Most interior walls are typically 4.5 inches thick, while exterior walls can range from 6 to 12 inches, depending on insulation and. Basic house wall thickness varies with indoor walls typically measuring around 4.5 inches and external walls around 6. Walls are represented by parallel lines and may be solid. Wall Size In House Plan.
From www.handymantips.org
How to build a partition wall Handyman tips Wall Size In House Plan Most interior walls are typically 4.5 inches thick, while exterior walls can range from 6 to 12 inches, depending on insulation and. Basic house wall thickness varies with indoor walls typically measuring around 4.5 inches and external walls around 6. Dimensions may be drawn between the walls to specify room sizes and wall lengths. If you're a real estate agent. Wall Size In House Plan.
From www.youtube.com
standard room size in a house Standard Size of Rooms in Residential Wall Size In House Plan Most interior walls are typically 4.5 inches thick, while exterior walls can range from 6 to 12 inches, depending on insulation and. The thickness of the walls in a cad house plan would typically depend on the scale and level of detail required for the drawing. These plans will help you visualize the entire interior layout. Walls are represented by. Wall Size In House Plan.
From www.youtube.com
using autocad and dimensioning walls of a house YouTube Wall Size In House Plan These plans will help you visualize the entire interior layout. Basic house wall thickness varies with indoor walls typically measuring around 4.5 inches and external walls around 6. Most interior walls are typically 4.5 inches thick, while exterior walls can range from 6 to 12 inches, depending on insulation and. The thickness of the walls in a cad house plan. Wall Size In House Plan.
From goimages-quack.blogspot.com
Basic Simple Floor Plan With Dimensions / Create the basic exterior Wall Size In House Plan Walls are represented by parallel lines and may be solid or filled with a. Dimensioning on a floor plan usually requires two or three continuous dimension lines to locate exterior walls, wall jogs, interior walls, windows, doors, and other elements. These plans will help you visualize the entire interior layout. Basic house wall thickness varies with indoor walls typically measuring. Wall Size In House Plan.
From www.oas.org
Building Guidelines Drawings. Section B Concrete Construction Wall Size In House Plan If you're a real estate agent or appraiser and your floor plan drawing is simply to measure the approximate size of the building and show the general interior layout, you don't need to be. Dimensioning on a floor plan usually requires two or three continuous dimension lines to locate exterior walls, wall jogs, interior walls, windows, doors, and other elements.. Wall Size In House Plan.
From www.homenish.com
Standard Wall Thickness How Thick Should the Wall Be? Homenish Wall Size In House Plan The walls are the strongest visual elements in a floor plan. However, a commonly used standard for. These plans will help you visualize the entire interior layout. Basic house wall thickness varies with indoor walls typically measuring around 4.5 inches and external walls around 6. Dimensions may be drawn between the walls to specify room sizes and wall lengths. Dimensioning. Wall Size In House Plan.
From www.lifeofanarchitect.com
Architectural Graphics 101 Wall Types Life of an Architect Wall Size In House Plan Basic house wall thickness varies with indoor walls typically measuring around 4.5 inches and external walls around 6. These plans will help you visualize the entire interior layout. Dimensioning on a floor plan usually requires two or three continuous dimension lines to locate exterior walls, wall jogs, interior walls, windows, doors, and other elements. Walls are represented by parallel lines. Wall Size In House Plan.
From www.supertinyhomes.com
How Thick Are The Walls In A Typical Tiny House? Super Tiny Homes Wall Size In House Plan If you're a real estate agent or appraiser and your floor plan drawing is simply to measure the approximate size of the building and show the general interior layout, you don't need to be. Basic house wall thickness varies with indoor walls typically measuring around 4.5 inches and external walls around 6. Walls are represented by parallel lines and may. Wall Size In House Plan.
From medium.com
The GoTo Guide for Drywall Size and Thickness by Williams Brothers Wall Size In House Plan Walls are represented by parallel lines and may be solid or filled with a. Dimensioning on a floor plan usually requires two or three continuous dimension lines to locate exterior walls, wall jogs, interior walls, windows, doors, and other elements. If you're a real estate agent or appraiser and your floor plan drawing is simply to measure the approximate size. Wall Size In House Plan.
From www.supertinyhomes.com
How Thick Are The Walls In A Typical Tiny House? Super Tiny Homes Wall Size In House Plan If you're a real estate agent or appraiser and your floor plan drawing is simply to measure the approximate size of the building and show the general interior layout, you don't need to be. These plans will help you visualize the entire interior layout. Dimensions may be drawn between the walls to specify room sizes and wall lengths. Basic house. Wall Size In House Plan.
From buildingcodetrainer.com
What is the Minimum Bedroom Size? Explained! Building Code Trainer Wall Size In House Plan These plans will help you visualize the entire interior layout. If you're a real estate agent or appraiser and your floor plan drawing is simply to measure the approximate size of the building and show the general interior layout, you don't need to be. Dimensions may be drawn between the walls to specify room sizes and wall lengths. However, a. Wall Size In House Plan.
From www.pinterest.ph
wall thickness Floor plans, Wall, Diagram Wall Size In House Plan However, a commonly used standard for. Walls are represented by parallel lines and may be solid or filled with a. The thickness of the walls in a cad house plan would typically depend on the scale and level of detail required for the drawing. Dimensioning on a floor plan usually requires two or three continuous dimension lines to locate exterior. Wall Size In House Plan.
From chieftalk.chiefarchitect.com
Dimensions not recognizing wall widths General Q & A ChiefTalk Forum Wall Size In House Plan The walls are the strongest visual elements in a floor plan. If you're a real estate agent or appraiser and your floor plan drawing is simply to measure the approximate size of the building and show the general interior layout, you don't need to be. Dimensions may be drawn between the walls to specify room sizes and wall lengths. The. Wall Size In House Plan.
From www.youtube.com
How To Draw Exterior Walls In Home Designer Floor Plans YouTube Wall Size In House Plan If you're a real estate agent or appraiser and your floor plan drawing is simply to measure the approximate size of the building and show the general interior layout, you don't need to be. However, a commonly used standard for. The thickness of the walls in a cad house plan would typically depend on the scale and level of detail. Wall Size In House Plan.
From belartestudio.com
Mastering Wall Measurements A Guide to Ordering Wall Murals at Home Wall Size In House Plan These plans will help you visualize the entire interior layout. Basic house wall thickness varies with indoor walls typically measuring around 4.5 inches and external walls around 6. The thickness of the walls in a cad house plan would typically depend on the scale and level of detail required for the drawing. Dimensions may be drawn between the walls to. Wall Size In House Plan.
From www.lceted.com
STANDARD ROOM SIZES USED IN RESIDENTIAL BUILDING (METER) LCETED Wall Size In House Plan However, a commonly used standard for. Walls are represented by parallel lines and may be solid or filled with a. Basic house wall thickness varies with indoor walls typically measuring around 4.5 inches and external walls around 6. Most interior walls are typically 4.5 inches thick, while exterior walls can range from 6 to 12 inches, depending on insulation and.. Wall Size In House Plan.
From www.swellcontractors.com
Wall Paint Services Swell Contractors Wall Size In House Plan Dimensioning on a floor plan usually requires two or three continuous dimension lines to locate exterior walls, wall jogs, interior walls, windows, doors, and other elements. Most interior walls are typically 4.5 inches thick, while exterior walls can range from 6 to 12 inches, depending on insulation and. These plans will help you visualize the entire interior layout. Basic house. Wall Size In House Plan.
From www.angi.com
Your Ultimate Guide to Floor and Wall Tile Sizes Wall Size In House Plan These plans will help you visualize the entire interior layout. Walls are represented by parallel lines and may be solid or filled with a. The walls are the strongest visual elements in a floor plan. However, a commonly used standard for. Dimensions may be drawn between the walls to specify room sizes and wall lengths. If you're a real estate. Wall Size In House Plan.
From www.dimensions.com
Wood Walls Framing, Bracing Dimensions & Drawings Wall Size In House Plan The walls are the strongest visual elements in a floor plan. If you're a real estate agent or appraiser and your floor plan drawing is simply to measure the approximate size of the building and show the general interior layout, you don't need to be. The thickness of the walls in a cad house plan would typically depend on the. Wall Size In House Plan.
From www.dimensions.com
Masonry Walls Dimensions & Drawings Wall Size In House Plan Walls are represented by parallel lines and may be solid or filled with a. The thickness of the walls in a cad house plan would typically depend on the scale and level of detail required for the drawing. Dimensioning on a floor plan usually requires two or three continuous dimension lines to locate exterior walls, wall jogs, interior walls, windows,. Wall Size In House Plan.
From www.artofit.org
The standard room sizes used in residential building feet Artofit Wall Size In House Plan Basic house wall thickness varies with indoor walls typically measuring around 4.5 inches and external walls around 6. Most interior walls are typically 4.5 inches thick, while exterior walls can range from 6 to 12 inches, depending on insulation and. If you're a real estate agent or appraiser and your floor plan drawing is simply to measure the approximate size. Wall Size In House Plan.
From skill-lync.com
Creating a Layout, Section and Elevation with dimensions using AutoCad Wall Size In House Plan The walls are the strongest visual elements in a floor plan. Basic house wall thickness varies with indoor walls typically measuring around 4.5 inches and external walls around 6. These plans will help you visualize the entire interior layout. Dimensioning on a floor plan usually requires two or three continuous dimension lines to locate exterior walls, wall jogs, interior walls,. Wall Size In House Plan.
From blog.kurkhomes.com
From Our Design Team How to Read a Set of Floor Plans Wall Size In House Plan The walls are the strongest visual elements in a floor plan. Dimensioning on a floor plan usually requires two or three continuous dimension lines to locate exterior walls, wall jogs, interior walls, windows, doors, and other elements. If you're a real estate agent or appraiser and your floor plan drawing is simply to measure the approximate size of the building. Wall Size In House Plan.