Santa Cruz County Ca Property Tax Lookup . Register your email address here to receive property tax bill reminders. Gis map lookup parcel on the county gis site. If you do not know your parcel number, you may look it up here. *proposition 13, the property tax limitation initiative, was approved by california. Treasury report generate detailed tax report. Do not enter title (ave., street, blvd., etc.). Countywide property tax 1% allocation. Parcel report generate detailed report on selected parcels. Register your email address here to receive property tax bill reminders. An email reminder will be sent approximately two weeks prior to each. To identify your property, enter the street address (e.g.
from www.templateroller.com
Parcel report generate detailed report on selected parcels. If you do not know your parcel number, you may look it up here. Do not enter title (ave., street, blvd., etc.). An email reminder will be sent approximately two weeks prior to each. Countywide property tax 1% allocation. Gis map lookup parcel on the county gis site. Register your email address here to receive property tax bill reminders. Register your email address here to receive property tax bill reminders. To identify your property, enter the street address (e.g. *proposition 13, the property tax limitation initiative, was approved by california.
Form BOE262AH Fill Out, Sign Online and Download Fillable PDF
Santa Cruz County Ca Property Tax Lookup An email reminder will be sent approximately two weeks prior to each. An email reminder will be sent approximately two weeks prior to each. *proposition 13, the property tax limitation initiative, was approved by california. Parcel report generate detailed report on selected parcels. Gis map lookup parcel on the county gis site. If you do not know your parcel number, you may look it up here. Countywide property tax 1% allocation. Do not enter title (ave., street, blvd., etc.). Register your email address here to receive property tax bill reminders. Treasury report generate detailed tax report. Register your email address here to receive property tax bill reminders. To identify your property, enter the street address (e.g.
From www.land.com
12.53 acres in Santa Cruz County, California Santa Cruz County Ca Property Tax Lookup If you do not know your parcel number, you may look it up here. Gis map lookup parcel on the county gis site. Register your email address here to receive property tax bill reminders. *proposition 13, the property tax limitation initiative, was approved by california. Parcel report generate detailed report on selected parcels. To identify your property, enter the street. Santa Cruz County Ca Property Tax Lookup.
From www.templateroller.com
Form BOE263B Fill Out, Sign Online and Download Fillable PDF, Santa Santa Cruz County Ca Property Tax Lookup Register your email address here to receive property tax bill reminders. Countywide property tax 1% allocation. An email reminder will be sent approximately two weeks prior to each. Treasury report generate detailed tax report. Register your email address here to receive property tax bill reminders. If you do not know your parcel number, you may look it up here. *proposition. Santa Cruz County Ca Property Tax Lookup.
From www.landwatch.com
Watsonville, Santa Cruz County, CA Undeveloped Land for sale Property Santa Cruz County Ca Property Tax Lookup *proposition 13, the property tax limitation initiative, was approved by california. Gis map lookup parcel on the county gis site. Treasury report generate detailed tax report. To identify your property, enter the street address (e.g. An email reminder will be sent approximately two weeks prior to each. Register your email address here to receive property tax bill reminders. If you. Santa Cruz County Ca Property Tax Lookup.
From www.templateroller.com
Form BOE266 Fill Out, Sign Online and Download Fillable PDF, Santa Santa Cruz County Ca Property Tax Lookup Register your email address here to receive property tax bill reminders. Treasury report generate detailed tax report. *proposition 13, the property tax limitation initiative, was approved by california. If you do not know your parcel number, you may look it up here. Parcel report generate detailed report on selected parcels. Register your email address here to receive property tax bill. Santa Cruz County Ca Property Tax Lookup.
From www.land.com
0.8 acres in Santa Cruz County, California Santa Cruz County Ca Property Tax Lookup Countywide property tax 1% allocation. To identify your property, enter the street address (e.g. If you do not know your parcel number, you may look it up here. Treasury report generate detailed tax report. Do not enter title (ave., street, blvd., etc.). Register your email address here to receive property tax bill reminders. An email reminder will be sent approximately. Santa Cruz County Ca Property Tax Lookup.
From www.co.santa-cruz.ca.us
Santa Cruz County > Departments > County Administrative Office Santa Cruz County Ca Property Tax Lookup If you do not know your parcel number, you may look it up here. Register your email address here to receive property tax bill reminders. *proposition 13, the property tax limitation initiative, was approved by california. Parcel report generate detailed report on selected parcels. Do not enter title (ave., street, blvd., etc.). To identify your property, enter the street address. Santa Cruz County Ca Property Tax Lookup.
From giovvhpxl.blob.core.windows.net
How Do I Find Out What My Property Taxes Were Last Year at Dolores Santa Cruz County Ca Property Tax Lookup Parcel report generate detailed report on selected parcels. To identify your property, enter the street address (e.g. Gis map lookup parcel on the county gis site. Do not enter title (ave., street, blvd., etc.). *proposition 13, the property tax limitation initiative, was approved by california. An email reminder will be sent approximately two weeks prior to each. If you do. Santa Cruz County Ca Property Tax Lookup.
From www.templateroller.com
2023 Santa Cruz County, California Unreasonable Hardship for Accessible Santa Cruz County Ca Property Tax Lookup To identify your property, enter the street address (e.g. If you do not know your parcel number, you may look it up here. Gis map lookup parcel on the county gis site. Countywide property tax 1% allocation. Register your email address here to receive property tax bill reminders. An email reminder will be sent approximately two weeks prior to each.. Santa Cruz County Ca Property Tax Lookup.
From azmemory.azlibrary.gov
Santa Cruz County expenditure limitation report Arizona Memory Project Santa Cruz County Ca Property Tax Lookup An email reminder will be sent approximately two weeks prior to each. To identify your property, enter the street address (e.g. Treasury report generate detailed tax report. Register your email address here to receive property tax bill reminders. Do not enter title (ave., street, blvd., etc.). If you do not know your parcel number, you may look it up here.. Santa Cruz County Ca Property Tax Lookup.
From www.templateroller.com
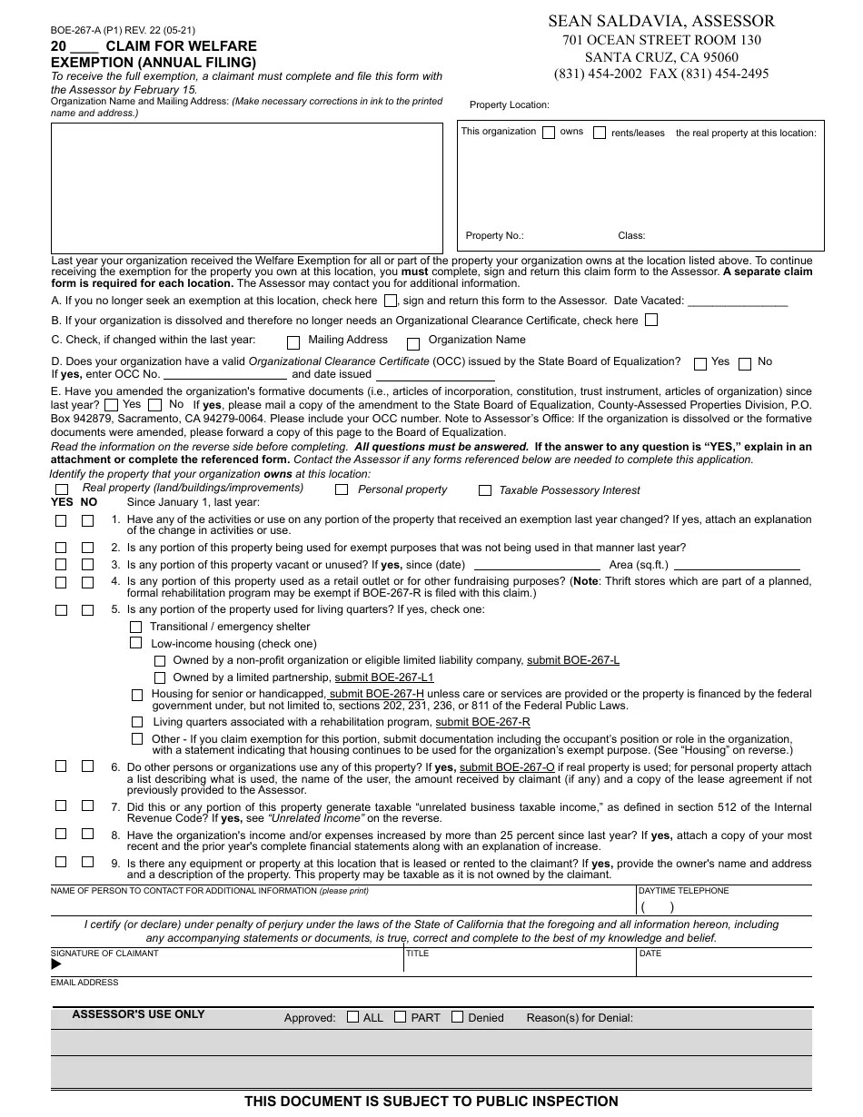
Form BOE267A Fill Out, Sign Online and Download Fillable PDF, Santa Santa Cruz County Ca Property Tax Lookup Countywide property tax 1% allocation. To identify your property, enter the street address (e.g. An email reminder will be sent approximately two weeks prior to each. Do not enter title (ave., street, blvd., etc.). Register your email address here to receive property tax bill reminders. If you do not know your parcel number, you may look it up here. *proposition. Santa Cruz County Ca Property Tax Lookup.
From www.alamy.com
Map of Santa Cruz County in California state on white background Santa Cruz County Ca Property Tax Lookup Countywide property tax 1% allocation. Register your email address here to receive property tax bill reminders. Parcel report generate detailed report on selected parcels. Do not enter title (ave., street, blvd., etc.). *proposition 13, the property tax limitation initiative, was approved by california. To identify your property, enter the street address (e.g. Register your email address here to receive property. Santa Cruz County Ca Property Tax Lookup.
From www.templateroller.com
Santa Cruz County, California Property Use Report Fill Out, Sign Santa Cruz County Ca Property Tax Lookup If you do not know your parcel number, you may look it up here. *proposition 13, the property tax limitation initiative, was approved by california. Gis map lookup parcel on the county gis site. Treasury report generate detailed tax report. Countywide property tax 1% allocation. Register your email address here to receive property tax bill reminders. Do not enter title. Santa Cruz County Ca Property Tax Lookup.
From www.templateroller.com
Form SUPFL500 Fill Out, Sign Online and Download Printable PDF Santa Cruz County Ca Property Tax Lookup Parcel report generate detailed report on selected parcels. Do not enter title (ave., street, blvd., etc.). Gis map lookup parcel on the county gis site. If you do not know your parcel number, you may look it up here. *proposition 13, the property tax limitation initiative, was approved by california. Countywide property tax 1% allocation. Register your email address here. Santa Cruz County Ca Property Tax Lookup.
From exyzofcra.blob.core.windows.net
Hughes County Sd Property Tax Search at Rebecca Beck blog Santa Cruz County Ca Property Tax Lookup Do not enter title (ave., street, blvd., etc.). Register your email address here to receive property tax bill reminders. Gis map lookup parcel on the county gis site. Countywide property tax 1% allocation. Parcel report generate detailed report on selected parcels. Register your email address here to receive property tax bill reminders. An email reminder will be sent approximately two. Santa Cruz County Ca Property Tax Lookup.
From azmemory.azlibrary.gov
Santa Cruz County Official Map of Santa Cruz County Arizona, May 7 Santa Cruz County Ca Property Tax Lookup Register your email address here to receive property tax bill reminders. Register your email address here to receive property tax bill reminders. If you do not know your parcel number, you may look it up here. Parcel report generate detailed report on selected parcels. Gis map lookup parcel on the county gis site. Treasury report generate detailed tax report. An. Santa Cruz County Ca Property Tax Lookup.
From www.templateroller.com
Form BOE262AH Fill Out, Sign Online and Download Fillable PDF Santa Cruz County Ca Property Tax Lookup Parcel report generate detailed report on selected parcels. *proposition 13, the property tax limitation initiative, was approved by california. Register your email address here to receive property tax bill reminders. If you do not know your parcel number, you may look it up here. Register your email address here to receive property tax bill reminders. An email reminder will be. Santa Cruz County Ca Property Tax Lookup.
From gioskbvij.blob.core.windows.net
Santa Clara County California Property Tax Search at Gregory Roy blog Santa Cruz County Ca Property Tax Lookup *proposition 13, the property tax limitation initiative, was approved by california. Treasury report generate detailed tax report. Countywide property tax 1% allocation. If you do not know your parcel number, you may look it up here. An email reminder will be sent approximately two weeks prior to each. To identify your property, enter the street address (e.g. Parcel report generate. Santa Cruz County Ca Property Tax Lookup.
From exoiopcib.blob.core.windows.net
Altoona Pa Property Tax Records at Heather Putnam blog Santa Cruz County Ca Property Tax Lookup Countywide property tax 1% allocation. An email reminder will be sent approximately two weeks prior to each. If you do not know your parcel number, you may look it up here. Register your email address here to receive property tax bill reminders. Do not enter title (ave., street, blvd., etc.). To identify your property, enter the street address (e.g. *proposition. Santa Cruz County Ca Property Tax Lookup.
From andersonchristie.com
Anderson Christie Inc specializes in Santa Cruz CA Homes, Real Estate Santa Cruz County Ca Property Tax Lookup Countywide property tax 1% allocation. Register your email address here to receive property tax bill reminders. To identify your property, enter the street address (e.g. *proposition 13, the property tax limitation initiative, was approved by california. Parcel report generate detailed report on selected parcels. Treasury report generate detailed tax report. An email reminder will be sent approximately two weeks prior. Santa Cruz County Ca Property Tax Lookup.
From azmemory.azlibrary.gov
Santa Cruz County Single Audits Arizona Memory Project Santa Cruz County Ca Property Tax Lookup Treasury report generate detailed tax report. Register your email address here to receive property tax bill reminders. To identify your property, enter the street address (e.g. Countywide property tax 1% allocation. An email reminder will be sent approximately two weeks prior to each. *proposition 13, the property tax limitation initiative, was approved by california. If you do not know your. Santa Cruz County Ca Property Tax Lookup.
From www.neilsberg.com
Santa Cruz County, CA Median Household 2024 Update Neilsberg Santa Cruz County Ca Property Tax Lookup *proposition 13, the property tax limitation initiative, was approved by california. Treasury report generate detailed tax report. Register your email address here to receive property tax bill reminders. An email reminder will be sent approximately two weeks prior to each. Countywide property tax 1% allocation. Parcel report generate detailed report on selected parcels. To identify your property, enter the street. Santa Cruz County Ca Property Tax Lookup.
From www.corservsolutions.com
Santa Cruz County Bank Partners with CorServ to Launch Comprehensive Santa Cruz County Ca Property Tax Lookup Countywide property tax 1% allocation. Treasury report generate detailed tax report. To identify your property, enter the street address (e.g. Register your email address here to receive property tax bill reminders. Do not enter title (ave., street, blvd., etc.). *proposition 13, the property tax limitation initiative, was approved by california. If you do not know your parcel number, you may. Santa Cruz County Ca Property Tax Lookup.
From chpc.net
Santa Cruz County Housing Need Report 2022 California Housing Partnership Santa Cruz County Ca Property Tax Lookup Register your email address here to receive property tax bill reminders. *proposition 13, the property tax limitation initiative, was approved by california. Treasury report generate detailed tax report. Register your email address here to receive property tax bill reminders. To identify your property, enter the street address (e.g. If you do not know your parcel number, you may look it. Santa Cruz County Ca Property Tax Lookup.
From www.templateroller.com
Form BOE262AH Fill Out, Sign Online and Download Fillable PDF Santa Cruz County Ca Property Tax Lookup Register your email address here to receive property tax bill reminders. Do not enter title (ave., street, blvd., etc.). Register your email address here to receive property tax bill reminders. Treasury report generate detailed tax report. *proposition 13, the property tax limitation initiative, was approved by california. If you do not know your parcel number, you may look it up. Santa Cruz County Ca Property Tax Lookup.
From www.templateroller.com
Form BOE267A Fill Out, Sign Online and Download Fillable PDF, Santa Santa Cruz County Ca Property Tax Lookup *proposition 13, the property tax limitation initiative, was approved by california. Do not enter title (ave., street, blvd., etc.). Treasury report generate detailed tax report. If you do not know your parcel number, you may look it up here. Parcel report generate detailed report on selected parcels. To identify your property, enter the street address (e.g. Register your email address. Santa Cruz County Ca Property Tax Lookup.
From www.templateroller.com
Form BOE266 Fill Out, Sign Online and Download Fillable PDF, Santa Santa Cruz County Ca Property Tax Lookup Treasury report generate detailed tax report. If you do not know your parcel number, you may look it up here. An email reminder will be sent approximately two weeks prior to each. Gis map lookup parcel on the county gis site. Do not enter title (ave., street, blvd., etc.). Register your email address here to receive property tax bill reminders.. Santa Cruz County Ca Property Tax Lookup.
From www.sfchronicle.com
California's Santa Cruz County now has highest rent in the US Santa Cruz County Ca Property Tax Lookup Gis map lookup parcel on the county gis site. Register your email address here to receive property tax bill reminders. An email reminder will be sent approximately two weeks prior to each. If you do not know your parcel number, you may look it up here. *proposition 13, the property tax limitation initiative, was approved by california. Register your email. Santa Cruz County Ca Property Tax Lookup.
From www.templateroller.com
County of Santa Cruz, California Homeowners' Exemption Termination Santa Cruz County Ca Property Tax Lookup Do not enter title (ave., street, blvd., etc.). Register your email address here to receive property tax bill reminders. If you do not know your parcel number, you may look it up here. *proposition 13, the property tax limitation initiative, was approved by california. An email reminder will be sent approximately two weeks prior to each. Parcel report generate detailed. Santa Cruz County Ca Property Tax Lookup.
From www.camino.ai
Santa Cruz County Live with Online Permit Guide Camino Technologies Santa Cruz County Ca Property Tax Lookup An email reminder will be sent approximately two weeks prior to each. Register your email address here to receive property tax bill reminders. If you do not know your parcel number, you may look it up here. *proposition 13, the property tax limitation initiative, was approved by california. Countywide property tax 1% allocation. Register your email address here to receive. Santa Cruz County Ca Property Tax Lookup.
From www.templateroller.com
Santa Cruz County, California Claim for Exclusion From Supplemental Santa Cruz County Ca Property Tax Lookup Register your email address here to receive property tax bill reminders. Gis map lookup parcel on the county gis site. If you do not know your parcel number, you may look it up here. To identify your property, enter the street address (e.g. Countywide property tax 1% allocation. *proposition 13, the property tax limitation initiative, was approved by california. Do. Santa Cruz County Ca Property Tax Lookup.
From mapsforyoufree.blogspot.com
Santa Cruz County Parcel Map Maping Resources Santa Cruz County Ca Property Tax Lookup To identify your property, enter the street address (e.g. Countywide property tax 1% allocation. Parcel report generate detailed report on selected parcels. Treasury report generate detailed tax report. Register your email address here to receive property tax bill reminders. If you do not know your parcel number, you may look it up here. Register your email address here to receive. Santa Cruz County Ca Property Tax Lookup.
From www.land.com
5.87 acres in Santa Cruz County, California Santa Cruz County Ca Property Tax Lookup Register your email address here to receive property tax bill reminders. *proposition 13, the property tax limitation initiative, was approved by california. Register your email address here to receive property tax bill reminders. Countywide property tax 1% allocation. If you do not know your parcel number, you may look it up here. Do not enter title (ave., street, blvd., etc.).. Santa Cruz County Ca Property Tax Lookup.
From www.templateroller.com
Form BOE260B Fill Out, Sign Online and Download Fillable PDF Santa Cruz County Ca Property Tax Lookup Treasury report generate detailed tax report. An email reminder will be sent approximately two weeks prior to each. Register your email address here to receive property tax bill reminders. Parcel report generate detailed report on selected parcels. Gis map lookup parcel on the county gis site. If you do not know your parcel number, you may look it up here.. Santa Cruz County Ca Property Tax Lookup.
From santacruzlocal.org
Maps show disparity in Santa Cruz County property taxes Santa Cruz Local Santa Cruz County Ca Property Tax Lookup An email reminder will be sent approximately two weeks prior to each. Register your email address here to receive property tax bill reminders. Parcel report generate detailed report on selected parcels. Treasury report generate detailed tax report. *proposition 13, the property tax limitation initiative, was approved by california. Gis map lookup parcel on the county gis site. Do not enter. Santa Cruz County Ca Property Tax Lookup.
From www.templateroller.com
Form BOE260B Fill Out, Sign Online and Download Fillable PDF Santa Cruz County Ca Property Tax Lookup Register your email address here to receive property tax bill reminders. Do not enter title (ave., street, blvd., etc.). Countywide property tax 1% allocation. An email reminder will be sent approximately two weeks prior to each. Treasury report generate detailed tax report. *proposition 13, the property tax limitation initiative, was approved by california. If you do not know your parcel. Santa Cruz County Ca Property Tax Lookup.