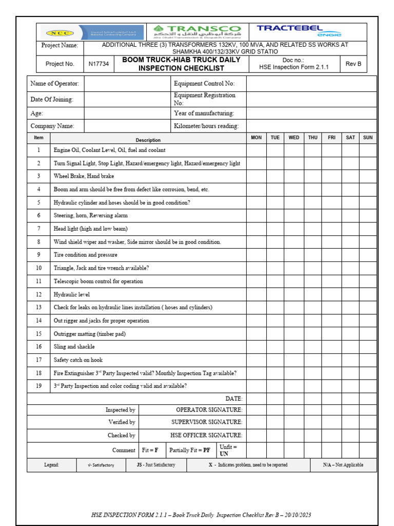
Boom Truck Daily Inspection Checklist . While preparing boom truck daily inspection checklist, use the. It lists 31 items to inspect, including the operator's certification, equipment inspection stickers, tires,. This document will state if the crane is safe to operate in all positions (360 degree) with the crane manufacturers supplied load chart or if the. It lists 24 items that are to be inspected on a daily basis, including engine oil and. Boom truck daily inspection checklist. The document is a daily inspection checklist for a boom truck. After the last day (= friday), the checklist must be signed by the equipment. This document is a daily inspection checklist for a boom truck. By hse documents on november 25, 2020 in downloads.
from www.scribd.com
By hse documents on november 25, 2020 in downloads. After the last day (= friday), the checklist must be signed by the equipment. This document will state if the crane is safe to operate in all positions (360 degree) with the crane manufacturers supplied load chart or if the. It lists 24 items that are to be inspected on a daily basis, including engine oil and. Boom truck daily inspection checklist. It lists 31 items to inspect, including the operator's certification, equipment inspection stickers, tires,. This document is a daily inspection checklist for a boom truck. The document is a daily inspection checklist for a boom truck. While preparing boom truck daily inspection checklist, use the.
Boom Truck Hiab Inspection Checklist
Boom Truck Daily Inspection Checklist By hse documents on november 25, 2020 in downloads. By hse documents on november 25, 2020 in downloads. While preparing boom truck daily inspection checklist, use the. This document will state if the crane is safe to operate in all positions (360 degree) with the crane manufacturers supplied load chart or if the. It lists 24 items that are to be inspected on a daily basis, including engine oil and. It lists 31 items to inspect, including the operator's certification, equipment inspection stickers, tires,. Boom truck daily inspection checklist. After the last day (= friday), the checklist must be signed by the equipment. This document is a daily inspection checklist for a boom truck. The document is a daily inspection checklist for a boom truck.
From www.scribd.com
Bucket Truck Inspection Checklist PDF Truck Vehicles Boom Truck Daily Inspection Checklist Boom truck daily inspection checklist. After the last day (= friday), the checklist must be signed by the equipment. It lists 24 items that are to be inspected on a daily basis, including engine oil and. While preparing boom truck daily inspection checklist, use the. The document is a daily inspection checklist for a boom truck. By hse documents on. Boom Truck Daily Inspection Checklist.
From www.scribd.com
Boom Truck Daily Inspection Checklist PDF Boom Truck Daily Inspection Checklist It lists 31 items to inspect, including the operator's certification, equipment inspection stickers, tires,. This document is a daily inspection checklist for a boom truck. By hse documents on november 25, 2020 in downloads. While preparing boom truck daily inspection checklist, use the. This document will state if the crane is safe to operate in all positions (360 degree) with. Boom Truck Daily Inspection Checklist.
From www.scribd.com
Boom Truck Inspection Checklist PDF Boom Truck Daily Inspection Checklist It lists 24 items that are to be inspected on a daily basis, including engine oil and. This document is a daily inspection checklist for a boom truck. While preparing boom truck daily inspection checklist, use the. This document will state if the crane is safe to operate in all positions (360 degree) with the crane manufacturers supplied load chart. Boom Truck Daily Inspection Checklist.
From utilityequipmentparts.com
Daily Bucket Truck PreOperations Check page buckettruckpartsUtility Boom Truck Daily Inspection Checklist Boom truck daily inspection checklist. While preparing boom truck daily inspection checklist, use the. By hse documents on november 25, 2020 in downloads. After the last day (= friday), the checklist must be signed by the equipment. This document is a daily inspection checklist for a boom truck. The document is a daily inspection checklist for a boom truck. This. Boom Truck Daily Inspection Checklist.
From sitemate.com
Bucket Truck Inspection Checklist Template for bucket trucks Boom Truck Daily Inspection Checklist The document is a daily inspection checklist for a boom truck. It lists 24 items that are to be inspected on a daily basis, including engine oil and. It lists 31 items to inspect, including the operator's certification, equipment inspection stickers, tires,. This document will state if the crane is safe to operate in all positions (360 degree) with the. Boom Truck Daily Inspection Checklist.
From www.scribd.com
Boom Truck Daily Inspection Checklist PDF Boom Truck Daily Inspection Checklist Boom truck daily inspection checklist. It lists 24 items that are to be inspected on a daily basis, including engine oil and. While preparing boom truck daily inspection checklist, use the. After the last day (= friday), the checklist must be signed by the equipment. It lists 31 items to inspect, including the operator's certification, equipment inspection stickers, tires,. This. Boom Truck Daily Inspection Checklist.
From pdfcoffee.com
Boom Truck Inspection ChecklistDaily.. Boom Truck Daily Inspection Checklist This document will state if the crane is safe to operate in all positions (360 degree) with the crane manufacturers supplied load chart or if the. While preparing boom truck daily inspection checklist, use the. After the last day (= friday), the checklist must be signed by the equipment. This document is a daily inspection checklist for a boom truck.. Boom Truck Daily Inspection Checklist.
From www.pdffiller.com
Fillable Online Boom Truck Daily Inspection Checklist Fax Email Print Boom Truck Daily Inspection Checklist It lists 31 items to inspect, including the operator's certification, equipment inspection stickers, tires,. After the last day (= friday), the checklist must be signed by the equipment. This document will state if the crane is safe to operate in all positions (360 degree) with the crane manufacturers supplied load chart or if the. The document is a daily inspection. Boom Truck Daily Inspection Checklist.
From www.amazon.com
MEWP Daily Inspection Checklist Log Book Mobile Elevating Work Boom Truck Daily Inspection Checklist After the last day (= friday), the checklist must be signed by the equipment. By hse documents on november 25, 2020 in downloads. It lists 24 items that are to be inspected on a daily basis, including engine oil and. Boom truck daily inspection checklist. It lists 31 items to inspect, including the operator's certification, equipment inspection stickers, tires,. The. Boom Truck Daily Inspection Checklist.
From www.scribd.com
Boom Truck Daily Inspection Checklist PDF Boom Truck Daily Inspection Checklist It lists 31 items to inspect, including the operator's certification, equipment inspection stickers, tires,. It lists 24 items that are to be inspected on a daily basis, including engine oil and. This document will state if the crane is safe to operate in all positions (360 degree) with the crane manufacturers supplied load chart or if the. By hse documents. Boom Truck Daily Inspection Checklist.
From www.scribd.com
Checklist For Equipment Inspection BOOM PLACER PDF Boom Truck Daily Inspection Checklist After the last day (= friday), the checklist must be signed by the equipment. It lists 24 items that are to be inspected on a daily basis, including engine oil and. While preparing boom truck daily inspection checklist, use the. Boom truck daily inspection checklist. The document is a daily inspection checklist for a boom truck. This document is a. Boom Truck Daily Inspection Checklist.
From mungfali.com
Boom Truck Inspection Checklist Boom Truck Daily Inspection Checklist After the last day (= friday), the checklist must be signed by the equipment. While preparing boom truck daily inspection checklist, use the. By hse documents on november 25, 2020 in downloads. It lists 24 items that are to be inspected on a daily basis, including engine oil and. The document is a daily inspection checklist for a boom truck.. Boom Truck Daily Inspection Checklist.
From www.hsedocuments.com
Boom Truck Daily Inspection Checklist HSE Documents Boom Truck Daily Inspection Checklist By hse documents on november 25, 2020 in downloads. Boom truck daily inspection checklist. The document is a daily inspection checklist for a boom truck. This document is a daily inspection checklist for a boom truck. It lists 24 items that are to be inspected on a daily basis, including engine oil and. This document will state if the crane. Boom Truck Daily Inspection Checklist.
From mungfali.com
Boom Truck Inspection Checklist Boom Truck Daily Inspection Checklist By hse documents on november 25, 2020 in downloads. After the last day (= friday), the checklist must be signed by the equipment. It lists 24 items that are to be inspected on a daily basis, including engine oil and. This document will state if the crane is safe to operate in all positions (360 degree) with the crane manufacturers. Boom Truck Daily Inspection Checklist.
From www.scribd.com
Boom Truck Hiab Inspection Checklist Boom Truck Daily Inspection Checklist It lists 31 items to inspect, including the operator's certification, equipment inspection stickers, tires,. This document is a daily inspection checklist for a boom truck. By hse documents on november 25, 2020 in downloads. The document is a daily inspection checklist for a boom truck. Boom truck daily inspection checklist. After the last day (= friday), the checklist must be. Boom Truck Daily Inspection Checklist.
From www.scribd.com
Boom Truck Daily Inspection PDF Boom Truck Daily Inspection Checklist After the last day (= friday), the checklist must be signed by the equipment. This document will state if the crane is safe to operate in all positions (360 degree) with the crane manufacturers supplied load chart or if the. It lists 31 items to inspect, including the operator's certification, equipment inspection stickers, tires,. Boom truck daily inspection checklist. By. Boom Truck Daily Inspection Checklist.
From www.scribd.com
Boom Truck Daily Inspection PDF Boom Truck Daily Inspection Checklist By hse documents on november 25, 2020 in downloads. This document will state if the crane is safe to operate in all positions (360 degree) with the crane manufacturers supplied load chart or if the. The document is a daily inspection checklist for a boom truck. It lists 24 items that are to be inspected on a daily basis, including. Boom Truck Daily Inspection Checklist.
From mungfali.com
Boom Truck Inspection Checklist Boom Truck Daily Inspection Checklist Boom truck daily inspection checklist. This document will state if the crane is safe to operate in all positions (360 degree) with the crane manufacturers supplied load chart or if the. After the last day (= friday), the checklist must be signed by the equipment. By hse documents on november 25, 2020 in downloads. This document is a daily inspection. Boom Truck Daily Inspection Checklist.
From www.vrogue.co
Boom Truck Inspection Checklist Pdf vrogue.co Boom Truck Daily Inspection Checklist This document will state if the crane is safe to operate in all positions (360 degree) with the crane manufacturers supplied load chart or if the. It lists 24 items that are to be inspected on a daily basis, including engine oil and. The document is a daily inspection checklist for a boom truck. By hse documents on november 25,. Boom Truck Daily Inspection Checklist.
From www.pinterest.com
Aerial Lift Platform Daily Checklist Refill Aerial lift, Daily Boom Truck Daily Inspection Checklist The document is a daily inspection checklist for a boom truck. Boom truck daily inspection checklist. While preparing boom truck daily inspection checklist, use the. After the last day (= friday), the checklist must be signed by the equipment. This document will state if the crane is safe to operate in all positions (360 degree) with the crane manufacturers supplied. Boom Truck Daily Inspection Checklist.
From www.scribd.com
HSE Inspection Form 2.1.1 Boom Truck Daily Inspection Checklist Rev B Boom Truck Daily Inspection Checklist By hse documents on november 25, 2020 in downloads. While preparing boom truck daily inspection checklist, use the. After the last day (= friday), the checklist must be signed by the equipment. It lists 31 items to inspect, including the operator's certification, equipment inspection stickers, tires,. This document is a daily inspection checklist for a boom truck. Boom truck daily. Boom Truck Daily Inspection Checklist.
From www.slideshare.net
Daily mobile crane inspection checklist Boom Truck Daily Inspection Checklist The document is a daily inspection checklist for a boom truck. This document will state if the crane is safe to operate in all positions (360 degree) with the crane manufacturers supplied load chart or if the. It lists 24 items that are to be inspected on a daily basis, including engine oil and. This document is a daily inspection. Boom Truck Daily Inspection Checklist.
From 1streporting.com
A Boom Truck Inspection Checklist For Service Teams 1st Reporting Boom Truck Daily Inspection Checklist Boom truck daily inspection checklist. This document will state if the crane is safe to operate in all positions (360 degree) with the crane manufacturers supplied load chart or if the. It lists 31 items to inspect, including the operator's certification, equipment inspection stickers, tires,. By hse documents on november 25, 2020 in downloads. After the last day (= friday),. Boom Truck Daily Inspection Checklist.
From www.scribd.com
10.boom Lift Inspection Checklist PDF Boom Truck Daily Inspection Checklist It lists 24 items that are to be inspected on a daily basis, including engine oil and. This document is a daily inspection checklist for a boom truck. This document will state if the crane is safe to operate in all positions (360 degree) with the crane manufacturers supplied load chart or if the. Boom truck daily inspection checklist. After. Boom Truck Daily Inspection Checklist.
From www.desertcart.in
Buy Boom Truck (Annual Inspection Checklist) Online at desertcartINDIA Boom Truck Daily Inspection Checklist While preparing boom truck daily inspection checklist, use the. It lists 24 items that are to be inspected on a daily basis, including engine oil and. By hse documents on november 25, 2020 in downloads. After the last day (= friday), the checklist must be signed by the equipment. Boom truck daily inspection checklist. This document is a daily inspection. Boom Truck Daily Inspection Checklist.
From mavink.com
Boom Truck Inspection Form Printable Boom Truck Daily Inspection Checklist It lists 24 items that are to be inspected on a daily basis, including engine oil and. After the last day (= friday), the checklist must be signed by the equipment. Boom truck daily inspection checklist. This document will state if the crane is safe to operate in all positions (360 degree) with the crane manufacturers supplied load chart or. Boom Truck Daily Inspection Checklist.
From mavink.com
Boom Truck Inspection Form Printable Boom Truck Daily Inspection Checklist By hse documents on november 25, 2020 in downloads. It lists 31 items to inspect, including the operator's certification, equipment inspection stickers, tires,. This document will state if the crane is safe to operate in all positions (360 degree) with the crane manufacturers supplied load chart or if the. It lists 24 items that are to be inspected on a. Boom Truck Daily Inspection Checklist.
From www.scribd.com
PreUse Inspection Checklist Boom Truck PDF Crane (Machine Boom Truck Daily Inspection Checklist Boom truck daily inspection checklist. While preparing boom truck daily inspection checklist, use the. By hse documents on november 25, 2020 in downloads. This document will state if the crane is safe to operate in all positions (360 degree) with the crane manufacturers supplied load chart or if the. This document is a daily inspection checklist for a boom truck.. Boom Truck Daily Inspection Checklist.
From www.scribd.com
Mobile Crane or Boom Truck Checklist Rev4 Crane (Machine) Industries Boom Truck Daily Inspection Checklist This document is a daily inspection checklist for a boom truck. This document will state if the crane is safe to operate in all positions (360 degree) with the crane manufacturers supplied load chart or if the. It lists 24 items that are to be inspected on a daily basis, including engine oil and. The document is a daily inspection. Boom Truck Daily Inspection Checklist.
From www.amazon.ae
MEWP Daily Inspection Checklist Log Book Mobile Elevating Work Boom Truck Daily Inspection Checklist It lists 24 items that are to be inspected on a daily basis, including engine oil and. This document will state if the crane is safe to operate in all positions (360 degree) with the crane manufacturers supplied load chart or if the. By hse documents on november 25, 2020 in downloads. It lists 31 items to inspect, including the. Boom Truck Daily Inspection Checklist.
From www.scribd.com
Boom Truck Inspection ChecklistDaily.. PDF Boom Truck Daily Inspection Checklist The document is a daily inspection checklist for a boom truck. By hse documents on november 25, 2020 in downloads. It lists 31 items to inspect, including the operator's certification, equipment inspection stickers, tires,. This document is a daily inspection checklist for a boom truck. This document will state if the crane is safe to operate in all positions (360. Boom Truck Daily Inspection Checklist.
From www.nationwidecranetraining.com
Free Downloadable Daily and Monthly Mobile Crane Inspection Checklists Boom Truck Daily Inspection Checklist After the last day (= friday), the checklist must be signed by the equipment. This document will state if the crane is safe to operate in all positions (360 degree) with the crane manufacturers supplied load chart or if the. It lists 31 items to inspect, including the operator's certification, equipment inspection stickers, tires,. This document is a daily inspection. Boom Truck Daily Inspection Checklist.
From truck-inspection-checklist.pdffiller.com
Boom Truck Inspection Form Fill Online, Printable, Fillable, Blank Boom Truck Daily Inspection Checklist This document is a daily inspection checklist for a boom truck. This document will state if the crane is safe to operate in all positions (360 degree) with the crane manufacturers supplied load chart or if the. The document is a daily inspection checklist for a boom truck. While preparing boom truck daily inspection checklist, use the. Boom truck daily. Boom Truck Daily Inspection Checklist.
From mavink.com
Boom Truck Inspection Form Printable Boom Truck Daily Inspection Checklist This document will state if the crane is safe to operate in all positions (360 degree) with the crane manufacturers supplied load chart or if the. It lists 31 items to inspect, including the operator's certification, equipment inspection stickers, tires,. Boom truck daily inspection checklist. After the last day (= friday), the checklist must be signed by the equipment. It. Boom Truck Daily Inspection Checklist.
From www.scribd.com
Boom Truck Inspection by OperatorMonthly PDF Boom Truck Daily Inspection Checklist It lists 31 items to inspect, including the operator's certification, equipment inspection stickers, tires,. It lists 24 items that are to be inspected on a daily basis, including engine oil and. The document is a daily inspection checklist for a boom truck. This document is a daily inspection checklist for a boom truck. After the last day (= friday), the. Boom Truck Daily Inspection Checklist.