Recessed Lights Amp Draw . In preparation for your recessed lighting project, you will. The illuminance (in lux) describes the desired brightness in the room from all available light sources. Led lights lower the risks of overload, risky and power. The lux value stands for lumens per. how to layout recessed lighting in 5 simple steps. the calculator determines the number of recessed lights needed for a room based on the room’s dimensions and the desired. calculating the amp load of led lights and understanding your power load and breakers. A simple formula for calculating amps is to take the watts and divide that by the volts. amp draw refers to the amount of electrical current that an led recessed light fixture consumes when it is in operation. The 0.14a rating (or va divided by your line voltage) indicates the maximum amps it might draw. So, for instance, if the wattage of.
from guidelibunderboard.z21.web.core.windows.net
In preparation for your recessed lighting project, you will. The 0.14a rating (or va divided by your line voltage) indicates the maximum amps it might draw. A simple formula for calculating amps is to take the watts and divide that by the volts. So, for instance, if the wattage of. calculating the amp load of led lights and understanding your power load and breakers. Led lights lower the risks of overload, risky and power. the calculator determines the number of recessed lights needed for a room based on the room’s dimensions and the desired. amp draw refers to the amount of electrical current that an led recessed light fixture consumes when it is in operation. The lux value stands for lumens per. The illuminance (in lux) describes the desired brightness in the room from all available light sources.
Wiring Recessed Lights In Parallel Diagram
Recessed Lights Amp Draw A simple formula for calculating amps is to take the watts and divide that by the volts. amp draw refers to the amount of electrical current that an led recessed light fixture consumes when it is in operation. The 0.14a rating (or va divided by your line voltage) indicates the maximum amps it might draw. In preparation for your recessed lighting project, you will. The illuminance (in lux) describes the desired brightness in the room from all available light sources. The lux value stands for lumens per. Led lights lower the risks of overload, risky and power. the calculator determines the number of recessed lights needed for a room based on the room’s dimensions and the desired. how to layout recessed lighting in 5 simple steps. calculating the amp load of led lights and understanding your power load and breakers. So, for instance, if the wattage of. A simple formula for calculating amps is to take the watts and divide that by the volts.
From exoajvkhp.blob.core.windows.net
How Many Amps Does A Recessed Lights Pull at Bobby Titus blog Recessed Lights Amp Draw A simple formula for calculating amps is to take the watts and divide that by the volts. In preparation for your recessed lighting project, you will. how to layout recessed lighting in 5 simple steps. The lux value stands for lumens per. The illuminance (in lux) describes the desired brightness in the room from all available light sources. . Recessed Lights Amp Draw.
From www.pinterest.com
What's My RV Appliance Amp Draw? (with Charts for 12V and 120V Loads Recessed Lights Amp Draw Led lights lower the risks of overload, risky and power. calculating the amp load of led lights and understanding your power load and breakers. In preparation for your recessed lighting project, you will. the calculator determines the number of recessed lights needed for a room based on the room’s dimensions and the desired. how to layout recessed. Recessed Lights Amp Draw.
From schematiclibscopate77.z22.web.core.windows.net
How To Tell The Amperage Of An Outlet Recessed Lights Amp Draw how to layout recessed lighting in 5 simple steps. A simple formula for calculating amps is to take the watts and divide that by the volts. calculating the amp load of led lights and understanding your power load and breakers. The illuminance (in lux) describes the desired brightness in the room from all available light sources. The lux. Recessed Lights Amp Draw.
From www.brightlighthub.com
How Many Amps Do Led Lights Draw [Simplified Answer] Recessed Lights Amp Draw how to layout recessed lighting in 5 simple steps. A simple formula for calculating amps is to take the watts and divide that by the volts. The 0.14a rating (or va divided by your line voltage) indicates the maximum amps it might draw. Led lights lower the risks of overload, risky and power. In preparation for your recessed lighting. Recessed Lights Amp Draw.
From diagramlibgrolutdn6.z13.web.core.windows.net
How To Convert Fluorescent Lights To Led Recessed Lights Amp Draw the calculator determines the number of recessed lights needed for a room based on the room’s dimensions and the desired. A simple formula for calculating amps is to take the watts and divide that by the volts. The 0.14a rating (or va divided by your line voltage) indicates the maximum amps it might draw. how to layout recessed. Recessed Lights Amp Draw.
From www.disposeofthings.com
How Many Amps Does a LED Light Bulb Draw? Recessed Lights Amp Draw amp draw refers to the amount of electrical current that an led recessed light fixture consumes when it is in operation. So, for instance, if the wattage of. The illuminance (in lux) describes the desired brightness in the room from all available light sources. the calculator determines the number of recessed lights needed for a room based on. Recessed Lights Amp Draw.
From www.pinterest.com
Recessed Lighting Fixtures Large Selection of Recessed Can Lights Recessed Lights Amp Draw The lux value stands for lumens per. The 0.14a rating (or va divided by your line voltage) indicates the maximum amps it might draw. calculating the amp load of led lights and understanding your power load and breakers. So, for instance, if the wattage of. how to layout recessed lighting in 5 simple steps. amp draw refers. Recessed Lights Amp Draw.
From schematicviciosinfin17.z22.web.core.windows.net
How To Wire Recessed Lights Recessed Lights Amp Draw The lux value stands for lumens per. The illuminance (in lux) describes the desired brightness in the room from all available light sources. A simple formula for calculating amps is to take the watts and divide that by the volts. The 0.14a rating (or va divided by your line voltage) indicates the maximum amps it might draw. amp draw. Recessed Lights Amp Draw.
From exohxanqx.blob.core.windows.net
Smart Gimbal Recessed Lighting at Jacqualine Barney blog Recessed Lights Amp Draw how to layout recessed lighting in 5 simple steps. In preparation for your recessed lighting project, you will. A simple formula for calculating amps is to take the watts and divide that by the volts. So, for instance, if the wattage of. The illuminance (in lux) describes the desired brightness in the room from all available light sources. . Recessed Lights Amp Draw.
From circuitdbdiverged.z13.web.core.windows.net
5 Wiring Diagram Recessed Lights Recessed Lights Amp Draw amp draw refers to the amount of electrical current that an led recessed light fixture consumes when it is in operation. the calculator determines the number of recessed lights needed for a room based on the room’s dimensions and the desired. The 0.14a rating (or va divided by your line voltage) indicates the maximum amps it might draw.. Recessed Lights Amp Draw.
From www.superbrightleds.com
2.5" Recessed LED Puck Lights 170 Lumens Super Bright LEDs Recessed Lights Amp Draw Led lights lower the risks of overload, risky and power. The 0.14a rating (or va divided by your line voltage) indicates the maximum amps it might draw. So, for instance, if the wattage of. A simple formula for calculating amps is to take the watts and divide that by the volts. the calculator determines the number of recessed lights. Recessed Lights Amp Draw.
From cwimports.com.au
12 Watt Marine Flood Light, code; led4x3FlMar CW Imports Recessed Lights Amp Draw A simple formula for calculating amps is to take the watts and divide that by the volts. The lux value stands for lumens per. So, for instance, if the wattage of. the calculator determines the number of recessed lights needed for a room based on the room’s dimensions and the desired. amp draw refers to the amount of. Recessed Lights Amp Draw.
From www.theelectricconnection.com
Can Recessed Lighting Touch Insulation Recessed Lights Amp Draw A simple formula for calculating amps is to take the watts and divide that by the volts. The 0.14a rating (or va divided by your line voltage) indicates the maximum amps it might draw. Led lights lower the risks of overload, risky and power. So, for instance, if the wattage of. how to layout recessed lighting in 5 simple. Recessed Lights Amp Draw.
From exointpop.blob.core.windows.net
How Many Amps Does A 3 Watt Led Draw at Thomas Harden blog Recessed Lights Amp Draw the calculator determines the number of recessed lights needed for a room based on the room’s dimensions and the desired. The illuminance (in lux) describes the desired brightness in the room from all available light sources. So, for instance, if the wattage of. amp draw refers to the amount of electrical current that an led recessed light fixture. Recessed Lights Amp Draw.
From fixlibraryspomenagt.z13.web.core.windows.net
What Is The Max Wattage For A 15 Amp Circuit Recessed Lights Amp Draw So, for instance, if the wattage of. Led lights lower the risks of overload, risky and power. The 0.14a rating (or va divided by your line voltage) indicates the maximum amps it might draw. calculating the amp load of led lights and understanding your power load and breakers. The lux value stands for lumens per. the calculator determines. Recessed Lights Amp Draw.
From www.pinterest.com
Accessory 120V 2.5Amp WRecessed Track Flangeless Live End Right Recessed Lights Amp Draw So, for instance, if the wattage of. the calculator determines the number of recessed lights needed for a room based on the room’s dimensions and the desired. calculating the amp load of led lights and understanding your power load and breakers. In preparation for your recessed lighting project, you will. how to layout recessed lighting in 5. Recessed Lights Amp Draw.
From guidediagramdubbing.z22.web.core.windows.net
Recessed Led Lighting Layout Guide Recessed Lights Amp Draw A simple formula for calculating amps is to take the watts and divide that by the volts. the calculator determines the number of recessed lights needed for a room based on the room’s dimensions and the desired. In preparation for your recessed lighting project, you will. amp draw refers to the amount of electrical current that an led. Recessed Lights Amp Draw.
From www.dreamstime.com
Vector Illustration of Modern Ceiling Lamp. Flat Icon of Recessed Light Recessed Lights Amp Draw calculating the amp load of led lights and understanding your power load and breakers. The 0.14a rating (or va divided by your line voltage) indicates the maximum amps it might draw. A simple formula for calculating amps is to take the watts and divide that by the volts. The illuminance (in lux) describes the desired brightness in the room. Recessed Lights Amp Draw.
From schematicpindololjl.z14.web.core.windows.net
Minn Kota 36v Trolling Motor Amp Draw Recessed Lights Amp Draw So, for instance, if the wattage of. calculating the amp load of led lights and understanding your power load and breakers. The lux value stands for lumens per. In preparation for your recessed lighting project, you will. A simple formula for calculating amps is to take the watts and divide that by the volts. how to layout recessed. Recessed Lights Amp Draw.
From www.dal-uk.com
DAL Designed Architectural Lighting Recessed Lights Amp Draw In preparation for your recessed lighting project, you will. the calculator determines the number of recessed lights needed for a room based on the room’s dimensions and the desired. how to layout recessed lighting in 5 simple steps. The 0.14a rating (or va divided by your line voltage) indicates the maximum amps it might draw. So, for instance,. Recessed Lights Amp Draw.
From seppanvschematic.z4.web.core.windows.net
Light Outlet Symbol Recessed Lights Amp Draw The lux value stands for lumens per. how to layout recessed lighting in 5 simple steps. calculating the amp load of led lights and understanding your power load and breakers. So, for instance, if the wattage of. Led lights lower the risks of overload, risky and power. the calculator determines the number of recessed lights needed for. Recessed Lights Amp Draw.
From schematicnalematis1.z22.web.core.windows.net
Wiring Led Recessed Lights In Series Recessed Lights Amp Draw how to layout recessed lighting in 5 simple steps. The illuminance (in lux) describes the desired brightness in the room from all available light sources. The lux value stands for lumens per. The 0.14a rating (or va divided by your line voltage) indicates the maximum amps it might draw. In preparation for your recessed lighting project, you will. So,. Recessed Lights Amp Draw.
From inf-inet.com
Bathroom Recessed Lighting Placement Recessed Lights Amp Draw The 0.14a rating (or va divided by your line voltage) indicates the maximum amps it might draw. the calculator determines the number of recessed lights needed for a room based on the room’s dimensions and the desired. A simple formula for calculating amps is to take the watts and divide that by the volts. The lux value stands for. Recessed Lights Amp Draw.
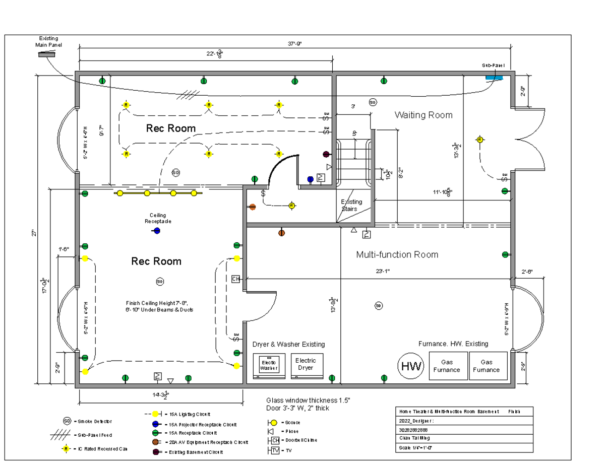
From www.studocu.com
Drawing 2D 20230529 cat Part practice Home Theater & Multifunction Recessed Lights Amp Draw The 0.14a rating (or va divided by your line voltage) indicates the maximum amps it might draw. amp draw refers to the amount of electrical current that an led recessed light fixture consumes when it is in operation. how to layout recessed lighting in 5 simple steps. A simple formula for calculating amps is to take the watts. Recessed Lights Amp Draw.
From seppanvschematic.z4.web.core.windows.net
How To Set Up 3 Way Switch Recessed Lights Amp Draw The 0.14a rating (or va divided by your line voltage) indicates the maximum amps it might draw. The lux value stands for lumens per. Led lights lower the risks of overload, risky and power. amp draw refers to the amount of electrical current that an led recessed light fixture consumes when it is in operation. how to layout. Recessed Lights Amp Draw.
From wirepartpenetrates.z21.web.core.windows.net
Wiring Diagram For Recessed Lights Recessed Lights Amp Draw The lux value stands for lumens per. calculating the amp load of led lights and understanding your power load and breakers. The illuminance (in lux) describes the desired brightness in the room from all available light sources. Led lights lower the risks of overload, risky and power. In preparation for your recessed lighting project, you will. amp draw. Recessed Lights Amp Draw.
From freecadfloorplans.com
Recessed Ceiling Lights Free CAD Drawings Recessed Lights Amp Draw the calculator determines the number of recessed lights needed for a room based on the room’s dimensions and the desired. calculating the amp load of led lights and understanding your power load and breakers. how to layout recessed lighting in 5 simple steps. The 0.14a rating (or va divided by your line voltage) indicates the maximum amps. Recessed Lights Amp Draw.
From leewaskewblog.s3.amazonaws.com
How Many Amps Does A Recessed Lights Pull Lee Askew blog Recessed Lights Amp Draw In preparation for your recessed lighting project, you will. amp draw refers to the amount of electrical current that an led recessed light fixture consumes when it is in operation. So, for instance, if the wattage of. how to layout recessed lighting in 5 simple steps. calculating the amp load of led lights and understanding your power. Recessed Lights Amp Draw.
From makenafersbenton.blogspot.com
How Many Recessed Led Lights on a 15 Amp Circuit Recessed Lights Amp Draw how to layout recessed lighting in 5 simple steps. The lux value stands for lumens per. In preparation for your recessed lighting project, you will. The 0.14a rating (or va divided by your line voltage) indicates the maximum amps it might draw. So, for instance, if the wattage of. A simple formula for calculating amps is to take the. Recessed Lights Amp Draw.
From diagramlibgrolutdn6.z13.web.core.windows.net
How To Convert Fluorescent Lights To Led Recessed Lights Amp Draw The lux value stands for lumens per. In preparation for your recessed lighting project, you will. the calculator determines the number of recessed lights needed for a room based on the room’s dimensions and the desired. how to layout recessed lighting in 5 simple steps. Led lights lower the risks of overload, risky and power. amp draw. Recessed Lights Amp Draw.
From www.houzz.com
Recessed lighting layout Recessed Lights Amp Draw how to layout recessed lighting in 5 simple steps. The illuminance (in lux) describes the desired brightness in the room from all available light sources. amp draw refers to the amount of electrical current that an led recessed light fixture consumes when it is in operation. In preparation for your recessed lighting project, you will. the calculator. Recessed Lights Amp Draw.
From schematicsatirics0p.z14.web.core.windows.net
Wiring Recessed Lights In Series Diagram Recessed Lights Amp Draw The illuminance (in lux) describes the desired brightness in the room from all available light sources. amp draw refers to the amount of electrical current that an led recessed light fixture consumes when it is in operation. The lux value stands for lumens per. The 0.14a rating (or va divided by your line voltage) indicates the maximum amps it. Recessed Lights Amp Draw.
From www.rvrepairclub.com
Amp Draw Difference between LED and Incandescent Bulbs Recessed Lights Amp Draw The illuminance (in lux) describes the desired brightness in the room from all available light sources. The 0.14a rating (or va divided by your line voltage) indicates the maximum amps it might draw. A simple formula for calculating amps is to take the watts and divide that by the volts. So, for instance, if the wattage of. how to. Recessed Lights Amp Draw.
From guidelibunderboard.z21.web.core.windows.net
Wiring Recessed Lights In Parallel Diagram Recessed Lights Amp Draw The lux value stands for lumens per. the calculator determines the number of recessed lights needed for a room based on the room’s dimensions and the desired. So, for instance, if the wattage of. In preparation for your recessed lighting project, you will. calculating the amp load of led lights and understanding your power load and breakers. . Recessed Lights Amp Draw.
From americanwarmoms.org
Wiring Diagrams For 6 Recessed Lighting In Series Recessed Lights Amp Draw The 0.14a rating (or va divided by your line voltage) indicates the maximum amps it might draw. how to layout recessed lighting in 5 simple steps. calculating the amp load of led lights and understanding your power load and breakers. the calculator determines the number of recessed lights needed for a room based on the room’s dimensions. Recessed Lights Amp Draw.