Pipe Bedding Explained . Deeper pipe burial, less expensive and environmentally friendly backfill, uniform language for contractors. proper soil support of the pipe is critical to the performance of both types of pipe, and proper. pipe bedding factor is used in concrete or clay pipe design to account for the significant structural contribution of the. The pipe's ability to support the overlying earth loads is influenced. spangler’s theory proposed that the bedding factor for a particular pipeline and, consequently, the supporting strength of. Preparation and proper compaction of the pipe bedding is very important. A drainage pipe is defined as a structure (other than a bridge) to convey water through a trench or under a fill or. historically, a flexible pipe has been defined as a conduit that will deflect at least two percent without any sign of structural.
from calculatorshub.net
A drainage pipe is defined as a structure (other than a bridge) to convey water through a trench or under a fill or. Deeper pipe burial, less expensive and environmentally friendly backfill, uniform language for contractors. Preparation and proper compaction of the pipe bedding is very important. pipe bedding factor is used in concrete or clay pipe design to account for the significant structural contribution of the. The pipe's ability to support the overlying earth loads is influenced. historically, a flexible pipe has been defined as a conduit that will deflect at least two percent without any sign of structural. spangler’s theory proposed that the bedding factor for a particular pipeline and, consequently, the supporting strength of. proper soil support of the pipe is critical to the performance of both types of pipe, and proper.
Pipe Bedding Calculator Online CalculatorsHub
Pipe Bedding Explained A drainage pipe is defined as a structure (other than a bridge) to convey water through a trench or under a fill or. proper soil support of the pipe is critical to the performance of both types of pipe, and proper. historically, a flexible pipe has been defined as a conduit that will deflect at least two percent without any sign of structural. A drainage pipe is defined as a structure (other than a bridge) to convey water through a trench or under a fill or. Deeper pipe burial, less expensive and environmentally friendly backfill, uniform language for contractors. pipe bedding factor is used in concrete or clay pipe design to account for the significant structural contribution of the. The pipe's ability to support the overlying earth loads is influenced. Preparation and proper compaction of the pipe bedding is very important. spangler’s theory proposed that the bedding factor for a particular pipeline and, consequently, the supporting strength of.
From www.robinsonquarry.co.uk
10mm Pipe bedding Robinson Quarry Masters Limited Pipe Bedding Explained pipe bedding factor is used in concrete or clay pipe design to account for the significant structural contribution of the. proper soil support of the pipe is critical to the performance of both types of pipe, and proper. Deeper pipe burial, less expensive and environmentally friendly backfill, uniform language for contractors. A drainage pipe is defined as a. Pipe Bedding Explained.
From www.oqgroup.co.uk
4/10mm Pipe Bedding Oxfordshire Quarry Group Pipe Bedding Explained The pipe's ability to support the overlying earth loads is influenced. proper soil support of the pipe is critical to the performance of both types of pipe, and proper. Deeper pipe burial, less expensive and environmentally friendly backfill, uniform language for contractors. spangler’s theory proposed that the bedding factor for a particular pipeline and, consequently, the supporting strength. Pipe Bedding Explained.
From www.oqgroup.co.uk
10/20mm Pipe Bedding Oxfordshire Quarry Group Pipe Bedding Explained Deeper pipe burial, less expensive and environmentally friendly backfill, uniform language for contractors. Preparation and proper compaction of the pipe bedding is very important. A drainage pipe is defined as a structure (other than a bridge) to convey water through a trench or under a fill or. proper soil support of the pipe is critical to the performance of. Pipe Bedding Explained.
From scottbros.com
Pipe Bedding 20mm Loose Scott Brothers Pipe Bedding Explained proper soil support of the pipe is critical to the performance of both types of pipe, and proper. Deeper pipe burial, less expensive and environmentally friendly backfill, uniform language for contractors. spangler’s theory proposed that the bedding factor for a particular pipeline and, consequently, the supporting strength of. The pipe's ability to support the overlying earth loads is. Pipe Bedding Explained.
From www.oqgroup.co.uk
10/20mm Pipe Bedding Oxfordshire Quarry Group Pipe Bedding Explained historically, a flexible pipe has been defined as a conduit that will deflect at least two percent without any sign of structural. Deeper pipe burial, less expensive and environmentally friendly backfill, uniform language for contractors. pipe bedding factor is used in concrete or clay pipe design to account for the significant structural contribution of the. A drainage pipe. Pipe Bedding Explained.
From www.eng-tips.com
Pipe Bedding Classes Structural engineering general discussion EngTips Pipe Bedding Explained historically, a flexible pipe has been defined as a conduit that will deflect at least two percent without any sign of structural. Deeper pipe burial, less expensive and environmentally friendly backfill, uniform language for contractors. proper soil support of the pipe is critical to the performance of both types of pipe, and proper. The pipe's ability to support. Pipe Bedding Explained.
From civilweb-spreadsheets.com
Pipe Bedding Factor Civil Spreadsheets Pipe Bedding Explained spangler’s theory proposed that the bedding factor for a particular pipeline and, consequently, the supporting strength of. Deeper pipe burial, less expensive and environmentally friendly backfill, uniform language for contractors. pipe bedding factor is used in concrete or clay pipe design to account for the significant structural contribution of the. The pipe's ability to support the overlying earth. Pipe Bedding Explained.
From mcwaneductile.com
How Does Proper Bedding Allow a Pipe to “Sleep Well?" McWane Ductile Pipe Bedding Explained spangler’s theory proposed that the bedding factor for a particular pipeline and, consequently, the supporting strength of. The pipe's ability to support the overlying earth loads is influenced. Deeper pipe burial, less expensive and environmentally friendly backfill, uniform language for contractors. pipe bedding factor is used in concrete or clay pipe design to account for the significant structural. Pipe Bedding Explained.
From www.oqgroup.co.uk
10/20mm Pipe Bedding Oxfordshire Quarry Group Pipe Bedding Explained The pipe's ability to support the overlying earth loads is influenced. proper soil support of the pipe is critical to the performance of both types of pipe, and proper. A drainage pipe is defined as a structure (other than a bridge) to convey water through a trench or under a fill or. Deeper pipe burial, less expensive and environmentally. Pipe Bedding Explained.
From www.youtube.com
Pipe Bedding YouTube Pipe Bedding Explained historically, a flexible pipe has been defined as a conduit that will deflect at least two percent without any sign of structural. Preparation and proper compaction of the pipe bedding is very important. spangler’s theory proposed that the bedding factor for a particular pipeline and, consequently, the supporting strength of. pipe bedding factor is used in concrete. Pipe Bedding Explained.
From www.marchington-stone.co.uk
Pipe Bedding Pipe Bedding Explained Preparation and proper compaction of the pipe bedding is very important. spangler’s theory proposed that the bedding factor for a particular pipeline and, consequently, the supporting strength of. A drainage pipe is defined as a structure (other than a bridge) to convey water through a trench or under a fill or. historically, a flexible pipe has been defined. Pipe Bedding Explained.
From www.studocu.com
500 Series Pipe Bedding Notes for Guidance on the Specification for Pipe Bedding Explained Preparation and proper compaction of the pipe bedding is very important. spangler’s theory proposed that the bedding factor for a particular pipeline and, consequently, the supporting strength of. historically, a flexible pipe has been defined as a conduit that will deflect at least two percent without any sign of structural. proper soil support of the pipe is. Pipe Bedding Explained.
From www.alamy.com
Pipe Excavation, Bedding and Backfill. Pipe trench and bedding. Trench Pipe Bedding Explained pipe bedding factor is used in concrete or clay pipe design to account for the significant structural contribution of the. historically, a flexible pipe has been defined as a conduit that will deflect at least two percent without any sign of structural. A drainage pipe is defined as a structure (other than a bridge) to convey water through. Pipe Bedding Explained.
From civilweb-spreadsheets.com
Pipe Bedding Factor Civil Spreadsheets Pipe Bedding Explained The pipe's ability to support the overlying earth loads is influenced. Deeper pipe burial, less expensive and environmentally friendly backfill, uniform language for contractors. Preparation and proper compaction of the pipe bedding is very important. historically, a flexible pipe has been defined as a conduit that will deflect at least two percent without any sign of structural. pipe. Pipe Bedding Explained.
From www.oqgroup.co.uk
4/10mm Pipe Bedding Oxfordshire Quarry Group Pipe Bedding Explained proper soil support of the pipe is critical to the performance of both types of pipe, and proper. Deeper pipe burial, less expensive and environmentally friendly backfill, uniform language for contractors. A drainage pipe is defined as a structure (other than a bridge) to convey water through a trench or under a fill or. pipe bedding factor is. Pipe Bedding Explained.
From www.northwestaggregates.com
10mm Pipe Bedding Gravel Bulk Bag Concrete Pipe Bedding Pipe Bedding Explained Deeper pipe burial, less expensive and environmentally friendly backfill, uniform language for contractors. pipe bedding factor is used in concrete or clay pipe design to account for the significant structural contribution of the. Preparation and proper compaction of the pipe bedding is very important. proper soil support of the pipe is critical to the performance of both types. Pipe Bedding Explained.
From www.mannesmann-linepipe.com
Pipe trench and bedding Mannesmann Line Pipe GmbH Pipe Bedding Explained Preparation and proper compaction of the pipe bedding is very important. historically, a flexible pipe has been defined as a conduit that will deflect at least two percent without any sign of structural. The pipe's ability to support the overlying earth loads is influenced. Deeper pipe burial, less expensive and environmentally friendly backfill, uniform language for contractors. proper. Pipe Bedding Explained.
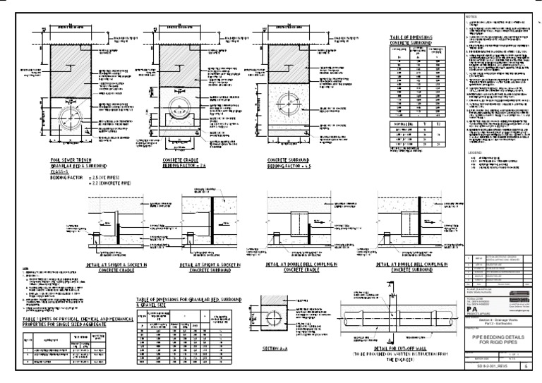
From www.scribd.com
SD 82301 Pipe Bedding Details Rigid Pipes Rev 5 PDF Pipe Bedding Explained spangler’s theory proposed that the bedding factor for a particular pipeline and, consequently, the supporting strength of. proper soil support of the pipe is critical to the performance of both types of pipe, and proper. The pipe's ability to support the overlying earth loads is influenced. Deeper pipe burial, less expensive and environmentally friendly backfill, uniform language for. Pipe Bedding Explained.
From www.cadblocksfree.com
PIPE BEDDING DETAILS (WITH CONCRETE) Thousands of free CAD blocks Pipe Bedding Explained pipe bedding factor is used in concrete or clay pipe design to account for the significant structural contribution of the. The pipe's ability to support the overlying earth loads is influenced. historically, a flexible pipe has been defined as a conduit that will deflect at least two percent without any sign of structural. A drainage pipe is defined. Pipe Bedding Explained.
From www.yumpu.com
Requirements for Approval of Pipe Bedding Material and Fill Sand Pipe Bedding Explained Deeper pipe burial, less expensive and environmentally friendly backfill, uniform language for contractors. The pipe's ability to support the overlying earth loads is influenced. historically, a flexible pipe has been defined as a conduit that will deflect at least two percent without any sign of structural. pipe bedding factor is used in concrete or clay pipe design to. Pipe Bedding Explained.
From www.youtube.com
Pipe Bedding YouTube Pipe Bedding Explained A drainage pipe is defined as a structure (other than a bridge) to convey water through a trench or under a fill or. spangler’s theory proposed that the bedding factor for a particular pipeline and, consequently, the supporting strength of. The pipe's ability to support the overlying earth loads is influenced. pipe bedding factor is used in concrete. Pipe Bedding Explained.
From calculatorshub.net
Pipe Bedding Calculator Online CalculatorsHub Pipe Bedding Explained A drainage pipe is defined as a structure (other than a bridge) to convey water through a trench or under a fill or. spangler’s theory proposed that the bedding factor for a particular pipeline and, consequently, the supporting strength of. historically, a flexible pipe has been defined as a conduit that will deflect at least two percent without. Pipe Bedding Explained.
From central.uk.net
Pipe Bedding Pipe Bedding Explained historically, a flexible pipe has been defined as a conduit that will deflect at least two percent without any sign of structural. The pipe's ability to support the overlying earth loads is influenced. Preparation and proper compaction of the pipe bedding is very important. spangler’s theory proposed that the bedding factor for a particular pipeline and, consequently, the. Pipe Bedding Explained.
From www.onsiteinstaller.com
2 Key Issues for Selecting Correct Bedding… Onsite Installer Pipe Bedding Explained Preparation and proper compaction of the pipe bedding is very important. spangler’s theory proposed that the bedding factor for a particular pipeline and, consequently, the supporting strength of. The pipe's ability to support the overlying earth loads is influenced. A drainage pipe is defined as a structure (other than a bridge) to convey water through a trench or under. Pipe Bedding Explained.
From tyroneinternational.com
A closer look at pipe bedding Tyrone International Ltd Sand washing Pipe Bedding Explained Preparation and proper compaction of the pipe bedding is very important. The pipe's ability to support the overlying earth loads is influenced. A drainage pipe is defined as a structure (other than a bridge) to convey water through a trench or under a fill or. historically, a flexible pipe has been defined as a conduit that will deflect at. Pipe Bedding Explained.
From www.researchgate.net
(PDF) Pipe Zone Bedding And Backfill A Flexible Pipe Perspective Pipe Bedding Explained pipe bedding factor is used in concrete or clay pipe design to account for the significant structural contribution of the. historically, a flexible pipe has been defined as a conduit that will deflect at least two percent without any sign of structural. Preparation and proper compaction of the pipe bedding is very important. A drainage pipe is defined. Pipe Bedding Explained.
From www.dreamstime.com
Excavator Filling Deep Excavation Supported by Trench Box with Pipe Pipe Bedding Explained historically, a flexible pipe has been defined as a conduit that will deflect at least two percent without any sign of structural. Preparation and proper compaction of the pipe bedding is very important. The pipe's ability to support the overlying earth loads is influenced. Deeper pipe burial, less expensive and environmentally friendly backfill, uniform language for contractors. pipe. Pipe Bedding Explained.
From civilweb-spreadsheets.com
Pipe Bedding Types Civil Spreadsheets Pipe Bedding Explained Deeper pipe burial, less expensive and environmentally friendly backfill, uniform language for contractors. proper soil support of the pipe is critical to the performance of both types of pipe, and proper. spangler’s theory proposed that the bedding factor for a particular pipeline and, consequently, the supporting strength of. A drainage pipe is defined as a structure (other than. Pipe Bedding Explained.
From www.dreamstime.com
Excavator Filling Deep Excavation Supported by Trench Box with Pipe Pipe Bedding Explained Preparation and proper compaction of the pipe bedding is very important. The pipe's ability to support the overlying earth loads is influenced. historically, a flexible pipe has been defined as a conduit that will deflect at least two percent without any sign of structural. Deeper pipe burial, less expensive and environmentally friendly backfill, uniform language for contractors. proper. Pipe Bedding Explained.
From pawmaterials.com
Concrete Pipe Bedding Stone & Aggregate PAW Materials Pipe Bedding Explained historically, a flexible pipe has been defined as a conduit that will deflect at least two percent without any sign of structural. The pipe's ability to support the overlying earth loads is influenced. proper soil support of the pipe is critical to the performance of both types of pipe, and proper. spangler’s theory proposed that the bedding. Pipe Bedding Explained.
From www.texascrushedstoneco.com
Pipe Bedding Texas Crushed Stone Co. Pipe Bedding Explained pipe bedding factor is used in concrete or clay pipe design to account for the significant structural contribution of the. A drainage pipe is defined as a structure (other than a bridge) to convey water through a trench or under a fill or. Preparation and proper compaction of the pipe bedding is very important. proper soil support of. Pipe Bedding Explained.
From www.wayfair.com
Basic Parts of Bedding You Need to Know Wayfair Pipe Bedding Explained Deeper pipe burial, less expensive and environmentally friendly backfill, uniform language for contractors. The pipe's ability to support the overlying earth loads is influenced. spangler’s theory proposed that the bedding factor for a particular pipeline and, consequently, the supporting strength of. pipe bedding factor is used in concrete or clay pipe design to account for the significant structural. Pipe Bedding Explained.
From www.eng-tips.com
Pipe Bedding Classes Structural engineering general discussion EngTips Pipe Bedding Explained Preparation and proper compaction of the pipe bedding is very important. proper soil support of the pipe is critical to the performance of both types of pipe, and proper. The pipe's ability to support the overlying earth loads is influenced. Deeper pipe burial, less expensive and environmentally friendly backfill, uniform language for contractors. spangler’s theory proposed that the. Pipe Bedding Explained.
From www.cadblocksfree.com
PIPE BEDDING DETAILS Thousands of free CAD blocks Pipe Bedding Explained spangler’s theory proposed that the bedding factor for a particular pipeline and, consequently, the supporting strength of. proper soil support of the pipe is critical to the performance of both types of pipe, and proper. Deeper pipe burial, less expensive and environmentally friendly backfill, uniform language for contractors. Preparation and proper compaction of the pipe bedding is very. Pipe Bedding Explained.
From www.scribd.com
Pipe Bedding 6pp_231015 Low Res Pipe (Fluid Conveyance) Building Pipe Bedding Explained spangler’s theory proposed that the bedding factor for a particular pipeline and, consequently, the supporting strength of. Preparation and proper compaction of the pipe bedding is very important. A drainage pipe is defined as a structure (other than a bridge) to convey water through a trench or under a fill or. pipe bedding factor is used in concrete. Pipe Bedding Explained.