Carlisle Ma Online Permitting . For utility companies doing work in woburn: Constructing a new home, adding a deck or other building project? Find permitting information from the building department. To access online permitting please click here. 10/20/2024 have a great day. Use this link to create an account in order to use the. The building department is now accepting permit applications online. Apply here for a public utility permit. Apply online, view review status and pay permit fees all from your. The town of carlisle is now using an online permitting program.
from debary.org
For utility companies doing work in woburn: The building department is now accepting permit applications online. Find permitting information from the building department. To access online permitting please click here. Use this link to create an account in order to use the. Constructing a new home, adding a deck or other building project? Apply here for a public utility permit. 10/20/2024 have a great day. The town of carlisle is now using an online permitting program. Apply online, view review status and pay permit fees all from your.
Building Department Online Permitting City of DeBary Florida
Carlisle Ma Online Permitting The building department is now accepting permit applications online. Find permitting information from the building department. Constructing a new home, adding a deck or other building project? Use this link to create an account in order to use the. The town of carlisle is now using an online permitting program. For utility companies doing work in woburn: The building department is now accepting permit applications online. To access online permitting please click here. 10/20/2024 have a great day. Apply here for a public utility permit. Apply online, view review status and pay permit fees all from your.
From www.pdffiller.com
Fillable Online Permitting Requirements and Application Form Buildings Carlisle Ma Online Permitting Constructing a new home, adding a deck or other building project? Find permitting information from the building department. Use this link to create an account in order to use the. For utility companies doing work in woburn: 10/20/2024 have a great day. Apply here for a public utility permit. The town of carlisle is now using an online permitting program.. Carlisle Ma Online Permitting.
From freedomsway.org
Carlisle Freedom's Way National Heritage Area Carlisle Ma Online Permitting To access online permitting please click here. Apply online, view review status and pay permit fees all from your. Constructing a new home, adding a deck or other building project? Use this link to create an account in order to use the. For utility companies doing work in woburn: The town of carlisle is now using an online permitting program.. Carlisle Ma Online Permitting.
From bestneighborhood.org
The Best Neighborhoods in Carlisle, MA by Home Value Carlisle Ma Online Permitting Apply online, view review status and pay permit fees all from your. To access online permitting please click here. The building department is now accepting permit applications online. 10/20/2024 have a great day. Use this link to create an account in order to use the. For utility companies doing work in woburn: Find permitting information from the building department. Constructing. Carlisle Ma Online Permitting.
From www.watertown-ma.gov
Online Permitting Watertown, MA Official site Carlisle Ma Online Permitting The building department is now accepting permit applications online. Constructing a new home, adding a deck or other building project? Apply online, view review status and pay permit fees all from your. Apply here for a public utility permit. To access online permitting please click here. For utility companies doing work in woburn: Use this link to create an account. Carlisle Ma Online Permitting.
From www.carlisletrailsday.org
Carlisle Trails Day, Carlisle, MA Carlisle Conservation Foundation Carlisle Ma Online Permitting Find permitting information from the building department. Apply online, view review status and pay permit fees all from your. The building department is now accepting permit applications online. The town of carlisle is now using an online permitting program. For utility companies doing work in woburn: To access online permitting please click here. Constructing a new home, adding a deck. Carlisle Ma Online Permitting.
From hxeixsmyh.blob.core.windows.net
Carlisle Ma Gis Map at Anthony Cassidy blog Carlisle Ma Online Permitting Apply here for a public utility permit. Constructing a new home, adding a deck or other building project? To access online permitting please click here. The town of carlisle is now using an online permitting program. 10/20/2024 have a great day. For utility companies doing work in woburn: Use this link to create an account in order to use the.. Carlisle Ma Online Permitting.
From www.braintreema.gov
Online Permitting Braintree, MA Carlisle Ma Online Permitting To access online permitting please click here. For utility companies doing work in woburn: Find permitting information from the building department. Constructing a new home, adding a deck or other building project? Apply here for a public utility permit. The building department is now accepting permit applications online. Use this link to create an account in order to use the.. Carlisle Ma Online Permitting.
From www.pdffiller.com
Fillable Online Permitting and Inspections Personnel Fax Email Print Carlisle Ma Online Permitting To access online permitting please click here. Use this link to create an account in order to use the. Find permitting information from the building department. For utility companies doing work in woburn: Apply online, view review status and pay permit fees all from your. 10/20/2024 have a great day. The town of carlisle is now using an online permitting. Carlisle Ma Online Permitting.
From www.dreamstime.com
Carlisle Historic Town Center Aerial View, Carlisle, MA, USA Stock Carlisle Ma Online Permitting The town of carlisle is now using an online permitting program. Constructing a new home, adding a deck or other building project? Apply here for a public utility permit. Use this link to create an account in order to use the. To access online permitting please click here. 10/20/2024 have a great day. Find permitting information from the building department.. Carlisle Ma Online Permitting.
From cloudpermit.com
Fairfield County Partners with Cloudpermit for Streamlined Online Carlisle Ma Online Permitting 10/20/2024 have a great day. Apply online, view review status and pay permit fees all from your. For utility companies doing work in woburn: The town of carlisle is now using an online permitting program. To access online permitting please click here. Constructing a new home, adding a deck or other building project? The building department is now accepting permit. Carlisle Ma Online Permitting.
From www.pdffiller.com
Fillable Online Fillable Online Fillable Online Permitting and Carlisle Ma Online Permitting 10/20/2024 have a great day. For utility companies doing work in woburn: Use this link to create an account in order to use the. Apply online, view review status and pay permit fees all from your. To access online permitting please click here. Find permitting information from the building department. The building department is now accepting permit applications online. The. Carlisle Ma Online Permitting.
From www.pdffiller.com
Fillable Online Carlisle Ma Online Permitting Use this link to create an account in order to use the. Apply online, view review status and pay permit fees all from your. 10/20/2024 have a great day. Find permitting information from the building department. The building department is now accepting permit applications online. Constructing a new home, adding a deck or other building project? Apply here for a. Carlisle Ma Online Permitting.
From fyovaedly.blob.core.windows.net
Rutland Ma Online Permitting at Randee Martinez blog Carlisle Ma Online Permitting 10/20/2024 have a great day. The building department is now accepting permit applications online. Apply here for a public utility permit. For utility companies doing work in woburn: The town of carlisle is now using an online permitting program. Use this link to create an account in order to use the. Apply online, view review status and pay permit fees. Carlisle Ma Online Permitting.
From www.pdffiller.com
Fillable Online Permitting & Inspection Process Guidelines Fax Email Carlisle Ma Online Permitting Find permitting information from the building department. To access online permitting please click here. The town of carlisle is now using an online permitting program. Apply online, view review status and pay permit fees all from your. The building department is now accepting permit applications online. Use this link to create an account in order to use the. Constructing a. Carlisle Ma Online Permitting.
From www.pdffiller.com
Fillable Online Permitting Forms Fax Email Print pdfFiller Carlisle Ma Online Permitting Use this link to create an account in order to use the. Apply here for a public utility permit. The building department is now accepting permit applications online. Apply online, view review status and pay permit fees all from your. For utility companies doing work in woburn: The town of carlisle is now using an online permitting program. Constructing a. Carlisle Ma Online Permitting.
From www.pdffiller.com
Fillable Online Commonly Used Permitting Forms Hull MA Fax Email Carlisle Ma Online Permitting The building department is now accepting permit applications online. Apply online, view review status and pay permit fees all from your. 10/20/2024 have a great day. Constructing a new home, adding a deck or other building project? Use this link to create an account in order to use the. Find permitting information from the building department. Apply here for a. Carlisle Ma Online Permitting.
From www.braintreema.gov
Online Permitting Braintree, MA Carlisle Ma Online Permitting The building department is now accepting permit applications online. Apply here for a public utility permit. Use this link to create an account in order to use the. Apply online, view review status and pay permit fees all from your. Constructing a new home, adding a deck or other building project? 10/20/2024 have a great day. To access online permitting. Carlisle Ma Online Permitting.
From www.braintreema.gov
Online Permitting Braintree, MA Carlisle Ma Online Permitting For utility companies doing work in woburn: To access online permitting please click here. The building department is now accepting permit applications online. Constructing a new home, adding a deck or other building project? Apply online, view review status and pay permit fees all from your. Apply here for a public utility permit. Find permitting information from the building department.. Carlisle Ma Online Permitting.
From www.pdffiller.com
Fillable Online PERMITTING EVENT CODES/DATES Fax Email Print pdfFiller Carlisle Ma Online Permitting Use this link to create an account in order to use the. For utility companies doing work in woburn: Constructing a new home, adding a deck or other building project? Apply here for a public utility permit. 10/20/2024 have a great day. Apply online, view review status and pay permit fees all from your. The building department is now accepting. Carlisle Ma Online Permitting.
From cityofeverett.com
Online Permitting Everett, MA Official site Carlisle Ma Online Permitting To access online permitting please click here. Find permitting information from the building department. The town of carlisle is now using an online permitting program. Apply here for a public utility permit. Constructing a new home, adding a deck or other building project? 10/20/2024 have a great day. For utility companies doing work in woburn: Use this link to create. Carlisle Ma Online Permitting.
From www.uptonma.gov
Government Upton, MA Carlisle Ma Online Permitting 10/20/2024 have a great day. Apply online, view review status and pay permit fees all from your. Find permitting information from the building department. The building department is now accepting permit applications online. Apply here for a public utility permit. Use this link to create an account in order to use the. To access online permitting please click here. Constructing. Carlisle Ma Online Permitting.
From www.youtube.com
Online Permitting Registration How To Sign Up YouTube Carlisle Ma Online Permitting Apply here for a public utility permit. Use this link to create an account in order to use the. For utility companies doing work in woburn: The building department is now accepting permit applications online. 10/20/2024 have a great day. The town of carlisle is now using an online permitting program. Find permitting information from the building department. Constructing a. Carlisle Ma Online Permitting.
From fyovaedly.blob.core.windows.net
Rutland Ma Online Permitting at Randee Martinez blog Carlisle Ma Online Permitting To access online permitting please click here. Apply online, view review status and pay permit fees all from your. 10/20/2024 have a great day. The town of carlisle is now using an online permitting program. Apply here for a public utility permit. The building department is now accepting permit applications online. Find permitting information from the building department. Constructing a. Carlisle Ma Online Permitting.
From braintreema.gov
Stormwater Permitting Braintree, MA Carlisle Ma Online Permitting 10/20/2024 have a great day. To access online permitting please click here. Apply here for a public utility permit. Constructing a new home, adding a deck or other building project? Apply online, view review status and pay permit fees all from your. Use this link to create an account in order to use the. For utility companies doing work in. Carlisle Ma Online Permitting.
From www.pdffiller.com
Fillable Online Permitting Applications and Forms Fax Email Print Carlisle Ma Online Permitting The building department is now accepting permit applications online. Apply online, view review status and pay permit fees all from your. Find permitting information from the building department. The town of carlisle is now using an online permitting program. 10/20/2024 have a great day. Constructing a new home, adding a deck or other building project? Apply here for a public. Carlisle Ma Online Permitting.
From middletonma.gov
Inspectional Documentation & Online Permitting Portal Middleton, MA Carlisle Ma Online Permitting Apply here for a public utility permit. Apply online, view review status and pay permit fees all from your. The town of carlisle is now using an online permitting program. 10/20/2024 have a great day. The building department is now accepting permit applications online. To access online permitting please click here. Use this link to create an account in order. Carlisle Ma Online Permitting.
From debary.org
Building Department Online Permitting City of DeBary Florida Carlisle Ma Online Permitting Constructing a new home, adding a deck or other building project? To access online permitting please click here. The building department is now accepting permit applications online. Apply here for a public utility permit. For utility companies doing work in woburn: 10/20/2024 have a great day. The town of carlisle is now using an online permitting program. Apply online, view. Carlisle Ma Online Permitting.
From patch.com
Tewksbury Rolling Out New Online Permitting System On Monday Carlisle Ma Online Permitting Apply here for a public utility permit. To access online permitting please click here. Use this link to create an account in order to use the. 10/20/2024 have a great day. For utility companies doing work in woburn: The town of carlisle is now using an online permitting program. The building department is now accepting permit applications online. Constructing a. Carlisle Ma Online Permitting.
From www.dreamstime.com
Carlisle Historic Town Center Aerial View, Carlisle, MA, USA Stock Carlisle Ma Online Permitting Find permitting information from the building department. The building department is now accepting permit applications online. For utility companies doing work in woburn: Apply online, view review status and pay permit fees all from your. To access online permitting please click here. Apply here for a public utility permit. 10/20/2024 have a great day. Constructing a new home, adding a. Carlisle Ma Online Permitting.
From info.buyersbrokersonly.com
Carlisle, MA Real Estate and Community Guide Carlisle Ma Online Permitting Use this link to create an account in order to use the. Apply online, view review status and pay permit fees all from your. To access online permitting please click here. For utility companies doing work in woburn: 10/20/2024 have a great day. Find permitting information from the building department. Apply here for a public utility permit. Constructing a new. Carlisle Ma Online Permitting.
From www.finenewenglandliving.com
Guide to Carlisle, Massachusetts Elizabeth Crampton Fine New Carlisle Ma Online Permitting 10/20/2024 have a great day. The building department is now accepting permit applications online. For utility companies doing work in woburn: Constructing a new home, adding a deck or other building project? Use this link to create an account in order to use the. Apply here for a public utility permit. To access online permitting please click here. Apply online,. Carlisle Ma Online Permitting.
From www.pdffiller.com
Fillable Online Permitting Checklist and Frequently Asked Questions Fax Carlisle Ma Online Permitting The building department is now accepting permit applications online. The town of carlisle is now using an online permitting program. 10/20/2024 have a great day. To access online permitting please click here. Constructing a new home, adding a deck or other building project? Use this link to create an account in order to use the. Apply online, view review status. Carlisle Ma Online Permitting.
From www.pdffiller.com
Fillable Online Online Permitting and Inspections Information Fax Email Carlisle Ma Online Permitting For utility companies doing work in woburn: The town of carlisle is now using an online permitting program. The building department is now accepting permit applications online. 10/20/2024 have a great day. Apply here for a public utility permit. Apply online, view review status and pay permit fees all from your. Find permitting information from the building department. Constructing a. Carlisle Ma Online Permitting.
From www.pdffiller.com
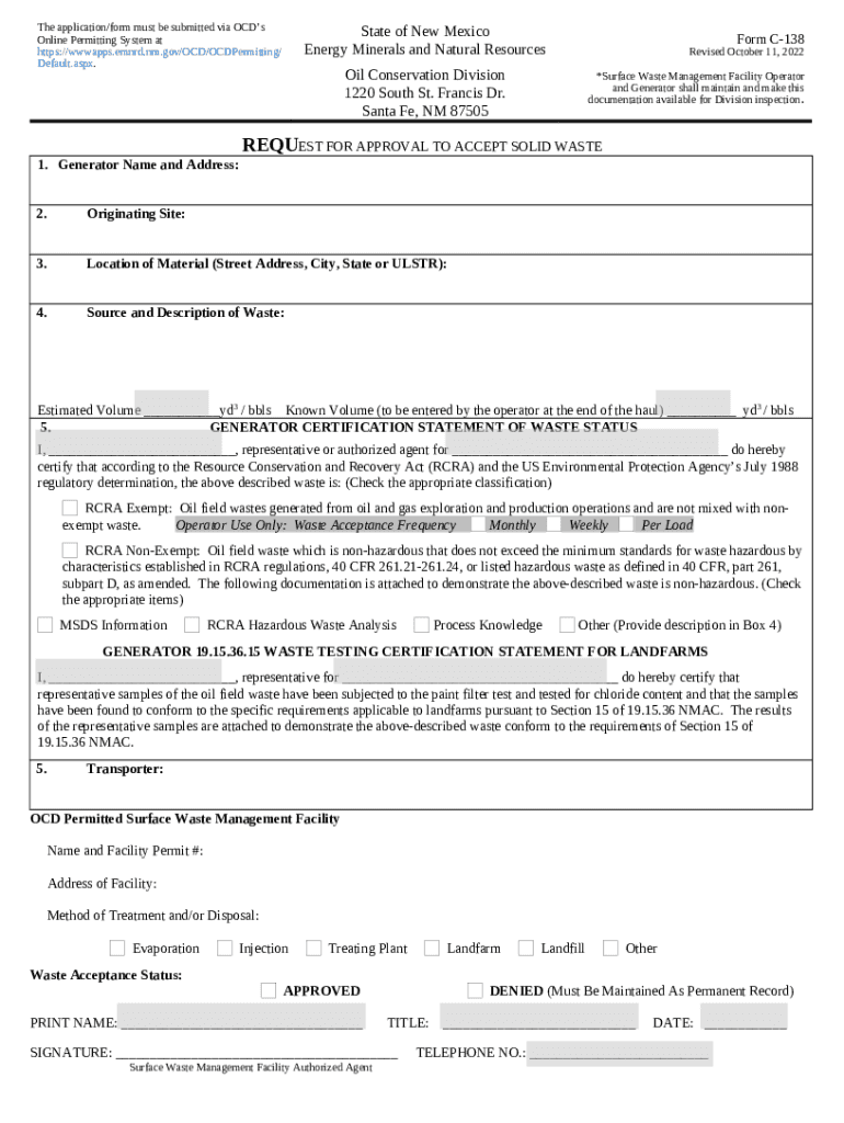
The application/ must be submitted via OCD's Online Permitting System Carlisle Ma Online Permitting Find permitting information from the building department. 10/20/2024 have a great day. Constructing a new home, adding a deck or other building project? The town of carlisle is now using an online permitting program. Apply here for a public utility permit. Apply online, view review status and pay permit fees all from your. The building department is now accepting permit. Carlisle Ma Online Permitting.
From carlislema.gov
Carlisle, MA Official site Carlisle Ma Online Permitting For utility companies doing work in woburn: Use this link to create an account in order to use the. Constructing a new home, adding a deck or other building project? To access online permitting please click here. The building department is now accepting permit applications online. Apply here for a public utility permit. Find permitting information from the building department.. Carlisle Ma Online Permitting.