Stair Handrail Dwg . Elegant steel railing for free download. Available in plan, front, and side elevation views for free download, this dwg block is an invaluable resource for architects, interior designers, and builders. 222 handrails cad blocks for free download dwg autocad, rvt revit, skp sketchup and other. Specifications and isometric view both measures. In this category there are dwg files useful for planning: Stair railings with design adapted to the inclination of the ramp. The 2d staircase collection for autocad 2004 and later versions. Wrought iron railing free cad drawings elegant steel railing for free download. This autocad dwg file offers a meticulously detailed set of 2d drawings showcasing stairs with a combination of metal and wood handrails. Free dwg models of stairs in plan and elevation view. Other free cad blocks and drawings. Download cad block in dwg. Télécharger gratuitement 2d cad bloc d'un detail escalier & handrail y compris les notes et les dimensions matérielles entièrement annotés.
from cadbull.com
222 handrails cad blocks for free download dwg autocad, rvt revit, skp sketchup and other. Other free cad blocks and drawings. Download cad block in dwg. Wrought iron railing free cad drawings elegant steel railing for free download. Elegant steel railing for free download. Available in plan, front, and side elevation views for free download, this dwg block is an invaluable resource for architects, interior designers, and builders. Télécharger gratuitement 2d cad bloc d'un detail escalier & handrail y compris les notes et les dimensions matérielles entièrement annotés. The 2d staircase collection for autocad 2004 and later versions. Free dwg models of stairs in plan and elevation view. Specifications and isometric view both measures.
Download Free Stairs Drawing In DWG File Cadbull
Stair Handrail Dwg Specifications and isometric view both measures. Elegant steel railing for free download. In this category there are dwg files useful for planning: Wrought iron railing free cad drawings elegant steel railing for free download. Available in plan, front, and side elevation views for free download, this dwg block is an invaluable resource for architects, interior designers, and builders. Stair railings with design adapted to the inclination of the ramp. This autocad dwg file offers a meticulously detailed set of 2d drawings showcasing stairs with a combination of metal and wood handrails. Free dwg models of stairs in plan and elevation view. Download cad block in dwg. 222 handrails cad blocks for free download dwg autocad, rvt revit, skp sketchup and other. Télécharger gratuitement 2d cad bloc d'un detail escalier & handrail y compris les notes et les dimensions matérielles entièrement annotés. Specifications and isometric view both measures. Other free cad blocks and drawings. The 2d staircase collection for autocad 2004 and later versions.
From designscad.com
Stairs DetailRisers And Handrails DWG Section for AutoCAD • Designs CAD Stair Handrail Dwg Specifications and isometric view both measures. Wrought iron railing free cad drawings elegant steel railing for free download. In this category there are dwg files useful for planning: Available in plan, front, and side elevation views for free download, this dwg block is an invaluable resource for architects, interior designers, and builders. This autocad dwg file offers a meticulously detailed. Stair Handrail Dwg.
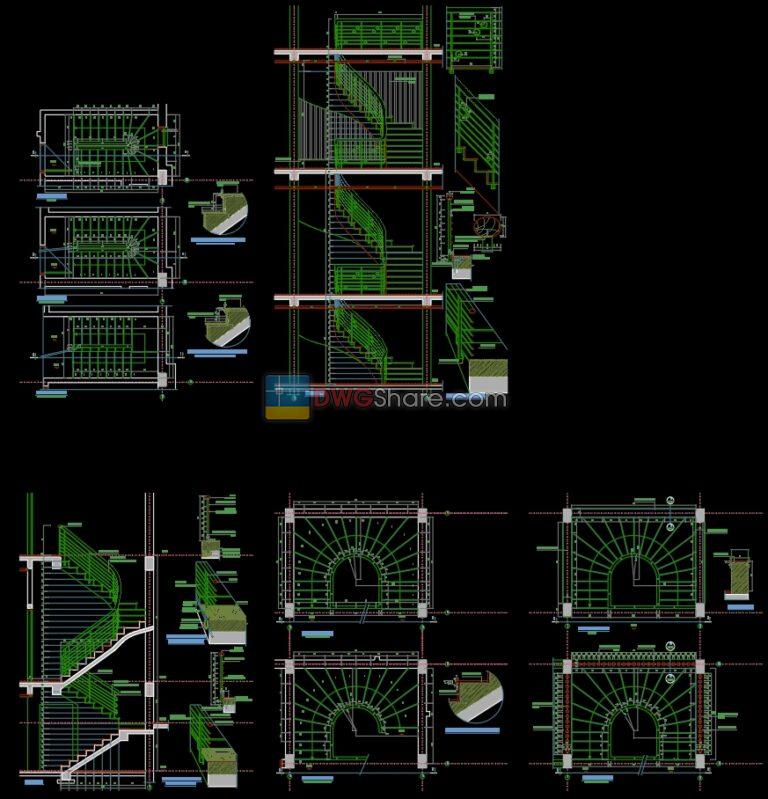
From dwgshare.com
21.Details handrail stairs, handrails autocad free download Stair Handrail Dwg Elegant steel railing for free download. Specifications and isometric view both measures. This autocad dwg file offers a meticulously detailed set of 2d drawings showcasing stairs with a combination of metal and wood handrails. 222 handrails cad blocks for free download dwg autocad, rvt revit, skp sketchup and other. Download cad block in dwg. In this category there are dwg. Stair Handrail Dwg.
From www.pinterest.com
12.Modern Stair, Railing AutoCAD Blocks free download Free download Stair Handrail Dwg 222 handrails cad blocks for free download dwg autocad, rvt revit, skp sketchup and other. The 2d staircase collection for autocad 2004 and later versions. Free dwg models of stairs in plan and elevation view. Specifications and isometric view both measures. In this category there are dwg files useful for planning: Télécharger gratuitement 2d cad bloc d'un detail escalier &. Stair Handrail Dwg.
From dwgshare.com
22.Details handrail stairs, handrails autocad free download Stair Handrail Dwg Free dwg models of stairs in plan and elevation view. Other free cad blocks and drawings. The 2d staircase collection for autocad 2004 and later versions. 222 handrails cad blocks for free download dwg autocad, rvt revit, skp sketchup and other. Available in plan, front, and side elevation views for free download, this dwg block is an invaluable resource for. Stair Handrail Dwg.
From cadbull.com
Staircase With Railing Glass Section Drawing DWG File Cadbull Stair Handrail Dwg The 2d staircase collection for autocad 2004 and later versions. Wrought iron railing free cad drawings elegant steel railing for free download. Download cad block in dwg. Télécharger gratuitement 2d cad bloc d'un detail escalier & handrail y compris les notes et les dimensions matérielles entièrement annotés. Free dwg models of stairs in plan and elevation view. In this category. Stair Handrail Dwg.
From dwgshare.com
14.Classic Stair, Railing AutoCAD Blocks free download Stair Handrail Dwg Wrought iron railing free cad drawings elegant steel railing for free download. 222 handrails cad blocks for free download dwg autocad, rvt revit, skp sketchup and other. Specifications and isometric view both measures. Other free cad blocks and drawings. In this category there are dwg files useful for planning: The 2d staircase collection for autocad 2004 and later versions. Available. Stair Handrail Dwg.
From cadbull.com
Stair With Glass Railing Design DWG File Cadbull Stair Handrail Dwg Wrought iron railing free cad drawings elegant steel railing for free download. Other free cad blocks and drawings. Download cad block in dwg. Available in plan, front, and side elevation views for free download, this dwg block is an invaluable resource for architects, interior designers, and builders. Elegant steel railing for free download. The 2d staircase collection for autocad 2004. Stair Handrail Dwg.
From dwgshare.com
13.Modern Stair, Railing AutoCAD Blocks free download Stair Handrail Dwg Wrought iron railing free cad drawings elegant steel railing for free download. In this category there are dwg files useful for planning: The 2d staircase collection for autocad 2004 and later versions. Stair railings with design adapted to the inclination of the ramp. Elegant steel railing for free download. Specifications and isometric view both measures. Available in plan, front, and. Stair Handrail Dwg.
From dwgshare.com
25.Details handrail stairs, handrails autocad free download Stair Handrail Dwg Télécharger gratuitement 2d cad bloc d'un detail escalier & handrail y compris les notes et les dimensions matérielles entièrement annotés. In this category there are dwg files useful for planning: Other free cad blocks and drawings. 222 handrails cad blocks for free download dwg autocad, rvt revit, skp sketchup and other. Wrought iron railing free cad drawings elegant steel railing. Stair Handrail Dwg.
From dwgshare.com
20.Details handrail stairs, handrails autocad free download Stair Handrail Dwg The 2d staircase collection for autocad 2004 and later versions. Other free cad blocks and drawings. Stair railings with design adapted to the inclination of the ramp. Free dwg models of stairs in plan and elevation view. Specifications and isometric view both measures. Télécharger gratuitement 2d cad bloc d'un detail escalier & handrail y compris les notes et les dimensions. Stair Handrail Dwg.
From dwgfree.com
Handrails Cad DWG Download Autocad Blocks Model. Stair Handrail Dwg Specifications and isometric view both measures. Download cad block in dwg. Wrought iron railing free cad drawings elegant steel railing for free download. Stair railings with design adapted to the inclination of the ramp. In this category there are dwg files useful for planning: The 2d staircase collection for autocad 2004 and later versions. This autocad dwg file offers a. Stair Handrail Dwg.
From libreriacad.com
Stairs With Handrails In AutoCAD CAD library Stair Handrail Dwg The 2d staircase collection for autocad 2004 and later versions. Free dwg models of stairs in plan and elevation view. Télécharger gratuitement 2d cad bloc d'un detail escalier & handrail y compris les notes et les dimensions matérielles entièrement annotés. In this category there are dwg files useful for planning: Specifications and isometric view both measures. Elegant steel railing for. Stair Handrail Dwg.
From cadbull.com
Stair With Railing Design DWG File Cadbull Stair Handrail Dwg Available in plan, front, and side elevation views for free download, this dwg block is an invaluable resource for architects, interior designers, and builders. Other free cad blocks and drawings. Elegant steel railing for free download. In this category there are dwg files useful for planning: Stair railings with design adapted to the inclination of the ramp. Specifications and isometric. Stair Handrail Dwg.
From www.planmarketplace.com
Stair Handrail Detail CAD Files, DWG files, Plans and Details Stair Handrail Dwg Specifications and isometric view both measures. This autocad dwg file offers a meticulously detailed set of 2d drawings showcasing stairs with a combination of metal and wood handrails. Available in plan, front, and side elevation views for free download, this dwg block is an invaluable resource for architects, interior designers, and builders. In this category there are dwg files useful. Stair Handrail Dwg.
From dwgshare.com
20.Details handrail stairs, handrails autocad free download Stair Handrail Dwg The 2d staircase collection for autocad 2004 and later versions. Télécharger gratuitement 2d cad bloc d'un detail escalier & handrail y compris les notes et les dimensions matérielles entièrement annotés. Stair railings with design adapted to the inclination of the ramp. This autocad dwg file offers a meticulously detailed set of 2d drawings showcasing stairs with a combination of metal. Stair Handrail Dwg.
From www.planmarketplace.com
Helipad Stair and Railings CAD Files, DWG files, Plans and Details Stair Handrail Dwg Stair railings with design adapted to the inclination of the ramp. Other free cad blocks and drawings. Download cad block in dwg. Specifications and isometric view both measures. Wrought iron railing free cad drawings elegant steel railing for free download. Elegant steel railing for free download. Available in plan, front, and side elevation views for free download, this dwg block. Stair Handrail Dwg.
From dwgshare.com
17.Details handrail stairs, handrails autocad free download Stair Handrail Dwg 222 handrails cad blocks for free download dwg autocad, rvt revit, skp sketchup and other. Available in plan, front, and side elevation views for free download, this dwg block is an invaluable resource for architects, interior designers, and builders. Elegant steel railing for free download. Stair railings with design adapted to the inclination of the ramp. Other free cad blocks. Stair Handrail Dwg.
From dwgshare.com
14.Classic Stair, Railing AutoCAD Blocks free download Stair Handrail Dwg Free dwg models of stairs in plan and elevation view. Elegant steel railing for free download. Available in plan, front, and side elevation views for free download, this dwg block is an invaluable resource for architects, interior designers, and builders. Specifications and isometric view both measures. Stair railings with design adapted to the inclination of the ramp. Other free cad. Stair Handrail Dwg.
From libreriacad.com
Stair Railing Detail In AutoCAD CAD library Stair Handrail Dwg Wrought iron railing free cad drawings elegant steel railing for free download. The 2d staircase collection for autocad 2004 and later versions. Other free cad blocks and drawings. 222 handrails cad blocks for free download dwg autocad, rvt revit, skp sketchup and other. This autocad dwg file offers a meticulously detailed set of 2d drawings showcasing stairs with a combination. Stair Handrail Dwg.
From cadbull.com
Stair and Handrail Detail section and elevation autocad file Cadbull Stair Handrail Dwg Download cad block in dwg. The 2d staircase collection for autocad 2004 and later versions. Stair railings with design adapted to the inclination of the ramp. Wrought iron railing free cad drawings elegant steel railing for free download. This autocad dwg file offers a meticulously detailed set of 2d drawings showcasing stairs with a combination of metal and wood handrails.. Stair Handrail Dwg.
From dwgshare.com
18.Details handrail stairs, handrails autocad free download Free Stair Handrail Dwg Stair railings with design adapted to the inclination of the ramp. Download cad block in dwg. The 2d staircase collection for autocad 2004 and later versions. In this category there are dwg files useful for planning: Free dwg models of stairs in plan and elevation view. Other free cad blocks and drawings. Télécharger gratuitement 2d cad bloc d'un detail escalier. Stair Handrail Dwg.
From designscad.com
Staircase Handrail Detailing DWG Detail for AutoCAD • Designs CAD Stair Handrail Dwg Stair railings with design adapted to the inclination of the ramp. The 2d staircase collection for autocad 2004 and later versions. Download cad block in dwg. Télécharger gratuitement 2d cad bloc d'un detail escalier & handrail y compris les notes et les dimensions matérielles entièrement annotés. Wrought iron railing free cad drawings elegant steel railing for free download. Other free. Stair Handrail Dwg.
From cadbull.com
Indoor Stair Railings AutoCAD File Cadbull Stair Handrail Dwg 222 handrails cad blocks for free download dwg autocad, rvt revit, skp sketchup and other. Other free cad blocks and drawings. Wrought iron railing free cad drawings elegant steel railing for free download. Elegant steel railing for free download. Available in plan, front, and side elevation views for free download, this dwg block is an invaluable resource for architects, interior. Stair Handrail Dwg.
From www.cadblocksfree.com
1310mm Wide Wooden Stairs with Steel Handrails Left Side Elevation dwg Stair Handrail Dwg In this category there are dwg files useful for planning: Stair railings with design adapted to the inclination of the ramp. Available in plan, front, and side elevation views for free download, this dwg block is an invaluable resource for architects, interior designers, and builders. Other free cad blocks and drawings. Elegant steel railing for free download. 222 handrails cad. Stair Handrail Dwg.
From cadbull.com
Section stair hand rail detail dwg file Cadbull Stair Handrail Dwg The 2d staircase collection for autocad 2004 and later versions. In this category there are dwg files useful for planning: Stair railings with design adapted to the inclination of the ramp. This autocad dwg file offers a meticulously detailed set of 2d drawings showcasing stairs with a combination of metal and wood handrails. Download cad block in dwg. Other free. Stair Handrail Dwg.
From www.aiophotoz.com
Ss Staircase Railing Detail Autocad Dwg Plan N Design Images and Stair Handrail Dwg Download cad block in dwg. The 2d staircase collection for autocad 2004 and later versions. Wrought iron railing free cad drawings elegant steel railing for free download. 222 handrails cad blocks for free download dwg autocad, rvt revit, skp sketchup and other. This autocad dwg file offers a meticulously detailed set of 2d drawings showcasing stairs with a combination of. Stair Handrail Dwg.
From cadbull.com
Detail of handrail of staircase in dwg file. Cadbull Stair Handrail Dwg Télécharger gratuitement 2d cad bloc d'un detail escalier & handrail y compris les notes et les dimensions matérielles entièrement annotés. Wrought iron railing free cad drawings elegant steel railing for free download. 222 handrails cad blocks for free download dwg autocad, rvt revit, skp sketchup and other. Specifications and isometric view both measures. Free dwg models of stairs in plan. Stair Handrail Dwg.
From cadbull.com
Download Free Stairs Drawing In DWG File Cadbull Stair Handrail Dwg Download cad block in dwg. Free dwg models of stairs in plan and elevation view. 222 handrails cad blocks for free download dwg autocad, rvt revit, skp sketchup and other. Available in plan, front, and side elevation views for free download, this dwg block is an invaluable resource for architects, interior designers, and builders. Elegant steel railing for free download.. Stair Handrail Dwg.
From designscad.com
Stairs And Railings Details DWG Detail for AutoCAD • Designs CAD Stair Handrail Dwg Elegant steel railing for free download. Specifications and isometric view both measures. Wrought iron railing free cad drawings elegant steel railing for free download. Available in plan, front, and side elevation views for free download, this dwg block is an invaluable resource for architects, interior designers, and builders. The 2d staircase collection for autocad 2004 and later versions. 222 handrails. Stair Handrail Dwg.
From dwgshare.com
11.Details handrail stairs, handrails autocad free download Free Stair Handrail Dwg This autocad dwg file offers a meticulously detailed set of 2d drawings showcasing stairs with a combination of metal and wood handrails. Other free cad blocks and drawings. Télécharger gratuitement 2d cad bloc d'un detail escalier & handrail y compris les notes et les dimensions matérielles entièrement annotés. Free dwg models of stairs in plan and elevation view. Elegant steel. Stair Handrail Dwg.
From designscad.com
Steel Staircase With Metal Staircase Details DWG Detail for AutoCAD Stair Handrail Dwg Free dwg models of stairs in plan and elevation view. Available in plan, front, and side elevation views for free download, this dwg block is an invaluable resource for architects, interior designers, and builders. In this category there are dwg files useful for planning: Elegant steel railing for free download. Specifications and isometric view both measures. This autocad dwg file. Stair Handrail Dwg.
From designscad.com
Wrought Handrail DWG Block for AutoCAD • Designs CAD Stair Handrail Dwg Free dwg models of stairs in plan and elevation view. Specifications and isometric view both measures. This autocad dwg file offers a meticulously detailed set of 2d drawings showcasing stairs with a combination of metal and wood handrails. 222 handrails cad blocks for free download dwg autocad, rvt revit, skp sketchup and other. Wrought iron railing free cad drawings elegant. Stair Handrail Dwg.
From simp-link.com
Steel staircase details dwg free download Stair Handrail Dwg Other free cad blocks and drawings. 222 handrails cad blocks for free download dwg autocad, rvt revit, skp sketchup and other. The 2d staircase collection for autocad 2004 and later versions. Free dwg models of stairs in plan and elevation view. Wrought iron railing free cad drawings elegant steel railing for free download. Stair railings with design adapted to the. Stair Handrail Dwg.
From designscad.com
Stair Railing Detail DWG Detail for AutoCAD • Designs CAD Stair Handrail Dwg Stair railings with design adapted to the inclination of the ramp. This autocad dwg file offers a meticulously detailed set of 2d drawings showcasing stairs with a combination of metal and wood handrails. The 2d staircase collection for autocad 2004 and later versions. 222 handrails cad blocks for free download dwg autocad, rvt revit, skp sketchup and other. Elegant steel. Stair Handrail Dwg.
From freecadplan.com
Handrail DWG CAD Block in Autocad , download free cad plan Stair Handrail Dwg Elegant steel railing for free download. Available in plan, front, and side elevation views for free download, this dwg block is an invaluable resource for architects, interior designers, and builders. The 2d staircase collection for autocad 2004 and later versions. Other free cad blocks and drawings. Télécharger gratuitement 2d cad bloc d'un detail escalier & handrail y compris les notes. Stair Handrail Dwg.