What Is A Type 2 Enclosure . In this techtalk article, we’ll look at what exactly a. 17 rows a typical nema enclosure might be rated to provide protection against environmental hazards such as water, dust, oil or coolant or. A type 2 enclosure is very similar to type 1, with both performing best indoors and providing good protection against falling dirt. Nema 2 enclosures are indoor electronics enclosures that provide basic protection against common environmental hazards. It’s not meant to handle a torrential downpour or total. A nema 2 enclosure is, for all intents and purposes, the same as a nema 1 enclosure. Likewise, both types help personnel avoid contact.
from www.scribd.com
Likewise, both types help personnel avoid contact. A nema 2 enclosure is, for all intents and purposes, the same as a nema 1 enclosure. 17 rows a typical nema enclosure might be rated to provide protection against environmental hazards such as water, dust, oil or coolant or. A type 2 enclosure is very similar to type 1, with both performing best indoors and providing good protection against falling dirt. Nema 2 enclosures are indoor electronics enclosures that provide basic protection against common environmental hazards. In this techtalk article, we’ll look at what exactly a. It’s not meant to handle a torrential downpour or total.
Enclosure Spec PDF
What Is A Type 2 Enclosure A nema 2 enclosure is, for all intents and purposes, the same as a nema 1 enclosure. 17 rows a typical nema enclosure might be rated to provide protection against environmental hazards such as water, dust, oil or coolant or. A type 2 enclosure is very similar to type 1, with both performing best indoors and providing good protection against falling dirt. A nema 2 enclosure is, for all intents and purposes, the same as a nema 1 enclosure. It’s not meant to handle a torrential downpour or total. Nema 2 enclosures are indoor electronics enclosures that provide basic protection against common environmental hazards. In this techtalk article, we’ll look at what exactly a. Likewise, both types help personnel avoid contact.
From easylifeproduct.com
Nema 4X/IP65 Polycarbonate Enclosure For Outdoor Applications And What Is A Type 2 Enclosure 17 rows a typical nema enclosure might be rated to provide protection against environmental hazards such as water, dust, oil or coolant or. In this techtalk article, we’ll look at what exactly a. A nema 2 enclosure is, for all intents and purposes, the same as a nema 1 enclosure. Nema 2 enclosures are indoor electronics enclosures that provide basic. What Is A Type 2 Enclosure.
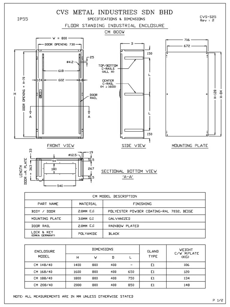
From www.ener.co.in
Enclosure Type 2 Ener Cable Lugs What Is A Type 2 Enclosure In this techtalk article, we’ll look at what exactly a. Nema 2 enclosures are indoor electronics enclosures that provide basic protection against common environmental hazards. 17 rows a typical nema enclosure might be rated to provide protection against environmental hazards such as water, dust, oil or coolant or. Likewise, both types help personnel avoid contact. It’s not meant to handle. What Is A Type 2 Enclosure.
From www.ept.ca
A brief overview of NEMA rated enclosures Electronic Products What Is A Type 2 Enclosure A type 2 enclosure is very similar to type 1, with both performing best indoors and providing good protection against falling dirt. In this techtalk article, we’ll look at what exactly a. Likewise, both types help personnel avoid contact. It’s not meant to handle a torrential downpour or total. Nema 2 enclosures are indoor electronics enclosures that provide basic protection. What Is A Type 2 Enclosure.
From www.polycase.com
IEC vs. UL Ratings What Are the Differences? Polycase What Is A Type 2 Enclosure It’s not meant to handle a torrential downpour or total. A nema 2 enclosure is, for all intents and purposes, the same as a nema 1 enclosure. A type 2 enclosure is very similar to type 1, with both performing best indoors and providing good protection against falling dirt. 17 rows a typical nema enclosure might be rated to provide. What Is A Type 2 Enclosure.
From www.ddbunlimited.com
NEMA 4X Outdoor Enclosure Manufacturer What Is A Type 2 Enclosure Nema 2 enclosures are indoor electronics enclosures that provide basic protection against common environmental hazards. A type 2 enclosure is very similar to type 1, with both performing best indoors and providing good protection against falling dirt. In this techtalk article, we’ll look at what exactly a. 17 rows a typical nema enclosure might be rated to provide protection against. What Is A Type 2 Enclosure.
From www.globalindustrial.com
J&D Manufacturing Thermostat, Single Stage, 115/230V, 50/60Hz, UL50 What Is A Type 2 Enclosure Likewise, both types help personnel avoid contact. A type 2 enclosure is very similar to type 1, with both performing best indoors and providing good protection against falling dirt. A nema 2 enclosure is, for all intents and purposes, the same as a nema 1 enclosure. 17 rows a typical nema enclosure might be rated to provide protection against environmental. What Is A Type 2 Enclosure.
From www.aifittings.com
Features What Is A Type 2 Enclosure 17 rows a typical nema enclosure might be rated to provide protection against environmental hazards such as water, dust, oil or coolant or. Likewise, both types help personnel avoid contact. It’s not meant to handle a torrential downpour or total. Nema 2 enclosures are indoor electronics enclosures that provide basic protection against common environmental hazards. A nema 2 enclosure is,. What Is A Type 2 Enclosure.
From www.vevor.ca
VEVOR Steel Electrical Box 16" x 12" x 8" Electrical Enclosure Box 304 What Is A Type 2 Enclosure 17 rows a typical nema enclosure might be rated to provide protection against environmental hazards such as water, dust, oil or coolant or. Likewise, both types help personnel avoid contact. A type 2 enclosure is very similar to type 1, with both performing best indoors and providing good protection against falling dirt. In this techtalk article, we’ll look at what. What Is A Type 2 Enclosure.
From www.parkfield.co.uk
Hammond Manufacturing electrical enclosures stainless steel and mild steel What Is A Type 2 Enclosure Nema 2 enclosures are indoor electronics enclosures that provide basic protection against common environmental hazards. A nema 2 enclosure is, for all intents and purposes, the same as a nema 1 enclosure. A type 2 enclosure is very similar to type 1, with both performing best indoors and providing good protection against falling dirt. Likewise, both types help personnel avoid. What Is A Type 2 Enclosure.
From www.kdmsteel.com
NEMA 2 Enclosure KDM is Your Reliable NEMA Enclosure Manufacturer What Is A Type 2 Enclosure In this techtalk article, we’ll look at what exactly a. Nema 2 enclosures are indoor electronics enclosures that provide basic protection against common environmental hazards. Likewise, both types help personnel avoid contact. A nema 2 enclosure is, for all intents and purposes, the same as a nema 1 enclosure. A type 2 enclosure is very similar to type 1, with. What Is A Type 2 Enclosure.
From deltafab.com
Standard Enclosures Delta Fabricating What Is A Type 2 Enclosure Nema 2 enclosures are indoor electronics enclosures that provide basic protection against common environmental hazards. 17 rows a typical nema enclosure might be rated to provide protection against environmental hazards such as water, dust, oil or coolant or. Likewise, both types help personnel avoid contact. It’s not meant to handle a torrential downpour or total. In this techtalk article, we’ll. What Is A Type 2 Enclosure.
From www.polycase.com
Understanding Enclosure Types The Ultimate Guide to NEMA Enclosure What Is A Type 2 Enclosure Nema 2 enclosures are indoor electronics enclosures that provide basic protection against common environmental hazards. A nema 2 enclosure is, for all intents and purposes, the same as a nema 1 enclosure. It’s not meant to handle a torrential downpour or total. Likewise, both types help personnel avoid contact. A type 2 enclosure is very similar to type 1, with. What Is A Type 2 Enclosure.
From hydrobuilder.com
J&D Manufacturing Single Stage Thermostat with Type 2 Enclosure and 8 What Is A Type 2 Enclosure A type 2 enclosure is very similar to type 1, with both performing best indoors and providing good protection against falling dirt. It’s not meant to handle a torrential downpour or total. Likewise, both types help personnel avoid contact. Nema 2 enclosures are indoor electronics enclosures that provide basic protection against common environmental hazards. 17 rows a typical nema enclosure. What Is A Type 2 Enclosure.
From hydrobuilder.com
J&D Manufacturing Single Stage Thermostat with Type 2 Enclosure and no What Is A Type 2 Enclosure Nema 2 enclosures are indoor electronics enclosures that provide basic protection against common environmental hazards. A type 2 enclosure is very similar to type 1, with both performing best indoors and providing good protection against falling dirt. 17 rows a typical nema enclosure might be rated to provide protection against environmental hazards such as water, dust, oil or coolant or.. What Is A Type 2 Enclosure.
From arizona.ph
Nema 3R Enclosure for TQD Combination 2 Pole & 3 Pole Arizona What Is A Type 2 Enclosure Nema 2 enclosures are indoor electronics enclosures that provide basic protection against common environmental hazards. In this techtalk article, we’ll look at what exactly a. A type 2 enclosure is very similar to type 1, with both performing best indoors and providing good protection against falling dirt. Likewise, both types help personnel avoid contact. 17 rows a typical nema enclosure. What Is A Type 2 Enclosure.
From www.iqsdirectory.com
NEMA Enclosure What Is It? How Does It Work? Types Of What Is A Type 2 Enclosure It’s not meant to handle a torrential downpour or total. A type 2 enclosure is very similar to type 1, with both performing best indoors and providing good protection against falling dirt. 17 rows a typical nema enclosure might be rated to provide protection against environmental hazards such as water, dust, oil or coolant or. Nema 2 enclosures are indoor. What Is A Type 2 Enclosure.
From www.iqsdirectory.com
NEMA Enclosure What Is It? How Does It Work? Types Of What Is A Type 2 Enclosure A type 2 enclosure is very similar to type 1, with both performing best indoors and providing good protection against falling dirt. 17 rows a typical nema enclosure might be rated to provide protection against environmental hazards such as water, dust, oil or coolant or. A nema 2 enclosure is, for all intents and purposes, the same as a nema. What Is A Type 2 Enclosure.
From www.nachi.org
Building Enclosure Categories Inspection Gallery InterNACHI® What Is A Type 2 Enclosure A type 2 enclosure is very similar to type 1, with both performing best indoors and providing good protection against falling dirt. Likewise, both types help personnel avoid contact. Nema 2 enclosures are indoor electronics enclosures that provide basic protection against common environmental hazards. 17 rows a typical nema enclosure might be rated to provide protection against environmental hazards such. What Is A Type 2 Enclosure.
From www.enclosuremanufacturers.com
Cushing Manufacturing Co. Enclosure Manufacturers What Is A Type 2 Enclosure In this techtalk article, we’ll look at what exactly a. A type 2 enclosure is very similar to type 1, with both performing best indoors and providing good protection against falling dirt. A nema 2 enclosure is, for all intents and purposes, the same as a nema 1 enclosure. It’s not meant to handle a torrential downpour or total. Likewise,. What Is A Type 2 Enclosure.
From deltafab.com
Standard Enclosures Delta Fabricating What Is A Type 2 Enclosure A type 2 enclosure is very similar to type 1, with both performing best indoors and providing good protection against falling dirt. Likewise, both types help personnel avoid contact. 17 rows a typical nema enclosure might be rated to provide protection against environmental hazards such as water, dust, oil or coolant or. It’s not meant to handle a torrential downpour. What Is A Type 2 Enclosure.
From library.automationdirect.com
NEMA 4/4X HubbellWiegmann Enclosures What Is A Type 2 Enclosure Nema 2 enclosures are indoor electronics enclosures that provide basic protection against common environmental hazards. In this techtalk article, we’ll look at what exactly a. 17 rows a typical nema enclosure might be rated to provide protection against environmental hazards such as water, dust, oil or coolant or. Likewise, both types help personnel avoid contact. A type 2 enclosure is. What Is A Type 2 Enclosure.
From loeraxbul.blob.core.windows.net
Panel Enclosure Sizes at Melissa Perales blog What Is A Type 2 Enclosure Likewise, both types help personnel avoid contact. A nema 2 enclosure is, for all intents and purposes, the same as a nema 1 enclosure. Nema 2 enclosures are indoor electronics enclosures that provide basic protection against common environmental hazards. In this techtalk article, we’ll look at what exactly a. It’s not meant to handle a torrential downpour or total. 17. What Is A Type 2 Enclosure.
From electroshope.com
ALFANAR Metal Enclosure 300x200x150 IP66 with mounting and gland plates What Is A Type 2 Enclosure Likewise, both types help personnel avoid contact. A nema 2 enclosure is, for all intents and purposes, the same as a nema 1 enclosure. In this techtalk article, we’ll look at what exactly a. 17 rows a typical nema enclosure might be rated to provide protection against environmental hazards such as water, dust, oil or coolant or. It’s not meant. What Is A Type 2 Enclosure.
From www.polycase.com
8 Most Common Types of Electrical Enclosures TechTalk Blog Polycase What Is A Type 2 Enclosure It’s not meant to handle a torrential downpour or total. A nema 2 enclosure is, for all intents and purposes, the same as a nema 1 enclosure. 17 rows a typical nema enclosure might be rated to provide protection against environmental hazards such as water, dust, oil or coolant or. Likewise, both types help personnel avoid contact. Nema 2 enclosures. What Is A Type 2 Enclosure.
From ameritexllc.com
Sheet Metal Electrical Enclosures Ameritex Fabrication and Machining What Is A Type 2 Enclosure It’s not meant to handle a torrential downpour or total. 17 rows a typical nema enclosure might be rated to provide protection against environmental hazards such as water, dust, oil or coolant or. A type 2 enclosure is very similar to type 1, with both performing best indoors and providing good protection against falling dirt. A nema 2 enclosure is,. What Is A Type 2 Enclosure.
From mavink.com
Nema Enclosure Chart What Is A Type 2 Enclosure A type 2 enclosure is very similar to type 1, with both performing best indoors and providing good protection against falling dirt. It’s not meant to handle a torrential downpour or total. In this techtalk article, we’ll look at what exactly a. Nema 2 enclosures are indoor electronics enclosures that provide basic protection against common environmental hazards. A nema 2. What Is A Type 2 Enclosure.
From arizona.ph
Nema 3R Enclosure for FEV Combination 2 Pole & 3 Pole Arizona What Is A Type 2 Enclosure Likewise, both types help personnel avoid contact. It’s not meant to handle a torrential downpour or total. A nema 2 enclosure is, for all intents and purposes, the same as a nema 1 enclosure. A type 2 enclosure is very similar to type 1, with both performing best indoors and providing good protection against falling dirt. Nema 2 enclosures are. What Is A Type 2 Enclosure.
From www.scribd.com
Enclosure Spec PDF What Is A Type 2 Enclosure Nema 2 enclosures are indoor electronics enclosures that provide basic protection against common environmental hazards. In this techtalk article, we’ll look at what exactly a. It’s not meant to handle a torrential downpour or total. 17 rows a typical nema enclosure might be rated to provide protection against environmental hazards such as water, dust, oil or coolant or. Likewise, both. What Is A Type 2 Enclosure.
From electroshope.com
ALFANAR Metal Enclosure 600x400x200 IP66 with mounting and gland plates What Is A Type 2 Enclosure In this techtalk article, we’ll look at what exactly a. Nema 2 enclosures are indoor electronics enclosures that provide basic protection against common environmental hazards. 17 rows a typical nema enclosure might be rated to provide protection against environmental hazards such as water, dust, oil or coolant or. A type 2 enclosure is very similar to type 1, with both. What Is A Type 2 Enclosure.
From mavink.com
Nema Enclosure Types Chart What Is A Type 2 Enclosure In this techtalk article, we’ll look at what exactly a. A nema 2 enclosure is, for all intents and purposes, the same as a nema 1 enclosure. Likewise, both types help personnel avoid contact. A type 2 enclosure is very similar to type 1, with both performing best indoors and providing good protection against falling dirt. Nema 2 enclosures are. What Is A Type 2 Enclosure.
From instrumentationtools.com
Free Download Electrical Enclosure Book What Is A Type 2 Enclosure Nema 2 enclosures are indoor electronics enclosures that provide basic protection against common environmental hazards. A type 2 enclosure is very similar to type 1, with both performing best indoors and providing good protection against falling dirt. A nema 2 enclosure is, for all intents and purposes, the same as a nema 1 enclosure. Likewise, both types help personnel avoid. What Is A Type 2 Enclosure.
From www.budind.com
Explosion Proof Aluminum Enclosure ATX10509 Bud Industries What Is A Type 2 Enclosure Nema 2 enclosures are indoor electronics enclosures that provide basic protection against common environmental hazards. A nema 2 enclosure is, for all intents and purposes, the same as a nema 1 enclosure. Likewise, both types help personnel avoid contact. A type 2 enclosure is very similar to type 1, with both performing best indoors and providing good protection against falling. What Is A Type 2 Enclosure.
From www.taydaelectronics.com
TYPE 2 DRILLED 1590B WHITE ENCLOSURE What Is A Type 2 Enclosure Nema 2 enclosures are indoor electronics enclosures that provide basic protection against common environmental hazards. It’s not meant to handle a torrential downpour or total. Likewise, both types help personnel avoid contact. 17 rows a typical nema enclosure might be rated to provide protection against environmental hazards such as water, dust, oil or coolant or. A type 2 enclosure is. What Is A Type 2 Enclosure.
From exojlidwz.blob.core.windows.net
Electrical Control Enclosures at Ralph Sargent blog What Is A Type 2 Enclosure 17 rows a typical nema enclosure might be rated to provide protection against environmental hazards such as water, dust, oil or coolant or. A type 2 enclosure is very similar to type 1, with both performing best indoors and providing good protection against falling dirt. Nema 2 enclosures are indoor electronics enclosures that provide basic protection against common environmental hazards.. What Is A Type 2 Enclosure.