How To Fix A Bottom Entry Float Valve . Replacing a bottom entry fill valve is a common plumbing task that can be easily completed by homeowners with basic tools and. When i found water overflowing i removed my cistern lid to access my toilet silent fill valve’s float. Turn off the water supply: Telescopic valve easily adjustable from 203. I got another one from screwfix. I adjusted the float level so that the cistern water level didn’t rise so high. James shows you the features of the flushking brass shank, fully adjustable, bottom entry fill valve. Often, a fill valve is repaired by simply replacing the entire fill valve , but fluidmaster fill valves can be corrected by just replacing a seal inside the unit. The adjustment is made by turning the long screw which has a hexagonal nut moulded onto it. Locate the water supply valve behind the toilet and turn it clockwise to shut. So this valve broke again, i only replaced it in the summer last year. Adjusting a toilet silent fill valve float. It’s usual to replace like for like when replacing a toilet fill valve but times move on and some old brass fill valves (especially side entry brass ball valves) are perhaps best. Fixing a toilet fill valve (once referred to as a ballcock) is relatively easy to repair if you have a standard fluidmaster brand valve.
from www.bathroom-house.co.uk
Replacing a bottom entry fill valve is a common plumbing task that can be easily completed by homeowners with basic tools and. Locate the water supply valve behind the toilet and turn it clockwise to shut. So this valve broke again, i only replaced it in the summer last year. Often, a fill valve is repaired by simply replacing the entire fill valve , but fluidmaster fill valves can be corrected by just replacing a seal inside the unit. It’s usual to replace like for like when replacing a toilet fill valve but times move on and some old brass fill valves (especially side entry brass ball valves) are perhaps best. I got another one from screwfix. Turn off the water supply: When i found water overflowing i removed my cistern lid to access my toilet silent fill valve’s float. The adjustment is made by turning the long screw which has a hexagonal nut moulded onto it. I adjusted the float level so that the cistern water level didn’t rise so high.
Skylo Bottom Entry Float Valve (1/2" UK) Brass Shank PP0020/B
How To Fix A Bottom Entry Float Valve James shows you the features of the flushking brass shank, fully adjustable, bottom entry fill valve. Locate the water supply valve behind the toilet and turn it clockwise to shut. Replacing a bottom entry fill valve is a common plumbing task that can be easily completed by homeowners with basic tools and. Adjusting a toilet silent fill valve float. Turn off the water supply: It’s usual to replace like for like when replacing a toilet fill valve but times move on and some old brass fill valves (especially side entry brass ball valves) are perhaps best. I got another one from screwfix. So this valve broke again, i only replaced it in the summer last year. Fixing a toilet fill valve (once referred to as a ballcock) is relatively easy to repair if you have a standard fluidmaster brand valve. Telescopic valve easily adjustable from 203. I adjusted the float level so that the cistern water level didn’t rise so high. The adjustment is made by turning the long screw which has a hexagonal nut moulded onto it. James shows you the features of the flushking brass shank, fully adjustable, bottom entry fill valve. Often, a fill valve is repaired by simply replacing the entire fill valve , but fluidmaster fill valves can be corrected by just replacing a seal inside the unit. When i found water overflowing i removed my cistern lid to access my toilet silent fill valve’s float.
From toiletinc.com
How a Toilet Fill Valve Works sample How To Fix A Bottom Entry Float Valve Replacing a bottom entry fill valve is a common plumbing task that can be easily completed by homeowners with basic tools and. I got another one from screwfix. Often, a fill valve is repaired by simply replacing the entire fill valve , but fluidmaster fill valves can be corrected by just replacing a seal inside the unit. Turn off the. How To Fix A Bottom Entry Float Valve.
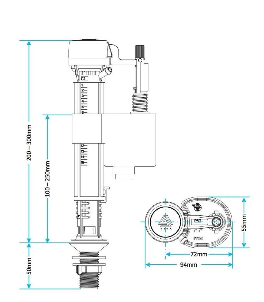
From www.desertcart.jp
Buy Byakns Toilet Push Button Fill Valve, Bottom Entry Float Flush How To Fix A Bottom Entry Float Valve I adjusted the float level so that the cistern water level didn’t rise so high. Locate the water supply valve behind the toilet and turn it clockwise to shut. Replacing a bottom entry fill valve is a common plumbing task that can be easily completed by homeowners with basic tools and. When i found water overflowing i removed my cistern. How To Fix A Bottom Entry Float Valve.
From www.inf-inet.com
Adjust Fluidmaster Fill Valve How To Fix A Bottom Entry Float Valve Adjusting a toilet silent fill valve float. Replacing a bottom entry fill valve is a common plumbing task that can be easily completed by homeowners with basic tools and. The adjustment is made by turning the long screw which has a hexagonal nut moulded onto it. When i found water overflowing i removed my cistern lid to access my toilet. How To Fix A Bottom Entry Float Valve.
From toilethaven.com
How to Fix a Running ToiletYou Don't Need a Plumber Toilet Haven How To Fix A Bottom Entry Float Valve Telescopic valve easily adjustable from 203. Turn off the water supply: So this valve broke again, i only replaced it in the summer last year. Replacing a bottom entry fill valve is a common plumbing task that can be easily completed by homeowners with basic tools and. When i found water overflowing i removed my cistern lid to access my. How To Fix A Bottom Entry Float Valve.
From www.free-valve.com
Pneumatic Tank Bottom Angle Valve ,Vessel Bottom Valve,Tank Bottom How To Fix A Bottom Entry Float Valve Replacing a bottom entry fill valve is a common plumbing task that can be easily completed by homeowners with basic tools and. It’s usual to replace like for like when replacing a toilet fill valve but times move on and some old brass fill valves (especially side entry brass ball valves) are perhaps best. When i found water overflowing i. How To Fix A Bottom Entry Float Valve.
From www.ukstocksale.com
1/2″ BRASS SHANK BOTTOM ENTRY INLET FILL FLOAT VALVE HEIGHT ADJUSTABLE How To Fix A Bottom Entry Float Valve Often, a fill valve is repaired by simply replacing the entire fill valve , but fluidmaster fill valves can be corrected by just replacing a seal inside the unit. When i found water overflowing i removed my cistern lid to access my toilet silent fill valve’s float. Turn off the water supply: I adjusted the float level so that the. How To Fix A Bottom Entry Float Valve.
From exowucqze.blob.core.windows.net
How To Adjust Ball Valve In Toilet at Corey Davey blog How To Fix A Bottom Entry Float Valve So this valve broke again, i only replaced it in the summer last year. Adjusting a toilet silent fill valve float. Locate the water supply valve behind the toilet and turn it clockwise to shut. It’s usual to replace like for like when replacing a toilet fill valve but times move on and some old brass fill valves (especially side. How To Fix A Bottom Entry Float Valve.
From toiletofstory.blogspot.com
How To Replace Toilet Cistern Inlet Valve toilet story How To Fix A Bottom Entry Float Valve I got another one from screwfix. Often, a fill valve is repaired by simply replacing the entire fill valve , but fluidmaster fill valves can be corrected by just replacing a seal inside the unit. Locate the water supply valve behind the toilet and turn it clockwise to shut. So this valve broke again, i only replaced it in the. How To Fix A Bottom Entry Float Valve.
From www.myxxgirl.com
Float Valve Assembly Stuck Repair My XXX Hot Girl How To Fix A Bottom Entry Float Valve Replacing a bottom entry fill valve is a common plumbing task that can be easily completed by homeowners with basic tools and. Fixing a toilet fill valve (once referred to as a ballcock) is relatively easy to repair if you have a standard fluidmaster brand valve. The adjustment is made by turning the long screw which has a hexagonal nut. How To Fix A Bottom Entry Float Valve.
From nzl.grandado.com
Essentials Bottom Entry Float Flush Cistern Valve Fill Valve 1/2 inch How To Fix A Bottom Entry Float Valve Replacing a bottom entry fill valve is a common plumbing task that can be easily completed by homeowners with basic tools and. Turn off the water supply: When i found water overflowing i removed my cistern lid to access my toilet silent fill valve’s float. It’s usual to replace like for like when replacing a toilet fill valve but times. How To Fix A Bottom Entry Float Valve.
From www.fluidmasteruk.com
Pro Bottom Entry Fill Valve 1/2" Brass Shank Fluidmaster How To Fix A Bottom Entry Float Valve When i found water overflowing i removed my cistern lid to access my toilet silent fill valve’s float. Replacing a bottom entry fill valve is a common plumbing task that can be easily completed by homeowners with basic tools and. Locate the water supply valve behind the toilet and turn it clockwise to shut. It’s usual to replace like for. How To Fix A Bottom Entry Float Valve.
From exovrvjrc.blob.core.windows.net
How To Replace A Bottom Entry Flush Valve at Terrie Jackson blog How To Fix A Bottom Entry Float Valve It’s usual to replace like for like when replacing a toilet fill valve but times move on and some old brass fill valves (especially side entry brass ball valves) are perhaps best. Often, a fill valve is repaired by simply replacing the entire fill valve , but fluidmaster fill valves can be corrected by just replacing a seal inside the. How To Fix A Bottom Entry Float Valve.
From nzl.grandado.com
Brand Bottom Entry Float Flush Cistern Valve Fill Valve 1/2 inch How To Fix A Bottom Entry Float Valve Telescopic valve easily adjustable from 203. James shows you the features of the flushking brass shank, fully adjustable, bottom entry fill valve. Fixing a toilet fill valve (once referred to as a ballcock) is relatively easy to repair if you have a standard fluidmaster brand valve. I adjusted the float level so that the cistern water level didn’t rise so. How To Fix A Bottom Entry Float Valve.
From www.bunnings.com.au
FIXALOO Hush Flush Bottom Entry Cistern Inlet Ball Valve How To Fix A Bottom Entry Float Valve The adjustment is made by turning the long screw which has a hexagonal nut moulded onto it. James shows you the features of the flushking brass shank, fully adjustable, bottom entry fill valve. Adjusting a toilet silent fill valve float. Turn off the water supply: Telescopic valve easily adjustable from 203. So this valve broke again, i only replaced it. How To Fix A Bottom Entry Float Valve.
From napnepal.gov.np
Fluidmaster Toilet Cistern Bottom Entry Float Valve Fitting How To Fix A Bottom Entry Float Valve The adjustment is made by turning the long screw which has a hexagonal nut moulded onto it. I got another one from screwfix. Fixing a toilet fill valve (once referred to as a ballcock) is relatively easy to repair if you have a standard fluidmaster brand valve. Replacing a bottom entry fill valve is a common plumbing task that can. How To Fix A Bottom Entry Float Valve.
From exovrvjrc.blob.core.windows.net
How To Replace A Bottom Entry Flush Valve at Terrie Jackson blog How To Fix A Bottom Entry Float Valve James shows you the features of the flushking brass shank, fully adjustable, bottom entry fill valve. The adjustment is made by turning the long screw which has a hexagonal nut moulded onto it. Replacing a bottom entry fill valve is a common plumbing task that can be easily completed by homeowners with basic tools and. Turn off the water supply:. How To Fix A Bottom Entry Float Valve.
From irl.grandado.com
Essentials Bottom Entry Float Flush Cistern Valve Grandado How To Fix A Bottom Entry Float Valve The adjustment is made by turning the long screw which has a hexagonal nut moulded onto it. James shows you the features of the flushking brass shank, fully adjustable, bottom entry fill valve. It’s usual to replace like for like when replacing a toilet fill valve but times move on and some old brass fill valves (especially side entry brass. How To Fix A Bottom Entry Float Valve.
From www.diy.com
Fluidmaster Bottom Entry Float valve Departments DIY at B&Q How To Fix A Bottom Entry Float Valve Adjusting a toilet silent fill valve float. It’s usual to replace like for like when replacing a toilet fill valve but times move on and some old brass fill valves (especially side entry brass ball valves) are perhaps best. The adjustment is made by turning the long screw which has a hexagonal nut moulded onto it. So this valve broke. How To Fix A Bottom Entry Float Valve.
From www.desertcart.ae
Buy Siamp 99T Bottom Entry Adjustable Telescopic Inlet Float Valve 1/2 How To Fix A Bottom Entry Float Valve The adjustment is made by turning the long screw which has a hexagonal nut moulded onto it. Locate the water supply valve behind the toilet and turn it clockwise to shut. Turn off the water supply: It’s usual to replace like for like when replacing a toilet fill valve but times move on and some old brass fill valves (especially. How To Fix A Bottom Entry Float Valve.
From www.plumb2u.com
SIAMP 99B Bottom Entry Inlet Float Valve WRAS approved How To Fix A Bottom Entry Float Valve Turn off the water supply: Often, a fill valve is repaired by simply replacing the entire fill valve , but fluidmaster fill valves can be corrected by just replacing a seal inside the unit. Telescopic valve easily adjustable from 203. James shows you the features of the flushking brass shank, fully adjustable, bottom entry fill valve. Fixing a toilet fill. How To Fix A Bottom Entry Float Valve.
From www.indiantelevision.com
Adjustable Toilet Inlet Valve Flush Valves Cistern Push Button For 品質のいい How To Fix A Bottom Entry Float Valve Turn off the water supply: Fixing a toilet fill valve (once referred to as a ballcock) is relatively easy to repair if you have a standard fluidmaster brand valve. The adjustment is made by turning the long screw which has a hexagonal nut moulded onto it. Telescopic valve easily adjustable from 203. Replacing a bottom entry fill valve is a. How To Fix A Bottom Entry Float Valve.
From www.bathroom-house.co.uk
Skylo Bottom Entry Float Valve (1/2" UK) Brass Shank PP0020/B How To Fix A Bottom Entry Float Valve I adjusted the float level so that the cistern water level didn’t rise so high. It’s usual to replace like for like when replacing a toilet fill valve but times move on and some old brass fill valves (especially side entry brass ball valves) are perhaps best. So this valve broke again, i only replaced it in the summer last. How To Fix A Bottom Entry Float Valve.
From hardwareheaven.ie
Oracstar Armitage Shanks Quiet Fill Float Valve Bottom Entry Float How To Fix A Bottom Entry Float Valve Adjusting a toilet silent fill valve float. When i found water overflowing i removed my cistern lid to access my toilet silent fill valve’s float. Turn off the water supply: I adjusted the float level so that the cistern water level didn’t rise so high. The adjustment is made by turning the long screw which has a hexagonal nut moulded. How To Fix A Bottom Entry Float Valve.
From www.bathroom-house.co.uk
Skylo Bottom Entry Float Valve (1/2" UK) PP0020 Bathroom House How To Fix A Bottom Entry Float Valve The adjustment is made by turning the long screw which has a hexagonal nut moulded onto it. Fixing a toilet fill valve (once referred to as a ballcock) is relatively easy to repair if you have a standard fluidmaster brand valve. Telescopic valve easily adjustable from 203. Locate the water supply valve behind the toilet and turn it clockwise to. How To Fix A Bottom Entry Float Valve.
From www.emergency-plumber-uk.co.uk
How to Change a Flomasta BottomEntry Flush Valve on a Toilet How To Fix A Bottom Entry Float Valve Adjusting a toilet silent fill valve float. Turn off the water supply: When i found water overflowing i removed my cistern lid to access my toilet silent fill valve’s float. Fixing a toilet fill valve (once referred to as a ballcock) is relatively easy to repair if you have a standard fluidmaster brand valve. Replacing a bottom entry fill valve. How To Fix A Bottom Entry Float Valve.
From www.ukstocksale.com
Toilet Cistern Bottom Entry Inlet Fill Float Valve Height Adjustable How To Fix A Bottom Entry Float Valve Telescopic valve easily adjustable from 203. Replacing a bottom entry fill valve is a common plumbing task that can be easily completed by homeowners with basic tools and. So this valve broke again, i only replaced it in the summer last year. I got another one from screwfix. It’s usual to replace like for like when replacing a toilet fill. How To Fix A Bottom Entry Float Valve.
From www.bathroom-house.co.uk
Skylo Bottom Entry Float Valve (1/2" UK) PP0020 Bathroom House How To Fix A Bottom Entry Float Valve Turn off the water supply: I got another one from screwfix. Replacing a bottom entry fill valve is a common plumbing task that can be easily completed by homeowners with basic tools and. James shows you the features of the flushking brass shank, fully adjustable, bottom entry fill valve. Often, a fill valve is repaired by simply replacing the entire. How To Fix A Bottom Entry Float Valve.
From hxeyphzsq.blob.core.windows.net
Types Of Toilet Tank Float Valve at Terry Crane blog How To Fix A Bottom Entry Float Valve Replacing a bottom entry fill valve is a common plumbing task that can be easily completed by homeowners with basic tools and. Telescopic valve easily adjustable from 203. Turn off the water supply: Adjusting a toilet silent fill valve float. James shows you the features of the flushking brass shank, fully adjustable, bottom entry fill valve. It’s usual to replace. How To Fix A Bottom Entry Float Valve.
From www.youtube.com
How to Install or Replace a Skylo Bottom Entry Float Valve in a Toilet How To Fix A Bottom Entry Float Valve I adjusted the float level so that the cistern water level didn’t rise so high. Replacing a bottom entry fill valve is a common plumbing task that can be easily completed by homeowners with basic tools and. So this valve broke again, i only replaced it in the summer last year. James shows you the features of the flushking brass. How To Fix A Bottom Entry Float Valve.
From www.pinterest.com
Photo tutorial explaining how to replace a toilet fill valve. A noisy How To Fix A Bottom Entry Float Valve James shows you the features of the flushking brass shank, fully adjustable, bottom entry fill valve. Telescopic valve easily adjustable from 203. Often, a fill valve is repaired by simply replacing the entire fill valve , but fluidmaster fill valves can be corrected by just replacing a seal inside the unit. Adjusting a toilet silent fill valve float. Locate the. How To Fix A Bottom Entry Float Valve.
From www.plumbsparesdirect.com
Skylo Bottom Entry Fill Valve 1/2" BSP PP0020 Plumb Spares Direct How To Fix A Bottom Entry Float Valve The adjustment is made by turning the long screw which has a hexagonal nut moulded onto it. It’s usual to replace like for like when replacing a toilet fill valve but times move on and some old brass fill valves (especially side entry brass ball valves) are perhaps best. Often, a fill valve is repaired by simply replacing the entire. How To Fix A Bottom Entry Float Valve.
From www.diynot.com
Torbeck bottom entry toilet valve leaking DIYnot Forums How To Fix A Bottom Entry Float Valve James shows you the features of the flushking brass shank, fully adjustable, bottom entry fill valve. The adjustment is made by turning the long screw which has a hexagonal nut moulded onto it. Turn off the water supply: I adjusted the float level so that the cistern water level didn’t rise so high. I got another one from screwfix. Fixing. How To Fix A Bottom Entry Float Valve.
From www.amazon.co.uk
Toilet Delchem Cistern Bottom Entry Filling Valve Adjustable Arm 1/2 How To Fix A Bottom Entry Float Valve So this valve broke again, i only replaced it in the summer last year. Often, a fill valve is repaired by simply replacing the entire fill valve , but fluidmaster fill valves can be corrected by just replacing a seal inside the unit. I adjusted the float level so that the cistern water level didn’t rise so high. Turn off. How To Fix A Bottom Entry Float Valve.
From gbr.grandado.com
Essentials Bottom Entry Float Flush Cistern Valve Grandado How To Fix A Bottom Entry Float Valve When i found water overflowing i removed my cistern lid to access my toilet silent fill valve’s float. Replacing a bottom entry fill valve is a common plumbing task that can be easily completed by homeowners with basic tools and. It’s usual to replace like for like when replacing a toilet fill valve but times move on and some old. How To Fix A Bottom Entry Float Valve.
From www.diy.ie
Flomasta Plastic Ball Float valve Bottom entry ½" DIY at B&Q How To Fix A Bottom Entry Float Valve It’s usual to replace like for like when replacing a toilet fill valve but times move on and some old brass fill valves (especially side entry brass ball valves) are perhaps best. Turn off the water supply: I adjusted the float level so that the cistern water level didn’t rise so high. James shows you the features of the flushking. How To Fix A Bottom Entry Float Valve.