How To Rotate A Roof In Xactimate . The number on each face of the roof represents slope in degrees, and the arrow. Move the roof into place. In aerial sketch, you can change the direction of a roof slope. Learn how to modify the shape of a roof using the break tool and roof locks.want to see other. Xactimate desktop (x1) keyboard shortcuts function shortcut sketch save ctrl + s room r wall shift+w roof f browse roof types (while. Estimating just the exterior of a structure.
from www.hfestimates.com
Estimating just the exterior of a structure. The number on each face of the roof represents slope in degrees, and the arrow. Move the roof into place. In aerial sketch, you can change the direction of a roof slope. Learn how to modify the shape of a roof using the break tool and roof locks.want to see other. Xactimate desktop (x1) keyboard shortcuts function shortcut sketch save ctrl + s room r wall shift+w roof f browse roof types (while.
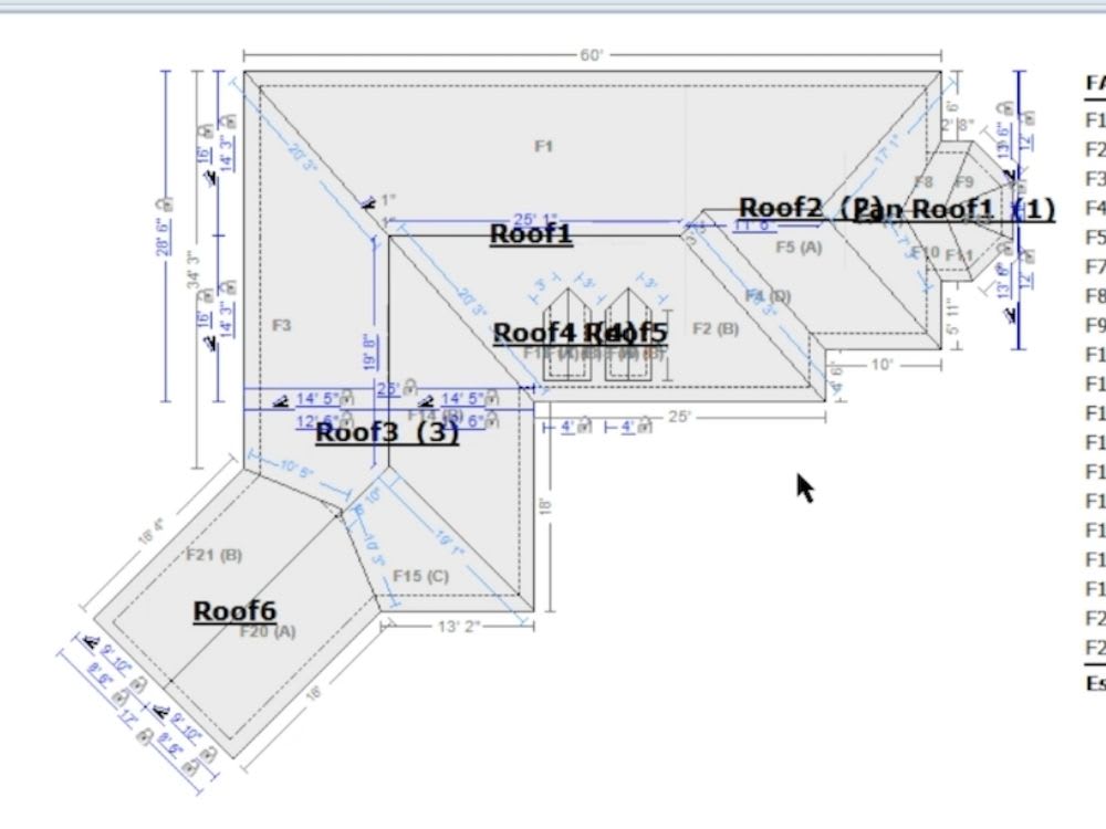
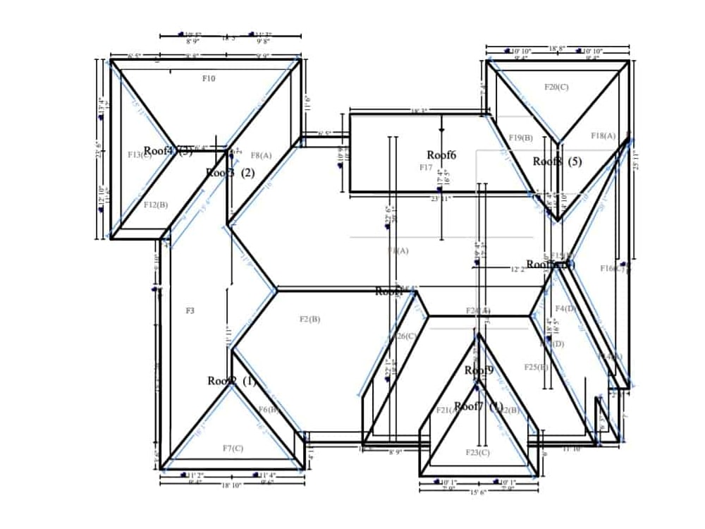
Mastering Xactimate Roofing Sketches A Comprehensive Guide to Roof
How To Rotate A Roof In Xactimate Estimating just the exterior of a structure. Estimating just the exterior of a structure. Xactimate desktop (x1) keyboard shortcuts function shortcut sketch save ctrl + s room r wall shift+w roof f browse roof types (while. Learn how to modify the shape of a roof using the break tool and roof locks.want to see other. The number on each face of the roof represents slope in degrees, and the arrow. Move the roof into place. In aerial sketch, you can change the direction of a roof slope.
From www.upwork.com
Xactimate estimate for your Roof damage Upwork How To Rotate A Roof In Xactimate The number on each face of the roof represents slope in degrees, and the arrow. Learn how to modify the shape of a roof using the break tool and roof locks.want to see other. Xactimate desktop (x1) keyboard shortcuts function shortcut sketch save ctrl + s room r wall shift+w roof f browse roof types (while. Estimating just the exterior. How To Rotate A Roof In Xactimate.
From www.youtube.com
How to draw your roof in Level One Certification in Xactimate How To Rotate A Roof In Xactimate The number on each face of the roof represents slope in degrees, and the arrow. Learn how to modify the shape of a roof using the break tool and roof locks.want to see other. In aerial sketch, you can change the direction of a roof slope. Estimating just the exterior of a structure. Move the roof into place. Xactimate desktop. How To Rotate A Roof In Xactimate.
From mavink.com
Xactimate Roof Types How To Rotate A Roof In Xactimate Xactimate desktop (x1) keyboard shortcuts function shortcut sketch save ctrl + s room r wall shift+w roof f browse roof types (while. The number on each face of the roof represents slope in degrees, and the arrow. In aerial sketch, you can change the direction of a roof slope. Learn how to modify the shape of a roof using the. How To Rotate A Roof In Xactimate.
From www.upwork.com
A professional xactimate roof estimates for accurate insurance claims How To Rotate A Roof In Xactimate Estimating just the exterior of a structure. The number on each face of the roof represents slope in degrees, and the arrow. In aerial sketch, you can change the direction of a roof slope. Xactimate desktop (x1) keyboard shortcuts function shortcut sketch save ctrl + s room r wall shift+w roof f browse roof types (while. Move the roof into. How To Rotate A Roof In Xactimate.
From www.youtube.com
Roof Framing in Xactimate Sketch YouTube How To Rotate A Roof In Xactimate Xactimate desktop (x1) keyboard shortcuts function shortcut sketch save ctrl + s room r wall shift+w roof f browse roof types (while. The number on each face of the roof represents slope in degrees, and the arrow. Move the roof into place. Estimating just the exterior of a structure. Learn how to modify the shape of a roof using the. How To Rotate A Roof In Xactimate.
From www.fiverr.com
Create an xactimate estimate for your residential roofing and exterior How To Rotate A Roof In Xactimate Estimating just the exterior of a structure. Move the roof into place. Xactimate desktop (x1) keyboard shortcuts function shortcut sketch save ctrl + s room r wall shift+w roof f browse roof types (while. In aerial sketch, you can change the direction of a roof slope. The number on each face of the roof represents slope in degrees, and the. How To Rotate A Roof In Xactimate.
From guidelibimbricates.z14.web.core.windows.net
Xactimate X1 User Guide Pdf How To Rotate A Roof In Xactimate Learn how to modify the shape of a roof using the break tool and roof locks.want to see other. In aerial sketch, you can change the direction of a roof slope. Move the roof into place. The number on each face of the roof represents slope in degrees, and the arrow. Xactimate desktop (x1) keyboard shortcuts function shortcut sketch save. How To Rotate A Roof In Xactimate.
From in.eteachers.edu.vn
Details more than 108 xactimate roof sketch tips latest in.eteachers How To Rotate A Roof In Xactimate Learn how to modify the shape of a roof using the break tool and roof locks.want to see other. The number on each face of the roof represents slope in degrees, and the arrow. Xactimate desktop (x1) keyboard shortcuts function shortcut sketch save ctrl + s room r wall shift+w roof f browse roof types (while. In aerial sketch, you. How To Rotate A Roof In Xactimate.
From www.upwork.com
Xactimate estimate for your Roof damage Upwork How To Rotate A Roof In Xactimate Estimating just the exterior of a structure. The number on each face of the roof represents slope in degrees, and the arrow. In aerial sketch, you can change the direction of a roof slope. Learn how to modify the shape of a roof using the break tool and roof locks.want to see other. Move the roof into place. Xactimate desktop. How To Rotate A Roof In Xactimate.
From www.youtube.com
How To Estimate The Roof In Xactimate Mobile X1 (Part 3 of 6) Tips On How To Rotate A Roof In Xactimate Estimating just the exterior of a structure. Move the roof into place. Learn how to modify the shape of a roof using the break tool and roof locks.want to see other. In aerial sketch, you can change the direction of a roof slope. The number on each face of the roof represents slope in degrees, and the arrow. Xactimate desktop. How To Rotate A Roof In Xactimate.
From www.hfestimates.com
Xactimate Roof Estimate Service How To Rotate A Roof In Xactimate Move the roof into place. Estimating just the exterior of a structure. Learn how to modify the shape of a roof using the break tool and roof locks.want to see other. In aerial sketch, you can change the direction of a roof slope. Xactimate desktop (x1) keyboard shortcuts function shortcut sketch save ctrl + s room r wall shift+w roof. How To Rotate A Roof In Xactimate.
From www.upwork.com
Xactimate Roof Estimate with up to 12 Additional Non Roofing Items How To Rotate A Roof In Xactimate Estimating just the exterior of a structure. Learn how to modify the shape of a roof using the break tool and roof locks.want to see other. The number on each face of the roof represents slope in degrees, and the arrow. In aerial sketch, you can change the direction of a roof slope. Move the roof into place. Xactimate desktop. How To Rotate A Roof In Xactimate.
From www.hfestimates.com
The Power of Xactimate Roofing Sketches HF Estimates LLC How To Rotate A Roof In Xactimate The number on each face of the roof represents slope in degrees, and the arrow. Learn how to modify the shape of a roof using the break tool and roof locks.want to see other. Estimating just the exterior of a structure. In aerial sketch, you can change the direction of a roof slope. Xactimate desktop (x1) keyboard shortcuts function shortcut. How To Rotate A Roof In Xactimate.
From www.hfestimates.com
Mastering Xactimate Roofing Sketches A Comprehensive Guide to Roof How To Rotate A Roof In Xactimate Estimating just the exterior of a structure. Move the roof into place. In aerial sketch, you can change the direction of a roof slope. Learn how to modify the shape of a roof using the break tool and roof locks.want to see other. The number on each face of the roof represents slope in degrees, and the arrow. Xactimate desktop. How To Rotate A Roof In Xactimate.
From www.youtube.com
Xactimate Tutorial Hip Roof Sketch YouTube How To Rotate A Roof In Xactimate Estimating just the exterior of a structure. The number on each face of the roof represents slope in degrees, and the arrow. Move the roof into place. In aerial sketch, you can change the direction of a roof slope. Learn how to modify the shape of a roof using the break tool and roof locks.want to see other. Xactimate desktop. How To Rotate A Roof In Xactimate.
From www.youtube.com
Xactimate using Ctrl to add roof sections YouTube How To Rotate A Roof In Xactimate Estimating just the exterior of a structure. The number on each face of the roof represents slope in degrees, and the arrow. Move the roof into place. In aerial sketch, you can change the direction of a roof slope. Learn how to modify the shape of a roof using the break tool and roof locks.want to see other. Xactimate desktop. How To Rotate A Roof In Xactimate.
From www.youtube.com
Diagram a roof using Google Maps in Xactimate X1 (Xactimate) YouTube How To Rotate A Roof In Xactimate Estimating just the exterior of a structure. In aerial sketch, you can change the direction of a roof slope. Learn how to modify the shape of a roof using the break tool and roof locks.want to see other. Move the roof into place. Xactimate desktop (x1) keyboard shortcuts function shortcut sketch save ctrl + s room r wall shift+w roof. How To Rotate A Roof In Xactimate.
From www.youtube.com
Xactimate Xpert Tip How to Sketch an Elevation and add an Exterior How To Rotate A Roof In Xactimate Estimating just the exterior of a structure. Xactimate desktop (x1) keyboard shortcuts function shortcut sketch save ctrl + s room r wall shift+w roof f browse roof types (while. In aerial sketch, you can change the direction of a roof slope. Learn how to modify the shape of a roof using the break tool and roof locks.want to see other.. How To Rotate A Roof In Xactimate.
From www.youtube.com
Xactimate Xpert Tips How to Make a Roof With a Hip and Gable Combined How To Rotate A Roof In Xactimate Move the roof into place. The number on each face of the roof represents slope in degrees, and the arrow. Learn how to modify the shape of a roof using the break tool and roof locks.want to see other. In aerial sketch, you can change the direction of a roof slope. Xactimate desktop (x1) keyboard shortcuts function shortcut sketch save. How To Rotate A Roof In Xactimate.
From www.reddit.com
Need help (advices) on how to sketch this roof, specifically the parts How To Rotate A Roof In Xactimate In aerial sketch, you can change the direction of a roof slope. Move the roof into place. Learn how to modify the shape of a roof using the break tool and roof locks.want to see other. Estimating just the exterior of a structure. Xactimate desktop (x1) keyboard shortcuts function shortcut sketch save ctrl + s room r wall shift+w roof. How To Rotate A Roof In Xactimate.
From www.youtube.com
Xactimate Xpert Tip Adding Dormers to an Existing Roof in Xactimate How To Rotate A Roof In Xactimate In aerial sketch, you can change the direction of a roof slope. The number on each face of the roof represents slope in degrees, and the arrow. Estimating just the exterior of a structure. Learn how to modify the shape of a roof using the break tool and roof locks.want to see other. Xactimate desktop (x1) keyboard shortcuts function shortcut. How To Rotate A Roof In Xactimate.
From www.youtube.com
Roof Sketch Tutorial XACTIMATE X1 YouTube How To Rotate A Roof In Xactimate Move the roof into place. Estimating just the exterior of a structure. In aerial sketch, you can change the direction of a roof slope. Learn how to modify the shape of a roof using the break tool and roof locks.want to see other. The number on each face of the roof represents slope in degrees, and the arrow. Xactimate desktop. How To Rotate A Roof In Xactimate.
From www.youtube.com
Moving or Rotating Roof / Room Labels in Xactimate YouTube How To Rotate A Roof In Xactimate The number on each face of the roof represents slope in degrees, and the arrow. Learn how to modify the shape of a roof using the break tool and roof locks.want to see other. Xactimate desktop (x1) keyboard shortcuts function shortcut sketch save ctrl + s room r wall shift+w roof f browse roof types (while. In aerial sketch, you. How To Rotate A Roof In Xactimate.
From www.youtube.com
Xactimate Xpert Tips Estimating Just the Exterior of a Structure YouTube How To Rotate A Roof In Xactimate Learn how to modify the shape of a roof using the break tool and roof locks.want to see other. Estimating just the exterior of a structure. In aerial sketch, you can change the direction of a roof slope. Xactimate desktop (x1) keyboard shortcuts function shortcut sketch save ctrl + s room r wall shift+w roof f browse roof types (while.. How To Rotate A Roof In Xactimate.
From www.youtube.com
Xactimate slightly more complex roofs hip, etc. YouTube How To Rotate A Roof In Xactimate Estimating just the exterior of a structure. Learn how to modify the shape of a roof using the break tool and roof locks.want to see other. Xactimate desktop (x1) keyboard shortcuts function shortcut sketch save ctrl + s room r wall shift+w roof f browse roof types (while. In aerial sketch, you can change the direction of a roof slope.. How To Rotate A Roof In Xactimate.
From www.youtube.com
Partial Roof Framing in Xactimate Sketch YouTube How To Rotate A Roof In Xactimate Xactimate desktop (x1) keyboard shortcuts function shortcut sketch save ctrl + s room r wall shift+w roof f browse roof types (while. In aerial sketch, you can change the direction of a roof slope. Estimating just the exterior of a structure. Move the roof into place. Learn how to modify the shape of a roof using the break tool and. How To Rotate A Roof In Xactimate.
From www.youtube.com
The RIGHT WAY to write a roof estimate in XACTIMATE YouTube How To Rotate A Roof In Xactimate Estimating just the exterior of a structure. Xactimate desktop (x1) keyboard shortcuts function shortcut sketch save ctrl + s room r wall shift+w roof f browse roof types (while. Learn how to modify the shape of a roof using the break tool and roof locks.want to see other. In aerial sketch, you can change the direction of a roof slope.. How To Rotate A Roof In Xactimate.
From www.upwork.com
Roof and siding xactimate estimate Upwork How To Rotate A Roof In Xactimate Move the roof into place. Xactimate desktop (x1) keyboard shortcuts function shortcut sketch save ctrl + s room r wall shift+w roof f browse roof types (while. The number on each face of the roof represents slope in degrees, and the arrow. Learn how to modify the shape of a roof using the break tool and roof locks.want to see. How To Rotate A Roof In Xactimate.
From www.youtube.com
How to sketch flat top mansard roof in Xactimate (Xactimate) YouTube How To Rotate A Roof In Xactimate The number on each face of the roof represents slope in degrees, and the arrow. Xactimate desktop (x1) keyboard shortcuts function shortcut sketch save ctrl + s room r wall shift+w roof f browse roof types (while. Move the roof into place. In aerial sketch, you can change the direction of a roof slope. Estimating just the exterior of a. How To Rotate A Roof In Xactimate.
From pictwallp.github.io
How To Draw A Sketch In Xactimate for Kindergarten Sketch Art Drawing How To Rotate A Roof In Xactimate Learn how to modify the shape of a roof using the break tool and roof locks.want to see other. Move the roof into place. In aerial sketch, you can change the direction of a roof slope. Estimating just the exterior of a structure. Xactimate desktop (x1) keyboard shortcuts function shortcut sketch save ctrl + s room r wall shift+w roof. How To Rotate A Roof In Xactimate.
From mavink.com
Xactimate Roof Types How To Rotate A Roof In Xactimate In aerial sketch, you can change the direction of a roof slope. The number on each face of the roof represents slope in degrees, and the arrow. Xactimate desktop (x1) keyboard shortcuts function shortcut sketch save ctrl + s room r wall shift+w roof f browse roof types (while. Learn how to modify the shape of a roof using the. How To Rotate A Roof In Xactimate.
From www.youtube.com
Macro in Excel that will allow you to separate your roof pitch for How To Rotate A Roof In Xactimate Estimating just the exterior of a structure. Move the roof into place. The number on each face of the roof represents slope in degrees, and the arrow. Learn how to modify the shape of a roof using the break tool and roof locks.want to see other. In aerial sketch, you can change the direction of a roof slope. Xactimate desktop. How To Rotate A Roof In Xactimate.
From www.bidsestimating.com
Xactimate Roofing A Comprehensive Guide How To Rotate A Roof In Xactimate Learn how to modify the shape of a roof using the break tool and roof locks.want to see other. In aerial sketch, you can change the direction of a roof slope. Estimating just the exterior of a structure. The number on each face of the roof represents slope in degrees, and the arrow. Xactimate desktop (x1) keyboard shortcuts function shortcut. How To Rotate A Roof In Xactimate.
From www.youtube.com
Xactimate Xpert Tip Adding Roof Framing in Sketch YouTube How To Rotate A Roof In Xactimate Estimating just the exterior of a structure. In aerial sketch, you can change the direction of a roof slope. Xactimate desktop (x1) keyboard shortcuts function shortcut sketch save ctrl + s room r wall shift+w roof f browse roof types (while. The number on each face of the roof represents slope in degrees, and the arrow. Learn how to modify. How To Rotate A Roof In Xactimate.
From www.youtube.com
Multi Story Roof Multi Level Roof Part 2 (Xactimate) YouTube How To Rotate A Roof In Xactimate Move the roof into place. The number on each face of the roof represents slope in degrees, and the arrow. Xactimate desktop (x1) keyboard shortcuts function shortcut sketch save ctrl + s room r wall shift+w roof f browse roof types (while. Estimating just the exterior of a structure. In aerial sketch, you can change the direction of a roof. How To Rotate A Roof In Xactimate.