Depending On The Situation Real Estate Taxes Are Reported On Which Forms . Real estate taxes are usually divided so that you and the seller each pay taxes for the part of the property tax year that each owned the home. See real estate taxes paid at settlement. Real estate taxes are necessary components of any real estate investment. Most state and local governments charge an annual tax on the value of real property that you own. If you pay taxes on your personal property and real estate that you own, you payments may be deductible from your federal income tax bill. B) only on schedule a or c. Most state and local tax authorities calculate property. Questions and answers pertaining to rental real estate tax. Tips on rental real estate income, deductions and recordkeeping. A) only on schedule a. You're typically allowed to reduce your rental income by subtracting expenses that you incur to get your property ready to rent, and then to maintain it as a rental. Any of these real estate taxes (also called property. Learn more about property taxes, tax deductions, and capital gains taxes here. Depending on the situation, real estate taxes are reported on which form (s):
from realestatetaxtips.ca
You're typically allowed to reduce your rental income by subtracting expenses that you incur to get your property ready to rent, and then to maintain it as a rental. Real estate taxes are usually divided so that you and the seller each pay taxes for the part of the property tax year that each owned the home. Questions and answers pertaining to rental real estate tax. Any of these real estate taxes (also called property. Most state and local tax authorities calculate property. Most state and local governments charge an annual tax on the value of real property that you own. Depending on the situation, real estate taxes are reported on which form (s): Tips on rental real estate income, deductions and recordkeeping. B) only on schedule a or c. See real estate taxes paid at settlement.
What You Need to Know about Tax Implications Upon Death Real Estate Tax Tips
Depending On The Situation Real Estate Taxes Are Reported On Which Forms Tips on rental real estate income, deductions and recordkeeping. You're typically allowed to reduce your rental income by subtracting expenses that you incur to get your property ready to rent, and then to maintain it as a rental. Most state and local tax authorities calculate property. Tips on rental real estate income, deductions and recordkeeping. Learn more about property taxes, tax deductions, and capital gains taxes here. Depending on the situation, real estate taxes are reported on which form (s): Most state and local governments charge an annual tax on the value of real property that you own. Any of these real estate taxes (also called property. If you pay taxes on your personal property and real estate that you own, you payments may be deductible from your federal income tax bill. See real estate taxes paid at settlement. A) only on schedule a. Real estate taxes are necessary components of any real estate investment. Questions and answers pertaining to rental real estate tax. Real estate taxes are usually divided so that you and the seller each pay taxes for the part of the property tax year that each owned the home. B) only on schedule a or c.
From blog.turbotax.intuit.com
Real Estate Taxes vs. Property Taxes Intuit TurboTax Blog Depending On The Situation Real Estate Taxes Are Reported On Which Forms You're typically allowed to reduce your rental income by subtracting expenses that you incur to get your property ready to rent, and then to maintain it as a rental. Most state and local governments charge an annual tax on the value of real property that you own. Tips on rental real estate income, deductions and recordkeeping. Most state and local. Depending On The Situation Real Estate Taxes Are Reported On Which Forms.
From www.quickenloans.com
Real Estate Taxes Vs. Property Taxes Quicken Loans Depending On The Situation Real Estate Taxes Are Reported On Which Forms B) only on schedule a or c. If you pay taxes on your personal property and real estate that you own, you payments may be deductible from your federal income tax bill. See real estate taxes paid at settlement. Learn more about property taxes, tax deductions, and capital gains taxes here. Questions and answers pertaining to rental real estate tax.. Depending On The Situation Real Estate Taxes Are Reported On Which Forms.
From www.pinterest.com
How to Deduct Property Taxes On IRS Tax Forms Irs tax forms, Mortgage interest, Irs taxes Depending On The Situation Real Estate Taxes Are Reported On Which Forms Tips on rental real estate income, deductions and recordkeeping. A) only on schedule a. Questions and answers pertaining to rental real estate tax. Depending on the situation, real estate taxes are reported on which form (s): Most state and local tax authorities calculate property. Most state and local governments charge an annual tax on the value of real property that. Depending On The Situation Real Estate Taxes Are Reported On Which Forms.
From www.casscountynd.gov
Understanding Your Property Tax Statement Cass County, ND Depending On The Situation Real Estate Taxes Are Reported On Which Forms If you pay taxes on your personal property and real estate that you own, you payments may be deductible from your federal income tax bill. Tips on rental real estate income, deductions and recordkeeping. Depending on the situation, real estate taxes are reported on which form (s): Questions and answers pertaining to rental real estate tax. Real estate taxes are. Depending On The Situation Real Estate Taxes Are Reported On Which Forms.
From www.icsl.edu.gr
How To Calculate Property Tax In Texas Depending On The Situation Real Estate Taxes Are Reported On Which Forms Tips on rental real estate income, deductions and recordkeeping. Real estate taxes are necessary components of any real estate investment. See real estate taxes paid at settlement. B) only on schedule a or c. Most state and local governments charge an annual tax on the value of real property that you own. A) only on schedule a. You're typically allowed. Depending On The Situation Real Estate Taxes Are Reported On Which Forms.
From www.sampleforms.com
FREE 14+ Tax Statement Forms in PDF MS Word Depending On The Situation Real Estate Taxes Are Reported On Which Forms Any of these real estate taxes (also called property. B) only on schedule a or c. You're typically allowed to reduce your rental income by subtracting expenses that you incur to get your property ready to rent, and then to maintain it as a rental. A) only on schedule a. Most state and local tax authorities calculate property. Most state. Depending On The Situation Real Estate Taxes Are Reported On Which Forms.
From www.slideserve.com
PPT Sample 201011 Property Tax Report Card PowerPoint Presentation, free download ID160075 Depending On The Situation Real Estate Taxes Are Reported On Which Forms B) only on schedule a or c. Questions and answers pertaining to rental real estate tax. Most state and local tax authorities calculate property. Any of these real estate taxes (also called property. Learn more about property taxes, tax deductions, and capital gains taxes here. Tips on rental real estate income, deductions and recordkeeping. You're typically allowed to reduce your. Depending On The Situation Real Estate Taxes Are Reported On Which Forms.
From chucksplaceonb.com
Real Estate Taxes vs Property Taxes What Are the Differences? Chuck's Place on Blog Depending On The Situation Real Estate Taxes Are Reported On Which Forms Depending on the situation, real estate taxes are reported on which form (s): Learn more about property taxes, tax deductions, and capital gains taxes here. Most state and local governments charge an annual tax on the value of real property that you own. If you pay taxes on your personal property and real estate that you own, you payments may. Depending On The Situation Real Estate Taxes Are Reported On Which Forms.
From www.landlordstudio.com
Landlord tax documents Everything you need to know for tax season Depending On The Situation Real Estate Taxes Are Reported On Which Forms B) only on schedule a or c. Depending on the situation, real estate taxes are reported on which form (s): Learn more about property taxes, tax deductions, and capital gains taxes here. A) only on schedule a. Tips on rental real estate income, deductions and recordkeeping. Real estate taxes are usually divided so that you and the seller each pay. Depending On The Situation Real Estate Taxes Are Reported On Which Forms.
From www.sampleforms.com
FREE 8+ Sample Tax Verification Forms in PDF Depending On The Situation Real Estate Taxes Are Reported On Which Forms Most state and local governments charge an annual tax on the value of real property that you own. See real estate taxes paid at settlement. Most state and local tax authorities calculate property. B) only on schedule a or c. A) only on schedule a. Real estate taxes are usually divided so that you and the seller each pay taxes. Depending On The Situation Real Estate Taxes Are Reported On Which Forms.
From taxguide101.akistepinska.com
The 15 Most Common Tax Forms in 2022 (+Infographics) Tax Guide 101 Depending On The Situation Real Estate Taxes Are Reported On Which Forms Most state and local tax authorities calculate property. Depending on the situation, real estate taxes are reported on which form (s): Real estate taxes are usually divided so that you and the seller each pay taxes for the part of the property tax year that each owned the home. Most state and local governments charge an annual tax on the. Depending On The Situation Real Estate Taxes Are Reported On Which Forms.
From theadvisermagazine.com
How To Maximize Your Real Estate Tax Benefits Depending On The Situation Real Estate Taxes Are Reported On Which Forms Tips on rental real estate income, deductions and recordkeeping. Real estate taxes are necessary components of any real estate investment. Most state and local tax authorities calculate property. Real estate taxes are usually divided so that you and the seller each pay taxes for the part of the property tax year that each owned the home. B) only on schedule. Depending On The Situation Real Estate Taxes Are Reported On Which Forms.
From www.templateroller.com
Download Instructions for Form 5403 Declaration of Estimated Tax Real Estate Tax Return Depending On The Situation Real Estate Taxes Are Reported On Which Forms Depending on the situation, real estate taxes are reported on which form (s): If you pay taxes on your personal property and real estate that you own, you payments may be deductible from your federal income tax bill. Any of these real estate taxes (also called property. You're typically allowed to reduce your rental income by subtracting expenses that you. Depending On The Situation Real Estate Taxes Are Reported On Which Forms.
From www.formsbank.com
Fillable Form 5403 Real Estate Tax Return Declaration Of Estimated Tax 2015 printable Depending On The Situation Real Estate Taxes Are Reported On Which Forms Learn more about property taxes, tax deductions, and capital gains taxes here. See real estate taxes paid at settlement. Real estate taxes are usually divided so that you and the seller each pay taxes for the part of the property tax year that each owned the home. A) only on schedule a. Depending on the situation, real estate taxes are. Depending On The Situation Real Estate Taxes Are Reported On Which Forms.
From www.sampleforms.com
FREE 18+ Sample Real Estate Forms in PDF Excel Word Depending On The Situation Real Estate Taxes Are Reported On Which Forms Real estate taxes are necessary components of any real estate investment. Questions and answers pertaining to rental real estate tax. B) only on schedule a or c. Most state and local governments charge an annual tax on the value of real property that you own. Real estate taxes are usually divided so that you and the seller each pay taxes. Depending On The Situation Real Estate Taxes Are Reported On Which Forms.
From www.wikihow.com
How to Report the Sale of Inherited Property on a Tax Return Depending On The Situation Real Estate Taxes Are Reported On Which Forms Learn more about property taxes, tax deductions, and capital gains taxes here. Real estate taxes are usually divided so that you and the seller each pay taxes for the part of the property tax year that each owned the home. A) only on schedule a. Most state and local governments charge an annual tax on the value of real property. Depending On The Situation Real Estate Taxes Are Reported On Which Forms.
From www.formsbank.com
Real Estate Tax Installment Application Instructions printable pdf download Depending On The Situation Real Estate Taxes Are Reported On Which Forms You're typically allowed to reduce your rental income by subtracting expenses that you incur to get your property ready to rent, and then to maintain it as a rental. B) only on schedule a or c. Most state and local governments charge an annual tax on the value of real property that you own. Real estate taxes are usually divided. Depending On The Situation Real Estate Taxes Are Reported On Which Forms.
From www.signnow.com
Ordinances and Real Estate Taxes for the Year 20 Form Fill Out and Sign Printable PDF Template Depending On The Situation Real Estate Taxes Are Reported On Which Forms Any of these real estate taxes (also called property. If you pay taxes on your personal property and real estate that you own, you payments may be deductible from your federal income tax bill. Learn more about property taxes, tax deductions, and capital gains taxes here. A) only on schedule a. Real estate taxes are usually divided so that you. Depending On The Situation Real Estate Taxes Are Reported On Which Forms.
From power96radio.com
First Half Real Estate Taxes Due Today Depending On The Situation Real Estate Taxes Are Reported On Which Forms Questions and answers pertaining to rental real estate tax. Most state and local tax authorities calculate property. Most state and local governments charge an annual tax on the value of real property that you own. Tips on rental real estate income, deductions and recordkeeping. Depending on the situation, real estate taxes are reported on which form (s): B) only on. Depending On The Situation Real Estate Taxes Are Reported On Which Forms.
From www.fool.com
Real Estate Taxes A Complete Guide to The Basics The Ascent by Motley Fool Depending On The Situation Real Estate Taxes Are Reported On Which Forms Most state and local tax authorities calculate property. Any of these real estate taxes (also called property. Learn more about property taxes, tax deductions, and capital gains taxes here. Questions and answers pertaining to rental real estate tax. Depending on the situation, real estate taxes are reported on which form (s): You're typically allowed to reduce your rental income by. Depending On The Situation Real Estate Taxes Are Reported On Which Forms.
From taxwalls.blogspot.com
How To Calculate Real Estate Tax Deduction Tax Walls Depending On The Situation Real Estate Taxes Are Reported On Which Forms You're typically allowed to reduce your rental income by subtracting expenses that you incur to get your property ready to rent, and then to maintain it as a rental. Real estate taxes are necessary components of any real estate investment. Most state and local governments charge an annual tax on the value of real property that you own. Most state. Depending On The Situation Real Estate Taxes Are Reported On Which Forms.
From www.pinterest.com
Real estate tax deductions Real estate tips, Real estate fun, Real estate advice Depending On The Situation Real Estate Taxes Are Reported On Which Forms Learn more about property taxes, tax deductions, and capital gains taxes here. Real estate taxes are necessary components of any real estate investment. Real estate taxes are usually divided so that you and the seller each pay taxes for the part of the property tax year that each owned the home. Most state and local governments charge an annual tax. Depending On The Situation Real Estate Taxes Are Reported On Which Forms.
From www.biggerpockets.com
The Ultimate Guide to Real Estate Taxes & Deductions Depending On The Situation Real Estate Taxes Are Reported On Which Forms See real estate taxes paid at settlement. Real estate taxes are usually divided so that you and the seller each pay taxes for the part of the property tax year that each owned the home. If you pay taxes on your personal property and real estate that you own, you payments may be deductible from your federal income tax bill.. Depending On The Situation Real Estate Taxes Are Reported On Which Forms.
From www.lamansiondelasideas.com
A Clear Understanding of Property Taxes and Real Estate Taxes Depending On The Situation Real Estate Taxes Are Reported On Which Forms A) only on schedule a. Most state and local tax authorities calculate property. Real estate taxes are usually divided so that you and the seller each pay taxes for the part of the property tax year that each owned the home. You're typically allowed to reduce your rental income by subtracting expenses that you incur to get your property ready. Depending On The Situation Real Estate Taxes Are Reported On Which Forms.
From lao.ca.gov
Understanding California’s Property Taxes Depending On The Situation Real Estate Taxes Are Reported On Which Forms Real estate taxes are necessary components of any real estate investment. Questions and answers pertaining to rental real estate tax. You're typically allowed to reduce your rental income by subtracting expenses that you incur to get your property ready to rent, and then to maintain it as a rental. Any of these real estate taxes (also called property. Learn more. Depending On The Situation Real Estate Taxes Are Reported On Which Forms.
From www.templateroller.com
IRS Form 1066 Download Fillable PDF or Fill Online U.S. Real Estate Mortgage Investment Conduit Depending On The Situation Real Estate Taxes Are Reported On Which Forms Most state and local governments charge an annual tax on the value of real property that you own. Most state and local tax authorities calculate property. B) only on schedule a or c. Any of these real estate taxes (also called property. Depending on the situation, real estate taxes are reported on which form (s): A) only on schedule a.. Depending On The Situation Real Estate Taxes Are Reported On Which Forms.
From www.bria.com.ph
Taxes in Real Estate Here's what you should know Bria Homes Depending On The Situation Real Estate Taxes Are Reported On Which Forms Real estate taxes are usually divided so that you and the seller each pay taxes for the part of the property tax year that each owned the home. Real estate taxes are necessary components of any real estate investment. Questions and answers pertaining to rental real estate tax. Any of these real estate taxes (also called property. A) only on. Depending On The Situation Real Estate Taxes Are Reported On Which Forms.
From www.templateroller.com
Download Instructions for Form REWEST Real Estate Tax Return Declaration of Estimated Depending On The Situation Real Estate Taxes Are Reported On Which Forms A) only on schedule a. Most state and local tax authorities calculate property. Any of these real estate taxes (also called property. Tips on rental real estate income, deductions and recordkeeping. Most state and local governments charge an annual tax on the value of real property that you own. Questions and answers pertaining to rental real estate tax. Real estate. Depending On The Situation Real Estate Taxes Are Reported On Which Forms.
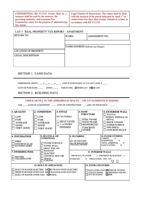
From www.formsbank.com
Lat 3 Real Property Tax Report Apartment printable pdf download Depending On The Situation Real Estate Taxes Are Reported On Which Forms Learn more about property taxes, tax deductions, and capital gains taxes here. Depending on the situation, real estate taxes are reported on which form (s): A) only on schedule a. See real estate taxes paid at settlement. Real estate taxes are necessary components of any real estate investment. Most state and local governments charge an annual tax on the value. Depending On The Situation Real Estate Taxes Are Reported On Which Forms.
From realestatetaxtips.ca
What You Need to Know about Tax Implications Upon Death Real Estate Tax Tips Depending On The Situation Real Estate Taxes Are Reported On Which Forms Questions and answers pertaining to rental real estate tax. If you pay taxes on your personal property and real estate that you own, you payments may be deductible from your federal income tax bill. Tips on rental real estate income, deductions and recordkeeping. A) only on schedule a. Depending on the situation, real estate taxes are reported on which form. Depending On The Situation Real Estate Taxes Are Reported On Which Forms.
From www.signnow.com
Real Estate Agent Tax Deductions Worksheet PDF airSlate SignNow Depending On The Situation Real Estate Taxes Are Reported On Which Forms You're typically allowed to reduce your rental income by subtracting expenses that you incur to get your property ready to rent, and then to maintain it as a rental. Depending on the situation, real estate taxes are reported on which form (s): B) only on schedule a or c. Most state and local governments charge an annual tax on the. Depending On The Situation Real Estate Taxes Are Reported On Which Forms.
From www.signnow.com
541 20212024 Form Fill Out and Sign Printable PDF Template airSlate SignNow Depending On The Situation Real Estate Taxes Are Reported On Which Forms Depending on the situation, real estate taxes are reported on which form (s): Most state and local governments charge an annual tax on the value of real property that you own. Any of these real estate taxes (also called property. Most state and local tax authorities calculate property. Real estate taxes are usually divided so that you and the seller. Depending On The Situation Real Estate Taxes Are Reported On Which Forms.
From www.studocu.com
BIR Form 1801Estate Tax Return 2018 version For BIR Use Only BCS/ Item BIR Form No. 1801 Depending On The Situation Real Estate Taxes Are Reported On Which Forms B) only on schedule a or c. Any of these real estate taxes (also called property. If you pay taxes on your personal property and real estate that you own, you payments may be deductible from your federal income tax bill. Real estate taxes are usually divided so that you and the seller each pay taxes for the part of. Depending On The Situation Real Estate Taxes Are Reported On Which Forms.
From homelandrealestate.net
How to Calculate Real Estate Taxes in Cook County A Comprehensive Guide Homeland Real Estate Depending On The Situation Real Estate Taxes Are Reported On Which Forms Most state and local tax authorities calculate property. B) only on schedule a or c. Real estate taxes are usually divided so that you and the seller each pay taxes for the part of the property tax year that each owned the home. Tips on rental real estate income, deductions and recordkeeping. Any of these real estate taxes (also called. Depending On The Situation Real Estate Taxes Are Reported On Which Forms.
From realtytimes.com
How Are Real Estate Taxes Determined? Realty Times Depending On The Situation Real Estate Taxes Are Reported On Which Forms You're typically allowed to reduce your rental income by subtracting expenses that you incur to get your property ready to rent, and then to maintain it as a rental. If you pay taxes on your personal property and real estate that you own, you payments may be deductible from your federal income tax bill. Any of these real estate taxes. Depending On The Situation Real Estate Taxes Are Reported On Which Forms.