How Much Space Do You Need To Enclose A Toilet . It’s best to plan a clear floor space of at least 760mm from the front edge of all fixtures (basin, toilet,. The standard toilet is 130 centimeters long and 70 centimeters wide—about 51 inches by 25 inches. a minimum clearance in front of the toilet of at least 21 inches. This is required for all your bathroom fixtures, including the. Having access to a bathroom is, above all,. ensure the toilet is installed with a maximum space of 16 to 18 inches or 41 to 46 centimeters away from the side wall and. — make sure that when you’re planning your toilet room, you keep the toilet in mind. Additionally, it’s a good idea to provide at least 24 inches of clear. Published on june 30, 2020. — the best toilet rooms are typically at least 36 inches wide. Failing to accommodate this space will result in a toilet room that no one can properly use! — it is important that you make yourself aware of the minimum clearance space required around a toilet before you can begin.
from designingidea.com
a minimum clearance in front of the toilet of at least 21 inches. This is required for all your bathroom fixtures, including the. ensure the toilet is installed with a maximum space of 16 to 18 inches or 41 to 46 centimeters away from the side wall and. It’s best to plan a clear floor space of at least 760mm from the front edge of all fixtures (basin, toilet,. Published on june 30, 2020. The standard toilet is 130 centimeters long and 70 centimeters wide—about 51 inches by 25 inches. Additionally, it’s a good idea to provide at least 24 inches of clear. Failing to accommodate this space will result in a toilet room that no one can properly use! — it is important that you make yourself aware of the minimum clearance space required around a toilet before you can begin. — the best toilet rooms are typically at least 36 inches wide.
Toilet Dimensions (Standard Types & Seat Sizes) Designing Idea
How Much Space Do You Need To Enclose A Toilet — it is important that you make yourself aware of the minimum clearance space required around a toilet before you can begin. This is required for all your bathroom fixtures, including the. Having access to a bathroom is, above all,. Published on june 30, 2020. Additionally, it’s a good idea to provide at least 24 inches of clear. — it is important that you make yourself aware of the minimum clearance space required around a toilet before you can begin. The standard toilet is 130 centimeters long and 70 centimeters wide—about 51 inches by 25 inches. Failing to accommodate this space will result in a toilet room that no one can properly use! — make sure that when you’re planning your toilet room, you keep the toilet in mind. a minimum clearance in front of the toilet of at least 21 inches. ensure the toilet is installed with a maximum space of 16 to 18 inches or 41 to 46 centimeters away from the side wall and. — the best toilet rooms are typically at least 36 inches wide. It’s best to plan a clear floor space of at least 760mm from the front edge of all fixtures (basin, toilet,.
From www.houzz.com
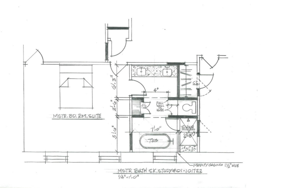
Is there any way to enclose the primary bath toilet? How Much Space Do You Need To Enclose A Toilet Having access to a bathroom is, above all,. — make sure that when you’re planning your toilet room, you keep the toilet in mind. Additionally, it’s a good idea to provide at least 24 inches of clear. — it is important that you make yourself aware of the minimum clearance space required around a toilet before you can. How Much Space Do You Need To Enclose A Toilet.
From www.wayfair.com
Bathroom Layout Ideas Your Guide to Bathroom SpacePlanning Wayfair How Much Space Do You Need To Enclose A Toilet Having access to a bathroom is, above all,. Published on june 30, 2020. a minimum clearance in front of the toilet of at least 21 inches. This is required for all your bathroom fixtures, including the. — the best toilet rooms are typically at least 36 inches wide. Additionally, it’s a good idea to provide at least 24. How Much Space Do You Need To Enclose A Toilet.
From www.housedigest.com
Here's How Much Space Should Be Between Your Toilet And Shower How Much Space Do You Need To Enclose A Toilet Having access to a bathroom is, above all,. The standard toilet is 130 centimeters long and 70 centimeters wide—about 51 inches by 25 inches. — make sure that when you’re planning your toilet room, you keep the toilet in mind. — it is important that you make yourself aware of the minimum clearance space required around a toilet. How Much Space Do You Need To Enclose A Toilet.
From engineeringdiscoveries.com
Bathroom Layout Dimensions Engineering Discoveries How Much Space Do You Need To Enclose A Toilet — it is important that you make yourself aware of the minimum clearance space required around a toilet before you can begin. ensure the toilet is installed with a maximum space of 16 to 18 inches or 41 to 46 centimeters away from the side wall and. — make sure that when you’re planning your toilet room,. How Much Space Do You Need To Enclose A Toilet.
From tannersagoerc28621.blogspot.com
Plumbing Code Requirements For Toilet Installation / National Standard How Much Space Do You Need To Enclose A Toilet Published on june 30, 2020. — it is important that you make yourself aware of the minimum clearance space required around a toilet before you can begin. a minimum clearance in front of the toilet of at least 21 inches. This is required for all your bathroom fixtures, including the. — make sure that when you’re planning. How Much Space Do You Need To Enclose A Toilet.
From engineeringfeed.com
Standard Bathroom Rules and Guidelines with Measurements Engineering Feed How Much Space Do You Need To Enclose A Toilet — the best toilet rooms are typically at least 36 inches wide. Published on june 30, 2020. Additionally, it’s a good idea to provide at least 24 inches of clear. Failing to accommodate this space will result in a toilet room that no one can properly use! ensure the toilet is installed with a maximum space of 16. How Much Space Do You Need To Enclose A Toilet.
From civilgang.com
How Much Space Do You Need Around a Toilet What Are Space How Much Space Do You Need To Enclose A Toilet — it is important that you make yourself aware of the minimum clearance space required around a toilet before you can begin. — make sure that when you’re planning your toilet room, you keep the toilet in mind. ensure the toilet is installed with a maximum space of 16 to 18 inches or 41 to 46 centimeters. How Much Space Do You Need To Enclose A Toilet.
From gaskintopfurnish.blogspot.com
How Much Space Do You Need For A Toilet / bathroomflooring Tegels in How Much Space Do You Need To Enclose A Toilet — it is important that you make yourself aware of the minimum clearance space required around a toilet before you can begin. Published on june 30, 2020. — the best toilet rooms are typically at least 36 inches wide. ensure the toilet is installed with a maximum space of 16 to 18 inches or 41 to 46. How Much Space Do You Need To Enclose A Toilet.
From wurld.blogspot.com
bathroom layout clearances toilet clearance residential Google How Much Space Do You Need To Enclose A Toilet The standard toilet is 130 centimeters long and 70 centimeters wide—about 51 inches by 25 inches. Additionally, it’s a good idea to provide at least 24 inches of clear. a minimum clearance in front of the toilet of at least 21 inches. It’s best to plan a clear floor space of at least 760mm from the front edge of. How Much Space Do You Need To Enclose A Toilet.
From gambrick.com
How Much Space Do You Need Around A Toilet? Bathroom Design How Much Space Do You Need To Enclose A Toilet Published on june 30, 2020. It’s best to plan a clear floor space of at least 760mm from the front edge of all fixtures (basin, toilet,. Having access to a bathroom is, above all,. This is required for all your bathroom fixtures, including the. — make sure that when you’re planning your toilet room, you keep the toilet in. How Much Space Do You Need To Enclose A Toilet.
From www.houzz.co.uk
How much space is needed to fit a toilet between a shower and vanity? How Much Space Do You Need To Enclose A Toilet It’s best to plan a clear floor space of at least 760mm from the front edge of all fixtures (basin, toilet,. ensure the toilet is installed with a maximum space of 16 to 18 inches or 41 to 46 centimeters away from the side wall and. a minimum clearance in front of the toilet of at least 21. How Much Space Do You Need To Enclose A Toilet.
From www.houzz.com
Is there any way to enclose the primary bath toilet? How Much Space Do You Need To Enclose A Toilet Additionally, it’s a good idea to provide at least 24 inches of clear. ensure the toilet is installed with a maximum space of 16 to 18 inches or 41 to 46 centimeters away from the side wall and. The standard toilet is 130 centimeters long and 70 centimeters wide—about 51 inches by 25 inches. — it is important. How Much Space Do You Need To Enclose A Toilet.
From highshower.com
Toilet Placement Distance from the Walls, Ceiling & Fixtures How Much Space Do You Need To Enclose A Toilet Failing to accommodate this space will result in a toilet room that no one can properly use! — the best toilet rooms are typically at least 36 inches wide. This is required for all your bathroom fixtures, including the. It’s best to plan a clear floor space of at least 760mm from the front edge of all fixtures (basin,. How Much Space Do You Need To Enclose A Toilet.
From storage.googleapis.com
How Much Space Do You Need In Front Of Toilet How Much Space Do You Need To Enclose A Toilet — the best toilet rooms are typically at least 36 inches wide. a minimum clearance in front of the toilet of at least 21 inches. Published on june 30, 2020. This is required for all your bathroom fixtures, including the. ensure the toilet is installed with a maximum space of 16 to 18 inches or 41 to. How Much Space Do You Need To Enclose A Toilet.
From designingidea.com
Toilet Dimensions (Standard Types & Seat Sizes) Designing Idea How Much Space Do You Need To Enclose A Toilet The standard toilet is 130 centimeters long and 70 centimeters wide—about 51 inches by 25 inches. Failing to accommodate this space will result in a toilet room that no one can properly use! — the best toilet rooms are typically at least 36 inches wide. Published on june 30, 2020. — it is important that you make yourself. How Much Space Do You Need To Enclose A Toilet.
From www.youtube.com
Do You Have to Enclose Your Toilet in a Master Bathroom? HGTV How Much Space Do You Need To Enclose A Toilet Having access to a bathroom is, above all,. a minimum clearance in front of the toilet of at least 21 inches. The standard toilet is 130 centimeters long and 70 centimeters wide—about 51 inches by 25 inches. Failing to accommodate this space will result in a toilet room that no one can properly use! Additionally, it’s a good idea. How Much Space Do You Need To Enclose A Toilet.
From cungcaphangchinhhang.com
Create the Perfect Bathroom Master the Plumbing Layout for Your Toilet How Much Space Do You Need To Enclose A Toilet The standard toilet is 130 centimeters long and 70 centimeters wide—about 51 inches by 25 inches. a minimum clearance in front of the toilet of at least 21 inches. It’s best to plan a clear floor space of at least 760mm from the front edge of all fixtures (basin, toilet,. Additionally, it’s a good idea to provide at least. How Much Space Do You Need To Enclose A Toilet.
From homedecorbliss.com
How Much Space Do You Need For A Toilet? How Much Space Do You Need To Enclose A Toilet This is required for all your bathroom fixtures, including the. Additionally, it’s a good idea to provide at least 24 inches of clear. It’s best to plan a clear floor space of at least 760mm from the front edge of all fixtures (basin, toilet,. — it is important that you make yourself aware of the minimum clearance space required. How Much Space Do You Need To Enclose A Toilet.
From animalia-life.club
Urinal Spacing Dimensions How Much Space Do You Need To Enclose A Toilet The standard toilet is 130 centimeters long and 70 centimeters wide—about 51 inches by 25 inches. It’s best to plan a clear floor space of at least 760mm from the front edge of all fixtures (basin, toilet,. Failing to accommodate this space will result in a toilet room that no one can properly use! — it is important that. How Much Space Do You Need To Enclose A Toilet.
From homedecorbliss.com
How Much Space Do You Need For A Toilet? How Much Space Do You Need To Enclose A Toilet Failing to accommodate this space will result in a toilet room that no one can properly use! Having access to a bathroom is, above all,. — the best toilet rooms are typically at least 36 inches wide. — it is important that you make yourself aware of the minimum clearance space required around a toilet before you can. How Much Space Do You Need To Enclose A Toilet.
From www.pinterest.com
Free design guide to help you maximize every inch of closet space How Much Space Do You Need To Enclose A Toilet It’s best to plan a clear floor space of at least 760mm from the front edge of all fixtures (basin, toilet,. ensure the toilet is installed with a maximum space of 16 to 18 inches or 41 to 46 centimeters away from the side wall and. Having access to a bathroom is, above all,. Additionally, it’s a good idea. How Much Space Do You Need To Enclose A Toilet.
From exofmnhfi.blob.core.windows.net
How Much Space Do I Need For A Toilet And Sink at Emanuel Lapoint blog How Much Space Do You Need To Enclose A Toilet Published on june 30, 2020. The standard toilet is 130 centimeters long and 70 centimeters wide—about 51 inches by 25 inches. Having access to a bathroom is, above all,. — make sure that when you’re planning your toilet room, you keep the toilet in mind. — the best toilet rooms are typically at least 36 inches wide. Failing. How Much Space Do You Need To Enclose A Toilet.
From exoyizyia.blob.core.windows.net
How Much Room Do You Need For A Handicap Toilet at Michael Dizon blog How Much Space Do You Need To Enclose A Toilet — it is important that you make yourself aware of the minimum clearance space required around a toilet before you can begin. Additionally, it’s a good idea to provide at least 24 inches of clear. Failing to accommodate this space will result in a toilet room that no one can properly use! — make sure that when you’re. How Much Space Do You Need To Enclose A Toilet.
From exofmnhfi.blob.core.windows.net
How Much Space Do I Need For A Toilet And Sink at Emanuel Lapoint blog How Much Space Do You Need To Enclose A Toilet a minimum clearance in front of the toilet of at least 21 inches. It’s best to plan a clear floor space of at least 760mm from the front edge of all fixtures (basin, toilet,. Having access to a bathroom is, above all,. Additionally, it’s a good idea to provide at least 24 inches of clear. Failing to accommodate this. How Much Space Do You Need To Enclose A Toilet.
From designingidea.com
Enclosed Toilet Room Dimensions Designing Idea How Much Space Do You Need To Enclose A Toilet Failing to accommodate this space will result in a toilet room that no one can properly use! a minimum clearance in front of the toilet of at least 21 inches. Additionally, it’s a good idea to provide at least 24 inches of clear. — the best toilet rooms are typically at least 36 inches wide. — make. How Much Space Do You Need To Enclose A Toilet.
From gambrick.com
How Much Space Do You Need Around A Toilet? Bathroom Design How Much Space Do You Need To Enclose A Toilet It’s best to plan a clear floor space of at least 760mm from the front edge of all fixtures (basin, toilet,. ensure the toilet is installed with a maximum space of 16 to 18 inches or 41 to 46 centimeters away from the side wall and. Having access to a bathroom is, above all,. — the best toilet. How Much Space Do You Need To Enclose A Toilet.
From gambrick.com
How Much Space Do You Need Around A Toilet? Bathroom Design How Much Space Do You Need To Enclose A Toilet This is required for all your bathroom fixtures, including the. Having access to a bathroom is, above all,. It’s best to plan a clear floor space of at least 760mm from the front edge of all fixtures (basin, toilet,. Published on june 30, 2020. — make sure that when you’re planning your toilet room, you keep the toilet in. How Much Space Do You Need To Enclose A Toilet.
From www.wayfair.co.uk
Everything You Need to Know About Toilet Dimensions and Measurements How Much Space Do You Need To Enclose A Toilet Published on june 30, 2020. — the best toilet rooms are typically at least 36 inches wide. The standard toilet is 130 centimeters long and 70 centimeters wide—about 51 inches by 25 inches. It’s best to plan a clear floor space of at least 760mm from the front edge of all fixtures (basin, toilet,. Having access to a bathroom. How Much Space Do You Need To Enclose A Toilet.
From www.pinterest.es
Image from How Much Space Do You Need To Enclose A Toilet Having access to a bathroom is, above all,. It’s best to plan a clear floor space of at least 760mm from the front edge of all fixtures (basin, toilet,. — the best toilet rooms are typically at least 36 inches wide. a minimum clearance in front of the toilet of at least 21 inches. Published on june 30,. How Much Space Do You Need To Enclose A Toilet.
From www.pinterest.com
This compact space saving toilet and basin comes with a tap. A great How Much Space Do You Need To Enclose A Toilet The standard toilet is 130 centimeters long and 70 centimeters wide—about 51 inches by 25 inches. a minimum clearance in front of the toilet of at least 21 inches. Additionally, it’s a good idea to provide at least 24 inches of clear. — the best toilet rooms are typically at least 36 inches wide. Having access to a. How Much Space Do You Need To Enclose A Toilet.
From www.homesandgardens.com
How much space do you need between a shower and toilet? Homes & Gardens How Much Space Do You Need To Enclose A Toilet a minimum clearance in front of the toilet of at least 21 inches. — it is important that you make yourself aware of the minimum clearance space required around a toilet before you can begin. — make sure that when you’re planning your toilet room, you keep the toilet in mind. — the best toilet rooms. How Much Space Do You Need To Enclose A Toilet.
From ar.inspiredpencil.com
Urinal Spacing Dimensions How Much Space Do You Need To Enclose A Toilet The standard toilet is 130 centimeters long and 70 centimeters wide—about 51 inches by 25 inches. ensure the toilet is installed with a maximum space of 16 to 18 inches or 41 to 46 centimeters away from the side wall and. This is required for all your bathroom fixtures, including the. Additionally, it’s a good idea to provide at. How Much Space Do You Need To Enclose A Toilet.
From storables.com
How Much Space Do You Need Between A Shower And Toilet? Storables How Much Space Do You Need To Enclose A Toilet Having access to a bathroom is, above all,. This is required for all your bathroom fixtures, including the. It’s best to plan a clear floor space of at least 760mm from the front edge of all fixtures (basin, toilet,. — make sure that when you’re planning your toilet room, you keep the toilet in mind. Published on june 30,. How Much Space Do You Need To Enclose A Toilet.
From www.houzz.com
Want to enclose toilet in M. Ba. so it's a "privacy" toilet space.How? How Much Space Do You Need To Enclose A Toilet Published on june 30, 2020. It’s best to plan a clear floor space of at least 760mm from the front edge of all fixtures (basin, toilet,. ensure the toilet is installed with a maximum space of 16 to 18 inches or 41 to 46 centimeters away from the side wall and. — the best toilet rooms are typically. How Much Space Do You Need To Enclose A Toilet.
From www.fix.com
Learn Rules For Bathroom Design and Code How Much Space Do You Need To Enclose A Toilet Additionally, it’s a good idea to provide at least 24 inches of clear. — make sure that when you’re planning your toilet room, you keep the toilet in mind. Having access to a bathroom is, above all,. — the best toilet rooms are typically at least 36 inches wide. This is required for all your bathroom fixtures, including. How Much Space Do You Need To Enclose A Toilet.