Toilet Dimensions And Clearances . toilet clearances refer to the minimum space required around a toilet to ensure comfortable and unobstructed use. Find out how to measure. standard toilet dimensions: there are several variations of toilet room dimensions, but you generally need at least 2 feet of clearance in front. learn the minimum clearances and dimensions for toilet installation according to the international plumbing code. learn the minimum clearance requirements for toilets in residential bathrooms according to the international residential code and the uniform plumbing code. essential dimensions include standard clearances for fixtures, door swings, and user accessibility, ensuring comfort and functionality. See illustrations and examples of how to measure the distance from the toilet to walls, partitions, vanities and adjacent fixtures.
from www.dimensions.com
toilet clearances refer to the minimum space required around a toilet to ensure comfortable and unobstructed use. See illustrations and examples of how to measure the distance from the toilet to walls, partitions, vanities and adjacent fixtures. there are several variations of toilet room dimensions, but you generally need at least 2 feet of clearance in front. learn the minimum clearance requirements for toilets in residential bathrooms according to the international residential code and the uniform plumbing code. Find out how to measure. learn the minimum clearances and dimensions for toilet installation according to the international plumbing code. standard toilet dimensions: essential dimensions include standard clearances for fixtures, door swings, and user accessibility, ensuring comfort and functionality.
Toilets Dimensions & Drawings
Toilet Dimensions And Clearances essential dimensions include standard clearances for fixtures, door swings, and user accessibility, ensuring comfort and functionality. standard toilet dimensions: essential dimensions include standard clearances for fixtures, door swings, and user accessibility, ensuring comfort and functionality. learn the minimum clearances and dimensions for toilet installation according to the international plumbing code. there are several variations of toilet room dimensions, but you generally need at least 2 feet of clearance in front. learn the minimum clearance requirements for toilets in residential bathrooms according to the international residential code and the uniform plumbing code. toilet clearances refer to the minimum space required around a toilet to ensure comfortable and unobstructed use. See illustrations and examples of how to measure the distance from the toilet to walls, partitions, vanities and adjacent fixtures. Find out how to measure.
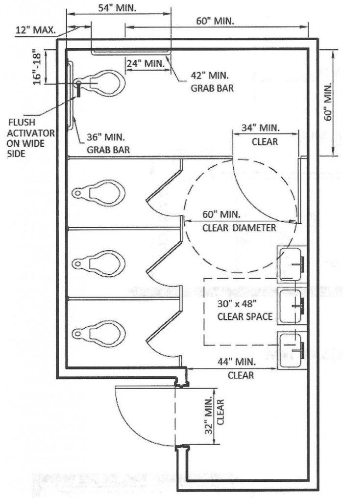
From originalidexprep.com
14BRToiletFacilitiesMultipleStalls706x1024 Original IDEX CA Prep Toilet Dimensions And Clearances learn the minimum clearance requirements for toilets in residential bathrooms according to the international residential code and the uniform plumbing code. toilet clearances refer to the minimum space required around a toilet to ensure comfortable and unobstructed use. learn the minimum clearances and dimensions for toilet installation according to the international plumbing code. there are several. Toilet Dimensions And Clearances.
From inspectapedia.com
How to install a toilet Toilet Installation Procedures & Details Toilet Dimensions And Clearances See illustrations and examples of how to measure the distance from the toilet to walls, partitions, vanities and adjacent fixtures. learn the minimum clearances and dimensions for toilet installation according to the international plumbing code. Find out how to measure. toilet clearances refer to the minimum space required around a toilet to ensure comfortable and unobstructed use. . Toilet Dimensions And Clearances.
From www.pinterest.ca
Restroom sizes Small bathroom floor plans, Small bathroom dimensions Toilet Dimensions And Clearances toilet clearances refer to the minimum space required around a toilet to ensure comfortable and unobstructed use. there are several variations of toilet room dimensions, but you generally need at least 2 feet of clearance in front. Find out how to measure. See illustrations and examples of how to measure the distance from the toilet to walls, partitions,. Toilet Dimensions And Clearances.
From accessories.toiletpartitions.com
Bathroom Stall Dimensions ADA Sizes Toilet Partitions Toilet Dimensions And Clearances learn the minimum clearance requirements for toilets in residential bathrooms according to the international residential code and the uniform plumbing code. See illustrations and examples of how to measure the distance from the toilet to walls, partitions, vanities and adjacent fixtures. learn the minimum clearances and dimensions for toilet installation according to the international plumbing code. toilet. Toilet Dimensions And Clearances.
From animalia-life.club
Urinal Spacing Dimensions Toilet Dimensions And Clearances essential dimensions include standard clearances for fixtures, door swings, and user accessibility, ensuring comfort and functionality. learn the minimum clearances and dimensions for toilet installation according to the international plumbing code. toilet clearances refer to the minimum space required around a toilet to ensure comfortable and unobstructed use. Find out how to measure. See illustrations and examples. Toilet Dimensions And Clearances.
From www.vrogue.co
Toilet Clearances Dimensions Drawings Dimensions Com vrogue.co Toilet Dimensions And Clearances Find out how to measure. toilet clearances refer to the minimum space required around a toilet to ensure comfortable and unobstructed use. standard toilet dimensions: learn the minimum clearance requirements for toilets in residential bathrooms according to the international residential code and the uniform plumbing code. See illustrations and examples of how to measure the distance from. Toilet Dimensions And Clearances.
From www.dimensions.com
Toilets Dimensions & Drawings Toilet Dimensions And Clearances learn the minimum clearance requirements for toilets in residential bathrooms according to the international residential code and the uniform plumbing code. essential dimensions include standard clearances for fixtures, door swings, and user accessibility, ensuring comfort and functionality. standard toilet dimensions: See illustrations and examples of how to measure the distance from the toilet to walls, partitions, vanities. Toilet Dimensions And Clearances.
From www.dimensions.com
Toilet Clearances Dimensions & Drawings Toilet Dimensions And Clearances toilet clearances refer to the minimum space required around a toilet to ensure comfortable and unobstructed use. See illustrations and examples of how to measure the distance from the toilet to walls, partitions, vanities and adjacent fixtures. essential dimensions include standard clearances for fixtures, door swings, and user accessibility, ensuring comfort and functionality. Find out how to measure.. Toilet Dimensions And Clearances.
From rispa.org
Wheelchair Accessible Bathroom Vanity Dimensions Rispa Toilet Dimensions And Clearances essential dimensions include standard clearances for fixtures, door swings, and user accessibility, ensuring comfort and functionality. learn the minimum clearance requirements for toilets in residential bathrooms according to the international residential code and the uniform plumbing code. standard toilet dimensions: See illustrations and examples of how to measure the distance from the toilet to walls, partitions, vanities. Toilet Dimensions And Clearances.
From fyohfxksm.blob.core.windows.net
Toilet Closet Sizes at Sharon Paradise blog Toilet Dimensions And Clearances toilet clearances refer to the minimum space required around a toilet to ensure comfortable and unobstructed use. Find out how to measure. learn the minimum clearances and dimensions for toilet installation according to the international plumbing code. See illustrations and examples of how to measure the distance from the toilet to walls, partitions, vanities and adjacent fixtures. . Toilet Dimensions And Clearances.
From www.jlconline.com
Bathroom Fixture Clearances JLC Online Toilet Dimensions And Clearances essential dimensions include standard clearances for fixtures, door swings, and user accessibility, ensuring comfort and functionality. learn the minimum clearances and dimensions for toilet installation according to the international plumbing code. See illustrations and examples of how to measure the distance from the toilet to walls, partitions, vanities and adjacent fixtures. learn the minimum clearance requirements for. Toilet Dimensions And Clearances.
From buildingcodetrainer.com
What is the minimum clearance for a toilet? Explained Toilet Dimensions And Clearances standard toilet dimensions: learn the minimum clearance requirements for toilets in residential bathrooms according to the international residential code and the uniform plumbing code. essential dimensions include standard clearances for fixtures, door swings, and user accessibility, ensuring comfort and functionality. See illustrations and examples of how to measure the distance from the toilet to walls, partitions, vanities. Toilet Dimensions And Clearances.
From www.access-board.gov
Chapter 6 Toilet Rooms Toilet Dimensions And Clearances Find out how to measure. standard toilet dimensions: there are several variations of toilet room dimensions, but you generally need at least 2 feet of clearance in front. essential dimensions include standard clearances for fixtures, door swings, and user accessibility, ensuring comfort and functionality. See illustrations and examples of how to measure the distance from the toilet. Toilet Dimensions And Clearances.
From www.hpdconsult.com
Bathroom Dimensions Useful Bathroom & WC Dimensions Toilet Dimensions And Clearances essential dimensions include standard clearances for fixtures, door swings, and user accessibility, ensuring comfort and functionality. learn the minimum clearance requirements for toilets in residential bathrooms according to the international residential code and the uniform plumbing code. Find out how to measure. learn the minimum clearances and dimensions for toilet installation according to the international plumbing code.. Toilet Dimensions And Clearances.
From continuingeducation.bnpmedia.com
CE Center New for Diversity Toilet Dimensions And Clearances learn the minimum clearances and dimensions for toilet installation according to the international plumbing code. there are several variations of toilet room dimensions, but you generally need at least 2 feet of clearance in front. learn the minimum clearance requirements for toilets in residential bathrooms according to the international residential code and the uniform plumbing code. Find. Toilet Dimensions And Clearances.
From homedesignideas.help
Handicap Restroom Dimensions BEST HOME DESIGN IDEAS Toilet Dimensions And Clearances learn the minimum clearance requirements for toilets in residential bathrooms according to the international residential code and the uniform plumbing code. See illustrations and examples of how to measure the distance from the toilet to walls, partitions, vanities and adjacent fixtures. toilet clearances refer to the minimum space required around a toilet to ensure comfortable and unobstructed use.. Toilet Dimensions And Clearances.
From wurld.blogspot.com
bathroom layout clearances Restroom Accessibility Self Assessment Toilet Dimensions And Clearances See illustrations and examples of how to measure the distance from the toilet to walls, partitions, vanities and adjacent fixtures. learn the minimum clearance requirements for toilets in residential bathrooms according to the international residential code and the uniform plumbing code. standard toilet dimensions: there are several variations of toilet room dimensions, but you generally need at. Toilet Dimensions And Clearances.
From giomjdqrz.blob.core.windows.net
Bathroom Clearance Dimensions at Matthew Rogers blog Toilet Dimensions And Clearances essential dimensions include standard clearances for fixtures, door swings, and user accessibility, ensuring comfort and functionality. toilet clearances refer to the minimum space required around a toilet to ensure comfortable and unobstructed use. there are several variations of toilet room dimensions, but you generally need at least 2 feet of clearance in front. See illustrations and examples. Toilet Dimensions And Clearances.
From engineeringdiscoveries.com
Standard Toilet Dimensions Engineering Discoveries Toilet Dimensions And Clearances Find out how to measure. See illustrations and examples of how to measure the distance from the toilet to walls, partitions, vanities and adjacent fixtures. standard toilet dimensions: essential dimensions include standard clearances for fixtures, door swings, and user accessibility, ensuring comfort and functionality. there are several variations of toilet room dimensions, but you generally need at. Toilet Dimensions And Clearances.
From www.access-board.gov
UFAS (1984) Toilet Dimensions And Clearances learn the minimum clearance requirements for toilets in residential bathrooms according to the international residential code and the uniform plumbing code. standard toilet dimensions: essential dimensions include standard clearances for fixtures, door swings, and user accessibility, ensuring comfort and functionality. toilet clearances refer to the minimum space required around a toilet to ensure comfortable and unobstructed. Toilet Dimensions And Clearances.
From www.harborcitysupply.com
Do I Need Accessible Toilet Compartments? ADA Guidelines Harbor Toilet Dimensions And Clearances toilet clearances refer to the minimum space required around a toilet to ensure comfortable and unobstructed use. See illustrations and examples of how to measure the distance from the toilet to walls, partitions, vanities and adjacent fixtures. there are several variations of toilet room dimensions, but you generally need at least 2 feet of clearance in front. . Toilet Dimensions And Clearances.
From www.pinterest.co.uk
Image result for ada water closet door swings in dimensions Ada Toilet Dimensions And Clearances learn the minimum clearances and dimensions for toilet installation according to the international plumbing code. standard toilet dimensions: Find out how to measure. learn the minimum clearance requirements for toilets in residential bathrooms according to the international residential code and the uniform plumbing code. essential dimensions include standard clearances for fixtures, door swings, and user accessibility,. Toilet Dimensions And Clearances.
From www.homenish.com
What is the Average Size of a Bathroom? Homenish Toilet Dimensions And Clearances toilet clearances refer to the minimum space required around a toilet to ensure comfortable and unobstructed use. learn the minimum clearances and dimensions for toilet installation according to the international plumbing code. learn the minimum clearance requirements for toilets in residential bathrooms according to the international residential code and the uniform plumbing code. standard toilet dimensions:. Toilet Dimensions And Clearances.
From www.harborcitysupply.com
Do I Need Accessible Toilet Compartments? ADA Guidelines Harbor Toilet Dimensions And Clearances there are several variations of toilet room dimensions, but you generally need at least 2 feet of clearance in front. learn the minimum clearance requirements for toilets in residential bathrooms according to the international residential code and the uniform plumbing code. toilet clearances refer to the minimum space required around a toilet to ensure comfortable and unobstructed. Toilet Dimensions And Clearances.
From brunofuga.adv.br
Toilet Clearances Dimensions Drawings, 45 OFF Toilet Dimensions And Clearances essential dimensions include standard clearances for fixtures, door swings, and user accessibility, ensuring comfort and functionality. Find out how to measure. learn the minimum clearance requirements for toilets in residential bathrooms according to the international residential code and the uniform plumbing code. standard toilet dimensions: there are several variations of toilet room dimensions, but you generally. Toilet Dimensions And Clearances.
From shopwoodinvillewine.com
Toilet Dimensions and Clearances You Must Know Toilet Haven (2022) Toilet Dimensions And Clearances Find out how to measure. essential dimensions include standard clearances for fixtures, door swings, and user accessibility, ensuring comfort and functionality. standard toilet dimensions: there are several variations of toilet room dimensions, but you generally need at least 2 feet of clearance in front. learn the minimum clearance requirements for toilets in residential bathrooms according to. Toilet Dimensions And Clearances.
From wurld.blogspot.com
bathroom layout clearances toilet clearance residential Google Toilet Dimensions And Clearances essential dimensions include standard clearances for fixtures, door swings, and user accessibility, ensuring comfort and functionality. See illustrations and examples of how to measure the distance from the toilet to walls, partitions, vanities and adjacent fixtures. toilet clearances refer to the minimum space required around a toilet to ensure comfortable and unobstructed use. learn the minimum clearance. Toilet Dimensions And Clearances.
From www.dimensions.guide
Toilet Clearances Dimensions & Drawings Dimensions.Guide Toilet Dimensions And Clearances standard toilet dimensions: there are several variations of toilet room dimensions, but you generally need at least 2 feet of clearance in front. essential dimensions include standard clearances for fixtures, door swings, and user accessibility, ensuring comfort and functionality. See illustrations and examples of how to measure the distance from the toilet to walls, partitions, vanities and. Toilet Dimensions And Clearances.
From www.dimensions.guide
Toilet Clearances Dimensions & Drawings Dimensions.Guide Toilet Dimensions And Clearances See illustrations and examples of how to measure the distance from the toilet to walls, partitions, vanities and adjacent fixtures. learn the minimum clearance requirements for toilets in residential bathrooms according to the international residential code and the uniform plumbing code. toilet clearances refer to the minimum space required around a toilet to ensure comfortable and unobstructed use.. Toilet Dimensions And Clearances.
From wurld.blogspot.com
bathroom layout clearances toilet clearance residential Google Toilet Dimensions And Clearances Find out how to measure. See illustrations and examples of how to measure the distance from the toilet to walls, partitions, vanities and adjacent fixtures. learn the minimum clearances and dimensions for toilet installation according to the international plumbing code. essential dimensions include standard clearances for fixtures, door swings, and user accessibility, ensuring comfort and functionality. learn. Toilet Dimensions And Clearances.
From www.rethinkaccess.com
Towel Dispenser — ADA Accessibility Articles — reThink Access Toilet Dimensions And Clearances learn the minimum clearances and dimensions for toilet installation according to the international plumbing code. essential dimensions include standard clearances for fixtures, door swings, and user accessibility, ensuring comfort and functionality. See illustrations and examples of how to measure the distance from the toilet to walls, partitions, vanities and adjacent fixtures. learn the minimum clearance requirements for. Toilet Dimensions And Clearances.
From www.pinterest.com
How to plan a bathroom remodel all the measurements you need to design Toilet Dimensions And Clearances standard toilet dimensions: See illustrations and examples of how to measure the distance from the toilet to walls, partitions, vanities and adjacent fixtures. learn the minimum clearances and dimensions for toilet installation according to the international plumbing code. toilet clearances refer to the minimum space required around a toilet to ensure comfortable and unobstructed use. learn. Toilet Dimensions And Clearances.
From eastbayoffice.com
Restroom Accessibility Self Assessment East Bay Office Toilet Dimensions And Clearances toilet clearances refer to the minimum space required around a toilet to ensure comfortable and unobstructed use. there are several variations of toilet room dimensions, but you generally need at least 2 feet of clearance in front. learn the minimum clearance requirements for toilets in residential bathrooms according to the international residential code and the uniform plumbing. Toilet Dimensions And Clearances.
From giohbzeou.blob.core.windows.net
Toilet Clearance From Sink at Martha Perreault blog Toilet Dimensions And Clearances there are several variations of toilet room dimensions, but you generally need at least 2 feet of clearance in front. learn the minimum clearance requirements for toilets in residential bathrooms according to the international residential code and the uniform plumbing code. essential dimensions include standard clearances for fixtures, door swings, and user accessibility, ensuring comfort and functionality.. Toilet Dimensions And Clearances.
From www.access-board.gov
Chapter 6 Toilet Rooms Toilet Dimensions And Clearances learn the minimum clearances and dimensions for toilet installation according to the international plumbing code. toilet clearances refer to the minimum space required around a toilet to ensure comfortable and unobstructed use. there are several variations of toilet room dimensions, but you generally need at least 2 feet of clearance in front. Find out how to measure.. Toilet Dimensions And Clearances.