Pull Handle Secret Fix . How to fit pull handles. Sure you have the pull handle plus two secret fix bolts with grommets and metal washers, which will be fixed to the surface of the door. Manufactured from marine grade 316. From the anvil's stylish t bar pull handles have a sleek, modern design, perfect for use on entrance doors. How to fit two of our t bar pull handles using the secret fixing system please note that this fitting guide is just that, a guide,. Welcome to jwl architectural ironmongers, architectural ironmongers in nottingham that specialises in door furniture, door closes, locks,. Bolt through fixings, back to back fixings, secret fixings & cover caps.
from source.thenbs.com
Bolt through fixings, back to back fixings, secret fixings & cover caps. Welcome to jwl architectural ironmongers, architectural ironmongers in nottingham that specialises in door furniture, door closes, locks,. Sure you have the pull handle plus two secret fix bolts with grommets and metal washers, which will be fixed to the surface of the door. Manufactured from marine grade 316. From the anvil's stylish t bar pull handles have a sleek, modern design, perfect for use on entrance doors. How to fit pull handles. How to fit two of our t bar pull handles using the secret fixing system please note that this fitting guide is just that, a guide,.
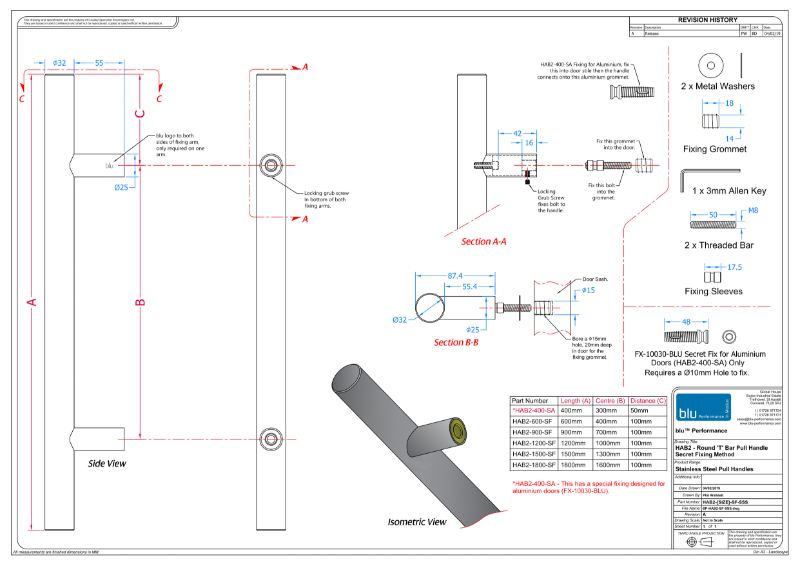
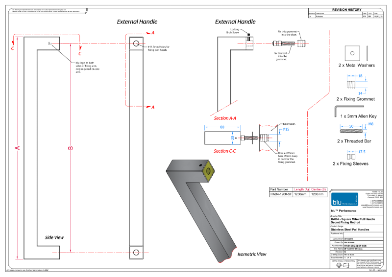
BLU™ HAB4 Square Mitre Pull Handle Secret Fix NBS Source
Pull Handle Secret Fix How to fit pull handles. From the anvil's stylish t bar pull handles have a sleek, modern design, perfect for use on entrance doors. Sure you have the pull handle plus two secret fix bolts with grommets and metal washers, which will be fixed to the surface of the door. Welcome to jwl architectural ironmongers, architectural ironmongers in nottingham that specialises in door furniture, door closes, locks,. How to fit two of our t bar pull handles using the secret fixing system please note that this fitting guide is just that, a guide,. Manufactured from marine grade 316. Bolt through fixings, back to back fixings, secret fixings & cover caps. How to fit pull handles.
From swshardware.com
Rectangular Flush Secret Fix Pull Handle SWS Hardware Pull Handle Secret Fix From the anvil's stylish t bar pull handles have a sleek, modern design, perfect for use on entrance doors. How to fit two of our t bar pull handles using the secret fixing system please note that this fitting guide is just that, a guide,. How to fit pull handles. Sure you have the pull handle plus two secret fix. Pull Handle Secret Fix.
From www.castinstyle.co.uk
From The Anvil T Bar Handle with Bolt Fixings Matt Black Finish 50255 Pull Handle Secret Fix How to fit two of our t bar pull handles using the secret fixing system please note that this fitting guide is just that, a guide,. How to fit pull handles. Bolt through fixings, back to back fixings, secret fixings & cover caps. Manufactured from marine grade 316. Sure you have the pull handle plus two secret fix bolts with. Pull Handle Secret Fix.
From www.dortechdirect.co.uk
316 Marine Grade Stainless Steel Square Mitre Pull Handle 1200mm Pull Handle Secret Fix From the anvil's stylish t bar pull handles have a sleek, modern design, perfect for use on entrance doors. Sure you have the pull handle plus two secret fix bolts with grommets and metal washers, which will be fixed to the surface of the door. Bolt through fixings, back to back fixings, secret fixings & cover caps. Manufactured from marine. Pull Handle Secret Fix.
From www.sdhardware.co.uk
Sox Pull Handle Secret Fixings (x2) SD Hardware Pull Handle Secret Fix Bolt through fixings, back to back fixings, secret fixings & cover caps. Sure you have the pull handle plus two secret fix bolts with grommets and metal washers, which will be fixed to the surface of the door. How to fit pull handles. From the anvil's stylish t bar pull handles have a sleek, modern design, perfect for use on. Pull Handle Secret Fix.
From www.broughtons.com
From The Anvil Offset TBar Handle Secret Fix 1500mm Satin 316 Pull Handle Secret Fix From the anvil's stylish t bar pull handles have a sleek, modern design, perfect for use on entrance doors. How to fit two of our t bar pull handles using the secret fixing system please note that this fitting guide is just that, a guide,. How to fit pull handles. Sure you have the pull handle plus two secret fix. Pull Handle Secret Fix.
From source.thenbs.com
BLU™ HAB4 Square Mitre Pull Handle Secret Fix NBS Source Pull Handle Secret Fix Manufactured from marine grade 316. From the anvil's stylish t bar pull handles have a sleek, modern design, perfect for use on entrance doors. Sure you have the pull handle plus two secret fix bolts with grommets and metal washers, which will be fixed to the surface of the door. Welcome to jwl architectural ironmongers, architectural ironmongers in nottingham that. Pull Handle Secret Fix.
From www.doorhandlecompany.co.uk
Mila Supa Concealed Fixing Kits, For The Supa Pull Handles 573320 Pull Handle Secret Fix From the anvil's stylish t bar pull handles have a sleek, modern design, perfect for use on entrance doors. Sure you have the pull handle plus two secret fix bolts with grommets and metal washers, which will be fixed to the surface of the door. Bolt through fixings, back to back fixings, secret fixings & cover caps. Manufactured from marine. Pull Handle Secret Fix.
From www.marchesironmongery.co.uk
1.5m T Bar Handle Secret Fix 32mm Ø Satin SS (316) Pull Handles Pull Handle Secret Fix From the anvil's stylish t bar pull handles have a sleek, modern design, perfect for use on entrance doors. How to fit pull handles. Bolt through fixings, back to back fixings, secret fixings & cover caps. Welcome to jwl architectural ironmongers, architectural ironmongers in nottingham that specialises in door furniture, door closes, locks,. Sure you have the pull handle plus. Pull Handle Secret Fix.
From swshardware.com
Rectangular Flush Secret Fix Pull Handle SWS Hardware Pull Handle Secret Fix Bolt through fixings, back to back fixings, secret fixings & cover caps. From the anvil's stylish t bar pull handles have a sleek, modern design, perfect for use on entrance doors. Sure you have the pull handle plus two secret fix bolts with grommets and metal washers, which will be fixed to the surface of the door. How to fit. Pull Handle Secret Fix.
From www.marchesironmongery.co.uk
1.8m T Bar Handle Secret Fix 32mm Ø Satin SS (316) Pull Handles Pull Handle Secret Fix From the anvil's stylish t bar pull handles have a sleek, modern design, perfect for use on entrance doors. Sure you have the pull handle plus two secret fix bolts with grommets and metal washers, which will be fixed to the surface of the door. Manufactured from marine grade 316. Bolt through fixings, back to back fixings, secret fixings &. Pull Handle Secret Fix.
From source.thenbs.com
BLU™ HAB2 Inline Round 'T' Bar Pull Handle Secret Fix Coastal Group Pull Handle Secret Fix Bolt through fixings, back to back fixings, secret fixings & cover caps. Manufactured from marine grade 316. From the anvil's stylish t bar pull handles have a sleek, modern design, perfect for use on entrance doors. How to fit two of our t bar pull handles using the secret fixing system please note that this fitting guide is just that,. Pull Handle Secret Fix.
From www.marchesironmongery.co.uk
Offset T Bar Pull Handle 1800mm Secret Fix 32mm Ø 316 SSS Pull Pull Handle Secret Fix Manufactured from marine grade 316. How to fit two of our t bar pull handles using the secret fixing system please note that this fitting guide is just that, a guide,. Sure you have the pull handle plus two secret fix bolts with grommets and metal washers, which will be fixed to the surface of the door. Welcome to jwl. Pull Handle Secret Fix.
From picclick.co.uk
FLUSH PULL DOOR Drawer Secret Fixing Handle Opening Closing Square £9. Pull Handle Secret Fix Sure you have the pull handle plus two secret fix bolts with grommets and metal washers, which will be fixed to the surface of the door. Bolt through fixings, back to back fixings, secret fixings & cover caps. How to fit pull handles. Welcome to jwl architectural ironmongers, architectural ironmongers in nottingham that specialises in door furniture, door closes, locks,.. Pull Handle Secret Fix.
From swshardware.com
Flush Pull Handles SWS Hardware Pull Handle Secret Fix How to fit pull handles. Welcome to jwl architectural ironmongers, architectural ironmongers in nottingham that specialises in door furniture, door closes, locks,. How to fit two of our t bar pull handles using the secret fixing system please note that this fitting guide is just that, a guide,. Manufactured from marine grade 316. Sure you have the pull handle plus. Pull Handle Secret Fix.
From handforged.co.uk
How to Fit T Bar Pull Handles with Secret Fixings Hand Pull Handle Secret Fix Bolt through fixings, back to back fixings, secret fixings & cover caps. How to fit two of our t bar pull handles using the secret fixing system please note that this fitting guide is just that, a guide,. Manufactured from marine grade 316. How to fit pull handles. From the anvil's stylish t bar pull handles have a sleek, modern. Pull Handle Secret Fix.
From handletrade.co.uk
Secret Fix Composite / Timber Door Pull Handle 304 SS FX1 Pull Handle Secret Fix From the anvil's stylish t bar pull handles have a sleek, modern design, perfect for use on entrance doors. Welcome to jwl architectural ironmongers, architectural ironmongers in nottingham that specialises in door furniture, door closes, locks,. Manufactured from marine grade 316. How to fit pull handles. Bolt through fixings, back to back fixings, secret fixings & cover caps. How to. Pull Handle Secret Fix.
From www.hafele.ie
Pull Handle, Flush, Ø 65 mm, Stainless Steel Häfele Ireland Shop Pull Handle Secret Fix Welcome to jwl architectural ironmongers, architectural ironmongers in nottingham that specialises in door furniture, door closes, locks,. How to fit two of our t bar pull handles using the secret fixing system please note that this fitting guide is just that, a guide,. Manufactured from marine grade 316. From the anvil's stylish t bar pull handles have a sleek, modern. Pull Handle Secret Fix.
From source.thenbs.com
Stainless Steel 'Bow' Door Pull Handle BLU™ HAB8 Door Handle Pull Handle Secret Fix How to fit pull handles. How to fit two of our t bar pull handles using the secret fixing system please note that this fitting guide is just that, a guide,. Welcome to jwl architectural ironmongers, architectural ironmongers in nottingham that specialises in door furniture, door closes, locks,. Manufactured from marine grade 316. Sure you have the pull handle plus. Pull Handle Secret Fix.
From source.thenbs.com
BLU™ HAB6 Offset Round 'T' Bar Pull Handle Secret Fix Coastal Group Pull Handle Secret Fix How to fit two of our t bar pull handles using the secret fixing system please note that this fitting guide is just that, a guide,. Bolt through fixings, back to back fixings, secret fixings & cover caps. How to fit pull handles. Welcome to jwl architectural ironmongers, architectural ironmongers in nottingham that specialises in door furniture, door closes, locks,.. Pull Handle Secret Fix.
From handforged.co.uk
How to Fit T Bar Pull Handles with Secret Fixings Hand Pull Handle Secret Fix Manufactured from marine grade 316. Sure you have the pull handle plus two secret fix bolts with grommets and metal washers, which will be fixed to the surface of the door. Bolt through fixings, back to back fixings, secret fixings & cover caps. How to fit pull handles. From the anvil's stylish t bar pull handles have a sleek, modern. Pull Handle Secret Fix.
From www.secretstashing.com
Concealed Drawer Pull Handle Secret Stashing Pull Handle Secret Fix Welcome to jwl architectural ironmongers, architectural ironmongers in nottingham that specialises in door furniture, door closes, locks,. Bolt through fixings, back to back fixings, secret fixings & cover caps. Manufactured from marine grade 316. Sure you have the pull handle plus two secret fix bolts with grommets and metal washers, which will be fixed to the surface of the door.. Pull Handle Secret Fix.
From www.sealco-scotland.co.uk
From The Anvil Aged Brass (316) 0.6m T Bar Handle Secret Fix 32mm Pull Handle Secret Fix Welcome to jwl architectural ironmongers, architectural ironmongers in nottingham that specialises in door furniture, door closes, locks,. From the anvil's stylish t bar pull handles have a sleek, modern design, perfect for use on entrance doors. How to fit two of our t bar pull handles using the secret fixing system please note that this fitting guide is just that,. Pull Handle Secret Fix.
From source.thenbs.com
BLU™ HAB21 Offset 'D' Commercial Pull Handle Secret Fix Coastal Pull Handle Secret Fix How to fit two of our t bar pull handles using the secret fixing system please note that this fitting guide is just that, a guide,. Sure you have the pull handle plus two secret fix bolts with grommets and metal washers, which will be fixed to the surface of the door. Bolt through fixings, back to back fixings, secret. Pull Handle Secret Fix.
From www.e-hardware.co.uk
From The Anvil 32mm TBar Secret Fix Pull Handle 316 Stainless Steel Pull Handle Secret Fix From the anvil's stylish t bar pull handles have a sleek, modern design, perfect for use on entrance doors. Sure you have the pull handle plus two secret fix bolts with grommets and metal washers, which will be fixed to the surface of the door. Bolt through fixings, back to back fixings, secret fixings & cover caps. How to fit. Pull Handle Secret Fix.
From jwl-online.co.uk
50770 From the Anvil Satin Marine SS (316) 0.6m Offset T Bar Handle Pull Handle Secret Fix How to fit two of our t bar pull handles using the secret fixing system please note that this fitting guide is just that, a guide,. Sure you have the pull handle plus two secret fix bolts with grommets and metal washers, which will be fixed to the surface of the door. Welcome to jwl architectural ironmongers, architectural ironmongers in. Pull Handle Secret Fix.
From ironmongeryexperts.co.uk
From the Anvil 600mm (316) Matt Black Secret Fix T Bar Pull Handle Pull Handle Secret Fix Sure you have the pull handle plus two secret fix bolts with grommets and metal washers, which will be fixed to the surface of the door. How to fit two of our t bar pull handles using the secret fixing system please note that this fitting guide is just that, a guide,. How to fit pull handles. Manufactured from marine. Pull Handle Secret Fix.
From www.dortechdirect.co.uk
316 Marine Grade Offset Round 'T' Bar Pull Handle 1200mm Secret Fix Pull Handle Secret Fix Manufactured from marine grade 316. Bolt through fixings, back to back fixings, secret fixings & cover caps. From the anvil's stylish t bar pull handles have a sleek, modern design, perfect for use on entrance doors. Sure you have the pull handle plus two secret fix bolts with grommets and metal washers, which will be fixed to the surface of. Pull Handle Secret Fix.
From www.cromwell.co.uk
Matlock SAA PULL HANDLE CONCEALED FIX 300x19mm 9494880K Cromwell Tools Pull Handle Secret Fix Manufactured from marine grade 316. How to fit pull handles. From the anvil's stylish t bar pull handles have a sleek, modern design, perfect for use on entrance doors. Welcome to jwl architectural ironmongers, architectural ironmongers in nottingham that specialises in door furniture, door closes, locks,. How to fit two of our t bar pull handles using the secret fixing. Pull Handle Secret Fix.
From www.sealco-scotland.co.uk
From The Anvil Aged Brass (316) 0.6m T Bar Handle Secret Fix 32mm Pull Handle Secret Fix Manufactured from marine grade 316. How to fit pull handles. How to fit two of our t bar pull handles using the secret fixing system please note that this fitting guide is just that, a guide,. Sure you have the pull handle plus two secret fix bolts with grommets and metal washers, which will be fixed to the surface of. Pull Handle Secret Fix.
From www.atlantictimber.co.uk
Steel TBar Pull Handle Atlantic Timber Pull Handle Secret Fix How to fit two of our t bar pull handles using the secret fixing system please note that this fitting guide is just that, a guide,. Bolt through fixings, back to back fixings, secret fixings & cover caps. Manufactured from marine grade 316. How to fit pull handles. Welcome to jwl architectural ironmongers, architectural ironmongers in nottingham that specialises in. Pull Handle Secret Fix.
From www.sealco-scotland.co.uk
From The Anvil Aged Brass (316) 0.6m T Bar Handle Secret Fix 32mm Pull Handle Secret Fix From the anvil's stylish t bar pull handles have a sleek, modern design, perfect for use on entrance doors. Welcome to jwl architectural ironmongers, architectural ironmongers in nottingham that specialises in door furniture, door closes, locks,. How to fit two of our t bar pull handles using the secret fixing system please note that this fitting guide is just that,. Pull Handle Secret Fix.
From www.sealco-scotland.co.uk
From The Anvil Aged Brass (316) 1.8m T Bar Handle Secret Fix 32mm Pull Handle Secret Fix How to fit two of our t bar pull handles using the secret fixing system please note that this fitting guide is just that, a guide,. Manufactured from marine grade 316. How to fit pull handles. Welcome to jwl architectural ironmongers, architectural ironmongers in nottingham that specialises in door furniture, door closes, locks,. Sure you have the pull handle plus. Pull Handle Secret Fix.
From www.graceandgloryhome.co.uk
Satin Marine SS (316) 0.9m Offset T Bar Handle Secret Fix 32mm Ø Pull Handle Secret Fix Bolt through fixings, back to back fixings, secret fixings & cover caps. How to fit two of our t bar pull handles using the secret fixing system please note that this fitting guide is just that, a guide,. Manufactured from marine grade 316. Sure you have the pull handle plus two secret fix bolts with grommets and metal washers, which. Pull Handle Secret Fix.
From www.marchesironmongery.co.uk
1.5m T Bar Handle Secret Fix 32mm Ø Matt Black SS (316) Pull Pull Handle Secret Fix How to fit two of our t bar pull handles using the secret fixing system please note that this fitting guide is just that, a guide,. Sure you have the pull handle plus two secret fix bolts with grommets and metal washers, which will be fixed to the surface of the door. From the anvil's stylish t bar pull handles. Pull Handle Secret Fix.
From source.thenbs.com
BLU™ HAB15 Inline Rectangular 'T' Bar Pull Handle Secret Fix for Pull Handle Secret Fix How to fit pull handles. Manufactured from marine grade 316. How to fit two of our t bar pull handles using the secret fixing system please note that this fitting guide is just that, a guide,. Sure you have the pull handle plus two secret fix bolts with grommets and metal washers, which will be fixed to the surface of. Pull Handle Secret Fix.