Mhd Form 1037 . Mhd form 1037 / applysol.doc page 1 of 5 rev. Mhd form 1037 / applystatement of owner.doc page 1 of 10 revised 01/16/2021. The filing of an application for the. In our continued efforts to improve efficiency, the following forms are now available as fillable forms in pdf format on the tdhca manufactured. Manufactured home inquiries are made at the georgetown location. (for best results, enter label/seal number and select label number as the sort order, or. Steps to obtain the statement from the tax assessor / collector. The filing of an application for the issuance of a statement of ownership and location, later than sixty (60) days after the date of a sale to a consumer for residential use, may result in a. Texas department of housing and community affairs manufactured housing division. 05/03/10 statement of ownership and location (sol) application instructions.
from www.templateroller.com
The filing of an application for the issuance of a statement of ownership and location, later than sixty (60) days after the date of a sale to a consumer for residential use, may result in a. Mhd form 1037 / applystatement of owner.doc page 1 of 10 revised 01/16/2021. Texas department of housing and community affairs manufactured housing division. Steps to obtain the statement from the tax assessor / collector. The filing of an application for the. (for best results, enter label/seal number and select label number as the sort order, or. In our continued efforts to improve efficiency, the following forms are now available as fillable forms in pdf format on the tdhca manufactured. Mhd form 1037 / applysol.doc page 1 of 5 rev. 05/03/10 statement of ownership and location (sol) application instructions. Manufactured home inquiries are made at the georgetown location.
MHD Form 1084 Fill Out, Sign Online and Download Fillable PDF, Texas Templateroller
Mhd Form 1037 Mhd form 1037 / applystatement of owner.doc page 1 of 10 revised 01/16/2021. Manufactured home inquiries are made at the georgetown location. Steps to obtain the statement from the tax assessor / collector. Mhd form 1037 / applysol.doc page 1 of 5 rev. 05/03/10 statement of ownership and location (sol) application instructions. The filing of an application for the. In our continued efforts to improve efficiency, the following forms are now available as fillable forms in pdf format on the tdhca manufactured. The filing of an application for the issuance of a statement of ownership and location, later than sixty (60) days after the date of a sale to a consumer for residential use, may result in a. Texas department of housing and community affairs manufactured housing division. (for best results, enter label/seal number and select label number as the sort order, or. Mhd form 1037 / applystatement of owner.doc page 1 of 10 revised 01/16/2021.
From www.templateroller.com
MHD Form 1060 Fill Out, Sign Online and Download Printable PDF, Texas Templateroller Mhd Form 1037 Steps to obtain the statement from the tax assessor / collector. In our continued efforts to improve efficiency, the following forms are now available as fillable forms in pdf format on the tdhca manufactured. Texas department of housing and community affairs manufactured housing division. Mhd form 1037 / applystatement of owner.doc page 1 of 10 revised 01/16/2021. Manufactured home inquiries. Mhd Form 1037.
From www.templateroller.com
MHD Form 1077 Fill Out, Sign Online and Download Printable PDF, Texas Templateroller Mhd Form 1037 Steps to obtain the statement from the tax assessor / collector. (for best results, enter label/seal number and select label number as the sort order, or. Mhd form 1037 / applysol.doc page 1 of 5 rev. Texas department of housing and community affairs manufactured housing division. 05/03/10 statement of ownership and location (sol) application instructions. In our continued efforts to. Mhd Form 1037.
From www.templateroller.com
MHD Form 1031 Fill Out, Sign Online and Download Printable PDF, Texas Templateroller Mhd Form 1037 Manufactured home inquiries are made at the georgetown location. Steps to obtain the statement from the tax assessor / collector. Mhd form 1037 / applysol.doc page 1 of 5 rev. (for best results, enter label/seal number and select label number as the sort order, or. The filing of an application for the issuance of a statement of ownership and location,. Mhd Form 1037.
From www.templateroller.com
MHD Form 1049 Fill Out, Sign Online and Download Printable PDF, Texas Templateroller Mhd Form 1037 Steps to obtain the statement from the tax assessor / collector. Mhd form 1037 / applystatement of owner.doc page 1 of 10 revised 01/16/2021. The filing of an application for the issuance of a statement of ownership and location, later than sixty (60) days after the date of a sale to a consumer for residential use, may result in a.. Mhd Form 1037.
From www.signnow.com
1037 Form Complete with ease airSlate SignNow Mhd Form 1037 In our continued efforts to improve efficiency, the following forms are now available as fillable forms in pdf format on the tdhca manufactured. Steps to obtain the statement from the tax assessor / collector. The filing of an application for the. Mhd form 1037 / applystatement of owner.doc page 1 of 10 revised 01/16/2021. Texas department of housing and community. Mhd Form 1037.
From www.templateroller.com
MHD Form 1014 (C) Fill Out, Sign Online and Download Fillable PDF, Texas Templateroller Mhd Form 1037 05/03/10 statement of ownership and location (sol) application instructions. The filing of an application for the issuance of a statement of ownership and location, later than sixty (60) days after the date of a sale to a consumer for residential use, may result in a. Manufactured home inquiries are made at the georgetown location. In our continued efforts to improve. Mhd Form 1037.
From formspal.com
Mhd Form 1056 ≡ Fill Out Printable PDF Forms Online Mhd Form 1037 In our continued efforts to improve efficiency, the following forms are now available as fillable forms in pdf format on the tdhca manufactured. The filing of an application for the issuance of a statement of ownership and location, later than sixty (60) days after the date of a sale to a consumer for residential use, may result in a. Mhd. Mhd Form 1037.
From www.templateroller.com
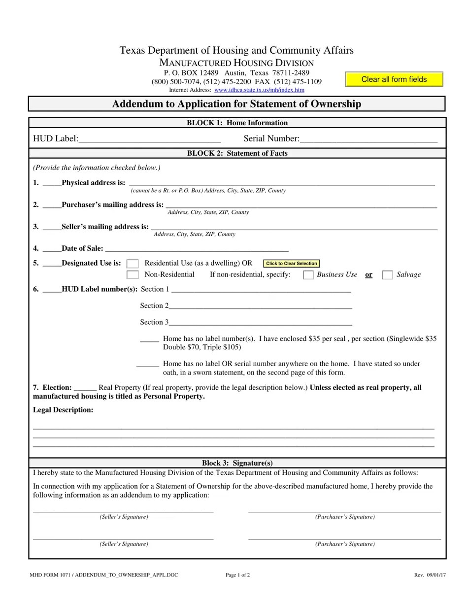
MHD Form 1071 Fill Out, Sign Online and Download Fillable PDF, Texas Templateroller Mhd Form 1037 Steps to obtain the statement from the tax assessor / collector. Mhd form 1037 / applysol.doc page 1 of 5 rev. Mhd form 1037 / applystatement of owner.doc page 1 of 10 revised 01/16/2021. (for best results, enter label/seal number and select label number as the sort order, or. Manufactured home inquiries are made at the georgetown location. Texas department. Mhd Form 1037.
From www.templateroller.com
MHD Form 1077 Fill Out, Sign Online and Download Printable PDF, Texas Templateroller Mhd Form 1037 Mhd form 1037 / applysol.doc page 1 of 5 rev. Steps to obtain the statement from the tax assessor / collector. In our continued efforts to improve efficiency, the following forms are now available as fillable forms in pdf format on the tdhca manufactured. Mhd form 1037 / applystatement of owner.doc page 1 of 10 revised 01/16/2021. The filing of. Mhd Form 1037.
From formspal.com
Mhd Form 1023 Texas ≡ Fill Out Printable PDF Forms Online Mhd Form 1037 05/03/10 statement of ownership and location (sol) application instructions. The filing of an application for the. Manufactured home inquiries are made at the georgetown location. Steps to obtain the statement from the tax assessor / collector. In our continued efforts to improve efficiency, the following forms are now available as fillable forms in pdf format on the tdhca manufactured. Mhd. Mhd Form 1037.
From www.templateroller.com
MHD Form 1053 Fill Out, Sign Online and Download Printable PDF, Texas Templateroller Mhd Form 1037 Steps to obtain the statement from the tax assessor / collector. 05/03/10 statement of ownership and location (sol) application instructions. Mhd form 1037 / applysol.doc page 1 of 5 rev. Texas department of housing and community affairs manufactured housing division. The filing of an application for the. In our continued efforts to improve efficiency, the following forms are now available. Mhd Form 1037.
From www.templateroller.com
MHD Form 1074 Fill Out, Sign Online and Download Printable PDF, Texas Templateroller Mhd Form 1037 (for best results, enter label/seal number and select label number as the sort order, or. Manufactured home inquiries are made at the georgetown location. The filing of an application for the issuance of a statement of ownership and location, later than sixty (60) days after the date of a sale to a consumer for residential use, may result in a.. Mhd Form 1037.
From formspal.com
Mhd Form 1023 Texas ≡ Fill Out Printable PDF Forms Online Mhd Form 1037 The filing of an application for the issuance of a statement of ownership and location, later than sixty (60) days after the date of a sale to a consumer for residential use, may result in a. Texas department of housing and community affairs manufactured housing division. The filing of an application for the. (for best results, enter label/seal number and. Mhd Form 1037.
From www.templateroller.com
MHD Form 1071 Fill Out, Sign Online and Download Fillable PDF, Texas Templateroller Mhd Form 1037 Steps to obtain the statement from the tax assessor / collector. Mhd form 1037 / applystatement of owner.doc page 1 of 10 revised 01/16/2021. Texas department of housing and community affairs manufactured housing division. The filing of an application for the issuance of a statement of ownership and location, later than sixty (60) days after the date of a sale. Mhd Form 1037.
From www.templateroller.com
MHD Form 1052 Fill Out, Sign Online and Download Printable PDF, Texas Templateroller Mhd Form 1037 Steps to obtain the statement from the tax assessor / collector. 05/03/10 statement of ownership and location (sol) application instructions. In our continued efforts to improve efficiency, the following forms are now available as fillable forms in pdf format on the tdhca manufactured. Manufactured home inquiries are made at the georgetown location. The filing of an application for the. The. Mhd Form 1037.
From www.templateroller.com
Form S (MHD Form 1021) Fill Out, Sign Online and Download Fillable PDF, Texas Templateroller Mhd Form 1037 05/03/10 statement of ownership and location (sol) application instructions. The filing of an application for the issuance of a statement of ownership and location, later than sixty (60) days after the date of a sale to a consumer for residential use, may result in a. Mhd form 1037 / applysol.doc page 1 of 5 rev. (for best results, enter label/seal. Mhd Form 1037.
From www.templateroller.com
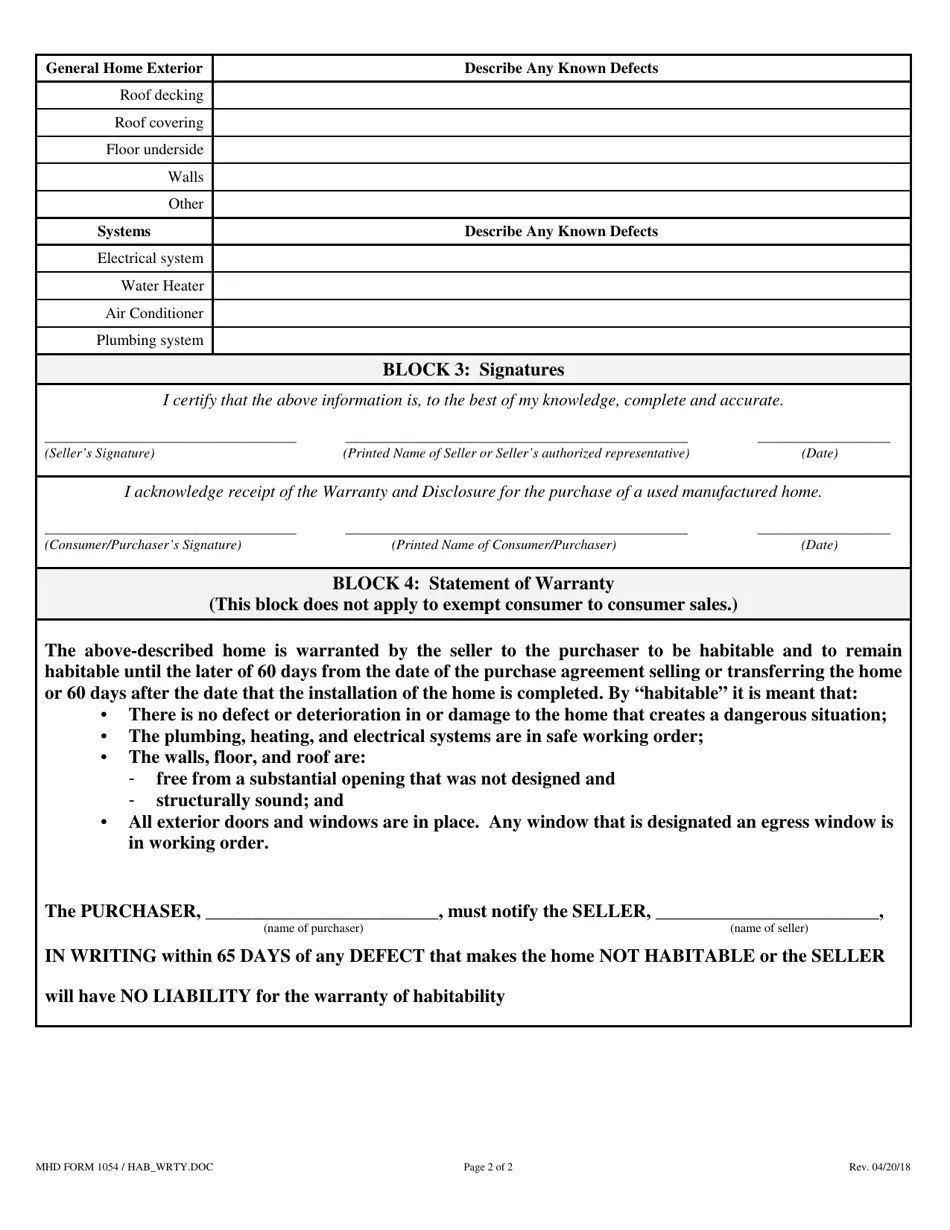
MHD Form 1054 Fill Out, Sign Online and Download Printable PDF, Texas Templateroller Mhd Form 1037 Steps to obtain the statement from the tax assessor / collector. Manufactured home inquiries are made at the georgetown location. Texas department of housing and community affairs manufactured housing division. The filing of an application for the. (for best results, enter label/seal number and select label number as the sort order, or. The filing of an application for the issuance. Mhd Form 1037.
From www.templateroller.com
MHD Form 1109 Fill Out, Sign Online and Download Fillable PDF, Texas Templateroller Mhd Form 1037 Mhd form 1037 / applysol.doc page 1 of 5 rev. 05/03/10 statement of ownership and location (sol) application instructions. (for best results, enter label/seal number and select label number as the sort order, or. The filing of an application for the issuance of a statement of ownership and location, later than sixty (60) days after the date of a sale. Mhd Form 1037.
From www.templateroller.com
MHD Form 1066 Fill Out, Sign Online and Download Fillable PDF, Texas Templateroller Mhd Form 1037 The filing of an application for the issuance of a statement of ownership and location, later than sixty (60) days after the date of a sale to a consumer for residential use, may result in a. Manufactured home inquiries are made at the georgetown location. Texas department of housing and community affairs manufactured housing division. Mhd form 1037 / applysol.doc. Mhd Form 1037.
From www.templateroller.com
MHD Form 1025 Fill Out, Sign Online and Download Printable PDF, Texas Templateroller Mhd Form 1037 05/03/10 statement of ownership and location (sol) application instructions. Mhd form 1037 / applystatement of owner.doc page 1 of 10 revised 01/16/2021. (for best results, enter label/seal number and select label number as the sort order, or. The filing of an application for the. The filing of an application for the issuance of a statement of ownership and location, later. Mhd Form 1037.
From www.templateroller.com
MHD Form 1029 Fill Out, Sign Online and Download Printable PDF, Texas Templateroller Mhd Form 1037 In our continued efforts to improve efficiency, the following forms are now available as fillable forms in pdf format on the tdhca manufactured. The filing of an application for the issuance of a statement of ownership and location, later than sixty (60) days after the date of a sale to a consumer for residential use, may result in a. Manufactured. Mhd Form 1037.
From www.templateroller.com
MHD Form 1023 Fill Out, Sign Online and Download Fillable PDF, Texas Templateroller Mhd Form 1037 Steps to obtain the statement from the tax assessor / collector. 05/03/10 statement of ownership and location (sol) application instructions. Mhd form 1037 / applystatement of owner.doc page 1 of 10 revised 01/16/2021. Texas department of housing and community affairs manufactured housing division. The filing of an application for the issuance of a statement of ownership and location, later than. Mhd Form 1037.
From www.templateroller.com
MHD Form 1047 Fill Out, Sign Online and Download Fillable PDF, Texas Templateroller Mhd Form 1037 Mhd form 1037 / applystatement of owner.doc page 1 of 10 revised 01/16/2021. Steps to obtain the statement from the tax assessor / collector. In our continued efforts to improve efficiency, the following forms are now available as fillable forms in pdf format on the tdhca manufactured. 05/03/10 statement of ownership and location (sol) application instructions. The filing of an. Mhd Form 1037.
From www.templateroller.com
MHD Form 1093 Fill Out, Sign Online and Download Fillable PDF, Texas Templateroller Mhd Form 1037 (for best results, enter label/seal number and select label number as the sort order, or. The filing of an application for the issuance of a statement of ownership and location, later than sixty (60) days after the date of a sale to a consumer for residential use, may result in a. 05/03/10 statement of ownership and location (sol) application instructions.. Mhd Form 1037.
From www.templateroller.com
MHD Form 1084 Fill Out, Sign Online and Download Fillable PDF, Texas Templateroller Mhd Form 1037 Mhd form 1037 / applystatement of owner.doc page 1 of 10 revised 01/16/2021. The filing of an application for the. (for best results, enter label/seal number and select label number as the sort order, or. Steps to obtain the statement from the tax assessor / collector. In our continued efforts to improve efficiency, the following forms are now available as. Mhd Form 1037.
From www.templateroller.com
MHD Form 1075 Fill Out, Sign Online and Download Printable PDF, Texas Templateroller Mhd Form 1037 Texas department of housing and community affairs manufactured housing division. Steps to obtain the statement from the tax assessor / collector. In our continued efforts to improve efficiency, the following forms are now available as fillable forms in pdf format on the tdhca manufactured. The filing of an application for the issuance of a statement of ownership and location, later. Mhd Form 1037.
From www.templateroller.com
Form 1037 Fill Out, Sign Online and Download Fillable PDF, Nevada Templateroller Mhd Form 1037 Mhd form 1037 / applysol.doc page 1 of 5 rev. In our continued efforts to improve efficiency, the following forms are now available as fillable forms in pdf format on the tdhca manufactured. (for best results, enter label/seal number and select label number as the sort order, or. 05/03/10 statement of ownership and location (sol) application instructions. The filing of. Mhd Form 1037.
From www.templateroller.com
MHD Form 1023 Fill Out, Sign Online and Download Fillable PDF, Texas Templateroller Mhd Form 1037 Texas department of housing and community affairs manufactured housing division. The filing of an application for the issuance of a statement of ownership and location, later than sixty (60) days after the date of a sale to a consumer for residential use, may result in a. Manufactured home inquiries are made at the georgetown location. (for best results, enter label/seal. Mhd Form 1037.
From www.templateroller.com
MHD Form 1054 Fill Out, Sign Online and Download Printable PDF, Texas Templateroller Mhd Form 1037 Texas department of housing and community affairs manufactured housing division. Mhd form 1037 / applystatement of owner.doc page 1 of 10 revised 01/16/2021. (for best results, enter label/seal number and select label number as the sort order, or. 05/03/10 statement of ownership and location (sol) application instructions. Mhd form 1037 / applysol.doc page 1 of 5 rev. In our continued. Mhd Form 1037.
From www.templateroller.com
MHD Form 1082 Fill Out, Sign Online and Download Fillable PDF, Texas Templateroller Mhd Form 1037 05/03/10 statement of ownership and location (sol) application instructions. In our continued efforts to improve efficiency, the following forms are now available as fillable forms in pdf format on the tdhca manufactured. The filing of an application for the issuance of a statement of ownership and location, later than sixty (60) days after the date of a sale to a. Mhd Form 1037.
From www.templateroller.com
MHD Form 1103 Fill Out, Sign Online and Download Printable PDF, Texas Templateroller Mhd Form 1037 Mhd form 1037 / applystatement of owner.doc page 1 of 10 revised 01/16/2021. In our continued efforts to improve efficiency, the following forms are now available as fillable forms in pdf format on the tdhca manufactured. Manufactured home inquiries are made at the georgetown location. (for best results, enter label/seal number and select label number as the sort order, or.. Mhd Form 1037.
From www.templateroller.com
MHD Form 1081 Download Fillable PDF or Fill Online Adding or Deleting a Related Person to a Mhd Form 1037 In our continued efforts to improve efficiency, the following forms are now available as fillable forms in pdf format on the tdhca manufactured. 05/03/10 statement of ownership and location (sol) application instructions. Mhd form 1037 / applysol.doc page 1 of 5 rev. The filing of an application for the. Steps to obtain the statement from the tax assessor / collector.. Mhd Form 1037.
From www.signnow.com
Form 1037 Complete with ease airSlate SignNow Mhd Form 1037 In our continued efforts to improve efficiency, the following forms are now available as fillable forms in pdf format on the tdhca manufactured. Texas department of housing and community affairs manufactured housing division. 05/03/10 statement of ownership and location (sol) application instructions. Manufactured home inquiries are made at the georgetown location. (for best results, enter label/seal number and select label. Mhd Form 1037.
From www.templateroller.com
MHD Form 1045 Fill Out, Sign Online and Download Fillable PDF, Texas Templateroller Mhd Form 1037 Mhd form 1037 / applysol.doc page 1 of 5 rev. Steps to obtain the statement from the tax assessor / collector. (for best results, enter label/seal number and select label number as the sort order, or. Texas department of housing and community affairs manufactured housing division. In our continued efforts to improve efficiency, the following forms are now available as. Mhd Form 1037.
From www.templateroller.com
MHD Form 1067 Fill Out, Sign Online and Download Printable PDF, Texas Templateroller Mhd Form 1037 The filing of an application for the issuance of a statement of ownership and location, later than sixty (60) days after the date of a sale to a consumer for residential use, may result in a. In our continued efforts to improve efficiency, the following forms are now available as fillable forms in pdf format on the tdhca manufactured. The. Mhd Form 1037.