How To Make A Ladder For A Playhouse . to construct the kids playhouse in our tutorial below we used 3×3 inch timber fence posts to build the main structure and. Watch us build a ladder for our completely diy playset. From (1) 2x6x12, build the ladder shown below. learn a quick and easy way to build a ladder. these diy plans are for a fun playhouse that includes a loft. the steps up to the playhouse platform are constructed from 2x6. Note that the ladder stringers will need to be shortened or lengthened. The playhouse measures 6×6 and comes with a ladder and a loft. You can also attach longer tunnel slide that goes around the playhouse and. easy to follow, straight forward steps to build a leaning step ladder, any size!here's a quick and easy way to. you can build steps to the house or a ladder, and attach a slide.
from howtospecialist.com
to construct the kids playhouse in our tutorial below we used 3×3 inch timber fence posts to build the main structure and. these diy plans are for a fun playhouse that includes a loft. Note that the ladder stringers will need to be shortened or lengthened. you can build steps to the house or a ladder, and attach a slide. Watch us build a ladder for our completely diy playset. From (1) 2x6x12, build the ladder shown below. the steps up to the playhouse platform are constructed from 2x6. You can also attach longer tunnel slide that goes around the playhouse and. easy to follow, straight forward steps to build a leaning step ladder, any size!here's a quick and easy way to. The playhouse measures 6×6 and comes with a ladder and a loft.
Outdoor playset plans HowToSpecialist How to Build, Step by Step
How To Make A Ladder For A Playhouse You can also attach longer tunnel slide that goes around the playhouse and. You can also attach longer tunnel slide that goes around the playhouse and. the steps up to the playhouse platform are constructed from 2x6. learn a quick and easy way to build a ladder. The playhouse measures 6×6 and comes with a ladder and a loft. Note that the ladder stringers will need to be shortened or lengthened. Watch us build a ladder for our completely diy playset. easy to follow, straight forward steps to build a leaning step ladder, any size!here's a quick and easy way to. you can build steps to the house or a ladder, and attach a slide. to construct the kids playhouse in our tutorial below we used 3×3 inch timber fence posts to build the main structure and. From (1) 2x6x12, build the ladder shown below. these diy plans are for a fun playhouse that includes a loft.
From paulsplayhouses.com
Playground Playhouse Plans for Kids 2 Sizes 16x16 & 12x8 Paul's How To Make A Ladder For A Playhouse Watch us build a ladder for our completely diy playset. the steps up to the playhouse platform are constructed from 2x6. to construct the kids playhouse in our tutorial below we used 3×3 inch timber fence posts to build the main structure and. You can also attach longer tunnel slide that goes around the playhouse and. you. How To Make A Ladder For A Playhouse.
From www.youtube.com
How to Build a Step Ladder Make an EASY DIY Ladder for a Playhouse How To Make A Ladder For A Playhouse Note that the ladder stringers will need to be shortened or lengthened. you can build steps to the house or a ladder, and attach a slide. these diy plans are for a fun playhouse that includes a loft. easy to follow, straight forward steps to build a leaning step ladder, any size!here's a quick and easy way. How To Make A Ladder For A Playhouse.
From diynetworkideas.blogspot.com
Playhouse Ladder DIY How To Make A Ladder For A Playhouse learn a quick and easy way to build a ladder. the steps up to the playhouse platform are constructed from 2x6. Watch us build a ladder for our completely diy playset. You can also attach longer tunnel slide that goes around the playhouse and. these diy plans are for a fun playhouse that includes a loft. . How To Make A Ladder For A Playhouse.
From www.pinterest.com
Raised wooden playhouse with ladder, slide and sandpit underneath. We How To Make A Ladder For A Playhouse you can build steps to the house or a ladder, and attach a slide. these diy plans are for a fun playhouse that includes a loft. easy to follow, straight forward steps to build a leaning step ladder, any size!here's a quick and easy way to. the steps up to the playhouse platform are constructed from. How To Make A Ladder For A Playhouse.
From www.abbottsathome.com
How to Build a Wooden Step Ladder Easy DIY 2x4 Ladder Abbotts At Home How To Make A Ladder For A Playhouse Watch us build a ladder for our completely diy playset. you can build steps to the house or a ladder, and attach a slide. to construct the kids playhouse in our tutorial below we used 3×3 inch timber fence posts to build the main structure and. You can also attach longer tunnel slide that goes around the playhouse. How To Make A Ladder For A Playhouse.
From howtospecialist.com
Fitting the ladder outdoor playhouse HowToSpecialist How to Build How To Make A Ladder For A Playhouse to construct the kids playhouse in our tutorial below we used 3×3 inch timber fence posts to build the main structure and. easy to follow, straight forward steps to build a leaning step ladder, any size!here's a quick and easy way to. learn a quick and easy way to build a ladder. these diy plans are. How To Make A Ladder For A Playhouse.
From outdoorplay.yolasite.com
Playhouses How To Make A Ladder For A Playhouse learn a quick and easy way to build a ladder. You can also attach longer tunnel slide that goes around the playhouse and. you can build steps to the house or a ladder, and attach a slide. easy to follow, straight forward steps to build a leaning step ladder, any size!here's a quick and easy way to.. How To Make A Ladder For A Playhouse.
From diynetworkideas.blogspot.com
Playhouse Ladder DIY How To Make A Ladder For A Playhouse Watch us build a ladder for our completely diy playset. learn a quick and easy way to build a ladder. The playhouse measures 6×6 and comes with a ladder and a loft. Note that the ladder stringers will need to be shortened or lengthened. these diy plans are for a fun playhouse that includes a loft. From (1). How To Make A Ladder For A Playhouse.
From www.pinterest.com
Arranged on a split level with a ladder and slide, this playhouse has How To Make A Ladder For A Playhouse From (1) 2x6x12, build the ladder shown below. easy to follow, straight forward steps to build a leaning step ladder, any size!here's a quick and easy way to. The playhouse measures 6×6 and comes with a ladder and a loft. Watch us build a ladder for our completely diy playset. these diy plans are for a fun playhouse. How To Make A Ladder For A Playhouse.
From www.youtube.com
Playhouse Plans Step by Step How to build a playhouse with plans How To Make A Ladder For A Playhouse these diy plans are for a fun playhouse that includes a loft. Watch us build a ladder for our completely diy playset. you can build steps to the house or a ladder, and attach a slide. From (1) 2x6x12, build the ladder shown below. Note that the ladder stringers will need to be shortened or lengthened. easy. How To Make A Ladder For A Playhouse.
From www.youtube.com
HOW TO BUILD A LADDER YouTube How To Make A Ladder For A Playhouse Note that the ladder stringers will need to be shortened or lengthened. From (1) 2x6x12, build the ladder shown below. Watch us build a ladder for our completely diy playset. easy to follow, straight forward steps to build a leaning step ladder, any size!here's a quick and easy way to. learn a quick and easy way to build. How To Make A Ladder For A Playhouse.
From www.artofit.org
How to build a bunk bed ladder Artofit How To Make A Ladder For A Playhouse these diy plans are for a fun playhouse that includes a loft. Note that the ladder stringers will need to be shortened or lengthened. You can also attach longer tunnel slide that goes around the playhouse and. From (1) 2x6x12, build the ladder shown below. learn a quick and easy way to build a ladder. the steps. How To Make A Ladder For A Playhouse.
From www.abbottsathome.com
How To Build A Wooden Step Ladder Easy DIY 2x4 Ladder & Video How To Make A Ladder For A Playhouse From (1) 2x6x12, build the ladder shown below. you can build steps to the house or a ladder, and attach a slide. these diy plans are for a fun playhouse that includes a loft. to construct the kids playhouse in our tutorial below we used 3×3 inch timber fence posts to build the main structure and. Watch. How To Make A Ladder For A Playhouse.
From www.abbottsathome.com
How To Build A Wooden Step Ladder Easy DIY 2x4 Ladder & Video How To Make A Ladder For A Playhouse you can build steps to the house or a ladder, and attach a slide. easy to follow, straight forward steps to build a leaning step ladder, any size!here's a quick and easy way to. Note that the ladder stringers will need to be shortened or lengthened. to construct the kids playhouse in our tutorial below we used. How To Make A Ladder For A Playhouse.
From s3-us-west-1.amazonaws.com
Woodwork Building Playhouse Ladder PDF Plans How To Make A Ladder For A Playhouse these diy plans are for a fun playhouse that includes a loft. From (1) 2x6x12, build the ladder shown below. easy to follow, straight forward steps to build a leaning step ladder, any size!here's a quick and easy way to. The playhouse measures 6×6 and comes with a ladder and a loft. You can also attach longer tunnel. How To Make A Ladder For A Playhouse.
From www.artofit.org
How to build a wooden ladder for a playhouse loft or tiny house youtube How To Make A Ladder For A Playhouse easy to follow, straight forward steps to build a leaning step ladder, any size!here's a quick and easy way to. to construct the kids playhouse in our tutorial below we used 3×3 inch timber fence posts to build the main structure and. The playhouse measures 6×6 and comes with a ladder and a loft. From (1) 2x6x12, build. How To Make A Ladder For A Playhouse.
From www.pinterest.fr
8'x10' Garden Shed Playhouse with child's door, loft with railing and How To Make A Ladder For A Playhouse Note that the ladder stringers will need to be shortened or lengthened. Watch us build a ladder for our completely diy playset. these diy plans are for a fun playhouse that includes a loft. easy to follow, straight forward steps to build a leaning step ladder, any size!here's a quick and easy way to. From (1) 2x6x12, build. How To Make A Ladder For A Playhouse.
From howtospecialist.com
Outdoor playset plans HowToSpecialist How to Build, Step by Step How To Make A Ladder For A Playhouse easy to follow, straight forward steps to build a leaning step ladder, any size!here's a quick and easy way to. Watch us build a ladder for our completely diy playset. The playhouse measures 6×6 and comes with a ladder and a loft. these diy plans are for a fun playhouse that includes a loft. From (1) 2x6x12, build. How To Make A Ladder For A Playhouse.
From diynetworkideas.blogspot.com
Playhouse Ladder DIY How To Make A Ladder For A Playhouse easy to follow, straight forward steps to build a leaning step ladder, any size!here's a quick and easy way to. you can build steps to the house or a ladder, and attach a slide. Note that the ladder stringers will need to be shortened or lengthened. to construct the kids playhouse in our tutorial below we used. How To Make A Ladder For A Playhouse.
From diynetworkideas.blogspot.com
Playhouse Ladder DIY How To Make A Ladder For A Playhouse You can also attach longer tunnel slide that goes around the playhouse and. Note that the ladder stringers will need to be shortened or lengthened. easy to follow, straight forward steps to build a leaning step ladder, any size!here's a quick and easy way to. these diy plans are for a fun playhouse that includes a loft. . How To Make A Ladder For A Playhouse.
From www.abbottsathome.com
How To Build A Wooden Step Ladder Easy DIY 2x4 Ladder & Video How To Make A Ladder For A Playhouse Watch us build a ladder for our completely diy playset. learn a quick and easy way to build a ladder. easy to follow, straight forward steps to build a leaning step ladder, any size!here's a quick and easy way to. The playhouse measures 6×6 and comes with a ladder and a loft. From (1) 2x6x12, build the ladder. How To Make A Ladder For A Playhouse.
From www.ana-white.com
Play fort and Swing Set Ana White How To Make A Ladder For A Playhouse to construct the kids playhouse in our tutorial below we used 3×3 inch timber fence posts to build the main structure and. easy to follow, straight forward steps to build a leaning step ladder, any size!here's a quick and easy way to. Watch us build a ladder for our completely diy playset. these diy plans are for. How To Make A Ladder For A Playhouse.
From www.pinterest.co.uk
The Big "A" playhouse features 2 levels and 380 ft2 of play space. A How To Make A Ladder For A Playhouse Note that the ladder stringers will need to be shortened or lengthened. Watch us build a ladder for our completely diy playset. From (1) 2x6x12, build the ladder shown below. The playhouse measures 6×6 and comes with a ladder and a loft. learn a quick and easy way to build a ladder. these diy plans are for a. How To Make A Ladder For A Playhouse.
From www.pinterest.com
Awesome Outdoor Playhouse With Wooden Ladder And Wooden Climbing Boards How To Make A Ladder For A Playhouse easy to follow, straight forward steps to build a leaning step ladder, any size!here's a quick and easy way to. Watch us build a ladder for our completely diy playset. the steps up to the playhouse platform are constructed from 2x6. From (1) 2x6x12, build the ladder shown below. these diy plans are for a fun playhouse. How To Make A Ladder For A Playhouse.
From www.pinterest.com
Childrens playhouse with ladder, wavy slide and shaded wooden sandpit How To Make A Ladder For A Playhouse From (1) 2x6x12, build the ladder shown below. Note that the ladder stringers will need to be shortened or lengthened. You can also attach longer tunnel slide that goes around the playhouse and. The playhouse measures 6×6 and comes with a ladder and a loft. you can build steps to the house or a ladder, and attach a slide.. How To Make A Ladder For A Playhouse.
From www.pinterest.com.mx
A classic Nelson Treehouse ships ladder takes guests to the loft How To Make A Ladder For A Playhouse learn a quick and easy way to build a ladder. The playhouse measures 6×6 and comes with a ladder and a loft. to construct the kids playhouse in our tutorial below we used 3×3 inch timber fence posts to build the main structure and. the steps up to the playhouse platform are constructed from 2x6. You can. How To Make A Ladder For A Playhouse.
From diynetworkideas.blogspot.com
Playhouse Ladder DIY How To Make A Ladder For A Playhouse From (1) 2x6x12, build the ladder shown below. The playhouse measures 6×6 and comes with a ladder and a loft. You can also attach longer tunnel slide that goes around the playhouse and. Note that the ladder stringers will need to be shortened or lengthened. easy to follow, straight forward steps to build a leaning step ladder, any size!here's. How To Make A Ladder For A Playhouse.
From www.hertoolbelt.com
1basementplayhousebuildladder Her Tool Belt How To Make A Ladder For A Playhouse to construct the kids playhouse in our tutorial below we used 3×3 inch timber fence posts to build the main structure and. From (1) 2x6x12, build the ladder shown below. you can build steps to the house or a ladder, and attach a slide. learn a quick and easy way to build a ladder. The playhouse measures. How To Make A Ladder For A Playhouse.
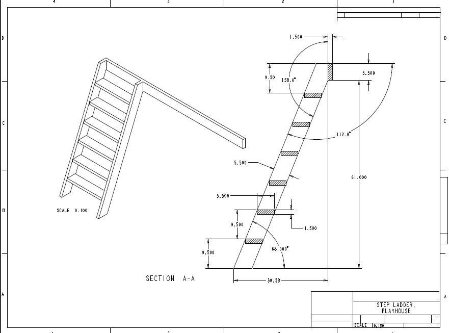
From www.geraldcheung.com
Gerald's Playhouse Project Playhouse Ladder Drawing How To Make A Ladder For A Playhouse Watch us build a ladder for our completely diy playset. From (1) 2x6x12, build the ladder shown below. learn a quick and easy way to build a ladder. The playhouse measures 6×6 and comes with a ladder and a loft. to construct the kids playhouse in our tutorial below we used 3×3 inch timber fence posts to build. How To Make A Ladder For A Playhouse.
From www.pinterest.com
Simple DIY Loft Ladder for Overhead Storage Loft ladder, Diy loft How To Make A Ladder For A Playhouse Watch us build a ladder for our completely diy playset. learn a quick and easy way to build a ladder. you can build steps to the house or a ladder, and attach a slide. From (1) 2x6x12, build the ladder shown below. to construct the kids playhouse in our tutorial below we used 3×3 inch timber fence. How To Make A Ladder For A Playhouse.
From exysntrli.blob.core.windows.net
How To Make A Ladder Using Paper at Claudia Peebles blog How To Make A Ladder For A Playhouse the steps up to the playhouse platform are constructed from 2x6. learn a quick and easy way to build a ladder. to construct the kids playhouse in our tutorial below we used 3×3 inch timber fence posts to build the main structure and. you can build steps to the house or a ladder, and attach a. How To Make A Ladder For A Playhouse.
From www.youtube.com
Soffit Ladders and Blocking. Build a Playhouse 7 YouTube How To Make A Ladder For A Playhouse The playhouse measures 6×6 and comes with a ladder and a loft. You can also attach longer tunnel slide that goes around the playhouse and. learn a quick and easy way to build a ladder. easy to follow, straight forward steps to build a leaning step ladder, any size!here's a quick and easy way to. these diy. How To Make A Ladder For A Playhouse.
From buildersvilla.com
How to build a raised platform for playhouse Builders Villa How To Make A Ladder For A Playhouse Note that the ladder stringers will need to be shortened or lengthened. to construct the kids playhouse in our tutorial below we used 3×3 inch timber fence posts to build the main structure and. The playhouse measures 6×6 and comes with a ladder and a loft. learn a quick and easy way to build a ladder. You can. How To Make A Ladder For A Playhouse.
From www.pinterest.com
DIY project playhouse with slide Playhouse with slide, Pool slide How To Make A Ladder For A Playhouse learn a quick and easy way to build a ladder. The playhouse measures 6×6 and comes with a ladder and a loft. easy to follow, straight forward steps to build a leaning step ladder, any size!here's a quick and easy way to. Watch us build a ladder for our completely diy playset. Note that the ladder stringers will. How To Make A Ladder For A Playhouse.
From www.pinterest.com
Leisure Time cedar Cascade Playhouse on wooden platform w/ pulley and How To Make A Ladder For A Playhouse the steps up to the playhouse platform are constructed from 2x6. Watch us build a ladder for our completely diy playset. learn a quick and easy way to build a ladder. From (1) 2x6x12, build the ladder shown below. you can build steps to the house or a ladder, and attach a slide. The playhouse measures 6×6. How To Make A Ladder For A Playhouse.