Property Transfer Tax Bc Canada . When you purchase or gain an interest in a property, there are many ways you. When you register an interest in a property, you or your legal professional must file a property transfer tax return. Calculate property transfer tax for bc, including british columbia's newly built homes exemption calculation. Find out about rebates for. Last updated on april 9, 2024. Once you’ve purchased or gained interest in property registered at the land title office in british columbia, a property transfer tax return must be filed. These land transfer tax rates are as follows: Consult with a legal professional when you file a property transfer tax return to ensure you pay the correct tax amount. The british columbia land transfer tax is a marginal tax, and each portion of your home's value is taxed at its own unique tax rate. Property transfer tax rates & rules in bc. Land transfer tax is a tax that must be paid to the government when a property is purchased and the title is transferred to a new titleholder’s.
from germyn.ca
The british columbia land transfer tax is a marginal tax, and each portion of your home's value is taxed at its own unique tax rate. Last updated on april 9, 2024. Find out about rebates for. When you purchase or gain an interest in a property, there are many ways you. These land transfer tax rates are as follows: Once you’ve purchased or gained interest in property registered at the land title office in british columbia, a property transfer tax return must be filed. Consult with a legal professional when you file a property transfer tax return to ensure you pay the correct tax amount. Calculate property transfer tax for bc, including british columbia's newly built homes exemption calculation. When you register an interest in a property, you or your legal professional must file a property transfer tax return. Property transfer tax rates & rules in bc.
Property Transfer Tax 101 Navigating the Basics for BC Homebuyers
Property Transfer Tax Bc Canada Once you’ve purchased or gained interest in property registered at the land title office in british columbia, a property transfer tax return must be filed. The british columbia land transfer tax is a marginal tax, and each portion of your home's value is taxed at its own unique tax rate. Consult with a legal professional when you file a property transfer tax return to ensure you pay the correct tax amount. When you register an interest in a property, you or your legal professional must file a property transfer tax return. Land transfer tax is a tax that must be paid to the government when a property is purchased and the title is transferred to a new titleholder’s. Once you’ve purchased or gained interest in property registered at the land title office in british columbia, a property transfer tax return must be filed. When you purchase or gain an interest in a property, there are many ways you. These land transfer tax rates are as follows: Property transfer tax rates & rules in bc. Calculate property transfer tax for bc, including british columbia's newly built homes exemption calculation. Find out about rebates for. Last updated on april 9, 2024.
From www.youtube.com
Goodbye to the property transfer tax BC 🥳 🎉 First time home buyers Property Transfer Tax Bc Canada These land transfer tax rates are as follows: Property transfer tax rates & rules in bc. When you purchase or gain an interest in a property, there are many ways you. When you register an interest in a property, you or your legal professional must file a property transfer tax return. Calculate property transfer tax for bc, including british columbia's. Property Transfer Tax Bc Canada.
From bchb.ca
BC Property Transfer Tax BC Homes for sale Real Estate 101 Property Transfer Tax Bc Canada These land transfer tax rates are as follows: Last updated on april 9, 2024. Calculate property transfer tax for bc, including british columbia's newly built homes exemption calculation. When you purchase or gain an interest in a property, there are many ways you. The british columbia land transfer tax is a marginal tax, and each portion of your home's value. Property Transfer Tax Bc Canada.
From workingholidayincanada.com
The Basics Of Tax In Canada Property Transfer Tax Bc Canada When you register an interest in a property, you or your legal professional must file a property transfer tax return. Find out about rebates for. Last updated on april 9, 2024. When you purchase or gain an interest in a property, there are many ways you. Consult with a legal professional when you file a property transfer tax return to. Property Transfer Tax Bc Canada.
From rezel.ca
Prof Pavlov’s “City of Vancouver currently has the highest property Property Transfer Tax Bc Canada Property transfer tax rates & rules in bc. When you purchase or gain an interest in a property, there are many ways you. Last updated on april 9, 2024. These land transfer tax rates are as follows: Once you’ve purchased or gained interest in property registered at the land title office in british columbia, a property transfer tax return must. Property Transfer Tax Bc Canada.
From www.pine.ca
What homebuyers need to know about BC's property transfer tax Property Transfer Tax Bc Canada Calculate property transfer tax for bc, including british columbia's newly built homes exemption calculation. These land transfer tax rates are as follows: Property transfer tax rates & rules in bc. Consult with a legal professional when you file a property transfer tax return to ensure you pay the correct tax amount. Once you’ve purchased or gained interest in property registered. Property Transfer Tax Bc Canada.
From wefin.ca
Know All About The Best BC Property Transfer Tax Calculator Property Transfer Tax Bc Canada When you register an interest in a property, you or your legal professional must file a property transfer tax return. Land transfer tax is a tax that must be paid to the government when a property is purchased and the title is transferred to a new titleholder’s. The british columbia land transfer tax is a marginal tax, and each portion. Property Transfer Tax Bc Canada.
From www.youtube.com
changes to the BC Property Transfer Tax program YouTube Property Transfer Tax Bc Canada When you register an interest in a property, you or your legal professional must file a property transfer tax return. When you purchase or gain an interest in a property, there are many ways you. Once you’ve purchased or gained interest in property registered at the land title office in british columbia, a property transfer tax return must be filed.. Property Transfer Tax Bc Canada.
From castlellp.com
BC Property Transfer Tax Calculator Castle Law LLP Property Transfer Tax Bc Canada Land transfer tax is a tax that must be paid to the government when a property is purchased and the title is transferred to a new titleholder’s. Consult with a legal professional when you file a property transfer tax return to ensure you pay the correct tax amount. Last updated on april 9, 2024. When you purchase or gain an. Property Transfer Tax Bc Canada.
From christiangeo-universeandgalaxy.blogspot.com
estate tax return due date canada Aubrey Leigh Property Transfer Tax Bc Canada Consult with a legal professional when you file a property transfer tax return to ensure you pay the correct tax amount. When you register an interest in a property, you or your legal professional must file a property transfer tax return. Property transfer tax rates & rules in bc. Land transfer tax is a tax that must be paid to. Property Transfer Tax Bc Canada.
From www.kelownacondos.ca
What is BC Property Transfer Tax Everything You Need to Know Property Transfer Tax Bc Canada When you register an interest in a property, you or your legal professional must file a property transfer tax return. Consult with a legal professional when you file a property transfer tax return to ensure you pay the correct tax amount. These land transfer tax rates are as follows: Once you’ve purchased or gained interest in property registered at the. Property Transfer Tax Bc Canada.
From ratemasters.ca
Understanding BC Property Transfer Tax, Rates & Rebates Property Transfer Tax Bc Canada When you purchase or gain an interest in a property, there are many ways you. Last updated on april 9, 2024. These land transfer tax rates are as follows: The british columbia land transfer tax is a marginal tax, and each portion of your home's value is taxed at its own unique tax rate. Find out about rebates for. When. Property Transfer Tax Bc Canada.
From dailyhive.com
Foreign buyers only account for 5 Metro Vancouver real estate sales Property Transfer Tax Bc Canada Property transfer tax rates & rules in bc. Last updated on april 9, 2024. When you register an interest in a property, you or your legal professional must file a property transfer tax return. The british columbia land transfer tax is a marginal tax, and each portion of your home's value is taxed at its own unique tax rate. Calculate. Property Transfer Tax Bc Canada.
From www.youtube.com
What is the Property Transfer Tax in BC? YouTube Property Transfer Tax Bc Canada When you purchase or gain an interest in a property, there are many ways you. Calculate property transfer tax for bc, including british columbia's newly built homes exemption calculation. Once you’ve purchased or gained interest in property registered at the land title office in british columbia, a property transfer tax return must be filed. Last updated on april 9, 2024.. Property Transfer Tax Bc Canada.
From www.kelownacondos.ca
What is BC Property Transfer Tax Everything You Need to Know Property Transfer Tax Bc Canada Land transfer tax is a tax that must be paid to the government when a property is purchased and the title is transferred to a new titleholder’s. When you register an interest in a property, you or your legal professional must file a property transfer tax return. These land transfer tax rates are as follows: Find out about rebates for.. Property Transfer Tax Bc Canada.
From www.youtube.com
Property Transfer Tax, BC and Exemptions YouTube Property Transfer Tax Bc Canada Consult with a legal professional when you file a property transfer tax return to ensure you pay the correct tax amount. Property transfer tax rates & rules in bc. Last updated on april 9, 2024. Once you’ve purchased or gained interest in property registered at the land title office in british columbia, a property transfer tax return must be filed.. Property Transfer Tax Bc Canada.
From www.vancouverarchives.ca
Vancouver property tax records to 2005 now available at the Archives Property Transfer Tax Bc Canada Last updated on april 9, 2024. Once you’ve purchased or gained interest in property registered at the land title office in british columbia, a property transfer tax return must be filed. The british columbia land transfer tax is a marginal tax, and each portion of your home's value is taxed at its own unique tax rate. When you purchase or. Property Transfer Tax Bc Canada.
From maressawjaneen.pages.dev
Vancouver Property Tax Increase 2024 Vale Mandie Property Transfer Tax Bc Canada Property transfer tax rates & rules in bc. Consult with a legal professional when you file a property transfer tax return to ensure you pay the correct tax amount. Last updated on april 9, 2024. When you purchase or gain an interest in a property, there are many ways you. Once you’ve purchased or gained interest in property registered at. Property Transfer Tax Bc Canada.
From workingholidayincanada.com
The basics of tax in Canada » Property Transfer Tax Bc Canada Calculate property transfer tax for bc, including british columbia's newly built homes exemption calculation. When you register an interest in a property, you or your legal professional must file a property transfer tax return. When you purchase or gain an interest in a property, there are many ways you. Property transfer tax rates & rules in bc. Last updated on. Property Transfer Tax Bc Canada.
From www.youtube.com
How to Calculate Property Transfer Tax BC YouTube Property Transfer Tax Bc Canada Find out about rebates for. These land transfer tax rates are as follows: Last updated on april 9, 2024. When you purchase or gain an interest in a property, there are many ways you. Once you’ve purchased or gained interest in property registered at the land title office in british columbia, a property transfer tax return must be filed. When. Property Transfer Tax Bc Canada.
From www.youtube.com
Podcast Episode 5 All About Property Transfer Tax in Vancouver YouTube Property Transfer Tax Bc Canada When you purchase or gain an interest in a property, there are many ways you. Once you’ve purchased or gained interest in property registered at the land title office in british columbia, a property transfer tax return must be filed. Find out about rebates for. When you register an interest in a property, you or your legal professional must file. Property Transfer Tax Bc Canada.
From www.invictalaw.ca
BC Property Transfer Tax and Exemptions Invicta Law Property Transfer Tax Bc Canada Property transfer tax rates & rules in bc. Land transfer tax is a tax that must be paid to the government when a property is purchased and the title is transferred to a new titleholder’s. Once you’ve purchased or gained interest in property registered at the land title office in british columbia, a property transfer tax return must be filed.. Property Transfer Tax Bc Canada.
From marketbusinessnews.com
Property transfer tax on foreigners could trigger trade war British Property Transfer Tax Bc Canada Last updated on april 9, 2024. Property transfer tax rates & rules in bc. Once you’ve purchased or gained interest in property registered at the land title office in british columbia, a property transfer tax return must be filed. These land transfer tax rates are as follows: The british columbia land transfer tax is a marginal tax, and each portion. Property Transfer Tax Bc Canada.
From fcpp.org
2019ProvincialTaxRates Frontier Centre For Public Policy Property Transfer Tax Bc Canada Calculate property transfer tax for bc, including british columbia's newly built homes exemption calculation. These land transfer tax rates are as follows: When you purchase or gain an interest in a property, there are many ways you. Consult with a legal professional when you file a property transfer tax return to ensure you pay the correct tax amount. The british. Property Transfer Tax Bc Canada.
From www2.gov.bc.ca
Transfers in the course of subdivisions Province of British Columbia Property Transfer Tax Bc Canada These land transfer tax rates are as follows: Consult with a legal professional when you file a property transfer tax return to ensure you pay the correct tax amount. Calculate property transfer tax for bc, including british columbia's newly built homes exemption calculation. When you register an interest in a property, you or your legal professional must file a property. Property Transfer Tax Bc Canada.
From www.gatewaytax.ca
Understanding The Property Transfer Tax 2023 Property Transfer Tax Bc Canada Once you’ve purchased or gained interest in property registered at the land title office in british columbia, a property transfer tax return must be filed. These land transfer tax rates are as follows: Consult with a legal professional when you file a property transfer tax return to ensure you pay the correct tax amount. Last updated on april 9, 2024.. Property Transfer Tax Bc Canada.
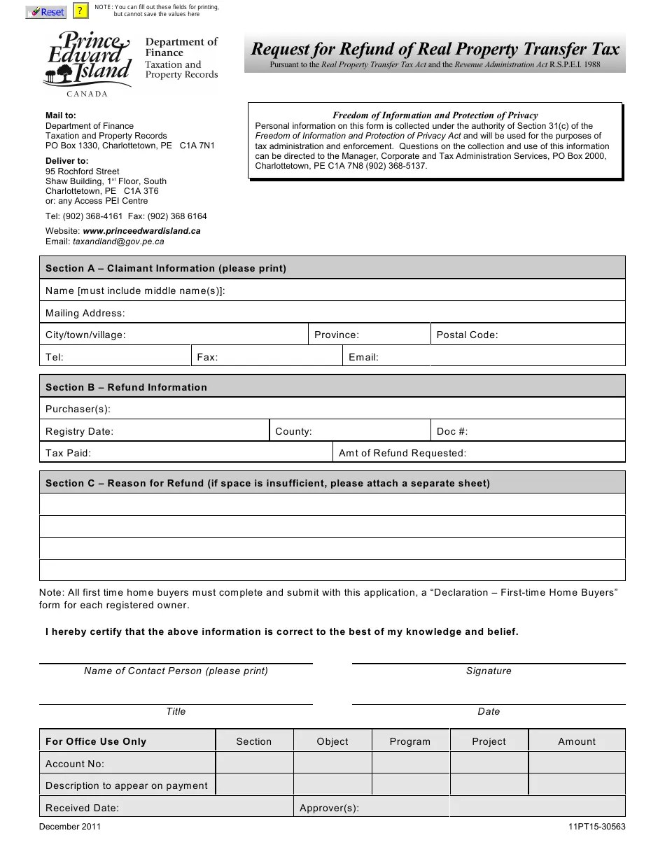
From www.templateroller.com
Prince Edward Island Canada Request for Refund of Real Property Property Transfer Tax Bc Canada Consult with a legal professional when you file a property transfer tax return to ensure you pay the correct tax amount. Calculate property transfer tax for bc, including british columbia's newly built homes exemption calculation. Last updated on april 9, 2024. Property transfer tax rates & rules in bc. These land transfer tax rates are as follows: When you purchase. Property Transfer Tax Bc Canada.
From www.citynest.ca
BC Property Transfer Tax Explained Property Transfer Tax Bc Canada Last updated on april 9, 2024. Land transfer tax is a tax that must be paid to the government when a property is purchased and the title is transferred to a new titleholder’s. These land transfer tax rates are as follows: Calculate property transfer tax for bc, including british columbia's newly built homes exemption calculation. Once you’ve purchased or gained. Property Transfer Tax Bc Canada.
From wefin.ca
Know All About The Best BC Property Transfer Tax Calculator Property Transfer Tax Bc Canada Find out about rebates for. Consult with a legal professional when you file a property transfer tax return to ensure you pay the correct tax amount. The british columbia land transfer tax is a marginal tax, and each portion of your home's value is taxed at its own unique tax rate. Calculate property transfer tax for bc, including british columbia's. Property Transfer Tax Bc Canada.
From homerulend.blogspot.com
Bc First Time Home Buyer Property Transfer Tax Calculator Home Rulend Property Transfer Tax Bc Canada When you purchase or gain an interest in a property, there are many ways you. The british columbia land transfer tax is a marginal tax, and each portion of your home's value is taxed at its own unique tax rate. Consult with a legal professional when you file a property transfer tax return to ensure you pay the correct tax. Property Transfer Tax Bc Canada.
From www.youtube.com
Mortgage Question of the Week What is Property Transfer Tax (BC Property Transfer Tax Bc Canada When you register an interest in a property, you or your legal professional must file a property transfer tax return. Consult with a legal professional when you file a property transfer tax return to ensure you pay the correct tax amount. Land transfer tax is a tax that must be paid to the government when a property is purchased and. Property Transfer Tax Bc Canada.
From www.uslegalforms.com
Property Transfer Tax Province Of British Columbia Fill and Sign Property Transfer Tax Bc Canada Once you’ve purchased or gained interest in property registered at the land title office in british columbia, a property transfer tax return must be filed. When you register an interest in a property, you or your legal professional must file a property transfer tax return. Property transfer tax rates & rules in bc. Consult with a legal professional when you. Property Transfer Tax Bc Canada.
From dailyhive.com
New Property Transfer Tax exemptions for firsttime buyers and new Property Transfer Tax Bc Canada When you register an interest in a property, you or your legal professional must file a property transfer tax return. Land transfer tax is a tax that must be paid to the government when a property is purchased and the title is transferred to a new titleholder’s. Once you’ve purchased or gained interest in property registered at the land title. Property Transfer Tax Bc Canada.
From germyn.ca
Property Transfer Tax 101 Navigating the Basics for BC Homebuyers Property Transfer Tax Bc Canada When you purchase or gain an interest in a property, there are many ways you. When you register an interest in a property, you or your legal professional must file a property transfer tax return. Consult with a legal professional when you file a property transfer tax return to ensure you pay the correct tax amount. Once you’ve purchased or. Property Transfer Tax Bc Canada.
From northam-law.com
BC's New Property Transfer Tax Exemptions A WinWin for Buyers and Property Transfer Tax Bc Canada Last updated on april 9, 2024. Property transfer tax rates & rules in bc. When you register an interest in a property, you or your legal professional must file a property transfer tax return. Find out about rebates for. These land transfer tax rates are as follows: Calculate property transfer tax for bc, including british columbia's newly built homes exemption. Property Transfer Tax Bc Canada.
From marketbusinessnews.com
Property transfer tax on foreigners could trigger trade war British Property Transfer Tax Bc Canada Land transfer tax is a tax that must be paid to the government when a property is purchased and the title is transferred to a new titleholder’s. These land transfer tax rates are as follows: Consult with a legal professional when you file a property transfer tax return to ensure you pay the correct tax amount. The british columbia land. Property Transfer Tax Bc Canada.