Tank Inspection Codes . Inspection of aboveground storage tanks (asts) can be a critical compliance issue under the planning requirements of the u.s. The scope of sti sp001 standard for the inspection of aboveground storage tanks by the steel tank institute (sti) includes the. Before entering a tank the inspector must: This standard covers steel storage tanks built to api 650 and its predecessor api 12c. Api 653 is the industry standard inspection code for storage tank inspection and maintenance, covering the inspection, repair, alteration, and reconstruction of steel. To do storage tank inspection, american petroleum institute (api) regulated api 653 to inspect, repair, alter, and reconstruct aboveground storage tanks (asts). It provides minimum requirements for. Environmental protection agency's rule for spill.
from www.carltonusa.com
To do storage tank inspection, american petroleum institute (api) regulated api 653 to inspect, repair, alter, and reconstruct aboveground storage tanks (asts). The scope of sti sp001 standard for the inspection of aboveground storage tanks by the steel tank institute (sti) includes the. Environmental protection agency's rule for spill. Before entering a tank the inspector must: Inspection of aboveground storage tanks (asts) can be a critical compliance issue under the planning requirements of the u.s. Api 653 is the industry standard inspection code for storage tank inspection and maintenance, covering the inspection, repair, alteration, and reconstruction of steel. It provides minimum requirements for. This standard covers steel storage tanks built to api 650 and its predecessor api 12c.
Inspection Service Record Decals Equipment Inspection Record 2.5 x 4.5 Carlton Industries
Tank Inspection Codes Before entering a tank the inspector must: This standard covers steel storage tanks built to api 650 and its predecessor api 12c. It provides minimum requirements for. To do storage tank inspection, american petroleum institute (api) regulated api 653 to inspect, repair, alter, and reconstruct aboveground storage tanks (asts). Before entering a tank the inspector must: Inspection of aboveground storage tanks (asts) can be a critical compliance issue under the planning requirements of the u.s. Api 653 is the industry standard inspection code for storage tank inspection and maintenance, covering the inspection, repair, alteration, and reconstruction of steel. Environmental protection agency's rule for spill. The scope of sti sp001 standard for the inspection of aboveground storage tanks by the steel tank institute (sti) includes the.
From es.scribd.com
Inspection and Test Plan For Storage Tank PDF Pipe (Fluid Conveyance) Nondestructive Testing Tank Inspection Codes Inspection of aboveground storage tanks (asts) can be a critical compliance issue under the planning requirements of the u.s. Before entering a tank the inspector must: Api 653 is the industry standard inspection code for storage tank inspection and maintenance, covering the inspection, repair, alteration, and reconstruction of steel. The scope of sti sp001 standard for the inspection of aboveground. Tank Inspection Codes.
From studylib.net
Tank Inspection Basics Tank Inspection Codes Environmental protection agency's rule for spill. This standard covers steel storage tanks built to api 650 and its predecessor api 12c. Before entering a tank the inspector must: The scope of sti sp001 standard for the inspection of aboveground storage tanks by the steel tank institute (sti) includes the. It provides minimum requirements for. Api 653 is the industry standard. Tank Inspection Codes.
From www.techcorr.com
Tank Inspection Techcorr Tank Inspection Codes To do storage tank inspection, american petroleum institute (api) regulated api 653 to inspect, repair, alter, and reconstruct aboveground storage tanks (asts). This standard covers steel storage tanks built to api 650 and its predecessor api 12c. It provides minimum requirements for. Api 653 is the industry standard inspection code for storage tank inspection and maintenance, covering the inspection, repair,. Tank Inspection Codes.
From www.vrogue.co
Storage Tank Inspection Checklist Fill And Sign Print vrogue.co Tank Inspection Codes To do storage tank inspection, american petroleum institute (api) regulated api 653 to inspect, repair, alter, and reconstruct aboveground storage tanks (asts). Inspection of aboveground storage tanks (asts) can be a critical compliance issue under the planning requirements of the u.s. Before entering a tank the inspector must: Environmental protection agency's rule for spill. Api 653 is the industry standard. Tank Inspection Codes.
From www.signnow.com
Tank Inspection Report at 20132024 Form Fill Out and Sign Printable PDF Template airSlate Tank Inspection Codes The scope of sti sp001 standard for the inspection of aboveground storage tanks by the steel tank institute (sti) includes the. It provides minimum requirements for. This standard covers steel storage tanks built to api 650 and its predecessor api 12c. Inspection of aboveground storage tanks (asts) can be a critical compliance issue under the planning requirements of the u.s.. Tank Inspection Codes.
From safels.com
A Comprehensive Guide to Compliance in Storage Tank Inspections Tank Inspection Codes To do storage tank inspection, american petroleum institute (api) regulated api 653 to inspect, repair, alter, and reconstruct aboveground storage tanks (asts). Environmental protection agency's rule for spill. Before entering a tank the inspector must: Api 653 is the industry standard inspection code for storage tank inspection and maintenance, covering the inspection, repair, alteration, and reconstruction of steel. It provides. Tank Inspection Codes.
From www.studocu.com
Api653 compress tank inspection code API 653 Exam March 2019 API 653 3. critical zone The Tank Inspection Codes Environmental protection agency's rule for spill. The scope of sti sp001 standard for the inspection of aboveground storage tanks by the steel tank institute (sti) includes the. Inspection of aboveground storage tanks (asts) can be a critical compliance issue under the planning requirements of the u.s. Before entering a tank the inspector must: Api 653 is the industry standard inspection. Tank Inspection Codes.
From www.files.construction
Inspection Report Form For Water Tanks Construction Documents And Templates Tank Inspection Codes Inspection of aboveground storage tanks (asts) can be a critical compliance issue under the planning requirements of the u.s. Api 653 is the industry standard inspection code for storage tank inspection and maintenance, covering the inspection, repair, alteration, and reconstruction of steel. The scope of sti sp001 standard for the inspection of aboveground storage tanks by the steel tank institute. Tank Inspection Codes.
From es.scribd.com
InService Storage Tank Inspection and Verification Checklist PDF Leak Valve Tank Inspection Codes Inspection of aboveground storage tanks (asts) can be a critical compliance issue under the planning requirements of the u.s. Environmental protection agency's rule for spill. This standard covers steel storage tanks built to api 650 and its predecessor api 12c. Api 653 is the industry standard inspection code for storage tank inspection and maintenance, covering the inspection, repair, alteration, and. Tank Inspection Codes.
From www.petrosync.com
Guide to Storage Tank Inspection Based on API 653 Standard Tank Inspection Codes This standard covers steel storage tanks built to api 650 and its predecessor api 12c. Environmental protection agency's rule for spill. To do storage tank inspection, american petroleum institute (api) regulated api 653 to inspect, repair, alter, and reconstruct aboveground storage tanks (asts). Api 653 is the industry standard inspection code for storage tank inspection and maintenance, covering the inspection,. Tank Inspection Codes.
From www.pdffiller.com
Fillable Online API 653 TANK INSPECTION CODE Inspection, Repair, Alteration, & Reconstruction Tank Inspection Codes This standard covers steel storage tanks built to api 650 and its predecessor api 12c. Api 653 is the industry standard inspection code for storage tank inspection and maintenance, covering the inspection, repair, alteration, and reconstruction of steel. To do storage tank inspection, american petroleum institute (api) regulated api 653 to inspect, repair, alter, and reconstruct aboveground storage tanks (asts).. Tank Inspection Codes.
From vdocuments.mx
Tank Inspection Check List (Form TICL1) · · 20170517Tank Inspection Check List (Form TICL1 Tank Inspection Codes It provides minimum requirements for. To do storage tank inspection, american petroleum institute (api) regulated api 653 to inspect, repair, alter, and reconstruct aboveground storage tanks (asts). This standard covers steel storage tanks built to api 650 and its predecessor api 12c. Inspection of aboveground storage tanks (asts) can be a critical compliance issue under the planning requirements of the. Tank Inspection Codes.
From hudsonfiberglass.com
The Importance of Regular Inspections for FRP Tanks and Pipes Hudson Fiberglass Tank Inspection Codes To do storage tank inspection, american petroleum institute (api) regulated api 653 to inspect, repair, alter, and reconstruct aboveground storage tanks (asts). Before entering a tank the inspector must: Environmental protection agency's rule for spill. The scope of sti sp001 standard for the inspection of aboveground storage tanks by the steel tank institute (sti) includes the. It provides minimum requirements. Tank Inspection Codes.
From www.scribd.com
Tank Inspection Checklist PDF Tank Inspection Codes Environmental protection agency's rule for spill. This standard covers steel storage tanks built to api 650 and its predecessor api 12c. To do storage tank inspection, american petroleum institute (api) regulated api 653 to inspect, repair, alter, and reconstruct aboveground storage tanks (asts). It provides minimum requirements for. Before entering a tank the inspector must: Api 653 is the industry. Tank Inspection Codes.
From vdocuments.mx
Storage Tank Inspection and Test · PDF file9 Annular Plates DWG, WPS, Spec API 650, Spec. Report Tank Inspection Codes Environmental protection agency's rule for spill. It provides minimum requirements for. Inspection of aboveground storage tanks (asts) can be a critical compliance issue under the planning requirements of the u.s. This standard covers steel storage tanks built to api 650 and its predecessor api 12c. Before entering a tank the inspector must: To do storage tank inspection, american petroleum institute. Tank Inspection Codes.
From www.scribd.com
QA/QC Inspection Checklist Design Coordinates, Inc. CP No. Vector Three PDF Hydraulic Tank Inspection Codes This standard covers steel storage tanks built to api 650 and its predecessor api 12c. Api 653 is the industry standard inspection code for storage tank inspection and maintenance, covering the inspection, repair, alteration, and reconstruction of steel. Before entering a tank the inspector must: The scope of sti sp001 standard for the inspection of aboveground storage tanks by the. Tank Inspection Codes.
From ttienvinc.com
Tank Interval Inspections TTI Environmental, Inc. Tank Inspection Codes To do storage tank inspection, american petroleum institute (api) regulated api 653 to inspect, repair, alter, and reconstruct aboveground storage tanks (asts). The scope of sti sp001 standard for the inspection of aboveground storage tanks by the steel tank institute (sti) includes the. Environmental protection agency's rule for spill. This standard covers steel storage tanks built to api 650 and. Tank Inspection Codes.
From www.pdffiller.com
Storage Tank Inspection Checklist Fill Online, Printable, Fillable, Blank pdfFiller Tank Inspection Codes To do storage tank inspection, american petroleum institute (api) regulated api 653 to inspect, repair, alter, and reconstruct aboveground storage tanks (asts). Inspection of aboveground storage tanks (asts) can be a critical compliance issue under the planning requirements of the u.s. Before entering a tank the inspector must: The scope of sti sp001 standard for the inspection of aboveground storage. Tank Inspection Codes.
From www.carltonusa.com
Inspection Service Record Decals Equipment Inspection Record 2.5 x 4.5 Carlton Industries Tank Inspection Codes Inspection of aboveground storage tanks (asts) can be a critical compliance issue under the planning requirements of the u.s. Environmental protection agency's rule for spill. Before entering a tank the inspector must: Api 653 is the industry standard inspection code for storage tank inspection and maintenance, covering the inspection, repair, alteration, and reconstruction of steel. This standard covers steel storage. Tank Inspection Codes.
From www.signnow.com
Poly Tank Inspection 20012024 Form Fill Out and Sign Printable PDF Template airSlate SignNow Tank Inspection Codes Api 653 is the industry standard inspection code for storage tank inspection and maintenance, covering the inspection, repair, alteration, and reconstruction of steel. It provides minimum requirements for. Environmental protection agency's rule for spill. Before entering a tank the inspector must: This standard covers steel storage tanks built to api 650 and its predecessor api 12c. The scope of sti. Tank Inspection Codes.
From blog.qrfs.com
NFPA Requirements for Inspecting Fire Sprinkler Tanks Tank Inspection Codes This standard covers steel storage tanks built to api 650 and its predecessor api 12c. Inspection of aboveground storage tanks (asts) can be a critical compliance issue under the planning requirements of the u.s. To do storage tank inspection, american petroleum institute (api) regulated api 653 to inspect, repair, alter, and reconstruct aboveground storage tanks (asts). It provides minimum requirements. Tank Inspection Codes.
From www.scribd.com
M CW Storage Tank INSPECTION CHECKLIST PDF Tank Inspection Codes This standard covers steel storage tanks built to api 650 and its predecessor api 12c. The scope of sti sp001 standard for the inspection of aboveground storage tanks by the steel tank institute (sti) includes the. Api 653 is the industry standard inspection code for storage tank inspection and maintenance, covering the inspection, repair, alteration, and reconstruction of steel. It. Tank Inspection Codes.
From studylib.net
tankinspectionchecklistv2 (1) Tank Inspection Codes This standard covers steel storage tanks built to api 650 and its predecessor api 12c. To do storage tank inspection, american petroleum institute (api) regulated api 653 to inspect, repair, alter, and reconstruct aboveground storage tanks (asts). It provides minimum requirements for. Inspection of aboveground storage tanks (asts) can be a critical compliance issue under the planning requirements of the. Tank Inspection Codes.
From www.studypool.com
SOLUTION Ballast tank inspection Studypool Tank Inspection Codes Api 653 is the industry standard inspection code for storage tank inspection and maintenance, covering the inspection, repair, alteration, and reconstruction of steel. Before entering a tank the inspector must: The scope of sti sp001 standard for the inspection of aboveground storage tanks by the steel tank institute (sti) includes the. This standard covers steel storage tanks built to api. Tank Inspection Codes.
From www.plastechservices.com
How to Inspect and Maintain a Fiberglass Tank? Tank Inspection Codes It provides minimum requirements for. To do storage tank inspection, american petroleum institute (api) regulated api 653 to inspect, repair, alter, and reconstruct aboveground storage tanks (asts). This standard covers steel storage tanks built to api 650 and its predecessor api 12c. Api 653 is the industry standard inspection code for storage tank inspection and maintenance, covering the inspection, repair,. Tank Inspection Codes.
From www.templateroller.com
Montana Aboveground Storage Tank Selfinspection Checklist Fill Out, Sign Online and Download Tank Inspection Codes The scope of sti sp001 standard for the inspection of aboveground storage tanks by the steel tank institute (sti) includes the. Inspection of aboveground storage tanks (asts) can be a critical compliance issue under the planning requirements of the u.s. Before entering a tank the inspector must: It provides minimum requirements for. Api 653 is the industry standard inspection code. Tank Inspection Codes.
From pdfcoffee.com
API 653 Tank Inspection Code_04.pdf Tank Inspection Codes Inspection of aboveground storage tanks (asts) can be a critical compliance issue under the planning requirements of the u.s. To do storage tank inspection, american petroleum institute (api) regulated api 653 to inspect, repair, alter, and reconstruct aboveground storage tanks (asts). Api 653 is the industry standard inspection code for storage tank inspection and maintenance, covering the inspection, repair, alteration,. Tank Inspection Codes.
From www.resco.net
What is tank inspection Everything you need to know Resco Tank Inspection Codes Before entering a tank the inspector must: This standard covers steel storage tanks built to api 650 and its predecessor api 12c. Api 653 is the industry standard inspection code for storage tank inspection and maintenance, covering the inspection, repair, alteration, and reconstruction of steel. To do storage tank inspection, american petroleum institute (api) regulated api 653 to inspect, repair,. Tank Inspection Codes.
From engrity.com
Highway Tank Inspection Engrity Inspection Services Inc. Tank Inspection Codes This standard covers steel storage tanks built to api 650 and its predecessor api 12c. The scope of sti sp001 standard for the inspection of aboveground storage tanks by the steel tank institute (sti) includes the. Api 653 is the industry standard inspection code for storage tank inspection and maintenance, covering the inspection, repair, alteration, and reconstruction of steel. Environmental. Tank Inspection Codes.
From www.scribd.com
Tank Inspection Scope API 653 Tanks Safety Tank Inspection Codes It provides minimum requirements for. To do storage tank inspection, american petroleum institute (api) regulated api 653 to inspect, repair, alter, and reconstruct aboveground storage tanks (asts). Api 653 is the industry standard inspection code for storage tank inspection and maintenance, covering the inspection, repair, alteration, and reconstruction of steel. Environmental protection agency's rule for spill. This standard covers steel. Tank Inspection Codes.
From www.xenia.team
Septic Tank Inspection Checklist Xenia Templates Tank Inspection Codes This standard covers steel storage tanks built to api 650 and its predecessor api 12c. The scope of sti sp001 standard for the inspection of aboveground storage tanks by the steel tank institute (sti) includes the. Before entering a tank the inspector must: Api 653 is the industry standard inspection code for storage tank inspection and maintenance, covering the inspection,. Tank Inspection Codes.
From www.scribd.com
Inspection and Test Plan for Storage Tank Anode Electrode Tank Inspection Codes To do storage tank inspection, american petroleum institute (api) regulated api 653 to inspect, repair, alter, and reconstruct aboveground storage tanks (asts). Inspection of aboveground storage tanks (asts) can be a critical compliance issue under the planning requirements of the u.s. This standard covers steel storage tanks built to api 650 and its predecessor api 12c. It provides minimum requirements. Tank Inspection Codes.
From globalehs.co.in
Water Tanker Inspection Checklist Tank Inspection Codes Api 653 is the industry standard inspection code for storage tank inspection and maintenance, covering the inspection, repair, alteration, and reconstruction of steel. It provides minimum requirements for. To do storage tank inspection, american petroleum institute (api) regulated api 653 to inspect, repair, alter, and reconstruct aboveground storage tanks (asts). Before entering a tank the inspector must: The scope of. Tank Inspection Codes.
From www.uslegalforms.com
Storage Tank Inspection Checklist Fill and Sign Printable Template Online US Legal Forms Tank Inspection Codes Environmental protection agency's rule for spill. To do storage tank inspection, american petroleum institute (api) regulated api 653 to inspect, repair, alter, and reconstruct aboveground storage tanks (asts). Api 653 is the industry standard inspection code for storage tank inspection and maintenance, covering the inspection, repair, alteration, and reconstruction of steel. Before entering a tank the inspector must: The scope. Tank Inspection Codes.
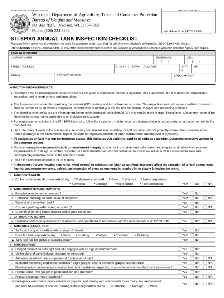
From www.pdffiller.com
STI SP001 Annual Tank Inspection Checklist datcp wi Doc Template pdfFiller Tank Inspection Codes Before entering a tank the inspector must: This standard covers steel storage tanks built to api 650 and its predecessor api 12c. Api 653 is the industry standard inspection code for storage tank inspection and maintenance, covering the inspection, repair, alteration, and reconstruction of steel. The scope of sti sp001 standard for the inspection of aboveground storage tanks by the. Tank Inspection Codes.