Edmonton Hot Tub Permit . If you are planning to install a swimming pool, you will likely need one or more permits. To prevent drowning, a hot tub must be protected from unauthorized access by a fence, wall or enclosure that has a minimum height of 1.8 m. A home improvement permit was issued on july 26, 2021 by edmonton planning, urban planning & economy department for the location of 9733. Ensure your hot tub is safe, legal, and adds value to. As the homeowner, you are responsible for getting all. What you need to apply. If you own a hot tub or are thinking of buying one, it's crucial to understand and follow edmonton's bylaws and regulations. You can apply for permits online at selfserve.edmonton.ca. If your hot tub or pool is on a property that abuts a valley or ravine as identified in the north saskatchewan river valley and ravine system. The project can then be managed by the permit holder through the. To apply, fill in the residential development & building application and deck design form, and include all required.
from www.arcticspasedmonton.com
To prevent drowning, a hot tub must be protected from unauthorized access by a fence, wall or enclosure that has a minimum height of 1.8 m. What you need to apply. If your hot tub or pool is on a property that abuts a valley or ravine as identified in the north saskatchewan river valley and ravine system. To apply, fill in the residential development & building application and deck design form, and include all required. As the homeowner, you are responsible for getting all. Ensure your hot tub is safe, legal, and adds value to. You can apply for permits online at selfserve.edmonton.ca. A home improvement permit was issued on july 26, 2021 by edmonton planning, urban planning & economy department for the location of 9733. The project can then be managed by the permit holder through the. If you own a hot tub or are thinking of buying one, it's crucial to understand and follow edmonton's bylaws and regulations.
Husky Hot Tub Edmonton, Alberta Arctic Spas Edmonton
Edmonton Hot Tub Permit Ensure your hot tub is safe, legal, and adds value to. As the homeowner, you are responsible for getting all. To apply, fill in the residential development & building application and deck design form, and include all required. What you need to apply. You can apply for permits online at selfserve.edmonton.ca. A home improvement permit was issued on july 26, 2021 by edmonton planning, urban planning & economy department for the location of 9733. The project can then be managed by the permit holder through the. If you are planning to install a swimming pool, you will likely need one or more permits. If your hot tub or pool is on a property that abuts a valley or ravine as identified in the north saskatchewan river valley and ravine system. If you own a hot tub or are thinking of buying one, it's crucial to understand and follow edmonton's bylaws and regulations. To prevent drowning, a hot tub must be protected from unauthorized access by a fence, wall or enclosure that has a minimum height of 1.8 m. Ensure your hot tub is safe, legal, and adds value to.
From betterlivingoutdoors.com
All Hot Tubs Better Living Outdoors Edmonton Hot Tub Permit If you are planning to install a swimming pool, you will likely need one or more permits. A home improvement permit was issued on july 26, 2021 by edmonton planning, urban planning & economy department for the location of 9733. You can apply for permits online at selfserve.edmonton.ca. If you own a hot tub or are thinking of buying one,. Edmonton Hot Tub Permit.
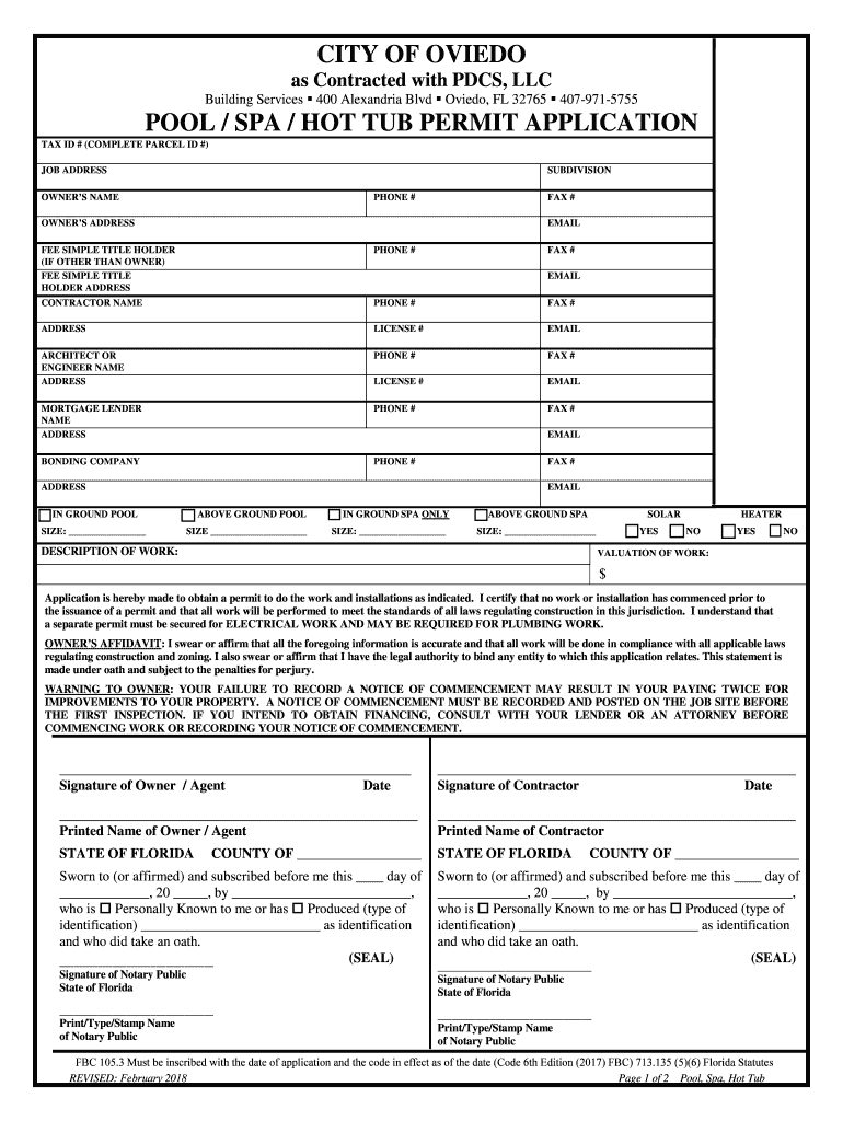
From www.pdffiller.com
Fillable Online POOL / SPA / HOT TUB PERMIT APPLICATION Fax Email Print Edmonton Hot Tub Permit If you own a hot tub or are thinking of buying one, it's crucial to understand and follow edmonton's bylaws and regulations. If your hot tub or pool is on a property that abuts a valley or ravine as identified in the north saskatchewan river valley and ravine system. The project can then be managed by the permit holder through. Edmonton Hot Tub Permit.
From smlhottubs.com
Edmonton, AB Hot Tub Dealer Edmonton Hot Tub Permit To prevent drowning, a hot tub must be protected from unauthorized access by a fence, wall or enclosure that has a minimum height of 1.8 m. You can apply for permits online at selfserve.edmonton.ca. The project can then be managed by the permit holder through the. If your hot tub or pool is on a property that abuts a valley. Edmonton Hot Tub Permit.
From www.cbc.ca
Edmonton hot tub company facing 49 charges under Consumer Protection Edmonton Hot Tub Permit You can apply for permits online at selfserve.edmonton.ca. To prevent drowning, a hot tub must be protected from unauthorized access by a fence, wall or enclosure that has a minimum height of 1.8 m. What you need to apply. Ensure your hot tub is safe, legal, and adds value to. As the homeowner, you are responsible for getting all. A. Edmonton Hot Tub Permit.
From www.youtube.com
Permits Outdoor Pools and Hot Tubs/Spas YouTube Edmonton Hot Tub Permit To apply, fill in the residential development & building application and deck design form, and include all required. If your hot tub or pool is on a property that abuts a valley or ravine as identified in the north saskatchewan river valley and ravine system. As the homeowner, you are responsible for getting all. What you need to apply. Ensure. Edmonton Hot Tub Permit.
From www.yourownarchitect.com
Do You Need a Building Permit for a Hot Tub? Edmonton Hot Tub Permit If you are planning to install a swimming pool, you will likely need one or more permits. A home improvement permit was issued on july 26, 2021 by edmonton planning, urban planning & economy department for the location of 9733. If your hot tub or pool is on a property that abuts a valley or ravine as identified in the. Edmonton Hot Tub Permit.
From thegentlemenpros.com
Edmonton Hot Tub and Sauna Installation Edmonton Hot Tub Permit If you own a hot tub or are thinking of buying one, it's crucial to understand and follow edmonton's bylaws and regulations. The project can then be managed by the permit holder through the. What you need to apply. Ensure your hot tub is safe, legal, and adds value to. If your hot tub or pool is on a property. Edmonton Hot Tub Permit.
From www.arcticspasedmonton.com
Hot Tubs For Sale in Edmonton, Alberta Arctic Spas Edmonton Hot Tub Permit If you are planning to install a swimming pool, you will likely need one or more permits. You can apply for permits online at selfserve.edmonton.ca. If you own a hot tub or are thinking of buying one, it's crucial to understand and follow edmonton's bylaws and regulations. To apply, fill in the residential development & building application and deck design. Edmonton Hot Tub Permit.
From www.facebook.com
Edmonton Hot Tubs Edmonton Hot Tub Permit A home improvement permit was issued on july 26, 2021 by edmonton planning, urban planning & economy department for the location of 9733. The project can then be managed by the permit holder through the. If your hot tub or pool is on a property that abuts a valley or ravine as identified in the north saskatchewan river valley and. Edmonton Hot Tub Permit.
From steamworksedmonton.com
Features SteamWorks Edmonton Edmonton Hot Tub Permit To apply, fill in the residential development & building application and deck design form, and include all required. As the homeowner, you are responsible for getting all. Ensure your hot tub is safe, legal, and adds value to. To prevent drowning, a hot tub must be protected from unauthorized access by a fence, wall or enclosure that has a minimum. Edmonton Hot Tub Permit.
From www.signnow.com
Permit Residential Swimming Pool, Spa and Hot Tub Safety Act Fill Edmonton Hot Tub Permit If you own a hot tub or are thinking of buying one, it's crucial to understand and follow edmonton's bylaws and regulations. As the homeowner, you are responsible for getting all. Ensure your hot tub is safe, legal, and adds value to. What you need to apply. To prevent drowning, a hot tub must be protected from unauthorized access by. Edmonton Hot Tub Permit.
From borderhomeconcept.blogspot.com
Maax Hot Tubs Edmonton Hot Tubs Hot tub, Tub, Maax / Let us design Edmonton Hot Tub Permit If your hot tub or pool is on a property that abuts a valley or ravine as identified in the north saskatchewan river valley and ravine system. What you need to apply. To prevent drowning, a hot tub must be protected from unauthorized access by a fence, wall or enclosure that has a minimum height of 1.8 m. To apply,. Edmonton Hot Tub Permit.
From www.pdffiller.com
Fillable Online Swimming Pool/Hot Tub Permit Application Fax Email Edmonton Hot Tub Permit The project can then be managed by the permit holder through the. If your hot tub or pool is on a property that abuts a valley or ravine as identified in the north saskatchewan river valley and ravine system. If you own a hot tub or are thinking of buying one, it's crucial to understand and follow edmonton's bylaws and. Edmonton Hot Tub Permit.
From www.arcticspasedmonton.com
Arctic Fox Hot Tub Edmonton, Alberta Arctic Spas Edmonton Edmonton Hot Tub Permit You can apply for permits online at selfserve.edmonton.ca. To apply, fill in the residential development & building application and deck design form, and include all required. What you need to apply. If your hot tub or pool is on a property that abuts a valley or ravine as identified in the north saskatchewan river valley and ravine system. To prevent. Edmonton Hot Tub Permit.
From www.pdffiller.com
Fillable Online Pool Deck & Hot Tub Permit Application62221.docx Fax Edmonton Hot Tub Permit To prevent drowning, a hot tub must be protected from unauthorized access by a fence, wall or enclosure that has a minimum height of 1.8 m. If you are planning to install a swimming pool, you will likely need one or more permits. What you need to apply. You can apply for permits online at selfserve.edmonton.ca. If your hot tub. Edmonton Hot Tub Permit.
From ca.news.yahoo.com
Edmonton hot tub company facing 49 charges under Consumer Protection Act Edmonton Hot Tub Permit If you are planning to install a swimming pool, you will likely need one or more permits. You can apply for permits online at selfserve.edmonton.ca. What you need to apply. A home improvement permit was issued on july 26, 2021 by edmonton planning, urban planning & economy department for the location of 9733. Ensure your hot tub is safe, legal,. Edmonton Hot Tub Permit.
From smlhottubs.com
Edmonton Showroom SML Hot Tubs Edmonton Hot Tub Permit You can apply for permits online at selfserve.edmonton.ca. To prevent drowning, a hot tub must be protected from unauthorized access by a fence, wall or enclosure that has a minimum height of 1.8 m. What you need to apply. If you own a hot tub or are thinking of buying one, it's crucial to understand and follow edmonton's bylaws and. Edmonton Hot Tub Permit.
From www.arcticspasedmonton.com
Arctic Spas Hot Tubs, Pools & Spas Edmonton, Alberta Edmonton Hot Tub Permit As the homeowner, you are responsible for getting all. You can apply for permits online at selfserve.edmonton.ca. If you are planning to install a swimming pool, you will likely need one or more permits. The project can then be managed by the permit holder through the. If your hot tub or pool is on a property that abuts a valley. Edmonton Hot Tub Permit.
From www.pdffiller.com
Fillable Online Pool and Hot Tub Permit Application Fax Email Print Edmonton Hot Tub Permit What you need to apply. If you own a hot tub or are thinking of buying one, it's crucial to understand and follow edmonton's bylaws and regulations. As the homeowner, you are responsible for getting all. The project can then be managed by the permit holder through the. To prevent drowning, a hot tub must be protected from unauthorized access. Edmonton Hot Tub Permit.
From alwaysplumbing.ca
Hot Tub Installation in Edmonton What You Need to Know Edmonton Hot Tub Permit If you are planning to install a swimming pool, you will likely need one or more permits. A home improvement permit was issued on july 26, 2021 by edmonton planning, urban planning & economy department for the location of 9733. If you own a hot tub or are thinking of buying one, it's crucial to understand and follow edmonton's bylaws. Edmonton Hot Tub Permit.
From www.arcticspasedmonton.com
Hot Tub Pictures Edmonton, Alberta Arctic Spas Edmonton Edmonton Hot Tub Permit If you own a hot tub or are thinking of buying one, it's crucial to understand and follow edmonton's bylaws and regulations. To apply, fill in the residential development & building application and deck design form, and include all required. Ensure your hot tub is safe, legal, and adds value to. As the homeowner, you are responsible for getting all.. Edmonton Hot Tub Permit.
From www.kijiji.ca
Free Hot Tub Free Stuff Edmonton Kijiji Edmonton Hot Tub Permit To apply, fill in the residential development & building application and deck design form, and include all required. The project can then be managed by the permit holder through the. You can apply for permits online at selfserve.edmonton.ca. To prevent drowning, a hot tub must be protected from unauthorized access by a fence, wall or enclosure that has a minimum. Edmonton Hot Tub Permit.
From www.pdffiller.com
Fillable Online POOL/HOT TUB PERMIT APPLICATION Fax Email Print pdfFiller Edmonton Hot Tub Permit As the homeowner, you are responsible for getting all. To prevent drowning, a hot tub must be protected from unauthorized access by a fence, wall or enclosure that has a minimum height of 1.8 m. You can apply for permits online at selfserve.edmonton.ca. If you own a hot tub or are thinking of buying one, it's crucial to understand and. Edmonton Hot Tub Permit.
From www.artofit.org
What are hot tub permit requirements Artofit Edmonton Hot Tub Permit What you need to apply. Ensure your hot tub is safe, legal, and adds value to. If you own a hot tub or are thinking of buying one, it's crucial to understand and follow edmonton's bylaws and regulations. If you are planning to install a swimming pool, you will likely need one or more permits. To apply, fill in the. Edmonton Hot Tub Permit.
From smlhottubs.com
Edmonton Showroom Edmonton Hot Tub Permit A home improvement permit was issued on july 26, 2021 by edmonton planning, urban planning & economy department for the location of 9733. As the homeowner, you are responsible for getting all. If your hot tub or pool is on a property that abuts a valley or ravine as identified in the north saskatchewan river valley and ravine system. You. Edmonton Hot Tub Permit.
From jhmrad.com
Permits Spas Hot Tubs Generally Required JHMRad 142796 Edmonton Hot Tub Permit If you own a hot tub or are thinking of buying one, it's crucial to understand and follow edmonton's bylaws and regulations. If your hot tub or pool is on a property that abuts a valley or ravine as identified in the north saskatchewan river valley and ravine system. You can apply for permits online at selfserve.edmonton.ca. To prevent drowning,. Edmonton Hot Tub Permit.
From edmonton.arcsurveys.ca
Real Property Reports & Edmonton Hot Tub bylaws Edmonton Hot Tub Permit If you own a hot tub or are thinking of buying one, it's crucial to understand and follow edmonton's bylaws and regulations. You can apply for permits online at selfserve.edmonton.ca. If you are planning to install a swimming pool, you will likely need one or more permits. To apply, fill in the residential development & building application and deck design. Edmonton Hot Tub Permit.
From buildahottub.com
The Ultimate Guide to Balancing Chemicals in your Hot Tub The Edmonton Hot Tub Permit A home improvement permit was issued on july 26, 2021 by edmonton planning, urban planning & economy department for the location of 9733. If you own a hot tub or are thinking of buying one, it's crucial to understand and follow edmonton's bylaws and regulations. To apply, fill in the residential development & building application and deck design form, and. Edmonton Hot Tub Permit.
From www.youtube.com
The Edmonton Hot tub from the Executive range by Be Well YouTube Edmonton Hot Tub Permit If your hot tub or pool is on a property that abuts a valley or ravine as identified in the north saskatchewan river valley and ravine system. To apply, fill in the residential development & building application and deck design form, and include all required. If you are planning to install a swimming pool, you will likely need one or. Edmonton Hot Tub Permit.
From www.pdffiller.com
Fillable Online 2020 CP Hot Tub Application Fax Email Print pdfFiller Edmonton Hot Tub Permit To prevent drowning, a hot tub must be protected from unauthorized access by a fence, wall or enclosure that has a minimum height of 1.8 m. As the homeowner, you are responsible for getting all. A home improvement permit was issued on july 26, 2021 by edmonton planning, urban planning & economy department for the location of 9733. You can. Edmonton Hot Tub Permit.
From www.kijiji.ca
Hot tub FREE Free free Free Stuff Edmonton Kijiji Edmonton Hot Tub Permit To apply, fill in the residential development & building application and deck design form, and include all required. As the homeowner, you are responsible for getting all. Ensure your hot tub is safe, legal, and adds value to. You can apply for permits online at selfserve.edmonton.ca. The project can then be managed by the permit holder through the. A home. Edmonton Hot Tub Permit.
From www.pdffiller.com
Fillable Online Application for a Pool or Hot Tub Permit Fax Email Edmonton Hot Tub Permit If you are planning to install a swimming pool, you will likely need one or more permits. If your hot tub or pool is on a property that abuts a valley or ravine as identified in the north saskatchewan river valley and ravine system. You can apply for permits online at selfserve.edmonton.ca. The project can then be managed by the. Edmonton Hot Tub Permit.
From www.arcticspasedmonton.com
Husky Hot Tub Edmonton, Alberta Arctic Spas Edmonton Edmonton Hot Tub Permit As the homeowner, you are responsible for getting all. A home improvement permit was issued on july 26, 2021 by edmonton planning, urban planning & economy department for the location of 9733. If you own a hot tub or are thinking of buying one, it's crucial to understand and follow edmonton's bylaws and regulations. If you are planning to install. Edmonton Hot Tub Permit.
From torontohottubs.ca
Do You Need a Permit for a Hot Tub in Ontario? Unveiling the Regulatory Edmonton Hot Tub Permit The project can then be managed by the permit holder through the. To apply, fill in the residential development & building application and deck design form, and include all required. If you own a hot tub or are thinking of buying one, it's crucial to understand and follow edmonton's bylaws and regulations. Ensure your hot tub is safe, legal, and. Edmonton Hot Tub Permit.
From edmonton.arcsurveys.ca
Real Property Reports & Edmonton Hot Tub bylaws Edmonton Hot Tub Permit To apply, fill in the residential development & building application and deck design form, and include all required. As the homeowner, you are responsible for getting all. What you need to apply. If you own a hot tub or are thinking of buying one, it's crucial to understand and follow edmonton's bylaws and regulations. To prevent drowning, a hot tub. Edmonton Hot Tub Permit.