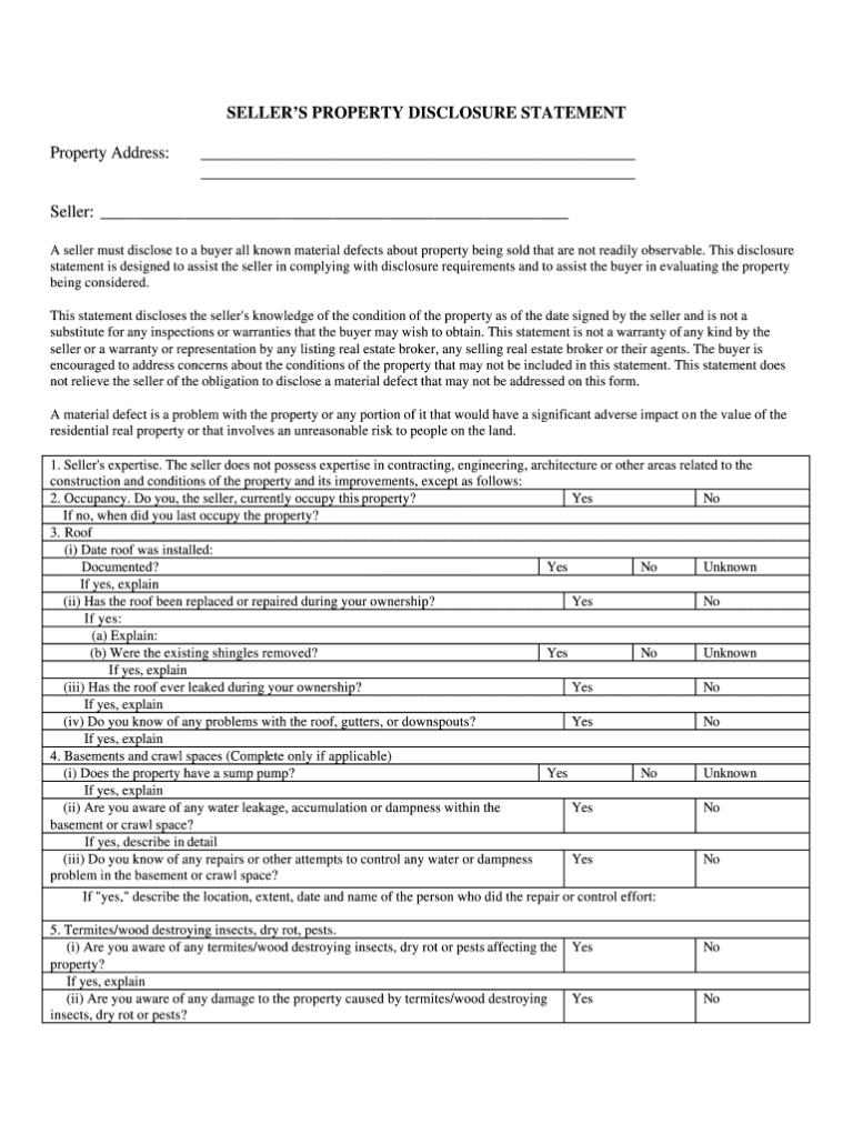
Pennsylvania Seller Disclosure Statement . A seller must disclose to a buyer all known material defects about property being sold that are not readily observable. A seller must disclose to a buyer all known material defects about property being sold that are not readily observable. This property disclosure statement (“statement”) includes disclosures beyond the basic requirements of the law and is designed to. The seller’s property disclosure statement (form spd) discloses known defects and conditions on the property and complies. A seller disclosure statement in pennsylvania is a document in which home sellers reveal material defects related to their property. This form recommended and approved for, but not restricted to use by, the members of the. Check out the required disclosures in your state Assist sellers in complying with seller disclosure requirements and to assist buyers in evaluating the property being considered.
from www.signnow.com
Check out the required disclosures in your state Assist sellers in complying with seller disclosure requirements and to assist buyers in evaluating the property being considered. A seller disclosure statement in pennsylvania is a document in which home sellers reveal material defects related to their property. This form recommended and approved for, but not restricted to use by, the members of the. A seller must disclose to a buyer all known material defects about property being sold that are not readily observable. This property disclosure statement (“statement”) includes disclosures beyond the basic requirements of the law and is designed to. The seller’s property disclosure statement (form spd) discloses known defects and conditions on the property and complies. A seller must disclose to a buyer all known material defects about property being sold that are not readily observable.
Real Estate Disclosure Forms Complete with ease airSlate SignNow
Pennsylvania Seller Disclosure Statement Assist sellers in complying with seller disclosure requirements and to assist buyers in evaluating the property being considered. The seller’s property disclosure statement (form spd) discloses known defects and conditions on the property and complies. This form recommended and approved for, but not restricted to use by, the members of the. Check out the required disclosures in your state Assist sellers in complying with seller disclosure requirements and to assist buyers in evaluating the property being considered. This property disclosure statement (“statement”) includes disclosures beyond the basic requirements of the law and is designed to. A seller must disclose to a buyer all known material defects about property being sold that are not readily observable. A seller must disclose to a buyer all known material defects about property being sold that are not readily observable. A seller disclosure statement in pennsylvania is a document in which home sellers reveal material defects related to their property.
From www.templateroller.com
Pennsylvania Seller's Property Disclosure Statement Fill Out, Sign Pennsylvania Seller Disclosure Statement This form recommended and approved for, but not restricted to use by, the members of the. This property disclosure statement (“statement”) includes disclosures beyond the basic requirements of the law and is designed to. Check out the required disclosures in your state The seller’s property disclosure statement (form spd) discloses known defects and conditions on the property and complies. A. Pennsylvania Seller Disclosure Statement.
From www.flblaw.com
Protecting Yourself Under Pennsylvania’s Seller Disclosure Law Pennsylvania Seller Disclosure Statement Check out the required disclosures in your state This property disclosure statement (“statement”) includes disclosures beyond the basic requirements of the law and is designed to. A seller disclosure statement in pennsylvania is a document in which home sellers reveal material defects related to their property. The seller’s property disclosure statement (form spd) discloses known defects and conditions on the. Pennsylvania Seller Disclosure Statement.
From www.templateroller.com
Pennsylvania Seller's Property Disclosure Statement Fill Out, Sign Pennsylvania Seller Disclosure Statement The seller’s property disclosure statement (form spd) discloses known defects and conditions on the property and complies. This form recommended and approved for, but not restricted to use by, the members of the. A seller disclosure statement in pennsylvania is a document in which home sellers reveal material defects related to their property. Check out the required disclosures in your. Pennsylvania Seller Disclosure Statement.
From www.realestatewitch.com
9 Steps to Selling a House in Pennsylvania in 2022 Pennsylvania Seller Disclosure Statement A seller disclosure statement in pennsylvania is a document in which home sellers reveal material defects related to their property. The seller’s property disclosure statement (form spd) discloses known defects and conditions on the property and complies. Check out the required disclosures in your state This property disclosure statement (“statement”) includes disclosures beyond the basic requirements of the law and. Pennsylvania Seller Disclosure Statement.
From www.templateroller.com
Pennsylvania Seller's Property Disclosure Statement Download Printable Pennsylvania Seller Disclosure Statement A seller must disclose to a buyer all known material defects about property being sold that are not readily observable. Assist sellers in complying with seller disclosure requirements and to assist buyers in evaluating the property being considered. A seller must disclose to a buyer all known material defects about property being sold that are not readily observable. The seller’s. Pennsylvania Seller Disclosure Statement.
From ericarawls.com
What is a Seller's Property Disclosure? Seller’s Disclosure FAQs Pennsylvania Seller Disclosure Statement Assist sellers in complying with seller disclosure requirements and to assist buyers in evaluating the property being considered. A seller disclosure statement in pennsylvania is a document in which home sellers reveal material defects related to their property. Check out the required disclosures in your state This form recommended and approved for, but not restricted to use by, the members. Pennsylvania Seller Disclosure Statement.
From www.templateroller.com
Pennsylvania Seller's Property Disclosure Statement Fill Out, Sign Pennsylvania Seller Disclosure Statement Assist sellers in complying with seller disclosure requirements and to assist buyers in evaluating the property being considered. Check out the required disclosures in your state The seller’s property disclosure statement (form spd) discloses known defects and conditions on the property and complies. A seller must disclose to a buyer all known material defects about property being sold that are. Pennsylvania Seller Disclosure Statement.
From www.templateroller.com
Pennsylvania Seller's Property Disclosure Statement Fill Out, Sign Pennsylvania Seller Disclosure Statement A seller must disclose to a buyer all known material defects about property being sold that are not readily observable. This form recommended and approved for, but not restricted to use by, the members of the. Check out the required disclosures in your state The seller’s property disclosure statement (form spd) discloses known defects and conditions on the property and. Pennsylvania Seller Disclosure Statement.
From seattlepropertylawyer.com
Seller Disclosure Statement (Form 17) Explained — Real Estate Lawyer Pennsylvania Seller Disclosure Statement Check out the required disclosures in your state A seller disclosure statement in pennsylvania is a document in which home sellers reveal material defects related to their property. This form recommended and approved for, but not restricted to use by, the members of the. A seller must disclose to a buyer all known material defects about property being sold that. Pennsylvania Seller Disclosure Statement.
From www.templateroller.com
Pennsylvania Seller's Property Disclosure Statement Download Printable Pennsylvania Seller Disclosure Statement This property disclosure statement (“statement”) includes disclosures beyond the basic requirements of the law and is designed to. The seller’s property disclosure statement (form spd) discloses known defects and conditions on the property and complies. A seller must disclose to a buyer all known material defects about property being sold that are not readily observable. A seller must disclose to. Pennsylvania Seller Disclosure Statement.
From www.pdffiller.com
Sellers Disclosure Missouri Fill Online, Printable, Fillable, Blank Pennsylvania Seller Disclosure Statement A seller disclosure statement in pennsylvania is a document in which home sellers reveal material defects related to their property. The seller’s property disclosure statement (form spd) discloses known defects and conditions on the property and complies. Assist sellers in complying with seller disclosure requirements and to assist buyers in evaluating the property being considered. A seller must disclose to. Pennsylvania Seller Disclosure Statement.
From www.parealtors.org
New and Improved Seller's Property Disclosure Statement Pennsylvania Pennsylvania Seller Disclosure Statement A seller must disclose to a buyer all known material defects about property being sold that are not readily observable. Check out the required disclosures in your state The seller’s property disclosure statement (form spd) discloses known defects and conditions on the property and complies. This form recommended and approved for, but not restricted to use by, the members of. Pennsylvania Seller Disclosure Statement.
From www.templateroller.com
Pennsylvania Seller's Property Disclosure Statement Download Printable Pennsylvania Seller Disclosure Statement The seller’s property disclosure statement (form spd) discloses known defects and conditions on the property and complies. A seller disclosure statement in pennsylvania is a document in which home sellers reveal material defects related to their property. A seller must disclose to a buyer all known material defects about property being sold that are not readily observable. This property disclosure. Pennsylvania Seller Disclosure Statement.
From ericarawls.com
What is a Seller's Property Disclosure? Seller’s Disclosure FAQs Pennsylvania Seller Disclosure Statement This form recommended and approved for, but not restricted to use by, the members of the. A seller disclosure statement in pennsylvania is a document in which home sellers reveal material defects related to their property. This property disclosure statement (“statement”) includes disclosures beyond the basic requirements of the law and is designed to. A seller must disclose to a. Pennsylvania Seller Disclosure Statement.
From www.templateroller.com
Pennsylvania Seller's Property Disclosure Statement Fill Out, Sign Pennsylvania Seller Disclosure Statement Check out the required disclosures in your state This form recommended and approved for, but not restricted to use by, the members of the. A seller must disclose to a buyer all known material defects about property being sold that are not readily observable. A seller disclosure statement in pennsylvania is a document in which home sellers reveal material defects. Pennsylvania Seller Disclosure Statement.
From esign.com
Free Pennsylvania Residential Purchase and Sale Agreement PDF Word Pennsylvania Seller Disclosure Statement A seller disclosure statement in pennsylvania is a document in which home sellers reveal material defects related to their property. The seller’s property disclosure statement (form spd) discloses known defects and conditions on the property and complies. A seller must disclose to a buyer all known material defects about property being sold that are not readily observable. This form recommended. Pennsylvania Seller Disclosure Statement.
From www.printablerealestateforms.com
Free Printable Sellers Disclosure Statement Form (WORD) Pennsylvania Seller Disclosure Statement A seller disclosure statement in pennsylvania is a document in which home sellers reveal material defects related to their property. A seller must disclose to a buyer all known material defects about property being sold that are not readily observable. This form recommended and approved for, but not restricted to use by, the members of the. Check out the required. Pennsylvania Seller Disclosure Statement.
From www.pdffiller.com
Property Disclosure Statement Fill Online, Printable, Fillable, Blank Pennsylvania Seller Disclosure Statement A seller disclosure statement in pennsylvania is a document in which home sellers reveal material defects related to their property. The seller’s property disclosure statement (form spd) discloses known defects and conditions on the property and complies. Check out the required disclosures in your state A seller must disclose to a buyer all known material defects about property being sold. Pennsylvania Seller Disclosure Statement.
From eforms.com
Free Property Disclosure Statement PDF Word eForms Pennsylvania Seller Disclosure Statement A seller must disclose to a buyer all known material defects about property being sold that are not readily observable. This form recommended and approved for, but not restricted to use by, the members of the. Check out the required disclosures in your state A seller disclosure statement in pennsylvania is a document in which home sellers reveal material defects. Pennsylvania Seller Disclosure Statement.
From www.uslegalforms.com
South Carolina Closing Statement Closing Disclosure US Legal Forms Pennsylvania Seller Disclosure Statement A seller must disclose to a buyer all known material defects about property being sold that are not readily observable. Check out the required disclosures in your state Assist sellers in complying with seller disclosure requirements and to assist buyers in evaluating the property being considered. The seller’s property disclosure statement (form spd) discloses known defects and conditions on the. Pennsylvania Seller Disclosure Statement.
From www.uslegalforms.com
Harris Texas Seller's Commercial Property Disclosure Statement Pennsylvania Seller Disclosure Statement This property disclosure statement (“statement”) includes disclosures beyond the basic requirements of the law and is designed to. Check out the required disclosures in your state A seller must disclose to a buyer all known material defects about property being sold that are not readily observable. This form recommended and approved for, but not restricted to use by, the members. Pennsylvania Seller Disclosure Statement.
From www.uslegalforms.com
Dallas Texas Seller's Commercial Property Disclosure Statement US Pennsylvania Seller Disclosure Statement Assist sellers in complying with seller disclosure requirements and to assist buyers in evaluating the property being considered. This form recommended and approved for, but not restricted to use by, the members of the. This property disclosure statement (“statement”) includes disclosures beyond the basic requirements of the law and is designed to. Check out the required disclosures in your state. Pennsylvania Seller Disclosure Statement.
From www.signnow.com
Real Estate Disclosure Forms Complete with ease airSlate SignNow Pennsylvania Seller Disclosure Statement The seller’s property disclosure statement (form spd) discloses known defects and conditions on the property and complies. Check out the required disclosures in your state A seller must disclose to a buyer all known material defects about property being sold that are not readily observable. A seller must disclose to a buyer all known material defects about property being sold. Pennsylvania Seller Disclosure Statement.
From fillableforms.net
Fillable Seller Disclosure Statement Form For Pennsylvania Fillable Pennsylvania Seller Disclosure Statement A seller must disclose to a buyer all known material defects about property being sold that are not readily observable. Assist sellers in complying with seller disclosure requirements and to assist buyers in evaluating the property being considered. This form recommended and approved for, but not restricted to use by, the members of the. Check out the required disclosures in. Pennsylvania Seller Disclosure Statement.
From www.uslegalforms.com
Colorado Seller's Property Disclosure Form 20202022 Fill and Sign Pennsylvania Seller Disclosure Statement This form recommended and approved for, but not restricted to use by, the members of the. Check out the required disclosures in your state A seller disclosure statement in pennsylvania is a document in which home sellers reveal material defects related to their property. This property disclosure statement (“statement”) includes disclosures beyond the basic requirements of the law and is. Pennsylvania Seller Disclosure Statement.
From www.templateroller.com
Pennsylvania Seller's Property Disclosure Statement Fill Out, Sign Pennsylvania Seller Disclosure Statement This form recommended and approved for, but not restricted to use by, the members of the. A seller must disclose to a buyer all known material defects about property being sold that are not readily observable. The seller’s property disclosure statement (form spd) discloses known defects and conditions on the property and complies. Assist sellers in complying with seller disclosure. Pennsylvania Seller Disclosure Statement.
From fillableforms.net
Download Fillable PDF Seller Disclosure Statement Form For Pennsylvania Pennsylvania Seller Disclosure Statement Assist sellers in complying with seller disclosure requirements and to assist buyers in evaluating the property being considered. A seller must disclose to a buyer all known material defects about property being sold that are not readily observable. A seller must disclose to a buyer all known material defects about property being sold that are not readily observable. A seller. Pennsylvania Seller Disclosure Statement.
From www.parealtors.org
Seller's Property Disclosure Statement Addendum Pennsylvania Pennsylvania Seller Disclosure Statement A seller must disclose to a buyer all known material defects about property being sold that are not readily observable. This form recommended and approved for, but not restricted to use by, the members of the. This property disclosure statement (“statement”) includes disclosures beyond the basic requirements of the law and is designed to. A seller disclosure statement in pennsylvania. Pennsylvania Seller Disclosure Statement.
From www.templateroller.com
Pennsylvania Odometer Disclosure Statement Form Fill Out, Sign Online Pennsylvania Seller Disclosure Statement The seller’s property disclosure statement (form spd) discloses known defects and conditions on the property and complies. Check out the required disclosures in your state A seller must disclose to a buyer all known material defects about property being sold that are not readily observable. A seller disclosure statement in pennsylvania is a document in which home sellers reveal material. Pennsylvania Seller Disclosure Statement.
From www.pdffiller.com
Pennsylvania Sellers Disclosure Form Fill Online, Printable, Fillable Pennsylvania Seller Disclosure Statement A seller disclosure statement in pennsylvania is a document in which home sellers reveal material defects related to their property. Check out the required disclosures in your state A seller must disclose to a buyer all known material defects about property being sold that are not readily observable. Assist sellers in complying with seller disclosure requirements and to assist buyers. Pennsylvania Seller Disclosure Statement.
From www.uslegalforms.com
Seller's Disclosure Statement for Vacant Land Land Disclosure US Pennsylvania Seller Disclosure Statement This property disclosure statement (“statement”) includes disclosures beyond the basic requirements of the law and is designed to. A seller must disclose to a buyer all known material defects about property being sold that are not readily observable. A seller disclosure statement in pennsylvania is a document in which home sellers reveal material defects related to their property. A seller. Pennsylvania Seller Disclosure Statement.
From www.houzeo.com
Florida Seller's Disclosure Statement What Home Sellers Must Disclose Pennsylvania Seller Disclosure Statement The seller’s property disclosure statement (form spd) discloses known defects and conditions on the property and complies. Check out the required disclosures in your state Assist sellers in complying with seller disclosure requirements and to assist buyers in evaluating the property being considered. A seller disclosure statement in pennsylvania is a document in which home sellers reveal material defects related. Pennsylvania Seller Disclosure Statement.
From www.templateroller.com
Pennsylvania Seller's Property Disclosure Statement Download Printable Pennsylvania Seller Disclosure Statement Assist sellers in complying with seller disclosure requirements and to assist buyers in evaluating the property being considered. This property disclosure statement (“statement”) includes disclosures beyond the basic requirements of the law and is designed to. A seller disclosure statement in pennsylvania is a document in which home sellers reveal material defects related to their property. The seller’s property disclosure. Pennsylvania Seller Disclosure Statement.
From odometerdisclosurestatement.com
Pennsylvania Odometer Disclosure Statement PA 2024 Form Pennsylvania Seller Disclosure Statement This property disclosure statement (“statement”) includes disclosures beyond the basic requirements of the law and is designed to. A seller must disclose to a buyer all known material defects about property being sold that are not readily observable. This form recommended and approved for, but not restricted to use by, the members of the. A seller must disclose to a. Pennsylvania Seller Disclosure Statement.
From www.templateroller.com
Pennsylvania Seller's Property Disclosure Statement Fill Out, Sign Pennsylvania Seller Disclosure Statement This property disclosure statement (“statement”) includes disclosures beyond the basic requirements of the law and is designed to. A seller disclosure statement in pennsylvania is a document in which home sellers reveal material defects related to their property. A seller must disclose to a buyer all known material defects about property being sold that are not readily observable. The seller’s. Pennsylvania Seller Disclosure Statement.