Tv Studio Design Layout Pdf . are you interested in learning how to design television and radio broadcast studios? If you need help building. Welcome to the definitive guide to making studio productions. the following are specifically for the batv courses however others may find them useful. television studio design 15 when design of the present television plant in radio city was started a little more than two years ago, the model used as a starting point was a set of television equipment in the. the first state television broadcasts started in an kara, turkey on january 31, 1968, after the. Do you want to know the technical and aesthetic aspects of studio layout, equipment, lighting, and acoustics? If yes, then you should. television studio diagram from educator’s survival guide for television production, revised edition christopher curchy/ keith kyker (april, 2003) copyright 2002, 2003 keith kyker and christopher curchy. Establishment of the turkish radio and television corporation.
from www.provost-studio.com
Welcome to the definitive guide to making studio productions. are you interested in learning how to design television and radio broadcast studios? the first state television broadcasts started in an kara, turkey on january 31, 1968, after the. If you need help building. the following are specifically for the batv courses however others may find them useful. television studio design 15 when design of the present television plant in radio city was started a little more than two years ago, the model used as a starting point was a set of television equipment in the. television studio diagram from educator’s survival guide for television production, revised edition christopher curchy/ keith kyker (april, 2003) copyright 2002, 2003 keith kyker and christopher curchy. Establishment of the turkish radio and television corporation. Do you want to know the technical and aesthetic aspects of studio layout, equipment, lighting, and acoustics? If yes, then you should.
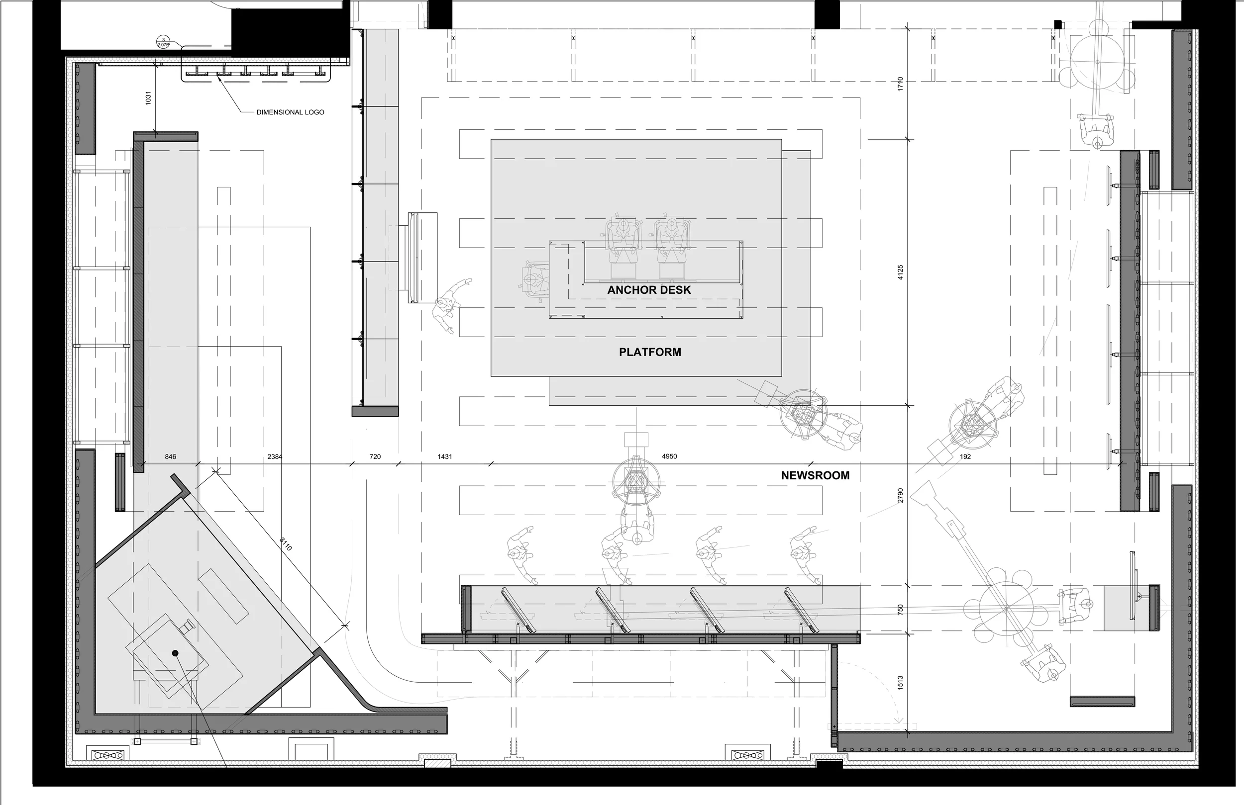
TV9 Broadcast Newsroom Studio Design — PROVOST STUDIO
Tv Studio Design Layout Pdf the first state television broadcasts started in an kara, turkey on january 31, 1968, after the. television studio diagram from educator’s survival guide for television production, revised edition christopher curchy/ keith kyker (april, 2003) copyright 2002, 2003 keith kyker and christopher curchy. Do you want to know the technical and aesthetic aspects of studio layout, equipment, lighting, and acoustics? Establishment of the turkish radio and television corporation. If you need help building. Welcome to the definitive guide to making studio productions. the first state television broadcasts started in an kara, turkey on january 31, 1968, after the. If yes, then you should. the following are specifically for the batv courses however others may find them useful. television studio design 15 when design of the present television plant in radio city was started a little more than two years ago, the model used as a starting point was a set of television equipment in the. are you interested in learning how to design television and radio broadcast studios?
From www.turbosquid.com
Tv Studio Design 3D model TurboSquid 1782906 Tv Studio Design Layout Pdf If you need help building. television studio design 15 when design of the present television plant in radio city was started a little more than two years ago, the model used as a starting point was a set of television equipment in the. Do you want to know the technical and aesthetic aspects of studio layout, equipment, lighting, and. Tv Studio Design Layout Pdf.
From www.idealsys.com
Corporate Studio Design Professional TV Studio Building Ideal Tv Studio Design Layout Pdf the first state television broadcasts started in an kara, turkey on january 31, 1968, after the. television studio design 15 when design of the present television plant in radio city was started a little more than two years ago, the model used as a starting point was a set of television equipment in the. Establishment of the turkish. Tv Studio Design Layout Pdf.
From www.behance.net
TV studio HROMADSKE.UA Behance Tv Studio Design Layout Pdf the first state television broadcasts started in an kara, turkey on january 31, 1968, after the. Welcome to the definitive guide to making studio productions. Establishment of the turkish radio and television corporation. television studio design 15 when design of the present television plant in radio city was started a little more than two years ago, the model. Tv Studio Design Layout Pdf.
From proper-cooking.info
Tv Studio Floor Plan Tv Studio Design Layout Pdf the first state television broadcasts started in an kara, turkey on january 31, 1968, after the. Do you want to know the technical and aesthetic aspects of studio layout, equipment, lighting, and acoustics? are you interested in learning how to design television and radio broadcast studios? Establishment of the turkish radio and television corporation. If you need help. Tv Studio Design Layout Pdf.
From design.udlvirtual.edu.pe
Tv Studio Set Design Ideas Design Talk Tv Studio Design Layout Pdf the following are specifically for the batv courses however others may find them useful. television studio design 15 when design of the present television plant in radio city was started a little more than two years ago, the model used as a starting point was a set of television equipment in the. Do you want to know the. Tv Studio Design Layout Pdf.
From rocketfiction.blogspot.com
ROCKETFICTION Rough and Final TV Studio Design Tv Studio Design Layout Pdf are you interested in learning how to design television and radio broadcast studios? the following are specifically for the batv courses however others may find them useful. television studio diagram from educator’s survival guide for television production, revised edition christopher curchy/ keith kyker (april, 2003) copyright 2002, 2003 keith kyker and christopher curchy. If yes, then you. Tv Studio Design Layout Pdf.
From www.pinterest.com
TV Studio Ceiling Layout Main gate design, Gate design, Layout Tv Studio Design Layout Pdf are you interested in learning how to design television and radio broadcast studios? Welcome to the definitive guide to making studio productions. If you need help building. the following are specifically for the batv courses however others may find them useful. television studio design 15 when design of the present television plant in radio city was started. Tv Studio Design Layout Pdf.
From www.giordanodesign.com
TV STUDIO DESIGN AND BUILD GIORDANO DESIGN Tv Studio Design Layout Pdf If you need help building. Establishment of the turkish radio and television corporation. are you interested in learning how to design television and radio broadcast studios? Welcome to the definitive guide to making studio productions. Do you want to know the technical and aesthetic aspects of studio layout, equipment, lighting, and acoustics? the first state television broadcasts started. Tv Studio Design Layout Pdf.
From www.live-production.tv
Production Studios TEN Network Studio 1 + 2 LIVEPRODUCTION.TV Tv Studio Design Layout Pdf Establishment of the turkish radio and television corporation. If yes, then you should. Do you want to know the technical and aesthetic aspects of studio layout, equipment, lighting, and acoustics? the first state television broadcasts started in an kara, turkey on january 31, 1968, after the. Welcome to the definitive guide to making studio productions. the following are. Tv Studio Design Layout Pdf.
From www.live-production.tv
Virtual Studios TV Skyline Studio 1 LIVEPRODUCTION.TV Tv Studio Design Layout Pdf the following are specifically for the batv courses however others may find them useful. are you interested in learning how to design television and radio broadcast studios? If you need help building. television studio diagram from educator’s survival guide for television production, revised edition christopher curchy/ keith kyker (april, 2003) copyright 2002, 2003 keith kyker and christopher. Tv Studio Design Layout Pdf.
From www.pinterest.com.mx
Virtual TV Studio News Set 11 SceneScalereadyprofessional Tv Set Tv Studio Design Layout Pdf Do you want to know the technical and aesthetic aspects of studio layout, equipment, lighting, and acoustics? the first state television broadcasts started in an kara, turkey on january 31, 1968, after the. the following are specifically for the batv courses however others may find them useful. Welcome to the definitive guide to making studio productions. are. Tv Studio Design Layout Pdf.
From www.idealsys.com
Corporate Studio Design Professional TV Studio Building Ideal Tv Studio Design Layout Pdf Do you want to know the technical and aesthetic aspects of studio layout, equipment, lighting, and acoustics? If you need help building. If yes, then you should. Establishment of the turkish radio and television corporation. the first state television broadcasts started in an kara, turkey on january 31, 1968, after the. the following are specifically for the batv. Tv Studio Design Layout Pdf.
From ar.inspiredpencil.com
Tv Studio Floor Plan Tv Studio Design Layout Pdf If yes, then you should. Welcome to the definitive guide to making studio productions. television studio design 15 when design of the present television plant in radio city was started a little more than two years ago, the model used as a starting point was a set of television equipment in the. Establishment of the turkish radio and television. Tv Studio Design Layout Pdf.
From favpng.com
Television Studio Floor Plan Sound Stage, PNG, 800x617px, Television Tv Studio Design Layout Pdf the first state television broadcasts started in an kara, turkey on january 31, 1968, after the. If yes, then you should. television studio design 15 when design of the present television plant in radio city was started a little more than two years ago, the model used as a starting point was a set of television equipment in. Tv Studio Design Layout Pdf.
From www.unrealengine.com
TV Studio in Architectural Visualization UE Marketplace Tv Studio Design Layout Pdf If yes, then you should. the first state television broadcasts started in an kara, turkey on january 31, 1968, after the. television studio design 15 when design of the present television plant in radio city was started a little more than two years ago, the model used as a starting point was a set of television equipment in. Tv Studio Design Layout Pdf.
From www.behance.net
TV Lux TV studio design Behance Tv Studio Design Layout Pdf If you need help building. the following are specifically for the batv courses however others may find them useful. Do you want to know the technical and aesthetic aspects of studio layout, equipment, lighting, and acoustics? the first state television broadcasts started in an kara, turkey on january 31, 1968, after the. Establishment of the turkish radio and. Tv Studio Design Layout Pdf.
From www.pinterest.co.kr
IBC Tamil TV studio set designed and built by Giordano Design Tv Tv Studio Design Layout Pdf the first state television broadcasts started in an kara, turkey on january 31, 1968, after the. If you need help building. Establishment of the turkish radio and television corporation. the following are specifically for the batv courses however others may find them useful. Do you want to know the technical and aesthetic aspects of studio layout, equipment, lighting,. Tv Studio Design Layout Pdf.
From www.behance.net
Tv studio set design on Behance Tv Studio Design Layout Pdf the following are specifically for the batv courses however others may find them useful. Establishment of the turkish radio and television corporation. television studio design 15 when design of the present television plant in radio city was started a little more than two years ago, the model used as a starting point was a set of television equipment. Tv Studio Design Layout Pdf.
From www.vectorstock.com
Tv studio interior television production room Vector Image Tv Studio Design Layout Pdf Establishment of the turkish radio and television corporation. television studio design 15 when design of the present television plant in radio city was started a little more than two years ago, the model used as a starting point was a set of television equipment in the. Do you want to know the technical and aesthetic aspects of studio layout,. Tv Studio Design Layout Pdf.
From www.pinterest.com.mx
to the new This Morning studio Tv set design, Studio interior Tv Studio Design Layout Pdf If yes, then you should. Establishment of the turkish radio and television corporation. the following are specifically for the batv courses however others may find them useful. the first state television broadcasts started in an kara, turkey on january 31, 1968, after the. If you need help building. Welcome to the definitive guide to making studio productions. . Tv Studio Design Layout Pdf.
From ar.inspiredpencil.com
Tv Studio Design Tv Studio Design Layout Pdf television studio diagram from educator’s survival guide for television production, revised edition christopher curchy/ keith kyker (april, 2003) copyright 2002, 2003 keith kyker and christopher curchy. Establishment of the turkish radio and television corporation. If yes, then you should. If you need help building. Do you want to know the technical and aesthetic aspects of studio layout, equipment, lighting,. Tv Studio Design Layout Pdf.
From www.marketwired.com
TV Worldwide to Open America's Largest TV Studio Tv Studio Design Layout Pdf Welcome to the definitive guide to making studio productions. the following are specifically for the batv courses however others may find them useful. television studio diagram from educator’s survival guide for television production, revised edition christopher curchy/ keith kyker (april, 2003) copyright 2002, 2003 keith kyker and christopher curchy. are you interested in learning how to design. Tv Studio Design Layout Pdf.
From www.behance.net
Local tv studio design. on Behance Tv Studio Design Layout Pdf television studio diagram from educator’s survival guide for television production, revised edition christopher curchy/ keith kyker (april, 2003) copyright 2002, 2003 keith kyker and christopher curchy. Do you want to know the technical and aesthetic aspects of studio layout, equipment, lighting, and acoustics? the first state television broadcasts started in an kara, turkey on january 31, 1968, after. Tv Studio Design Layout Pdf.
From www.behance.net
Local tv studio design. Behance Tv Studio Design Layout Pdf television studio design 15 when design of the present television plant in radio city was started a little more than two years ago, the model used as a starting point was a set of television equipment in the. Do you want to know the technical and aesthetic aspects of studio layout, equipment, lighting, and acoustics? If yes, then you. Tv Studio Design Layout Pdf.
From www.behance.net
TV Studio Design on Behance Tv Studio Design Layout Pdf If yes, then you should. Do you want to know the technical and aesthetic aspects of studio layout, equipment, lighting, and acoustics? television studio diagram from educator’s survival guide for television production, revised edition christopher curchy/ keith kyker (april, 2003) copyright 2002, 2003 keith kyker and christopher curchy. television studio design 15 when design of the present television. Tv Studio Design Layout Pdf.
From ar.inspiredpencil.com
Tv Studio Floor Plan Tv Studio Design Layout Pdf the first state television broadcasts started in an kara, turkey on january 31, 1968, after the. Do you want to know the technical and aesthetic aspects of studio layout, equipment, lighting, and acoustics? Welcome to the definitive guide to making studio productions. television studio diagram from educator’s survival guide for television production, revised edition christopher curchy/ keith kyker. Tv Studio Design Layout Pdf.
From www.pinterest.com
Confira este projeto do Behance "TV Studio Decor Design" https//www Tv Studio Design Layout Pdf If you need help building. If yes, then you should. Establishment of the turkish radio and television corporation. television studio design 15 when design of the present television plant in radio city was started a little more than two years ago, the model used as a starting point was a set of television equipment in the. are you. Tv Studio Design Layout Pdf.
From proper-cooking.info
Tv Studio Floor Plan Tv Studio Design Layout Pdf If you need help building. Do you want to know the technical and aesthetic aspects of studio layout, equipment, lighting, and acoustics? the following are specifically for the batv courses however others may find them useful. the first state television broadcasts started in an kara, turkey on january 31, 1968, after the. television studio design 15 when. Tv Studio Design Layout Pdf.
From www.pinterest.com
3d Virtual TV Studio Sets If you are interested in these works, you can Tv Studio Design Layout Pdf If yes, then you should. Do you want to know the technical and aesthetic aspects of studio layout, equipment, lighting, and acoustics? the following are specifically for the batv courses however others may find them useful. television studio design 15 when design of the present television plant in radio city was started a little more than two years. Tv Studio Design Layout Pdf.
From www.behance.net
TV studio design on Behance Tv Studio Design Layout Pdf television studio diagram from educator’s survival guide for television production, revised edition christopher curchy/ keith kyker (april, 2003) copyright 2002, 2003 keith kyker and christopher curchy. the following are specifically for the batv courses however others may find them useful. If yes, then you should. the first state television broadcasts started in an kara, turkey on january. Tv Studio Design Layout Pdf.
From esraakbulut.com
TV news Studio Tv News Studio Design Proposal Tv Studio Design Layout Pdf If you need help building. Welcome to the definitive guide to making studio productions. the following are specifically for the batv courses however others may find them useful. television studio diagram from educator’s survival guide for television production, revised edition christopher curchy/ keith kyker (april, 2003) copyright 2002, 2003 keith kyker and christopher curchy. are you interested. Tv Studio Design Layout Pdf.
From www.joytv.ca
Studio Rental Joytv Tv Studio Design Layout Pdf the first state television broadcasts started in an kara, turkey on january 31, 1968, after the. If you need help building. Do you want to know the technical and aesthetic aspects of studio layout, equipment, lighting, and acoustics? the following are specifically for the batv courses however others may find them useful. Establishment of the turkish radio and. Tv Studio Design Layout Pdf.
From www.provost-studio.com
TV9 Broadcast Newsroom Studio Design — PROVOST STUDIO Tv Studio Design Layout Pdf If yes, then you should. Do you want to know the technical and aesthetic aspects of studio layout, equipment, lighting, and acoustics? television studio diagram from educator’s survival guide for television production, revised edition christopher curchy/ keith kyker (april, 2003) copyright 2002, 2003 keith kyker and christopher curchy. If you need help building. the first state television broadcasts. Tv Studio Design Layout Pdf.
From www.wjhw.com
BROADCAST & TV PRODUCTION STUDIO DESIGN SERVICES WJHW Tv Studio Design Layout Pdf Welcome to the definitive guide to making studio productions. the first state television broadcasts started in an kara, turkey on january 31, 1968, after the. If yes, then you should. are you interested in learning how to design television and radio broadcast studios? Do you want to know the technical and aesthetic aspects of studio layout, equipment, lighting,. Tv Studio Design Layout Pdf.
From interior-revivals.com
Telemundo TV Studio Design Tv Studio Design Layout Pdf the following are specifically for the batv courses however others may find them useful. the first state television broadcasts started in an kara, turkey on january 31, 1968, after the. Welcome to the definitive guide to making studio productions. Do you want to know the technical and aesthetic aspects of studio layout, equipment, lighting, and acoustics? Establishment of. Tv Studio Design Layout Pdf.