Cable Installation Checklist . The process involves several key steps, including planning the cable route, running the cables, terminating them with connectors, and testing the installation. The complete table of inspection and testing activities with. The environments where cabling is to be installed are classified to cover the different conditions under which the cabling is required to operate. From precise routing to secure. Streamline your cable management process with our expert checklist for cable tray and cable ladder installation. Getting your home or small business network in place is easier than you might think. Print & go diy cable installation tool checklist. Written by dave harris, truecable technical specialist. The primary obstacle for many is identifying what tools you'll need to complete the task. The sample below is an example of a checklist published by the fiber optic association and one we’ve used to plan our own jobs.
from www.signnow.com
The complete table of inspection and testing activities with. The process involves several key steps, including planning the cable route, running the cables, terminating them with connectors, and testing the installation. The sample below is an example of a checklist published by the fiber optic association and one we’ve used to plan our own jobs. Streamline your cable management process with our expert checklist for cable tray and cable ladder installation. From precise routing to secure. Getting your home or small business network in place is easier than you might think. Print & go diy cable installation tool checklist. Written by dave harris, truecable technical specialist. The environments where cabling is to be installed are classified to cover the different conditions under which the cabling is required to operate. The primary obstacle for many is identifying what tools you'll need to complete the task.
Installation Checklist Template Complete with ease airSlate SignNow
Cable Installation Checklist The primary obstacle for many is identifying what tools you'll need to complete the task. Streamline your cable management process with our expert checklist for cable tray and cable ladder installation. The complete table of inspection and testing activities with. Getting your home or small business network in place is easier than you might think. Print & go diy cable installation tool checklist. The process involves several key steps, including planning the cable route, running the cables, terminating them with connectors, and testing the installation. The primary obstacle for many is identifying what tools you'll need to complete the task. The sample below is an example of a checklist published by the fiber optic association and one we’ve used to plan our own jobs. The environments where cabling is to be installed are classified to cover the different conditions under which the cabling is required to operate. Written by dave harris, truecable technical specialist. From precise routing to secure.
From www.basec.org.uk
Cable Safety Checklist BASEC Cable Installation Checklist Streamline your cable management process with our expert checklist for cable tray and cable ladder installation. Written by dave harris, truecable technical specialist. The primary obstacle for many is identifying what tools you'll need to complete the task. Getting your home or small business network in place is easier than you might think. The sample below is an example of. Cable Installation Checklist.
From electricalengineering123.com
inspection checklist for LV ELV and Cable Pulling and Cable Installation Checklist The sample below is an example of a checklist published by the fiber optic association and one we’ve used to plan our own jobs. Streamline your cable management process with our expert checklist for cable tray and cable ladder installation. Getting your home or small business network in place is easier than you might think. The environments where cabling is. Cable Installation Checklist.
From www.scribd.com
Extension Cable Checklist PDF Cable Installation Checklist Getting your home or small business network in place is easier than you might think. Print & go diy cable installation tool checklist. The primary obstacle for many is identifying what tools you'll need to complete the task. Streamline your cable management process with our expert checklist for cable tray and cable ladder installation. The environments where cabling is to. Cable Installation Checklist.
From www.scribd.com
Electrical Safety Inspection Checklist PDF Electrical Wiring Cable Installation Checklist From precise routing to secure. Getting your home or small business network in place is easier than you might think. The process involves several key steps, including planning the cable route, running the cables, terminating them with connectors, and testing the installation. Written by dave harris, truecable technical specialist. The environments where cabling is to be installed are classified to. Cable Installation Checklist.
From www.scribd.com
Inspection Checklist OTDR Test for Fiber Optic Cables Optical Fiber Cable Installation Checklist The environments where cabling is to be installed are classified to cover the different conditions under which the cabling is required to operate. The primary obstacle for many is identifying what tools you'll need to complete the task. From precise routing to secure. Streamline your cable management process with our expert checklist for cable tray and cable ladder installation. Written. Cable Installation Checklist.
From www.signnow.com
Installation Checklist Template Complete with ease airSlate SignNow Cable Installation Checklist The process involves several key steps, including planning the cable route, running the cables, terminating them with connectors, and testing the installation. The primary obstacle for many is identifying what tools you'll need to complete the task. The environments where cabling is to be installed are classified to cover the different conditions under which the cabling is required to operate.. Cable Installation Checklist.
From www.scribd.com
CNCECQF06E006 MV LV Switchgear Installation Inspection Checklist Cable Installation Checklist Getting your home or small business network in place is easier than you might think. Written by dave harris, truecable technical specialist. The primary obstacle for many is identifying what tools you'll need to complete the task. The sample below is an example of a checklist published by the fiber optic association and one we’ve used to plan our own. Cable Installation Checklist.
From www.scribd.com
Cable Installation Check List PDF Cable Installation Checklist The environments where cabling is to be installed are classified to cover the different conditions under which the cabling is required to operate. The sample below is an example of a checklist published by the fiber optic association and one we’ve used to plan our own jobs. Getting your home or small business network in place is easier than you. Cable Installation Checklist.
From www.scribd.com
Cable Installation Check listAC PDF Insulator (Electricity Cable Installation Checklist From precise routing to secure. The process involves several key steps, including planning the cable route, running the cables, terminating them with connectors, and testing the installation. Getting your home or small business network in place is easier than you might think. The environments where cabling is to be installed are classified to cover the different conditions under which the. Cable Installation Checklist.
From www.scribd.com
Checklist For LT Cabel Jointing PDF Insulator (Electricity Cable Installation Checklist From precise routing to secure. Print & go diy cable installation tool checklist. Streamline your cable management process with our expert checklist for cable tray and cable ladder installation. Written by dave harris, truecable technical specialist. The process involves several key steps, including planning the cable route, running the cables, terminating them with connectors, and testing the installation. The sample. Cable Installation Checklist.
From www.scribd.com
Electrical Wiring Cable Installation Checklist The process involves several key steps, including planning the cable route, running the cables, terminating them with connectors, and testing the installation. Streamline your cable management process with our expert checklist for cable tray and cable ladder installation. The primary obstacle for many is identifying what tools you'll need to complete the task. The sample below is an example of. Cable Installation Checklist.
From www.scribd.com
Checklist B MV Underground Cable Systems Cable Trenching PDF Cable Installation Checklist The primary obstacle for many is identifying what tools you'll need to complete the task. Print & go diy cable installation tool checklist. The process involves several key steps, including planning the cable route, running the cables, terminating them with connectors, and testing the installation. The sample below is an example of a checklist published by the fiber optic association. Cable Installation Checklist.
From www.scribd.com
CHECKLIST For Installation of Power Cables PDF Cable Installation Checklist From precise routing to secure. The environments where cabling is to be installed are classified to cover the different conditions under which the cabling is required to operate. Getting your home or small business network in place is easier than you might think. The complete table of inspection and testing activities with. The process involves several key steps, including planning. Cable Installation Checklist.
From www.scribd.com
Cable Tray Inspection List PDF Wire Electrical Components Cable Installation Checklist The environments where cabling is to be installed are classified to cover the different conditions under which the cabling is required to operate. Print & go diy cable installation tool checklist. The sample below is an example of a checklist published by the fiber optic association and one we’ve used to plan our own jobs. The primary obstacle for many. Cable Installation Checklist.
From www.scribd.com
Cable Tray Installation Checklist PDF Equipment Manufactured Goods Cable Installation Checklist The environments where cabling is to be installed are classified to cover the different conditions under which the cabling is required to operate. Streamline your cable management process with our expert checklist for cable tray and cable ladder installation. The process involves several key steps, including planning the cable route, running the cables, terminating them with connectors, and testing the. Cable Installation Checklist.
From inspectionandtestplan.com
Full ITP for Cable Trays, Ladders & Conduit Installation with Cable Installation Checklist The process involves several key steps, including planning the cable route, running the cables, terminating them with connectors, and testing the installation. From precise routing to secure. Written by dave harris, truecable technical specialist. The sample below is an example of a checklist published by the fiber optic association and one we’ve used to plan our own jobs. Streamline your. Cable Installation Checklist.
From formconnections.com
Creating an Installation Checklist Cable Installation Checklist The environments where cabling is to be installed are classified to cover the different conditions under which the cabling is required to operate. The primary obstacle for many is identifying what tools you'll need to complete the task. The sample below is an example of a checklist published by the fiber optic association and one we’ve used to plan our. Cable Installation Checklist.
From www.semanticscholar.org
Table 2 from Fiber Optic Cable Assembly Specification Checklist for Cable Installation Checklist Getting your home or small business network in place is easier than you might think. From precise routing to secure. The primary obstacle for many is identifying what tools you'll need to complete the task. The sample below is an example of a checklist published by the fiber optic association and one we’ve used to plan our own jobs. The. Cable Installation Checklist.
From sitemate.com
Cable Inspection Checklist (Power, electrical, cable trays) Cable Installation Checklist Getting your home or small business network in place is easier than you might think. The complete table of inspection and testing activities with. Streamline your cable management process with our expert checklist for cable tray and cable ladder installation. From precise routing to secure. The primary obstacle for many is identifying what tools you'll need to complete the task.. Cable Installation Checklist.
From www.lceted.com
Quality inspection checklist for Electrical works Installation of Cable Installation Checklist The environments where cabling is to be installed are classified to cover the different conditions under which the cabling is required to operate. The complete table of inspection and testing activities with. The primary obstacle for many is identifying what tools you'll need to complete the task. Streamline your cable management process with our expert checklist for cable tray and. Cable Installation Checklist.
From www.scribd.com
Final Check List Cable Laying Cable Wire Cable Installation Checklist Written by dave harris, truecable technical specialist. The sample below is an example of a checklist published by the fiber optic association and one we’ve used to plan our own jobs. The complete table of inspection and testing activities with. Print & go diy cable installation tool checklist. The primary obstacle for many is identifying what tools you'll need to. Cable Installation Checklist.
From vdocuments.mx
IWP CABLE TRAY INSTALLATION CHECKLIST Scheduled Scaffolding/Manlift Cable Installation Checklist From precise routing to secure. The complete table of inspection and testing activities with. The sample below is an example of a checklist published by the fiber optic association and one we’ve used to plan our own jobs. The environments where cabling is to be installed are classified to cover the different conditions under which the cabling is required to. Cable Installation Checklist.
From www.scribd.com
Cable Inspection Check List PDF Wire Electrical Wiring Cable Installation Checklist Getting your home or small business network in place is easier than you might think. The primary obstacle for many is identifying what tools you'll need to complete the task. The sample below is an example of a checklist published by the fiber optic association and one we’ve used to plan our own jobs. The environments where cabling is to. Cable Installation Checklist.
From www.files.construction
Electrical Cabling Construction Checklist Construction Documents And Cable Installation Checklist The sample below is an example of a checklist published by the fiber optic association and one we’ve used to plan our own jobs. Written by dave harris, truecable technical specialist. Streamline your cable management process with our expert checklist for cable tray and cable ladder installation. Getting your home or small business network in place is easier than you. Cable Installation Checklist.
From www.scribd.com
HV Cable Installation Checklist PDF Cable Installation Checklist Streamline your cable management process with our expert checklist for cable tray and cable ladder installation. The environments where cabling is to be installed are classified to cover the different conditions under which the cabling is required to operate. Print & go diy cable installation tool checklist. The complete table of inspection and testing activities with. The process involves several. Cable Installation Checklist.
From www.scribd.com
LV Cable Work Check List PDF Cable Installation Checklist The complete table of inspection and testing activities with. Streamline your cable management process with our expert checklist for cable tray and cable ladder installation. The process involves several key steps, including planning the cable route, running the cables, terminating them with connectors, and testing the installation. Getting your home or small business network in place is easier than you. Cable Installation Checklist.
From www.scribd.com
Check ListFor Electrical Wiring Cable Installation Checklist The primary obstacle for many is identifying what tools you'll need to complete the task. Written by dave harris, truecable technical specialist. The complete table of inspection and testing activities with. The sample below is an example of a checklist published by the fiber optic association and one we’ve used to plan our own jobs. The process involves several key. Cable Installation Checklist.
From pdfslide.net
(PDF) IWP CABLE TRAY INSTALLATION CHECKLIST Scheduled Scaffolding Cable Installation Checklist Streamline your cable management process with our expert checklist for cable tray and cable ladder installation. The complete table of inspection and testing activities with. From precise routing to secure. The primary obstacle for many is identifying what tools you'll need to complete the task. The sample below is an example of a checklist published by the fiber optic association. Cable Installation Checklist.
From inspectionandtestplan.com
Full ITP for Electrical Cable Installation with Checklists [Editable] Cable Installation Checklist The complete table of inspection and testing activities with. The sample below is an example of a checklist published by the fiber optic association and one we’ve used to plan our own jobs. Written by dave harris, truecable technical specialist. The primary obstacle for many is identifying what tools you'll need to complete the task. Print & go diy cable. Cable Installation Checklist.
From www.scribd.com
023 Electrical Checklist PDF Electrical Connector Electrical Wiring Cable Installation Checklist Print & go diy cable installation tool checklist. The sample below is an example of a checklist published by the fiber optic association and one we’ve used to plan our own jobs. The primary obstacle for many is identifying what tools you'll need to complete the task. Streamline your cable management process with our expert checklist for cable tray and. Cable Installation Checklist.
From www.scribd.com
Distribution & Wiring Cables / Systems Installation Checklist PDF Cable Installation Checklist The process involves several key steps, including planning the cable route, running the cables, terminating them with connectors, and testing the installation. The primary obstacle for many is identifying what tools you'll need to complete the task. Streamline your cable management process with our expert checklist for cable tray and cable ladder installation. Written by dave harris, truecable technical specialist.. Cable Installation Checklist.
From inspectionandtestplan.com
qualityinspectionchecklistsforcabletraysladdersconduit Cable Installation Checklist Written by dave harris, truecable technical specialist. The process involves several key steps, including planning the cable route, running the cables, terminating them with connectors, and testing the installation. The primary obstacle for many is identifying what tools you'll need to complete the task. The complete table of inspection and testing activities with. Print & go diy cable installation tool. Cable Installation Checklist.
From www.scribd.com
Cable Tray Layout Design Checklist PDF Electrical Wiring Cable Installation Checklist The process involves several key steps, including planning the cable route, running the cables, terminating them with connectors, and testing the installation. From precise routing to secure. The complete table of inspection and testing activities with. Written by dave harris, truecable technical specialist. The primary obstacle for many is identifying what tools you'll need to complete the task. Getting your. Cable Installation Checklist.
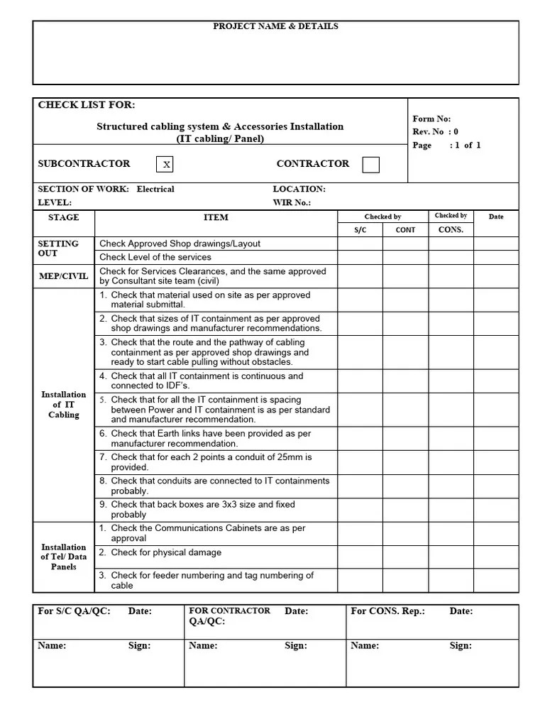
From www.scribd.com
Checklist for Structured Cabling System & Accessories Installation Cable Installation Checklist From precise routing to secure. The process involves several key steps, including planning the cable route, running the cables, terminating them with connectors, and testing the installation. The sample below is an example of a checklist published by the fiber optic association and one we’ve used to plan our own jobs. Written by dave harris, truecable technical specialist. The primary. Cable Installation Checklist.
From manualzz.com
Underground Distribution Cables Installation Checklist Manualzz Cable Installation Checklist The complete table of inspection and testing activities with. Getting your home or small business network in place is easier than you might think. From precise routing to secure. Print & go diy cable installation tool checklist. Written by dave harris, truecable technical specialist. The sample below is an example of a checklist published by the fiber optic association and. Cable Installation Checklist.