Nyc Home Processor Exemption . If you plan to make foods such as certain baked goods, jellies or snack mixes, you may qualify for a home processor exemption. In order to protect public health and to minimize the potential of food product adulteration, this exemption is restricted to the following ‘approved’ non. This will allow you to. This will allow you to. If you plan to make foods such as certain baked goods, jellies, or snack mixes, you may qualify for a home processor exemption. This exemption allows you to prepare food in your own. Which foods are subject to the new york cottage food law (ny home processor exemption)? If you're considering selling your baked goods, jellies, or snack mixes, you may qualify for a home processor exemption in new york state.
from www.templateroller.com
Which foods are subject to the new york cottage food law (ny home processor exemption)? This will allow you to. If you plan to make foods such as certain baked goods, jellies or snack mixes, you may qualify for a home processor exemption. If you're considering selling your baked goods, jellies, or snack mixes, you may qualify for a home processor exemption in new york state. This exemption allows you to prepare food in your own. In order to protect public health and to minimize the potential of food product adulteration, this exemption is restricted to the following ‘approved’ non. If you plan to make foods such as certain baked goods, jellies, or snack mixes, you may qualify for a home processor exemption. This will allow you to.
Form 1503030851 Fill Out, Sign Online and Download Fillable PDF
Nyc Home Processor Exemption If you're considering selling your baked goods, jellies, or snack mixes, you may qualify for a home processor exemption in new york state. If you plan to make foods such as certain baked goods, jellies, or snack mixes, you may qualify for a home processor exemption. Which foods are subject to the new york cottage food law (ny home processor exemption)? In order to protect public health and to minimize the potential of food product adulteration, this exemption is restricted to the following ‘approved’ non. If you're considering selling your baked goods, jellies, or snack mixes, you may qualify for a home processor exemption in new york state. This will allow you to. If you plan to make foods such as certain baked goods, jellies or snack mixes, you may qualify for a home processor exemption. This will allow you to. This exemption allows you to prepare food in your own.
From www.youtube.com
680 A Week Processing Claims Work From Home Job You Can Live Nyc Home Processor Exemption If you're considering selling your baked goods, jellies, or snack mixes, you may qualify for a home processor exemption in new york state. This will allow you to. This exemption allows you to prepare food in your own. If you plan to make foods such as certain baked goods, jellies, or snack mixes, you may qualify for a home processor. Nyc Home Processor Exemption.
From www.templateroller.com
Form 4400303 Fill Out, Sign Online and Download Fillable PDF Nyc Home Processor Exemption In order to protect public health and to minimize the potential of food product adulteration, this exemption is restricted to the following ‘approved’ non. If you plan to make foods such as certain baked goods, jellies or snack mixes, you may qualify for a home processor exemption. Which foods are subject to the new york cottage food law (ny home. Nyc Home Processor Exemption.
From www.researchgate.net
(PDF) Who is responsible for data processing in smart homes Nyc Home Processor Exemption If you're considering selling your baked goods, jellies, or snack mixes, you may qualify for a home processor exemption in new york state. This exemption allows you to prepare food in your own. Which foods are subject to the new york cottage food law (ny home processor exemption)? In order to protect public health and to minimize the potential of. Nyc Home Processor Exemption.
From slideplayer.com
17th National Forum on Prepaid Card Compliance ppt download Nyc Home Processor Exemption If you're considering selling your baked goods, jellies, or snack mixes, you may qualify for a home processor exemption in new york state. If you plan to make foods such as certain baked goods, jellies, or snack mixes, you may qualify for a home processor exemption. In order to protect public health and to minimize the potential of food product. Nyc Home Processor Exemption.
From www.childsupport.ny.gov
NYS DCSS Noncustodial Parent Services Nyc Home Processor Exemption Which foods are subject to the new york cottage food law (ny home processor exemption)? In order to protect public health and to minimize the potential of food product adulteration, this exemption is restricted to the following ‘approved’ non. This will allow you to. This will allow you to. This exemption allows you to prepare food in your own. If. Nyc Home Processor Exemption.
From www.scribd.com
Senior Mortgage Loan Processor in NYC Resume Yocheved Krauss Loans Nyc Home Processor Exemption This will allow you to. Which foods are subject to the new york cottage food law (ny home processor exemption)? This exemption allows you to prepare food in your own. If you're considering selling your baked goods, jellies, or snack mixes, you may qualify for a home processor exemption in new york state. If you plan to make foods such. Nyc Home Processor Exemption.
From www.templateroller.com
Form RP483d Fill Out, Sign Online and Download Fillable PDF, New Nyc Home Processor Exemption This will allow you to. If you plan to make foods such as certain baked goods, jellies or snack mixes, you may qualify for a home processor exemption. If you're considering selling your baked goods, jellies, or snack mixes, you may qualify for a home processor exemption in new york state. This will allow you to. In order to protect. Nyc Home Processor Exemption.
From agdaocoop.com
BIR Certificate of Tax Exemption AMPC Nyc Home Processor Exemption In order to protect public health and to minimize the potential of food product adulteration, this exemption is restricted to the following ‘approved’ non. Which foods are subject to the new york cottage food law (ny home processor exemption)? This exemption allows you to prepare food in your own. This will allow you to. If you're considering selling your baked. Nyc Home Processor Exemption.
From www.templateroller.com
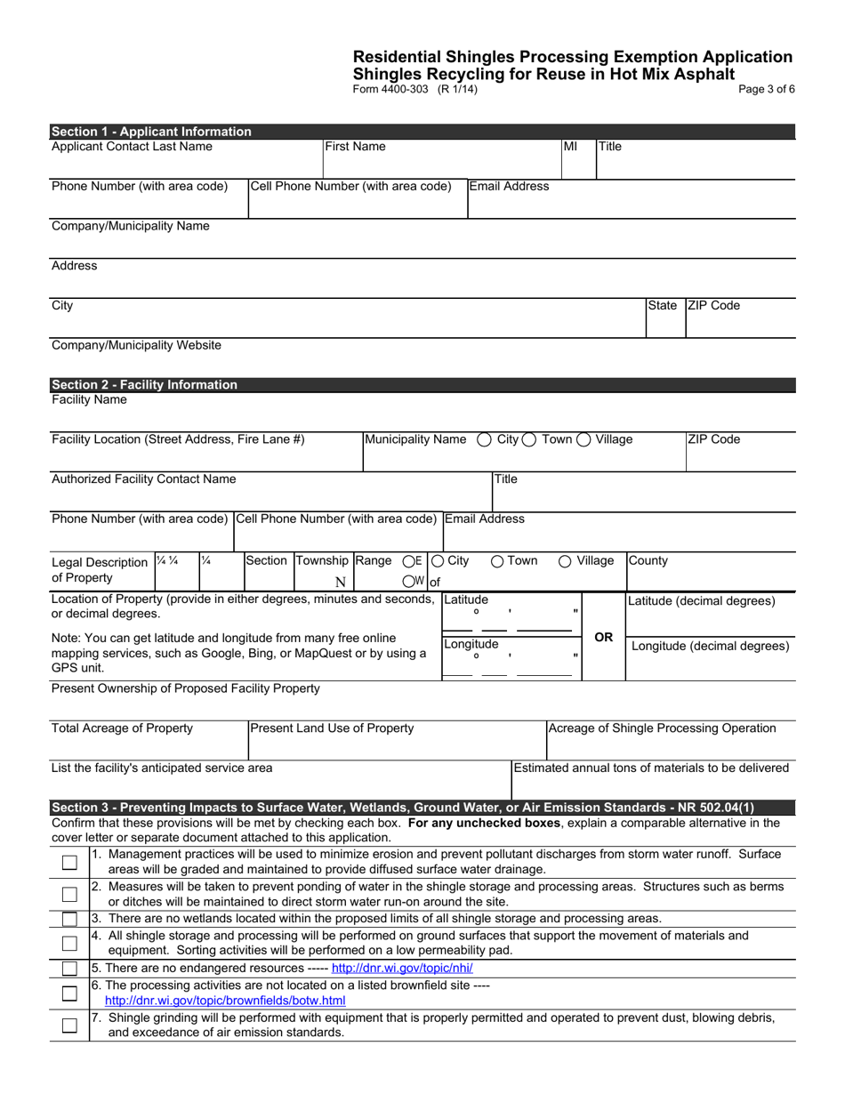
Form 4400303 Fill Out, Sign Online and Download Fillable PDF Nyc Home Processor Exemption If you plan to make foods such as certain baked goods, jellies or snack mixes, you may qualify for a home processor exemption. In order to protect public health and to minimize the potential of food product adulteration, this exemption is restricted to the following ‘approved’ non. This will allow you to. If you're considering selling your baked goods, jellies,. Nyc Home Processor Exemption.
From www.youtube.com
What is an Illinois Exempt Entity Processor Bond? YouTube Nyc Home Processor Exemption If you're considering selling your baked goods, jellies, or snack mixes, you may qualify for a home processor exemption in new york state. Which foods are subject to the new york cottage food law (ny home processor exemption)? If you plan to make foods such as certain baked goods, jellies, or snack mixes, you may qualify for a home processor. Nyc Home Processor Exemption.
From www.reddit.com
Processing timeline r/NYC_Candidate_Central Nyc Home Processor Exemption This will allow you to. In order to protect public health and to minimize the potential of food product adulteration, this exemption is restricted to the following ‘approved’ non. This will allow you to. If you plan to make foods such as certain baked goods, jellies or snack mixes, you may qualify for a home processor exemption. If you plan. Nyc Home Processor Exemption.
From www.signnow.com
Home Processor Exemption Ny 20182024 Form Fill Out and Sign Nyc Home Processor Exemption If you plan to make foods such as certain baked goods, jellies, or snack mixes, you may qualify for a home processor exemption. This will allow you to. This exemption allows you to prepare food in your own. If you plan to make foods such as certain baked goods, jellies or snack mixes, you may qualify for a home processor. Nyc Home Processor Exemption.
From www.formsbank.com
Blanket Certificate Of Exemption Covering Purchases For Resale Or For Nyc Home Processor Exemption If you plan to make foods such as certain baked goods, jellies or snack mixes, you may qualify for a home processor exemption. In order to protect public health and to minimize the potential of food product adulteration, this exemption is restricted to the following ‘approved’ non. This exemption allows you to prepare food in your own. If you're considering. Nyc Home Processor Exemption.
From www.facebook.com
Facebook Nyc Home Processor Exemption This will allow you to. This will allow you to. If you plan to make foods such as certain baked goods, jellies or snack mixes, you may qualify for a home processor exemption. This exemption allows you to prepare food in your own. Which foods are subject to the new york cottage food law (ny home processor exemption)? If you're. Nyc Home Processor Exemption.
From www.templateroller.com
Form 4400303 Fill Out, Sign Online and Download Fillable PDF Nyc Home Processor Exemption If you're considering selling your baked goods, jellies, or snack mixes, you may qualify for a home processor exemption in new york state. This will allow you to. Which foods are subject to the new york cottage food law (ny home processor exemption)? In order to protect public health and to minimize the potential of food product adulteration, this exemption. Nyc Home Processor Exemption.
From www.dochub.com
Iowa Sales Tax Exemption Certificate for Energy Used in Processing or Nyc Home Processor Exemption Which foods are subject to the new york cottage food law (ny home processor exemption)? This will allow you to. If you're considering selling your baked goods, jellies, or snack mixes, you may qualify for a home processor exemption in new york state. If you plan to make foods such as certain baked goods, jellies, or snack mixes, you may. Nyc Home Processor Exemption.
From www.templateroller.com
Form 1831APP.06 Fill Out, Sign Online and Download Fillable PDF Nyc Home Processor Exemption This will allow you to. If you're considering selling your baked goods, jellies, or snack mixes, you may qualify for a home processor exemption in new york state. In order to protect public health and to minimize the potential of food product adulteration, this exemption is restricted to the following ‘approved’ non. If you plan to make foods such as. Nyc Home Processor Exemption.
From emmanuelcollazo.blogspot.com
michigan sales tax exemption industrial processing Emmanuel Collazo Nyc Home Processor Exemption If you plan to make foods such as certain baked goods, jellies, or snack mixes, you may qualify for a home processor exemption. This will allow you to. Which foods are subject to the new york cottage food law (ny home processor exemption)? This will allow you to. If you plan to make foods such as certain baked goods, jellies. Nyc Home Processor Exemption.
From www.change.org
Petition · Sale of FreezeDried Candy Under Home Processor Exemption in Nyc Home Processor Exemption If you plan to make foods such as certain baked goods, jellies, or snack mixes, you may qualify for a home processor exemption. Which foods are subject to the new york cottage food law (ny home processor exemption)? This will allow you to. In order to protect public health and to minimize the potential of food product adulteration, this exemption. Nyc Home Processor Exemption.
From www.montgomerycountymd.gov
Homestead Tax Credit Nyc Home Processor Exemption If you're considering selling your baked goods, jellies, or snack mixes, you may qualify for a home processor exemption in new york state. If you plan to make foods such as certain baked goods, jellies, or snack mixes, you may qualify for a home processor exemption. In order to protect public health and to minimize the potential of food product. Nyc Home Processor Exemption.
From www.formsbank.com
Application For Certificate Of Exemption For An Exempt Organization Nyc Home Processor Exemption This will allow you to. Which foods are subject to the new york cottage food law (ny home processor exemption)? This will allow you to. This exemption allows you to prepare food in your own. If you plan to make foods such as certain baked goods, jellies, or snack mixes, you may qualify for a home processor exemption. If you're. Nyc Home Processor Exemption.
From www.templateroller.com
Form R1345 Fill Out, Sign Online and Download Fillable PDF Nyc Home Processor Exemption Which foods are subject to the new york cottage food law (ny home processor exemption)? If you plan to make foods such as certain baked goods, jellies or snack mixes, you may qualify for a home processor exemption. In order to protect public health and to minimize the potential of food product adulteration, this exemption is restricted to the following. Nyc Home Processor Exemption.
From www.formsbank.com
Form Rp483D Application For Real Property Tax Exemption For Farm Or Nyc Home Processor Exemption If you plan to make foods such as certain baked goods, jellies or snack mixes, you may qualify for a home processor exemption. If you plan to make foods such as certain baked goods, jellies, or snack mixes, you may qualify for a home processor exemption. Which foods are subject to the new york cottage food law (ny home processor. Nyc Home Processor Exemption.
From www.templateroller.com
Form 4400303 Fill Out, Sign Online and Download Fillable PDF Nyc Home Processor Exemption In order to protect public health and to minimize the potential of food product adulteration, this exemption is restricted to the following ‘approved’ non. This will allow you to. This will allow you to. Which foods are subject to the new york cottage food law (ny home processor exemption)? If you plan to make foods such as certain baked goods,. Nyc Home Processor Exemption.
From www.templateroller.com
Form 1503030851 Fill Out, Sign Online and Download Fillable PDF Nyc Home Processor Exemption In order to protect public health and to minimize the potential of food product adulteration, this exemption is restricted to the following ‘approved’ non. If you plan to make foods such as certain baked goods, jellies or snack mixes, you may qualify for a home processor exemption. This exemption allows you to prepare food in your own. This will allow. Nyc Home Processor Exemption.
From studentarrive.com.ng
NOUN STUDENT STEPS FOR YOUR NYSC EXCLUSION LETTER PROCESSING Student Nyc Home Processor Exemption If you're considering selling your baked goods, jellies, or snack mixes, you may qualify for a home processor exemption in new york state. This will allow you to. In order to protect public health and to minimize the potential of food product adulteration, this exemption is restricted to the following ‘approved’ non. This exemption allows you to prepare food in. Nyc Home Processor Exemption.
From www.bondexchange.com
Illinois Exempt Entity Processor Bond A Comprehensive Guide Nyc Home Processor Exemption This will allow you to. If you're considering selling your baked goods, jellies, or snack mixes, you may qualify for a home processor exemption in new york state. This will allow you to. Which foods are subject to the new york cottage food law (ny home processor exemption)? If you plan to make foods such as certain baked goods, jellies,. Nyc Home Processor Exemption.
From www.formsbank.com
Form Exc0106 Application To Remove Previously Granted Exemption(S Nyc Home Processor Exemption This will allow you to. If you plan to make foods such as certain baked goods, jellies or snack mixes, you may qualify for a home processor exemption. Which foods are subject to the new york cottage food law (ny home processor exemption)? If you plan to make foods such as certain baked goods, jellies, or snack mixes, you may. Nyc Home Processor Exemption.
From www.formsbirds.com
Certificate of Exemption from Withholding New York Free Download Nyc Home Processor Exemption If you plan to make foods such as certain baked goods, jellies or snack mixes, you may qualify for a home processor exemption. In order to protect public health and to minimize the potential of food product adulteration, this exemption is restricted to the following ‘approved’ non. If you're considering selling your baked goods, jellies, or snack mixes, you may. Nyc Home Processor Exemption.
From www.templateroller.com
Form 1503030851 Fill Out, Sign Online and Download Fillable PDF Nyc Home Processor Exemption This will allow you to. If you plan to make foods such as certain baked goods, jellies, or snack mixes, you may qualify for a home processor exemption. This will allow you to. In order to protect public health and to minimize the potential of food product adulteration, this exemption is restricted to the following ‘approved’ non. Which foods are. Nyc Home Processor Exemption.
From www.studocu.com
Tax Exemption Requirements and Process Certificate of Tax Exemption Nyc Home Processor Exemption This exemption allows you to prepare food in your own. In order to protect public health and to minimize the potential of food product adulteration, this exemption is restricted to the following ‘approved’ non. This will allow you to. If you plan to make foods such as certain baked goods, jellies or snack mixes, you may qualify for a home. Nyc Home Processor Exemption.
From www.ibntech.com
What Are Laws and Regulations That Change Payroll Processing? Nyc Home Processor Exemption If you plan to make foods such as certain baked goods, jellies or snack mixes, you may qualify for a home processor exemption. This will allow you to. In order to protect public health and to minimize the potential of food product adulteration, this exemption is restricted to the following ‘approved’ non. Which foods are subject to the new york. Nyc Home Processor Exemption.
From www.formsbank.com
Fillable Claim For Home Exemption printable pdf download Nyc Home Processor Exemption This exemption allows you to prepare food in your own. Which foods are subject to the new york cottage food law (ny home processor exemption)? This will allow you to. This will allow you to. If you plan to make foods such as certain baked goods, jellies or snack mixes, you may qualify for a home processor exemption. If you're. Nyc Home Processor Exemption.
From slidetodoc.com
New York State Department of Agriculture and Markets Nyc Home Processor Exemption This exemption allows you to prepare food in your own. In order to protect public health and to minimize the potential of food product adulteration, this exemption is restricted to the following ‘approved’ non. If you're considering selling your baked goods, jellies, or snack mixes, you may qualify for a home processor exemption in new york state. If you plan. Nyc Home Processor Exemption.
From www.templateroller.com
Form 1503030851 Fill Out, Sign Online and Download Fillable PDF Nyc Home Processor Exemption This exemption allows you to prepare food in your own. If you plan to make foods such as certain baked goods, jellies, or snack mixes, you may qualify for a home processor exemption. In order to protect public health and to minimize the potential of food product adulteration, this exemption is restricted to the following ‘approved’ non. This will allow. Nyc Home Processor Exemption.