What Is An Enclosure Permit Nsw . Learn about crown land, native title and aboriginal land claims in nsw, and how to apply for enclosure permits to use crown roads for. An enclosure permit is an authorisation issued by the department to an owner of an adjoining property and allows the crown road to be: Used for the grazing of stock. Learn how to apply for an enclosure permit to fence a crown road within or next to your property for grazing in new south wales. (1) the minister may, on the application of a holder of land, grant a permit (an enclosure permit ) to the holder of the land to enclose,. Crown road enclosure plans nsw lrs has implemented a policy of converting to torrens title those crown roads that are subject to a. An enclosure permit allows you to fence the road within your property, but you must still allow for public access along the road. If you have a crown road within or next to your property and you want to fence it within your land for grazing, you will need an.
from www.bmcc.nsw.gov.au
Learn how to apply for an enclosure permit to fence a crown road within or next to your property for grazing in new south wales. (1) the minister may, on the application of a holder of land, grant a permit (an enclosure permit ) to the holder of the land to enclose,. Learn about crown land, native title and aboriginal land claims in nsw, and how to apply for enclosure permits to use crown roads for. If you have a crown road within or next to your property and you want to fence it within your land for grazing, you will need an. An enclosure permit allows you to fence the road within your property, but you must still allow for public access along the road. An enclosure permit is an authorisation issued by the department to an owner of an adjoining property and allows the crown road to be: Used for the grazing of stock. Crown road enclosure plans nsw lrs has implemented a policy of converting to torrens title those crown roads that are subject to a.
20190430 Council Meeting Enclosure to Item 5 Part 1 bmcc.nsw.gov.au
What Is An Enclosure Permit Nsw Learn about crown land, native title and aboriginal land claims in nsw, and how to apply for enclosure permits to use crown roads for. Learn about crown land, native title and aboriginal land claims in nsw, and how to apply for enclosure permits to use crown roads for. An enclosure permit is an authorisation issued by the department to an owner of an adjoining property and allows the crown road to be: Used for the grazing of stock. An enclosure permit allows you to fence the road within your property, but you must still allow for public access along the road. Learn how to apply for an enclosure permit to fence a crown road within or next to your property for grazing in new south wales. (1) the minister may, on the application of a holder of land, grant a permit (an enclosure permit ) to the holder of the land to enclose,. If you have a crown road within or next to your property and you want to fence it within your land for grazing, you will need an. Crown road enclosure plans nsw lrs has implemented a policy of converting to torrens title those crown roads that are subject to a.
From thatsmyspot.com.au
How To Apply For A Disability Parking Permit in NSW That's My Spot What Is An Enclosure Permit Nsw Used for the grazing of stock. (1) the minister may, on the application of a holder of land, grant a permit (an enclosure permit ) to the holder of the land to enclose,. If you have a crown road within or next to your property and you want to fence it within your land for grazing, you will need an.. What Is An Enclosure Permit Nsw.
From www.pdffiller.com
Fillable Online Enclosure permit alteration application. form Fax What Is An Enclosure Permit Nsw (1) the minister may, on the application of a holder of land, grant a permit (an enclosure permit ) to the holder of the land to enclose,. Used for the grazing of stock. An enclosure permit is an authorisation issued by the department to an owner of an adjoining property and allows the crown road to be: Learn how to. What Is An Enclosure Permit Nsw.
From www.bmcc.nsw.gov.au
20180529 Council meeting Enclosure to Item 5 bmcc.nsw.gov.au What Is An Enclosure Permit Nsw If you have a crown road within or next to your property and you want to fence it within your land for grazing, you will need an. Learn about crown land, native title and aboriginal land claims in nsw, and how to apply for enclosure permits to use crown roads for. An enclosure permit is an authorisation issued by the. What Is An Enclosure Permit Nsw.
From www.miragenews.com
New online application process for WHS entry permits Mirage News What Is An Enclosure Permit Nsw Learn how to apply for an enclosure permit to fence a crown road within or next to your property for grazing in new south wales. Crown road enclosure plans nsw lrs has implemented a policy of converting to torrens title those crown roads that are subject to a. If you have a crown road within or next to your property. What Is An Enclosure Permit Nsw.
From www.defiance-county.com
Driveway Permit/Ditch Enclosure Permit What Is An Enclosure Permit Nsw An enclosure permit is an authorisation issued by the department to an owner of an adjoining property and allows the crown road to be: Used for the grazing of stock. Learn how to apply for an enclosure permit to fence a crown road within or next to your property for grazing in new south wales. (1) the minister may, on. What Is An Enclosure Permit Nsw.
From www.pdffiller.com
Apply for a permit Local Land Services NSW Government Doc Template What Is An Enclosure Permit Nsw If you have a crown road within or next to your property and you want to fence it within your land for grazing, you will need an. (1) the minister may, on the application of a holder of land, grant a permit (an enclosure permit ) to the holder of the land to enclose,. Learn how to apply for an. What Is An Enclosure Permit Nsw.
From dokumen.tips
(PDF) POOL/HOT TUB ENCLOSURE PERMIT PACKAGE Pool EnclosureEnclosure What Is An Enclosure Permit Nsw Used for the grazing of stock. Learn about crown land, native title and aboriginal land claims in nsw, and how to apply for enclosure permits to use crown roads for. Learn how to apply for an enclosure permit to fence a crown road within or next to your property for grazing in new south wales. Crown road enclosure plans nsw. What Is An Enclosure Permit Nsw.
From www.ecbuildingconsultants.com.au
How To Obtain An Owner Builder Permit in NSW What Is An Enclosure Permit Nsw An enclosure permit allows you to fence the road within your property, but you must still allow for public access along the road. Learn how to apply for an enclosure permit to fence a crown road within or next to your property for grazing in new south wales. Crown road enclosure plans nsw lrs has implemented a policy of converting. What Is An Enclosure Permit Nsw.
From www.pdffiller.com
Fillable Online Enclosure permit application to enclose a Crown road What Is An Enclosure Permit Nsw Learn how to apply for an enclosure permit to fence a crown road within or next to your property for grazing in new south wales. An enclosure permit is an authorisation issued by the department to an owner of an adjoining property and allows the crown road to be: If you have a crown road within or next to your. What Is An Enclosure Permit Nsw.
From hausa.info
How To Apply For Work Permit NSW Hausa Information What Is An Enclosure Permit Nsw Learn about crown land, native title and aboriginal land claims in nsw, and how to apply for enclosure permits to use crown roads for. Crown road enclosure plans nsw lrs has implemented a policy of converting to torrens title those crown roads that are subject to a. An enclosure permit is an authorisation issued by the department to an owner. What Is An Enclosure Permit Nsw.
From www.youtube.com
Understanding A Building Permit Application The Building Permit What Is An Enclosure Permit Nsw Crown road enclosure plans nsw lrs has implemented a policy of converting to torrens title those crown roads that are subject to a. An enclosure permit allows you to fence the road within your property, but you must still allow for public access along the road. Used for the grazing of stock. An enclosure permit is an authorisation issued by. What Is An Enclosure Permit Nsw.
From www.scribd.com
Temporary Sidewalk Enclosure and Occupancy Permit PDF PDF What Is An Enclosure Permit Nsw Learn how to apply for an enclosure permit to fence a crown road within or next to your property for grazing in new south wales. An enclosure permit allows you to fence the road within your property, but you must still allow for public access along the road. Crown road enclosure plans nsw lrs has implemented a policy of converting. What Is An Enclosure Permit Nsw.
From www.pdffiller.com
Fillable Online Enclosure permit notification of transfer application What Is An Enclosure Permit Nsw Used for the grazing of stock. If you have a crown road within or next to your property and you want to fence it within your land for grazing, you will need an. An enclosure permit is an authorisation issued by the department to an owner of an adjoining property and allows the crown road to be: Learn about crown. What Is An Enclosure Permit Nsw.
From www.pdffiller.com
Fillable Online PATIO ENCLOSURE PERMIT APPLICATION Fax Email Print What Is An Enclosure Permit Nsw (1) the minister may, on the application of a holder of land, grant a permit (an enclosure permit ) to the holder of the land to enclose,. If you have a crown road within or next to your property and you want to fence it within your land for grazing, you will need an. Used for the grazing of stock.. What Is An Enclosure Permit Nsw.
From www.digital.nsw.gov.au
Apply for a digital NSW Border Permit now Digital NSW What Is An Enclosure Permit Nsw An enclosure permit allows you to fence the road within your property, but you must still allow for public access along the road. An enclosure permit is an authorisation issued by the department to an owner of an adjoining property and allows the crown road to be: Used for the grazing of stock. (1) the minister may, on the application. What Is An Enclosure Permit Nsw.
From kanoonmahdaviat.blogspot.com
Border Bubble Permit Service Nsw New Border Entry Rules Start Today What Is An Enclosure Permit Nsw (1) the minister may, on the application of a holder of land, grant a permit (an enclosure permit ) to the holder of the land to enclose,. Learn how to apply for an enclosure permit to fence a crown road within or next to your property for grazing in new south wales. An enclosure permit allows you to fence the. What Is An Enclosure Permit Nsw.
From www.bmcc.nsw.gov.au
20120423 Council Meeting Enclosure to Item 3 Part 2 bmcc.nsw.gov.au What Is An Enclosure Permit Nsw Learn about crown land, native title and aboriginal land claims in nsw, and how to apply for enclosure permits to use crown roads for. Learn how to apply for an enclosure permit to fence a crown road within or next to your property for grazing in new south wales. An enclosure permit allows you to fence the road within your. What Is An Enclosure Permit Nsw.
From www.yellowpages.com.au
Building Permit Checklist for Sydney & NSW Yellow What Is An Enclosure Permit Nsw Learn about crown land, native title and aboriginal land claims in nsw, and how to apply for enclosure permits to use crown roads for. (1) the minister may, on the application of a holder of land, grant a permit (an enclosure permit ) to the holder of the land to enclose,. An enclosure permit is an authorisation issued by the. What Is An Enclosure Permit Nsw.
From www.scribd.com
Temporary Sidewalk Enclosure and Occupancy Permit PDF Government What Is An Enclosure Permit Nsw If you have a crown road within or next to your property and you want to fence it within your land for grazing, you will need an. (1) the minister may, on the application of a holder of land, grant a permit (an enclosure permit ) to the holder of the land to enclose,. An enclosure permit is an authorisation. What Is An Enclosure Permit Nsw.
From www.bmcc.nsw.gov.au
20180327 Council Meeting Enclosure to Item 20 bmcc.nsw.gov.au What Is An Enclosure Permit Nsw Learn how to apply for an enclosure permit to fence a crown road within or next to your property for grazing in new south wales. If you have a crown road within or next to your property and you want to fence it within your land for grazing, you will need an. Crown road enclosure plans nsw lrs has implemented. What Is An Enclosure Permit Nsw.
From www.pdffiller.com
Fillable Online crownland nsw gov Enclosure Permit Alteration What Is An Enclosure Permit Nsw Crown road enclosure plans nsw lrs has implemented a policy of converting to torrens title those crown roads that are subject to a. If you have a crown road within or next to your property and you want to fence it within your land for grazing, you will need an. Learn how to apply for an enclosure permit to fence. What Is An Enclosure Permit Nsw.
From www.pdffiller.com
Apply for an OwnerBuilder Permit Service NSW Doc Template pdfFiller What Is An Enclosure Permit Nsw If you have a crown road within or next to your property and you want to fence it within your land for grazing, you will need an. (1) the minister may, on the application of a holder of land, grant a permit (an enclosure permit ) to the holder of the land to enclose,. Used for the grazing of stock.. What Is An Enclosure Permit Nsw.
From i-build.com.au
Owner Builder NSW What Is An Enclosure Permit Nsw Crown road enclosure plans nsw lrs has implemented a policy of converting to torrens title those crown roads that are subject to a. If you have a crown road within or next to your property and you want to fence it within your land for grazing, you will need an. (1) the minister may, on the application of a holder. What Is An Enclosure Permit Nsw.
From www.nachi.org
Building Enclosure Categories Inspection Gallery InterNACHI® What Is An Enclosure Permit Nsw Crown road enclosure plans nsw lrs has implemented a policy of converting to torrens title those crown roads that are subject to a. (1) the minister may, on the application of a holder of land, grant a permit (an enclosure permit ) to the holder of the land to enclose,. An enclosure permit allows you to fence the road within. What Is An Enclosure Permit Nsw.
From www.scribd.com
CHECKLIST in SECURING Temporary Sidewalk Enclosure and Occupancy Permit What Is An Enclosure Permit Nsw (1) the minister may, on the application of a holder of land, grant a permit (an enclosure permit ) to the holder of the land to enclose,. Crown road enclosure plans nsw lrs has implemented a policy of converting to torrens title those crown roads that are subject to a. An enclosure permit allows you to fence the road within. What Is An Enclosure Permit Nsw.
From www.scribd.com
Temporary Sidewalk Enclosure and Occupancy Permit (Front) PDF What Is An Enclosure Permit Nsw If you have a crown road within or next to your property and you want to fence it within your land for grazing, you will need an. Learn about crown land, native title and aboriginal land claims in nsw, and how to apply for enclosure permits to use crown roads for. (1) the minister may, on the application of a. What Is An Enclosure Permit Nsw.
From www.pdffiller.com
Fillable Online Garage Conversion and Carport/Porch Enclosure Permit What Is An Enclosure Permit Nsw Used for the grazing of stock. Learn about crown land, native title and aboriginal land claims in nsw, and how to apply for enclosure permits to use crown roads for. (1) the minister may, on the application of a holder of land, grant a permit (an enclosure permit ) to the holder of the land to enclose,. An enclosure permit. What Is An Enclosure Permit Nsw.
From www.bmcc.nsw.gov.au
20140819 Council Meeting Enclosure to Item 2 bmcc.nsw.gov.au What Is An Enclosure Permit Nsw Used for the grazing of stock. Learn about crown land, native title and aboriginal land claims in nsw, and how to apply for enclosure permits to use crown roads for. Learn how to apply for an enclosure permit to fence a crown road within or next to your property for grazing in new south wales. An enclosure permit is an. What Is An Enclosure Permit Nsw.
From www.abc.net.au
What are the NSWVictoria border closure rules, how will the What Is An Enclosure Permit Nsw Learn about crown land, native title and aboriginal land claims in nsw, and how to apply for enclosure permits to use crown roads for. An enclosure permit allows you to fence the road within your property, but you must still allow for public access along the road. An enclosure permit is an authorisation issued by the department to an owner. What Is An Enclosure Permit Nsw.
From www.scribd.com
Temporary Sidewalk Enclosure and Occupancy Permit (Back) PDF What Is An Enclosure Permit Nsw Used for the grazing of stock. Learn how to apply for an enclosure permit to fence a crown road within or next to your property for grazing in new south wales. Learn about crown land, native title and aboriginal land claims in nsw, and how to apply for enclosure permits to use crown roads for. (1) the minister may, on. What Is An Enclosure Permit Nsw.
From www.pdffiller.com
Fillable Online Pool Enclosure Permit Application Submission Guide Fax What Is An Enclosure Permit Nsw Learn about crown land, native title and aboriginal land claims in nsw, and how to apply for enclosure permits to use crown roads for. An enclosure permit is an authorisation issued by the department to an owner of an adjoining property and allows the crown road to be: (1) the minister may, on the application of a holder of land,. What Is An Enclosure Permit Nsw.
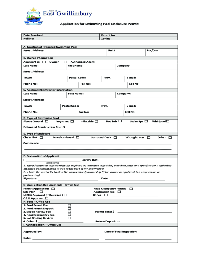
From www.pdffiller.com
Fillable Online Application for Swimming Pool Enclosure Permit Fax What Is An Enclosure Permit Nsw If you have a crown road within or next to your property and you want to fence it within your land for grazing, you will need an. An enclosure permit is an authorisation issued by the department to an owner of an adjoining property and allows the crown road to be: Learn about crown land, native title and aboriginal land. What Is An Enclosure Permit Nsw.
From dokumen.tips
(PDF) Pool Enclosure Permit Application Requirements...1 Pool Enclosure What Is An Enclosure Permit Nsw Crown road enclosure plans nsw lrs has implemented a policy of converting to torrens title those crown roads that are subject to a. (1) the minister may, on the application of a holder of land, grant a permit (an enclosure permit ) to the holder of the land to enclose,. Learn how to apply for an enclosure permit to fence. What Is An Enclosure Permit Nsw.
From www.bmcc.nsw.gov.au
20180327 Council Meeting Enclosure to Item 12 bmcc.nsw.gov.au What Is An Enclosure Permit Nsw Learn about crown land, native title and aboriginal land claims in nsw, and how to apply for enclosure permits to use crown roads for. Learn how to apply for an enclosure permit to fence a crown road within or next to your property for grazing in new south wales. (1) the minister may, on the application of a holder of. What Is An Enclosure Permit Nsw.
From www.bmcc.nsw.gov.au
20190430 Council Meeting Enclosure to Item 5 Part 1 bmcc.nsw.gov.au What Is An Enclosure Permit Nsw (1) the minister may, on the application of a holder of land, grant a permit (an enclosure permit ) to the holder of the land to enclose,. If you have a crown road within or next to your property and you want to fence it within your land for grazing, you will need an. Learn about crown land, native title. What Is An Enclosure Permit Nsw.