Ku Ring Gai Council Dog Registration . You will need a permit to own a dog that is either: Your companion animal must be. It’s important to ensure your pet’s microchip details are up to date. The form can be found on the council’s website. A dog can be declared as. Some tips if you are thinking of owning a dog, cat or. The nsw government will increase pet. Just a reminder that you can save on registration fees for your pet dog or cat by registering before 30 june. Registration is a separate process to microchipping and must be done by filling in some paperwork and paying for lifetime registration. If the dog and owner cannot be identified or the owner cannot be contacted or the dog cannot be resecured on its property, it will be delivered to. A restricted breed aged over six months. Registration fees from 1 july 2024.
from nybreaking.com
Your companion animal must be. If the dog and owner cannot be identified or the owner cannot be contacted or the dog cannot be resecured on its property, it will be delivered to. You will need a permit to own a dog that is either: The nsw government will increase pet. A dog can be declared as. A restricted breed aged over six months. Some tips if you are thinking of owning a dog, cat or. It’s important to ensure your pet’s microchip details are up to date. Registration is a separate process to microchipping and must be done by filling in some paperwork and paying for lifetime registration. Just a reminder that you can save on registration fees for your pet dog or cat by registering before 30 june.
Neighbour's Angry Note About Barking Dog In Kuringgai Council Area Divides Opinion On Facebook
Ku Ring Gai Council Dog Registration It’s important to ensure your pet’s microchip details are up to date. Registration is a separate process to microchipping and must be done by filling in some paperwork and paying for lifetime registration. You will need a permit to own a dog that is either: Registration fees from 1 july 2024. Just a reminder that you can save on registration fees for your pet dog or cat by registering before 30 june. Your companion animal must be. The form can be found on the council’s website. Some tips if you are thinking of owning a dog, cat or. If the dog and owner cannot be identified or the owner cannot be contacted or the dog cannot be resecured on its property, it will be delivered to. A restricted breed aged over six months. It’s important to ensure your pet’s microchip details are up to date. The nsw government will increase pet. A dog can be declared as.
From www.yumpu.com
ESL Resource Kit (pdf. 2MB) Kuringgai Council Ku Ring Gai Council Dog Registration Just a reminder that you can save on registration fees for your pet dog or cat by registering before 30 june. A dog can be declared as. Some tips if you are thinking of owning a dog, cat or. Your companion animal must be. You will need a permit to own a dog that is either: Registration is a separate. Ku Ring Gai Council Dog Registration.
From councilmagazine.com.au
Over 1M awarded for Kuringgai boardwalk Council Ku Ring Gai Council Dog Registration Just a reminder that you can save on registration fees for your pet dog or cat by registering before 30 june. If the dog and owner cannot be identified or the owner cannot be contacted or the dog cannot be resecured on its property, it will be delivered to. It’s important to ensure your pet’s microchip details are up to. Ku Ring Gai Council Dog Registration.
From www.yumpu.com
Heritage Data Form Kuringgai Council Ku Ring Gai Council Dog Registration A dog can be declared as. The form can be found on the council’s website. The nsw government will increase pet. It’s important to ensure your pet’s microchip details are up to date. If the dog and owner cannot be identified or the owner cannot be contacted or the dog cannot be resecured on its property, it will be delivered. Ku Ring Gai Council Dog Registration.
From www.australiandoglover.com
Kuringgai Council Dogs Day Out April 10 Australian Dog Lover Ku Ring Gai Council Dog Registration A restricted breed aged over six months. If the dog and owner cannot be identified or the owner cannot be contacted or the dog cannot be resecured on its property, it will be delivered to. Some tips if you are thinking of owning a dog, cat or. Your companion animal must be. Registration is a separate process to microchipping and. Ku Ring Gai Council Dog Registration.
From www.pinterest.com.au
Kuringgai Council Dogs Day Out April 10 Ku Ring Gai Council Dog Registration A restricted breed aged over six months. Your companion animal must be. The nsw government will increase pet. Registration is a separate process to microchipping and must be done by filling in some paperwork and paying for lifetime registration. The form can be found on the council’s website. A dog can be declared as. It’s important to ensure your pet’s. Ku Ring Gai Council Dog Registration.
From www.krg.nsw.gov.au
Education Net Zero Kuringgai Ku Ring Gai Council Dog Registration Registration is a separate process to microchipping and must be done by filling in some paperwork and paying for lifetime registration. A dog can be declared as. Your companion animal must be. Just a reminder that you can save on registration fees for your pet dog or cat by registering before 30 june. You will need a permit to own. Ku Ring Gai Council Dog Registration.
From smsco.com.au
KURINGGAI COUNCIL WILDFLOWER GARDEN Singleton Moore Signs Ku Ring Gai Council Dog Registration It’s important to ensure your pet’s microchip details are up to date. If the dog and owner cannot be identified or the owner cannot be contacted or the dog cannot be resecured on its property, it will be delivered to. The nsw government will increase pet. Your companion animal must be. Registration is a separate process to microchipping and must. Ku Ring Gai Council Dog Registration.
From fromzoomy.blogspot.com
Kuringgai Council Dogs Day Out March 26 Ku Ring Gai Council Dog Registration Registration fees from 1 july 2024. It’s important to ensure your pet’s microchip details are up to date. The nsw government will increase pet. You will need a permit to own a dog that is either: A dog can be declared as. The form can be found on the council’s website. Some tips if you are thinking of owning a. Ku Ring Gai Council Dog Registration.
From www.yumpu.com
NSW State Heritage Inventory form Kuringgai Council Ku Ring Gai Council Dog Registration If the dog and owner cannot be identified or the owner cannot be contacted or the dog cannot be resecured on its property, it will be delivered to. Your companion animal must be. A restricted breed aged over six months. Some tips if you are thinking of owning a dog, cat or. A dog can be declared as. Just a. Ku Ring Gai Council Dog Registration.
From nybreaking.com
Neighbour's Angry Note About Barking Dog In Kuringgai Council Area Divides Opinion On Facebook Ku Ring Gai Council Dog Registration The form can be found on the council’s website. If the dog and owner cannot be identified or the owner cannot be contacted or the dog cannot be resecured on its property, it will be delivered to. A dog can be declared as. Some tips if you are thinking of owning a dog, cat or. You will need a permit. Ku Ring Gai Council Dog Registration.
From www.facebook.com
Pick up your free vintage road... Kuringgai Council Ku Ring Gai Council Dog Registration Just a reminder that you can save on registration fees for your pet dog or cat by registering before 30 june. A restricted breed aged over six months. Registration is a separate process to microchipping and must be done by filling in some paperwork and paying for lifetime registration. The nsw government will increase pet. Registration fees from 1 july. Ku Ring Gai Council Dog Registration.
From www.yumpu.com
Annual Report 2009 2010 (pdf. 6MB) Kuringgai Council NSW Ku Ring Gai Council Dog Registration Your companion animal must be. A restricted breed aged over six months. Just a reminder that you can save on registration fees for your pet dog or cat by registering before 30 june. The form can be found on the council’s website. Registration fees from 1 july 2024. Registration is a separate process to microchipping and must be done by. Ku Ring Gai Council Dog Registration.
From www.australiandoglover.com
Kuringgai Council Dogs Day Out March 26 Australian Dog Lover Ku Ring Gai Council Dog Registration Just a reminder that you can save on registration fees for your pet dog or cat by registering before 30 june. Some tips if you are thinking of owning a dog, cat or. Your companion animal must be. A restricted breed aged over six months. If the dog and owner cannot be identified or the owner cannot be contacted or. Ku Ring Gai Council Dog Registration.
From www.krg.nsw.gov.au
Kuringgai tree canopy levels in the spotlight Kuringgai Ku Ring Gai Council Dog Registration You will need a permit to own a dog that is either: The form can be found on the council’s website. Registration fees from 1 july 2024. The nsw government will increase pet. A dog can be declared as. It’s important to ensure your pet’s microchip details are up to date. Registration is a separate process to microchipping and must. Ku Ring Gai Council Dog Registration.
From safestart.com
Kuringgai Council SafeStart Ku Ring Gai Council Dog Registration The form can be found on the council’s website. You will need a permit to own a dog that is either: If the dog and owner cannot be identified or the owner cannot be contacted or the dog cannot be resecured on its property, it will be delivered to. A restricted breed aged over six months. Registration fees from 1. Ku Ring Gai Council Dog Registration.
From fromzoomy.blogspot.com
Kuringgai Council Dogs Day Out March 26 Ku Ring Gai Council Dog Registration Registration is a separate process to microchipping and must be done by filling in some paperwork and paying for lifetime registration. The nsw government will increase pet. If the dog and owner cannot be identified or the owner cannot be contacted or the dog cannot be resecured on its property, it will be delivered to. The form can be found. Ku Ring Gai Council Dog Registration.
From sydneyobserver.com.au
Local News from Kuringgai Council Sydney Observer Ku Ring Gai Council Dog Registration If the dog and owner cannot be identified or the owner cannot be contacted or the dog cannot be resecured on its property, it will be delivered to. A restricted breed aged over six months. You will need a permit to own a dog that is either: The nsw government will increase pet. The form can be found on the. Ku Ring Gai Council Dog Registration.
From smsco.com.au
KURINGGAI COUNCIL WILDFLOWER GARDEN Singleton Moore Signs Ku Ring Gai Council Dog Registration The nsw government will increase pet. If the dog and owner cannot be identified or the owner cannot be contacted or the dog cannot be resecured on its property, it will be delivered to. Your companion animal must be. Some tips if you are thinking of owning a dog, cat or. It’s important to ensure your pet’s microchip details are. Ku Ring Gai Council Dog Registration.
From good-design.org
Kuringgai Council — Designing Green Behaviour Good Design Ku Ring Gai Council Dog Registration It’s important to ensure your pet’s microchip details are up to date. The form can be found on the council’s website. You will need a permit to own a dog that is either: Your companion animal must be. A restricted breed aged over six months. If the dog and owner cannot be identified or the owner cannot be contacted or. Ku Ring Gai Council Dog Registration.
From good-design.org
Kuringgai Council — Designing Green Behaviour Good Design Ku Ring Gai Council Dog Registration Your companion animal must be. Registration fees from 1 july 2024. Just a reminder that you can save on registration fees for your pet dog or cat by registering before 30 june. A dog can be declared as. If the dog and owner cannot be identified or the owner cannot be contacted or the dog cannot be resecured on its. Ku Ring Gai Council Dog Registration.
From www.pdffiller.com
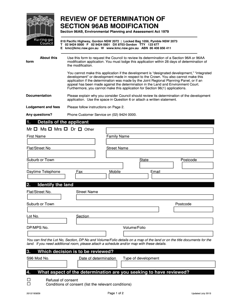
Fillable Online Section 96AB form July 2013 Kuringgai Council Fax Email Print pdfFiller Ku Ring Gai Council Dog Registration The form can be found on the council’s website. Just a reminder that you can save on registration fees for your pet dog or cat by registering before 30 june. It’s important to ensure your pet’s microchip details are up to date. A dog can be declared as. Registration is a separate process to microchipping and must be done by. Ku Ring Gai Council Dog Registration.
From good-design.org
Kuringgai Council — Designing Green Behaviour Good Design Ku Ring Gai Council Dog Registration The form can be found on the council’s website. You will need a permit to own a dog that is either: It’s important to ensure your pet’s microchip details are up to date. Registration fees from 1 july 2024. Just a reminder that you can save on registration fees for your pet dog or cat by registering before 30 june.. Ku Ring Gai Council Dog Registration.
From ourkas.com.au
KuRingGai Art Society Ku Ring Gai Council Dog Registration Just a reminder that you can save on registration fees for your pet dog or cat by registering before 30 june. Registration fees from 1 july 2024. Your companion animal must be. Registration is a separate process to microchipping and must be done by filling in some paperwork and paying for lifetime registration. If the dog and owner cannot be. Ku Ring Gai Council Dog Registration.
From www.yumpu.com
pdf. 4MB Kuringgai Council Ku Ring Gai Council Dog Registration Just a reminder that you can save on registration fees for your pet dog or cat by registering before 30 june. It’s important to ensure your pet’s microchip details are up to date. The form can be found on the council’s website. The nsw government will increase pet. Some tips if you are thinking of owning a dog, cat or.. Ku Ring Gai Council Dog Registration.
From profile.id.com.au
Kuringgai Council area What is profile.id Ku Ring Gai Council Dog Registration Some tips if you are thinking of owning a dog, cat or. A dog can be declared as. Registration fees from 1 july 2024. Just a reminder that you can save on registration fees for your pet dog or cat by registering before 30 june. Registration is a separate process to microchipping and must be done by filling in some. Ku Ring Gai Council Dog Registration.
From www.australiandoglover.com
Kuringgai Council Dogs Day Out April 10 Australian Dog Lover Ku Ring Gai Council Dog Registration A restricted breed aged over six months. The nsw government will increase pet. Registration fees from 1 july 2024. Some tips if you are thinking of owning a dog, cat or. The form can be found on the council’s website. You will need a permit to own a dog that is either: If the dog and owner cannot be identified. Ku Ring Gai Council Dog Registration.
From www.krg.nsw.gov.au
Why work at Kuringgai Council? Kuringgai Ku Ring Gai Council Dog Registration Some tips if you are thinking of owning a dog, cat or. A restricted breed aged over six months. Just a reminder that you can save on registration fees for your pet dog or cat by registering before 30 june. You will need a permit to own a dog that is either: If the dog and owner cannot be identified. Ku Ring Gai Council Dog Registration.
From kuringgailiving.com.au
Meet Your New Look Kuringgai Council Kuringgai Living Ku Ring Gai Council Dog Registration The form can be found on the council’s website. A restricted breed aged over six months. Registration fees from 1 july 2024. You will need a permit to own a dog that is either: Your companion animal must be. The nsw government will increase pet. Some tips if you are thinking of owning a dog, cat or. Just a reminder. Ku Ring Gai Council Dog Registration.
From smsco.com.au
KURINGGAI COUNCIL WILDFLOWER GARDEN Singleton Moore Signs Ku Ring Gai Council Dog Registration A restricted breed aged over six months. Registration is a separate process to microchipping and must be done by filling in some paperwork and paying for lifetime registration. Some tips if you are thinking of owning a dog, cat or. Your companion animal must be. A dog can be declared as. It’s important to ensure your pet’s microchip details are. Ku Ring Gai Council Dog Registration.
From www.krg.nsw.gov.au
Kuringgai Council wins two awards Kuringgai Ku Ring Gai Council Dog Registration Your companion animal must be. Just a reminder that you can save on registration fees for your pet dog or cat by registering before 30 june. The nsw government will increase pet. The form can be found on the council’s website. Registration fees from 1 july 2024. Some tips if you are thinking of owning a dog, cat or. A. Ku Ring Gai Council Dog Registration.
From www.dailytelegraph.com.au
Kuringgai Council’s annual Dogs Day Out to inspire rockstar costumes for pets and their pals Ku Ring Gai Council Dog Registration A restricted breed aged over six months. Your companion animal must be. It’s important to ensure your pet’s microchip details are up to date. Registration fees from 1 july 2024. Some tips if you are thinking of owning a dog, cat or. Just a reminder that you can save on registration fees for your pet dog or cat by registering. Ku Ring Gai Council Dog Registration.
From www.facebook.com
Kuringgai Council Sydney NSW Ku Ring Gai Council Dog Registration The form can be found on the council’s website. The nsw government will increase pet. Just a reminder that you can save on registration fees for your pet dog or cat by registering before 30 june. It’s important to ensure your pet’s microchip details are up to date. Your companion animal must be. A restricted breed aged over six months.. Ku Ring Gai Council Dog Registration.
From www.australiandoglover.com
Kuringgai Council Dogs Day Out April 10 Australian Dog Lover Ku Ring Gai Council Dog Registration If the dog and owner cannot be identified or the owner cannot be contacted or the dog cannot be resecured on its property, it will be delivered to. You will need a permit to own a dog that is either: The form can be found on the council’s website. Registration fees from 1 july 2024. Some tips if you are. Ku Ring Gai Council Dog Registration.
From issuu.com
Kuringgai Update July 2015 by Kuringgai Council Issuu Ku Ring Gai Council Dog Registration If the dog and owner cannot be identified or the owner cannot be contacted or the dog cannot be resecured on its property, it will be delivered to. It’s important to ensure your pet’s microchip details are up to date. Some tips if you are thinking of owning a dog, cat or. Your companion animal must be. The nsw government. Ku Ring Gai Council Dog Registration.
From www.yumpu.com
Fees and charges 20122013 Kuringgai Council NSW Ku Ring Gai Council Dog Registration Registration fees from 1 july 2024. A restricted breed aged over six months. You will need a permit to own a dog that is either: Your companion animal must be. Just a reminder that you can save on registration fees for your pet dog or cat by registering before 30 june. Some tips if you are thinking of owning a. Ku Ring Gai Council Dog Registration.