Nash County Planning Board Meeting . Presented an update on the draft nash county land use plan. nash county planning board regular meeting held monday, july 17, 2023 at 6:30 p.m. the school board sets policy for the school system implemented by the superintendent and administrative staff. nash county planning board regular meeting held monday, may 16, 2022 at 6:30 p.m. public comments are scheduled at each regular meeting. Nash county agriculture center conference. the nash county planning board meets regularly on the third monday of the month at 6:30 p.m. Minutes for each meeting since. To be eligible to speak, speakers must sign up. senior planner allison evans with stewart, inc. nash soil & water conservation board meeting monday, may 1, 2017 6:00 p.m. the board meets at the board of elections office at 1006 eastern avenue, room 109 in nashville. In the commissioners room on.
from selectnashnc.com
To be eligible to speak, speakers must sign up. nash soil & water conservation board meeting monday, may 1, 2017 6:00 p.m. Minutes for each meeting since. the school board sets policy for the school system implemented by the superintendent and administrative staff. nash county planning board regular meeting held monday, july 17, 2023 at 6:30 p.m. In the commissioners room on. the nash county planning board meets regularly on the third monday of the month at 6:30 p.m. senior planner allison evans with stewart, inc. public comments are scheduled at each regular meeting. Presented an update on the draft nash county land use plan.
Nash County Establishes Economic Development Alliance Nash County
Nash County Planning Board Meeting nash county planning board regular meeting held monday, july 17, 2023 at 6:30 p.m. public comments are scheduled at each regular meeting. In the commissioners room on. the school board sets policy for the school system implemented by the superintendent and administrative staff. Minutes for each meeting since. nash county planning board regular meeting held monday, july 17, 2023 at 6:30 p.m. nash county planning board regular meeting held monday, may 16, 2022 at 6:30 p.m. the nash county planning board meets regularly on the third monday of the month at 6:30 p.m. the board meets at the board of elections office at 1006 eastern avenue, room 109 in nashville. senior planner allison evans with stewart, inc. To be eligible to speak, speakers must sign up. Nash county agriculture center conference. nash soil & water conservation board meeting monday, may 1, 2017 6:00 p.m. Presented an update on the draft nash county land use plan.
From www.rockymounttelegram.com
Officials tour Nash County industrial sites Local News Nash County Planning Board Meeting nash soil & water conservation board meeting monday, may 1, 2017 6:00 p.m. the nash county planning board meets regularly on the third monday of the month at 6:30 p.m. Minutes for each meeting since. public comments are scheduled at each regular meeting. nash county planning board regular meeting held monday, may 16, 2022 at 6:30. Nash County Planning Board Meeting.
From www.rockymounttelegram.com
Nash board meetings set to be broadcast live Local News Nash County Planning Board Meeting To be eligible to speak, speakers must sign up. nash county planning board regular meeting held monday, july 17, 2023 at 6:30 p.m. Nash county agriculture center conference. nash soil & water conservation board meeting monday, may 1, 2017 6:00 p.m. Minutes for each meeting since. the school board sets policy for the school system implemented by. Nash County Planning Board Meeting.
From www.l-a-k-e.org
Site plan, in Nash County Planning Board agendas and minutes, by John S Nash County Planning Board Meeting the nash county planning board meets regularly on the third monday of the month at 6:30 p.m. the school board sets policy for the school system implemented by the superintendent and administrative staff. Nash county agriculture center conference. nash county planning board regular meeting held monday, july 17, 2023 at 6:30 p.m. nash county planning board. Nash County Planning Board Meeting.
From www.ncpschools.net
NCPS Board of Education Meetings Nash County Public Schools Nash County Planning Board Meeting nash soil & water conservation board meeting monday, may 1, 2017 6:00 p.m. the board meets at the board of elections office at 1006 eastern avenue, room 109 in nashville. the school board sets policy for the school system implemented by the superintendent and administrative staff. senior planner allison evans with stewart, inc. Presented an update. Nash County Planning Board Meeting.
From www.youtube.com
Pitt County Planning Board meeting for 1/16/2013 YouTube Nash County Planning Board Meeting nash county planning board regular meeting held monday, may 16, 2022 at 6:30 p.m. the board meets at the board of elections office at 1006 eastern avenue, room 109 in nashville. senior planner allison evans with stewart, inc. To be eligible to speak, speakers must sign up. In the commissioners room on. nash soil & water. Nash County Planning Board Meeting.
From www.l-a-k-e.org
CU130901 (Conditional Use Permit Request), in Nash County Planning Nash County Planning Board Meeting Nash county agriculture center conference. nash county planning board regular meeting held monday, july 17, 2023 at 6:30 p.m. nash soil & water conservation board meeting monday, may 1, 2017 6:00 p.m. Presented an update on the draft nash county land use plan. To be eligible to speak, speakers must sign up. the nash county planning board. Nash County Planning Board Meeting.
From www.l-a-k-e.org
Map, in Nash County Planning Board agendas and minutes, by John S Nash County Planning Board Meeting the board meets at the board of elections office at 1006 eastern avenue, room 109 in nashville. Presented an update on the draft nash county land use plan. In the commissioners room on. senior planner allison evans with stewart, inc. nash county planning board regular meeting held monday, may 16, 2022 at 6:30 p.m. the nash. Nash County Planning Board Meeting.
From www.youtube.com
April 18, 2023 Johnston County Planning Board Meeting YouTube Nash County Planning Board Meeting In the commissioners room on. Nash county agriculture center conference. the board meets at the board of elections office at 1006 eastern avenue, room 109 in nashville. the nash county planning board meets regularly on the third monday of the month at 6:30 p.m. nash county planning board regular meeting held monday, july 17, 2023 at 6:30. Nash County Planning Board Meeting.
From www.youtube.com
January 2015 Rockingham County Planning Board Meeting YouTube Nash County Planning Board Meeting the school board sets policy for the school system implemented by the superintendent and administrative staff. the board meets at the board of elections office at 1006 eastern avenue, room 109 in nashville. senior planner allison evans with stewart, inc. Minutes for each meeting since. Presented an update on the draft nash county land use plan. In. Nash County Planning Board Meeting.
From www.l-a-k-e.org
Front and side view schematics, in Nash County Planning Board agendas Nash County Planning Board Meeting the nash county planning board meets regularly on the third monday of the month at 6:30 p.m. In the commissioners room on. public comments are scheduled at each regular meeting. To be eligible to speak, speakers must sign up. Presented an update on the draft nash county land use plan. Nash county agriculture center conference. nash soil. Nash County Planning Board Meeting.
From www.l-a-k-e.org
Minutes, in Nash County Planning Board agendas and minutes, by John S Nash County Planning Board Meeting nash county planning board regular meeting held monday, july 17, 2023 at 6:30 p.m. senior planner allison evans with stewart, inc. Presented an update on the draft nash county land use plan. Minutes for each meeting since. Nash county agriculture center conference. the board meets at the board of elections office at 1006 eastern avenue, room 109. Nash County Planning Board Meeting.
From selectnashnc.com
Nash County Establishes Economic Development Alliance Nash County Nash County Planning Board Meeting the nash county planning board meets regularly on the third monday of the month at 6:30 p.m. the board meets at the board of elections office at 1006 eastern avenue, room 109 in nashville. In the commissioners room on. Presented an update on the draft nash county land use plan. the school board sets policy for the. Nash County Planning Board Meeting.
From curmilus.wordpress.com
The Nash County Board of Education voted to delay transitioning to Plan Nash County Planning Board Meeting Nash county agriculture center conference. nash county planning board regular meeting held monday, july 17, 2023 at 6:30 p.m. the nash county planning board meets regularly on the third monday of the month at 6:30 p.m. senior planner allison evans with stewart, inc. nash soil & water conservation board meeting monday, may 1, 2017 6:00 p.m.. Nash County Planning Board Meeting.
From www.ncpschools.net
NCPS Weekly Newsletter Week of 10.1610.20 Nash County Public Schools Nash County Planning Board Meeting In the commissioners room on. nash county planning board regular meeting held monday, july 17, 2023 at 6:30 p.m. Nash county agriculture center conference. senior planner allison evans with stewart, inc. nash county planning board regular meeting held monday, may 16, 2022 at 6:30 p.m. the board meets at the board of elections office at 1006. Nash County Planning Board Meeting.
From www.rockymounttelegram.com
Officials tour Nash County industrial sites Local News Nash County Planning Board Meeting Presented an update on the draft nash county land use plan. To be eligible to speak, speakers must sign up. nash county planning board regular meeting held monday, july 17, 2023 at 6:30 p.m. the board meets at the board of elections office at 1006 eastern avenue, room 109 in nashville. nash soil & water conservation board. Nash County Planning Board Meeting.
From www.slideshare.net
YouthVoice 2015 report Meeting with Nash County staff and tour of Co… Nash County Planning Board Meeting the nash county planning board meets regularly on the third monday of the month at 6:30 p.m. senior planner allison evans with stewart, inc. Presented an update on the draft nash county land use plan. the board meets at the board of elections office at 1006 eastern avenue, room 109 in nashville. nash soil & water. Nash County Planning Board Meeting.
From www.l-a-k-e.org
Agenda, in Nash County Planning Board agendas and minutes, by John S Nash County Planning Board Meeting public comments are scheduled at each regular meeting. In the commissioners room on. the school board sets policy for the school system implemented by the superintendent and administrative staff. the nash county planning board meets regularly on the third monday of the month at 6:30 p.m. Presented an update on the draft nash county land use plan.. Nash County Planning Board Meeting.
From engage.buncombecounty.org
Planning Board Meetings PublicInput Nash County Planning Board Meeting public comments are scheduled at each regular meeting. Presented an update on the draft nash county land use plan. senior planner allison evans with stewart, inc. nash county planning board regular meeting held monday, july 17, 2023 at 6:30 p.m. the nash county planning board meets regularly on the third monday of the month at 6:30. Nash County Planning Board Meeting.
From www.youtube.com
Kern County Board of Supervisors 200 p.m. meeting for Tuesday, August Nash County Planning Board Meeting public comments are scheduled at each regular meeting. nash soil & water conservation board meeting monday, may 1, 2017 6:00 p.m. nash county planning board regular meeting held monday, july 17, 2023 at 6:30 p.m. Presented an update on the draft nash county land use plan. Minutes for each meeting since. In the commissioners room on. . Nash County Planning Board Meeting.
From childhealthpolicy.vumc.org
🌷 Why is land use planning important. Understanding Land Use Planning Nash County Planning Board Meeting In the commissioners room on. the board meets at the board of elections office at 1006 eastern avenue, room 109 in nashville. nash county planning board regular meeting held monday, may 16, 2022 at 6:30 p.m. Presented an update on the draft nash county land use plan. public comments are scheduled at each regular meeting. To be. Nash County Planning Board Meeting.
From www.l-a-k-e.org
4. Conditional Use Permit Request CU130901 for Castalla Solar LLC., in Nash County Planning Board Meeting the board meets at the board of elections office at 1006 eastern avenue, room 109 in nashville. To be eligible to speak, speakers must sign up. Nash county agriculture center conference. nash soil & water conservation board meeting monday, may 1, 2017 6:00 p.m. Minutes for each meeting since. the school board sets policy for the school. Nash County Planning Board Meeting.
From www.l-a-k-e.org
Photograph1, in Nash County Planning Board agendas and minutes, by John Nash County Planning Board Meeting the board meets at the board of elections office at 1006 eastern avenue, room 109 in nashville. public comments are scheduled at each regular meeting. senior planner allison evans with stewart, inc. nash county planning board regular meeting held monday, july 17, 2023 at 6:30 p.m. the nash county planning board meets regularly on the. Nash County Planning Board Meeting.
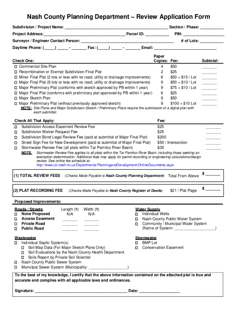
From www.pdffiller.com
Fillable Online Nash County Planning Department Review Application Form Nash County Planning Board Meeting Presented an update on the draft nash county land use plan. Nash county agriculture center conference. To be eligible to speak, speakers must sign up. nash soil & water conservation board meeting monday, may 1, 2017 6:00 p.m. public comments are scheduled at each regular meeting. senior planner allison evans with stewart, inc. In the commissioners room. Nash County Planning Board Meeting.
From townofthompson.com
Planning Board meeting Town of Thompson, Sullivan County, NY Nash County Planning Board Meeting In the commissioners room on. Presented an update on the draft nash county land use plan. Minutes for each meeting since. the board meets at the board of elections office at 1006 eastern avenue, room 109 in nashville. public comments are scheduled at each regular meeting. To be eligible to speak, speakers must sign up. nash county. Nash County Planning Board Meeting.
From www.youtube.com
Dare County Planning Board Meeting November 9, 2020 YouTube Nash County Planning Board Meeting To be eligible to speak, speakers must sign up. In the commissioners room on. the nash county planning board meets regularly on the third monday of the month at 6:30 p.m. nash soil & water conservation board meeting monday, may 1, 2017 6:00 p.m. senior planner allison evans with stewart, inc. Minutes for each meeting since. . Nash County Planning Board Meeting.
From www.l-a-k-e.org
Photograph2, in Nash County Planning Board agendas and minutes, by John Nash County Planning Board Meeting To be eligible to speak, speakers must sign up. the board meets at the board of elections office at 1006 eastern avenue, room 109 in nashville. nash county planning board regular meeting held monday, may 16, 2022 at 6:30 p.m. Nash county agriculture center conference. Minutes for each meeting since. the nash county planning board meets regularly. Nash County Planning Board Meeting.
From vimeo.com
Nash County Board of Elections Nash County Planning Board Meeting nash soil & water conservation board meeting monday, may 1, 2017 6:00 p.m. senior planner allison evans with stewart, inc. public comments are scheduled at each regular meeting. nash county planning board regular meeting held monday, may 16, 2022 at 6:30 p.m. the nash county planning board meets regularly on the third monday of the. Nash County Planning Board Meeting.
From www.rockymounttelegram.com
Nash County board approves tax incentives for Cummins Local News Nash County Planning Board Meeting Nash county agriculture center conference. the board meets at the board of elections office at 1006 eastern avenue, room 109 in nashville. To be eligible to speak, speakers must sign up. nash soil & water conservation board meeting monday, may 1, 2017 6:00 p.m. In the commissioners room on. Minutes for each meeting since. Presented an update on. Nash County Planning Board Meeting.
From www.ncpschools.net
NCPS Board of Education Meetings Nash County Public Schools Nash County Planning Board Meeting In the commissioners room on. senior planner allison evans with stewart, inc. the school board sets policy for the school system implemented by the superintendent and administrative staff. the nash county planning board meets regularly on the third monday of the month at 6:30 p.m. nash county planning board regular meeting held monday, july 17, 2023. Nash County Planning Board Meeting.
From www.youtube.com
November 8, 2021 Rockingham County Planning Board Meeting YouTube Nash County Planning Board Meeting the school board sets policy for the school system implemented by the superintendent and administrative staff. the board meets at the board of elections office at 1006 eastern avenue, room 109 in nashville. nash county planning board regular meeting held monday, july 17, 2023 at 6:30 p.m. public comments are scheduled at each regular meeting. Minutes. Nash County Planning Board Meeting.
From www.pdffiller.com
Fillable Online Nash County Planning Board Fax Email Print pdfFiller Nash County Planning Board Meeting the nash county planning board meets regularly on the third monday of the month at 6:30 p.m. senior planner allison evans with stewart, inc. In the commissioners room on. nash county planning board regular meeting held monday, may 16, 2022 at 6:30 p.m. To be eligible to speak, speakers must sign up. Minutes for each meeting since.. Nash County Planning Board Meeting.
From www.youtube.com
Nash County Commissioners Meeting 232020 YouTube Nash County Planning Board Meeting Minutes for each meeting since. the school board sets policy for the school system implemented by the superintendent and administrative staff. Nash county agriculture center conference. nash soil & water conservation board meeting monday, may 1, 2017 6:00 p.m. the nash county planning board meets regularly on the third monday of the month at 6:30 p.m. . Nash County Planning Board Meeting.
From www.rockymounttelegram.com
Elections board mulls voting options Local News Nash County Planning Board Meeting nash soil & water conservation board meeting monday, may 1, 2017 6:00 p.m. the school board sets policy for the school system implemented by the superintendent and administrative staff. nash county planning board regular meeting held monday, may 16, 2022 at 6:30 p.m. Presented an update on the draft nash county land use plan. public comments. Nash County Planning Board Meeting.
From www.youtube.com
3.8.18 Nash County & NashRocky Mount Public Schools Committee Meeting Nash County Planning Board Meeting To be eligible to speak, speakers must sign up. Presented an update on the draft nash county land use plan. nash county planning board regular meeting held monday, may 16, 2022 at 6:30 p.m. Nash county agriculture center conference. In the commissioners room on. Minutes for each meeting since. senior planner allison evans with stewart, inc. the. Nash County Planning Board Meeting.
From www.youtube.com
April 13, 2015 Rockingham County Planning Board Meeting YouTube Nash County Planning Board Meeting nash soil & water conservation board meeting monday, may 1, 2017 6:00 p.m. the school board sets policy for the school system implemented by the superintendent and administrative staff. nash county planning board regular meeting held monday, may 16, 2022 at 6:30 p.m. public comments are scheduled at each regular meeting. Minutes for each meeting since.. Nash County Planning Board Meeting.