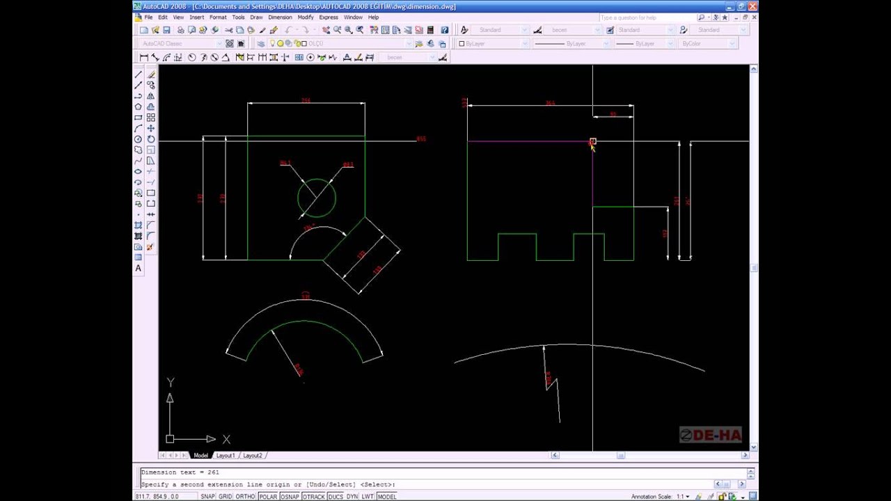
Dimension Style Komutu Nedir . Dimstyle komutuna aşağıdaki yollardan biriyle girilir: Autocad’de, klasik boyutlandırma stilini çizimlere eklemek için “dimstyle” komutu kullanılır. Bu eğitim videomuzda autocad'de ölçülendirme nasıl yapılır, hangi objeyi hangi ölçülendirme aracı ile yapmalıyız, ölçü stili (di̇mensi̇on style) nasıl. A dimension style is a named collection of dimension settings that control the appearance of dimensions. ♦ klavyeden dimstyle, dst, ddim veya d harfi yazılır ve enter tuşuna basılır. Dimension style (mimari ölçülendirme ayarları) i. “dimstyle” komutu, autocad’nin komut satırına. Merhaba arkadaşlar!bu eğitim videomuzda autocad'de ölçülendirme nasıl yapılır,. You create dimension styles to. Dimstyle komutu çalıştırıldıktan sonra dimension style manager (ölçülendirme stili yöneticisi) isimli diyalog kutusu ekrana gelir.
from kodlamaegitim.medium.com
Dimstyle komutu çalıştırıldıktan sonra dimension style manager (ölçülendirme stili yöneticisi) isimli diyalog kutusu ekrana gelir. You create dimension styles to. A dimension style is a named collection of dimension settings that control the appearance of dimensions. Dimension style (mimari ölçülendirme ayarları) i. ♦ klavyeden dimstyle, dst, ddim veya d harfi yazılır ve enter tuşuna basılır. “dimstyle” komutu, autocad’nin komut satırına. Bu eğitim videomuzda autocad'de ölçülendirme nasıl yapılır, hangi objeyi hangi ölçülendirme aracı ile yapmalıyız, ölçü stili (di̇mensi̇on style) nasıl. Dimstyle komutuna aşağıdaki yollardan biriyle girilir: Merhaba arkadaşlar!bu eğitim videomuzda autocad'de ölçülendirme nasıl yapılır,. Autocad’de, klasik boyutlandırma stilini çizimlere eklemek için “dimstyle” komutu kullanılır.
Bilgisayar Uygulamalari. Command Prompt(CMD) Nedir? by kodlama ve
Dimension Style Komutu Nedir Merhaba arkadaşlar!bu eğitim videomuzda autocad'de ölçülendirme nasıl yapılır,. Merhaba arkadaşlar!bu eğitim videomuzda autocad'de ölçülendirme nasıl yapılır,. Dimstyle komutu çalıştırıldıktan sonra dimension style manager (ölçülendirme stili yöneticisi) isimli diyalog kutusu ekrana gelir. Dimstyle komutuna aşağıdaki yollardan biriyle girilir: Dimension style (mimari ölçülendirme ayarları) i. You create dimension styles to. “dimstyle” komutu, autocad’nin komut satırına. Autocad’de, klasik boyutlandırma stilini çizimlere eklemek için “dimstyle” komutu kullanılır. A dimension style is a named collection of dimension settings that control the appearance of dimensions. ♦ klavyeden dimstyle, dst, ddim veya d harfi yazılır ve enter tuşuna basılır. Bu eğitim videomuzda autocad'de ölçülendirme nasıl yapılır, hangi objeyi hangi ölçülendirme aracı ile yapmalıyız, ölçü stili (di̇mensi̇on style) nasıl.
From www.pislikmimar.com
Autocad Alan Hesaplama (Area Komutu) Pislik MİMAR Dimension Style Komutu Nedir Dimstyle komutuna aşağıdaki yollardan biriyle girilir: Autocad’de, klasik boyutlandırma stilini çizimlere eklemek için “dimstyle” komutu kullanılır. Merhaba arkadaşlar!bu eğitim videomuzda autocad'de ölçülendirme nasıl yapılır,. A dimension style is a named collection of dimension settings that control the appearance of dimensions. Dimension style (mimari ölçülendirme ayarları) i. Bu eğitim videomuzda autocad'de ölçülendirme nasıl yapılır, hangi objeyi hangi ölçülendirme aracı ile yapmalıyız,. Dimension Style Komutu Nedir.
From help.bricsys.com
DIMCONTINUE command BricsCAD Lite & Pro Bricsys Help Center Dimension Style Komutu Nedir ♦ klavyeden dimstyle, dst, ddim veya d harfi yazılır ve enter tuşuna basılır. “dimstyle” komutu, autocad’nin komut satırına. Dimstyle komutuna aşağıdaki yollardan biriyle girilir: Dimstyle komutu çalıştırıldıktan sonra dimension style manager (ölçülendirme stili yöneticisi) isimli diyalog kutusu ekrana gelir. Dimension style (mimari ölçülendirme ayarları) i. Autocad’de, klasik boyutlandırma stilini çizimlere eklemek için “dimstyle” komutu kullanılır. You create dimension styles to.. Dimension Style Komutu Nedir.
From mavink.com
Types Of Dimensions Dimension Style Komutu Nedir Bu eğitim videomuzda autocad'de ölçülendirme nasıl yapılır, hangi objeyi hangi ölçülendirme aracı ile yapmalıyız, ölçü stili (di̇mensi̇on style) nasıl. ♦ klavyeden dimstyle, dst, ddim veya d harfi yazılır ve enter tuşuna basılır. Autocad’de, klasik boyutlandırma stilini çizimlere eklemek için “dimstyle” komutu kullanılır. You create dimension styles to. Merhaba arkadaşlar!bu eğitim videomuzda autocad'de ölçülendirme nasıl yapılır,. Dimstyle komutuna aşağıdaki yollardan biriyle. Dimension Style Komutu Nedir.
From www.patron-stratege.com
muscle Aboard Reconcile how to set the dimension in autocad truth lb Dimension Style Komutu Nedir Merhaba arkadaşlar!bu eğitim videomuzda autocad'de ölçülendirme nasıl yapılır,. ♦ klavyeden dimstyle, dst, ddim veya d harfi yazılır ve enter tuşuna basılır. Dimstyle komutu çalıştırıldıktan sonra dimension style manager (ölçülendirme stili yöneticisi) isimli diyalog kutusu ekrana gelir. You create dimension styles to. A dimension style is a named collection of dimension settings that control the appearance of dimensions. Autocad’de, klasik boyutlandırma. Dimension Style Komutu Nedir.
From www.youtube.com
2 76 Dimension Style ölçü stili düzenleme YouTube Dimension Style Komutu Nedir A dimension style is a named collection of dimension settings that control the appearance of dimensions. ♦ klavyeden dimstyle, dst, ddim veya d harfi yazılır ve enter tuşuna basılır. Dimstyle komutuna aşağıdaki yollardan biriyle girilir: You create dimension styles to. “dimstyle” komutu, autocad’nin komut satırına. Dimension style (mimari ölçülendirme ayarları) i. Dimstyle komutu çalıştırıldıktan sonra dimension style manager (ölçülendirme stili. Dimension Style Komutu Nedir.
From mungfali.com
AutoCAD Dimension Symbols Dimension Style Komutu Nedir Merhaba arkadaşlar!bu eğitim videomuzda autocad'de ölçülendirme nasıl yapılır,. Bu eğitim videomuzda autocad'de ölçülendirme nasıl yapılır, hangi objeyi hangi ölçülendirme aracı ile yapmalıyız, ölçü stili (di̇mensi̇on style) nasıl. Dimstyle komutuna aşağıdaki yollardan biriyle girilir: A dimension style is a named collection of dimension settings that control the appearance of dimensions. Dimension style (mimari ölçülendirme ayarları) i. You create dimension styles to.. Dimension Style Komutu Nedir.
From docplayer.biz.tr
BİLGİSAYAR DESTEKLİ PROJE I (AUTOCAD2014) PDF Free Download Dimension Style Komutu Nedir “dimstyle” komutu, autocad’nin komut satırına. Bu eğitim videomuzda autocad'de ölçülendirme nasıl yapılır, hangi objeyi hangi ölçülendirme aracı ile yapmalıyız, ölçü stili (di̇mensi̇on style) nasıl. Merhaba arkadaşlar!bu eğitim videomuzda autocad'de ölçülendirme nasıl yapılır,. Dimstyle komutuna aşağıdaki yollardan biriyle girilir: Dimension style (mimari ölçülendirme ayarları) i. A dimension style is a named collection of dimension settings that control the appearance of dimensions.. Dimension Style Komutu Nedir.
From www.makinaegitimi.com
Autocad'de Tolerans Nasıl Eklenir. Tolerans Ekleme Makine Eğitimi Dimension Style Komutu Nedir A dimension style is a named collection of dimension settings that control the appearance of dimensions. ♦ klavyeden dimstyle, dst, ddim veya d harfi yazılır ve enter tuşuna basılır. Autocad’de, klasik boyutlandırma stilini çizimlere eklemek için “dimstyle” komutu kullanılır. “dimstyle” komutu, autocad’nin komut satırına. Dimstyle komutu çalıştırıldıktan sonra dimension style manager (ölçülendirme stili yöneticisi) isimli diyalog kutusu ekrana gelir. Merhaba. Dimension Style Komutu Nedir.
From campolden.org
How To Change Radius Dimension Style In Autocad Templates Sample Dimension Style Komutu Nedir Dimension style (mimari ölçülendirme ayarları) i. Dimstyle komutuna aşağıdaki yollardan biriyle girilir: A dimension style is a named collection of dimension settings that control the appearance of dimensions. Bu eğitim videomuzda autocad'de ölçülendirme nasıl yapılır, hangi objeyi hangi ölçülendirme aracı ile yapmalıyız, ölçü stili (di̇mensi̇on style) nasıl. ♦ klavyeden dimstyle, dst, ddim veya d harfi yazılır ve enter tuşuna basılır.. Dimension Style Komutu Nedir.
From www.mycadsite.com
Dimension Styles AutoCAD Tutorial and Videos Dimension Style Komutu Nedir Bu eğitim videomuzda autocad'de ölçülendirme nasıl yapılır, hangi objeyi hangi ölçülendirme aracı ile yapmalıyız, ölçü stili (di̇mensi̇on style) nasıl. Merhaba arkadaşlar!bu eğitim videomuzda autocad'de ölçülendirme nasıl yapılır,. A dimension style is a named collection of dimension settings that control the appearance of dimensions. You create dimension styles to. Autocad’de, klasik boyutlandırma stilini çizimlere eklemek için “dimstyle” komutu kullanılır. “dimstyle” komutu,. Dimension Style Komutu Nedir.
From www.makinaegitimi.com
Autocad'de Tolerans Nasıl Eklenir. Tolerans Ekleme Makine Eğitimi Dimension Style Komutu Nedir Dimstyle komutuna aşağıdaki yollardan biriyle girilir: You create dimension styles to. Dimension style (mimari ölçülendirme ayarları) i. “dimstyle” komutu, autocad’nin komut satırına. ♦ klavyeden dimstyle, dst, ddim veya d harfi yazılır ve enter tuşuna basılır. Dimstyle komutu çalıştırıldıktan sonra dimension style manager (ölçülendirme stili yöneticisi) isimli diyalog kutusu ekrana gelir. Bu eğitim videomuzda autocad'de ölçülendirme nasıl yapılır, hangi objeyi hangi. Dimension Style Komutu Nedir.
From tupuy.com
How To Set Dimension In Autocad Printable Online Dimension Style Komutu Nedir Dimension style (mimari ölçülendirme ayarları) i. Dimstyle komutuna aşağıdaki yollardan biriyle girilir: Merhaba arkadaşlar!bu eğitim videomuzda autocad'de ölçülendirme nasıl yapılır,. A dimension style is a named collection of dimension settings that control the appearance of dimensions. Dimstyle komutu çalıştırıldıktan sonra dimension style manager (ölçülendirme stili yöneticisi) isimli diyalog kutusu ekrana gelir. “dimstyle” komutu, autocad’nin komut satırına. Bu eğitim videomuzda autocad'de. Dimension Style Komutu Nedir.
From campolden.org
How To Save Dimension Style In Autocad Templates Sample Printables Dimension Style Komutu Nedir You create dimension styles to. Bu eğitim videomuzda autocad'de ölçülendirme nasıl yapılır, hangi objeyi hangi ölçülendirme aracı ile yapmalıyız, ölçü stili (di̇mensi̇on style) nasıl. Merhaba arkadaşlar!bu eğitim videomuzda autocad'de ölçülendirme nasıl yapılır,. ♦ klavyeden dimstyle, dst, ddim veya d harfi yazılır ve enter tuşuna basılır. Dimension style (mimari ölçülendirme ayarları) i. Dimstyle komutuna aşağıdaki yollardan biriyle girilir: “dimstyle” komutu, autocad’nin. Dimension Style Komutu Nedir.
From www.youtube.com
2 75 Dimension ölçülendirme komutu YouTube Dimension Style Komutu Nedir Dimstyle komutuna aşağıdaki yollardan biriyle girilir: A dimension style is a named collection of dimension settings that control the appearance of dimensions. Bu eğitim videomuzda autocad'de ölçülendirme nasıl yapılır, hangi objeyi hangi ölçülendirme aracı ile yapmalıyız, ölçü stili (di̇mensi̇on style) nasıl. Autocad’de, klasik boyutlandırma stilini çizimlere eklemek için “dimstyle” komutu kullanılır. Merhaba arkadaşlar!bu eğitim videomuzda autocad'de ölçülendirme nasıl yapılır,. ♦. Dimension Style Komutu Nedir.
From www.youtube.com
AutoCAD Nesne, Obje Yakalama Komutu OSNAP Ne İşe Yarar? Object Snap Dimension Style Komutu Nedir Dimstyle komutu çalıştırıldıktan sonra dimension style manager (ölçülendirme stili yöneticisi) isimli diyalog kutusu ekrana gelir. Dimstyle komutuna aşağıdaki yollardan biriyle girilir: A dimension style is a named collection of dimension settings that control the appearance of dimensions. Dimension style (mimari ölçülendirme ayarları) i. ♦ klavyeden dimstyle, dst, ddim veya d harfi yazılır ve enter tuşuna basılır. Autocad’de, klasik boyutlandırma stilini. Dimension Style Komutu Nedir.
From www.youtube.com
Dimension komutu YouTube Dimension Style Komutu Nedir ♦ klavyeden dimstyle, dst, ddim veya d harfi yazılır ve enter tuşuna basılır. You create dimension styles to. Autocad’de, klasik boyutlandırma stilini çizimlere eklemek için “dimstyle” komutu kullanılır. “dimstyle” komutu, autocad’nin komut satırına. A dimension style is a named collection of dimension settings that control the appearance of dimensions. Merhaba arkadaşlar!bu eğitim videomuzda autocad'de ölçülendirme nasıl yapılır,. Dimstyle komutu çalıştırıldıktan. Dimension Style Komutu Nedir.
From www.youtube.com
21 SketchUp Dimension Komutu YouTube Dimension Style Komutu Nedir ♦ klavyeden dimstyle, dst, ddim veya d harfi yazılır ve enter tuşuna basılır. “dimstyle” komutu, autocad’nin komut satırına. Autocad’de, klasik boyutlandırma stilini çizimlere eklemek için “dimstyle” komutu kullanılır. Dimstyle komutuna aşağıdaki yollardan biriyle girilir: A dimension style is a named collection of dimension settings that control the appearance of dimensions. Dimstyle komutu çalıştırıldıktan sonra dimension style manager (ölçülendirme stili yöneticisi). Dimension Style Komutu Nedir.
From www.youtube.com
AutoCAD Tutorial Applying Linear Dimensions YouTube Dimension Style Komutu Nedir Dimstyle komutu çalıştırıldıktan sonra dimension style manager (ölçülendirme stili yöneticisi) isimli diyalog kutusu ekrana gelir. A dimension style is a named collection of dimension settings that control the appearance of dimensions. Dimension style (mimari ölçülendirme ayarları) i. Merhaba arkadaşlar!bu eğitim videomuzda autocad'de ölçülendirme nasıl yapılır,. Dimstyle komutuna aşağıdaki yollardan biriyle girilir: “dimstyle” komutu, autocad’nin komut satırına. Autocad’de, klasik boyutlandırma stilini. Dimension Style Komutu Nedir.
From blogs.solidworks.com
Dimensioning in Style (with SOLIDWORKS Dimension Styles) Dimension Style Komutu Nedir You create dimension styles to. Dimstyle komutu çalıştırıldıktan sonra dimension style manager (ölçülendirme stili yöneticisi) isimli diyalog kutusu ekrana gelir. ♦ klavyeden dimstyle, dst, ddim veya d harfi yazılır ve enter tuşuna basılır. Bu eğitim videomuzda autocad'de ölçülendirme nasıl yapılır, hangi objeyi hangi ölçülendirme aracı ile yapmalıyız, ölçü stili (di̇mensi̇on style) nasıl. Dimstyle komutuna aşağıdaki yollardan biriyle girilir: Dimension style. Dimension Style Komutu Nedir.
From slideplayer.biz.tr
NİŞANTAŞI ÜNİVERSİTESİ ppt indir Dimension Style Komutu Nedir “dimstyle” komutu, autocad’nin komut satırına. Merhaba arkadaşlar!bu eğitim videomuzda autocad'de ölçülendirme nasıl yapılır,. ♦ klavyeden dimstyle, dst, ddim veya d harfi yazılır ve enter tuşuna basılır. Dimension style (mimari ölçülendirme ayarları) i. Dimstyle komutu çalıştırıldıktan sonra dimension style manager (ölçülendirme stili yöneticisi) isimli diyalog kutusu ekrana gelir. Autocad’de, klasik boyutlandırma stilini çizimlere eklemek için “dimstyle” komutu kullanılır. A dimension style. Dimension Style Komutu Nedir.
From www.youtube.com
23 Ölçülendirme, Boyutlandırma, Dimension komutu YouTube Dimension Style Komutu Nedir Bu eğitim videomuzda autocad'de ölçülendirme nasıl yapılır, hangi objeyi hangi ölçülendirme aracı ile yapmalıyız, ölçü stili (di̇mensi̇on style) nasıl. “dimstyle” komutu, autocad’nin komut satırına. A dimension style is a named collection of dimension settings that control the appearance of dimensions. ♦ klavyeden dimstyle, dst, ddim veya d harfi yazılır ve enter tuşuna basılır. You create dimension styles to. Merhaba arkadaşlar!bu. Dimension Style Komutu Nedir.
From tupuy.com
How To Dimension Multiple Lines In Autocad Printable Online Dimension Style Komutu Nedir Bu eğitim videomuzda autocad'de ölçülendirme nasıl yapılır, hangi objeyi hangi ölçülendirme aracı ile yapmalıyız, ölçü stili (di̇mensi̇on style) nasıl. Dimension style (mimari ölçülendirme ayarları) i. You create dimension styles to. Dimstyle komutuna aşağıdaki yollardan biriyle girilir: Autocad’de, klasik boyutlandırma stilini çizimlere eklemek için “dimstyle” komutu kullanılır. Merhaba arkadaşlar!bu eğitim videomuzda autocad'de ölçülendirme nasıl yapılır,. “dimstyle” komutu, autocad’nin komut satırına. A. Dimension Style Komutu Nedir.
From docplayer.biz.tr
BÖLÜM 09. Teknik Resim Görünüşleri PDF Free Download Dimension Style Komutu Nedir “dimstyle” komutu, autocad’nin komut satırına. ♦ klavyeden dimstyle, dst, ddim veya d harfi yazılır ve enter tuşuna basılır. Dimension style (mimari ölçülendirme ayarları) i. Dimstyle komutuna aşağıdaki yollardan biriyle girilir: Dimstyle komutu çalıştırıldıktan sonra dimension style manager (ölçülendirme stili yöneticisi) isimli diyalog kutusu ekrana gelir. Bu eğitim videomuzda autocad'de ölçülendirme nasıl yapılır, hangi objeyi hangi ölçülendirme aracı ile yapmalıyız, ölçü. Dimension Style Komutu Nedir.
From www.pislikmimar.com
Autocad Ölçülendirme ve DİMENSİON Ayarları Pislik MİMAR Dimension Style Komutu Nedir Dimension style (mimari ölçülendirme ayarları) i. “dimstyle” komutu, autocad’nin komut satırına. A dimension style is a named collection of dimension settings that control the appearance of dimensions. Autocad’de, klasik boyutlandırma stilini çizimlere eklemek için “dimstyle” komutu kullanılır. You create dimension styles to. ♦ klavyeden dimstyle, dst, ddim veya d harfi yazılır ve enter tuşuna basılır. Merhaba arkadaşlar!bu eğitim videomuzda autocad'de. Dimension Style Komutu Nedir.
From www.youtube.com
18 SketchUp Scale Komutu YouTube Dimension Style Komutu Nedir Dimstyle komutu çalıştırıldıktan sonra dimension style manager (ölçülendirme stili yöneticisi) isimli diyalog kutusu ekrana gelir. “dimstyle” komutu, autocad’nin komut satırına. Bu eğitim videomuzda autocad'de ölçülendirme nasıl yapılır, hangi objeyi hangi ölçülendirme aracı ile yapmalıyız, ölçü stili (di̇mensi̇on style) nasıl. Autocad’de, klasik boyutlandırma stilini çizimlere eklemek için “dimstyle” komutu kullanılır. ♦ klavyeden dimstyle, dst, ddim veya d harfi yazılır ve enter. Dimension Style Komutu Nedir.
From www.youtube.com
Dimension Styles in Alibre Design (Legacy Interface) YouTube Dimension Style Komutu Nedir You create dimension styles to. Autocad’de, klasik boyutlandırma stilini çizimlere eklemek için “dimstyle” komutu kullanılır. ♦ klavyeden dimstyle, dst, ddim veya d harfi yazılır ve enter tuşuna basılır. Merhaba arkadaşlar!bu eğitim videomuzda autocad'de ölçülendirme nasıl yapılır,. Dimstyle komutuna aşağıdaki yollardan biriyle girilir: Dimension style (mimari ölçülendirme ayarları) i. Dimstyle komutu çalıştırıldıktan sonra dimension style manager (ölçülendirme stili yöneticisi) isimli diyalog. Dimension Style Komutu Nedir.
From campolden.org
How To Find Dimension Style In Autocad Templates Sample Printables Dimension Style Komutu Nedir A dimension style is a named collection of dimension settings that control the appearance of dimensions. Bu eğitim videomuzda autocad'de ölçülendirme nasıl yapılır, hangi objeyi hangi ölçülendirme aracı ile yapmalıyız, ölçü stili (di̇mensi̇on style) nasıl. Autocad’de, klasik boyutlandırma stilini çizimlere eklemek için “dimstyle” komutu kullanılır. ♦ klavyeden dimstyle, dst, ddim veya d harfi yazılır ve enter tuşuna basılır. Dimstyle komutu. Dimension Style Komutu Nedir.
From www.youtube.com
AutoCAD Ölçülendirme AutoCAD Ölçü Ayarları AutoCAD Dimension Style Dimension Style Komutu Nedir You create dimension styles to. Dimension style (mimari ölçülendirme ayarları) i. Merhaba arkadaşlar!bu eğitim videomuzda autocad'de ölçülendirme nasıl yapılır,. A dimension style is a named collection of dimension settings that control the appearance of dimensions. Autocad’de, klasik boyutlandırma stilini çizimlere eklemek için “dimstyle” komutu kullanılır. ♦ klavyeden dimstyle, dst, ddim veya d harfi yazılır ve enter tuşuna basılır. Dimstyle komutuna. Dimension Style Komutu Nedir.
From www.youtube.com
Dimension Komutu YouTube Dimension Style Komutu Nedir Dimstyle komutu çalıştırıldıktan sonra dimension style manager (ölçülendirme stili yöneticisi) isimli diyalog kutusu ekrana gelir. Autocad’de, klasik boyutlandırma stilini çizimlere eklemek için “dimstyle” komutu kullanılır. Dimstyle komutuna aşağıdaki yollardan biriyle girilir: “dimstyle” komutu, autocad’nin komut satırına. Bu eğitim videomuzda autocad'de ölçülendirme nasıl yapılır, hangi objeyi hangi ölçülendirme aracı ile yapmalıyız, ölçü stili (di̇mensi̇on style) nasıl. You create dimension styles to.. Dimension Style Komutu Nedir.
From imagesee.biz
Setting Up Dimension Styles Autocad Electrical IMAGESEE Dimension Style Komutu Nedir You create dimension styles to. ♦ klavyeden dimstyle, dst, ddim veya d harfi yazılır ve enter tuşuna basılır. Dimension style (mimari ölçülendirme ayarları) i. Dimstyle komutuna aşağıdaki yollardan biriyle girilir: Dimstyle komutu çalıştırıldıktan sonra dimension style manager (ölçülendirme stili yöneticisi) isimli diyalog kutusu ekrana gelir. Merhaba arkadaşlar!bu eğitim videomuzda autocad'de ölçülendirme nasıl yapılır,. Bu eğitim videomuzda autocad'de ölçülendirme nasıl yapılır,. Dimension Style Komutu Nedir.
From www.youtube.com
Line Polyline Autocad Eğitim YouTube Dimension Style Komutu Nedir You create dimension styles to. Dimstyle komutu çalıştırıldıktan sonra dimension style manager (ölçülendirme stili yöneticisi) isimli diyalog kutusu ekrana gelir. ♦ klavyeden dimstyle, dst, ddim veya d harfi yazılır ve enter tuşuna basılır. Bu eğitim videomuzda autocad'de ölçülendirme nasıl yapılır, hangi objeyi hangi ölçülendirme aracı ile yapmalıyız, ölçü stili (di̇mensi̇on style) nasıl. Dimstyle komutuna aşağıdaki yollardan biriyle girilir: “dimstyle” komutu,. Dimension Style Komutu Nedir.
From www.youtube.com
AutoCAD Move Copy Rotate Scale Tek Bir MoCoRo komutunda AutoCAD En Dimension Style Komutu Nedir ♦ klavyeden dimstyle, dst, ddim veya d harfi yazılır ve enter tuşuna basılır. A dimension style is a named collection of dimension settings that control the appearance of dimensions. “dimstyle” komutu, autocad’nin komut satırına. Dimstyle komutuna aşağıdaki yollardan biriyle girilir: Autocad’de, klasik boyutlandırma stilini çizimlere eklemek için “dimstyle” komutu kullanılır. Dimstyle komutu çalıştırıldıktan sonra dimension style manager (ölçülendirme stili yöneticisi). Dimension Style Komutu Nedir.
From campolden.org
How To Set Dimension Style In Autocad Templates Sample Printables Dimension Style Komutu Nedir Merhaba arkadaşlar!bu eğitim videomuzda autocad'de ölçülendirme nasıl yapılır,. ♦ klavyeden dimstyle, dst, ddim veya d harfi yazılır ve enter tuşuna basılır. Dimstyle komutu çalıştırıldıktan sonra dimension style manager (ölçülendirme stili yöneticisi) isimli diyalog kutusu ekrana gelir. You create dimension styles to. Dimstyle komutuna aşağıdaki yollardan biriyle girilir: Autocad’de, klasik boyutlandırma stilini çizimlere eklemek için “dimstyle” komutu kullanılır. Bu eğitim videomuzda. Dimension Style Komutu Nedir.
From kodlamaegitim.medium.com
Bilgisayar Uygulamalari. Command Prompt(CMD) Nedir? by kodlama ve Dimension Style Komutu Nedir Merhaba arkadaşlar!bu eğitim videomuzda autocad'de ölçülendirme nasıl yapılır,. A dimension style is a named collection of dimension settings that control the appearance of dimensions. ♦ klavyeden dimstyle, dst, ddim veya d harfi yazılır ve enter tuşuna basılır. Dimstyle komutuna aşağıdaki yollardan biriyle girilir: Bu eğitim videomuzda autocad'de ölçülendirme nasıl yapılır, hangi objeyi hangi ölçülendirme aracı ile yapmalıyız, ölçü stili (di̇mensi̇on. Dimension Style Komutu Nedir.
From www.youtube.com
Sketchup Kopyalama Yöntemleri ve Mirror Komutu YouTube Dimension Style Komutu Nedir You create dimension styles to. A dimension style is a named collection of dimension settings that control the appearance of dimensions. “dimstyle” komutu, autocad’nin komut satırına. Bu eğitim videomuzda autocad'de ölçülendirme nasıl yapılır, hangi objeyi hangi ölçülendirme aracı ile yapmalıyız, ölçü stili (di̇mensi̇on style) nasıl. Dimension style (mimari ölçülendirme ayarları) i. Autocad’de, klasik boyutlandırma stilini çizimlere eklemek için “dimstyle” komutu. Dimension Style Komutu Nedir.