Nebraska Real Estate Commission Agency Disclosure . Nebraska law requires the seller to complete this statement (neb. Find information and resources on the nebraska real estate commission, including laws, rules, policies, and guidelines. Nebraska law requires all real estate licensees provide this information outlining the types of real estate services being offered. Find and download or submit online various forms related to real estate licensing, education, errors and omissions, and more. Nebraska licensed real estate brokers and their associate brokers and salespersons are required by law to disclose the type of brokerage.
from esign.com
Find information and resources on the nebraska real estate commission, including laws, rules, policies, and guidelines. Nebraska law requires all real estate licensees provide this information outlining the types of real estate services being offered. Find and download or submit online various forms related to real estate licensing, education, errors and omissions, and more. Nebraska law requires the seller to complete this statement (neb. Nebraska licensed real estate brokers and their associate brokers and salespersons are required by law to disclose the type of brokerage.
Free Nebraska Property Disclosure Statement PDF
Nebraska Real Estate Commission Agency Disclosure Find and download or submit online various forms related to real estate licensing, education, errors and omissions, and more. Nebraska law requires the seller to complete this statement (neb. Nebraska licensed real estate brokers and their associate brokers and salespersons are required by law to disclose the type of brokerage. Find information and resources on the nebraska real estate commission, including laws, rules, policies, and guidelines. Find and download or submit online various forms related to real estate licensing, education, errors and omissions, and more. Nebraska law requires all real estate licensees provide this information outlining the types of real estate services being offered.
From listwithclever.com
Average Real Estate Commission in Nebraska Clever Real Estate Nebraska Real Estate Commission Agency Disclosure Nebraska law requires the seller to complete this statement (neb. Nebraska licensed real estate brokers and their associate brokers and salespersons are required by law to disclose the type of brokerage. Find and download or submit online various forms related to real estate licensing, education, errors and omissions, and more. Nebraska law requires all real estate licensees provide this information. Nebraska Real Estate Commission Agency Disclosure.
From www.pdffiller.com
Fillable Online NEBRASKA REAL ESTATE COMMISSION'S (NREC's) Fax Email Nebraska Real Estate Commission Agency Disclosure Nebraska law requires all real estate licensees provide this information outlining the types of real estate services being offered. Nebraska law requires the seller to complete this statement (neb. Nebraska licensed real estate brokers and their associate brokers and salespersons are required by law to disclose the type of brokerage. Find and download or submit online various forms related to. Nebraska Real Estate Commission Agency Disclosure.
From www.pdffiller.com
Fillable Online nrec ne Buyers and Sellers Nebraska Real Estate Nebraska Real Estate Commission Agency Disclosure Nebraska licensed real estate brokers and their associate brokers and salespersons are required by law to disclose the type of brokerage. Nebraska law requires the seller to complete this statement (neb. Find and download or submit online various forms related to real estate licensing, education, errors and omissions, and more. Find information and resources on the nebraska real estate commission,. Nebraska Real Estate Commission Agency Disclosure.
From www.templateroller.com
Nebraska Seller Property Condition Disclosure Statement Residential Nebraska Real Estate Commission Agency Disclosure Nebraska licensed real estate brokers and their associate brokers and salespersons are required by law to disclose the type of brokerage. Nebraska law requires the seller to complete this statement (neb. Nebraska law requires all real estate licensees provide this information outlining the types of real estate services being offered. Find and download or submit online various forms related to. Nebraska Real Estate Commission Agency Disclosure.
From www.templateroller.com
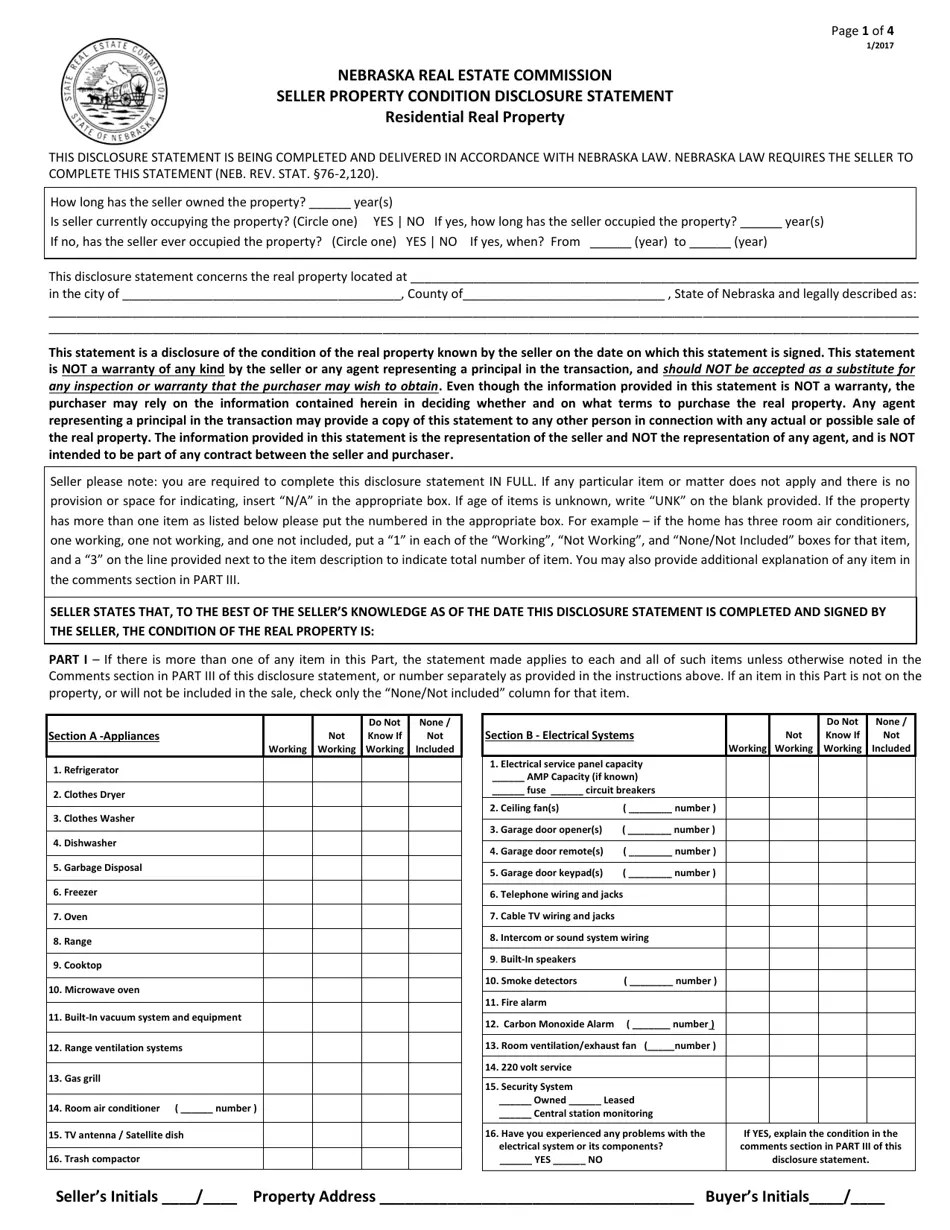
Nebraska Seller Property Condition Disclosure Statement Residential Nebraska Real Estate Commission Agency Disclosure Find and download or submit online various forms related to real estate licensing, education, errors and omissions, and more. Find information and resources on the nebraska real estate commission, including laws, rules, policies, and guidelines. Nebraska law requires all real estate licensees provide this information outlining the types of real estate services being offered. Nebraska law requires the seller to. Nebraska Real Estate Commission Agency Disclosure.
From www.slideshare.net
Ad 1 disclosure (1) regarding re relationship (listing firm to sell… Nebraska Real Estate Commission Agency Disclosure Nebraska licensed real estate brokers and their associate brokers and salespersons are required by law to disclose the type of brokerage. Find information and resources on the nebraska real estate commission, including laws, rules, policies, and guidelines. Find and download or submit online various forms related to real estate licensing, education, errors and omissions, and more. Nebraska law requires all. Nebraska Real Estate Commission Agency Disclosure.
From www.templateroller.com
Nebraska Agency Disclosure Information for Tenants and Landlords Fill Nebraska Real Estate Commission Agency Disclosure Nebraska law requires the seller to complete this statement (neb. Find information and resources on the nebraska real estate commission, including laws, rules, policies, and guidelines. Nebraska licensed real estate brokers and their associate brokers and salespersons are required by law to disclose the type of brokerage. Nebraska law requires all real estate licensees provide this information outlining the types. Nebraska Real Estate Commission Agency Disclosure.
From www.templateroller.com
Nebraska Seller Property Condition Disclosure Statement Residential Nebraska Real Estate Commission Agency Disclosure Nebraska licensed real estate brokers and their associate brokers and salespersons are required by law to disclose the type of brokerage. Find and download or submit online various forms related to real estate licensing, education, errors and omissions, and more. Nebraska law requires all real estate licensees provide this information outlining the types of real estate services being offered. Nebraska. Nebraska Real Estate Commission Agency Disclosure.
From eforms.com
Free Nebraska Residential Real Estate Purchase and Sale Agreement PDF Nebraska Real Estate Commission Agency Disclosure Nebraska law requires the seller to complete this statement (neb. Find and download or submit online various forms related to real estate licensing, education, errors and omissions, and more. Nebraska licensed real estate brokers and their associate brokers and salespersons are required by law to disclose the type of brokerage. Find information and resources on the nebraska real estate commission,. Nebraska Real Estate Commission Agency Disclosure.
From www.templateroller.com
Nebraska Agency Disclosure Common Law Agency Addendum Fill Out, Sign Nebraska Real Estate Commission Agency Disclosure Nebraska licensed real estate brokers and their associate brokers and salespersons are required by law to disclose the type of brokerage. Find information and resources on the nebraska real estate commission, including laws, rules, policies, and guidelines. Nebraska law requires the seller to complete this statement (neb. Find and download or submit online various forms related to real estate licensing,. Nebraska Real Estate Commission Agency Disclosure.
From www.uslegalforms.com
Nebraska Residential Real Estate Sales Disclosure Statement Seller Nebraska Real Estate Commission Agency Disclosure Nebraska law requires the seller to complete this statement (neb. Nebraska licensed real estate brokers and their associate brokers and salespersons are required by law to disclose the type of brokerage. Find and download or submit online various forms related to real estate licensing, education, errors and omissions, and more. Find information and resources on the nebraska real estate commission,. Nebraska Real Estate Commission Agency Disclosure.
From www.pdffiller.com
Fillable Online Application Form Nebraska Real Estate Commission Fax Nebraska Real Estate Commission Agency Disclosure Nebraska licensed real estate brokers and their associate brokers and salespersons are required by law to disclose the type of brokerage. Nebraska law requires the seller to complete this statement (neb. Nebraska law requires all real estate licensees provide this information outlining the types of real estate services being offered. Find and download or submit online various forms related to. Nebraska Real Estate Commission Agency Disclosure.
From www.pdffiller.com
Fillable Online Notice of Application Fee Nebraska Real Estate Nebraska Real Estate Commission Agency Disclosure Nebraska law requires the seller to complete this statement (neb. Find information and resources on the nebraska real estate commission, including laws, rules, policies, and guidelines. Find and download or submit online various forms related to real estate licensing, education, errors and omissions, and more. Nebraska law requires all real estate licensees provide this information outlining the types of real. Nebraska Real Estate Commission Agency Disclosure.
From support.therealbrokerage.com
How do I transfer my Nebraska license to Real? Real Nebraska Real Estate Commission Agency Disclosure Nebraska law requires the seller to complete this statement (neb. Nebraska licensed real estate brokers and their associate brokers and salespersons are required by law to disclose the type of brokerage. Find and download or submit online various forms related to real estate licensing, education, errors and omissions, and more. Find information and resources on the nebraska real estate commission,. Nebraska Real Estate Commission Agency Disclosure.
From www.uslegalforms.com
Nebraska Residential Real Estate Sales Disclosure Statement Seller Nebraska Real Estate Commission Agency Disclosure Find and download or submit online various forms related to real estate licensing, education, errors and omissions, and more. Nebraska law requires the seller to complete this statement (neb. Nebraska law requires all real estate licensees provide this information outlining the types of real estate services being offered. Nebraska licensed real estate brokers and their associate brokers and salespersons are. Nebraska Real Estate Commission Agency Disclosure.
From study.com
Quiz & Worksheet Nebraska Real Estate Agency Disclosures Nebraska Real Estate Commission Agency Disclosure Nebraska law requires all real estate licensees provide this information outlining the types of real estate services being offered. Nebraska licensed real estate brokers and their associate brokers and salespersons are required by law to disclose the type of brokerage. Find information and resources on the nebraska real estate commission, including laws, rules, policies, and guidelines. Find and download or. Nebraska Real Estate Commission Agency Disclosure.
From www.templateroller.com
Nebraska Seller Property Condition Disclosure Statement Residential Nebraska Real Estate Commission Agency Disclosure Find information and resources on the nebraska real estate commission, including laws, rules, policies, and guidelines. Find and download or submit online various forms related to real estate licensing, education, errors and omissions, and more. Nebraska licensed real estate brokers and their associate brokers and salespersons are required by law to disclose the type of brokerage. Nebraska law requires the. Nebraska Real Estate Commission Agency Disclosure.
From www.uslegalforms.com
Nebraska Residential Real Estate Sales Disclosure Statement Seller Nebraska Real Estate Commission Agency Disclosure Nebraska licensed real estate brokers and their associate brokers and salespersons are required by law to disclose the type of brokerage. Find and download or submit online various forms related to real estate licensing, education, errors and omissions, and more. Nebraska law requires the seller to complete this statement (neb. Nebraska law requires all real estate licensees provide this information. Nebraska Real Estate Commission Agency Disclosure.
From www.pdffiller.com
Fillable Online NEBRASKA REAL ESTATE COMMISSION'S (NREC's) Fax Nebraska Real Estate Commission Agency Disclosure Nebraska law requires all real estate licensees provide this information outlining the types of real estate services being offered. Nebraska law requires the seller to complete this statement (neb. Nebraska licensed real estate brokers and their associate brokers and salespersons are required by law to disclose the type of brokerage. Find and download or submit online various forms related to. Nebraska Real Estate Commission Agency Disclosure.
From www.templateroller.com
Nebraska Agency Disclosure Assignable Contract Addendum Fill Out Nebraska Real Estate Commission Agency Disclosure Find information and resources on the nebraska real estate commission, including laws, rules, policies, and guidelines. Nebraska law requires the seller to complete this statement (neb. Nebraska law requires all real estate licensees provide this information outlining the types of real estate services being offered. Nebraska licensed real estate brokers and their associate brokers and salespersons are required by law. Nebraska Real Estate Commission Agency Disclosure.
From downtownlincoln.org
Nebraska Real Estate Commission Downtown Lincoln Nebraska Real Estate Commission Agency Disclosure Nebraska licensed real estate brokers and their associate brokers and salespersons are required by law to disclose the type of brokerage. Find and download or submit online various forms related to real estate licensing, education, errors and omissions, and more. Nebraska law requires all real estate licensees provide this information outlining the types of real estate services being offered. Find. Nebraska Real Estate Commission Agency Disclosure.
From www.templateroller.com
Nebraska Application for License as a Real Estate Broker Fill Out Nebraska Real Estate Commission Agency Disclosure Find information and resources on the nebraska real estate commission, including laws, rules, policies, and guidelines. Nebraska law requires all real estate licensees provide this information outlining the types of real estate services being offered. Nebraska law requires the seller to complete this statement (neb. Nebraska licensed real estate brokers and their associate brokers and salespersons are required by law. Nebraska Real Estate Commission Agency Disclosure.
From www.templateroller.com
Nebraska Agency Disclosure Assignable Contract Addendum Fill Out Nebraska Real Estate Commission Agency Disclosure Find and download or submit online various forms related to real estate licensing, education, errors and omissions, and more. Nebraska law requires all real estate licensees provide this information outlining the types of real estate services being offered. Nebraska licensed real estate brokers and their associate brokers and salespersons are required by law to disclose the type of brokerage. Nebraska. Nebraska Real Estate Commission Agency Disclosure.
From fitsmallbusiness.com
How to Get Your Nebraska Real Estate License Nebraska Real Estate Commission Agency Disclosure Find and download or submit online various forms related to real estate licensing, education, errors and omissions, and more. Nebraska law requires the seller to complete this statement (neb. Nebraska law requires all real estate licensees provide this information outlining the types of real estate services being offered. Nebraska licensed real estate brokers and their associate brokers and salespersons are. Nebraska Real Estate Commission Agency Disclosure.
From www.templateroller.com
Nebraska Agency Disclosure Information for Buyers and Sellers Download Nebraska Real Estate Commission Agency Disclosure Nebraska licensed real estate brokers and their associate brokers and salespersons are required by law to disclose the type of brokerage. Nebraska law requires all real estate licensees provide this information outlining the types of real estate services being offered. Find and download or submit online various forms related to real estate licensing, education, errors and omissions, and more. Nebraska. Nebraska Real Estate Commission Agency Disclosure.
From eforms.com
Free Nebraska Residential Real Estate Purchase and Sale Agreement PDF Nebraska Real Estate Commission Agency Disclosure Nebraska law requires the seller to complete this statement (neb. Find and download or submit online various forms related to real estate licensing, education, errors and omissions, and more. Nebraska law requires all real estate licensees provide this information outlining the types of real estate services being offered. Nebraska licensed real estate brokers and their associate brokers and salespersons are. Nebraska Real Estate Commission Agency Disclosure.
From www.dochub.com
Real Estate Broker Disclosure Form. Made Fillable by eForms Fill out Nebraska Real Estate Commission Agency Disclosure Find and download or submit online various forms related to real estate licensing, education, errors and omissions, and more. Nebraska licensed real estate brokers and their associate brokers and salespersons are required by law to disclose the type of brokerage. Nebraska law requires all real estate licensees provide this information outlining the types of real estate services being offered. Nebraska. Nebraska Real Estate Commission Agency Disclosure.
From nebraska.licenselookup.org
Nebraska Real Estate License License Lookup Nebraska Real Estate Commission Agency Disclosure Nebraska law requires all real estate licensees provide this information outlining the types of real estate services being offered. Find information and resources on the nebraska real estate commission, including laws, rules, policies, and guidelines. Find and download or submit online various forms related to real estate licensing, education, errors and omissions, and more. Nebraska law requires the seller to. Nebraska Real Estate Commission Agency Disclosure.
From esign.com
Free Nebraska Property Disclosure Statement PDF Nebraska Real Estate Commission Agency Disclosure Nebraska law requires all real estate licensees provide this information outlining the types of real estate services being offered. Nebraska licensed real estate brokers and their associate brokers and salespersons are required by law to disclose the type of brokerage. Find information and resources on the nebraska real estate commission, including laws, rules, policies, and guidelines. Nebraska law requires the. Nebraska Real Estate Commission Agency Disclosure.
From www.templateroller.com
Nebraska Agency Disclosure Information for Tenants and Landlords Fill Nebraska Real Estate Commission Agency Disclosure Find information and resources on the nebraska real estate commission, including laws, rules, policies, and guidelines. Nebraska licensed real estate brokers and their associate brokers and salespersons are required by law to disclose the type of brokerage. Nebraska law requires all real estate licensees provide this information outlining the types of real estate services being offered. Nebraska law requires the. Nebraska Real Estate Commission Agency Disclosure.
From www.formsbank.com
Nebraska Real Estate Commission Seller Property Condition Disclosure Nebraska Real Estate Commission Agency Disclosure Nebraska licensed real estate brokers and their associate brokers and salespersons are required by law to disclose the type of brokerage. Find information and resources on the nebraska real estate commission, including laws, rules, policies, and guidelines. Find and download or submit online various forms related to real estate licensing, education, errors and omissions, and more. Nebraska law requires the. Nebraska Real Estate Commission Agency Disclosure.
From www.uslegalforms.com
Commercial Real Estate Disclosure Form US Legal Forms Nebraska Real Estate Commission Agency Disclosure Nebraska licensed real estate brokers and their associate brokers and salespersons are required by law to disclose the type of brokerage. Nebraska law requires all real estate licensees provide this information outlining the types of real estate services being offered. Find information and resources on the nebraska real estate commission, including laws, rules, policies, and guidelines. Find and download or. Nebraska Real Estate Commission Agency Disclosure.
From www.templateroller.com
Nebraska Agency Disclosure Information for Buyers and Sellers Download Nebraska Real Estate Commission Agency Disclosure Nebraska law requires the seller to complete this statement (neb. Find information and resources on the nebraska real estate commission, including laws, rules, policies, and guidelines. Find and download or submit online various forms related to real estate licensing, education, errors and omissions, and more. Nebraska law requires all real estate licensees provide this information outlining the types of real. Nebraska Real Estate Commission Agency Disclosure.
From www.templateroller.com
Nebraska Application for License as a Real Estate Salesperson Download Nebraska Real Estate Commission Agency Disclosure Nebraska licensed real estate brokers and their associate brokers and salespersons are required by law to disclose the type of brokerage. Find and download or submit online various forms related to real estate licensing, education, errors and omissions, and more. Find information and resources on the nebraska real estate commission, including laws, rules, policies, and guidelines. Nebraska law requires all. Nebraska Real Estate Commission Agency Disclosure.
From www.uslegalforms.com
Nebraska Residential Real Estate Sales Disclosure Statement Property Nebraska Real Estate Commission Agency Disclosure Nebraska law requires the seller to complete this statement (neb. Nebraska law requires all real estate licensees provide this information outlining the types of real estate services being offered. Nebraska licensed real estate brokers and their associate brokers and salespersons are required by law to disclose the type of brokerage. Find information and resources on the nebraska real estate commission,. Nebraska Real Estate Commission Agency Disclosure.