What Is A Finish Plan . A finish schedule specifies the interior finish material for each room, space, and floor in the building. A schedule as applied to construction working drawings is an organized method of presenting general notes or lists of materials, building components (doors, windows,. We do this by using finish tags (designations like f01 for the first type of flooring. See examples, tips, and best practices for. Not all projects will have a floor finish plan. It includes information such as the type of flooring,. This floor finish plan shows where certain. Finish work is essential for transforming a construction project into a livable, visually appealing, and functional space. The finish plans show what materials should be applied to the walls and floor throughout the building. Learn what a finish schedule is and how to create one for architectural projects. A room finish schedule is a detailed document that specifies all the materials and finishes that will be used in a project. In this article, we will explore the definition,. It ultimately comes down to the complexity of the finishes, and drawing needs.
from coretecfloors.art
This floor finish plan shows where certain. Finish work is essential for transforming a construction project into a livable, visually appealing, and functional space. Learn what a finish schedule is and how to create one for architectural projects. It includes information such as the type of flooring,. A room finish schedule is a detailed document that specifies all the materials and finishes that will be used in a project. In this article, we will explore the definition,. Not all projects will have a floor finish plan. The finish plans show what materials should be applied to the walls and floor throughout the building. A schedule as applied to construction working drawings is an organized method of presenting general notes or lists of materials, building components (doors, windows,. A finish schedule specifies the interior finish material for each room, space, and floor in the building.
Finished Floor Level Building Regulations The Floors
What Is A Finish Plan Finish work is essential for transforming a construction project into a livable, visually appealing, and functional space. It ultimately comes down to the complexity of the finishes, and drawing needs. See examples, tips, and best practices for. The finish plans show what materials should be applied to the walls and floor throughout the building. A schedule as applied to construction working drawings is an organized method of presenting general notes or lists of materials, building components (doors, windows,. We do this by using finish tags (designations like f01 for the first type of flooring. A finish schedule specifies the interior finish material for each room, space, and floor in the building. This floor finish plan shows where certain. In this article, we will explore the definition,. It includes information such as the type of flooring,. A room finish schedule is a detailed document that specifies all the materials and finishes that will be used in a project. Learn what a finish schedule is and how to create one for architectural projects. Not all projects will have a floor finish plan. Finish work is essential for transforming a construction project into a livable, visually appealing, and functional space.
From exovvltpl.blob.core.windows.net
What Is A Finish Plan at Cynthia Ramirez blog What Is A Finish Plan We do this by using finish tags (designations like f01 for the first type of flooring. It ultimately comes down to the complexity of the finishes, and drawing needs. Finish work is essential for transforming a construction project into a livable, visually appealing, and functional space. It includes information such as the type of flooring,. Not all projects will have. What Is A Finish Plan.
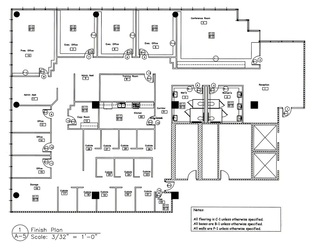
From flickr.com
Finish Plan INTR 202 Interior Materials and Applications … Flickr What Is A Finish Plan Learn what a finish schedule is and how to create one for architectural projects. A room finish schedule is a detailed document that specifies all the materials and finishes that will be used in a project. We do this by using finish tags (designations like f01 for the first type of flooring. The finish plans show what materials should be. What Is A Finish Plan.
From premierdesigncustomhomes.com
Finished Basement Plan Premier Design Custom Homes What Is A Finish Plan A schedule as applied to construction working drawings is an organized method of presenting general notes or lists of materials, building components (doors, windows,. A finish schedule specifies the interior finish material for each room, space, and floor in the building. It includes information such as the type of flooring,. Learn what a finish schedule is and how to create. What Is A Finish Plan.
From premierdesigncustomhomes.com
Finished Basement Floor Plan Premier Design Custom Homes What Is A Finish Plan See examples, tips, and best practices for. It includes information such as the type of flooring,. A schedule as applied to construction working drawings is an organized method of presenting general notes or lists of materials, building components (doors, windows,. We do this by using finish tags (designations like f01 for the first type of flooring. Not all projects will. What Is A Finish Plan.
From houseplanbuilder.blogspot.com
23+ Finish Plan Autocad What Is A Finish Plan It includes information such as the type of flooring,. Learn what a finish schedule is and how to create one for architectural projects. Not all projects will have a floor finish plan. The finish plans show what materials should be applied to the walls and floor throughout the building. This floor finish plan shows where certain. See examples, tips, and. What Is A Finish Plan.
From design.udlvirtual.edu.pe
Interior Design Finish Schedule Template Design Talk What Is A Finish Plan It ultimately comes down to the complexity of the finishes, and drawing needs. It includes information such as the type of flooring,. A finish schedule specifies the interior finish material for each room, space, and floor in the building. Learn what a finish schedule is and how to create one for architectural projects. A schedule as applied to construction working. What Is A Finish Plan.
From coleman-cooler-replacement-lids.blogspot.com
finish plan interior design colemancoolerreplacementlids What Is A Finish Plan Not all projects will have a floor finish plan. It includes information such as the type of flooring,. Finish work is essential for transforming a construction project into a livable, visually appealing, and functional space. A room finish schedule is a detailed document that specifies all the materials and finishes that will be used in a project. A schedule as. What Is A Finish Plan.
From jhmrad.com
Hands Down These 26 Finish Floor Plan Ideas That Will Suit You JHMRad What Is A Finish Plan The finish plans show what materials should be applied to the walls and floor throughout the building. It includes information such as the type of flooring,. In this article, we will explore the definition,. A room finish schedule is a detailed document that specifies all the materials and finishes that will be used in a project. Finish work is essential. What Is A Finish Plan.
From waldrondesigns.com
Floor Finish Plans What they Communicate — Waldron Designs What Is A Finish Plan Not all projects will have a floor finish plan. It ultimately comes down to the complexity of the finishes, and drawing needs. A schedule as applied to construction working drawings is an organized method of presenting general notes or lists of materials, building components (doors, windows,. A room finish schedule is a detailed document that specifies all the materials and. What Is A Finish Plan.
From viewfloor.co
How To Apply Floor Finish In Revit Viewfloor.co What Is A Finish Plan See examples, tips, and best practices for. A schedule as applied to construction working drawings is an organized method of presenting general notes or lists of materials, building components (doors, windows,. It includes information such as the type of flooring,. Not all projects will have a floor finish plan. It ultimately comes down to the complexity of the finishes, and. What Is A Finish Plan.
From coretecfloors.art
Finished Floor Level Building Regulations The Floors What Is A Finish Plan A room finish schedule is a detailed document that specifies all the materials and finishes that will be used in a project. We do this by using finish tags (designations like f01 for the first type of flooring. See examples, tips, and best practices for. In this article, we will explore the definition,. A finish schedule specifies the interior finish. What Is A Finish Plan.
From lynchforva.com
21 Unique Finish Floor Plan Architecture Plans What Is A Finish Plan Not all projects will have a floor finish plan. A schedule as applied to construction working drawings is an organized method of presenting general notes or lists of materials, building components (doors, windows,. This floor finish plan shows where certain. It ultimately comes down to the complexity of the finishes, and drawing needs. In this article, we will explore the. What Is A Finish Plan.
From lindadaiana.blogspot.com
19+ Floor Finish Plan LindaDaiana What Is A Finish Plan The finish plans show what materials should be applied to the walls and floor throughout the building. See examples, tips, and best practices for. A room finish schedule is a detailed document that specifies all the materials and finishes that will be used in a project. This floor finish plan shows where certain. Learn what a finish schedule is and. What Is A Finish Plan.
From design.udlvirtual.edu.pe
Interior Design Finish Schedule Template Design Talk What Is A Finish Plan Finish work is essential for transforming a construction project into a livable, visually appealing, and functional space. A room finish schedule is a detailed document that specifies all the materials and finishes that will be used in a project. In this article, we will explore the definition,. We do this by using finish tags (designations like f01 for the first. What Is A Finish Plan.
From www.flickr.com
Finish Plan B Ann Schutz Flickr What Is A Finish Plan A finish schedule specifies the interior finish material for each room, space, and floor in the building. In this article, we will explore the definition,. It includes information such as the type of flooring,. Learn what a finish schedule is and how to create one for architectural projects. This floor finish plan shows where certain. A room finish schedule is. What Is A Finish Plan.
From www.pinterest.com
Finish Plan Floor Plans, Diagram, How To Plan, Floor Plan Drawing What Is A Finish Plan Learn what a finish schedule is and how to create one for architectural projects. We do this by using finish tags (designations like f01 for the first type of flooring. A finish schedule specifies the interior finish material for each room, space, and floor in the building. A schedule as applied to construction working drawings is an organized method of. What Is A Finish Plan.
From www.huonvalley.tas.gov.au
8 Developing in flood prone areas Huon Valley Council Huon Valley What Is A Finish Plan This floor finish plan shows where certain. We do this by using finish tags (designations like f01 for the first type of flooring. A room finish schedule is a detailed document that specifies all the materials and finishes that will be used in a project. A schedule as applied to construction working drawings is an organized method of presenting general. What Is A Finish Plan.
From civilplanets.com
Difference Between Plinth Level, Sill Level And Lintel Level What Is A Finish Plan A room finish schedule is a detailed document that specifies all the materials and finishes that will be used in a project. Learn what a finish schedule is and how to create one for architectural projects. Finish work is essential for transforming a construction project into a livable, visually appealing, and functional space. It includes information such as the type. What Is A Finish Plan.
From floorfinishesruikari.blogspot.com
Floor Finishes Floor Finishes Plan What Is A Finish Plan It includes information such as the type of flooring,. A finish schedule specifies the interior finish material for each room, space, and floor in the building. In this article, we will explore the definition,. The finish plans show what materials should be applied to the walls and floor throughout the building. Not all projects will have a floor finish plan.. What Is A Finish Plan.
From www.pinterest.com
Floor Finishes Plan (With images) Floor finishes, How to plan, Floor What Is A Finish Plan The finish plans show what materials should be applied to the walls and floor throughout the building. See examples, tips, and best practices for. It includes information such as the type of flooring,. Not all projects will have a floor finish plan. Learn what a finish schedule is and how to create one for architectural projects. This floor finish plan. What Is A Finish Plan.
From www.pinterest.com
Finish Plan How to plan, Floor plans, Architecture What Is A Finish Plan We do this by using finish tags (designations like f01 for the first type of flooring. The finish plans show what materials should be applied to the walls and floor throughout the building. A room finish schedule is a detailed document that specifies all the materials and finishes that will be used in a project. A schedule as applied to. What Is A Finish Plan.
From bimchapters.blogspot.com
BIM Chapters Floor Finish Legend in Revit What Is A Finish Plan A schedule as applied to construction working drawings is an organized method of presenting general notes or lists of materials, building components (doors, windows,. It includes information such as the type of flooring,. The finish plans show what materials should be applied to the walls and floor throughout the building. We do this by using finish tags (designations like f01. What Is A Finish Plan.
From manartphotographybeautiful.blogspot.com
interior design finish plan manartphotographybeautiful What Is A Finish Plan In this article, we will explore the definition,. See examples, tips, and best practices for. Learn what a finish schedule is and how to create one for architectural projects. It includes information such as the type of flooring,. We do this by using finish tags (designations like f01 for the first type of flooring. Not all projects will have a. What Is A Finish Plan.
From issuu.com
Sheet a 3 finish plan by Chelsey Glidden Issuu What Is A Finish Plan In this article, we will explore the definition,. A room finish schedule is a detailed document that specifies all the materials and finishes that will be used in a project. See examples, tips, and best practices for. This floor finish plan shows where certain. We do this by using finish tags (designations like f01 for the first type of flooring.. What Is A Finish Plan.
From www.pinterest.com
9 best Finish Plans & Schedules images on Pinterest Schedule What Is A Finish Plan It includes information such as the type of flooring,. The finish plans show what materials should be applied to the walls and floor throughout the building. A finish schedule specifies the interior finish material for each room, space, and floor in the building. We do this by using finish tags (designations like f01 for the first type of flooring. A. What Is A Finish Plan.
From waldrondesigns.com
Floor Finish Plans What they Communicate — Waldron Designs What Is A Finish Plan This floor finish plan shows where certain. In this article, we will explore the definition,. Learn what a finish schedule is and how to create one for architectural projects. It includes information such as the type of flooring,. A room finish schedule is a detailed document that specifies all the materials and finishes that will be used in a project.. What Is A Finish Plan.
From archinect.com
Be Well Construction Documents darra Archinect What Is A Finish Plan It ultimately comes down to the complexity of the finishes, and drawing needs. This floor finish plan shows where certain. Learn what a finish schedule is and how to create one for architectural projects. The finish plans show what materials should be applied to the walls and floor throughout the building. We do this by using finish tags (designations like. What Is A Finish Plan.
From www.pinterest.com
Finish Plan What Is A Finish Plan Finish work is essential for transforming a construction project into a livable, visually appealing, and functional space. A finish schedule specifies the interior finish material for each room, space, and floor in the building. A schedule as applied to construction working drawings is an organized method of presenting general notes or lists of materials, building components (doors, windows,. This floor. What Is A Finish Plan.
From www.slideshare.net
Rock Cd A3 Finish Plan What Is A Finish Plan A finish schedule specifies the interior finish material for each room, space, and floor in the building. A room finish schedule is a detailed document that specifies all the materials and finishes that will be used in a project. Not all projects will have a floor finish plan. It ultimately comes down to the complexity of the finishes, and drawing. What Is A Finish Plan.
From exovvltpl.blob.core.windows.net
What Is A Finish Plan at Cynthia Ramirez blog What Is A Finish Plan Learn what a finish schedule is and how to create one for architectural projects. In this article, we will explore the definition,. It includes information such as the type of flooring,. This floor finish plan shows where certain. The finish plans show what materials should be applied to the walls and floor throughout the building. We do this by using. What Is A Finish Plan.
From www.archisoup.com
Understanding Floor Levels archisoup What Is A Finish Plan The finish plans show what materials should be applied to the walls and floor throughout the building. We do this by using finish tags (designations like f01 for the first type of flooring. See examples, tips, and best practices for. Learn what a finish schedule is and how to create one for architectural projects. It ultimately comes down to the. What Is A Finish Plan.
From mathor450872.blogspot.com
interior design finish plan mathor450872 What Is A Finish Plan The finish plans show what materials should be applied to the walls and floor throughout the building. Learn what a finish schedule is and how to create one for architectural projects. See examples, tips, and best practices for. In this article, we will explore the definition,. A schedule as applied to construction working drawings is an organized method of presenting. What Is A Finish Plan.
From www.pinterest.com.au
Construction Documents Plan and Layout What Is A Finish Plan A schedule as applied to construction working drawings is an organized method of presenting general notes or lists of materials, building components (doors, windows,. Finish work is essential for transforming a construction project into a livable, visually appealing, and functional space. The finish plans show what materials should be applied to the walls and floor throughout the building. It ultimately. What Is A Finish Plan.
From cadbull.com
The Floor pattern plan, Wall finishing plan and ceiling plan details of What Is A Finish Plan It includes information such as the type of flooring,. The finish plans show what materials should be applied to the walls and floor throughout the building. In this article, we will explore the definition,. A schedule as applied to construction working drawings is an organized method of presenting general notes or lists of materials, building components (doors, windows,. We do. What Is A Finish Plan.
From www.pinterest.com
Finish Schedule Example HW7Finish Plans Pinterest Bath What Is A Finish Plan It includes information such as the type of flooring,. The finish plans show what materials should be applied to the walls and floor throughout the building. A finish schedule specifies the interior finish material for each room, space, and floor in the building. This floor finish plan shows where certain. We do this by using finish tags (designations like f01. What Is A Finish Plan.