Sample Rigging Plan . 11 is a critical lift plan required? 8 10 safety devices and operational aids are present and functioning? the crane lift plan is ideal for construction managers, safety officers, project coordinators, crane operators, and engineering teams involved in crane. Find below safe work lifting plan template for use in crane lifting process. the crane association produces a rigging plan that can be used as standalone or as an attachment to a lift plan for complex lifts. — a rigging plan is required for every lift at a site and a qualified person needs to understand the math that is creating forces on every lift. These cica documents have been compiled for. ordinary lift plan elements once a lift has been planned and approved, the appropriate rigging.
from www.hsedocuments.com
the crane association produces a rigging plan that can be used as standalone or as an attachment to a lift plan for complex lifts. Find below safe work lifting plan template for use in crane lifting process. These cica documents have been compiled for. ordinary lift plan elements once a lift has been planned and approved, the appropriate rigging. the crane lift plan is ideal for construction managers, safety officers, project coordinators, crane operators, and engineering teams involved in crane. 11 is a critical lift plan required? — a rigging plan is required for every lift at a site and a qualified person needs to understand the math that is creating forces on every lift. 8 10 safety devices and operational aids are present and functioning?
Crane Lift Plan (CLP)Planning and Process HSE Documents
Sample Rigging Plan 11 is a critical lift plan required? Find below safe work lifting plan template for use in crane lifting process. — a rigging plan is required for every lift at a site and a qualified person needs to understand the math that is creating forces on every lift. ordinary lift plan elements once a lift has been planned and approved, the appropriate rigging. the crane lift plan is ideal for construction managers, safety officers, project coordinators, crane operators, and engineering teams involved in crane. the crane association produces a rigging plan that can be used as standalone or as an attachment to a lift plan for complex lifts. 8 10 safety devices and operational aids are present and functioning? These cica documents have been compiled for. 11 is a critical lift plan required?
From mullinsrigging.com
John Mullins Rigging & Hauling, Albany, Troy, Schenectady & Saratoga Sample Rigging Plan Find below safe work lifting plan template for use in crane lifting process. These cica documents have been compiled for. the crane lift plan is ideal for construction managers, safety officers, project coordinators, crane operators, and engineering teams involved in crane. the crane association produces a rigging plan that can be used as standalone or as an attachment. Sample Rigging Plan.
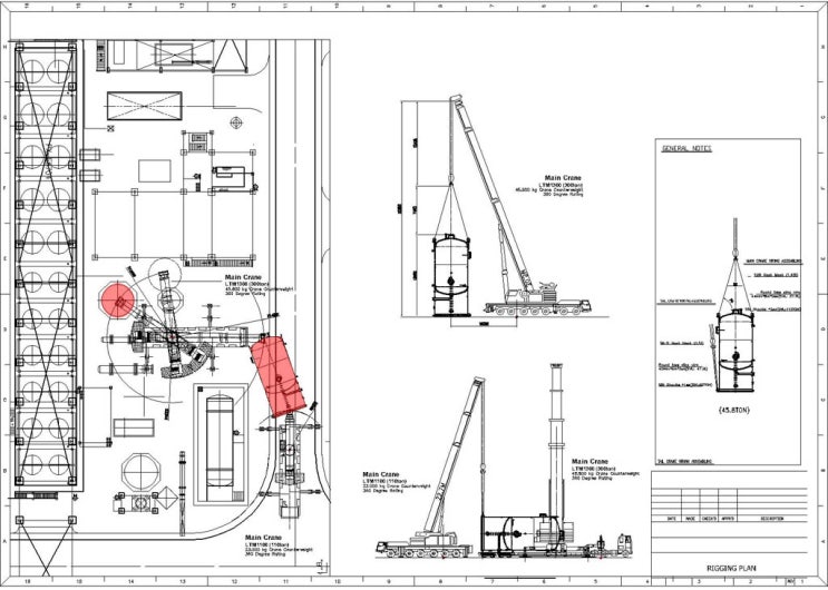
From www.scribd.com
Sample Lifting Plan and Rigging Study Sample Rigging Plan the crane lift plan is ideal for construction managers, safety officers, project coordinators, crane operators, and engineering teams involved in crane. These cica documents have been compiled for. ordinary lift plan elements once a lift has been planned and approved, the appropriate rigging. the crane association produces a rigging plan that can be used as standalone or. Sample Rigging Plan.
From www.scribd.com
Rigging Plan Crane (Machine) Manufactured Goods Sample Rigging Plan the crane association produces a rigging plan that can be used as standalone or as an attachment to a lift plan for complex lifts. the crane lift plan is ideal for construction managers, safety officers, project coordinators, crane operators, and engineering teams involved in crane. These cica documents have been compiled for. 11 is a critical lift. Sample Rigging Plan.
From realguindastes.com
Rigging plan, complete study of cargo lift and handling Sample Rigging Plan 11 is a critical lift plan required? Find below safe work lifting plan template for use in crane lifting process. 8 10 safety devices and operational aids are present and functioning? ordinary lift plan elements once a lift has been planned and approved, the appropriate rigging. — a rigging plan is required for every lift at a. Sample Rigging Plan.
From sidcartransportes.net.br
Plano de Rigging Sample Rigging Plan 8 10 safety devices and operational aids are present and functioning? These cica documents have been compiled for. — a rigging plan is required for every lift at a site and a qualified person needs to understand the math that is creating forces on every lift. Find below safe work lifting plan template for use in crane lifting process.. Sample Rigging Plan.
From www.lowther-rolton.com
LowtherRolton Lift & Transportation Planning Services Sample Rigging Plan — a rigging plan is required for every lift at a site and a qualified person needs to understand the math that is creating forces on every lift. Find below safe work lifting plan template for use in crane lifting process. 11 is a critical lift plan required? ordinary lift plan elements once a lift has been. Sample Rigging Plan.
From paktechpoint.com
TYPICAL RIG PLAN OF MODULE STRUCTURE RIGGING PROCEDURE PAKTECHPOINT Sample Rigging Plan Find below safe work lifting plan template for use in crane lifting process. ordinary lift plan elements once a lift has been planned and approved, the appropriate rigging. the crane lift plan is ideal for construction managers, safety officers, project coordinators, crane operators, and engineering teams involved in crane. the crane association produces a rigging plan that. Sample Rigging Plan.
From www.scribd.com
Rigging Plan Montaje Rev 01 PDF Sample Rigging Plan the crane lift plan is ideal for construction managers, safety officers, project coordinators, crane operators, and engineering teams involved in crane. ordinary lift plan elements once a lift has been planned and approved, the appropriate rigging. Find below safe work lifting plan template for use in crane lifting process. 11 is a critical lift plan required? . Sample Rigging Plan.
From www.scribd.com
Lifting Study Calculation HaGun Crane (Machine) Rigging Sample Rigging Plan Find below safe work lifting plan template for use in crane lifting process. — a rigging plan is required for every lift at a site and a qualified person needs to understand the math that is creating forces on every lift. the crane lift plan is ideal for construction managers, safety officers, project coordinators, crane operators, and engineering. Sample Rigging Plan.
From www.hsedocuments.com
Crane Lift Plan (CLP)Planning and Process HSE Documents Sample Rigging Plan ordinary lift plan elements once a lift has been planned and approved, the appropriate rigging. These cica documents have been compiled for. the crane lift plan is ideal for construction managers, safety officers, project coordinators, crane operators, and engineering teams involved in crane. Find below safe work lifting plan template for use in crane lifting process. 11. Sample Rigging Plan.
From www.iti.com
Rigging Training Load Control Sample Rigging Plan the crane association produces a rigging plan that can be used as standalone or as an attachment to a lift plan for complex lifts. 11 is a critical lift plan required? the crane lift plan is ideal for construction managers, safety officers, project coordinators, crane operators, and engineering teams involved in crane. 8 10 safety devices and. Sample Rigging Plan.
From www.equipmenthandbooks.com
How to setup CAD based crane lift plans Sample Rigging Plan ordinary lift plan elements once a lift has been planned and approved, the appropriate rigging. These cica documents have been compiled for. the crane association produces a rigging plan that can be used as standalone or as an attachment to a lift plan for complex lifts. the crane lift plan is ideal for construction managers, safety officers,. Sample Rigging Plan.
From methodstatementhq.com
Lifting Plan Template Sample for Crane Lift HSE Sample Rigging Plan the crane association produces a rigging plan that can be used as standalone or as an attachment to a lift plan for complex lifts. — a rigging plan is required for every lift at a site and a qualified person needs to understand the math that is creating forces on every lift. the crane lift plan is. Sample Rigging Plan.
From www.3dliftplan.com
3D Lift Plan Crane Lift Planning Software Sample Rigging Plan the crane association produces a rigging plan that can be used as standalone or as an attachment to a lift plan for complex lifts. ordinary lift plan elements once a lift has been planned and approved, the appropriate rigging. 11 is a critical lift plan required? Find below safe work lifting plan template for use in crane. Sample Rigging Plan.
From www.slideshare.net
Wrs rigging practice Sample Rigging Plan Find below safe work lifting plan template for use in crane lifting process. 11 is a critical lift plan required? ordinary lift plan elements once a lift has been planned and approved, the appropriate rigging. — a rigging plan is required for every lift at a site and a qualified person needs to understand the math that. Sample Rigging Plan.
From www.slideshare.net
Lifting plan Sample Rigging Plan — a rigging plan is required for every lift at a site and a qualified person needs to understand the math that is creating forces on every lift. the crane lift plan is ideal for construction managers, safety officers, project coordinators, crane operators, and engineering teams involved in crane. 8 10 safety devices and operational aids are present. Sample Rigging Plan.
From www.edrawsoft.com
Block and Tackle Rigging Diagram [+ Examples] EdrawMax Sample Rigging Plan the crane lift plan is ideal for construction managers, safety officers, project coordinators, crane operators, and engineering teams involved in crane. ordinary lift plan elements once a lift has been planned and approved, the appropriate rigging. Find below safe work lifting plan template for use in crane lifting process. 8 10 safety devices and operational aids are present. Sample Rigging Plan.
From template.mapadapalavra.ba.gov.br
Rigging Plan Template Sample Rigging Plan the crane lift plan is ideal for construction managers, safety officers, project coordinators, crane operators, and engineering teams involved in crane. These cica documents have been compiled for. 11 is a critical lift plan required? ordinary lift plan elements once a lift has been planned and approved, the appropriate rigging. Find below safe work lifting plan template. Sample Rigging Plan.
From realguindastes.com
Rigging plan, complete study of cargo lift and handling Sample Rigging Plan 8 10 safety devices and operational aids are present and functioning? — a rigging plan is required for every lift at a site and a qualified person needs to understand the math that is creating forces on every lift. ordinary lift plan elements once a lift has been planned and approved, the appropriate rigging. 11 is a. Sample Rigging Plan.
From realguindastes.com
Rigging plan, complete study of cargo lift and handling Sample Rigging Plan Find below safe work lifting plan template for use in crane lifting process. These cica documents have been compiled for. ordinary lift plan elements once a lift has been planned and approved, the appropriate rigging. 8 10 safety devices and operational aids are present and functioning? 11 is a critical lift plan required? the crane lift plan. Sample Rigging Plan.
From blog.naver.com
Rigging Plan4Tailing Crain 네이버 블로그 Sample Rigging Plan the crane lift plan is ideal for construction managers, safety officers, project coordinators, crane operators, and engineering teams involved in crane. 8 10 safety devices and operational aids are present and functioning? 11 is a critical lift plan required? These cica documents have been compiled for. the crane association produces a rigging plan that can be used. Sample Rigging Plan.
From greenwgroup.co.in
How to Create a Rigging Plan Types of Rigging Plans Sample Rigging Plan ordinary lift plan elements once a lift has been planned and approved, the appropriate rigging. 11 is a critical lift plan required? Find below safe work lifting plan template for use in crane lifting process. the crane lift plan is ideal for construction managers, safety officers, project coordinators, crane operators, and engineering teams involved in crane. These. Sample Rigging Plan.
From hamiltonplastering.com
40 Crane Lifting Plan Template Hamiltonplastering Sample Rigging Plan ordinary lift plan elements once a lift has been planned and approved, the appropriate rigging. These cica documents have been compiled for. — a rigging plan is required for every lift at a site and a qualified person needs to understand the math that is creating forces on every lift. 11 is a critical lift plan required?. Sample Rigging Plan.
From tutore.org
Tower Rigging Plan Template Master of Documents Sample Rigging Plan the crane association produces a rigging plan that can be used as standalone or as an attachment to a lift plan for complex lifts. Find below safe work lifting plan template for use in crane lifting process. the crane lift plan is ideal for construction managers, safety officers, project coordinators, crane operators, and engineering teams involved in crane.. Sample Rigging Plan.
From templates.hilarious.edu.np
Crane Lift Plan Template Sample Rigging Plan the crane lift plan is ideal for construction managers, safety officers, project coordinators, crane operators, and engineering teams involved in crane. the crane association produces a rigging plan that can be used as standalone or as an attachment to a lift plan for complex lifts. — a rigging plan is required for every lift at a site. Sample Rigging Plan.
From www.scribd.com
Rigging Plan PDF Sample Rigging Plan 8 10 safety devices and operational aids are present and functioning? ordinary lift plan elements once a lift has been planned and approved, the appropriate rigging. Find below safe work lifting plan template for use in crane lifting process. These cica documents have been compiled for. the crane association produces a rigging plan that can be used as. Sample Rigging Plan.
From mavink.com
Square Rigger Rigging Diagram Plans Sample Rigging Plan Find below safe work lifting plan template for use in crane lifting process. 8 10 safety devices and operational aids are present and functioning? ordinary lift plan elements once a lift has been planned and approved, the appropriate rigging. the crane association produces a rigging plan that can be used as standalone or as an attachment to a. Sample Rigging Plan.
From www.researchgate.net
Standing rigging plan side view of the ship Slika 8 Plan opute bočni Sample Rigging Plan These cica documents have been compiled for. Find below safe work lifting plan template for use in crane lifting process. ordinary lift plan elements once a lift has been planned and approved, the appropriate rigging. the crane association produces a rigging plan that can be used as standalone or as an attachment to a lift plan for complex. Sample Rigging Plan.
From syaifur1453.blogspot.com
Catatan Kecilku Rigging Plan/Lifting Plan Sample Rigging Plan the crane lift plan is ideal for construction managers, safety officers, project coordinators, crane operators, and engineering teams involved in crane. Find below safe work lifting plan template for use in crane lifting process. 8 10 safety devices and operational aids are present and functioning? ordinary lift plan elements once a lift has been planned and approved, the. Sample Rigging Plan.
From www.scribd.com
Rigging or Lifting Plan Sample Rigging Plan — a rigging plan is required for every lift at a site and a qualified person needs to understand the math that is creating forces on every lift. 8 10 safety devices and operational aids are present and functioning? the crane lift plan is ideal for construction managers, safety officers, project coordinators, crane operators, and engineering teams involved. Sample Rigging Plan.
From riggingbrasil.com.br
Plano de Rigging / Plano de Carga Rigging Brasil Sample Rigging Plan the crane lift plan is ideal for construction managers, safety officers, project coordinators, crane operators, and engineering teams involved in crane. These cica documents have been compiled for. the crane association produces a rigging plan that can be used as standalone or as an attachment to a lift plan for complex lifts. — a rigging plan is. Sample Rigging Plan.
From realguindastes.com
Rigging plan, complete study of cargo lift and handling Sample Rigging Plan Find below safe work lifting plan template for use in crane lifting process. 8 10 safety devices and operational aids are present and functioning? 11 is a critical lift plan required? the crane association produces a rigging plan that can be used as standalone or as an attachment to a lift plan for complex lifts. the crane. Sample Rigging Plan.
From iliftplan.com
Rigging Planning and Design International Lift Planning Anaheim CA Sample Rigging Plan Find below safe work lifting plan template for use in crane lifting process. These cica documents have been compiled for. ordinary lift plan elements once a lift has been planned and approved, the appropriate rigging. 11 is a critical lift plan required? 8 10 safety devices and operational aids are present and functioning? the crane lift plan. Sample Rigging Plan.
From www.lowther-rolton.com
LowtherRolton Lift & Transportation Planning Services Sample Rigging Plan Find below safe work lifting plan template for use in crane lifting process. 11 is a critical lift plan required? the crane lift plan is ideal for construction managers, safety officers, project coordinators, crane operators, and engineering teams involved in crane. These cica documents have been compiled for. ordinary lift plan elements once a lift has been. Sample Rigging Plan.
From old.sermitsiaq.ag
Rigging Plan Template Sample Rigging Plan 8 10 safety devices and operational aids are present and functioning? Find below safe work lifting plan template for use in crane lifting process. These cica documents have been compiled for. 11 is a critical lift plan required? — a rigging plan is required for every lift at a site and a qualified person needs to understand the. Sample Rigging Plan.