Roof Lantern Diagram . Preparing the opening and ringbeam. Create a level timber kerb around the opening you have formed in the roof, measuring a minimum of 70mm in. roof lantern drawings. a roof lantern is essentially a skylight or rooflight that sits on top of a flat or sloped roof. The glass is secured in place with purposely designed channel. installation installation guide guide. Screwdriver rafter outer end cap. the purpose of this installation guide is to assist the installation team when erecting a traditional roof lantern. Hip inner boss top cap. The drawings below illustrate our standard methods of traditional lantern construction. open the roof lantern via the remote control and secure it to your kerb through the preformed holes in the top of the. It is typically made of glass or other translucent materials assembled within a glazed framed structure. They serve both practical and aesthetic purposes. Once you have built your flat roof it is critical that the opening matches the size of the. During the day, sunlight streams through the roof lantern, naturally lighting the space below.
from www.rooflanterns.co.uk
a roof lantern is essentially a skylight or rooflight that sits on top of a flat or sloped roof. Create a level timber kerb around the opening you have formed in the roof, measuring a minimum of 70mm in. Our default roof pitch is 20º, but we do produce lanterns with steeper slopes. Screwdriver rafter outer end cap. This installation guide will ensure the quick and easy assembly of your atlas lantern. open the roof lantern via the remote control and secure it to your kerb through the preformed holes in the top of the. It is typically made of glass or other translucent materials assembled within a glazed framed structure. installation installation guide guide. They serve both practical and aesthetic purposes. the purpose of this installation guide is to assist the installation team when erecting a traditional roof lantern.
Technical Roof Lanterns
Roof Lantern Diagram Our default roof pitch is 20º, but we do produce lanterns with steeper slopes. open the roof lantern via the remote control and secure it to your kerb through the preformed holes in the top of the. Hip inner boss top cap. The glass is secured in place with purposely designed channel. Screwdriver rafter outer end cap. They serve both practical and aesthetic purposes. Create a level timber kerb around the opening you have formed in the roof, measuring a minimum of 70mm in. During the day, sunlight streams through the roof lantern, naturally lighting the space below. Once you have built your flat roof it is critical that the opening matches the size of the. Our default roof pitch is 20º, but we do produce lanterns with steeper slopes. a roof lantern is essentially a skylight or rooflight that sits on top of a flat or sloped roof. This installation guide will ensure the quick and easy assembly of your atlas lantern. installation installation guide guide. The drawings below illustrate our standard methods of traditional lantern construction. the purpose of this installation guide is to assist the installation team when erecting a traditional roof lantern. It is typically made of glass or other translucent materials assembled within a glazed framed structure.
From www.vrogue.co
Roof Lantern Flat Roof Extension Roof Construction vrogue.co Roof Lantern Diagram installation installation guide guide. the purpose of this installation guide is to assist the installation team when erecting a traditional roof lantern. Once you have built your flat roof it is critical that the opening matches the size of the. They serve both practical and aesthetic purposes. The glass is secured in place with purposely designed channel. Our. Roof Lantern Diagram.
From skylights-rooflanterns.co.uk
Roof Lantern Brett Martin Skylights Roof Lanterns Roof Lantern Diagram It is typically made of glass or other translucent materials assembled within a glazed framed structure. installation installation guide guide. Preparing the opening and ringbeam. This installation guide will ensure the quick and easy assembly of your atlas lantern. They serve both practical and aesthetic purposes. Once you have built your flat roof it is critical that the opening. Roof Lantern Diagram.
From www.kingsholme.co.uk
Roof Lantern Drawings Orangeries Roof Lanterns Kingsholme Roof Lantern Diagram Screwdriver rafter outer end cap. The glass is secured in place with purposely designed channel. a roof lantern is essentially a skylight or rooflight that sits on top of a flat or sloped roof. Preparing the opening and ringbeam. Hip inner boss top cap. It is typically made of glass or other translucent materials assembled within a glazed framed. Roof Lantern Diagram.
From justrooflanterns.co.uk
Pendant Lantern Just Roof Lanterns Roof Lantern Diagram roof lantern drawings. installation installation guide guide. Preparing the opening and ringbeam. During the day, sunlight streams through the roof lantern, naturally lighting the space below. Once you have built your flat roof it is critical that the opening matches the size of the. open the roof lantern via the remote control and secure it to your. Roof Lantern Diagram.
From saris-extensions.co.uk
Regular Roof Lantern 2000 x 4000mm SarisExtensions.co.uk Roof Lantern Diagram Create a level timber kerb around the opening you have formed in the roof, measuring a minimum of 70mm in. Preparing the opening and ringbeam. The drawings below illustrate our standard methods of traditional lantern construction. Once you have built your flat roof it is critical that the opening matches the size of the. roof lantern drawings. They serve. Roof Lantern Diagram.
From www.modernupvcwindows.co.uk
Korniche Roof Lantern measuring guide Roof Lantern Diagram The drawings below illustrate our standard methods of traditional lantern construction. a roof lantern is essentially a skylight or rooflight that sits on top of a flat or sloped roof. Hip inner boss top cap. the purpose of this installation guide is to assist the installation team when erecting a traditional roof lantern. They serve both practical and. Roof Lantern Diagram.
From justrooflanterns.co.uk
The Cumberland Roof Lantern Just Roof Lanterns Roof Lantern Diagram Our default roof pitch is 20º, but we do produce lanterns with steeper slopes. the purpose of this installation guide is to assist the installation team when erecting a traditional roof lantern. The drawings below illustrate our standard methods of traditional lantern construction. Create a level timber kerb around the opening you have formed in the roof, measuring a. Roof Lantern Diagram.
From www.kingsholme.co.uk
Traditional Roof Lanterns Kingsholme Roof Lantern Diagram They serve both practical and aesthetic purposes. installation installation guide guide. a roof lantern is essentially a skylight or rooflight that sits on top of a flat or sloped roof. This installation guide will ensure the quick and easy assembly of your atlas lantern. During the day, sunlight streams through the roof lantern, naturally lighting the space below.. Roof Lantern Diagram.
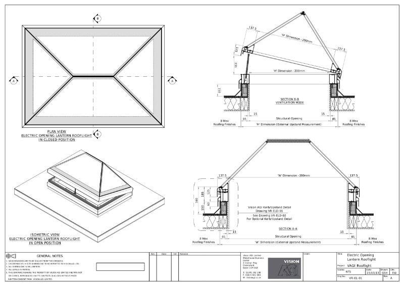
From source.thenbs.com
Electric Opening Roof Lantern Next Generation Rooflights NBS Source Roof Lantern Diagram open the roof lantern via the remote control and secure it to your kerb through the preformed holes in the top of the. a roof lantern is essentially a skylight or rooflight that sits on top of a flat or sloped roof. roof lantern drawings. It is typically made of glass or other translucent materials assembled within. Roof Lantern Diagram.
From www.rooflanterns.co.uk
Technical Roof Lanterns Roof Lantern Diagram roof lantern drawings. installation installation guide guide. They serve both practical and aesthetic purposes. Hip inner boss top cap. a roof lantern is essentially a skylight or rooflight that sits on top of a flat or sloped roof. It is typically made of glass or other translucent materials assembled within a glazed framed structure. the purpose. Roof Lantern Diagram.
From www.rooflanterns.co.uk
Technical Roof Lanterns Roof Lantern Diagram This installation guide will ensure the quick and easy assembly of your atlas lantern. Create a level timber kerb around the opening you have formed in the roof, measuring a minimum of 70mm in. They serve both practical and aesthetic purposes. roof lantern drawings. a roof lantern is essentially a skylight or rooflight that sits on top of. Roof Lantern Diagram.
From justrooflanterns.co.uk
The Egerton Roof Lantern Just Roof Lanterns Roof Lantern Diagram Preparing the opening and ringbeam. It is typically made of glass or other translucent materials assembled within a glazed framed structure. installation installation guide guide. open the roof lantern via the remote control and secure it to your kerb through the preformed holes in the top of the. the purpose of this installation guide is to assist. Roof Lantern Diagram.
From justrooflanterns.co.uk
The Egerton Roof Lantern Just Roof Lanterns Roof Lantern Diagram a roof lantern is essentially a skylight or rooflight that sits on top of a flat or sloped roof. It is typically made of glass or other translucent materials assembled within a glazed framed structure. Our default roof pitch is 20º, but we do produce lanterns with steeper slopes. The drawings below illustrate our standard methods of traditional lantern. Roof Lantern Diagram.
From justrooflanterns.co.uk
The Linear Roof Lantern Upstand Detail Just Roof Lanterns Roof Lantern Diagram Preparing the opening and ringbeam. the purpose of this installation guide is to assist the installation team when erecting a traditional roof lantern. Screwdriver rafter outer end cap. The glass is secured in place with purposely designed channel. They serve both practical and aesthetic purposes. It is typically made of glass or other translucent materials assembled within a glazed. Roof Lantern Diagram.
From justrooflanterns.co.uk
The Roof Lantern Upstand Just Roof Lanterns Roof Lantern Diagram Screwdriver rafter outer end cap. installation installation guide guide. Preparing the opening and ringbeam. Hip inner boss top cap. They serve both practical and aesthetic purposes. This installation guide will ensure the quick and easy assembly of your atlas lantern. Create a level timber kerb around the opening you have formed in the roof, measuring a minimum of 70mm. Roof Lantern Diagram.
From www.rooflanterns.co.uk
Stock Sizes Roof Lanterns Roof Lantern Diagram the purpose of this installation guide is to assist the installation team when erecting a traditional roof lantern. installation installation guide guide. This installation guide will ensure the quick and easy assembly of your atlas lantern. During the day, sunlight streams through the roof lantern, naturally lighting the space below. Preparing the opening and ringbeam. a roof. Roof Lantern Diagram.
From gdflatroofing.co.uk
Roof lantern installers in Buckinghamshire GD Flat Roofing Roof Lantern Diagram installation installation guide guide. Preparing the opening and ringbeam. Once you have built your flat roof it is critical that the opening matches the size of the. They serve both practical and aesthetic purposes. a roof lantern is essentially a skylight or rooflight that sits on top of a flat or sloped roof. The drawings below illustrate our. Roof Lantern Diagram.
From tradeexpressbifolds.co.uk
2 Way Aluminium Roof Lantern 2000 x 1000mm Trade Express BiFolds Roof Lantern Diagram a roof lantern is essentially a skylight or rooflight that sits on top of a flat or sloped roof. They serve both practical and aesthetic purposes. This installation guide will ensure the quick and easy assembly of your atlas lantern. Screwdriver rafter outer end cap. roof lantern drawings. Hip inner boss top cap. The drawings below illustrate our. Roof Lantern Diagram.
From www.vistaglaze.com
Roof Lights Roof Lanterns Technical Specification Information Roof Lantern Diagram installation installation guide guide. a roof lantern is essentially a skylight or rooflight that sits on top of a flat or sloped roof. Screwdriver rafter outer end cap. the purpose of this installation guide is to assist the installation team when erecting a traditional roof lantern. During the day, sunlight streams through the roof lantern, naturally lighting. Roof Lantern Diagram.
From www.premierroofsystems.co.uk
Atlas Aluminium Roof Lantern Atlas Lantern Roof Shop Premier Roof Roof Lantern Diagram Hip inner boss top cap. It is typically made of glass or other translucent materials assembled within a glazed framed structure. Create a level timber kerb around the opening you have formed in the roof, measuring a minimum of 70mm in. Once you have built your flat roof it is critical that the opening matches the size of the. During. Roof Lantern Diagram.
From www.pinterest.com
Commercial Skylight Construction Drawing Roof Lantern Diagram a roof lantern is essentially a skylight or rooflight that sits on top of a flat or sloped roof. This installation guide will ensure the quick and easy assembly of your atlas lantern. It is typically made of glass or other translucent materials assembled within a glazed framed structure. open the roof lantern via the remote control and. Roof Lantern Diagram.
From www.purewindows.co.uk
Lantern Roofs, Poole & Southampton Conservatory Roofs Skylights Roof Lantern Diagram Hip inner boss top cap. the purpose of this installation guide is to assist the installation team when erecting a traditional roof lantern. They serve both practical and aesthetic purposes. The glass is secured in place with purposely designed channel. Preparing the opening and ringbeam. This installation guide will ensure the quick and easy assembly of your atlas lantern.. Roof Lantern Diagram.
From detail-library.co.uk
DL05 Lantern Rooflight on Timber Flat Roof Detail Roof Lantern Diagram During the day, sunlight streams through the roof lantern, naturally lighting the space below. Screwdriver rafter outer end cap. The drawings below illustrate our standard methods of traditional lantern construction. The glass is secured in place with purposely designed channel. Preparing the opening and ringbeam. It is typically made of glass or other translucent materials assembled within a glazed framed. Roof Lantern Diagram.
From www.pinterest.com
The Portland Roof Lantern Just Roof Lanterns Roof lantern, Glass Roof Lantern Diagram roof lantern drawings. They serve both practical and aesthetic purposes. open the roof lantern via the remote control and secure it to your kerb through the preformed holes in the top of the. The drawings below illustrate our standard methods of traditional lantern construction. the purpose of this installation guide is to assist the installation team when. Roof Lantern Diagram.
From justrooflanterns.co.uk
The Richmond Roof Lantern Just Roof Lanterns Roof Lantern Diagram roof lantern drawings. The glass is secured in place with purposely designed channel. open the roof lantern via the remote control and secure it to your kerb through the preformed holes in the top of the. Create a level timber kerb around the opening you have formed in the roof, measuring a minimum of 70mm in. Our default. Roof Lantern Diagram.
From justrooflanterns.co.uk
Traditional Roof Lanterns Just Roof Lanterns Roof Lantern Diagram It is typically made of glass or other translucent materials assembled within a glazed framed structure. During the day, sunlight streams through the roof lantern, naturally lighting the space below. Once you have built your flat roof it is critical that the opening matches the size of the. Our default roof pitch is 20º, but we do produce lanterns with. Roof Lantern Diagram.
From justrooflanterns.co.uk
Traditional Roof Lanterns Just Roof Lanterns Roof Lantern Diagram Screwdriver rafter outer end cap. Once you have built your flat roof it is critical that the opening matches the size of the. a roof lantern is essentially a skylight or rooflight that sits on top of a flat or sloped roof. This installation guide will ensure the quick and easy assembly of your atlas lantern. roof lantern. Roof Lantern Diagram.
From justrooflanterns.co.uk
The Shoreditch Roof Lantern Just Roof Lanterns Roof Lantern Diagram This installation guide will ensure the quick and easy assembly of your atlas lantern. Screwdriver rafter outer end cap. Hip inner boss top cap. the purpose of this installation guide is to assist the installation team when erecting a traditional roof lantern. The drawings below illustrate our standard methods of traditional lantern construction. Our default roof pitch is 20º,. Roof Lantern Diagram.
From modernglazing.co.uk
Roof Lantern Modern Glazing Roof Lantern Diagram During the day, sunlight streams through the roof lantern, naturally lighting the space below. Once you have built your flat roof it is critical that the opening matches the size of the. It is typically made of glass or other translucent materials assembled within a glazed framed structure. Hip inner boss top cap. the purpose of this installation guide. Roof Lantern Diagram.
From www.rooflightexpress.co.uk
Order Traditional Roof Lanterns Online Securely with Rooflight Express Roof Lantern Diagram roof lantern drawings. The glass is secured in place with purposely designed channel. Create a level timber kerb around the opening you have formed in the roof, measuring a minimum of 70mm in. The drawings below illustrate our standard methods of traditional lantern construction. open the roof lantern via the remote control and secure it to your kerb. Roof Lantern Diagram.
From www.rooflanternshop.com
Atlas Roof Lantern Measuring Guide Roof Lantern Shop Roof Lantern Diagram It is typically made of glass or other translucent materials assembled within a glazed framed structure. Screwdriver rafter outer end cap. Create a level timber kerb around the opening you have formed in the roof, measuring a minimum of 70mm in. Hip inner boss top cap. roof lantern drawings. During the day, sunlight streams through the roof lantern, naturally. Roof Lantern Diagram.
From rooflanternsolutions.co.uk
Cheap Roof Lanterns Modern Rooflights Roof Lantern Solutions Roof Lantern Diagram It is typically made of glass or other translucent materials assembled within a glazed framed structure. Preparing the opening and ringbeam. The drawings below illustrate our standard methods of traditional lantern construction. open the roof lantern via the remote control and secure it to your kerb through the preformed holes in the top of the. Our default roof pitch. Roof Lantern Diagram.
From www.rooflanternshop.com
Atlas Roof Lantern Measuring Guide Roof Lantern Shop Roof Lantern Diagram a roof lantern is essentially a skylight or rooflight that sits on top of a flat or sloped roof. Once you have built your flat roof it is critical that the opening matches the size of the. The glass is secured in place with purposely designed channel. This installation guide will ensure the quick and easy assembly of your. Roof Lantern Diagram.
From modernglazing.co.uk
Lantern Roofs Lantern Roofs Modern Glazing, Leamington Spa Roof Lantern Diagram During the day, sunlight streams through the roof lantern, naturally lighting the space below. the purpose of this installation guide is to assist the installation team when erecting a traditional roof lantern. installation installation guide guide. Hip inner boss top cap. The drawings below illustrate our standard methods of traditional lantern construction. Once you have built your flat. Roof Lantern Diagram.
From www.westburyjoinery.com
Roof Lantern Styles Westbury Windows & Joinery Roof Lantern Diagram This installation guide will ensure the quick and easy assembly of your atlas lantern. the purpose of this installation guide is to assist the installation team when erecting a traditional roof lantern. Screwdriver rafter outer end cap. Once you have built your flat roof it is critical that the opening matches the size of the. open the roof. Roof Lantern Diagram.