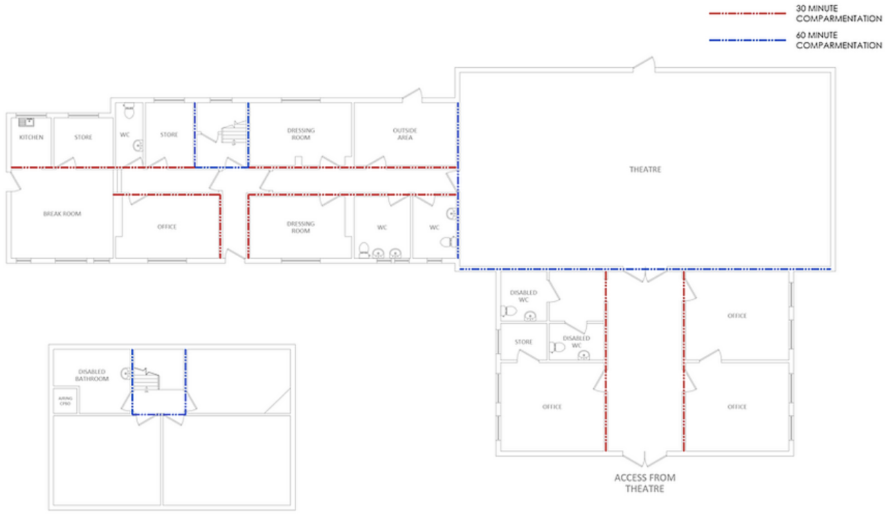
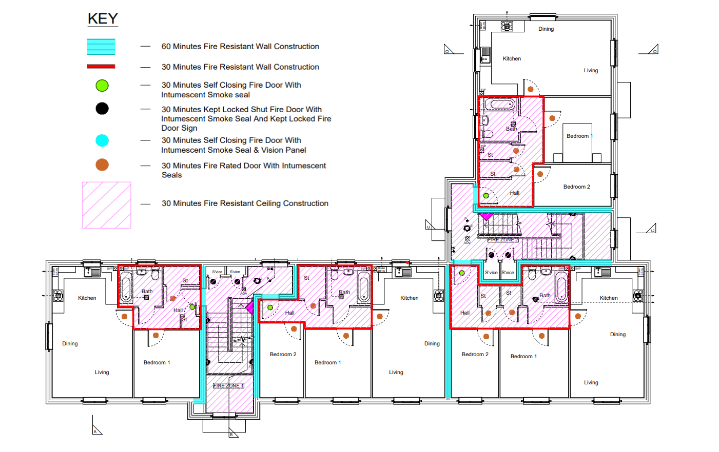
Fire Compartmentation Example . Fire compartmentation provides occupiers of the building additional time to evacuate before escape routes are potentially compromised by. Simply put, compartmentation is the process of dividing a structure into ‘compartments’ for effective risk management. Its goal is to slow down and contain the spread of fire and smoke. Build fire compartmentation to enable building residents to evacuate safely and effectively in an emergency. Compartmentation falls under the category of passive fire protection, which is integral to the building’s construction and aims to control a fire and limit the spread of its effects to other areas of the structure by using fire and smoke resistant materials in specific walls, ceilings and floors. Provide escape routes that are unaffected by.
from clmfireproofing.com
Build fire compartmentation to enable building residents to evacuate safely and effectively in an emergency. Provide escape routes that are unaffected by. Its goal is to slow down and contain the spread of fire and smoke. Fire compartmentation provides occupiers of the building additional time to evacuate before escape routes are potentially compromised by. Simply put, compartmentation is the process of dividing a structure into ‘compartments’ for effective risk management. Compartmentation falls under the category of passive fire protection, which is integral to the building’s construction and aims to control a fire and limit the spread of its effects to other areas of the structure by using fire and smoke resistant materials in specific walls, ceilings and floors.
What is Compartmentation in Fire Protection?
Fire Compartmentation Example Build fire compartmentation to enable building residents to evacuate safely and effectively in an emergency. Its goal is to slow down and contain the spread of fire and smoke. Build fire compartmentation to enable building residents to evacuate safely and effectively in an emergency. Simply put, compartmentation is the process of dividing a structure into ‘compartments’ for effective risk management. Provide escape routes that are unaffected by. Fire compartmentation provides occupiers of the building additional time to evacuate before escape routes are potentially compromised by. Compartmentation falls under the category of passive fire protection, which is integral to the building’s construction and aims to control a fire and limit the spread of its effects to other areas of the structure by using fire and smoke resistant materials in specific walls, ceilings and floors.
From www.verusgroup.co.uk
What is Fire Compartmentation? Fire Compartmentation Example Simply put, compartmentation is the process of dividing a structure into ‘compartments’ for effective risk management. Fire compartmentation provides occupiers of the building additional time to evacuate before escape routes are potentially compromised by. Provide escape routes that are unaffected by. Build fire compartmentation to enable building residents to evacuate safely and effectively in an emergency. Its goal is to. Fire Compartmentation Example.
From in-linesafety.co.uk
Fire Compartmentation Surveys InLine Safety Expert Advice Fire Compartmentation Example Compartmentation falls under the category of passive fire protection, which is integral to the building’s construction and aims to control a fire and limit the spread of its effects to other areas of the structure by using fire and smoke resistant materials in specific walls, ceilings and floors. Simply put, compartmentation is the process of dividing a structure into ‘compartments’. Fire Compartmentation Example.
From dukesfiresafety.co.uk
Fire Compartmentation Survey, Oxfordshire, Dukes Fire Safety Fire Compartmentation Example Provide escape routes that are unaffected by. Compartmentation falls under the category of passive fire protection, which is integral to the building’s construction and aims to control a fire and limit the spread of its effects to other areas of the structure by using fire and smoke resistant materials in specific walls, ceilings and floors. Simply put, compartmentation is the. Fire Compartmentation Example.
From fireblockltd.co.uk
Fire Compartmentation Fire Block Fire Compartmentation Example Fire compartmentation provides occupiers of the building additional time to evacuate before escape routes are potentially compromised by. Build fire compartmentation to enable building residents to evacuate safely and effectively in an emergency. Simply put, compartmentation is the process of dividing a structure into ‘compartments’ for effective risk management. Provide escape routes that are unaffected by. Its goal is to. Fire Compartmentation Example.
From www.verusgroup.co.uk
What is Fire Compartmentation? Fire Compartmentation Example Fire compartmentation provides occupiers of the building additional time to evacuate before escape routes are potentially compromised by. Build fire compartmentation to enable building residents to evacuate safely and effectively in an emergency. Simply put, compartmentation is the process of dividing a structure into ‘compartments’ for effective risk management. Its goal is to slow down and contain the spread of. Fire Compartmentation Example.
From firesealcorp.tumblr.com
Fire Seal Corp. Fire Compartmentation Example Build fire compartmentation to enable building residents to evacuate safely and effectively in an emergency. Compartmentation falls under the category of passive fire protection, which is integral to the building’s construction and aims to control a fire and limit the spread of its effects to other areas of the structure by using fire and smoke resistant materials in specific walls,. Fire Compartmentation Example.
From www.researchgate.net
12 Schematic drawing of the fire compartment Download Scientific Diagram Fire Compartmentation Example Its goal is to slow down and contain the spread of fire and smoke. Simply put, compartmentation is the process of dividing a structure into ‘compartments’ for effective risk management. Fire compartmentation provides occupiers of the building additional time to evacuate before escape routes are potentially compromised by. Compartmentation falls under the category of passive fire protection, which is integral. Fire Compartmentation Example.
From www.youtube.com
INTRODUCING Passive Fire Protection and Firestop Compartmentation YouTube Fire Compartmentation Example Compartmentation falls under the category of passive fire protection, which is integral to the building’s construction and aims to control a fire and limit the spread of its effects to other areas of the structure by using fire and smoke resistant materials in specific walls, ceilings and floors. Its goal is to slow down and contain the spread of fire. Fire Compartmentation Example.
From firearrest.com
What is Fire Compartmentation? FireArrest Fire Compartmentation Example Simply put, compartmentation is the process of dividing a structure into ‘compartments’ for effective risk management. Provide escape routes that are unaffected by. Build fire compartmentation to enable building residents to evacuate safely and effectively in an emergency. Its goal is to slow down and contain the spread of fire and smoke. Compartmentation falls under the category of passive fire. Fire Compartmentation Example.
From www.youtube.com
The Importance of Fire Compartmentation and Sealing YouTube Fire Compartmentation Example Its goal is to slow down and contain the spread of fire and smoke. Provide escape routes that are unaffected by. Simply put, compartmentation is the process of dividing a structure into ‘compartments’ for effective risk management. Compartmentation falls under the category of passive fire protection, which is integral to the building’s construction and aims to control a fire and. Fire Compartmentation Example.
From asapcomply.com
Fire Compartmentation Studies ASAP Comply Fire Compartmentation Example Provide escape routes that are unaffected by. Fire compartmentation provides occupiers of the building additional time to evacuate before escape routes are potentially compromised by. Build fire compartmentation to enable building residents to evacuate safely and effectively in an emergency. Its goal is to slow down and contain the spread of fire and smoke. Compartmentation falls under the category of. Fire Compartmentation Example.
From firearrest.com
What is Fire Compartmentation? FireArrest Fire Compartmentation Example Its goal is to slow down and contain the spread of fire and smoke. Build fire compartmentation to enable building residents to evacuate safely and effectively in an emergency. Compartmentation falls under the category of passive fire protection, which is integral to the building’s construction and aims to control a fire and limit the spread of its effects to other. Fire Compartmentation Example.
From www.pfcsolution.in
Compartmentation PFC Solution Fire Compartmentation Example Compartmentation falls under the category of passive fire protection, which is integral to the building’s construction and aims to control a fire and limit the spread of its effects to other areas of the structure by using fire and smoke resistant materials in specific walls, ceilings and floors. Its goal is to slow down and contain the spread of fire. Fire Compartmentation Example.
From www.pyrofire.co.uk
What Fire Plans do I need for my Building? Pyro Fire Fire Compartmentation Example Simply put, compartmentation is the process of dividing a structure into ‘compartments’ for effective risk management. Compartmentation falls under the category of passive fire protection, which is integral to the building’s construction and aims to control a fire and limit the spread of its effects to other areas of the structure by using fire and smoke resistant materials in specific. Fire Compartmentation Example.
From mavink.com
Roof Ventilation Fire Fighting Fire Compartmentation Example Build fire compartmentation to enable building residents to evacuate safely and effectively in an emergency. Fire compartmentation provides occupiers of the building additional time to evacuate before escape routes are potentially compromised by. Provide escape routes that are unaffected by. Simply put, compartmentation is the process of dividing a structure into ‘compartments’ for effective risk management. Its goal is to. Fire Compartmentation Example.
From clmfireproofing.com
What is Compartmentation in Fire Protection? Fire Compartmentation Example Compartmentation falls under the category of passive fire protection, which is integral to the building’s construction and aims to control a fire and limit the spread of its effects to other areas of the structure by using fire and smoke resistant materials in specific walls, ceilings and floors. Provide escape routes that are unaffected by. Build fire compartmentation to enable. Fire Compartmentation Example.
From www.frconsultants.co.uk
Fire Compartmentation Surveys Fire Compartmentation Example Build fire compartmentation to enable building residents to evacuate safely and effectively in an emergency. Provide escape routes that are unaffected by. Fire compartmentation provides occupiers of the building additional time to evacuate before escape routes are potentially compromised by. Compartmentation falls under the category of passive fire protection, which is integral to the building’s construction and aims to control. Fire Compartmentation Example.
From firecareandsecurity.co.uk
Passive Fire Protection Services in Hampshire FireCare Security & Electrical Ltd Fire Compartmentation Example Build fire compartmentation to enable building residents to evacuate safely and effectively in an emergency. Provide escape routes that are unaffected by. Its goal is to slow down and contain the spread of fire and smoke. Fire compartmentation provides occupiers of the building additional time to evacuate before escape routes are potentially compromised by. Compartmentation falls under the category of. Fire Compartmentation Example.
From www.fireco.uk
How to prevent the spread of fire Fireco Fire Compartmentation Example Compartmentation falls under the category of passive fire protection, which is integral to the building’s construction and aims to control a fire and limit the spread of its effects to other areas of the structure by using fire and smoke resistant materials in specific walls, ceilings and floors. Its goal is to slow down and contain the spread of fire. Fire Compartmentation Example.
From www.nullifire.com
Fundamentals of Fire Stopping Nullifire UK Fire Compartmentation Example Simply put, compartmentation is the process of dividing a structure into ‘compartments’ for effective risk management. Its goal is to slow down and contain the spread of fire and smoke. Provide escape routes that are unaffected by. Compartmentation falls under the category of passive fire protection, which is integral to the building’s construction and aims to control a fire and. Fire Compartmentation Example.
From ifpmag.com
Fire compartmentation International Fire Protection Fire Compartmentation Example Simply put, compartmentation is the process of dividing a structure into ‘compartments’ for effective risk management. Build fire compartmentation to enable building residents to evacuate safely and effectively in an emergency. Compartmentation falls under the category of passive fire protection, which is integral to the building’s construction and aims to control a fire and limit the spread of its effects. Fire Compartmentation Example.
From www.thefpa.co.uk
Understanding Fire Stopping and Compartmentation Fire Protection Association Fire Compartmentation Example Fire compartmentation provides occupiers of the building additional time to evacuate before escape routes are potentially compromised by. Its goal is to slow down and contain the spread of fire and smoke. Compartmentation falls under the category of passive fire protection, which is integral to the building’s construction and aims to control a fire and limit the spread of its. Fire Compartmentation Example.
From ifpmag.com
Fire compartmentation International Fire Protection Fire Compartmentation Example Simply put, compartmentation is the process of dividing a structure into ‘compartments’ for effective risk management. Build fire compartmentation to enable building residents to evacuate safely and effectively in an emergency. Its goal is to slow down and contain the spread of fire and smoke. Provide escape routes that are unaffected by. Compartmentation falls under the category of passive fire. Fire Compartmentation Example.
From www.karntek.com
Fire CAD Karntek Fire Compartmentation Example Simply put, compartmentation is the process of dividing a structure into ‘compartments’ for effective risk management. Its goal is to slow down and contain the spread of fire and smoke. Fire compartmentation provides occupiers of the building additional time to evacuate before escape routes are potentially compromised by. Provide escape routes that are unaffected by. Compartmentation falls under the category. Fire Compartmentation Example.
From www.nullifire.com
Fundamentals of Fire Stopping Nullifire UK Fire Compartmentation Example Its goal is to slow down and contain the spread of fire and smoke. Build fire compartmentation to enable building residents to evacuate safely and effectively in an emergency. Provide escape routes that are unaffected by. Fire compartmentation provides occupiers of the building additional time to evacuate before escape routes are potentially compromised by. Compartmentation falls under the category of. Fire Compartmentation Example.
From murusfire.co.uk
Fire Compartmentation Survey Murus Fire Protection Fire Compartmentation Example Fire compartmentation provides occupiers of the building additional time to evacuate before escape routes are potentially compromised by. Compartmentation falls under the category of passive fire protection, which is integral to the building’s construction and aims to control a fire and limit the spread of its effects to other areas of the structure by using fire and smoke resistant materials. Fire Compartmentation Example.
From www.pinterest.com
Fire Compartmentation Fire Protection for Industrial Buildings PROMAT Fire Rated Boards Fire Compartmentation Example Its goal is to slow down and contain the spread of fire and smoke. Provide escape routes that are unaffected by. Fire compartmentation provides occupiers of the building additional time to evacuate before escape routes are potentially compromised by. Simply put, compartmentation is the process of dividing a structure into ‘compartments’ for effective risk management. Build fire compartmentation to enable. Fire Compartmentation Example.
From www.kudosfire.co.uk
Fire compartmentation Kudos Fire Protection Fire Compartmentation Example Provide escape routes that are unaffected by. Build fire compartmentation to enable building residents to evacuate safely and effectively in an emergency. Simply put, compartmentation is the process of dividing a structure into ‘compartments’ for effective risk management. Compartmentation falls under the category of passive fire protection, which is integral to the building’s construction and aims to control a fire. Fire Compartmentation Example.
From sircleuk.com
Fire Compartmentation and Passive Fire Survey Sircle Fire Compartmentation Example Its goal is to slow down and contain the spread of fire and smoke. Build fire compartmentation to enable building residents to evacuate safely and effectively in an emergency. Provide escape routes that are unaffected by. Simply put, compartmentation is the process of dividing a structure into ‘compartments’ for effective risk management. Fire compartmentation provides occupiers of the building additional. Fire Compartmentation Example.
From labmonline.co.uk
Using fire compartmentation systems labm Fire Compartmentation Example Provide escape routes that are unaffected by. Build fire compartmentation to enable building residents to evacuate safely and effectively in an emergency. Fire compartmentation provides occupiers of the building additional time to evacuate before escape routes are potentially compromised by. Its goal is to slow down and contain the spread of fire and smoke. Compartmentation falls under the category of. Fire Compartmentation Example.
From dukesfiresafety.co.uk
Fire Compartmentation Survey, Oxfordshire, Dukes Fire Safety Fire Compartmentation Example Simply put, compartmentation is the process of dividing a structure into ‘compartments’ for effective risk management. Compartmentation falls under the category of passive fire protection, which is integral to the building’s construction and aims to control a fire and limit the spread of its effects to other areas of the structure by using fire and smoke resistant materials in specific. Fire Compartmentation Example.
From completepumpsandfire.com.au
What is Fire Compartmentation and Why Should You Care? Fire Compartmentation Example Provide escape routes that are unaffected by. Build fire compartmentation to enable building residents to evacuate safely and effectively in an emergency. Compartmentation falls under the category of passive fire protection, which is integral to the building’s construction and aims to control a fire and limit the spread of its effects to other areas of the structure by using fire. Fire Compartmentation Example.
From murusfire.co.uk
Fire Compartmentation Survey Murus Fire Protection Fire Compartmentation Example Compartmentation falls under the category of passive fire protection, which is integral to the building’s construction and aims to control a fire and limit the spread of its effects to other areas of the structure by using fire and smoke resistant materials in specific walls, ceilings and floors. Fire compartmentation provides occupiers of the building additional time to evacuate before. Fire Compartmentation Example.
From www.apexcad.co.uk
Fire Compartment Drawings Apex CAD Drawing & Planning LTD Fire Compartmentation Example Compartmentation falls under the category of passive fire protection, which is integral to the building’s construction and aims to control a fire and limit the spread of its effects to other areas of the structure by using fire and smoke resistant materials in specific walls, ceilings and floors. Fire compartmentation provides occupiers of the building additional time to evacuate before. Fire Compartmentation Example.
From bsbgroup.com
Technical Note Fire Compartmentation & Fire Barriers BSBG Brewer Smith Brewer Group Fire Compartmentation Example Build fire compartmentation to enable building residents to evacuate safely and effectively in an emergency. Simply put, compartmentation is the process of dividing a structure into ‘compartments’ for effective risk management. Compartmentation falls under the category of passive fire protection, which is integral to the building’s construction and aims to control a fire and limit the spread of its effects. Fire Compartmentation Example.