Property Assessment Wisconsin . The assessor’s office is responsible for the valuation of all real property located within the city of franklin for tax purposes. What property tax credits can be taken on an income tax return? State of wisconsin property information the integrated property assessment system (ipas) provides public access to. The wisconsin department of revenue (dor), state and local finance division posted the 2024 wisconsin property. What types of property tax credits are available in wisconsin? Read more information about 2024 notices and values. Select property inquiry to view property information including tax bills, assessments, sales, and building data. 2024 assessment notices have been mailed to all city of milwaukee property owners.
from www.templateroller.com
Read more information about 2024 notices and values. State of wisconsin property information the integrated property assessment system (ipas) provides public access to. Select property inquiry to view property information including tax bills, assessments, sales, and building data. What property tax credits can be taken on an income tax return? 2024 assessment notices have been mailed to all city of milwaukee property owners. The wisconsin department of revenue (dor), state and local finance division posted the 2024 wisconsin property. The assessor’s office is responsible for the valuation of all real property located within the city of franklin for tax purposes. What types of property tax credits are available in wisconsin?
Form PA132M Fill Out, Sign Online and Download Fillable PDF, Wisconsin Templateroller
Property Assessment Wisconsin The assessor’s office is responsible for the valuation of all real property located within the city of franklin for tax purposes. What property tax credits can be taken on an income tax return? Select property inquiry to view property information including tax bills, assessments, sales, and building data. Read more information about 2024 notices and values. The assessor’s office is responsible for the valuation of all real property located within the city of franklin for tax purposes. 2024 assessment notices have been mailed to all city of milwaukee property owners. What types of property tax credits are available in wisconsin? The wisconsin department of revenue (dor), state and local finance division posted the 2024 wisconsin property. State of wisconsin property information the integrated property assessment system (ipas) provides public access to.
From www.templateroller.com
Form PA132 Fill Out, Sign Online and Download Fillable PDF, Wisconsin Templateroller Property Assessment Wisconsin State of wisconsin property information the integrated property assessment system (ipas) provides public access to. Read more information about 2024 notices and values. What property tax credits can be taken on an income tax return? 2024 assessment notices have been mailed to all city of milwaukee property owners. The assessor’s office is responsible for the valuation of all real property. Property Assessment Wisconsin.
From sampletemplates.com
10 Sample Property Assessment Templates to Dowload Sample Templates Property Assessment Wisconsin Select property inquiry to view property information including tax bills, assessments, sales, and building data. Read more information about 2024 notices and values. 2024 assessment notices have been mailed to all city of milwaukee property owners. State of wisconsin property information the integrated property assessment system (ipas) provides public access to. The assessor’s office is responsible for the valuation of. Property Assessment Wisconsin.
From www.templateroller.com
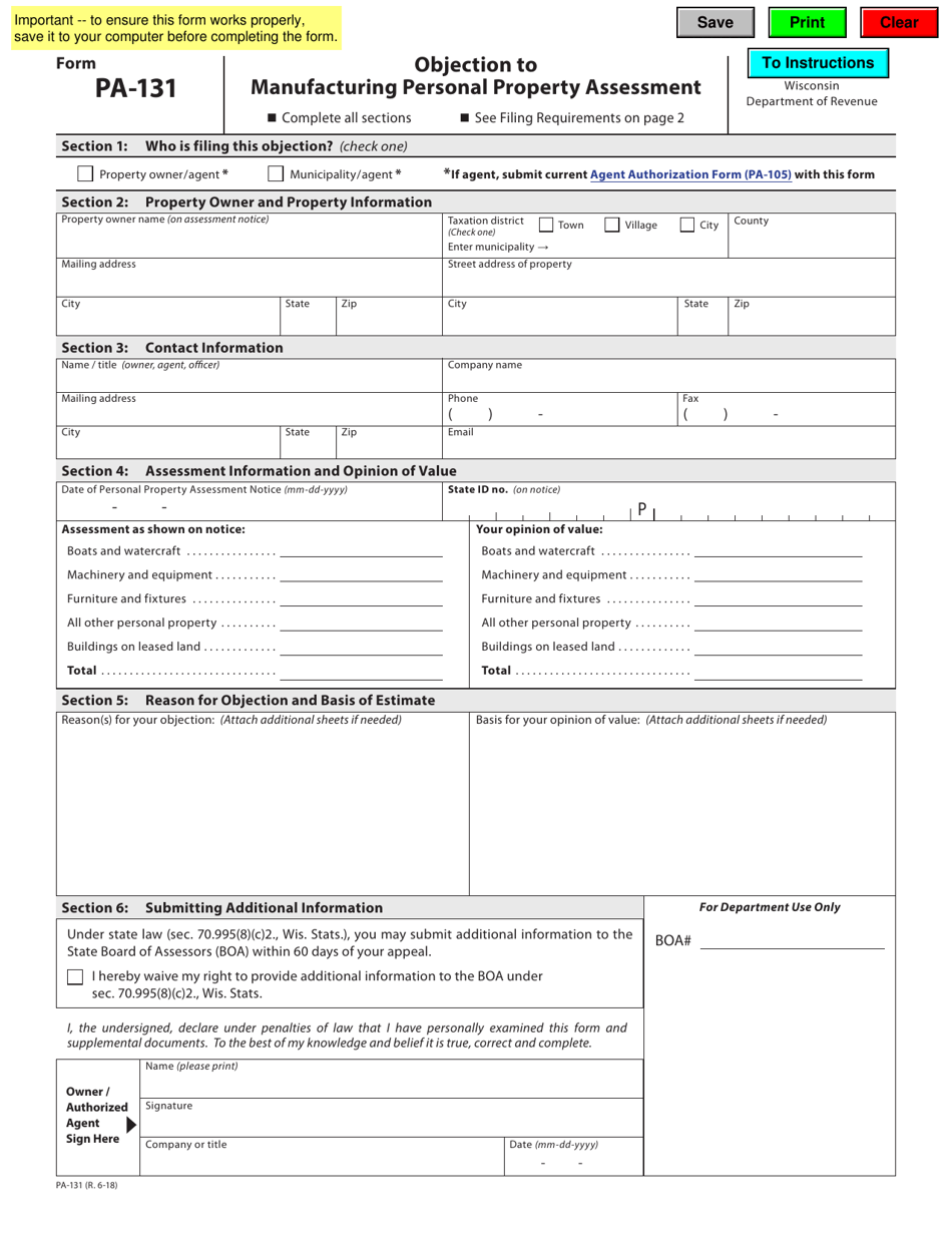
Form PA131 Fill Out, Sign Online and Download Fillable PDF, Wisconsin Templateroller Property Assessment Wisconsin Select property inquiry to view property information including tax bills, assessments, sales, and building data. What types of property tax credits are available in wisconsin? 2024 assessment notices have been mailed to all city of milwaukee property owners. The assessor’s office is responsible for the valuation of all real property located within the city of franklin for tax purposes. What. Property Assessment Wisconsin.
From www.bayfieldcounty.wi.gov
Town Assessor List Bayfield County, WI Official site Property Assessment Wisconsin What types of property tax credits are available in wisconsin? Read more information about 2024 notices and values. Select property inquiry to view property information including tax bills, assessments, sales, and building data. 2024 assessment notices have been mailed to all city of milwaukee property owners. State of wisconsin property information the integrated property assessment system (ipas) provides public access. Property Assessment Wisconsin.
From www.templateroller.com
Form PR299 Fill Out, Sign Online and Download Fillable PDF, Wisconsin Templateroller Property Assessment Wisconsin State of wisconsin property information the integrated property assessment system (ipas) provides public access to. What property tax credits can be taken on an income tax return? What types of property tax credits are available in wisconsin? The wisconsin department of revenue (dor), state and local finance division posted the 2024 wisconsin property. Select property inquiry to view property information. Property Assessment Wisconsin.
From sampletemplates.com
10 Sample Property Assessment Templates to Dowload Sample Templates Property Assessment Wisconsin State of wisconsin property information the integrated property assessment system (ipas) provides public access to. Select property inquiry to view property information including tax bills, assessments, sales, and building data. 2024 assessment notices have been mailed to all city of milwaukee property owners. What property tax credits can be taken on an income tax return? Read more information about 2024. Property Assessment Wisconsin.
From www.templateroller.com
Form PR323 Fill Out, Sign Online and Download Fillable PDF, Wisconsin Templateroller Property Assessment Wisconsin Select property inquiry to view property information including tax bills, assessments, sales, and building data. The assessor’s office is responsible for the valuation of all real property located within the city of franklin for tax purposes. 2024 assessment notices have been mailed to all city of milwaukee property owners. The wisconsin department of revenue (dor), state and local finance division. Property Assessment Wisconsin.
From www.templateroller.com
Form PA132M Fill Out, Sign Online and Download Fillable PDF, Wisconsin Templateroller Property Assessment Wisconsin 2024 assessment notices have been mailed to all city of milwaukee property owners. State of wisconsin property information the integrated property assessment system (ipas) provides public access to. The wisconsin department of revenue (dor), state and local finance division posted the 2024 wisconsin property. Read more information about 2024 notices and values. The assessor’s office is responsible for the valuation. Property Assessment Wisconsin.
From www.templateroller.com
Form PR297 Download Fillable PDF or Fill Online Open Book Notice of Amended Assessment Property Assessment Wisconsin Read more information about 2024 notices and values. The assessor’s office is responsible for the valuation of all real property located within the city of franklin for tax purposes. The wisconsin department of revenue (dor), state and local finance division posted the 2024 wisconsin property. 2024 assessment notices have been mailed to all city of milwaukee property owners. What types. Property Assessment Wisconsin.
From wispolicyforum.org
Wisconsin Policy Forum Property Assessment Property Assessment Wisconsin State of wisconsin property information the integrated property assessment system (ipas) provides public access to. What types of property tax credits are available in wisconsin? The wisconsin department of revenue (dor), state and local finance division posted the 2024 wisconsin property. 2024 assessment notices have been mailed to all city of milwaukee property owners. The assessor’s office is responsible for. Property Assessment Wisconsin.
From www.templateroller.com
Form PR323 Fill Out, Sign Online and Download Fillable PDF, Wisconsin Templateroller Property Assessment Wisconsin Select property inquiry to view property information including tax bills, assessments, sales, and building data. The wisconsin department of revenue (dor), state and local finance division posted the 2024 wisconsin property. 2024 assessment notices have been mailed to all city of milwaukee property owners. Read more information about 2024 notices and values. What types of property tax credits are available. Property Assessment Wisconsin.
From www.templateroller.com
Form PA131 Download Fillable PDF or Fill Online Objection to Manufacturing Personal Property Property Assessment Wisconsin 2024 assessment notices have been mailed to all city of milwaukee property owners. Select property inquiry to view property information including tax bills, assessments, sales, and building data. What property tax credits can be taken on an income tax return? The wisconsin department of revenue (dor), state and local finance division posted the 2024 wisconsin property. What types of property. Property Assessment Wisconsin.
From www.templateroller.com
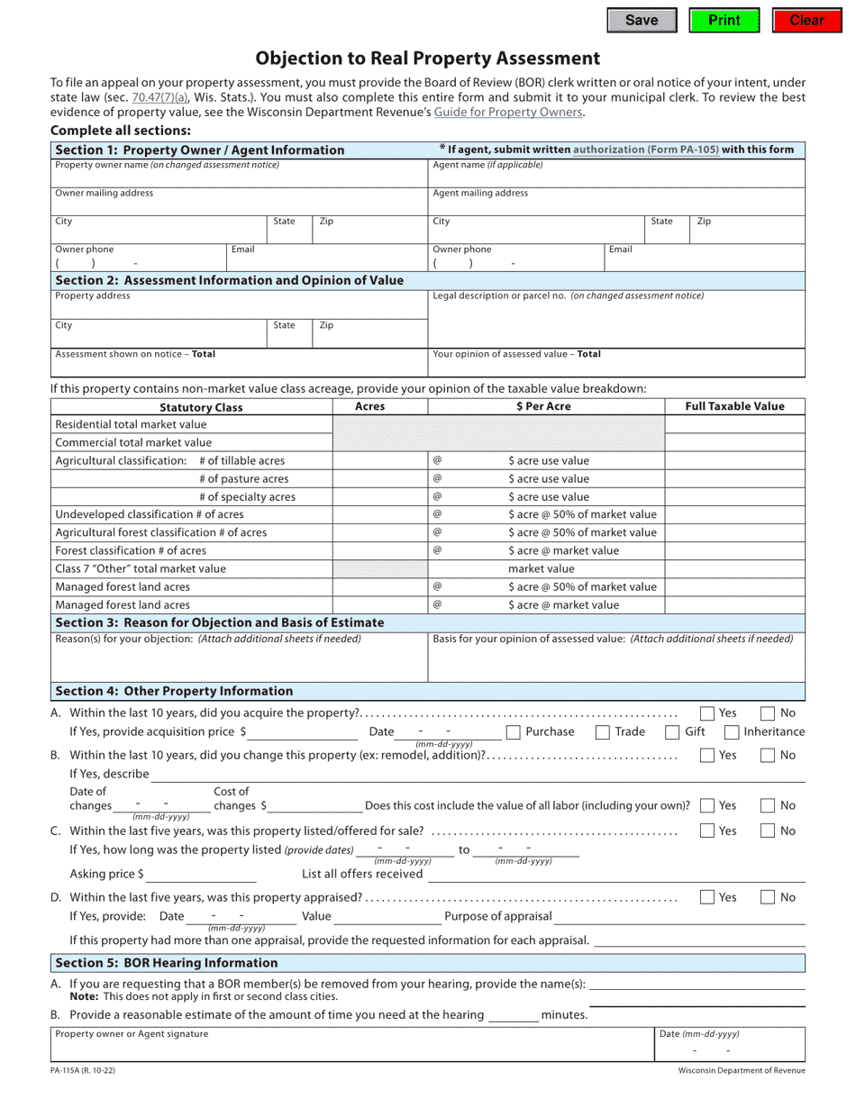
Form PA115A Download Fillable PDF or Fill Online Objection to Real Property Assessment Property Assessment Wisconsin Select property inquiry to view property information including tax bills, assessments, sales, and building data. State of wisconsin property information the integrated property assessment system (ipas) provides public access to. What types of property tax credits are available in wisconsin? The wisconsin department of revenue (dor), state and local finance division posted the 2024 wisconsin property. Read more information about. Property Assessment Wisconsin.
From www.youtube.com
Wisconsin Property Assessment YouTube Property Assessment Wisconsin The assessor’s office is responsible for the valuation of all real property located within the city of franklin for tax purposes. State of wisconsin property information the integrated property assessment system (ipas) provides public access to. 2024 assessment notices have been mailed to all city of milwaukee property owners. Read more information about 2024 notices and values. The wisconsin department. Property Assessment Wisconsin.
From www.templateroller.com
Form PA115B Download Fillable PDF or Fill Online Objection Form for Personal Property Property Assessment Wisconsin What types of property tax credits are available in wisconsin? Select property inquiry to view property information including tax bills, assessments, sales, and building data. The wisconsin department of revenue (dor), state and local finance division posted the 2024 wisconsin property. The assessor’s office is responsible for the valuation of all real property located within the city of franklin for. Property Assessment Wisconsin.
From www.templateroller.com
Form PA205 Download Fillable PDF or Fill Online Extension Request Property Assessment Property Assessment Wisconsin Read more information about 2024 notices and values. What types of property tax credits are available in wisconsin? What property tax credits can be taken on an income tax return? The assessor’s office is responsible for the valuation of all real property located within the city of franklin for tax purposes. State of wisconsin property information the integrated property assessment. Property Assessment Wisconsin.
From www.templateroller.com
Form PA5/659 Download Fillable PDF or Fill Online Omitted Property Roll, Wisconsin Templateroller Property Assessment Wisconsin The assessor’s office is responsible for the valuation of all real property located within the city of franklin for tax purposes. Select property inquiry to view property information including tax bills, assessments, sales, and building data. The wisconsin department of revenue (dor), state and local finance division posted the 2024 wisconsin property. State of wisconsin property information the integrated property. Property Assessment Wisconsin.
From www.templateroller.com
Form PA5392 Fill Out, Sign Online and Download Printable PDF, Wisconsin Templateroller Property Assessment Wisconsin 2024 assessment notices have been mailed to all city of milwaukee property owners. The assessor’s office is responsible for the valuation of all real property located within the city of franklin for tax purposes. Select property inquiry to view property information including tax bills, assessments, sales, and building data. State of wisconsin property information the integrated property assessment system (ipas). Property Assessment Wisconsin.
From www.templateroller.com
Form PA5/647A1 Fill Out, Sign Online and Download Printable PDF, Wisconsin Templateroller Property Assessment Wisconsin 2024 assessment notices have been mailed to all city of milwaukee property owners. The wisconsin department of revenue (dor), state and local finance division posted the 2024 wisconsin property. Select property inquiry to view property information including tax bills, assessments, sales, and building data. What property tax credits can be taken on an income tax return? Read more information about. Property Assessment Wisconsin.
From www.templateroller.com
Form PA132M Fill Out, Sign Online and Download Fillable PDF, Wisconsin Templateroller Property Assessment Wisconsin The assessor’s office is responsible for the valuation of all real property located within the city of franklin for tax purposes. 2024 assessment notices have been mailed to all city of milwaukee property owners. Select property inquiry to view property information including tax bills, assessments, sales, and building data. The wisconsin department of revenue (dor), state and local finance division. Property Assessment Wisconsin.
From www.templateroller.com
Form PA132 Download Fillable PDF or Fill Online Objection to Manufacturing Real Estate Property Assessment Wisconsin Select property inquiry to view property information including tax bills, assessments, sales, and building data. 2024 assessment notices have been mailed to all city of milwaukee property owners. State of wisconsin property information the integrated property assessment system (ipas) provides public access to. The assessor’s office is responsible for the valuation of all real property located within the city of. Property Assessment Wisconsin.
From www.templateroller.com
Form PA521C 2023 Fill Out, Sign Online and Download Printable PDF, Wisconsin Templateroller Property Assessment Wisconsin What property tax credits can be taken on an income tax return? What types of property tax credits are available in wisconsin? State of wisconsin property information the integrated property assessment system (ipas) provides public access to. The assessor’s office is responsible for the valuation of all real property located within the city of franklin for tax purposes. 2024 assessment. Property Assessment Wisconsin.
From www.templateroller.com
Form PR299 Fill Out, Sign Online and Download Fillable PDF, Wisconsin Templateroller Property Assessment Wisconsin Select property inquiry to view property information including tax bills, assessments, sales, and building data. State of wisconsin property information the integrated property assessment system (ipas) provides public access to. What types of property tax credits are available in wisconsin? Read more information about 2024 notices and values. What property tax credits can be taken on an income tax return?. Property Assessment Wisconsin.
From www.yumpu.com
Wisconsin Property Assessment Manual Wisconsin Department of Property Assessment Wisconsin What property tax credits can be taken on an income tax return? State of wisconsin property information the integrated property assessment system (ipas) provides public access to. 2024 assessment notices have been mailed to all city of milwaukee property owners. The wisconsin department of revenue (dor), state and local finance division posted the 2024 wisconsin property. Select property inquiry to. Property Assessment Wisconsin.
From www.templateroller.com
Form PA521C 2023 Fill Out, Sign Online and Download Printable PDF, Wisconsin Templateroller Property Assessment Wisconsin The assessor’s office is responsible for the valuation of all real property located within the city of franklin for tax purposes. Select property inquiry to view property information including tax bills, assessments, sales, and building data. 2024 assessment notices have been mailed to all city of milwaukee property owners. What types of property tax credits are available in wisconsin? The. Property Assessment Wisconsin.
From www.templateroller.com
Form PA205 Fill Out, Sign Online and Download Fillable PDF, Wisconsin Templateroller Property Assessment Wisconsin State of wisconsin property information the integrated property assessment system (ipas) provides public access to. What property tax credits can be taken on an income tax return? The wisconsin department of revenue (dor), state and local finance division posted the 2024 wisconsin property. 2024 assessment notices have been mailed to all city of milwaukee property owners. Read more information about. Property Assessment Wisconsin.
From www.youtube.com
60 Acres in Polk County, WI Property Assessment YouTube Property Assessment Wisconsin Select property inquiry to view property information including tax bills, assessments, sales, and building data. The wisconsin department of revenue (dor), state and local finance division posted the 2024 wisconsin property. 2024 assessment notices have been mailed to all city of milwaukee property owners. What property tax credits can be taken on an income tax return? The assessor’s office is. Property Assessment Wisconsin.
From therealpropertyconsultants.com
Property Assessment for northern Illinois and southern Wisconsin Real Property Consultants Property Assessment Wisconsin Read more information about 2024 notices and values. The assessor’s office is responsible for the valuation of all real property located within the city of franklin for tax purposes. Select property inquiry to view property information including tax bills, assessments, sales, and building data. The wisconsin department of revenue (dor), state and local finance division posted the 2024 wisconsin property.. Property Assessment Wisconsin.
From www.templateroller.com
Form PR800 Download Fillable PDF or Fill Online Annual Assessment Report, Wisconsin Property Assessment Wisconsin The assessor’s office is responsible for the valuation of all real property located within the city of franklin for tax purposes. What types of property tax credits are available in wisconsin? State of wisconsin property information the integrated property assessment system (ipas) provides public access to. Select property inquiry to view property information including tax bills, assessments, sales, and building. Property Assessment Wisconsin.
From www.templateroller.com
Form PA132 Download Fillable PDF or Fill Online Objection to Manufacturing Real Estate Property Assessment Wisconsin What types of property tax credits are available in wisconsin? Read more information about 2024 notices and values. State of wisconsin property information the integrated property assessment system (ipas) provides public access to. The assessor’s office is responsible for the valuation of all real property located within the city of franklin for tax purposes. 2024 assessment notices have been mailed. Property Assessment Wisconsin.
From gioeujgeu.blob.core.windows.net
Rock County Wisconsin Property Appraiser at Dan Montiel blog Property Assessment Wisconsin What types of property tax credits are available in wisconsin? The assessor’s office is responsible for the valuation of all real property located within the city of franklin for tax purposes. Select property inquiry to view property information including tax bills, assessments, sales, and building data. 2024 assessment notices have been mailed to all city of milwaukee property owners. The. Property Assessment Wisconsin.
From autos.yahoo.com
Most Milwaukee homes to gain value in 2022 assessment. Here's what it means for property taxes. Property Assessment Wisconsin What property tax credits can be taken on an income tax return? The assessor’s office is responsible for the valuation of all real property located within the city of franklin for tax purposes. 2024 assessment notices have been mailed to all city of milwaukee property owners. The wisconsin department of revenue (dor), state and local finance division posted the 2024. Property Assessment Wisconsin.
From www.revenue.wi.gov
DOR Revaluation Resources Contract, Specifications, and List of Certified Municipal Assessment Help Property Assessment Wisconsin Read more information about 2024 notices and values. What property tax credits can be taken on an income tax return? 2024 assessment notices have been mailed to all city of milwaukee property owners. The wisconsin department of revenue (dor), state and local finance division posted the 2024 wisconsin property. State of wisconsin property information the integrated property assessment system (ipas). Property Assessment Wisconsin.
From storables.com
Who Needs To Fill Out A Personal Property Assessment In Wisconsin? Storables Property Assessment Wisconsin The wisconsin department of revenue (dor), state and local finance division posted the 2024 wisconsin property. The assessor’s office is responsible for the valuation of all real property located within the city of franklin for tax purposes. Read more information about 2024 notices and values. State of wisconsin property information the integrated property assessment system (ipas) provides public access to.. Property Assessment Wisconsin.
From www.templateroller.com
Form PA105 Download Fillable PDF or Fill Online Agent Authorization for Property Assessment Property Assessment Wisconsin What types of property tax credits are available in wisconsin? Read more information about 2024 notices and values. Select property inquiry to view property information including tax bills, assessments, sales, and building data. 2024 assessment notices have been mailed to all city of milwaukee property owners. What property tax credits can be taken on an income tax return? The assessor’s. Property Assessment Wisconsin.