Example Of Performance Bond . These bonds act as a. Here we explain its examples, costs, and contractual agreements, and compared them with bank guarantees. Performance bonds are financial instruments designed to ensure that parties involved in a contract, often in the construction sector, fulfil their obligations as specified in the agreement. It guarantees that the principal. A performance bond, also known as a contract bond, is a financial guarantee provided by a surety company to ensure the satisfactory completion of a project by a contractor. Guide to what are performance bonds. A performance bond is a type of surety bond issued to ensure the completion of a project according to the terms and conditions of the contract. Learn how they work, why they. See a hypothetical example of a performance bond claim and how to apply for one. Learn what a performance bond is, how it works, and why it is important for contractors and project owners. Find out how to obtain a performance bond and how much it costs, and explore industries that use them.
from www.slideserve.com
Here we explain its examples, costs, and contractual agreements, and compared them with bank guarantees. Learn how they work, why they. A performance bond is a type of surety bond issued to ensure the completion of a project according to the terms and conditions of the contract. Find out how to obtain a performance bond and how much it costs, and explore industries that use them. It guarantees that the principal. See a hypothetical example of a performance bond claim and how to apply for one. Performance bonds are financial instruments designed to ensure that parties involved in a contract, often in the construction sector, fulfil their obligations as specified in the agreement. Guide to what are performance bonds. Learn what a performance bond is, how it works, and why it is important for contractors and project owners. These bonds act as a.
PPT Performance Bond (PB)? What is It PowerPoint Presentation, free
Example Of Performance Bond Learn how they work, why they. Learn what a performance bond is, how it works, and why it is important for contractors and project owners. Find out how to obtain a performance bond and how much it costs, and explore industries that use them. It guarantees that the principal. See a hypothetical example of a performance bond claim and how to apply for one. Guide to what are performance bonds. A performance bond is a type of surety bond issued to ensure the completion of a project according to the terms and conditions of the contract. A performance bond, also known as a contract bond, is a financial guarantee provided by a surety company to ensure the satisfactory completion of a project by a contractor. These bonds act as a. Learn how they work, why they. Here we explain its examples, costs, and contractual agreements, and compared them with bank guarantees. Performance bonds are financial instruments designed to ensure that parties involved in a contract, often in the construction sector, fulfil their obligations as specified in the agreement.
From swiftbonds.com
Performance Security Form Swiftbonds Example Of Performance Bond A performance bond, also known as a contract bond, is a financial guarantee provided by a surety company to ensure the satisfactory completion of a project by a contractor. Performance bonds are financial instruments designed to ensure that parties involved in a contract, often in the construction sector, fulfil their obligations as specified in the agreement. Find out how to. Example Of Performance Bond.
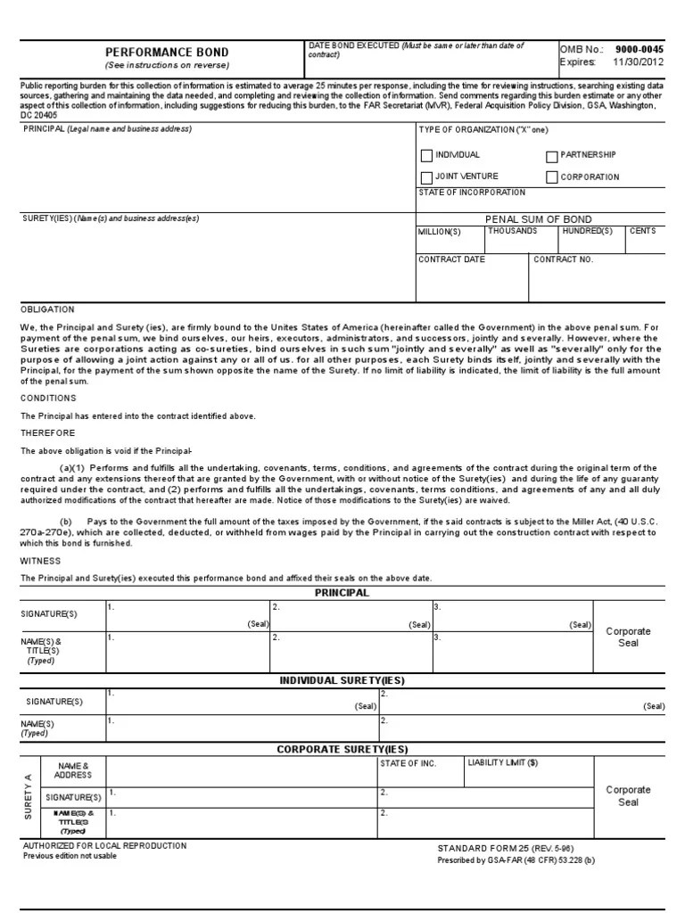
From www.scribd.com
Sample Performance Bond Surety Bond Contract Law Example Of Performance Bond See a hypothetical example of a performance bond claim and how to apply for one. Learn what a performance bond is, how it works, and why it is important for contractors and project owners. A performance bond is a type of surety bond issued to ensure the completion of a project according to the terms and conditions of the contract.. Example Of Performance Bond.
From www.contractstore.com
Performance Bond Template ContractStore Example Of Performance Bond A performance bond is a type of surety bond issued to ensure the completion of a project according to the terms and conditions of the contract. Learn how they work, why they. These bonds act as a. Performance bonds are financial instruments designed to ensure that parties involved in a contract, often in the construction sector, fulfil their obligations as. Example Of Performance Bond.
From williamson-ga.us
Performance Bond Template williamsonga.us Example Of Performance Bond Guide to what are performance bonds. It guarantees that the principal. These bonds act as a. Learn how they work, why they. A performance bond, also known as a contract bond, is a financial guarantee provided by a surety company to ensure the satisfactory completion of a project by a contractor. Learn what a performance bond is, how it works,. Example Of Performance Bond.
From mgsuretybonds.com
Performance Bonds Everything Contractors Need to Know in 2020 Example Of Performance Bond Learn how they work, why they. These bonds act as a. Here we explain its examples, costs, and contractual agreements, and compared them with bank guarantees. A performance bond is a type of surety bond issued to ensure the completion of a project according to the terms and conditions of the contract. Guide to what are performance bonds. Find out. Example Of Performance Bond.
From swiftbonds.com
How does a Performance Bond Work in Construction? Swiftbonds Example Of Performance Bond Guide to what are performance bonds. It guarantees that the principal. See a hypothetical example of a performance bond claim and how to apply for one. Learn how they work, why they. Here we explain its examples, costs, and contractual agreements, and compared them with bank guarantees. These bonds act as a. A performance bond is a type of surety. Example Of Performance Bond.
From www.suretyplace.com
Performance Bond FAQs Fast and Easy Perfomance Bond Approvals Example Of Performance Bond A performance bond is a type of surety bond issued to ensure the completion of a project according to the terms and conditions of the contract. See a hypothetical example of a performance bond claim and how to apply for one. Find out how to obtain a performance bond and how much it costs, and explore industries that use them.. Example Of Performance Bond.
From www.suretynow.com
Bid Bond vs Performance Bond vs Payment Bond Example Of Performance Bond Find out how to obtain a performance bond and how much it costs, and explore industries that use them. See a hypothetical example of a performance bond claim and how to apply for one. Here we explain its examples, costs, and contractual agreements, and compared them with bank guarantees. Learn what a performance bond is, how it works, and why. Example Of Performance Bond.
From www.uslegalforms.com
Performance Bond 20202022 Fill and Sign Printable Template Online Example Of Performance Bond A performance bond, also known as a contract bond, is a financial guarantee provided by a surety company to ensure the satisfactory completion of a project by a contractor. Learn what a performance bond is, how it works, and why it is important for contractors and project owners. It guarantees that the principal. Performance bonds are financial instruments designed to. Example Of Performance Bond.
From www.investopedia.com
What Is a Performance Bond and How Does It Work? Example Of Performance Bond A performance bond is a type of surety bond issued to ensure the completion of a project according to the terms and conditions of the contract. Learn how they work, why they. Find out how to obtain a performance bond and how much it costs, and explore industries that use them. A performance bond, also known as a contract bond,. Example Of Performance Bond.
From swiftbonds.com
Performance Bond Fast ApprovalSwiftbonds (913) 2148344 Example Of Performance Bond Learn what a performance bond is, how it works, and why it is important for contractors and project owners. It guarantees that the principal. Performance bonds are financial instruments designed to ensure that parties involved in a contract, often in the construction sector, fulfil their obligations as specified in the agreement. Here we explain its examples, costs, and contractual agreements,. Example Of Performance Bond.
From www.slideserve.com
PPT Performance Bond (PB)? What is It PowerPoint Presentation, free Example Of Performance Bond Learn what a performance bond is, how it works, and why it is important for contractors and project owners. See a hypothetical example of a performance bond claim and how to apply for one. Learn how they work, why they. Find out how to obtain a performance bond and how much it costs, and explore industries that use them. Performance. Example Of Performance Bond.
From www.kobo.com
Book of Bonds With Example Bid Bond, Performance Bond, Payment Bond Example Of Performance Bond It guarantees that the principal. Here we explain its examples, costs, and contractual agreements, and compared them with bank guarantees. A performance bond is a type of surety bond issued to ensure the completion of a project according to the terms and conditions of the contract. Guide to what are performance bonds. See a hypothetical example of a performance bond. Example Of Performance Bond.
From www.scribd.com
Performance Bond Guarantee Payments Example Of Performance Bond Performance bonds are financial instruments designed to ensure that parties involved in a contract, often in the construction sector, fulfil their obligations as specified in the agreement. Learn how they work, why they. Guide to what are performance bonds. Here we explain its examples, costs, and contractual agreements, and compared them with bank guarantees. These bonds act as a. Find. Example Of Performance Bond.
From www.scribd.com
SF 25 Performance Bond Surety Bond Business Law Example Of Performance Bond Here we explain its examples, costs, and contractual agreements, and compared them with bank guarantees. Guide to what are performance bonds. See a hypothetical example of a performance bond claim and how to apply for one. Learn what a performance bond is, how it works, and why it is important for contractors and project owners. Find out how to obtain. Example Of Performance Bond.
From www.template.net
Construction Performance Bond Template in Word, Google Docs Download Example Of Performance Bond See a hypothetical example of a performance bond claim and how to apply for one. Here we explain its examples, costs, and contractual agreements, and compared them with bank guarantees. Find out how to obtain a performance bond and how much it costs, and explore industries that use them. It guarantees that the principal. These bonds act as a. Learn. Example Of Performance Bond.
From www.formsbank.com
Sample Performance Bond Wording (Annually/renewable Performance Bond Example Of Performance Bond Performance bonds are financial instruments designed to ensure that parties involved in a contract, often in the construction sector, fulfil their obligations as specified in the agreement. Learn what a performance bond is, how it works, and why it is important for contractors and project owners. A performance bond is a type of surety bond issued to ensure the completion. Example Of Performance Bond.
From swiftbonds.com
What does it take to get a Performance Bond? Swiftbonds Example Of Performance Bond Find out how to obtain a performance bond and how much it costs, and explore industries that use them. It guarantees that the principal. Guide to what are performance bonds. Performance bonds are financial instruments designed to ensure that parties involved in a contract, often in the construction sector, fulfil their obligations as specified in the agreement. A performance bond. Example Of Performance Bond.
From www.performancesuretybonds.com
Surety Bonds How to Get A Performance Bond & Examples Example Of Performance Bond Guide to what are performance bonds. A performance bond, also known as a contract bond, is a financial guarantee provided by a surety company to ensure the satisfactory completion of a project by a contractor. A performance bond is a type of surety bond issued to ensure the completion of a project according to the terms and conditions of the. Example Of Performance Bond.
From studylib.net
Performance Bond Example Of Performance Bond Here we explain its examples, costs, and contractual agreements, and compared them with bank guarantees. Find out how to obtain a performance bond and how much it costs, and explore industries that use them. These bonds act as a. Learn how they work, why they. It guarantees that the principal. Guide to what are performance bonds. A performance bond, also. Example Of Performance Bond.
From www.templateroller.com
Performance Bond Form Fill Out, Sign Online and Download PDF Example Of Performance Bond Here we explain its examples, costs, and contractual agreements, and compared them with bank guarantees. Guide to what are performance bonds. Learn how they work, why they. See a hypothetical example of a performance bond claim and how to apply for one. Performance bonds are financial instruments designed to ensure that parties involved in a contract, often in the construction. Example Of Performance Bond.
From surety1.com
Performance Bond Underwriting Requirements Financial Ratios Example Of Performance Bond A performance bond, also known as a contract bond, is a financial guarantee provided by a surety company to ensure the satisfactory completion of a project by a contractor. Find out how to obtain a performance bond and how much it costs, and explore industries that use them. A performance bond is a type of surety bond issued to ensure. Example Of Performance Bond.
From www.levelset.com
Construction Payment Bonds vs Performance Bonds Levelset Example Of Performance Bond A performance bond, also known as a contract bond, is a financial guarantee provided by a surety company to ensure the satisfactory completion of a project by a contractor. Learn what a performance bond is, how it works, and why it is important for contractors and project owners. Performance bonds are financial instruments designed to ensure that parties involved in. Example Of Performance Bond.
From www.scribd.com
Performance Bond Surety Bond Letter Of Credit Example Of Performance Bond A performance bond is a type of surety bond issued to ensure the completion of a project according to the terms and conditions of the contract. These bonds act as a. Guide to what are performance bonds. Learn how they work, why they. A performance bond, also known as a contract bond, is a financial guarantee provided by a surety. Example Of Performance Bond.
From studylib.net
Performance Bond Form Example Of Performance Bond Guide to what are performance bonds. Learn what a performance bond is, how it works, and why it is important for contractors and project owners. See a hypothetical example of a performance bond claim and how to apply for one. These bonds act as a. A performance bond is a type of surety bond issued to ensure the completion of. Example Of Performance Bond.
From www.californiacontractorbonds.com
Performance Bond What Is It & How Does It Work? Surety First Example Of Performance Bond See a hypothetical example of a performance bond claim and how to apply for one. These bonds act as a. It guarantees that the principal. Find out how to obtain a performance bond and how much it costs, and explore industries that use them. Performance bonds are financial instruments designed to ensure that parties involved in a contract, often in. Example Of Performance Bond.
From swiftbonds.com
Minnesota Performance Bonds Swiftbonds Example Of Performance Bond These bonds act as a. Performance bonds are financial instruments designed to ensure that parties involved in a contract, often in the construction sector, fulfil their obligations as specified in the agreement. A performance bond is a type of surety bond issued to ensure the completion of a project according to the terms and conditions of the contract. It guarantees. Example Of Performance Bond.
From www.rocketlawyer.com
Free Performance Bond Make, Sign & Download Rocket Lawyer Example Of Performance Bond Find out how to obtain a performance bond and how much it costs, and explore industries that use them. A performance bond is a type of surety bond issued to ensure the completion of a project according to the terms and conditions of the contract. Learn how they work, why they. A performance bond, also known as a contract bond,. Example Of Performance Bond.
From studylib.net
PERFORMANCE BOND FORM Example Of Performance Bond Find out how to obtain a performance bond and how much it costs, and explore industries that use them. Learn what a performance bond is, how it works, and why it is important for contractors and project owners. Guide to what are performance bonds. Learn how they work, why they. Performance bonds are financial instruments designed to ensure that parties. Example Of Performance Bond.
From www.yumpu.com
Sample Performance Bond Lake County Example Of Performance Bond See a hypothetical example of a performance bond claim and how to apply for one. Learn what a performance bond is, how it works, and why it is important for contractors and project owners. Here we explain its examples, costs, and contractual agreements, and compared them with bank guarantees. Guide to what are performance bonds. Find out how to obtain. Example Of Performance Bond.
From axcess-surety.com
Performance Bonds Surety Bonds by Axcess Example Of Performance Bond Find out how to obtain a performance bond and how much it costs, and explore industries that use them. Performance bonds are financial instruments designed to ensure that parties involved in a contract, often in the construction sector, fulfil their obligations as specified in the agreement. A performance bond, also known as a contract bond, is a financial guarantee provided. Example Of Performance Bond.
From www.bondexchange.com
Understanding Bid Bonds and Performance and Payment Bonds Example Of Performance Bond Learn how they work, why they. A performance bond, also known as a contract bond, is a financial guarantee provided by a surety company to ensure the satisfactory completion of a project by a contractor. Learn what a performance bond is, how it works, and why it is important for contractors and project owners. Here we explain its examples, costs,. Example Of Performance Bond.
From www.signnow.com
Payment and Performance Bond Fill Out and Sign Printable PDF Template Example Of Performance Bond It guarantees that the principal. Performance bonds are financial instruments designed to ensure that parties involved in a contract, often in the construction sector, fulfil their obligations as specified in the agreement. Learn how they work, why they. Find out how to obtain a performance bond and how much it costs, and explore industries that use them. These bonds act. Example Of Performance Bond.
From www.rocketlawyer.com
Performance Bond Form Get a Performance Bond (with Example) Example Of Performance Bond Here we explain its examples, costs, and contractual agreements, and compared them with bank guarantees. Learn what a performance bond is, how it works, and why it is important for contractors and project owners. See a hypothetical example of a performance bond claim and how to apply for one. These bonds act as a. A performance bond, also known as. Example Of Performance Bond.
From www.examples.com
Performance Agreement 12+ Examples, Format, Pdf Example Of Performance Bond Here we explain its examples, costs, and contractual agreements, and compared them with bank guarantees. Learn what a performance bond is, how it works, and why it is important for contractors and project owners. Learn how they work, why they. These bonds act as a. Find out how to obtain a performance bond and how much it costs, and explore. Example Of Performance Bond.