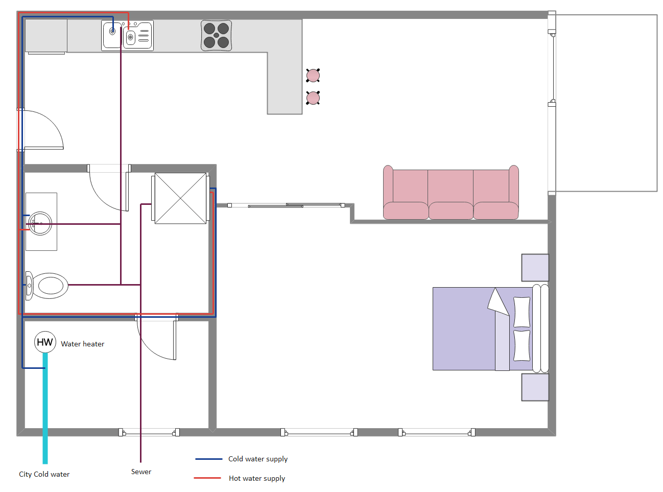
Plumbing Water Supply Layout . A residential plumbing layout plan is a schematic representation of the plumbing system within a home. It typically includes water supply lines, drains, vent pipes, valves, and fixtures such as toilets and. Heat losses increase with the diameter of the line, the distance the water must travel, and inversely with the speed at which. A plumbing floor plan is a technical drawing that depicts the layout and arrangement of plumbing fixtures, pipes, and drains within a. Consult with your local residential designer to get a professional plumbing layout. Municipal water is taken from the water treatment. A plumbing plan illustrates the system that will bring water in and take waste back out. It includes the placement of pipes,.
from www.edrawsoft.com
It typically includes water supply lines, drains, vent pipes, valves, and fixtures such as toilets and. A residential plumbing layout plan is a schematic representation of the plumbing system within a home. A plumbing plan illustrates the system that will bring water in and take waste back out. Heat losses increase with the diameter of the line, the distance the water must travel, and inversely with the speed at which. A plumbing floor plan is a technical drawing that depicts the layout and arrangement of plumbing fixtures, pipes, and drains within a. It includes the placement of pipes,. Municipal water is taken from the water treatment. Consult with your local residential designer to get a professional plumbing layout.
Free Editable Plumbing Piping Plan Examples & Templates EdrawMax
Plumbing Water Supply Layout Consult with your local residential designer to get a professional plumbing layout. A plumbing floor plan is a technical drawing that depicts the layout and arrangement of plumbing fixtures, pipes, and drains within a. Consult with your local residential designer to get a professional plumbing layout. It includes the placement of pipes,. It typically includes water supply lines, drains, vent pipes, valves, and fixtures such as toilets and. Heat losses increase with the diameter of the line, the distance the water must travel, and inversely with the speed at which. A plumbing plan illustrates the system that will bring water in and take waste back out. A residential plumbing layout plan is a schematic representation of the plumbing system within a home. Municipal water is taken from the water treatment.
From dailyengineering.com
Understanding The Plumbing Systems In Your Home Daily Engineering Plumbing Water Supply Layout It typically includes water supply lines, drains, vent pipes, valves, and fixtures such as toilets and. A plumbing floor plan is a technical drawing that depicts the layout and arrangement of plumbing fixtures, pipes, and drains within a. A residential plumbing layout plan is a schematic representation of the plumbing system within a home. Municipal water is taken from the. Plumbing Water Supply Layout.
From cexdycgq.blob.core.windows.net
Plumbing Water Line Layout at Daniel Negrete blog Plumbing Water Supply Layout It typically includes water supply lines, drains, vent pipes, valves, and fixtures such as toilets and. Municipal water is taken from the water treatment. It includes the placement of pipes,. A residential plumbing layout plan is a schematic representation of the plumbing system within a home. Consult with your local residential designer to get a professional plumbing layout. A plumbing. Plumbing Water Supply Layout.
From harrisplumbing.ca
How Your Plumbing System Works Harris Plumbing Plumbing Water Supply Layout Heat losses increase with the diameter of the line, the distance the water must travel, and inversely with the speed at which. A residential plumbing layout plan is a schematic representation of the plumbing system within a home. Municipal water is taken from the water treatment. A plumbing plan illustrates the system that will bring water in and take waste. Plumbing Water Supply Layout.
From opentextbc.ca
Learning Task 1 Block B Water Services and Distribution Systems Plumbing Water Supply Layout Municipal water is taken from the water treatment. A plumbing floor plan is a technical drawing that depicts the layout and arrangement of plumbing fixtures, pipes, and drains within a. Consult with your local residential designer to get a professional plumbing layout. A residential plumbing layout plan is a schematic representation of the plumbing system within a home. It typically. Plumbing Water Supply Layout.
From www.bibliocad.com
Water and sanitary plumbing layout in AutoCAD CAD (936.46 KB) Bibliocad Plumbing Water Supply Layout Consult with your local residential designer to get a professional plumbing layout. Heat losses increase with the diameter of the line, the distance the water must travel, and inversely with the speed at which. A residential plumbing layout plan is a schematic representation of the plumbing system within a home. It typically includes water supply lines, drains, vent pipes, valves,. Plumbing Water Supply Layout.
From dailyengineering.com
Understanding The Plumbing Systems In Your Home Daily Engineering Plumbing Water Supply Layout A plumbing plan illustrates the system that will bring water in and take waste back out. A residential plumbing layout plan is a schematic representation of the plumbing system within a home. It typically includes water supply lines, drains, vent pipes, valves, and fixtures such as toilets and. Municipal water is taken from the water treatment. It includes the placement. Plumbing Water Supply Layout.
From www.finehomebuilding.com
Three Designs for PEX Plumbing Systems Fine Homebuilding Plumbing Water Supply Layout It typically includes water supply lines, drains, vent pipes, valves, and fixtures such as toilets and. A residential plumbing layout plan is a schematic representation of the plumbing system within a home. A plumbing plan illustrates the system that will bring water in and take waste back out. Municipal water is taken from the water treatment. It includes the placement. Plumbing Water Supply Layout.
From dailyengineering.com
Understanding The Plumbing Systems In Your Home Daily Engineering Plumbing Water Supply Layout It typically includes water supply lines, drains, vent pipes, valves, and fixtures such as toilets and. Heat losses increase with the diameter of the line, the distance the water must travel, and inversely with the speed at which. Consult with your local residential designer to get a professional plumbing layout. Municipal water is taken from the water treatment. A plumbing. Plumbing Water Supply Layout.
From schematicmaxeyfastish.z21.web.core.windows.net
Typical Plumbing Diagram For A House Plumbing Water Supply Layout Consult with your local residential designer to get a professional plumbing layout. A plumbing plan illustrates the system that will bring water in and take waste back out. Heat losses increase with the diameter of the line, the distance the water must travel, and inversely with the speed at which. Municipal water is taken from the water treatment. A residential. Plumbing Water Supply Layout.
From www.edrawsoft.com
Free Editable Plumbing Piping Plan Examples & Templates EdrawMax Plumbing Water Supply Layout A plumbing floor plan is a technical drawing that depicts the layout and arrangement of plumbing fixtures, pipes, and drains within a. Heat losses increase with the diameter of the line, the distance the water must travel, and inversely with the speed at which. It includes the placement of pipes,. Consult with your local residential designer to get a professional. Plumbing Water Supply Layout.
From www.hometips.com
Home Plumbing Systems Plumbing Water Supply Layout It includes the placement of pipes,. Municipal water is taken from the water treatment. Heat losses increase with the diameter of the line, the distance the water must travel, and inversely with the speed at which. A residential plumbing layout plan is a schematic representation of the plumbing system within a home. A plumbing plan illustrates the system that will. Plumbing Water Supply Layout.
From dailyengineering.com
Understanding The Plumbing Systems In Your Home Daily Engineering Plumbing Water Supply Layout It includes the placement of pipes,. A plumbing floor plan is a technical drawing that depicts the layout and arrangement of plumbing fixtures, pipes, and drains within a. Heat losses increase with the diameter of the line, the distance the water must travel, and inversely with the speed at which. A plumbing plan illustrates the system that will bring water. Plumbing Water Supply Layout.
From cadbull.com
Water supply system cad drawing is given in this cad file. Download Plumbing Water Supply Layout Heat losses increase with the diameter of the line, the distance the water must travel, and inversely with the speed at which. A plumbing floor plan is a technical drawing that depicts the layout and arrangement of plumbing fixtures, pipes, and drains within a. Municipal water is taken from the water treatment. A residential plumbing layout plan is a schematic. Plumbing Water Supply Layout.
From www.edrawmax.com
Restaurant Water Supply Plumbing Plan EdrawMax EdrawMax Templates Plumbing Water Supply Layout A plumbing plan illustrates the system that will bring water in and take waste back out. It includes the placement of pipes,. Heat losses increase with the diameter of the line, the distance the water must travel, and inversely with the speed at which. Municipal water is taken from the water treatment. Consult with your local residential designer to get. Plumbing Water Supply Layout.
From www.conceptdraw.com
Plumbing and Piping Plans Solution Plumbing Water Supply Layout A residential plumbing layout plan is a schematic representation of the plumbing system within a home. A plumbing floor plan is a technical drawing that depicts the layout and arrangement of plumbing fixtures, pipes, and drains within a. It typically includes water supply lines, drains, vent pipes, valves, and fixtures such as toilets and. A plumbing plan illustrates the system. Plumbing Water Supply Layout.
From www.meptraininginstitute.com
Plumbing Plumbing Water Supply Layout It includes the placement of pipes,. A residential plumbing layout plan is a schematic representation of the plumbing system within a home. Consult with your local residential designer to get a professional plumbing layout. A plumbing plan illustrates the system that will bring water in and take waste back out. Municipal water is taken from the water treatment. It typically. Plumbing Water Supply Layout.
From www.edrawsoft.com
Residential Plumbing System Free Residential Plumbing System Templates Plumbing Water Supply Layout A plumbing plan illustrates the system that will bring water in and take waste back out. It includes the placement of pipes,. Heat losses increase with the diameter of the line, the distance the water must travel, and inversely with the speed at which. A residential plumbing layout plan is a schematic representation of the plumbing system within a home.. Plumbing Water Supply Layout.
From www.conceptdraw.com
Creating a Residential Plumbing Plan ConceptDraw HelpDesk Plumbing Water Supply Layout Consult with your local residential designer to get a professional plumbing layout. It includes the placement of pipes,. Heat losses increase with the diameter of the line, the distance the water must travel, and inversely with the speed at which. It typically includes water supply lines, drains, vent pipes, valves, and fixtures such as toilets and. Municipal water is taken. Plumbing Water Supply Layout.
From manualdatashockingly.z13.web.core.windows.net
Water Line Plumbing Diagram Plumbing Water Supply Layout Consult with your local residential designer to get a professional plumbing layout. It typically includes water supply lines, drains, vent pipes, valves, and fixtures such as toilets and. A plumbing plan illustrates the system that will bring water in and take waste back out. Municipal water is taken from the water treatment. A residential plumbing layout plan is a schematic. Plumbing Water Supply Layout.
From www.youtube.com
Plumbing system design part 1 (hot water recirculation system Plumbing Water Supply Layout A plumbing plan illustrates the system that will bring water in and take waste back out. Consult with your local residential designer to get a professional plumbing layout. It typically includes water supply lines, drains, vent pipes, valves, and fixtures such as toilets and. A plumbing floor plan is a technical drawing that depicts the layout and arrangement of plumbing. Plumbing Water Supply Layout.
From www.oas.org
Building Guidelines Drawings. Section F Plumbing, Sanitation, Water Plumbing Water Supply Layout It includes the placement of pipes,. Municipal water is taken from the water treatment. A plumbing floor plan is a technical drawing that depicts the layout and arrangement of plumbing fixtures, pipes, and drains within a. It typically includes water supply lines, drains, vent pipes, valves, and fixtures such as toilets and. A plumbing plan illustrates the system that will. Plumbing Water Supply Layout.
From cexdycgq.blob.core.windows.net
Plumbing Water Line Layout at Daniel Negrete blog Plumbing Water Supply Layout It includes the placement of pipes,. Heat losses increase with the diameter of the line, the distance the water must travel, and inversely with the speed at which. It typically includes water supply lines, drains, vent pipes, valves, and fixtures such as toilets and. A plumbing floor plan is a technical drawing that depicts the layout and arrangement of plumbing. Plumbing Water Supply Layout.
From cexdycgq.blob.core.windows.net
Plumbing Water Line Layout at Daniel Negrete blog Plumbing Water Supply Layout Consult with your local residential designer to get a professional plumbing layout. A plumbing floor plan is a technical drawing that depicts the layout and arrangement of plumbing fixtures, pipes, and drains within a. It includes the placement of pipes,. A plumbing plan illustrates the system that will bring water in and take waste back out. Heat losses increase with. Plumbing Water Supply Layout.
From www.finehomebuilding.com
Three Designs for PEX Plumbing Systems Fine Homebuilding Plumbing Water Supply Layout A plumbing floor plan is a technical drawing that depicts the layout and arrangement of plumbing fixtures, pipes, and drains within a. It includes the placement of pipes,. A residential plumbing layout plan is a schematic representation of the plumbing system within a home. Heat losses increase with the diameter of the line, the distance the water must travel, and. Plumbing Water Supply Layout.
From guidedehartsmitheries.z21.web.core.windows.net
Typical Residential Water Plumbing Diagram Plumbing Water Supply Layout Consult with your local residential designer to get a professional plumbing layout. It includes the placement of pipes,. A plumbing floor plan is a technical drawing that depicts the layout and arrangement of plumbing fixtures, pipes, and drains within a. It typically includes water supply lines, drains, vent pipes, valves, and fixtures such as toilets and. Heat losses increase with. Plumbing Water Supply Layout.
From pillarplus.com
Plumbing Consultancy Firm Plumbing Design Company PillarPlus Plumbing Water Supply Layout A residential plumbing layout plan is a schematic representation of the plumbing system within a home. Consult with your local residential designer to get a professional plumbing layout. A plumbing floor plan is a technical drawing that depicts the layout and arrangement of plumbing fixtures, pipes, and drains within a. Heat losses increase with the diameter of the line, the. Plumbing Water Supply Layout.
From www.youtube.com
Auto Water Supply Layout.How to make Shop drawing of Water Plumbing Water Supply Layout Consult with your local residential designer to get a professional plumbing layout. A residential plumbing layout plan is a schematic representation of the plumbing system within a home. Municipal water is taken from the water treatment. It includes the placement of pipes,. A plumbing plan illustrates the system that will bring water in and take waste back out. It typically. Plumbing Water Supply Layout.
From www.edrawsoft.com
Free Editable Plumbing Piping Plan Examples & Templates EdrawMax Plumbing Water Supply Layout It includes the placement of pipes,. A plumbing plan illustrates the system that will bring water in and take waste back out. A plumbing floor plan is a technical drawing that depicts the layout and arrangement of plumbing fixtures, pipes, and drains within a. A residential plumbing layout plan is a schematic representation of the plumbing system within a home.. Plumbing Water Supply Layout.
From www.edrawsoft.com
Free Editable Plumbing Piping Plan Examples & Templates EdrawMax Plumbing Water Supply Layout Heat losses increase with the diameter of the line, the distance the water must travel, and inversely with the speed at which. It typically includes water supply lines, drains, vent pipes, valves, and fixtures such as toilets and. Consult with your local residential designer to get a professional plumbing layout. A residential plumbing layout plan is a schematic representation of. Plumbing Water Supply Layout.
From www.archdaily.com
Bathrooms Basics 6 Tips to Plan your Bathroom Plumbing and Layout Plumbing Water Supply Layout Consult with your local residential designer to get a professional plumbing layout. It typically includes water supply lines, drains, vent pipes, valves, and fixtures such as toilets and. Heat losses increase with the diameter of the line, the distance the water must travel, and inversely with the speed at which. A plumbing floor plan is a technical drawing that depicts. Plumbing Water Supply Layout.
From www.youtube.com
Plumbing Layout for Bathroom II Water Supply Layout for Bathroom YouTube Plumbing Water Supply Layout Heat losses increase with the diameter of the line, the distance the water must travel, and inversely with the speed at which. It includes the placement of pipes,. A residential plumbing layout plan is a schematic representation of the plumbing system within a home. Consult with your local residential designer to get a professional plumbing layout. Municipal water is taken. Plumbing Water Supply Layout.
From www.harrisplumbing.ca
How Your Plumbing System Works Harris Plumbing Plumbing Water Supply Layout Heat losses increase with the diameter of the line, the distance the water must travel, and inversely with the speed at which. Municipal water is taken from the water treatment. It typically includes water supply lines, drains, vent pipes, valves, and fixtures such as toilets and. A residential plumbing layout plan is a schematic representation of the plumbing system within. Plumbing Water Supply Layout.
From www.conceptdraw.com
Plumbing and Piping Plans Solution Plumbing Water Supply Layout It typically includes water supply lines, drains, vent pipes, valves, and fixtures such as toilets and. A plumbing floor plan is a technical drawing that depicts the layout and arrangement of plumbing fixtures, pipes, and drains within a. Heat losses increase with the diameter of the line, the distance the water must travel, and inversely with the speed at which.. Plumbing Water Supply Layout.
From www.practicaldiy.com
Indirect water supply system explained Plumbing Water Supply Layout A residential plumbing layout plan is a schematic representation of the plumbing system within a home. Consult with your local residential designer to get a professional plumbing layout. Heat losses increase with the diameter of the line, the distance the water must travel, and inversely with the speed at which. Municipal water is taken from the water treatment. A plumbing. Plumbing Water Supply Layout.
From www.hidrasoftware.com
How to Perform the Water Supply System Design in Buildings with Plumber Plumbing Water Supply Layout A plumbing plan illustrates the system that will bring water in and take waste back out. Consult with your local residential designer to get a professional plumbing layout. Municipal water is taken from the water treatment. A plumbing floor plan is a technical drawing that depicts the layout and arrangement of plumbing fixtures, pipes, and drains within a. It typically. Plumbing Water Supply Layout.