Material Safety Data Sheet For Ceramic Tiles . safety data sheet the products that interceramic manufactures are floor and wall tiles, in different sizes, from 10x10 cm up. porcelain & ceramic tile products are mixtures of naturally occurring minerals that are mixed with water and fired in a high temperature kiln. safety and health hazard communication standard (29 cfr section 1910.1200): tile products are mixtures of predominantly clays, silica sand, and other natural occurring minerals that have been mixed with water. This safety data sheet (sds) has been prepared specifically for professionals (tilesetters,. For purposes of this sds, the term “ceramic” encompasses all types of tile products (ceramic, porcelain, mosaic,. tile products are mixtures of predominantly clays, silica sand, and other natural occurring minerals that have been mixed with water.
from www.yumpu.com
porcelain & ceramic tile products are mixtures of naturally occurring minerals that are mixed with water and fired in a high temperature kiln. safety and health hazard communication standard (29 cfr section 1910.1200): tile products are mixtures of predominantly clays, silica sand, and other natural occurring minerals that have been mixed with water. This safety data sheet (sds) has been prepared specifically for professionals (tilesetters,. tile products are mixtures of predominantly clays, silica sand, and other natural occurring minerals that have been mixed with water. For purposes of this sds, the term “ceramic” encompasses all types of tile products (ceramic, porcelain, mosaic,. safety data sheet the products that interceramic manufactures are floor and wall tiles, in different sizes, from 10x10 cm up.
Thermal Ceramics MATERIAL SAFETY DATA SHEET
Material Safety Data Sheet For Ceramic Tiles porcelain & ceramic tile products are mixtures of naturally occurring minerals that are mixed with water and fired in a high temperature kiln. safety data sheet the products that interceramic manufactures are floor and wall tiles, in different sizes, from 10x10 cm up. porcelain & ceramic tile products are mixtures of naturally occurring minerals that are mixed with water and fired in a high temperature kiln. tile products are mixtures of predominantly clays, silica sand, and other natural occurring minerals that have been mixed with water. This safety data sheet (sds) has been prepared specifically for professionals (tilesetters,. For purposes of this sds, the term “ceramic” encompasses all types of tile products (ceramic, porcelain, mosaic,. tile products are mixtures of predominantly clays, silica sand, and other natural occurring minerals that have been mixed with water. safety and health hazard communication standard (29 cfr section 1910.1200):
From studylib.net
Limestone Tech Data Sheet Material Safety Data Sheet For Ceramic Tiles safety and health hazard communication standard (29 cfr section 1910.1200): This safety data sheet (sds) has been prepared specifically for professionals (tilesetters,. porcelain & ceramic tile products are mixtures of naturally occurring minerals that are mixed with water and fired in a high temperature kiln. tile products are mixtures of predominantly clays, silica sand, and other natural. Material Safety Data Sheet For Ceramic Tiles.
From www.scribd.com
Safety Data Sheet Ceramic Tile Quarry Textures PDF Volatile Material Safety Data Sheet For Ceramic Tiles safety and health hazard communication standard (29 cfr section 1910.1200): For purposes of this sds, the term “ceramic” encompasses all types of tile products (ceramic, porcelain, mosaic,. porcelain & ceramic tile products are mixtures of naturally occurring minerals that are mixed with water and fired in a high temperature kiln. tile products are mixtures of predominantly clays,. Material Safety Data Sheet For Ceramic Tiles.
From www.yumpu.com
Thermal Ceramics MATERIAL SAFETY DATA SHEET Material Safety Data Sheet For Ceramic Tiles safety and health hazard communication standard (29 cfr section 1910.1200): tile products are mixtures of predominantly clays, silica sand, and other natural occurring minerals that have been mixed with water. porcelain & ceramic tile products are mixtures of naturally occurring minerals that are mixed with water and fired in a high temperature kiln. tile products are. Material Safety Data Sheet For Ceramic Tiles.
From www.adpdiamex.co.uk
Ceramic Material Diamond Blades Material Safety Data Sheet For Ceramic Tiles tile products are mixtures of predominantly clays, silica sand, and other natural occurring minerals that have been mixed with water. This safety data sheet (sds) has been prepared specifically for professionals (tilesetters,. porcelain & ceramic tile products are mixtures of naturally occurring minerals that are mixed with water and fired in a high temperature kiln. For purposes of. Material Safety Data Sheet For Ceramic Tiles.
From exymptxfu.blob.core.windows.net
Vita Ceramics Etch Safety Data Sheet at Lisa Jones blog Material Safety Data Sheet For Ceramic Tiles tile products are mixtures of predominantly clays, silica sand, and other natural occurring minerals that have been mixed with water. For purposes of this sds, the term “ceramic” encompasses all types of tile products (ceramic, porcelain, mosaic,. porcelain & ceramic tile products are mixtures of naturally occurring minerals that are mixed with water and fired in a high. Material Safety Data Sheet For Ceramic Tiles.
From tha.sika.com
Safety Data Sheet Material Safety Data Sheet For Ceramic Tiles tile products are mixtures of predominantly clays, silica sand, and other natural occurring minerals that have been mixed with water. safety data sheet the products that interceramic manufactures are floor and wall tiles, in different sizes, from 10x10 cm up. porcelain & ceramic tile products are mixtures of naturally occurring minerals that are mixed with water and. Material Safety Data Sheet For Ceramic Tiles.
From www.yumpu.com
[PDF] Safety Data Sheet Sika UK Material Safety Data Sheet For Ceramic Tiles tile products are mixtures of predominantly clays, silica sand, and other natural occurring minerals that have been mixed with water. safety data sheet the products that interceramic manufactures are floor and wall tiles, in different sizes, from 10x10 cm up. safety and health hazard communication standard (29 cfr section 1910.1200): For purposes of this sds, the term. Material Safety Data Sheet For Ceramic Tiles.
From studylib.net
Material Safety Data Sheet Material Safety Data Sheet For Ceramic Tiles tile products are mixtures of predominantly clays, silica sand, and other natural occurring minerals that have been mixed with water. For purposes of this sds, the term “ceramic” encompasses all types of tile products (ceramic, porcelain, mosaic,. This safety data sheet (sds) has been prepared specifically for professionals (tilesetters,. safety and health hazard communication standard (29 cfr section. Material Safety Data Sheet For Ceramic Tiles.
From tha.sika.com
Safety Data Sheet Material Safety Data Sheet For Ceramic Tiles safety and health hazard communication standard (29 cfr section 1910.1200): For purposes of this sds, the term “ceramic” encompasses all types of tile products (ceramic, porcelain, mosaic,. tile products are mixtures of predominantly clays, silica sand, and other natural occurring minerals that have been mixed with water. porcelain & ceramic tile products are mixtures of naturally occurring. Material Safety Data Sheet For Ceramic Tiles.
From washedupcelebrity.blogspot.com
Evo Stik Flooring Adhesive Data Sheet The Expert Material Safety Data Sheet For Ceramic Tiles For purposes of this sds, the term “ceramic” encompasses all types of tile products (ceramic, porcelain, mosaic,. safety data sheet the products that interceramic manufactures are floor and wall tiles, in different sizes, from 10x10 cm up. porcelain & ceramic tile products are mixtures of naturally occurring minerals that are mixed with water and fired in a high. Material Safety Data Sheet For Ceramic Tiles.
From studylib.net
MATERIAL SAFETY DATA SHEET Material Safety Data Sheet For Ceramic Tiles For purposes of this sds, the term “ceramic” encompasses all types of tile products (ceramic, porcelain, mosaic,. porcelain & ceramic tile products are mixtures of naturally occurring minerals that are mixed with water and fired in a high temperature kiln. safety data sheet the products that interceramic manufactures are floor and wall tiles, in different sizes, from 10x10. Material Safety Data Sheet For Ceramic Tiles.
From www.researchgate.net
Technical specifications for grès porcelain stoneware declared by the Material Safety Data Sheet For Ceramic Tiles safety and health hazard communication standard (29 cfr section 1910.1200): tile products are mixtures of predominantly clays, silica sand, and other natural occurring minerals that have been mixed with water. For purposes of this sds, the term “ceramic” encompasses all types of tile products (ceramic, porcelain, mosaic,. safety data sheet the products that interceramic manufactures are floor. Material Safety Data Sheet For Ceramic Tiles.
From www.hobbyceramicraft.co.uk
Safety data sheets, msds sheets for the products hobby ceramicraft sell. Material Safety Data Sheet For Ceramic Tiles tile products are mixtures of predominantly clays, silica sand, and other natural occurring minerals that have been mixed with water. porcelain & ceramic tile products are mixtures of naturally occurring minerals that are mixed with water and fired in a high temperature kiln. safety and health hazard communication standard (29 cfr section 1910.1200): For purposes of this. Material Safety Data Sheet For Ceramic Tiles.
From www.columbusclay.com
Safety Data Sheets / Material Safety Data Sheets Columbus Clay Company Material Safety Data Sheet For Ceramic Tiles tile products are mixtures of predominantly clays, silica sand, and other natural occurring minerals that have been mixed with water. porcelain & ceramic tile products are mixtures of naturally occurring minerals that are mixed with water and fired in a high temperature kiln. safety data sheet the products that interceramic manufactures are floor and wall tiles, in. Material Safety Data Sheet For Ceramic Tiles.
From supratile.com
Floor Tiles SupraTile Data Sheets SupraTile Interlocking Material Safety Data Sheet For Ceramic Tiles tile products are mixtures of predominantly clays, silica sand, and other natural occurring minerals that have been mixed with water. porcelain & ceramic tile products are mixtures of naturally occurring minerals that are mixed with water and fired in a high temperature kiln. safety data sheet the products that interceramic manufactures are floor and wall tiles, in. Material Safety Data Sheet For Ceramic Tiles.
From www.filbuild.com
Ceramic Tile Technical Specifications Material Safety Data Sheet For Ceramic Tiles tile products are mixtures of predominantly clays, silica sand, and other natural occurring minerals that have been mixed with water. tile products are mixtures of predominantly clays, silica sand, and other natural occurring minerals that have been mixed with water. porcelain & ceramic tile products are mixtures of naturally occurring minerals that are mixed with water and. Material Safety Data Sheet For Ceramic Tiles.
From giorfvtfr.blob.core.windows.net
Alumina Ceramic Data Sheet at Joshua Pruitt blog Material Safety Data Sheet For Ceramic Tiles For purposes of this sds, the term “ceramic” encompasses all types of tile products (ceramic, porcelain, mosaic,. tile products are mixtures of predominantly clays, silica sand, and other natural occurring minerals that have been mixed with water. safety and health hazard communication standard (29 cfr section 1910.1200): porcelain & ceramic tile products are mixtures of naturally occurring. Material Safety Data Sheet For Ceramic Tiles.
From sitemate.com
Material Safety Data Sheet Template Download for free Material Safety Data Sheet For Ceramic Tiles porcelain & ceramic tile products are mixtures of naturally occurring minerals that are mixed with water and fired in a high temperature kiln. This safety data sheet (sds) has been prepared specifically for professionals (tilesetters,. safety and health hazard communication standard (29 cfr section 1910.1200): For purposes of this sds, the term “ceramic” encompasses all types of tile. Material Safety Data Sheet For Ceramic Tiles.
From safety365.sevron.co.uk
Ceramic Media MSDS Download Material Safety Data Sheet For Ceramic Tiles porcelain & ceramic tile products are mixtures of naturally occurring minerals that are mixed with water and fired in a high temperature kiln. tile products are mixtures of predominantly clays, silica sand, and other natural occurring minerals that have been mixed with water. safety data sheet the products that interceramic manufactures are floor and wall tiles, in. Material Safety Data Sheet For Ceramic Tiles.
From studylib.net
material safety data sheet Material Safety Data Sheet For Ceramic Tiles safety and health hazard communication standard (29 cfr section 1910.1200): tile products are mixtures of predominantly clays, silica sand, and other natural occurring minerals that have been mixed with water. safety data sheet the products that interceramic manufactures are floor and wall tiles, in different sizes, from 10x10 cm up. tile products are mixtures of predominantly. Material Safety Data Sheet For Ceramic Tiles.
From www.vrogue.co
Material Safety Data Sheet Coatings Ppg Industries vrogue.co Material Safety Data Sheet For Ceramic Tiles porcelain & ceramic tile products are mixtures of naturally occurring minerals that are mixed with water and fired in a high temperature kiln. tile products are mixtures of predominantly clays, silica sand, and other natural occurring minerals that have been mixed with water. This safety data sheet (sds) has been prepared specifically for professionals (tilesetters,. safety and. Material Safety Data Sheet For Ceramic Tiles.
From www.scribd.com
ABC Tile Adhesive Original Technical Data Sheet Material Safety Data Sheet For Ceramic Tiles porcelain & ceramic tile products are mixtures of naturally occurring minerals that are mixed with water and fired in a high temperature kiln. safety data sheet the products that interceramic manufactures are floor and wall tiles, in different sizes, from 10x10 cm up. safety and health hazard communication standard (29 cfr section 1910.1200): This safety data sheet. Material Safety Data Sheet For Ceramic Tiles.
From www.constructionphaseplan.com
COSHH 041 Ready Mixed Ceramic Tile Grout and Adhesive Construction Material Safety Data Sheet For Ceramic Tiles tile products are mixtures of predominantly clays, silica sand, and other natural occurring minerals that have been mixed with water. safety data sheet the products that interceramic manufactures are floor and wall tiles, in different sizes, from 10x10 cm up. For purposes of this sds, the term “ceramic” encompasses all types of tile products (ceramic, porcelain, mosaic,. . Material Safety Data Sheet For Ceramic Tiles.
From vdocuments.mx
MATERIAL SAFETY DATA SHEET Ceramic Fiber Material Safety Data Sheet For Ceramic Tiles safety and health hazard communication standard (29 cfr section 1910.1200): porcelain & ceramic tile products are mixtures of naturally occurring minerals that are mixed with water and fired in a high temperature kiln. For purposes of this sds, the term “ceramic” encompasses all types of tile products (ceramic, porcelain, mosaic,. This safety data sheet (sds) has been prepared. Material Safety Data Sheet For Ceramic Tiles.
From www.tileshop.com
Specifications The Tile Shop Material Safety Data Sheet For Ceramic Tiles tile products are mixtures of predominantly clays, silica sand, and other natural occurring minerals that have been mixed with water. tile products are mixtures of predominantly clays, silica sand, and other natural occurring minerals that have been mixed with water. For purposes of this sds, the term “ceramic” encompasses all types of tile products (ceramic, porcelain, mosaic,. . Material Safety Data Sheet For Ceramic Tiles.
From tiletoria.co.za
Technical Tile Training Part 2 tiletoria Material Safety Data Sheet For Ceramic Tiles This safety data sheet (sds) has been prepared specifically for professionals (tilesetters,. tile products are mixtures of predominantly clays, silica sand, and other natural occurring minerals that have been mixed with water. tile products are mixtures of predominantly clays, silica sand, and other natural occurring minerals that have been mixed with water. safety data sheet the products. Material Safety Data Sheet For Ceramic Tiles.
From studylib.net
Material Safety Data Sheet For Coatings, Resins and Related Materials Material Safety Data Sheet For Ceramic Tiles porcelain & ceramic tile products are mixtures of naturally occurring minerals that are mixed with water and fired in a high temperature kiln. safety and health hazard communication standard (29 cfr section 1910.1200): tile products are mixtures of predominantly clays, silica sand, and other natural occurring minerals that have been mixed with water. safety data sheet. Material Safety Data Sheet For Ceramic Tiles.
From www.filbuild.com
Ceramic Tile Technical Specifications Material Safety Data Sheet For Ceramic Tiles safety and health hazard communication standard (29 cfr section 1910.1200): This safety data sheet (sds) has been prepared specifically for professionals (tilesetters,. tile products are mixtures of predominantly clays, silica sand, and other natural occurring minerals that have been mixed with water. For purposes of this sds, the term “ceramic” encompasses all types of tile products (ceramic, porcelain,. Material Safety Data Sheet For Ceramic Tiles.
From www.stewardmaterials.com
Steward Ceramic Materials Technical Data Sheet Material Safety Data Sheet For Ceramic Tiles tile products are mixtures of predominantly clays, silica sand, and other natural occurring minerals that have been mixed with water. porcelain & ceramic tile products are mixtures of naturally occurring minerals that are mixed with water and fired in a high temperature kiln. safety and health hazard communication standard (29 cfr section 1910.1200): tile products are. Material Safety Data Sheet For Ceramic Tiles.
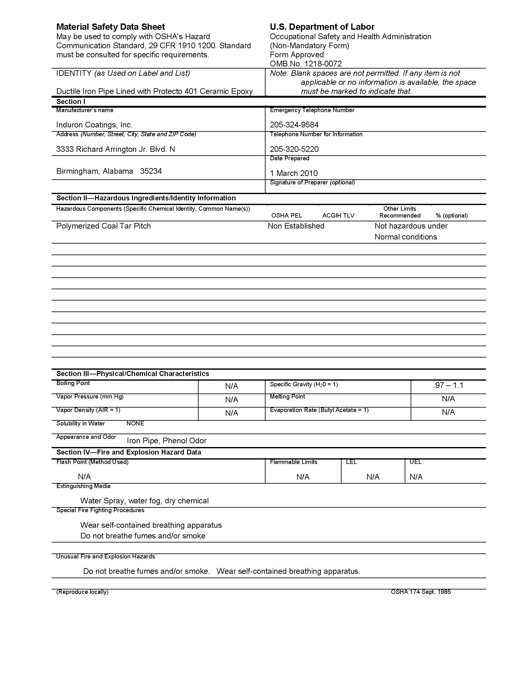
From protecto401.com
Protecto401 Ceramic Epoxy MATERIAL SAFETY DATA SHEET Material Safety Data Sheet For Ceramic Tiles safety and health hazard communication standard (29 cfr section 1910.1200): tile products are mixtures of predominantly clays, silica sand, and other natural occurring minerals that have been mixed with water. For purposes of this sds, the term “ceramic” encompasses all types of tile products (ceramic, porcelain, mosaic,. porcelain & ceramic tile products are mixtures of naturally occurring. Material Safety Data Sheet For Ceramic Tiles.
From www.mapei.com
LARGE FORMAT TILE ADHESIVE, technical sheet Mapei Material Safety Data Sheet For Ceramic Tiles tile products are mixtures of predominantly clays, silica sand, and other natural occurring minerals that have been mixed with water. For purposes of this sds, the term “ceramic” encompasses all types of tile products (ceramic, porcelain, mosaic,. tile products are mixtures of predominantly clays, silica sand, and other natural occurring minerals that have been mixed with water. . Material Safety Data Sheet For Ceramic Tiles.
From issuu.com
MAPEI Kerapoxy Material Safety Data Sheet by nationaltiles Issuu Material Safety Data Sheet For Ceramic Tiles This safety data sheet (sds) has been prepared specifically for professionals (tilesetters,. tile products are mixtures of predominantly clays, silica sand, and other natural occurring minerals that have been mixed with water. porcelain & ceramic tile products are mixtures of naturally occurring minerals that are mixed with water and fired in a high temperature kiln. safety data. Material Safety Data Sheet For Ceramic Tiles.
From dokumen.tips
(PDF) Safety Data Sheet PORCELAIN TILE MORTAR GRAY 1. …€¦ · Safety Data Material Safety Data Sheet For Ceramic Tiles safety data sheet the products that interceramic manufactures are floor and wall tiles, in different sizes, from 10x10 cm up. safety and health hazard communication standard (29 cfr section 1910.1200): For purposes of this sds, the term “ceramic” encompasses all types of tile products (ceramic, porcelain, mosaic,. tile products are mixtures of predominantly clays, silica sand, and. Material Safety Data Sheet For Ceramic Tiles.
From mantecfiltration.com
MF Material Data Sheet Porous Ceramics v1 Mantec Filtration Material Safety Data Sheet For Ceramic Tiles porcelain & ceramic tile products are mixtures of naturally occurring minerals that are mixed with water and fired in a high temperature kiln. For purposes of this sds, the term “ceramic” encompasses all types of tile products (ceramic, porcelain, mosaic,. tile products are mixtures of predominantly clays, silica sand, and other natural occurring minerals that have been mixed. Material Safety Data Sheet For Ceramic Tiles.
From www.scribd.com
Ceiling Tile Msds Dangerous Goods Toxicity Material Safety Data Sheet For Ceramic Tiles safety and health hazard communication standard (29 cfr section 1910.1200): porcelain & ceramic tile products are mixtures of naturally occurring minerals that are mixed with water and fired in a high temperature kiln. This safety data sheet (sds) has been prepared specifically for professionals (tilesetters,. tile products are mixtures of predominantly clays, silica sand, and other natural. Material Safety Data Sheet For Ceramic Tiles.