Pump Control System P&Id . Process control symbols in piping and instrumentation diagrams (p&ids) are vital for illustrating the control strategies and interlocks. Fluid power systems are divided into five basic parts: Among these symbols, p&id valve symbols are particularly crucial in illustrating how fluids or gases are controlled, managed, and. In the broad area of fluid power, two categories of pump symbols are used, depending on the motive media being used (i.e., hydraulic or pneumatic). Piping and instrumentation diagrams (p&ids) use specific symbols to show the connectivity of equipment, sensors, and valves in. This document provides a functional description of the pump station controls and operation. A piping & instrumentation diagram (p&id) is a schematic layout of a plant that displays the units to be used, the pipes connecting these units, and the sensors and control valves. Pumps, reservoirs, actuators, valves, and; This article offers a comprehensive assortment of widely utilized p&id symbols for pipes, fittings, valves, strainers, and various process equipment like pumps, compressors, motors,.
from www.researchgate.net
A piping & instrumentation diagram (p&id) is a schematic layout of a plant that displays the units to be used, the pipes connecting these units, and the sensors and control valves. This document provides a functional description of the pump station controls and operation. This article offers a comprehensive assortment of widely utilized p&id symbols for pipes, fittings, valves, strainers, and various process equipment like pumps, compressors, motors,. Among these symbols, p&id valve symbols are particularly crucial in illustrating how fluids or gases are controlled, managed, and. In the broad area of fluid power, two categories of pump symbols are used, depending on the motive media being used (i.e., hydraulic or pneumatic). Piping and instrumentation diagrams (p&ids) use specific symbols to show the connectivity of equipment, sensors, and valves in. Pumps, reservoirs, actuators, valves, and; Process control symbols in piping and instrumentation diagrams (p&ids) are vital for illustrating the control strategies and interlocks. Fluid power systems are divided into five basic parts:
Simplified P&ID diagram of the hydraulic system Download Scientific
Pump Control System P&Id Piping and instrumentation diagrams (p&ids) use specific symbols to show the connectivity of equipment, sensors, and valves in. Process control symbols in piping and instrumentation diagrams (p&ids) are vital for illustrating the control strategies and interlocks. Among these symbols, p&id valve symbols are particularly crucial in illustrating how fluids or gases are controlled, managed, and. Fluid power systems are divided into five basic parts: A piping & instrumentation diagram (p&id) is a schematic layout of a plant that displays the units to be used, the pipes connecting these units, and the sensors and control valves. Pumps, reservoirs, actuators, valves, and; In the broad area of fluid power, two categories of pump symbols are used, depending on the motive media being used (i.e., hydraulic or pneumatic). Piping and instrumentation diagrams (p&ids) use specific symbols to show the connectivity of equipment, sensors, and valves in. This article offers a comprehensive assortment of widely utilized p&id symbols for pipes, fittings, valves, strainers, and various process equipment like pumps, compressors, motors,. This document provides a functional description of the pump station controls and operation.
From www.circuitdiagram.co
Schematic Diagram Symbols Pump Circuit Diagram Pump Control System P&Id This document provides a functional description of the pump station controls and operation. In the broad area of fluid power, two categories of pump symbols are used, depending on the motive media being used (i.e., hydraulic or pneumatic). Fluid power systems are divided into five basic parts: Piping and instrumentation diagrams (p&ids) use specific symbols to show the connectivity of. Pump Control System P&Id.
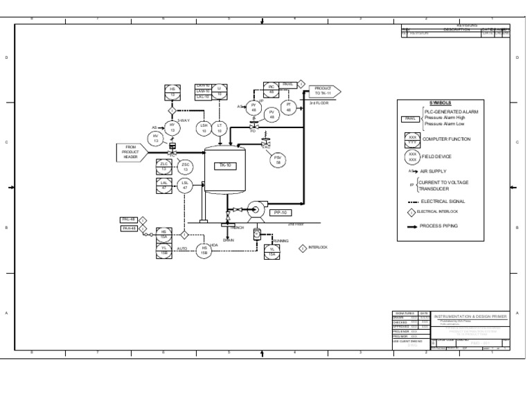
From instrumentationtoolbox.com
How to Read and Interpret Piping and Instrumentation Diagrams (P&ID Pump Control System P&Id In the broad area of fluid power, two categories of pump symbols are used, depending on the motive media being used (i.e., hydraulic or pneumatic). Fluid power systems are divided into five basic parts: Among these symbols, p&id valve symbols are particularly crucial in illustrating how fluids or gases are controlled, managed, and. Piping and instrumentation diagrams (p&ids) use specific. Pump Control System P&Id.
From instrumentationandcontroltoday.blogspot.com
Instrumentation Today HOW TO READ A P&ID Pump Control System P&Id Pumps, reservoirs, actuators, valves, and; A piping & instrumentation diagram (p&id) is a schematic layout of a plant that displays the units to be used, the pipes connecting these units, and the sensors and control valves. Piping and instrumentation diagrams (p&ids) use specific symbols to show the connectivity of equipment, sensors, and valves in. Process control symbols in piping and. Pump Control System P&Id.
From www.pinterest.com
Most Common Pump P&ID Symbols Pump Control System P&Id This article offers a comprehensive assortment of widely utilized p&id symbols for pipes, fittings, valves, strainers, and various process equipment like pumps, compressors, motors,. Process control symbols in piping and instrumentation diagrams (p&ids) are vital for illustrating the control strategies and interlocks. Among these symbols, p&id valve symbols are particularly crucial in illustrating how fluids or gases are controlled, managed,. Pump Control System P&Id.
From hardhatengineer.com
Learn How to Read P&ID Drawings A Complete Guide Pump Control System P&Id This document provides a functional description of the pump station controls and operation. In the broad area of fluid power, two categories of pump symbols are used, depending on the motive media being used (i.e., hydraulic or pneumatic). Piping and instrumentation diagrams (p&ids) use specific symbols to show the connectivity of equipment, sensors, and valves in. A piping & instrumentation. Pump Control System P&Id.
From online.visual-paradigm.com
Piping and Instrumentation Diagram (P&ID) Software Pump Control System P&Id Fluid power systems are divided into five basic parts: Pumps, reservoirs, actuators, valves, and; This article offers a comprehensive assortment of widely utilized p&id symbols for pipes, fittings, valves, strainers, and various process equipment like pumps, compressors, motors,. In the broad area of fluid power, two categories of pump symbols are used, depending on the motive media being used (i.e.,. Pump Control System P&Id.
From www.researchgate.net
1 P&ID of the Pilot Plant The plant is simply two series tanks with Pump Control System P&Id Pumps, reservoirs, actuators, valves, and; A piping & instrumentation diagram (p&id) is a schematic layout of a plant that displays the units to be used, the pipes connecting these units, and the sensors and control valves. Process control symbols in piping and instrumentation diagrams (p&ids) are vital for illustrating the control strategies and interlocks. Among these symbols, p&id valve symbols. Pump Control System P&Id.
From chemicalengineeringsite.in
Piping and Instrumentation Diagram P&ID Chemical Engineering Site Pump Control System P&Id This document provides a functional description of the pump station controls and operation. In the broad area of fluid power, two categories of pump symbols are used, depending on the motive media being used (i.e., hydraulic or pneumatic). Piping and instrumentation diagrams (p&ids) use specific symbols to show the connectivity of equipment, sensors, and valves in. Pumps, reservoirs, actuators, valves,. Pump Control System P&Id.
From instrumentationfordummies.blogspot.com
P&ID scope Pump Control System P&Id Fluid power systems are divided into five basic parts: Among these symbols, p&id valve symbols are particularly crucial in illustrating how fluids or gases are controlled, managed, and. Process control symbols in piping and instrumentation diagrams (p&ids) are vital for illustrating the control strategies and interlocks. Piping and instrumentation diagrams (p&ids) use specific symbols to show the connectivity of equipment,. Pump Control System P&Id.
From www.edrawmax.com
What is a P&ID Beginner’s Guide EdrawMax Online Pump Control System P&Id Pumps, reservoirs, actuators, valves, and; Piping and instrumentation diagrams (p&ids) use specific symbols to show the connectivity of equipment, sensors, and valves in. Among these symbols, p&id valve symbols are particularly crucial in illustrating how fluids or gases are controlled, managed, and. This document provides a functional description of the pump station controls and operation. Process control symbols in piping. Pump Control System P&Id.
From processoilandgas.blogspot.com
Process Design Simulation Safety Piping and Instrument Diagram (P&ID) Pump Control System P&Id In the broad area of fluid power, two categories of pump symbols are used, depending on the motive media being used (i.e., hydraulic or pneumatic). A piping & instrumentation diagram (p&id) is a schematic layout of a plant that displays the units to be used, the pipes connecting these units, and the sensors and control valves. This article offers a. Pump Control System P&Id.
From boostrand.com
Discover Tips for Preparation of a Pump P&ID Boostrand Pump Control System P&Id A piping & instrumentation diagram (p&id) is a schematic layout of a plant that displays the units to be used, the pipes connecting these units, and the sensors and control valves. This article offers a comprehensive assortment of widely utilized p&id symbols for pipes, fittings, valves, strainers, and various process equipment like pumps, compressors, motors,. In the broad area of. Pump Control System P&Id.
From boostrand.com
Discover Tips for Preparation of a Pump P&ID Boostrand Pump Control System P&Id Process control symbols in piping and instrumentation diagrams (p&ids) are vital for illustrating the control strategies and interlocks. Fluid power systems are divided into five basic parts: Among these symbols, p&id valve symbols are particularly crucial in illustrating how fluids or gases are controlled, managed, and. Pumps, reservoirs, actuators, valves, and; In the broad area of fluid power, two categories. Pump Control System P&Id.
From www.researchgate.net
Piping and Instrumentation Diagram (P & ID) of the pumping plant [13 Pump Control System P&Id Piping and instrumentation diagrams (p&ids) use specific symbols to show the connectivity of equipment, sensors, and valves in. This document provides a functional description of the pump station controls and operation. Fluid power systems are divided into five basic parts: A piping & instrumentation diagram (p&id) is a schematic layout of a plant that displays the units to be used,. Pump Control System P&Id.
From boostrand.com
Discover Tips for Preparation of a Pump P&ID Boostrand Pump Control System P&Id Among these symbols, p&id valve symbols are particularly crucial in illustrating how fluids or gases are controlled, managed, and. A piping & instrumentation diagram (p&id) is a schematic layout of a plant that displays the units to be used, the pipes connecting these units, and the sensors and control valves. Pumps, reservoirs, actuators, valves, and; Process control symbols in piping. Pump Control System P&Id.
From www.edrawmax.com
What is a P&ID Beginner’s Guide EdrawMax Online Pump Control System P&Id Piping and instrumentation diagrams (p&ids) use specific symbols to show the connectivity of equipment, sensors, and valves in. This document provides a functional description of the pump station controls and operation. Pumps, reservoirs, actuators, valves, and; Process control symbols in piping and instrumentation diagrams (p&ids) are vital for illustrating the control strategies and interlocks. Fluid power systems are divided into. Pump Control System P&Id.
From hardhatengineer.com
Learn How to Read P&ID Drawings A Complete Guide Pump Control System P&Id Among these symbols, p&id valve symbols are particularly crucial in illustrating how fluids or gases are controlled, managed, and. Fluid power systems are divided into five basic parts: This document provides a functional description of the pump station controls and operation. Process control symbols in piping and instrumentation diagrams (p&ids) are vital for illustrating the control strategies and interlocks. This. Pump Control System P&Id.
From automationforum.co
Basics of Piping and Instrumentation Diagrams (P&IDs) Pump Control System P&Id A piping & instrumentation diagram (p&id) is a schematic layout of a plant that displays the units to be used, the pipes connecting these units, and the sensors and control valves. Process control symbols in piping and instrumentation diagrams (p&ids) are vital for illustrating the control strategies and interlocks. Pumps, reservoirs, actuators, valves, and; In the broad area of fluid. Pump Control System P&Id.
From www.scribd.com
contoh P&ID Pump Control System Pump Control System P&Id Process control symbols in piping and instrumentation diagrams (p&ids) are vital for illustrating the control strategies and interlocks. This article offers a comprehensive assortment of widely utilized p&id symbols for pipes, fittings, valves, strainers, and various process equipment like pumps, compressors, motors,. Fluid power systems are divided into five basic parts: Pumps, reservoirs, actuators, valves, and; A piping & instrumentation. Pump Control System P&Id.
From www.realpars.com
How to Interpret DCS and PLC Symbols on a P&ID RealPars Pump Control System P&Id This article offers a comprehensive assortment of widely utilized p&id symbols for pipes, fittings, valves, strainers, and various process equipment like pumps, compressors, motors,. This document provides a functional description of the pump station controls and operation. Among these symbols, p&id valve symbols are particularly crucial in illustrating how fluids or gases are controlled, managed, and. Piping and instrumentation diagrams. Pump Control System P&Id.
From kimray.com
How to Read Oil and Gas P&ID Symbols Kimray Pump Control System P&Id Pumps, reservoirs, actuators, valves, and; Process control symbols in piping and instrumentation diagrams (p&ids) are vital for illustrating the control strategies and interlocks. Piping and instrumentation diagrams (p&ids) use specific symbols to show the connectivity of equipment, sensors, and valves in. A piping & instrumentation diagram (p&id) is a schematic layout of a plant that displays the units to be. Pump Control System P&Id.
From hardhatengineer.com
Learn How to Read P&ID Drawings A Complete Guide Pump Control System P&Id Piping and instrumentation diagrams (p&ids) use specific symbols to show the connectivity of equipment, sensors, and valves in. This document provides a functional description of the pump station controls and operation. Among these symbols, p&id valve symbols are particularly crucial in illustrating how fluids or gases are controlled, managed, and. Pumps, reservoirs, actuators, valves, and; Process control symbols in piping. Pump Control System P&Id.
From xybernetics.com
Control P&ID Naming Convension Pump Control System P&Id This document provides a functional description of the pump station controls and operation. Piping and instrumentation diagrams (p&ids) use specific symbols to show the connectivity of equipment, sensors, and valves in. Among these symbols, p&id valve symbols are particularly crucial in illustrating how fluids or gases are controlled, managed, and. This article offers a comprehensive assortment of widely utilized p&id. Pump Control System P&Id.
From online.visual-paradigm.com
Simple P&ID Diagram Piping and Instrumentation Diagram Template Pump Control System P&Id This article offers a comprehensive assortment of widely utilized p&id symbols for pipes, fittings, valves, strainers, and various process equipment like pumps, compressors, motors,. In the broad area of fluid power, two categories of pump symbols are used, depending on the motive media being used (i.e., hydraulic or pneumatic). Piping and instrumentation diagrams (p&ids) use specific symbols to show the. Pump Control System P&Id.
From corsosystems.com
P&ID Drawings 101 — Corso Systems Pump Control System P&Id Piping and instrumentation diagrams (p&ids) use specific symbols to show the connectivity of equipment, sensors, and valves in. Pumps, reservoirs, actuators, valves, and; Process control symbols in piping and instrumentation diagrams (p&ids) are vital for illustrating the control strategies and interlocks. This document provides a functional description of the pump station controls and operation. Among these symbols, p&id valve symbols. Pump Control System P&Id.
From www.enggcyclopedia.com
Typical P&ID arrangement for pumps EnggCyclopedia Pump Control System P&Id Process control symbols in piping and instrumentation diagrams (p&ids) are vital for illustrating the control strategies and interlocks. Among these symbols, p&id valve symbols are particularly crucial in illustrating how fluids or gases are controlled, managed, and. A piping & instrumentation diagram (p&id) is a schematic layout of a plant that displays the units to be used, the pipes connecting. Pump Control System P&Id.
From chemical-engineering365.blogspot.com
Chemical engineering's source Discharge Pump System Pump Control System P&Id This article offers a comprehensive assortment of widely utilized p&id symbols for pipes, fittings, valves, strainers, and various process equipment like pumps, compressors, motors,. Fluid power systems are divided into five basic parts: A piping & instrumentation diagram (p&id) is a schematic layout of a plant that displays the units to be used, the pipes connecting these units, and the. Pump Control System P&Id.
From www.getreskilled.com
Reading P&ID Symbols A StepbyStep Guide GetReskilled Pump Control System P&Id Process control symbols in piping and instrumentation diagrams (p&ids) are vital for illustrating the control strategies and interlocks. This document provides a functional description of the pump station controls and operation. In the broad area of fluid power, two categories of pump symbols are used, depending on the motive media being used (i.e., hydraulic or pneumatic). Pumps, reservoirs, actuators, valves,. Pump Control System P&Id.
From www.youtube.com
How to Read Piping and Instrumentation Diagram(P&ID) YouTube Pump Control System P&Id Among these symbols, p&id valve symbols are particularly crucial in illustrating how fluids or gases are controlled, managed, and. In the broad area of fluid power, two categories of pump symbols are used, depending on the motive media being used (i.e., hydraulic or pneumatic). Process control symbols in piping and instrumentation diagrams (p&ids) are vital for illustrating the control strategies. Pump Control System P&Id.
From instrumentationtools.com
P&ID Document Reading Example Instrumentation Tools Pump Control System P&Id This article offers a comprehensive assortment of widely utilized p&id symbols for pipes, fittings, valves, strainers, and various process equipment like pumps, compressors, motors,. Among these symbols, p&id valve symbols are particularly crucial in illustrating how fluids or gases are controlled, managed, and. Fluid power systems are divided into five basic parts: Process control symbols in piping and instrumentation diagrams. Pump Control System P&Id.
From kimray.com
How to Read Oil and Gas P&ID Symbols Kimray Pump Control System P&Id A piping & instrumentation diagram (p&id) is a schematic layout of a plant that displays the units to be used, the pipes connecting these units, and the sensors and control valves. Piping and instrumentation diagrams (p&ids) use specific symbols to show the connectivity of equipment, sensors, and valves in. This document provides a functional description of the pump station controls. Pump Control System P&Id.
From boostrand.com
Discover Tips for Preparation of a Pump P&ID Boostrand Pump Control System P&Id Piping and instrumentation diagrams (p&ids) use specific symbols to show the connectivity of equipment, sensors, and valves in. A piping & instrumentation diagram (p&id) is a schematic layout of a plant that displays the units to be used, the pipes connecting these units, and the sensors and control valves. Fluid power systems are divided into five basic parts: Process control. Pump Control System P&Id.
From www.chegg.com
Solved A P&ID for a heat exchanger is shown on the previous Pump Control System P&Id Fluid power systems are divided into five basic parts: Among these symbols, p&id valve symbols are particularly crucial in illustrating how fluids or gases are controlled, managed, and. This article offers a comprehensive assortment of widely utilized p&id symbols for pipes, fittings, valves, strainers, and various process equipment like pumps, compressors, motors,. A piping & instrumentation diagram (p&id) is a. Pump Control System P&Id.
From www.researchgate.net
Simplified P&ID diagram of the hydraulic system Download Scientific Pump Control System P&Id Fluid power systems are divided into five basic parts: Piping and instrumentation diagrams (p&ids) use specific symbols to show the connectivity of equipment, sensors, and valves in. Among these symbols, p&id valve symbols are particularly crucial in illustrating how fluids or gases are controlled, managed, and. In the broad area of fluid power, two categories of pump symbols are used,. Pump Control System P&Id.
From instrumentationtools.com
P&ID Guidelines for Pumps Heat Exchangers Inst Tools Pump Control System P&Id Fluid power systems are divided into five basic parts: A piping & instrumentation diagram (p&id) is a schematic layout of a plant that displays the units to be used, the pipes connecting these units, and the sensors and control valves. This article offers a comprehensive assortment of widely utilized p&id symbols for pipes, fittings, valves, strainers, and various process equipment. Pump Control System P&Id.