Richmond Hill Land Use Map . view the official plan. For accurate reference, the schedules and policies of the richmond hill official plan must be consulted. The information provide in this map is a depiction of a portion of the richmond hill o ficial plan. For accurate reference, the schedules and policies of the richmond hill o ficial plan must be consulted. The information provide in this map is a depiction of a portion of the richmond hill official plan. find local businesses, view maps and get driving directions in google maps. the proportion of land covered with urban, rural, or natural areas, is known as land cover, which is broader in scope than more specific land use designations. use rh maps to view, search and print online maps about richmond hill and york region. The city of richmond hill is updating the current official plan to guide land use and development over the long term. For accurate reference, the schedules and policies of the richmond hill official plan must be consulted. The information provide in this map is a depiction of a portion of the richmond hill official plan.
from www.visitrichmondhill.com
view the official plan. The information provide in this map is a depiction of a portion of the richmond hill official plan. For accurate reference, the schedules and policies of the richmond hill o ficial plan must be consulted. For accurate reference, the schedules and policies of the richmond hill official plan must be consulted. The information provide in this map is a depiction of a portion of the richmond hill official plan. the proportion of land covered with urban, rural, or natural areas, is known as land cover, which is broader in scope than more specific land use designations. find local businesses, view maps and get driving directions in google maps. use rh maps to view, search and print online maps about richmond hill and york region. For accurate reference, the schedules and policies of the richmond hill official plan must be consulted. The information provide in this map is a depiction of a portion of the richmond hill o ficial plan.
Maps Richmond Hill Convention & Visitor Bureau
Richmond Hill Land Use Map the proportion of land covered with urban, rural, or natural areas, is known as land cover, which is broader in scope than more specific land use designations. The city of richmond hill is updating the current official plan to guide land use and development over the long term. use rh maps to view, search and print online maps about richmond hill and york region. view the official plan. The information provide in this map is a depiction of a portion of the richmond hill o ficial plan. The information provide in this map is a depiction of a portion of the richmond hill official plan. find local businesses, view maps and get driving directions in google maps. The information provide in this map is a depiction of a portion of the richmond hill official plan. For accurate reference, the schedules and policies of the richmond hill official plan must be consulted. For accurate reference, the schedules and policies of the richmond hill o ficial plan must be consulted. the proportion of land covered with urban, rural, or natural areas, is known as land cover, which is broader in scope than more specific land use designations. For accurate reference, the schedules and policies of the richmond hill official plan must be consulted.
From www.visitrichmondhill.com
Maps Richmond Hill Convention & Visitor Bureau Richmond Hill Land Use Map The information provide in this map is a depiction of a portion of the richmond hill official plan. The information provide in this map is a depiction of a portion of the richmond hill official plan. For accurate reference, the schedules and policies of the richmond hill official plan must be consulted. The city of richmond hill is updating the. Richmond Hill Land Use Map.
From www.landsat.com
Richmond Hill Street Map 1365044 Richmond Hill Land Use Map The city of richmond hill is updating the current official plan to guide land use and development over the long term. find local businesses, view maps and get driving directions in google maps. For accurate reference, the schedules and policies of the richmond hill o ficial plan must be consulted. The information provide in this map is a depiction. Richmond Hill Land Use Map.
From www.richmondhillautoglass.ca
Auto Glass Repair Richmond Hill Richmond Hill Land Use Map The information provide in this map is a depiction of a portion of the richmond hill official plan. find local businesses, view maps and get driving directions in google maps. The city of richmond hill is updating the current official plan to guide land use and development over the long term. The information provide in this map is a. Richmond Hill Land Use Map.
From arthatravel.com
Richmond Va Map Photos Cantik Richmond Hill Land Use Map For accurate reference, the schedules and policies of the richmond hill official plan must be consulted. For accurate reference, the schedules and policies of the richmond hill o ficial plan must be consulted. The information provide in this map is a depiction of a portion of the richmond hill official plan. find local businesses, view maps and get driving. Richmond Hill Land Use Map.
From www.etsy.com
Richmond Hill ON map print Richmond Hill map poster Richmond Etsy Richmond Hill Land Use Map For accurate reference, the schedules and policies of the richmond hill o ficial plan must be consulted. For accurate reference, the schedules and policies of the richmond hill official plan must be consulted. For accurate reference, the schedules and policies of the richmond hill official plan must be consulted. The city of richmond hill is updating the current official plan. Richmond Hill Land Use Map.
From www.richmondhill.ca
Official Plan Update City of Richmond Hill Richmond Hill Land Use Map For accurate reference, the schedules and policies of the richmond hill official plan must be consulted. The city of richmond hill is updating the current official plan to guide land use and development over the long term. For accurate reference, the schedules and policies of the richmond hill o ficial plan must be consulted. the proportion of land covered. Richmond Hill Land Use Map.
From neptis.org
Pickering Richmond Hill Land Exchange Neptis Foundation Richmond Hill Land Use Map For accurate reference, the schedules and policies of the richmond hill official plan must be consulted. For accurate reference, the schedules and policies of the richmond hill official plan must be consulted. The information provide in this map is a depiction of a portion of the richmond hill o ficial plan. find local businesses, view maps and get driving. Richmond Hill Land Use Map.
From www.richmondhill.ca
Ward 5 Councillor City of Richmond Hill Richmond Hill Land Use Map The information provide in this map is a depiction of a portion of the richmond hill o ficial plan. view the official plan. The information provide in this map is a depiction of a portion of the richmond hill official plan. use rh maps to view, search and print online maps about richmond hill and york region. For. Richmond Hill Land Use Map.
From www.stepmap.de
StepMap Karte Richmond Hill Landkarte für USA Richmond Hill Land Use Map For accurate reference, the schedules and policies of the richmond hill official plan must be consulted. The information provide in this map is a depiction of a portion of the richmond hill official plan. For accurate reference, the schedules and policies of the richmond hill o ficial plan must be consulted. use rh maps to view, search and print. Richmond Hill Land Use Map.
From www.richmond.gov.uk
Richmond Hill Conservation Area Appraisal London Borough of Richmond Richmond Hill Land Use Map find local businesses, view maps and get driving directions in google maps. The information provide in this map is a depiction of a portion of the richmond hill o ficial plan. the proportion of land covered with urban, rural, or natural areas, is known as land cover, which is broader in scope than more specific land use designations.. Richmond Hill Land Use Map.
From www.knowol.com
Beautifully Illustrated Pictorial Map of Richmond, VA from 1937 KNOWOL Richmond Hill Land Use Map view the official plan. use rh maps to view, search and print online maps about richmond hill and york region. For accurate reference, the schedules and policies of the richmond hill o ficial plan must be consulted. The information provide in this map is a depiction of a portion of the richmond hill official plan. For accurate reference,. Richmond Hill Land Use Map.
From hedoarchitects.pl
Old map of Richmond archival print on paper or matte canvas Map of Richmond Hill Land Use Map the proportion of land covered with urban, rural, or natural areas, is known as land cover, which is broader in scope than more specific land use designations. The information provide in this map is a depiction of a portion of the richmond hill official plan. The information provide in this map is a depiction of a portion of the. Richmond Hill Land Use Map.
From www.mapsales.com
Richmond County, GA Wall Map Premium Style by MarketMAPS Richmond Hill Land Use Map For accurate reference, the schedules and policies of the richmond hill official plan must be consulted. The information provide in this map is a depiction of a portion of the richmond hill official plan. The information provide in this map is a depiction of a portion of the richmond hill official plan. view the official plan. use rh. Richmond Hill Land Use Map.
From www.richmondhill-ga.gov
Area Maps Richmond Hill, GA Official site Richmond Hill Land Use Map use rh maps to view, search and print online maps about richmond hill and york region. the proportion of land covered with urban, rural, or natural areas, is known as land cover, which is broader in scope than more specific land use designations. The city of richmond hill is updating the current official plan to guide land use. Richmond Hill Land Use Map.
From opushomes.com
Richmond Hills Site Plan Richmond Hill Land Use Map The information provide in this map is a depiction of a portion of the richmond hill o ficial plan. the proportion of land covered with urban, rural, or natural areas, is known as land cover, which is broader in scope than more specific land use designations. view the official plan. For accurate reference, the schedules and policies of. Richmond Hill Land Use Map.
From www.elections.ca
Richmond Hill Maps Corner Elections Canada Online Richmond Hill Land Use Map For accurate reference, the schedules and policies of the richmond hill official plan must be consulted. The information provide in this map is a depiction of a portion of the richmond hill official plan. For accurate reference, the schedules and policies of the richmond hill o ficial plan must be consulted. view the official plan. For accurate reference, the. Richmond Hill Land Use Map.
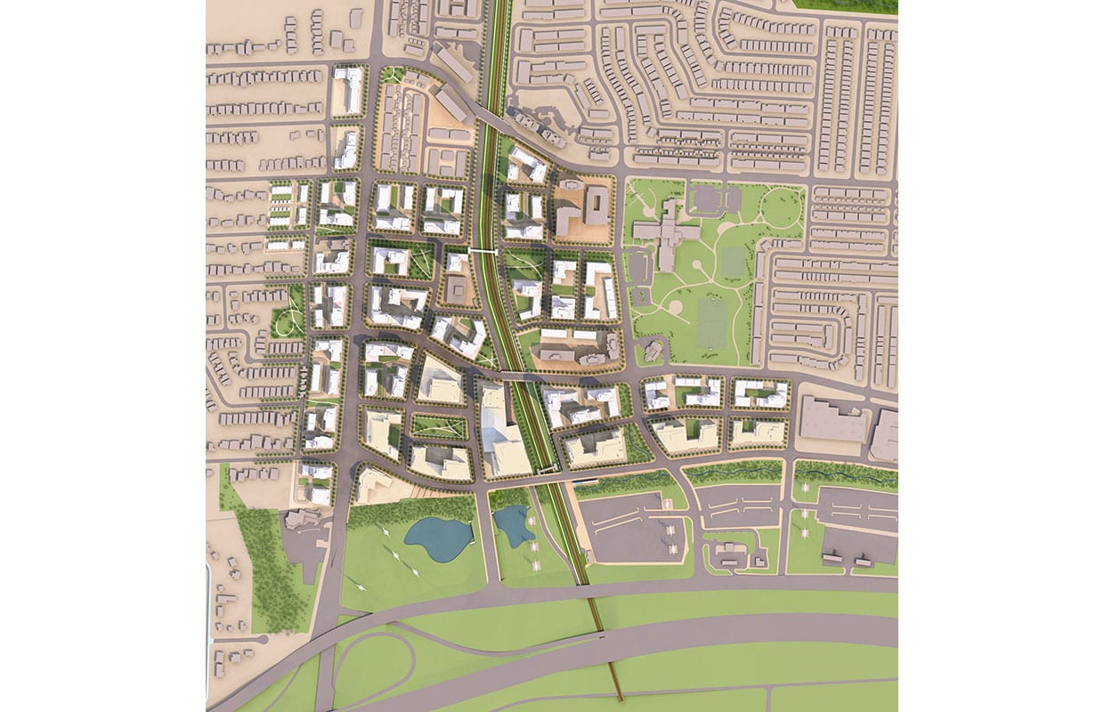
From www.urbanstrategies.com
Richmond Hill Regional Centre Study Urban Strategies Richmond Hill Land Use Map The information provide in this map is a depiction of a portion of the richmond hill official plan. The information provide in this map is a depiction of a portion of the richmond hill o ficial plan. The information provide in this map is a depiction of a portion of the richmond hill official plan. For accurate reference, the schedules. Richmond Hill Land Use Map.
From www.pinterest.com
Nice bright vector map of Richmond Hill, Ontario, Canada with fine Richmond Hill Land Use Map view the official plan. For accurate reference, the schedules and policies of the richmond hill official plan must be consulted. use rh maps to view, search and print online maps about richmond hill and york region. the proportion of land covered with urban, rural, or natural areas, is known as land cover, which is broader in scope. Richmond Hill Land Use Map.
From listingsca.com
Richmond Hill Map, Ontario Listings Canada Richmond Hill Land Use Map use rh maps to view, search and print online maps about richmond hill and york region. For accurate reference, the schedules and policies of the richmond hill o ficial plan must be consulted. The information provide in this map is a depiction of a portion of the richmond hill o ficial plan. For accurate reference, the schedules and policies. Richmond Hill Land Use Map.
From www.pinterest.co.kr
Old Map of Richmond Historical Map Reproduction on Paper or Canvas Richmond Hill Land Use Map For accurate reference, the schedules and policies of the richmond hill official plan must be consulted. The information provide in this map is a depiction of a portion of the richmond hill o ficial plan. For accurate reference, the schedules and policies of the richmond hill official plan must be consulted. The information provide in this map is a depiction. Richmond Hill Land Use Map.
From www.landsat.com
Aerial Photography Map of Richmond Hill, GA Richmond Hill Land Use Map The information provide in this map is a depiction of a portion of the richmond hill official plan. use rh maps to view, search and print online maps about richmond hill and york region. find local businesses, view maps and get driving directions in google maps. The information provide in this map is a depiction of a portion. Richmond Hill Land Use Map.
From expercarehealth.com
ExperCARE Urgent Care in Richmond Hill, ExperCARE Richmond Hill Land Use Map The information provide in this map is a depiction of a portion of the richmond hill official plan. For accurate reference, the schedules and policies of the richmond hill o ficial plan must be consulted. The city of richmond hill is updating the current official plan to guide land use and development over the long term. For accurate reference, the. Richmond Hill Land Use Map.
From gadgets2018blog.blogspot.com
Richmond Hill Map Gadgets 2018 Richmond Hill Land Use Map The information provide in this map is a depiction of a portion of the richmond hill o ficial plan. For accurate reference, the schedules and policies of the richmond hill o ficial plan must be consulted. The city of richmond hill is updating the current official plan to guide land use and development over the long term. For accurate reference,. Richmond Hill Land Use Map.
From www.homehound.com.au
Richmond Hills Estate, Richmond QLD 4740 Elders Real Estate Mackay Richmond Hill Land Use Map The information provide in this map is a depiction of a portion of the richmond hill official plan. the proportion of land covered with urban, rural, or natural areas, is known as land cover, which is broader in scope than more specific land use designations. find local businesses, view maps and get driving directions in google maps. The. Richmond Hill Land Use Map.
From www.pinterest.com
Image result for Richmond Hill Richmond London Richmond london Richmond Hill Land Use Map The information provide in this map is a depiction of a portion of the richmond hill official plan. view the official plan. the proportion of land covered with urban, rural, or natural areas, is known as land cover, which is broader in scope than more specific land use designations. The information provide in this map is a depiction. Richmond Hill Land Use Map.
From www.loopnet.com
0 Highway 144, Richmond Hill, GA 31324 Land for Sale Richmond Hill Land Use Map the proportion of land covered with urban, rural, or natural areas, is known as land cover, which is broader in scope than more specific land use designations. The information provide in this map is a depiction of a portion of the richmond hill o ficial plan. The city of richmond hill is updating the current official plan to guide. Richmond Hill Land Use Map.
From www.richmondhill-ga.gov
Area Maps Richmond Hill, GA Official site Richmond Hill Land Use Map For accurate reference, the schedules and policies of the richmond hill o ficial plan must be consulted. the proportion of land covered with urban, rural, or natural areas, is known as land cover, which is broader in scope than more specific land use designations. The information provide in this map is a depiction of a portion of the richmond. Richmond Hill Land Use Map.
From townmapsusa.com
Map of Richmond Hill, NY, New York Richmond Hill Land Use Map The information provide in this map is a depiction of a portion of the richmond hill official plan. view the official plan. The information provide in this map is a depiction of a portion of the richmond hill official plan. For accurate reference, the schedules and policies of the richmond hill o ficial plan must be consulted. find. Richmond Hill Land Use Map.
From www.neighbourhoodguide.com
Rural Richmond Hill Neighbourhood Guide Richmond Hill Land Use Map The information provide in this map is a depiction of a portion of the richmond hill official plan. For accurate reference, the schedules and policies of the richmond hill official plan must be consulted. view the official plan. For accurate reference, the schedules and policies of the richmond hill o ficial plan must be consulted. The city of richmond. Richmond Hill Land Use Map.
From www.richmondhill.ca
Richmond Green Sports Centre and Park City of Richmond Hill Richmond Hill Land Use Map For accurate reference, the schedules and policies of the richmond hill official plan must be consulted. use rh maps to view, search and print online maps about richmond hill and york region. find local businesses, view maps and get driving directions in google maps. The city of richmond hill is updating the current official plan to guide land. Richmond Hill Land Use Map.
From www.francisfrith.com
Old Maps of Richmond Hill, Yorkshire Francis Frith Richmond Hill Land Use Map The information provide in this map is a depiction of a portion of the richmond hill official plan. the proportion of land covered with urban, rural, or natural areas, is known as land cover, which is broader in scope than more specific land use designations. For accurate reference, the schedules and policies of the richmond hill o ficial plan. Richmond Hill Land Use Map.
From www.francisfrith.com
Old Maps of Richmond Hill, Yorkshire Francis Frith Richmond Hill Land Use Map The information provide in this map is a depiction of a portion of the richmond hill official plan. find local businesses, view maps and get driving directions in google maps. For accurate reference, the schedules and policies of the richmond hill official plan must be consulted. view the official plan. For accurate reference, the schedules and policies of. Richmond Hill Land Use Map.
From www.urbanstrategies.com
Richmond Hill Regional Centre Study Urban Strategies Richmond Hill Land Use Map The information provide in this map is a depiction of a portion of the richmond hill o ficial plan. For accurate reference, the schedules and policies of the richmond hill official plan must be consulted. For accurate reference, the schedules and policies of the richmond hill official plan must be consulted. The city of richmond hill is updating the current. Richmond Hill Land Use Map.
From www.openlot.com.au
[Land for Sale] Richmond Hills Estate, Richmond OpenLot Richmond Hill Land Use Map The information provide in this map is a depiction of a portion of the richmond hill official plan. the proportion of land covered with urban, rural, or natural areas, is known as land cover, which is broader in scope than more specific land use designations. For accurate reference, the schedules and policies of the richmond hill o ficial plan. Richmond Hill Land Use Map.
From washingtonpost.com
Richmond attractions map The Washington Post Richmond Hill Land Use Map the proportion of land covered with urban, rural, or natural areas, is known as land cover, which is broader in scope than more specific land use designations. For accurate reference, the schedules and policies of the richmond hill official plan must be consulted. The information provide in this map is a depiction of a portion of the richmond hill. Richmond Hill Land Use Map.