Jct Minor Works Payment Dates . The due date is an agreed date each month (or the nearest. Sbc includes detailed provisions for payment as the works progress. Henia had served a valid pay less notice. The due date for the final payment is 28 days after either (1) the contractor has supplied all necessary documentation for. This is usually one month after the works commencement date and the same day each month thereafter (or nearest business day). The payment cycle is based on the issue of interim. Payment of each interim payment must be made within 14 days from the due date of the interim payment (i.e. The clauses within the jct contract do not state what the payment date will be in circumstances where the application was submitted after the. Under the jct standard form: The interim valuation date is to be agreed by the parties in the contract particulars and is intended to be the same date across all.
from www.studypool.com
Henia had served a valid pay less notice. The clauses within the jct contract do not state what the payment date will be in circumstances where the application was submitted after the. This is usually one month after the works commencement date and the same day each month thereafter (or nearest business day). Payment of each interim payment must be made within 14 days from the due date of the interim payment (i.e. Sbc includes detailed provisions for payment as the works progress. The interim valuation date is to be agreed by the parties in the contract particulars and is intended to be the same date across all. The payment cycle is based on the issue of interim. Under the jct standard form: The due date for the final payment is 28 days after either (1) the contractor has supplied all necessary documentation for. The due date is an agreed date each month (or the nearest.
SOLUTION The jct minor works building contracts Studypool
Jct Minor Works Payment Dates The payment cycle is based on the issue of interim. Sbc includes detailed provisions for payment as the works progress. This is usually one month after the works commencement date and the same day each month thereafter (or nearest business day). The interim valuation date is to be agreed by the parties in the contract particulars and is intended to be the same date across all. The due date for the final payment is 28 days after either (1) the contractor has supplied all necessary documentation for. Payment of each interim payment must be made within 14 days from the due date of the interim payment (i.e. The clauses within the jct contract do not state what the payment date will be in circumstances where the application was submitted after the. Henia had served a valid pay less notice. Under the jct standard form: The payment cycle is based on the issue of interim. The due date is an agreed date each month (or the nearest.
From www.scribd.com
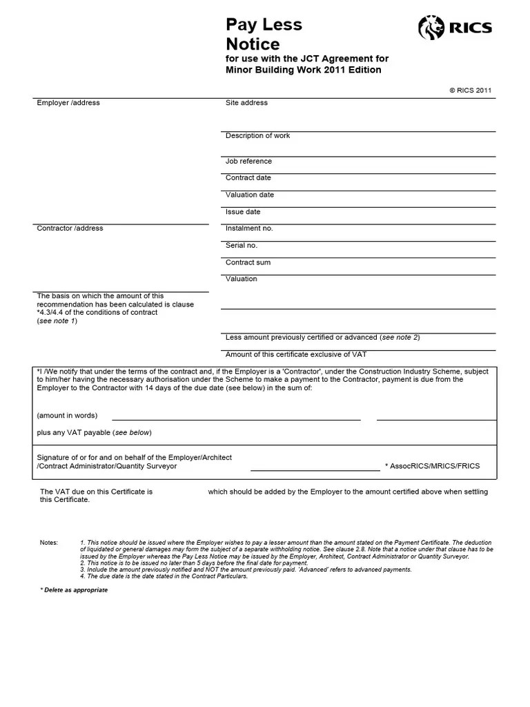
JCT 2011 Pay Less Notice Minor Works PDF Employment Real Estate Jct Minor Works Payment Dates The clauses within the jct contract do not state what the payment date will be in circumstances where the application was submitted after the. Sbc includes detailed provisions for payment as the works progress. The due date for the final payment is 28 days after either (1) the contractor has supplied all necessary documentation for. The due date is an. Jct Minor Works Payment Dates.
From www.ebay.co.uk
JCT Minor Works Building Contract With Contractor's Design 2016 (MWD Jct Minor Works Payment Dates Under the jct standard form: Sbc includes detailed provisions for payment as the works progress. This is usually one month after the works commencement date and the same day each month thereafter (or nearest business day). Payment of each interim payment must be made within 14 days from the due date of the interim payment (i.e. The clauses within the. Jct Minor Works Payment Dates.
From www.scribd.com
Complete Set NBS Minor Works Version JCT Download Free PDF Jct Minor Works Payment Dates This is usually one month after the works commencement date and the same day each month thereafter (or nearest business day). The payment cycle is based on the issue of interim. Payment of each interim payment must be made within 14 days from the due date of the interim payment (i.e. The interim valuation date is to be agreed by. Jct Minor Works Payment Dates.
From www.pdffiller.com
Jct Minor Works With Contractor S Design Sample Doc Template pdfFiller Jct Minor Works Payment Dates The due date is an agreed date each month (or the nearest. Under the jct standard form: Henia had served a valid pay less notice. The due date for the final payment is 28 days after either (1) the contractor has supplied all necessary documentation for. Sbc includes detailed provisions for payment as the works progress. This is usually one. Jct Minor Works Payment Dates.
From www.scribd.com
Guide To JCT Minor Works Building Contract 2016 PDF Employment Jct Minor Works Payment Dates The payment cycle is based on the issue of interim. This is usually one month after the works commencement date and the same day each month thereafter (or nearest business day). Payment of each interim payment must be made within 14 days from the due date of the interim payment (i.e. The clauses within the jct contract do not state. Jct Minor Works Payment Dates.
From www.amazon.com
JCT minor works form of contract An architect's guide to the agreement Jct Minor Works Payment Dates The payment cycle is based on the issue of interim. Sbc includes detailed provisions for payment as the works progress. Henia had served a valid pay less notice. The clauses within the jct contract do not state what the payment date will be in circumstances where the application was submitted after the. Payment of each interim payment must be made. Jct Minor Works Payment Dates.
From www.pdffiller.com
Fillable Online Tender Request For Quotation JCT Minor Works with Jct Minor Works Payment Dates Under the jct standard form: The due date is an agreed date each month (or the nearest. The interim valuation date is to be agreed by the parties in the contract particulars and is intended to be the same date across all. The clauses within the jct contract do not state what the payment date will be in circumstances where. Jct Minor Works Payment Dates.
From biggest.creativedeveloper.my.id
Practical Completion Certificate Template Jct Creative Template Jct Minor Works Payment Dates The payment cycle is based on the issue of interim. Sbc includes detailed provisions for payment as the works progress. This is usually one month after the works commencement date and the same day each month thereafter (or nearest business day). Henia had served a valid pay less notice. Under the jct standard form: The clauses within the jct contract. Jct Minor Works Payment Dates.
From www.studypool.com
SOLUTION The jct minor works building contracts Studypool Jct Minor Works Payment Dates Under the jct standard form: The clauses within the jct contract do not state what the payment date will be in circumstances where the application was submitted after the. Sbc includes detailed provisions for payment as the works progress. The interim valuation date is to be agreed by the parties in the contract particulars and is intended to be the. Jct Minor Works Payment Dates.
From cdon.fi
Guide to JCT Minor Works Building Contract 2016 Sarah Lupton Jct Minor Works Payment Dates The due date for the final payment is 28 days after either (1) the contractor has supplied all necessary documentation for. Payment of each interim payment must be made within 14 days from the due date of the interim payment (i.e. The due date is an agreed date each month (or the nearest. This is usually one month after the. Jct Minor Works Payment Dates.
From www.theconstructionindex.co.uk
JCT Minor Works family released Jct Minor Works Payment Dates Sbc includes detailed provisions for payment as the works progress. The interim valuation date is to be agreed by the parties in the contract particulars and is intended to be the same date across all. This is usually one month after the works commencement date and the same day each month thereafter (or nearest business day). Payment of each interim. Jct Minor Works Payment Dates.
From www.pbctoday.co.uk
JCT debuts Contract Administration Model Forms for Minor Works Jct Minor Works Payment Dates Payment of each interim payment must be made within 14 days from the due date of the interim payment (i.e. Henia had served a valid pay less notice. Sbc includes detailed provisions for payment as the works progress. The clauses within the jct contract do not state what the payment date will be in circumstances where the application was submitted. Jct Minor Works Payment Dates.
From www.perlego.com
[PDF] The JCT Minor Works Building Contracts 2016 by David Chappell Jct Minor Works Payment Dates Sbc includes detailed provisions for payment as the works progress. The due date is an agreed date each month (or the nearest. The clauses within the jct contract do not state what the payment date will be in circumstances where the application was submitted after the. Under the jct standard form: Henia had served a valid pay less notice. The. Jct Minor Works Payment Dates.
From www.genieai.co
🏢 JCT minor works building contract templates UK Jct Minor Works Payment Dates Henia had served a valid pay less notice. Payment of each interim payment must be made within 14 days from the due date of the interim payment (i.e. Sbc includes detailed provisions for payment as the works progress. The clauses within the jct contract do not state what the payment date will be in circumstances where the application was submitted. Jct Minor Works Payment Dates.
From corporate.jctltd.co.uk
JCT Explains…Interim Payments The Joint Contracts Tribunal Jct Minor Works Payment Dates Henia had served a valid pay less notice. The payment cycle is based on the issue of interim. The interim valuation date is to be agreed by the parties in the contract particulars and is intended to be the same date across all. This is usually one month after the works commencement date and the same day each month thereafter. Jct Minor Works Payment Dates.
From ramskillmartin.co.uk
Ramskill Martin Back to Basics 39 JCT D&B 2016 Helpful Timeline Jct Minor Works Payment Dates The interim valuation date is to be agreed by the parties in the contract particulars and is intended to be the same date across all. The due date is an agreed date each month (or the nearest. Under the jct standard form: Henia had served a valid pay less notice. The payment cycle is based on the issue of interim.. Jct Minor Works Payment Dates.
From www.pricerunner.com
The JCT Minor Works Building Contracts 2005 • Price Jct Minor Works Payment Dates Sbc includes detailed provisions for payment as the works progress. This is usually one month after the works commencement date and the same day each month thereafter (or nearest business day). The due date for the final payment is 28 days after either (1) the contractor has supplied all necessary documentation for. Payment of each interim payment must be made. Jct Minor Works Payment Dates.
From www.scribd.com
The JCT Minor Works Building Contracts 2005, BUILDING CONTRACT Jct Minor Works Payment Dates The due date for the final payment is 28 days after either (1) the contractor has supplied all necessary documentation for. The interim valuation date is to be agreed by the parties in the contract particulars and is intended to be the same date across all. Under the jct standard form: The payment cycle is based on the issue of. Jct Minor Works Payment Dates.
From www.genieai.co
JCT Minor Works Contract (2016) Template UK Jct Minor Works Payment Dates The clauses within the jct contract do not state what the payment date will be in circumstances where the application was submitted after the. Sbc includes detailed provisions for payment as the works progress. The interim valuation date is to be agreed by the parties in the contract particulars and is intended to be the same date across all. The. Jct Minor Works Payment Dates.
From www.chegg.com
Solved Abertay Builders entered into a JCT Minor Works Jct Minor Works Payment Dates Payment of each interim payment must be made within 14 days from the due date of the interim payment (i.e. Sbc includes detailed provisions for payment as the works progress. This is usually one month after the works commencement date and the same day each month thereafter (or nearest business day). Henia had served a valid pay less notice. The. Jct Minor Works Payment Dates.
From rsua.org.uk
New! 2024 JCT Minor Works Building Contract, NI Adaptation Schedule Jct Minor Works Payment Dates This is usually one month after the works commencement date and the same day each month thereafter (or nearest business day). The interim valuation date is to be agreed by the parties in the contract particulars and is intended to be the same date across all. Henia had served a valid pay less notice. The due date is an agreed. Jct Minor Works Payment Dates.
From www.pdffiller.com
Jct Minor Works Contract Pdf Fill Online, Printable, Fillable, Blank Jct Minor Works Payment Dates Under the jct standard form: Henia had served a valid pay less notice. The due date is an agreed date each month (or the nearest. Payment of each interim payment must be made within 14 days from the due date of the interim payment (i.e. The clauses within the jct contract do not state what the payment date will be. Jct Minor Works Payment Dates.
From www.bradley-mason.com
Construction contracts payment provisions review News BradleyMason LLP Jct Minor Works Payment Dates This is usually one month after the works commencement date and the same day each month thereafter (or nearest business day). The clauses within the jct contract do not state what the payment date will be in circumstances where the application was submitted after the. The due date for the final payment is 28 days after either (1) the contractor. Jct Minor Works Payment Dates.
From www.scribd.com
JCT Minor Works Contract 2016 PDF Jct Minor Works Payment Dates The clauses within the jct contract do not state what the payment date will be in circumstances where the application was submitted after the. The interim valuation date is to be agreed by the parties in the contract particulars and is intended to be the same date across all. Sbc includes detailed provisions for payment as the works progress. The. Jct Minor Works Payment Dates.
From www.ebay.co.uk
JCT Minor Works Building Contract 2016 (MW) (Paperback* 2016) FREE P&P Jct Minor Works Payment Dates Henia had served a valid pay less notice. Under the jct standard form: The payment cycle is based on the issue of interim. Payment of each interim payment must be made within 14 days from the due date of the interim payment (i.e. The due date is an agreed date each month (or the nearest. The interim valuation date is. Jct Minor Works Payment Dates.
From www.birkettlong.co.uk
Calculating time periods for termination notices in JCT contracts Jct Minor Works Payment Dates The interim valuation date is to be agreed by the parties in the contract particulars and is intended to be the same date across all. The due date for the final payment is 28 days after either (1) the contractor has supplied all necessary documentation for. The clauses within the jct contract do not state what the payment date will. Jct Minor Works Payment Dates.
From mnogosoftasdirect.web.fc2.com
Jct Minor Works Contract 2011 Free Jct Minor Works Payment Dates The payment cycle is based on the issue of interim. Henia had served a valid pay less notice. The interim valuation date is to be agreed by the parties in the contract particulars and is intended to be the same date across all. Under the jct standard form: This is usually one month after the works commencement date and the. Jct Minor Works Payment Dates.
From ramskillmartin.co.uk
Ramskill Martin Back to Basics 36 JCT D&B 2011 Helpful Timeline Jct Minor Works Payment Dates The payment cycle is based on the issue of interim. Payment of each interim payment must be made within 14 days from the due date of the interim payment (i.e. Under the jct standard form: The clauses within the jct contract do not state what the payment date will be in circumstances where the application was submitted after the. This. Jct Minor Works Payment Dates.
From www.slideshare.net
Building contracts and the JCT Jct Minor Works Payment Dates The due date is an agreed date each month (or the nearest. The due date for the final payment is 28 days after either (1) the contractor has supplied all necessary documentation for. Sbc includes detailed provisions for payment as the works progress. The interim valuation date is to be agreed by the parties in the contract particulars and is. Jct Minor Works Payment Dates.
From www.bol.com
Guide to the JCT Minor Works Building Contract MW11, Sarah Lupton Jct Minor Works Payment Dates Henia had served a valid pay less notice. The interim valuation date is to be agreed by the parties in the contract particulars and is intended to be the same date across all. Sbc includes detailed provisions for payment as the works progress. The payment cycle is based on the issue of interim. This is usually one month after the. Jct Minor Works Payment Dates.
From www.scribd.com
JCT Minor Works Contract With Contractors Design 2016 v3 April 2019 Jct Minor Works Payment Dates The interim valuation date is to be agreed by the parties in the contract particulars and is intended to be the same date across all. The payment cycle is based on the issue of interim. The clauses within the jct contract do not state what the payment date will be in circumstances where the application was submitted after the. Henia. Jct Minor Works Payment Dates.
From www.studypool.com
SOLUTION The jct minor works building contracts Studypool Jct Minor Works Payment Dates The interim valuation date is to be agreed by the parties in the contract particulars and is intended to be the same date across all. Sbc includes detailed provisions for payment as the works progress. Under the jct standard form: The due date for the final payment is 28 days after either (1) the contractor has supplied all necessary documentation. Jct Minor Works Payment Dates.
From www.ribabooks.com
JCT Minor Works Building Contract 2024 (MW) RIBA Books Jct Minor Works Payment Dates The due date is an agreed date each month (or the nearest. Under the jct standard form: This is usually one month after the works commencement date and the same day each month thereafter (or nearest business day). The payment cycle is based on the issue of interim. Sbc includes detailed provisions for payment as the works progress. The due. Jct Minor Works Payment Dates.
From www.youtube.com
Administering Construction Contracts under the JCT Minor Works 2016 1 Jct Minor Works Payment Dates The clauses within the jct contract do not state what the payment date will be in circumstances where the application was submitted after the. The due date is an agreed date each month (or the nearest. Payment of each interim payment must be made within 14 days from the due date of the interim payment (i.e. The payment cycle is. Jct Minor Works Payment Dates.
From www.professionalbooks.co.uk
Guide to JCT Minor Works Building Contract 2016 Professional Books Jct Minor Works Payment Dates Sbc includes detailed provisions for payment as the works progress. The clauses within the jct contract do not state what the payment date will be in circumstances where the application was submitted after the. The due date for the final payment is 28 days after either (1) the contractor has supplied all necessary documentation for. This is usually one month. Jct Minor Works Payment Dates.