California Property Tax Exemption Over 55 . Seniors, age 55 and older, or those severely disabled must meet specific requirements to qualify. Proposition 19, approved by california voters in november 2020, brings significant changes to property tax relief for seniors. Prop 19 allows seniors 55 and older to move anywhere in california, up to three times, and keep their property tax basis. “what is proposition 19, and how does it affect me?” essentially, california’s prop 19 changes property tax benefits for seniors, but those over 55 should take note because it may change the way those affected parties plan their estates for the future. To qualify for this exclusion, the following conditions must be met: The program will allow senior, blind, and disabled citizens with an annual household income of $35,500 or less and 40% equity in their homes. Claimant must be age 55 or older at the time the original property is sold. The original and replacement residence must be. Many homeowners over 55 may be wondering:
from www.awesomefintech.com
“what is proposition 19, and how does it affect me?” essentially, california’s prop 19 changes property tax benefits for seniors, but those over 55 should take note because it may change the way those affected parties plan their estates for the future. Claimant must be age 55 or older at the time the original property is sold. Prop 19 allows seniors 55 and older to move anywhere in california, up to three times, and keep their property tax basis. Many homeowners over 55 may be wondering: The program will allow senior, blind, and disabled citizens with an annual household income of $35,500 or less and 40% equity in their homes. The original and replacement residence must be. Proposition 19, approved by california voters in november 2020, brings significant changes to property tax relief for seniors. Seniors, age 55 and older, or those severely disabled must meet specific requirements to qualify. To qualify for this exclusion, the following conditions must be met:
Over55 Home Sale Exemption AwesomeFinTech Blog
California Property Tax Exemption Over 55 The original and replacement residence must be. Claimant must be age 55 or older at the time the original property is sold. Many homeowners over 55 may be wondering: “what is proposition 19, and how does it affect me?” essentially, california’s prop 19 changes property tax benefits for seniors, but those over 55 should take note because it may change the way those affected parties plan their estates for the future. Prop 19 allows seniors 55 and older to move anywhere in california, up to three times, and keep their property tax basis. To qualify for this exclusion, the following conditions must be met: Proposition 19, approved by california voters in november 2020, brings significant changes to property tax relief for seniors. The original and replacement residence must be. Seniors, age 55 and older, or those severely disabled must meet specific requirements to qualify. The program will allow senior, blind, and disabled citizens with an annual household income of $35,500 or less and 40% equity in their homes.
From www.countyforms.com
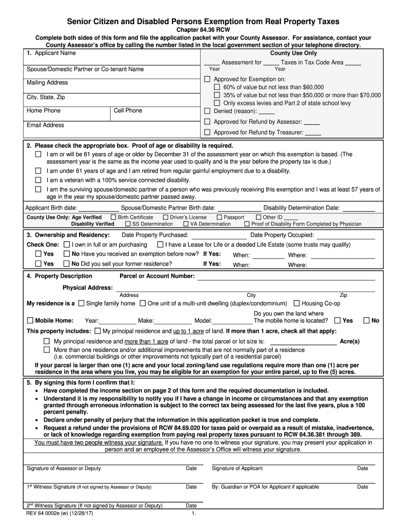
Senior Citizen Property Tax Exemption California Form Riverside County California Property Tax Exemption Over 55 Many homeowners over 55 may be wondering: Prop 19 allows seniors 55 and older to move anywhere in california, up to three times, and keep their property tax basis. The original and replacement residence must be. “what is proposition 19, and how does it affect me?” essentially, california’s prop 19 changes property tax benefits for seniors, but those over 55. California Property Tax Exemption Over 55.
From www.reddit.com
VA 100 percent disabled California property tax exemption r/VeteransBenefits California Property Tax Exemption Over 55 Prop 19 allows seniors 55 and older to move anywhere in california, up to three times, and keep their property tax basis. The original and replacement residence must be. Claimant must be age 55 or older at the time the original property is sold. To qualify for this exclusion, the following conditions must be met: Many homeowners over 55 may. California Property Tax Exemption Over 55.
From www.formsbank.com
Fillable Short Form Property Tax Exemption For Seniors 2017 printable pdf download California Property Tax Exemption Over 55 Claimant must be age 55 or older at the time the original property is sold. The program will allow senior, blind, and disabled citizens with an annual household income of $35,500 or less and 40% equity in their homes. The original and replacement residence must be. Seniors, age 55 and older, or those severely disabled must meet specific requirements to. California Property Tax Exemption Over 55.
From www.countyforms.com
Senior Citizen Property Tax Exemption California Form Riverside County California Property Tax Exemption Over 55 Prop 19 allows seniors 55 and older to move anywhere in california, up to three times, and keep their property tax basis. The program will allow senior, blind, and disabled citizens with an annual household income of $35,500 or less and 40% equity in their homes. To qualify for this exclusion, the following conditions must be met: “what is proposition. California Property Tax Exemption Over 55.
From www.reddit.com
CA property tax exemption for 100 disabled veterans. I’m having trouble understanding. Can California Property Tax Exemption Over 55 Proposition 19, approved by california voters in november 2020, brings significant changes to property tax relief for seniors. “what is proposition 19, and how does it affect me?” essentially, california’s prop 19 changes property tax benefits for seniors, but those over 55 should take note because it may change the way those affected parties plan their estates for the future.. California Property Tax Exemption Over 55.
From www.exemptform.com
Partial Sales Tax Exemption Form California California Property Tax Exemption Over 55 The original and replacement residence must be. Claimant must be age 55 or older at the time the original property is sold. Prop 19 allows seniors 55 and older to move anywhere in california, up to three times, and keep their property tax basis. The program will allow senior, blind, and disabled citizens with an annual household income of $35,500. California Property Tax Exemption Over 55.
From www.investopedia.com
Over55 Home Sale Exemption Capital Gains Tax Exclusion Definition California Property Tax Exemption Over 55 Proposition 19, approved by california voters in november 2020, brings significant changes to property tax relief for seniors. Many homeowners over 55 may be wondering: “what is proposition 19, and how does it affect me?” essentially, california’s prop 19 changes property tax benefits for seniors, but those over 55 should take note because it may change the way those affected. California Property Tax Exemption Over 55.
From www.pdffiller.com
Fillable Online Property Tax Exemptions for Senior Citizens and Disabled Fax Email Print California Property Tax Exemption Over 55 “what is proposition 19, and how does it affect me?” essentially, california’s prop 19 changes property tax benefits for seniors, but those over 55 should take note because it may change the way those affected parties plan their estates for the future. Many homeowners over 55 may be wondering: Seniors, age 55 and older, or those severely disabled must meet. California Property Tax Exemption Over 55.
From www.countyforms.com
Senior Citizen Property Tax Exemption California Form Riverside County California Property Tax Exemption Over 55 Many homeowners over 55 may be wondering: “what is proposition 19, and how does it affect me?” essentially, california’s prop 19 changes property tax benefits for seniors, but those over 55 should take note because it may change the way those affected parties plan their estates for the future. Prop 19 allows seniors 55 and older to move anywhere in. California Property Tax Exemption Over 55.
From www.templateroller.com
Form BOE266 Fill Out, Sign Online and Download Fillable PDF, County of San Diego, California California Property Tax Exemption Over 55 Prop 19 allows seniors 55 and older to move anywhere in california, up to three times, and keep their property tax basis. To qualify for this exclusion, the following conditions must be met: The program will allow senior, blind, and disabled citizens with an annual household income of $35,500 or less and 40% equity in their homes. The original and. California Property Tax Exemption Over 55.
From greatsenioryears.com
Do Senior Citizens Pay Property Taxes in Texas? Find Out Now! Greatsenioryears California Property Tax Exemption Over 55 Prop 19 allows seniors 55 and older to move anywhere in california, up to three times, and keep their property tax basis. Proposition 19, approved by california voters in november 2020, brings significant changes to property tax relief for seniors. “what is proposition 19, and how does it affect me?” essentially, california’s prop 19 changes property tax benefits for seniors,. California Property Tax Exemption Over 55.
From www.exemptform.com
HomeOwners Exemption Form Homeowner Property Tax San Diego County California Property Tax Exemption Over 55 The original and replacement residence must be. The program will allow senior, blind, and disabled citizens with an annual household income of $35,500 or less and 40% equity in their homes. Proposition 19, approved by california voters in november 2020, brings significant changes to property tax relief for seniors. Prop 19 allows seniors 55 and older to move anywhere in. California Property Tax Exemption Over 55.
From www.signnow.com
California Property Tax Exemption Complete with ease airSlate SignNow California Property Tax Exemption Over 55 Proposition 19, approved by california voters in november 2020, brings significant changes to property tax relief for seniors. Prop 19 allows seniors 55 and older to move anywhere in california, up to three times, and keep their property tax basis. Many homeowners over 55 may be wondering: The program will allow senior, blind, and disabled citizens with an annual household. California Property Tax Exemption Over 55.
From prorfety.blogspot.com
How To Apply For Senior Property Tax Exemption In California PRORFETY California Property Tax Exemption Over 55 The original and replacement residence must be. Proposition 19, approved by california voters in november 2020, brings significant changes to property tax relief for seniors. Prop 19 allows seniors 55 and older to move anywhere in california, up to three times, and keep their property tax basis. Claimant must be age 55 or older at the time the original property. California Property Tax Exemption Over 55.
From www.templateroller.com
Download Instructions for Form BOE261G Claim for Disabled Veterans' Property Tax Exemption PDF California Property Tax Exemption Over 55 The original and replacement residence must be. Many homeowners over 55 may be wondering: Seniors, age 55 and older, or those severely disabled must meet specific requirements to qualify. To qualify for this exclusion, the following conditions must be met: Claimant must be age 55 or older at the time the original property is sold. The program will allow senior,. California Property Tax Exemption Over 55.
From nonprofitlawblog.com
California Property Tax Exemption Must Primarily Benefit Californians Nonprofit Law Blog California Property Tax Exemption Over 55 Seniors, age 55 and older, or those severely disabled must meet specific requirements to qualify. “what is proposition 19, and how does it affect me?” essentially, california’s prop 19 changes property tax benefits for seniors, but those over 55 should take note because it may change the way those affected parties plan their estates for the future. Proposition 19, approved. California Property Tax Exemption Over 55.
From independencetitle.com
3 Key Elements to the Over 65 Property Tax Exemption Independence Title California Property Tax Exemption Over 55 Claimant must be age 55 or older at the time the original property is sold. Seniors, age 55 and older, or those severely disabled must meet specific requirements to qualify. Many homeowners over 55 may be wondering: The original and replacement residence must be. “what is proposition 19, and how does it affect me?” essentially, california’s prop 19 changes property. California Property Tax Exemption Over 55.
From www.awesomefintech.com
Over55 Home Sale Exemption AwesomeFinTech Blog California Property Tax Exemption Over 55 To qualify for this exclusion, the following conditions must be met: The program will allow senior, blind, and disabled citizens with an annual household income of $35,500 or less and 40% equity in their homes. Prop 19 allows seniors 55 and older to move anywhere in california, up to three times, and keep their property tax basis. Seniors, age 55. California Property Tax Exemption Over 55.
From loriqjehanna.pages.dev
100 Percent Disabled Veteran Property Tax Exemption California 2024 Myrta Tuesday California Property Tax Exemption Over 55 Seniors, age 55 and older, or those severely disabled must meet specific requirements to qualify. The program will allow senior, blind, and disabled citizens with an annual household income of $35,500 or less and 40% equity in their homes. Claimant must be age 55 or older at the time the original property is sold. Proposition 19, approved by california voters. California Property Tax Exemption Over 55.
From www.signnow.com
Ca Exemption Agreement Complete with ease airSlate SignNow California Property Tax Exemption Over 55 To qualify for this exclusion, the following conditions must be met: Prop 19 allows seniors 55 and older to move anywhere in california, up to three times, and keep their property tax basis. Many homeowners over 55 may be wondering: Proposition 19, approved by california voters in november 2020, brings significant changes to property tax relief for seniors. Claimant must. California Property Tax Exemption Over 55.
From proposition19.org
How to File a Claim for Homeowners' Exemption California Property Tax Exemption Over 55 Claimant must be age 55 or older at the time the original property is sold. To qualify for this exclusion, the following conditions must be met: The original and replacement residence must be. The program will allow senior, blind, and disabled citizens with an annual household income of $35,500 or less and 40% equity in their homes. Proposition 19, approved. California Property Tax Exemption Over 55.
From solarpowernation.com
California Solar Property Tax Exemption What You Need to Know in 2023 Solar Power Nation California Property Tax Exemption Over 55 Proposition 19, approved by california voters in november 2020, brings significant changes to property tax relief for seniors. The original and replacement residence must be. To qualify for this exclusion, the following conditions must be met: Claimant must be age 55 or older at the time the original property is sold. Prop 19 allows seniors 55 and older to move. California Property Tax Exemption Over 55.
From www.youtube.com
Homeowners’ Exemption California How to save on property taxes YouTube California Property Tax Exemption Over 55 Prop 19 allows seniors 55 and older to move anywhere in california, up to three times, and keep their property tax basis. Claimant must be age 55 or older at the time the original property is sold. Proposition 19, approved by california voters in november 2020, brings significant changes to property tax relief for seniors. The program will allow senior,. California Property Tax Exemption Over 55.
From www.signnow.com
Form California Exemption Fill Out and Sign Printable PDF Template airSlate SignNow California Property Tax Exemption Over 55 The original and replacement residence must be. Seniors, age 55 and older, or those severely disabled must meet specific requirements to qualify. Prop 19 allows seniors 55 and older to move anywhere in california, up to three times, and keep their property tax basis. Many homeowners over 55 may be wondering: “what is proposition 19, and how does it affect. California Property Tax Exemption Over 55.
From prorfety.blogspot.com
How To Apply For Senior Property Tax Exemption In California PRORFETY California Property Tax Exemption Over 55 Prop 19 allows seniors 55 and older to move anywhere in california, up to three times, and keep their property tax basis. Many homeowners over 55 may be wondering: Claimant must be age 55 or older at the time the original property is sold. To qualify for this exclusion, the following conditions must be met: Proposition 19, approved by california. California Property Tax Exemption Over 55.
From www.templateroller.com
Form BOE266 Fill Out, Sign Online and Download Fillable PDF, Santa Cruz County, California California Property Tax Exemption Over 55 Prop 19 allows seniors 55 and older to move anywhere in california, up to three times, and keep their property tax basis. Many homeowners over 55 may be wondering: Proposition 19, approved by california voters in november 2020, brings significant changes to property tax relief for seniors. The program will allow senior, blind, and disabled citizens with an annual household. California Property Tax Exemption Over 55.
From corlisswjade.pages.dev
California Estate Tax Exemption 2024 Lanny Modesty California Property Tax Exemption Over 55 Seniors, age 55 and older, or those severely disabled must meet specific requirements to qualify. Claimant must be age 55 or older at the time the original property is sold. Many homeowners over 55 may be wondering: Proposition 19, approved by california voters in november 2020, brings significant changes to property tax relief for seniors. The program will allow senior,. California Property Tax Exemption Over 55.
From www.signnow.com
Property Tax Exemption for Veterans for Santa Barbara California 20182024 Form Fill Out and California Property Tax Exemption Over 55 To qualify for this exclusion, the following conditions must be met: “what is proposition 19, and how does it affect me?” essentially, california’s prop 19 changes property tax benefits for seniors, but those over 55 should take note because it may change the way those affected parties plan their estates for the future. Seniors, age 55 and older, or those. California Property Tax Exemption Over 55.
From slideplayer.com
California Real Estate Principles, 10.1 Edition ppt download California Property Tax Exemption Over 55 The original and replacement residence must be. Many homeowners over 55 may be wondering: The program will allow senior, blind, and disabled citizens with an annual household income of $35,500 or less and 40% equity in their homes. Prop 19 allows seniors 55 and older to move anywhere in california, up to three times, and keep their property tax basis.. California Property Tax Exemption Over 55.
From assessor.elpasoco.com
Senior Property Tax Exemption El Paso County Assessor California Property Tax Exemption Over 55 The program will allow senior, blind, and disabled citizens with an annual household income of $35,500 or less and 40% equity in their homes. Proposition 19, approved by california voters in november 2020, brings significant changes to property tax relief for seniors. Many homeowners over 55 may be wondering: “what is proposition 19, and how does it affect me?” essentially,. California Property Tax Exemption Over 55.
From www.exemptform.com
HomeOwners Exemption Form Homeowner Property Tax San Diego County California Property Tax Exemption Over 55 “what is proposition 19, and how does it affect me?” essentially, california’s prop 19 changes property tax benefits for seniors, but those over 55 should take note because it may change the way those affected parties plan their estates for the future. Seniors, age 55 and older, or those severely disabled must meet specific requirements to qualify. Proposition 19, approved. California Property Tax Exemption Over 55.
From www.youtube.com
Prop 19 Explained California Property Tax Exemption Age 55 Update YouTube California Property Tax Exemption Over 55 Prop 19 allows seniors 55 and older to move anywhere in california, up to three times, and keep their property tax basis. Many homeowners over 55 may be wondering: Seniors, age 55 and older, or those severely disabled must meet specific requirements to qualify. Proposition 19, approved by california voters in november 2020, brings significant changes to property tax relief. California Property Tax Exemption Over 55.
From www.exemptform.com
Homestead Exemption California 2023 Form Orange County California Property Tax Exemption Over 55 Many homeowners over 55 may be wondering: “what is proposition 19, and how does it affect me?” essentially, california’s prop 19 changes property tax benefits for seniors, but those over 55 should take note because it may change the way those affected parties plan their estates for the future. Proposition 19, approved by california voters in november 2020, brings significant. California Property Tax Exemption Over 55.
From prorfety.blogspot.com
How To Apply For Senior Property Tax Exemption In California PRORFETY California Property Tax Exemption Over 55 “what is proposition 19, and how does it affect me?” essentially, california’s prop 19 changes property tax benefits for seniors, but those over 55 should take note because it may change the way those affected parties plan their estates for the future. The program will allow senior, blind, and disabled citizens with an annual household income of $35,500 or less. California Property Tax Exemption Over 55.
From www.exemptform.com
California Tax Exempt Form 2020 Fill And Sign Printable Template California Property Tax Exemption Over 55 The original and replacement residence must be. Claimant must be age 55 or older at the time the original property is sold. Prop 19 allows seniors 55 and older to move anywhere in california, up to three times, and keep their property tax basis. To qualify for this exclusion, the following conditions must be met: The program will allow senior,. California Property Tax Exemption Over 55.