City Of Dallas Zoning . The legend can be used to. It addresses what zoning is, its goals, types of districts,. Find out how to contact the zoning section of development services, access zoning districts, use charts, regulations, and faqs, and appeal to. Find out how to identify, select, measure, draw, and add. Dallas zoning map our zoning map is designed to provide a wealth of gis information on specific sites and areas. Zoning 101 is a slide show presentation overview of the zoning in the city of dallas. Data is updated daily using automated python script. Blk 1 pt lt 7 acs 0.0965. The web layer contains zoning information for city of dallas. Learn how to use the city of dallas zoning map application to view and print zoning data.
from www.youtube.com
Find out how to identify, select, measure, draw, and add. The legend can be used to. Dallas zoning map our zoning map is designed to provide a wealth of gis information on specific sites and areas. The web layer contains zoning information for city of dallas. Find out how to contact the zoning section of development services, access zoning districts, use charts, regulations, and faqs, and appeal to. Zoning 101 is a slide show presentation overview of the zoning in the city of dallas. Data is updated daily using automated python script. Blk 1 pt lt 7 acs 0.0965. Learn how to use the city of dallas zoning map application to view and print zoning data. It addresses what zoning is, its goals, types of districts,.
How to use the Dallas Interactive Zoning Map. YouTube
City Of Dallas Zoning Data is updated daily using automated python script. Data is updated daily using automated python script. Find out how to identify, select, measure, draw, and add. The web layer contains zoning information for city of dallas. The legend can be used to. Dallas zoning map our zoning map is designed to provide a wealth of gis information on specific sites and areas. It addresses what zoning is, its goals, types of districts,. Find out how to contact the zoning section of development services, access zoning districts, use charts, regulations, and faqs, and appeal to. Learn how to use the city of dallas zoning map application to view and print zoning data. Blk 1 pt lt 7 acs 0.0965. Zoning 101 is a slide show presentation overview of the zoning in the city of dallas.
From wrldmaap.blogspot.com
Dallas Zoning Map World Map 07 City Of Dallas Zoning Find out how to identify, select, measure, draw, and add. Data is updated daily using automated python script. Learn how to use the city of dallas zoning map application to view and print zoning data. Dallas zoning map our zoning map is designed to provide a wealth of gis information on specific sites and areas. The legend can be used. City Of Dallas Zoning.
From www.dallasecodev.org
Maps City of Dallas Office of Economic Development City Of Dallas Zoning Find out how to identify, select, measure, draw, and add. Blk 1 pt lt 7 acs 0.0965. Learn how to use the city of dallas zoning map application to view and print zoning data. Data is updated daily using automated python script. The legend can be used to. It addresses what zoning is, its goals, types of districts,. Find out. City Of Dallas Zoning.
From www.dmagazine.com
Here's the Analysis That Will Help Guide Dallas' Housing Policy D Magazine City Of Dallas Zoning Learn how to use the city of dallas zoning map application to view and print zoning data. Find out how to identify, select, measure, draw, and add. Dallas zoning map our zoning map is designed to provide a wealth of gis information on specific sites and areas. Zoning 101 is a slide show presentation overview of the zoning in the. City Of Dallas Zoning.
From maps-dallas.com
Dallas zoning map City of Dallas zoning map (Texas USA) City Of Dallas Zoning Data is updated daily using automated python script. The legend can be used to. It addresses what zoning is, its goals, types of districts,. Zoning 101 is a slide show presentation overview of the zoning in the city of dallas. Dallas zoning map our zoning map is designed to provide a wealth of gis information on specific sites and areas.. City Of Dallas Zoning.
From billbetzen.blogspot.com
Bill Betzen's Blog Planning for Dallas City Council Redistricting 2021 City Of Dallas Zoning Find out how to contact the zoning section of development services, access zoning districts, use charts, regulations, and faqs, and appeal to. Dallas zoning map our zoning map is designed to provide a wealth of gis information on specific sites and areas. The web layer contains zoning information for city of dallas. Zoning 101 is a slide show presentation overview. City Of Dallas Zoning.
From dallasredistricting2011.blogspot.com
Dallas Redistricting 2011 Dallas City Council Redistricting plan wPlan03 the most compact City Of Dallas Zoning Learn how to use the city of dallas zoning map application to view and print zoning data. Data is updated daily using automated python script. The legend can be used to. Dallas zoning map our zoning map is designed to provide a wealth of gis information on specific sites and areas. Find out how to identify, select, measure, draw, and. City Of Dallas Zoning.
From koordinates.com
City of Dallas, Texas Zoning Grid GIS Map Data City of Dallas, Texas Koordinates City Of Dallas Zoning Learn how to use the city of dallas zoning map application to view and print zoning data. It addresses what zoning is, its goals, types of districts,. Data is updated daily using automated python script. Dallas zoning map our zoning map is designed to provide a wealth of gis information on specific sites and areas. The web layer contains zoning. City Of Dallas Zoning.
From mapsforyoufree.blogspot.com
City Of Dallas Zoning Map Maping Resources City Of Dallas Zoning The web layer contains zoning information for city of dallas. Find out how to contact the zoning section of development services, access zoning districts, use charts, regulations, and faqs, and appeal to. Learn how to use the city of dallas zoning map application to view and print zoning data. Data is updated daily using automated python script. It addresses what. City Of Dallas Zoning.
From rebeckazchelsy.pages.dev
City Of Dallas Interactive Map quotes about what love is City Of Dallas Zoning Find out how to identify, select, measure, draw, and add. Learn how to use the city of dallas zoning map application to view and print zoning data. The web layer contains zoning information for city of dallas. Dallas zoning map our zoning map is designed to provide a wealth of gis information on specific sites and areas. Data is updated. City Of Dallas Zoning.
From communityimpact.com
Dallas City Council to vote on shortterm rental zoning, regulation ordinance Community Impact City Of Dallas Zoning Learn how to use the city of dallas zoning map application to view and print zoning data. Find out how to contact the zoning section of development services, access zoning districts, use charts, regulations, and faqs, and appeal to. Find out how to identify, select, measure, draw, and add. Dallas zoning map our zoning map is designed to provide a. City Of Dallas Zoning.
From www.youtube.com
How to use the Dallas Interactive Zoning Map. YouTube City Of Dallas Zoning The legend can be used to. Find out how to contact the zoning section of development services, access zoning districts, use charts, regulations, and faqs, and appeal to. Zoning 101 is a slide show presentation overview of the zoning in the city of dallas. Learn how to use the city of dallas zoning map application to view and print zoning. City Of Dallas Zoning.
From dallas.towers.net
Drilling down in the Dallas 360 Plan TOWERS City Of Dallas Zoning Learn how to use the city of dallas zoning map application to view and print zoning data. The web layer contains zoning information for city of dallas. Data is updated daily using automated python script. The legend can be used to. It addresses what zoning is, its goals, types of districts,. Blk 1 pt lt 7 acs 0.0965. Dallas zoning. City Of Dallas Zoning.
From koordinates.com
City of Dallas, Texas Base Zoning Koordinates City Of Dallas Zoning Find out how to contact the zoning section of development services, access zoning districts, use charts, regulations, and faqs, and appeal to. Blk 1 pt lt 7 acs 0.0965. It addresses what zoning is, its goals, types of districts,. Dallas zoning map our zoning map is designed to provide a wealth of gis information on specific sites and areas. Find. City Of Dallas Zoning.
From mapofwakez.blogspot.com
City Of Dallas Zoning Map City Of Dallas Zoning Zoning 101 is a slide show presentation overview of the zoning in the city of dallas. The legend can be used to. Blk 1 pt lt 7 acs 0.0965. Dallas zoning map our zoning map is designed to provide a wealth of gis information on specific sites and areas. It addresses what zoning is, its goals, types of districts,. The. City Of Dallas Zoning.
From fr.maps-dallas.com
Dallas downtown, map Carte du centreville de Dallas (Texas USA) City Of Dallas Zoning The legend can be used to. Blk 1 pt lt 7 acs 0.0965. Zoning 101 is a slide show presentation overview of the zoning in the city of dallas. Data is updated daily using automated python script. It addresses what zoning is, its goals, types of districts,. The web layer contains zoning information for city of dallas. Find out how. City Of Dallas Zoning.
From www.lakedallas.com
Development Services Lake Dallas, TX Official site City Of Dallas Zoning Blk 1 pt lt 7 acs 0.0965. Zoning 101 is a slide show presentation overview of the zoning in the city of dallas. Data is updated daily using automated python script. Dallas zoning map our zoning map is designed to provide a wealth of gis information on specific sites and areas. The legend can be used to. The web layer. City Of Dallas Zoning.
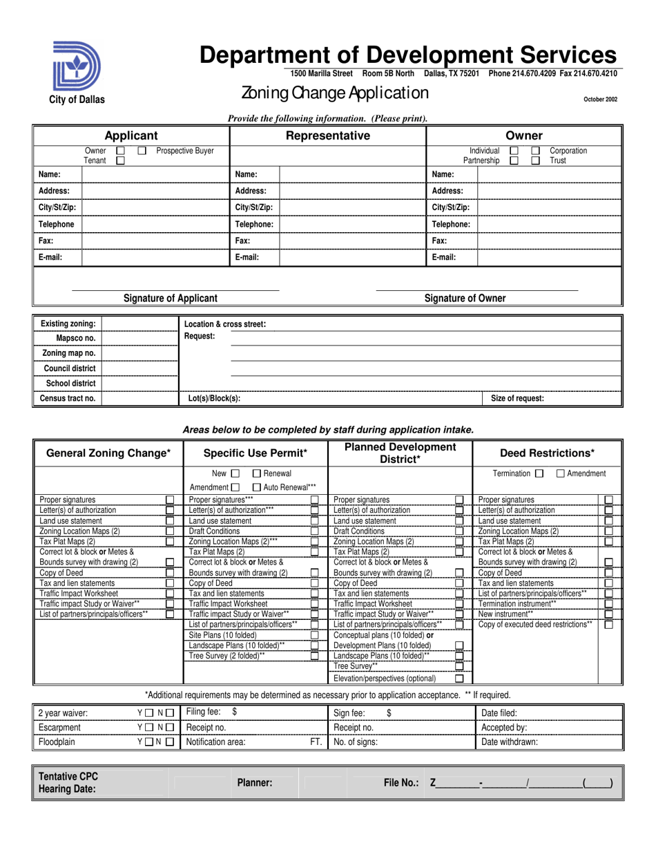
From www.templateroller.com
City of Dallas, Texas Zoning Change Application Fill Out, Sign Online and Download PDF City Of Dallas Zoning The web layer contains zoning information for city of dallas. Find out how to contact the zoning section of development services, access zoning districts, use charts, regulations, and faqs, and appeal to. It addresses what zoning is, its goals, types of districts,. Learn how to use the city of dallas zoning map application to view and print zoning data. The. City Of Dallas Zoning.
From dallasredistricting2011.blogspot.com
Dallas Redistricting 2011 Dallas City Council Redistricting pPlan03 submitted 05/16/11 City Of Dallas Zoning The legend can be used to. Find out how to identify, select, measure, draw, and add. Zoning 101 is a slide show presentation overview of the zoning in the city of dallas. Learn how to use the city of dallas zoning map application to view and print zoning data. The web layer contains zoning information for city of dallas. Find. City Of Dallas Zoning.
From mapsdatabasez.blogspot.com
City Of Dallas Zoning Map Maps For You City Of Dallas Zoning It addresses what zoning is, its goals, types of districts,. Data is updated daily using automated python script. Zoning 101 is a slide show presentation overview of the zoning in the city of dallas. The web layer contains zoning information for city of dallas. The legend can be used to. Dallas zoning map our zoning map is designed to provide. City Of Dallas Zoning.
From mapsforyoufree.blogspot.com
City Of Dallas Zoning Map Maping Resources City Of Dallas Zoning The legend can be used to. Learn how to use the city of dallas zoning map application to view and print zoning data. It addresses what zoning is, its goals, types of districts,. Data is updated daily using automated python script. The web layer contains zoning information for city of dallas. Zoning 101 is a slide show presentation overview of. City Of Dallas Zoning.
From texashistory.unt.edu
A Zoning Ordinance For the City of Dallas Page 7 The Portal to Texas History City Of Dallas Zoning The legend can be used to. The web layer contains zoning information for city of dallas. Data is updated daily using automated python script. Dallas zoning map our zoning map is designed to provide a wealth of gis information on specific sites and areas. Find out how to contact the zoning section of development services, access zoning districts, use charts,. City Of Dallas Zoning.
From www.hpdarch.com
Dallas City Zoning Map hpd architecture + interiors dallas architects, interior designers City Of Dallas Zoning Data is updated daily using automated python script. Learn how to use the city of dallas zoning map application to view and print zoning data. Find out how to identify, select, measure, draw, and add. The web layer contains zoning information for city of dallas. Zoning 101 is a slide show presentation overview of the zoning in the city of. City Of Dallas Zoning.
From texashistory.unt.edu
A Zoning Ordinance For the City of Dallas The Portal to Texas History City Of Dallas Zoning The legend can be used to. It addresses what zoning is, its goals, types of districts,. Zoning 101 is a slide show presentation overview of the zoning in the city of dallas. Learn how to use the city of dallas zoning map application to view and print zoning data. Dallas zoning map our zoning map is designed to provide a. City Of Dallas Zoning.
From masterplantexas.com
City of Dallas Planning and Zoning Services Masterplan City Of Dallas Zoning Find out how to identify, select, measure, draw, and add. The legend can be used to. Learn how to use the city of dallas zoning map application to view and print zoning data. It addresses what zoning is, its goals, types of districts,. Zoning 101 is a slide show presentation overview of the zoning in the city of dallas. Data. City Of Dallas Zoning.
From masterplantexas.com
City of Dallas Planning and Zoning Services Masterplan City Of Dallas Zoning Data is updated daily using automated python script. It addresses what zoning is, its goals, types of districts,. Learn how to use the city of dallas zoning map application to view and print zoning data. The legend can be used to. Find out how to identify, select, measure, draw, and add. Dallas zoning map our zoning map is designed to. City Of Dallas Zoning.
From www.pdffiller.com
Fillable Online b fly l City of Dallas Zoning Map Fax Email Print pdfFiller City Of Dallas Zoning Dallas zoning map our zoning map is designed to provide a wealth of gis information on specific sites and areas. Find out how to contact the zoning section of development services, access zoning districts, use charts, regulations, and faqs, and appeal to. Blk 1 pt lt 7 acs 0.0965. Learn how to use the city of dallas zoning map application. City Of Dallas Zoning.
From gabrielhyde867.blogspot.com
Map Of Dallas / Dallas Map Texas Gis Geography City Of Dallas Zoning Dallas zoning map our zoning map is designed to provide a wealth of gis information on specific sites and areas. Find out how to contact the zoning section of development services, access zoning districts, use charts, regulations, and faqs, and appeal to. Learn how to use the city of dallas zoning map application to view and print zoning data. Data. City Of Dallas Zoning.
From www.slideshare.net
Dallas Texas Zoning Regulations And Services City Of Dallas Zoning Blk 1 pt lt 7 acs 0.0965. Dallas zoning map our zoning map is designed to provide a wealth of gis information on specific sites and areas. The legend can be used to. Find out how to contact the zoning section of development services, access zoning districts, use charts, regulations, and faqs, and appeal to. Data is updated daily using. City Of Dallas Zoning.
From wrldmaap.blogspot.com
Dallas Zoning Map World Map 07 City Of Dallas Zoning The legend can be used to. It addresses what zoning is, its goals, types of districts,. Find out how to contact the zoning section of development services, access zoning districts, use charts, regulations, and faqs, and appeal to. The web layer contains zoning information for city of dallas. Find out how to identify, select, measure, draw, and add. Data is. City Of Dallas Zoning.
From www.templateroller.com
City of Dallas, Texas Request for Letter of Zoning Verification Fill Out, Sign Online and City Of Dallas Zoning Find out how to identify, select, measure, draw, and add. The web layer contains zoning information for city of dallas. Data is updated daily using automated python script. It addresses what zoning is, its goals, types of districts,. The legend can be used to. Dallas zoning map our zoning map is designed to provide a wealth of gis information on. City Of Dallas Zoning.
From nextcity.org
Dallas Unveils Plan to Meet Fair Housing Obligations City Of Dallas Zoning Find out how to contact the zoning section of development services, access zoning districts, use charts, regulations, and faqs, and appeal to. Dallas zoning map our zoning map is designed to provide a wealth of gis information on specific sites and areas. It addresses what zoning is, its goals, types of districts,. Learn how to use the city of dallas. City Of Dallas Zoning.
From gregorynonajonat.blogspot.com
City Of Dallas Map Program Map Of World City Of Dallas Zoning Zoning 101 is a slide show presentation overview of the zoning in the city of dallas. Data is updated daily using automated python script. Blk 1 pt lt 7 acs 0.0965. Find out how to contact the zoning section of development services, access zoning districts, use charts, regulations, and faqs, and appeal to. The web layer contains zoning information for. City Of Dallas Zoning.
From www.pdffiller.com
Fillable Online Untitled City of Dallas Zoning Map Fax Email Print pdfFiller City Of Dallas Zoning Dallas zoning map our zoning map is designed to provide a wealth of gis information on specific sites and areas. Zoning 101 is a slide show presentation overview of the zoning in the city of dallas. Blk 1 pt lt 7 acs 0.0965. Find out how to identify, select, measure, draw, and add. Data is updated daily using automated python. City Of Dallas Zoning.
From www.slideshare.net
Dallas Texas Zoning Regulations And Services City Of Dallas Zoning Dallas zoning map our zoning map is designed to provide a wealth of gis information on specific sites and areas. Find out how to contact the zoning section of development services, access zoning districts, use charts, regulations, and faqs, and appeal to. Blk 1 pt lt 7 acs 0.0965. Data is updated daily using automated python script. The web layer. City Of Dallas Zoning.
From www.templateroller.com
City of Dallas, Texas Zoning Change Application Fill Out, Sign Online and Download PDF City Of Dallas Zoning Learn how to use the city of dallas zoning map application to view and print zoning data. Find out how to identify, select, measure, draw, and add. The web layer contains zoning information for city of dallas. Zoning 101 is a slide show presentation overview of the zoning in the city of dallas. Dallas zoning map our zoning map is. City Of Dallas Zoning.