Equalization Form . 117 rows — the following forms are prescribed and/or recommended by the california state board of equalization and. the mission of the state board of equalization is to serve the public through fair, effective, and efficient tax. — the official form is only available on our website. Tax map identifier(s)/roll identifier(s) (if more than four, attach sheet with additional i. legal entity ownership program (leop): For property sales in new york. Form number instructions form title; Note regarding new york city: The state tax commission is authorized by article 9, section 3 of the constitution of michigan.
from www.formsbank.com
Form number instructions form title; For property sales in new york. The state tax commission is authorized by article 9, section 3 of the constitution of michigan. legal entity ownership program (leop): the mission of the state board of equalization is to serve the public through fair, effective, and efficient tax. 117 rows — the following forms are prescribed and/or recommended by the california state board of equalization and. Note regarding new york city: — the official form is only available on our website. Tax map identifier(s)/roll identifier(s) (if more than four, attach sheet with additional i.
Fillable Form Boe392 Power Of Attorney State Of California Board
Equalization Form — the official form is only available on our website. 117 rows — the following forms are prescribed and/or recommended by the california state board of equalization and. Tax map identifier(s)/roll identifier(s) (if more than four, attach sheet with additional i. Form number instructions form title; legal entity ownership program (leop): For property sales in new york. Note regarding new york city: the mission of the state board of equalization is to serve the public through fair, effective, and efficient tax. The state tax commission is authorized by article 9, section 3 of the constitution of michigan. — the official form is only available on our website.
From www.slideserve.com
PPT How to file Form 1 (equalization levy) in new portal Equalization Form Tax map identifier(s)/roll identifier(s) (if more than four, attach sheet with additional i. — the official form is only available on our website. 117 rows — the following forms are prescribed and/or recommended by the california state board of equalization and. the mission of the state board of equalization is to serve the public through fair, effective,. Equalization Form.
From www.formsbank.com
Fillable Re1 Supplemental Single Family Residential Form St. Louis Equalization Form Tax map identifier(s)/roll identifier(s) (if more than four, attach sheet with additional i. For property sales in new york. — the official form is only available on our website. 117 rows — the following forms are prescribed and/or recommended by the california state board of equalization and. The state tax commission is authorized by article 9, section 3. Equalization Form.
From www.templateroller.com
Form E1 Fill Out, Sign Online and Download Printable PDF, Arkansas Equalization Form legal entity ownership program (leop): Note regarding new york city: the mission of the state board of equalization is to serve the public through fair, effective, and efficient tax. Form number instructions form title; The state tax commission is authorized by article 9, section 3 of the constitution of michigan. Tax map identifier(s)/roll identifier(s) (if more than four,. Equalization Form.
From www.formsbank.com
Form 571l Business Property Statement For 2004 California Board Of Equalization Form 117 rows — the following forms are prescribed and/or recommended by the california state board of equalization and. — the official form is only available on our website. The state tax commission is authorized by article 9, section 3 of the constitution of michigan. For property sales in new york. the mission of the state board of. Equalization Form.
From www.templateroller.com
Form RP5023 Fill Out, Sign Online and Download Fillable PDF, New Equalization Form Form number instructions form title; For property sales in new york. Tax map identifier(s)/roll identifier(s) (if more than four, attach sheet with additional i. legal entity ownership program (leop): The state tax commission is authorized by article 9, section 3 of the constitution of michigan. 117 rows — the following forms are prescribed and/or recommended by the california. Equalization Form.
From www.formsbank.com
Fillable Form Rp5022sal Tentative State Equalization Rate Sale Equalization Form Form number instructions form title; legal entity ownership program (leop): 117 rows — the following forms are prescribed and/or recommended by the california state board of equalization and. The state tax commission is authorized by article 9, section 3 of the constitution of michigan. — the official form is only available on our website. Note regarding new. Equalization Form.
From www.formsbank.com
Fillable Form Boe529A State Board Of Equalization printable pdf Equalization Form — the official form is only available on our website. Note regarding new york city: The state tax commission is authorized by article 9, section 3 of the constitution of michigan. Form number instructions form title; the mission of the state board of equalization is to serve the public through fair, effective, and efficient tax. Tax map identifier(s)/roll. Equalization Form.
From www.formsbank.com
Fillable Form Dor 82130aa Agency Authorization Form Arizona Board Equalization Form The state tax commission is authorized by article 9, section 3 of the constitution of michigan. the mission of the state board of equalization is to serve the public through fair, effective, and efficient tax. legal entity ownership program (leop): 117 rows — the following forms are prescribed and/or recommended by the california state board of equalization. Equalization Form.
From www.formsbank.com
Application Form For Property Tax Exemption Tennessee State Board Of Equalization Form Form number instructions form title; legal entity ownership program (leop): The state tax commission is authorized by article 9, section 3 of the constitution of michigan. For property sales in new york. Tax map identifier(s)/roll identifier(s) (if more than four, attach sheet with additional i. 117 rows — the following forms are prescribed and/or recommended by the california. Equalization Form.
From www.slideserve.com
PPT How to file Form 1 (equalization levy) in new portal Equalization Form For property sales in new york. Form number instructions form title; The state tax commission is authorized by article 9, section 3 of the constitution of michigan. Tax map identifier(s)/roll identifier(s) (if more than four, attach sheet with additional i. 117 rows — the following forms are prescribed and/or recommended by the california state board of equalization and. . Equalization Form.
From edit-pdf.dochub.com
Board of equalization form 410 d Fill out & sign online DocHub Equalization Form the mission of the state board of equalization is to serve the public through fair, effective, and efficient tax. The state tax commission is authorized by article 9, section 3 of the constitution of michigan. 117 rows — the following forms are prescribed and/or recommended by the california state board of equalization and. For property sales in new. Equalization Form.
From www.pdffiller.com
Fillable Online Instructions for transferring Equalization form data Equalization Form Tax map identifier(s)/roll identifier(s) (if more than four, attach sheet with additional i. The state tax commission is authorized by article 9, section 3 of the constitution of michigan. For property sales in new york. legal entity ownership program (leop): 117 rows — the following forms are prescribed and/or recommended by the california state board of equalization and.. Equalization Form.
From www.signnow.com
California Buyer's Guide to Tax Board of Equalization Fill Out and Equalization Form Form number instructions form title; Note regarding new york city: For property sales in new york. the mission of the state board of equalization is to serve the public through fair, effective, and efficient tax. 117 rows — the following forms are prescribed and/or recommended by the california state board of equalization and. Tax map identifier(s)/roll identifier(s) (if. Equalization Form.
From www.formsbank.com
Fillable Garfield County "Board Of Equalization" Application printable Equalization Form Form number instructions form title; Tax map identifier(s)/roll identifier(s) (if more than four, attach sheet with additional i. For property sales in new york. The state tax commission is authorized by article 9, section 3 of the constitution of michigan. Note regarding new york city: 117 rows — the following forms are prescribed and/or recommended by the california state. Equalization Form.
From www.formsbank.com
Fillable Form Boe401A2 State, Local And District Sales And Use Tax Equalization Form For property sales in new york. Form number instructions form title; Note regarding new york city: 117 rows — the following forms are prescribed and/or recommended by the california state board of equalization and. Tax map identifier(s)/roll identifier(s) (if more than four, attach sheet with additional i. legal entity ownership program (leop): — the official form is. Equalization Form.
From www.formsbank.com
Fillable Form 3215 Certification Of Equalization Study By Equalization Form For property sales in new york. The state tax commission is authorized by article 9, section 3 of the constitution of michigan. Form number instructions form title; the mission of the state board of equalization is to serve the public through fair, effective, and efficient tax. — the official form is only available on our website. 117. Equalization Form.
From www.templateroller.com
Form REV64 0051 Fill Out, Sign Online and Download Fillable PDF Equalization Form The state tax commission is authorized by article 9, section 3 of the constitution of michigan. Note regarding new york city: 117 rows — the following forms are prescribed and/or recommended by the california state board of equalization and. Form number instructions form title; legal entity ownership program (leop): Tax map identifier(s)/roll identifier(s) (if more than four, attach. Equalization Form.
From www.youtube.com
Equalization YouTube Equalization Form 117 rows — the following forms are prescribed and/or recommended by the california state board of equalization and. legal entity ownership program (leop): Form number instructions form title; Tax map identifier(s)/roll identifier(s) (if more than four, attach sheet with additional i. the mission of the state board of equalization is to serve the public through fair, effective,. Equalization Form.
From www.pdffiller.com
Fillable Online Board of Equalization Forms Thurston County Fax Email Equalization Form — the official form is only available on our website. 117 rows — the following forms are prescribed and/or recommended by the california state board of equalization and. For property sales in new york. Tax map identifier(s)/roll identifier(s) (if more than four, attach sheet with additional i. The state tax commission is authorized by article 9, section 3. Equalization Form.
From www.formsbank.com
Fillable Form Boe392 Power Of Attorney State Of California Board Equalization Form The state tax commission is authorized by article 9, section 3 of the constitution of michigan. Tax map identifier(s)/roll identifier(s) (if more than four, attach sheet with additional i. Form number instructions form title; the mission of the state board of equalization is to serve the public through fair, effective, and efficient tax. — the official form is. Equalization Form.
From www.formsbank.com
Fillable Form Pt 34a Notice Of Meeting Of Consolidated Equalization Equalization Form Tax map identifier(s)/roll identifier(s) (if more than four, attach sheet with additional i. The state tax commission is authorized by article 9, section 3 of the constitution of michigan. — the official form is only available on our website. Form number instructions form title; the mission of the state board of equalization is to serve the public through. Equalization Form.
From www.formsbank.com
Form 2804 2000 Equalization SingleYear Study Sales Ratio Adjustments Equalization Form Tax map identifier(s)/roll identifier(s) (if more than four, attach sheet with additional i. legal entity ownership program (leop): Note regarding new york city: The state tax commission is authorized by article 9, section 3 of the constitution of michigan. Form number instructions form title; 117 rows — the following forms are prescribed and/or recommended by the california state. Equalization Form.
From www.slideserve.com
PPT How to file Form 1 (equalization levy) in new portal Equalization Form For property sales in new york. Tax map identifier(s)/roll identifier(s) (if more than four, attach sheet with additional i. The state tax commission is authorized by article 9, section 3 of the constitution of michigan. legal entity ownership program (leop): 117 rows — the following forms are prescribed and/or recommended by the california state board of equalization and.. Equalization Form.
From www.signnow.com
Ca Permit Board Equalization 20142024 Form Fill Out and Sign Equalization Form legal entity ownership program (leop): 117 rows — the following forms are prescribed and/or recommended by the california state board of equalization and. For property sales in new york. — the official form is only available on our website. the mission of the state board of equalization is to serve the public through fair, effective, and. Equalization Form.
From www.templateroller.com
Form 608 (L4024) Fill Out, Sign Online and Download Printable PDF Equalization Form For property sales in new york. The state tax commission is authorized by article 9, section 3 of the constitution of michigan. Note regarding new york city: the mission of the state board of equalization is to serve the public through fair, effective, and efficient tax. Tax map identifier(s)/roll identifier(s) (if more than four, attach sheet with additional i.. Equalization Form.
From www.formsbank.com
Fillable Form L4017 1998 Equalization Study Sales Ratio Adjustments Equalization Form — the official form is only available on our website. Form number instructions form title; The state tax commission is authorized by article 9, section 3 of the constitution of michigan. Tax map identifier(s)/roll identifier(s) (if more than four, attach sheet with additional i. legal entity ownership program (leop): 117 rows — the following forms are prescribed. Equalization Form.
From www.formsbank.com
355 California State Board Of Equalization Forms And Templates free to Equalization Form The state tax commission is authorized by article 9, section 3 of the constitution of michigan. Note regarding new york city: legal entity ownership program (leop): Form number instructions form title; the mission of the state board of equalization is to serve the public through fair, effective, and efficient tax. — the official form is only available. Equalization Form.
From www.formsbank.com
Fillable Form 3213 Assessment Roll Certification Of Equalization By Equalization Form Tax map identifier(s)/roll identifier(s) (if more than four, attach sheet with additional i. The state tax commission is authorized by article 9, section 3 of the constitution of michigan. Form number instructions form title; Note regarding new york city: 117 rows — the following forms are prescribed and/or recommended by the california state board of equalization and. For property. Equalization Form.
From www.formsbank.com
Form 3215 Certification Of Equalization Study By Equalization Equalization Form The state tax commission is authorized by article 9, section 3 of the constitution of michigan. For property sales in new york. Form number instructions form title; 117 rows — the following forms are prescribed and/or recommended by the california state board of equalization and. legal entity ownership program (leop): Note regarding new york city: — the. Equalization Form.
From www.formsbank.com
Fillable Form Rp5022appv Tentative Equalization Rate Appraisal Equalization Form legal entity ownership program (leop): The state tax commission is authorized by article 9, section 3 of the constitution of michigan. the mission of the state board of equalization is to serve the public through fair, effective, and efficient tax. For property sales in new york. Tax map identifier(s)/roll identifier(s) (if more than four, attach sheet with additional. Equalization Form.
From www.pdffiller.com
Fillable Online Michigan Equalization Forms Fax Email Print pdfFiller Equalization Form For property sales in new york. The state tax commission is authorized by article 9, section 3 of the constitution of michigan. Note regarding new york city: 117 rows — the following forms are prescribed and/or recommended by the california state board of equalization and. legal entity ownership program (leop): Tax map identifier(s)/roll identifier(s) (if more than four,. Equalization Form.
From www.formsbank.com
355 California State Board Of Equalization Forms And Templates free to Equalization Form Form number instructions form title; the mission of the state board of equalization is to serve the public through fair, effective, and efficient tax. Note regarding new york city: — the official form is only available on our website. The state tax commission is authorized by article 9, section 3 of the constitution of michigan. legal entity. Equalization Form.
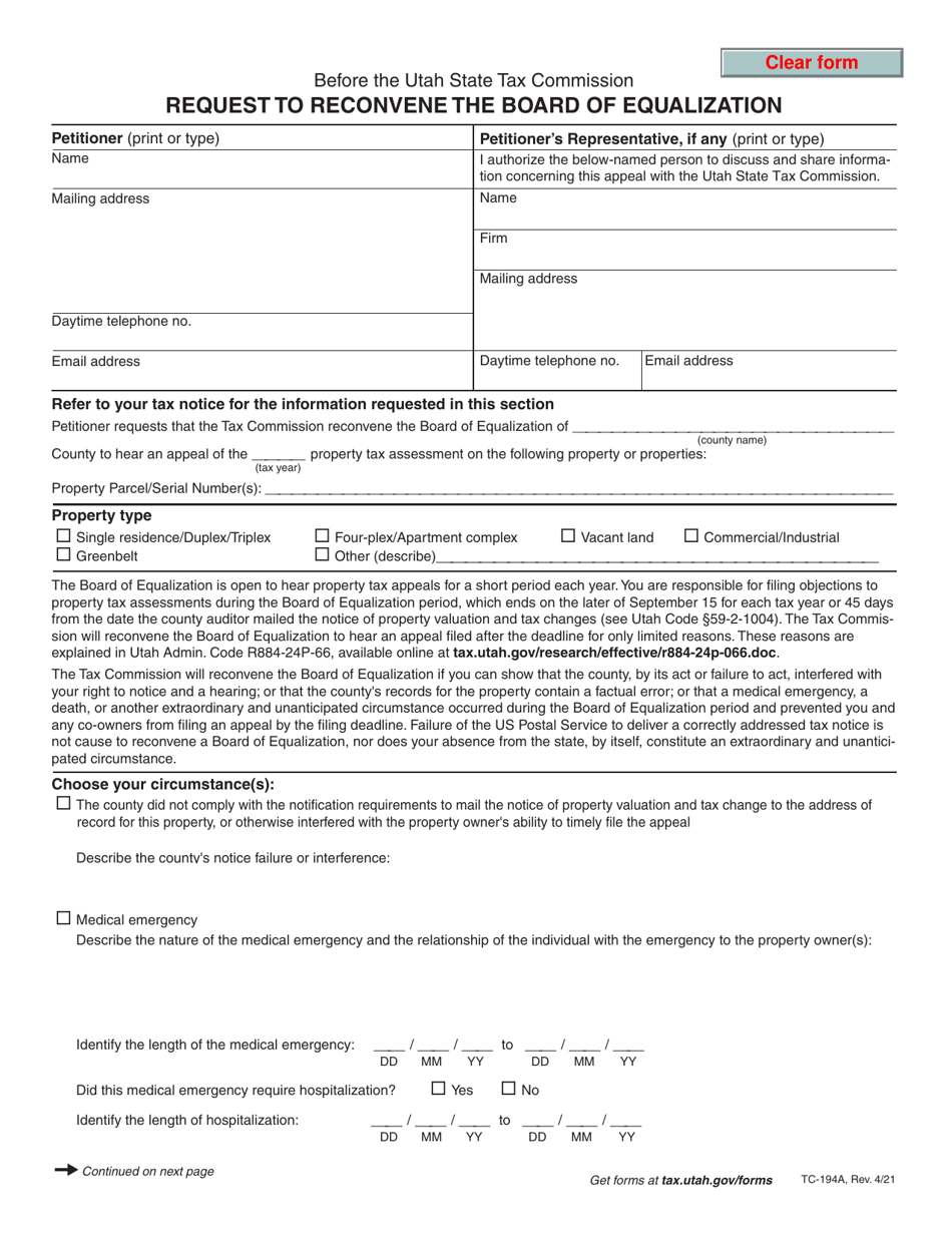
From www.templateroller.com
Form TC194A Download Fillable PDF or Fill Online Request to Reconvene Equalization Form the mission of the state board of equalization is to serve the public through fair, effective, and efficient tax. For property sales in new york. Tax map identifier(s)/roll identifier(s) (if more than four, attach sheet with additional i. Note regarding new york city: legal entity ownership program (leop): — the official form is only available on our. Equalization Form.
From www.templateroller.com
Form RP6584 Fill Out, Sign Online and Download Fillable PDF, New Equalization Form For property sales in new york. the mission of the state board of equalization is to serve the public through fair, effective, and efficient tax. Tax map identifier(s)/roll identifier(s) (if more than four, attach sheet with additional i. — the official form is only available on our website. The state tax commission is authorized by article 9, section. Equalization Form.
From www.countyforms.com
Fillable Application Form Muskegon County Equalization Printable Pdf Equalization Form Form number instructions form title; the mission of the state board of equalization is to serve the public through fair, effective, and efficient tax. 117 rows — the following forms are prescribed and/or recommended by the california state board of equalization and. The state tax commission is authorized by article 9, section 3 of the constitution of michigan.. Equalization Form.