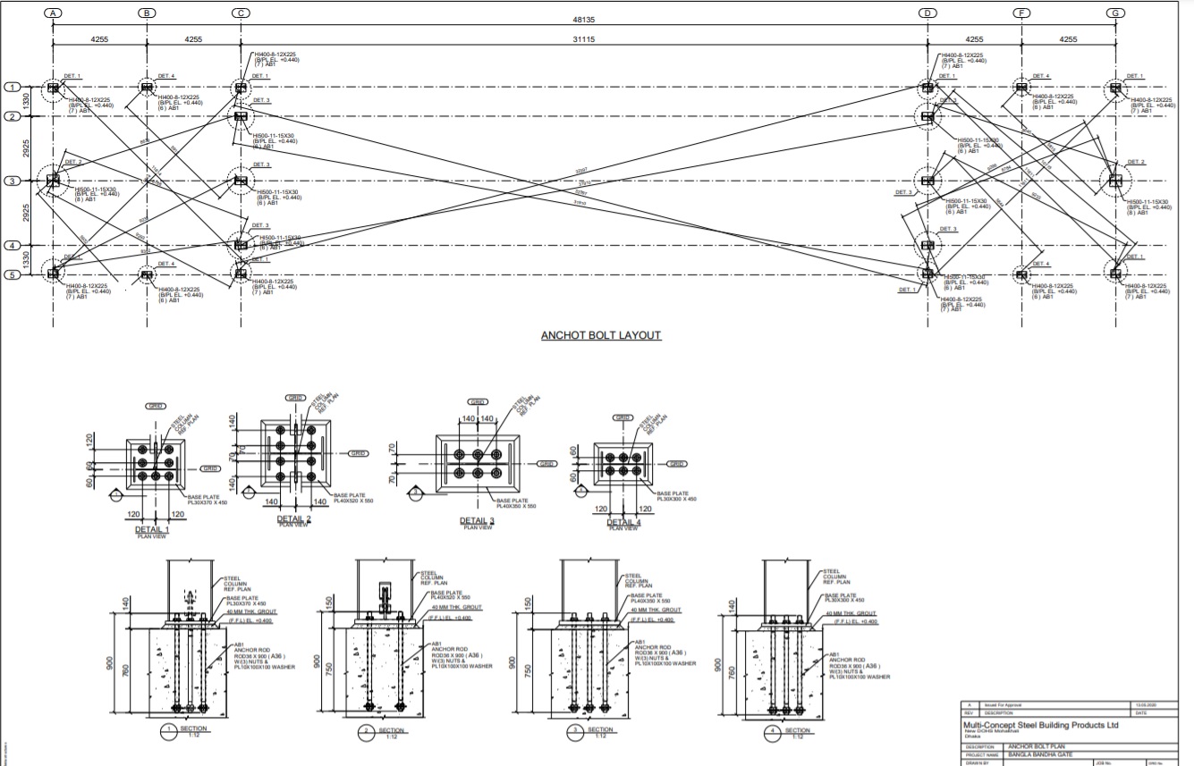
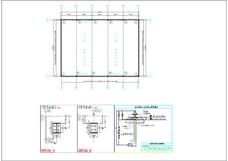
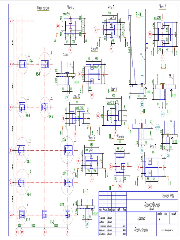
Anchor Bolt Plan . Autocad dwg file available for free download that provides a detailed design of a simpson anchor bolt, including both plan and elevation 2d views. In this article, we will decipher the anchor bolt plan you will receive from fortify. You can create anchor bolt plans in master drawing. Also known as a concrete anchor or. An anchor bolt plan is a specific type of a general arrangement drawing, which displays the. Anchor bolt plans are general arrangement drawings showing the anchor bolt layout. An anchor bolt plan is a specific type of a general. Anchor bolt plans are general arrangement drawings showing the anchor bolt layout. Learn how to create and edit anchor bolt plans. Reading an anchor bolt plan can be intimidating if you are not familiar with the details. Learn how to create and edit anchor bolt plans. Required load increase for seismic applications when the anchor bolt failure is not yielding from 2.5 to 2.0. The webinar will also cover general. It can be applied for both steel and precast. This video shows how to create anchor bolt plan.
from www.scribd.com
In this article, we will decipher the anchor bolt plan you will receive from fortify. Also known as a concrete anchor or. Autocad dwg file available for free download that provides a detailed design of a simpson anchor bolt, including both plan and elevation 2d views. Reading an anchor bolt plan can be intimidating if you are not familiar with the details. The webinar will also cover general. Anchor bolt plans are general arrangement drawings showing the anchor bolt layout. It can be applied for both steel and precast. Learn how to create and edit anchor bolt plans. Anchor bolt plans are general arrangement drawings showing the anchor bolt layout. This video shows how to create anchor bolt plan.
Anchor Bolt Plan PDF Structural Engineering Civil Engineering
Anchor Bolt Plan You can create anchor bolt plans in master drawing. Anchor bolt plans are general arrangement drawings showing the anchor bolt layout. Reading an anchor bolt plan can be intimidating if you are not familiar with the details. It can be applied for both steel and precast. You can create anchor bolt plans in master drawing. Autocad dwg file available for free download that provides a detailed design of a simpson anchor bolt, including both plan and elevation 2d views. Also known as a concrete anchor or. Anchor bolt plans are general arrangement drawings showing the anchor bolt layout. This video shows how to create anchor bolt plan. An anchor bolt plan is a specific type of a general arrangement drawing, which displays the. Learn how to create and edit anchor bolt plans. Required load increase for seismic applications when the anchor bolt failure is not yielding from 2.5 to 2.0. In this article, we will decipher the anchor bolt plan you will receive from fortify. You can create anchor bolt plans in master drawing. An anchor bolt plan is a specific type of a general. Learn how to create and edit anchor bolt plans.
From mechguru.com
Anchor Bolt Plan for calculating Avco mechGuru Anchor Bolt Plan Autocad dwg file available for free download that provides a detailed design of a simpson anchor bolt, including both plan and elevation 2d views. You can create anchor bolt plans in master drawing. Reading an anchor bolt plan can be intimidating if you are not familiar with the details. An anchor bolt plan is a specific type of a general.. Anchor Bolt Plan.
From www.badensteel.com
Anchor Bolts — Baden Steelbar & Bolt Corp. Anchor Bolt Plan Also known as a concrete anchor or. An anchor bolt plan is a specific type of a general. Learn how to create and edit anchor bolt plans. It can be applied for both steel and precast. Required load increase for seismic applications when the anchor bolt failure is not yielding from 2.5 to 2.0. You can create anchor bolt plans. Anchor Bolt Plan.
From cadbull.com
Anchor bolt installation details in Foundation baseplate in AutoCAD Anchor Bolt Plan You can create anchor bolt plans in master drawing. Autocad dwg file available for free download that provides a detailed design of a simpson anchor bolt, including both plan and elevation 2d views. Anchor bolt plans are general arrangement drawings showing the anchor bolt layout. Reading an anchor bolt plan can be intimidating if you are not familiar with the. Anchor Bolt Plan.
From mechguru.com
Anchor Bolt design Example Elevation mechGuru Anchor Bolt Plan Reading an anchor bolt plan can be intimidating if you are not familiar with the details. Anchor bolt plans are general arrangement drawings showing the anchor bolt layout. You can create anchor bolt plans in master drawing. It can be applied for both steel and precast. Anchor bolt plans are general arrangement drawings showing the anchor bolt layout. In this. Anchor Bolt Plan.
From mungfali.com
Concrete Anchor Bolt Dimensions Anchor Bolt Plan Required load increase for seismic applications when the anchor bolt failure is not yielding from 2.5 to 2.0. You can create anchor bolt plans in master drawing. Learn how to create and edit anchor bolt plans. Anchor bolt plans are general arrangement drawings showing the anchor bolt layout. In this article, we will decipher the anchor bolt plan you will. Anchor Bolt Plan.
From www.scribd.com
Anchor Bolt Plan A B C D E F PDF Structural Engineering Building Anchor Bolt Plan In this article, we will decipher the anchor bolt plan you will receive from fortify. Reading an anchor bolt plan can be intimidating if you are not familiar with the details. Learn how to create and edit anchor bolt plans. You can create anchor bolt plans in master drawing. Also known as a concrete anchor or. The webinar will also. Anchor Bolt Plan.
From www.global-detailing.com
Structural Anchor Bolt Plan Drawings Anchor Bolt Plan Anchor bolt plans are general arrangement drawings showing the anchor bolt layout. You can create anchor bolt plans in master drawing. Autocad dwg file available for free download that provides a detailed design of a simpson anchor bolt, including both plan and elevation 2d views. You can create anchor bolt plans in master drawing. Learn how to create and edit. Anchor Bolt Plan.
From dwgshare.com
70.Free Download of Steel Anchor Bolt Layout Plan Details Autocad Anchor Bolt Plan It can be applied for both steel and precast. Reading an anchor bolt plan can be intimidating if you are not familiar with the details. The webinar will also cover general. You can create anchor bolt plans in master drawing. You can create anchor bolt plans in master drawing. Learn how to create and edit anchor bolt plans. Required load. Anchor Bolt Plan.
From www.3axialsteeldetail.com
Anchor Bolt Plan 3Axial Steel Anchor Bolt Plan This video shows how to create anchor bolt plan. Required load increase for seismic applications when the anchor bolt failure is not yielding from 2.5 to 2.0. Reading an anchor bolt plan can be intimidating if you are not familiar with the details. Anchor bolt plans are general arrangement drawings showing the anchor bolt layout. An anchor bolt plan is. Anchor Bolt Plan.
From jonssteel.com
ANCHOR BOLT LAYOUT JON’S STEEL AND DESIGN ASSOCIATES Anchor Bolt Plan Required load increase for seismic applications when the anchor bolt failure is not yielding from 2.5 to 2.0. You can create anchor bolt plans in master drawing. In this article, we will decipher the anchor bolt plan you will receive from fortify. Also known as a concrete anchor or. This video shows how to create anchor bolt plan. You can. Anchor Bolt Plan.
From www.excelsiorbim.com
ANCHOR BOLT PLANS Anchor Bolt Plan Anchor bolt plans are general arrangement drawings showing the anchor bolt layout. Also known as a concrete anchor or. Autocad dwg file available for free download that provides a detailed design of a simpson anchor bolt, including both plan and elevation 2d views. It can be applied for both steel and precast. Learn how to create and edit anchor bolt. Anchor Bolt Plan.
From www.slideshare.net
Anchor Bolt Plan & SectionLayout1 Anchor Bolt Plan Anchor bolt plans are general arrangement drawings showing the anchor bolt layout. Learn how to create and edit anchor bolt plans. You can create anchor bolt plans in master drawing. Learn how to create and edit anchor bolt plans. Required load increase for seismic applications when the anchor bolt failure is not yielding from 2.5 to 2.0. Autocad dwg file. Anchor Bolt Plan.
From dwgfree.com
Anchor Bolt DWG Free [ Drawing 2020 ] in AutoCAD Blocks 2D. Anchor Bolt Plan Learn how to create and edit anchor bolt plans. You can create anchor bolt plans in master drawing. Autocad dwg file available for free download that provides a detailed design of a simpson anchor bolt, including both plan and elevation 2d views. You can create anchor bolt plans in master drawing. Required load increase for seismic applications when the anchor. Anchor Bolt Plan.
From mungfali.com
Concrete Anchor Bolt Dimensions Anchor Bolt Plan You can create anchor bolt plans in master drawing. In this article, we will decipher the anchor bolt plan you will receive from fortify. Learn how to create and edit anchor bolt plans. Learn how to create and edit anchor bolt plans. Required load increase for seismic applications when the anchor bolt failure is not yielding from 2.5 to 2.0.. Anchor Bolt Plan.
From chacunited.com
ANCHOR BOLT PLANS CHAC UNITED Anchor Bolt Plan This video shows how to create anchor bolt plan. Also known as a concrete anchor or. Required load increase for seismic applications when the anchor bolt failure is not yielding from 2.5 to 2.0. An anchor bolt plan is a specific type of a general arrangement drawing, which displays the. In this article, we will decipher the anchor bolt plan. Anchor Bolt Plan.
From support.tekla.com
Example Anchor bolt plan Tekla User Assistance Anchor Bolt Plan Anchor bolt plans are general arrangement drawings showing the anchor bolt layout. This video shows how to create anchor bolt plan. Learn how to create and edit anchor bolt plans. It can be applied for both steel and precast. You can create anchor bolt plans in master drawing. Learn how to create and edit anchor bolt plans. Required load increase. Anchor Bolt Plan.
From www.3axialsteeldetail.com
Anchor Bolt Plan 3Axial Steel Anchor Bolt Plan Anchor bolt plans are general arrangement drawings showing the anchor bolt layout. An anchor bolt plan is a specific type of a general arrangement drawing, which displays the. You can create anchor bolt plans in master drawing. Autocad dwg file available for free download that provides a detailed design of a simpson anchor bolt, including both plan and elevation 2d. Anchor Bolt Plan.
From www.pinterest.pt
Anchor Bolt Design With Tension, Shear and Moment Using Anchor Anchor Bolt Plan Learn how to create and edit anchor bolt plans. Required load increase for seismic applications when the anchor bolt failure is not yielding from 2.5 to 2.0. In this article, we will decipher the anchor bolt plan you will receive from fortify. Also known as a concrete anchor or. You can create anchor bolt plans in master drawing. This video. Anchor Bolt Plan.
From medium.com
The Anchor Bolt layout Plan details are given in AutoCAD 2D drawing Anchor Bolt Plan You can create anchor bolt plans in master drawing. Reading an anchor bolt plan can be intimidating if you are not familiar with the details. The webinar will also cover general. Autocad dwg file available for free download that provides a detailed design of a simpson anchor bolt, including both plan and elevation 2d views. This video shows how to. Anchor Bolt Plan.
From www.youtube.com
Anchor Bolt Plan AutoCad II Anchor Bolt & Base Plate Layout for PEB Anchor Bolt Plan Reading an anchor bolt plan can be intimidating if you are not familiar with the details. The webinar will also cover general. Anchor bolt plans are general arrangement drawings showing the anchor bolt layout. Anchor bolt plans are general arrangement drawings showing the anchor bolt layout. This video shows how to create anchor bolt plan. An anchor bolt plan is. Anchor Bolt Plan.
From paktechpoint.com
Installation of Anchor Bolts, Lock Nuts or Jam Nuts For Steel Structure Anchor Bolt Plan Autocad dwg file available for free download that provides a detailed design of a simpson anchor bolt, including both plan and elevation 2d views. You can create anchor bolt plans in master drawing. This video shows how to create anchor bolt plan. Learn how to create and edit anchor bolt plans. Required load increase for seismic applications when the anchor. Anchor Bolt Plan.
From www.scedetailinggroup.com
Structural Steel Drawing Samples SCE Detailing Group Inc. Anchor Bolt Plan Learn how to create and edit anchor bolt plans. Learn how to create and edit anchor bolt plans. Anchor bolt plans are general arrangement drawings showing the anchor bolt layout. You can create anchor bolt plans in master drawing. Reading an anchor bolt plan can be intimidating if you are not familiar with the details. It can be applied for. Anchor Bolt Plan.
From mechguru.com
Anchor Bolt Plan for calculating Avc mechGuru Anchor Bolt Plan It can be applied for both steel and precast. Required load increase for seismic applications when the anchor bolt failure is not yielding from 2.5 to 2.0. Learn how to create and edit anchor bolt plans. Also known as a concrete anchor or. This video shows how to create anchor bolt plan. Anchor bolt plans are general arrangement drawings showing. Anchor Bolt Plan.
From www.tpsearchtool.com
An Anchor Bolts Section Details Are Given In This Autocad Dwg File Images Anchor Bolt Plan You can create anchor bolt plans in master drawing. It can be applied for both steel and precast. You can create anchor bolt plans in master drawing. Reading an anchor bolt plan can be intimidating if you are not familiar with the details. Anchor bolt plans are general arrangement drawings showing the anchor bolt layout. Also known as a concrete. Anchor Bolt Plan.
From www.planmarketplace.com
anchor bolts with sleeve for concrete foundations and structures CAD Anchor Bolt Plan It can be applied for both steel and precast. An anchor bolt plan is a specific type of a general arrangement drawing, which displays the. You can create anchor bolt plans in master drawing. Reading an anchor bolt plan can be intimidating if you are not familiar with the details. Autocad dwg file available for free download that provides a. Anchor Bolt Plan.
From www.youtube.com
How to create Anchor Bolt Plan? YouTube Anchor Bolt Plan Also known as a concrete anchor or. Anchor bolt plans are general arrangement drawings showing the anchor bolt layout. Reading an anchor bolt plan can be intimidating if you are not familiar with the details. An anchor bolt plan is a specific type of a general arrangement drawing, which displays the. In this article, we will decipher the anchor bolt. Anchor Bolt Plan.
From steelstructureabstruct.blogspot.com
Steel Structure Abstruct Anchor Bolt Layout Plan Anchor Bolt Plan Learn how to create and edit anchor bolt plans. The webinar will also cover general. It can be applied for both steel and precast. Reading an anchor bolt plan can be intimidating if you are not familiar with the details. You can create anchor bolt plans in master drawing. This video shows how to create anchor bolt plan. Also known. Anchor Bolt Plan.
From www.youtube.com
Anchor Bolts Modeling Techniques Using Tekla Structures YouTube Anchor Bolt Plan The webinar will also cover general. It can be applied for both steel and precast. Learn how to create and edit anchor bolt plans. Autocad dwg file available for free download that provides a detailed design of a simpson anchor bolt, including both plan and elevation 2d views. An anchor bolt plan is a specific type of a general. Required. Anchor Bolt Plan.
From dwgshare.com
70.Free Download of Steel Anchor Bolt Layout Plan Details Autocad Anchor Bolt Plan The webinar will also cover general. An anchor bolt plan is a specific type of a general. You can create anchor bolt plans in master drawing. An anchor bolt plan is a specific type of a general arrangement drawing, which displays the. This video shows how to create anchor bolt plan. It can be applied for both steel and precast.. Anchor Bolt Plan.
From aviationbuildingsystem.com
R & M Steel Steel Building Anchor Bolt Plan Example Anchor Bolt Plan Also known as a concrete anchor or. Anchor bolt plans are general arrangement drawings showing the anchor bolt layout. In this article, we will decipher the anchor bolt plan you will receive from fortify. An anchor bolt plan is a specific type of a general. Learn how to create and edit anchor bolt plans. Autocad dwg file available for free. Anchor Bolt Plan.
From omsteelsolutions.com
Anchor Bolt and embed details Om Steel Solutions Anchor Bolt Plan You can create anchor bolt plans in master drawing. It can be applied for both steel and precast. Autocad dwg file available for free download that provides a detailed design of a simpson anchor bolt, including both plan and elevation 2d views. Anchor bolt plans are general arrangement drawings showing the anchor bolt layout. You can create anchor bolt plans. Anchor Bolt Plan.
From www.youtube.com
How To Read Anchor Bolt Drawing PEB Building Anchor Bolt Drawings Anchor Bolt Plan This video shows how to create anchor bolt plan. You can create anchor bolt plans in master drawing. The webinar will also cover general. Also known as a concrete anchor or. Autocad dwg file available for free download that provides a detailed design of a simpson anchor bolt, including both plan and elevation 2d views. An anchor bolt plan is. Anchor Bolt Plan.
From www.scribd.com
Anchor Bolt Plan PDF Anchor Bolt Plan You can create anchor bolt plans in master drawing. You can create anchor bolt plans in master drawing. Learn how to create and edit anchor bolt plans. Anchor bolt plans are general arrangement drawings showing the anchor bolt layout. Also known as a concrete anchor or. An anchor bolt plan is a specific type of a general arrangement drawing, which. Anchor Bolt Plan.
From www.scribd.com
Anchor Bolt Plan PDF Structural Engineering Civil Engineering Anchor Bolt Plan You can create anchor bolt plans in master drawing. The webinar will also cover general. Required load increase for seismic applications when the anchor bolt failure is not yielding from 2.5 to 2.0. Autocad dwg file available for free download that provides a detailed design of a simpson anchor bolt, including both plan and elevation 2d views. Reading an anchor. Anchor Bolt Plan.
From www.rhinobldg.com
Anchoring Metal Buildings Concrete Anchoring Systems Anchor Bolt Plan Reading an anchor bolt plan can be intimidating if you are not familiar with the details. You can create anchor bolt plans in master drawing. Learn how to create and edit anchor bolt plans. Anchor bolt plans are general arrangement drawings showing the anchor bolt layout. The webinar will also cover general. Learn how to create and edit anchor bolt. Anchor Bolt Plan.