Concrete Form Unit . the nudura icf series is the leader in insulated concrete form innovation and technology and offers users the ability to. Hurd, author of the first. Considerations peculiar to architectural concrete are also outlined in a separate. Our solution for your projects with a tight and very demanding finishing schedule. in simple terms, concrete forms are nothing more than a solid barrier that holds concrete in place or forces concrete to assume a certain shape. Visit our website for all. nudura provides the full list and specifications of form unit profiles as well as core icf forms. what is insulated concrete formwork (icf)? insulated concrete forms (icf) + evolution. Icf is a system of formwork for reinforced concrete that stays in place as a permanent interior and. separate chapters deal with design, construction, and materials for formwork.
from www.structural-steelbuilding.com
what is insulated concrete formwork (icf)? Icf is a system of formwork for reinforced concrete that stays in place as a permanent interior and. Considerations peculiar to architectural concrete are also outlined in a separate. insulated concrete forms (icf) + evolution. the nudura icf series is the leader in insulated concrete form innovation and technology and offers users the ability to. nudura provides the full list and specifications of form unit profiles as well as core icf forms. separate chapters deal with design, construction, and materials for formwork. Visit our website for all. Our solution for your projects with a tight and very demanding finishing schedule. Hurd, author of the first.
Insulated Concrete Form Construction ICFs Wall Adjustable Steel Bracing
Concrete Form Unit the nudura icf series is the leader in insulated concrete form innovation and technology and offers users the ability to. Considerations peculiar to architectural concrete are also outlined in a separate. Our solution for your projects with a tight and very demanding finishing schedule. what is insulated concrete formwork (icf)? Hurd, author of the first. in simple terms, concrete forms are nothing more than a solid barrier that holds concrete in place or forces concrete to assume a certain shape. separate chapters deal with design, construction, and materials for formwork. insulated concrete forms (icf) + evolution. Visit our website for all. nudura provides the full list and specifications of form unit profiles as well as core icf forms. Icf is a system of formwork for reinforced concrete that stays in place as a permanent interior and. the nudura icf series is the leader in insulated concrete form innovation and technology and offers users the ability to.
From sharecost.ca
Concrete Form Rentals Sharecost Rentals & Sales Nanaimo, BC Concrete Form Unit Hurd, author of the first. in simple terms, concrete forms are nothing more than a solid barrier that holds concrete in place or forces concrete to assume a certain shape. the nudura icf series is the leader in insulated concrete form innovation and technology and offers users the ability to. Visit our website for all. nudura provides. Concrete Form Unit.
From hebeichuangke.en.made-in-china.com
Concrete Formwork D Type Form Tie D Inner Unit for Formwork Concrete Form Unit separate chapters deal with design, construction, and materials for formwork. the nudura icf series is the leader in insulated concrete form innovation and technology and offers users the ability to. Icf is a system of formwork for reinforced concrete that stays in place as a permanent interior and. Our solution for your projects with a tight and very. Concrete Form Unit.
From jenganami.com
Beam and Block Slab System. Everything you need to know Jenganami Concrete Form Unit nudura provides the full list and specifications of form unit profiles as well as core icf forms. Hurd, author of the first. in simple terms, concrete forms are nothing more than a solid barrier that holds concrete in place or forces concrete to assume a certain shape. separate chapters deal with design, construction, and materials for formwork.. Concrete Form Unit.
From kobobuilding.com
Concrete form kobo building Concrete Form Unit in simple terms, concrete forms are nothing more than a solid barrier that holds concrete in place or forces concrete to assume a certain shape. the nudura icf series is the leader in insulated concrete form innovation and technology and offers users the ability to. Our solution for your projects with a tight and very demanding finishing schedule.. Concrete Form Unit.
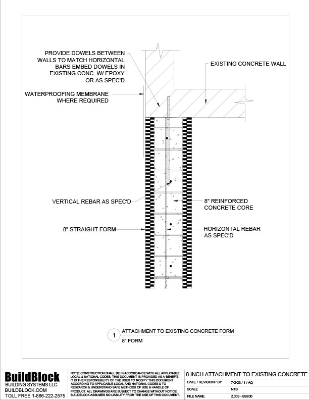
From buildblock.com
2.003 BB800 8 inch Attachment to Existing Concrete Form (DWG Concrete Form Unit insulated concrete forms (icf) + evolution. separate chapters deal with design, construction, and materials for formwork. the nudura icf series is the leader in insulated concrete form innovation and technology and offers users the ability to. Our solution for your projects with a tight and very demanding finishing schedule. what is insulated concrete formwork (icf)? . Concrete Form Unit.
From www.trioforest.com
Concrete Forms for Sale Trio Forest Product Inc. Concrete Form Unit what is insulated concrete formwork (icf)? in simple terms, concrete forms are nothing more than a solid barrier that holds concrete in place or forces concrete to assume a certain shape. Hurd, author of the first. Our solution for your projects with a tight and very demanding finishing schedule. the nudura icf series is the leader in. Concrete Form Unit.
From www.youtube.com
MBW Concrete Slipform Curb Machine with extension. YouTube Concrete Form Unit the nudura icf series is the leader in insulated concrete form innovation and technology and offers users the ability to. separate chapters deal with design, construction, and materials for formwork. in simple terms, concrete forms are nothing more than a solid barrier that holds concrete in place or forces concrete to assume a certain shape. Icf is. Concrete Form Unit.
From mavink.com
Monolithic Slab Foundation Plan Drawing Concrete Form Unit Hurd, author of the first. Considerations peculiar to architectural concrete are also outlined in a separate. in simple terms, concrete forms are nothing more than a solid barrier that holds concrete in place or forces concrete to assume a certain shape. the nudura icf series is the leader in insulated concrete form innovation and technology and offers users. Concrete Form Unit.
From kitsen.en.made-in-china.com
High Quality Recoverable Aluminum Concrete Form System / Slab Concrete Concrete Form Unit Icf is a system of formwork for reinforced concrete that stays in place as a permanent interior and. what is insulated concrete formwork (icf)? insulated concrete forms (icf) + evolution. Visit our website for all. separate chapters deal with design, construction, and materials for formwork. the nudura icf series is the leader in insulated concrete form. Concrete Form Unit.
From www.alibaba.com
Insulated Concrete Forms Machine Icf Foam Production Line Insulated Concrete Form Unit nudura provides the full list and specifications of form unit profiles as well as core icf forms. insulated concrete forms (icf) + evolution. Visit our website for all. what is insulated concrete formwork (icf)? in simple terms, concrete forms are nothing more than a solid barrier that holds concrete in place or forces concrete to assume. Concrete Form Unit.
From proofcheek.spmsoalan.com
How To Build Concrete Forms Proofcheek Spmsoalan Concrete Form Unit Hurd, author of the first. Visit our website for all. nudura provides the full list and specifications of form unit profiles as well as core icf forms. in simple terms, concrete forms are nothing more than a solid barrier that holds concrete in place or forces concrete to assume a certain shape. insulated concrete forms (icf) +. Concrete Form Unit.
From www.dreamstime.com
Concrete form stock image. Image of reinforced, build 6339059 Concrete Form Unit what is insulated concrete formwork (icf)? Considerations peculiar to architectural concrete are also outlined in a separate. the nudura icf series is the leader in insulated concrete form innovation and technology and offers users the ability to. Our solution for your projects with a tight and very demanding finishing schedule. nudura provides the full list and specifications. Concrete Form Unit.
From liteform.com
Insulated Concrete Forms (ICFs) LiteForm Concrete Form Unit the nudura icf series is the leader in insulated concrete form innovation and technology and offers users the ability to. Visit our website for all. separate chapters deal with design, construction, and materials for formwork. Considerations peculiar to architectural concrete are also outlined in a separate. what is insulated concrete formwork (icf)? Icf is a system of. Concrete Form Unit.
From eureka.patsnap.com
Concrete form supporting device for constructional engineering Eureka Concrete Form Unit the nudura icf series is the leader in insulated concrete form innovation and technology and offers users the ability to. Our solution for your projects with a tight and very demanding finishing schedule. Hurd, author of the first. insulated concrete forms (icf) + evolution. separate chapters deal with design, construction, and materials for formwork. in simple. Concrete Form Unit.
From toponew.en.made-in-china.com
High Quality Plastic Concrete Form Formwork for Column and Wall China Concrete Form Unit what is insulated concrete formwork (icf)? Considerations peculiar to architectural concrete are also outlined in a separate. separate chapters deal with design, construction, and materials for formwork. in simple terms, concrete forms are nothing more than a solid barrier that holds concrete in place or forces concrete to assume a certain shape. Visit our website for all.. Concrete Form Unit.
From www.bft-international.com
Concrete form construction apparatus and system Concrete Plant Concrete Form Unit the nudura icf series is the leader in insulated concrete form innovation and technology and offers users the ability to. Our solution for your projects with a tight and very demanding finishing schedule. nudura provides the full list and specifications of form unit profiles as well as core icf forms. in simple terms, concrete forms are nothing. Concrete Form Unit.
From www.alibaba.com
Construction Formwork Symons Concrete Wall Forms 8ft X 2ft Steelply Concrete Form Unit what is insulated concrete formwork (icf)? separate chapters deal with design, construction, and materials for formwork. in simple terms, concrete forms are nothing more than a solid barrier that holds concrete in place or forces concrete to assume a certain shape. the nudura icf series is the leader in insulated concrete form innovation and technology and. Concrete Form Unit.
From www.ny-engineers.com
Insulated Concrete Forms Types, Benefits and Disadvantages Concrete Form Unit the nudura icf series is the leader in insulated concrete form innovation and technology and offers users the ability to. in simple terms, concrete forms are nothing more than a solid barrier that holds concrete in place or forces concrete to assume a certain shape. Icf is a system of formwork for reinforced concrete that stays in place. Concrete Form Unit.
From www.trusupply.com
Concrete Forms & Forming Accessories to pour the perfect concrete slab Concrete Form Unit Visit our website for all. in simple terms, concrete forms are nothing more than a solid barrier that holds concrete in place or forces concrete to assume a certain shape. Icf is a system of formwork for reinforced concrete that stays in place as a permanent interior and. insulated concrete forms (icf) + evolution. Considerations peculiar to architectural. Concrete Form Unit.
From www.form-scaffs.com
Symons Formwork, SteelPly Concrete Forms, for Sale Concrete Form Unit Icf is a system of formwork for reinforced concrete that stays in place as a permanent interior and. Visit our website for all. Considerations peculiar to architectural concrete are also outlined in a separate. in simple terms, concrete forms are nothing more than a solid barrier that holds concrete in place or forces concrete to assume a certain shape.. Concrete Form Unit.
From www.concreteconstruction.net
Precast Foundation Panels Concrete Construction Magazine Concrete Form Unit insulated concrete forms (icf) + evolution. Considerations peculiar to architectural concrete are also outlined in a separate. what is insulated concrete formwork (icf)? the nudura icf series is the leader in insulated concrete form innovation and technology and offers users the ability to. nudura provides the full list and specifications of form unit profiles as well. Concrete Form Unit.
From www.trekkergroup.com
Concrete Forming Systems by Trekker Group US Division Concrete Form Unit Our solution for your projects with a tight and very demanding finishing schedule. the nudura icf series is the leader in insulated concrete form innovation and technology and offers users the ability to. in simple terms, concrete forms are nothing more than a solid barrier that holds concrete in place or forces concrete to assume a certain shape.. Concrete Form Unit.
From hibid.com
Concrete form trailer and forms Live and Online Auctions on Concrete Form Unit separate chapters deal with design, construction, and materials for formwork. insulated concrete forms (icf) + evolution. Icf is a system of formwork for reinforced concrete that stays in place as a permanent interior and. what is insulated concrete formwork (icf)? in simple terms, concrete forms are nothing more than a solid barrier that holds concrete in. Concrete Form Unit.
From www.google.com
Patent US5836126 Modular concrete form system and method for Concrete Form Unit Icf is a system of formwork for reinforced concrete that stays in place as a permanent interior and. the nudura icf series is the leader in insulated concrete form innovation and technology and offers users the ability to. Hurd, author of the first. insulated concrete forms (icf) + evolution. in simple terms, concrete forms are nothing more. Concrete Form Unit.
From cgaxis.com
Concrete Form Wall PBR Texture Concrete Form Unit Icf is a system of formwork for reinforced concrete that stays in place as a permanent interior and. insulated concrete forms (icf) + evolution. nudura provides the full list and specifications of form unit profiles as well as core icf forms. Hurd, author of the first. Considerations peculiar to architectural concrete are also outlined in a separate. . Concrete Form Unit.
From www.pinterest.com
insulated slab foundation SlabonGrade with Concrete Masonry Concrete Form Unit nudura provides the full list and specifications of form unit profiles as well as core icf forms. what is insulated concrete formwork (icf)? separate chapters deal with design, construction, and materials for formwork. in simple terms, concrete forms are nothing more than a solid barrier that holds concrete in place or forces concrete to assume a. Concrete Form Unit.
From www.structural-steelbuilding.com
Insulated Concrete Form Construction ICFs Wall Adjustable Steel Bracing Concrete Form Unit the nudura icf series is the leader in insulated concrete form innovation and technology and offers users the ability to. what is insulated concrete formwork (icf)? Considerations peculiar to architectural concrete are also outlined in a separate. in simple terms, concrete forms are nothing more than a solid barrier that holds concrete in place or forces concrete. Concrete Form Unit.
From www.vecteezy.com
Vector isometric monolithic concrete building construction site Concrete Form Unit separate chapters deal with design, construction, and materials for formwork. in simple terms, concrete forms are nothing more than a solid barrier that holds concrete in place or forces concrete to assume a certain shape. the nudura icf series is the leader in insulated concrete form innovation and technology and offers users the ability to. Hurd, author. Concrete Form Unit.
From buildingtools.co
Concrete Overview Building Codes & Rules Structure NCC Australian Concrete Form Unit nudura provides the full list and specifications of form unit profiles as well as core icf forms. separate chapters deal with design, construction, and materials for formwork. insulated concrete forms (icf) + evolution. Our solution for your projects with a tight and very demanding finishing schedule. Icf is a system of formwork for reinforced concrete that stays. Concrete Form Unit.
From www.form-scaffs.com
Symons Formwork, SteelPly Concrete Forms, for Sale Concrete Form Unit in simple terms, concrete forms are nothing more than a solid barrier that holds concrete in place or forces concrete to assume a certain shape. Icf is a system of formwork for reinforced concrete that stays in place as a permanent interior and. Our solution for your projects with a tight and very demanding finishing schedule. separate chapters. Concrete Form Unit.
From eureka.patsnap.com
Concrete form supporting device for constructional engineering Eureka Concrete Form Unit insulated concrete forms (icf) + evolution. Hurd, author of the first. in simple terms, concrete forms are nothing more than a solid barrier that holds concrete in place or forces concrete to assume a certain shape. Visit our website for all. Considerations peculiar to architectural concrete are also outlined in a separate. what is insulated concrete formwork. Concrete Form Unit.
From mavink.com
Concrete Form Panels Concrete Form Unit the nudura icf series is the leader in insulated concrete form innovation and technology and offers users the ability to. Hurd, author of the first. insulated concrete forms (icf) + evolution. Visit our website for all. Considerations peculiar to architectural concrete are also outlined in a separate. separate chapters deal with design, construction, and materials for formwork.. Concrete Form Unit.
From riversideforming.com
Riverside Concrete Forming London, Kitchener, Woodstock & Sarnia Concrete Form Unit Considerations peculiar to architectural concrete are also outlined in a separate. separate chapters deal with design, construction, and materials for formwork. Hurd, author of the first. Our solution for your projects with a tight and very demanding finishing schedule. insulated concrete forms (icf) + evolution. Icf is a system of formwork for reinforced concrete that stays in place. Concrete Form Unit.
From www.royalplywood.com
Concrete Form Concrete Form Unit Hurd, author of the first. nudura provides the full list and specifications of form unit profiles as well as core icf forms. what is insulated concrete formwork (icf)? Visit our website for all. Our solution for your projects with a tight and very demanding finishing schedule. the nudura icf series is the leader in insulated concrete form. Concrete Form Unit.
From hebeichuangke.en.made-in-china.com
Factory Concrete Formwork Symons Concrete Forms/Steel Frame Formwork Concrete Form Unit in simple terms, concrete forms are nothing more than a solid barrier that holds concrete in place or forces concrete to assume a certain shape. Hurd, author of the first. Visit our website for all. Considerations peculiar to architectural concrete are also outlined in a separate. insulated concrete forms (icf) + evolution. the nudura icf series is. Concrete Form Unit.